5.25" Diskette Adapter
188-216 5.25" External, Internal Diskette Drive, and Diskette Adapter/A
@DFFA.ADF - 5.25" Diskette Drive Adapter (1.2MB card only!)
4869drve.exe 1.2MB Floppy Adapter Option disk
4869 External Diskette Drive

Early 5.25" 1.2MB / 360KB External Diskette Adapter
5.25" 1.2MB / 360KB External Diskette Adapter
5.25" 360KB External Diskette Adapter  Lacks any POS circuitry.
ADF Sections for 1.2MB Version



Early 5.25" 1.2MB / 360KB External Diskette Adapter FRU 15F7996
J1 34 Pin floppy header 
J2 DB37 external floppy 
S1 Unk four position DIP switch
U1 NEC 72065C
U2 SED9420 
Y1 32.000 MHz xtal 
Y2 19.200 MHz xtal
0

David Beem says
   I was sent an early version (883x & 884x date codes on the chips vs. ~903x on my later versions) of the "Diskette Adapter/A" that has a slightly different layout but with the same FRU & FCC ID. 
   All switch positions are up ("on") on mine; don't know what they do. Y1 & Y2 are reversed from the later board: Y1 = 32MHz, Y2 = 19.2MHz here. They are also the "full-can" crystals. U1 is a NEC 72065C (the diskette controller chip). U2 is a "SED9420", not sure of the function, maybe a data separator. J1 & J2 are the same as the later board. Outside the identified components there is SMC TTL chips that fill every available position otherwise.



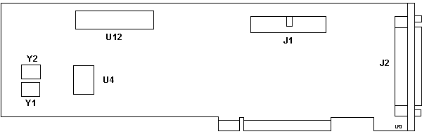
5.25" 1.2MB / 360KB External Diskette Adapter FRU 15F7996
J1 34 Pin floppy header
J2 DB37 external floppy
U4 15F8072
U12 NEC D765BC
Y1 19.200 MHz xtal
Y2 32.000 MHz xtal
 Allows the 4869-001 or 002 to be attached to the 8550, 8560, 8570, or 8580 system unit or the diskette drive (6451006) to be attached to the Personal System/2 8560 or 8580 system unit.  A device driver is used with the 4869 or PS/2 Internal Diskette Drive (6451006). This adapter can accommodate up to two 5.25-inch diskette drives, one external and/or one internal drive in the following system configurations:
   TWO DISKETTE DRIVES           ONE DISKETTE DRIVE
    MODELS 60, 80            MODELS 50,       MODELS
         ONLY                60, 70, 80      60, 80
EXTERNAL      INTERNAL       EXTERNAL       INTERNAL
4869-001 and  6451006        4869-001   or   6451006
4869-002 and  6451006        4869-002

David Beem weighs in with:
  I have the driver for this board (4869drve.exe). Interesting to note the 34-pin 'J1' is a conventional floppy pinout (no power on the connection)   that gives you a standard 34-pin (read: clone) floppy data connection on the board. This is for the PS/2s that have a 5-1/4" bay & the separate drive power plugs.
   The driver only recognizes the 5-1/4" drive types (360Kb or 1.2Mb), but will read a conventional 1.44Mb drive fine (Identified as 1.2Mb. You can also DRIVPARM it to make it appear like it should.). Can't supplant the regular floppy drives this way though: The attached drive is set up as the next available drive letter. If you have a compressed drive that the host partition is "H:" the attached floppy will be "I:". With both an internal & external drive attached to this board the internal drive is configured
first. Only one drive can be on each of the connections. The internal ribbon cable should have no twists.

Tim Clark boasts:
   Anyway, the point of all this is that I found that the 1.2MB could be configured as "Drive B:" by editing the system ADF to add the 5.25" drive codes, provided that the later version of SC.EXE (V2.20?) was being used.



5.25" 360KB External Diskette Adapter FRU 72X6758

   The 360KB adapter has three small ICs to the left of P3. The rest of the "adapter" is bare. This adapter is intended  *only* for the 360K version of the IBM 4869-001 external 5.25" drive (embossed "Star" symbol in the faceplate of the drive).

>72x6755 is a card fitted to a plastic bracket making it fit into the second floppy bay of the 8570 (Ed. or 8580) I got it from  It had a connector on the side (34 pin header), which was connected by ribbon cable to the MCA card using a 34 pin edgecard socet (3M 5934).

David Beem again lays it out by saying:
   Nothing more than a pass-through MCA riser. You have to put in a bay adapter & 34-pin connecting cable too.



ADF Sections  AdapterID DFFAH  AdapterName "5.25-inch Diskette Drive Adapter"

FixedResources
         io 0280h - 0287h
         int 6

DMA Arbitration Levels
   This is the DMA channel during data transfer.  Ordinarily, <Level 3> is always selected.
      <"Level 3">,  1, 5, 7

        

9595 Main Page