The Project Gutenberg EBook of Pompeii, Its Life and Art, by August Mau This eBook is for the use of anyone anywhere at no cost and with almost no restrictions whatsoever. You may copy it, give it away or re-use it under the terms of the Project Gutenberg License included with this eBook or online at www.gutenberg.org Title: Pompeii, Its Life and Art Author: August Mau Translator: Francis Kelsey Release Date: May 16, 2013 [EBook #42715] Language: English Character set encoding: UTF-8 *** START OF THIS PROJECT GUTENBERG EBOOK POMPEII, ITS LIFE AND ART *** Produced by Melissa McDaniel and the Online Distributed Proofreading Team at http://www.pgdp.net (This file was produced from images generously made available by The Internet Archive)
Transcriber's Note:
Obvious typographical errors have been corrected. Inconsistent spelling and hyphenation in the original document have been preserved.
On page 431, 1854 should possibly be 1845.
On page 533, the page number referenced is missing on the first Chapter XXXV citation.
On page 544, the pages listed as pp 226-223 are possibly a typo.
On page 487, \B and \F represent VB and VF ligatures.
POMPEII
ITS LIFE AND ART
BY
AUGUST MAU
GERMAN ARCHAEOLOGICAL INSTITUTE IN ROME
Translated into English
BY FRANCIS W. KELSEY
UNIVERSITY OF MICHIGAN
WITH NUMEROUS ILLUSTRATIONS FROM ORIGINAL
DRAWINGS AND PHOTOGRAPHS
NEW EDITION, REVISED AND CORRECTED
New York
THE MACMILLAN COMPANY
LONDON: MACMILLAN & CO., Ltd.
1902
All rights reserved
Copyright, 1899, 1902,
By FRANCIS W. KELSEY.
First Edition, October, 1899.
New Revised Edition, with additions, November, 1902.
Norwood Press
J. S. Cushing & Co.—Berwick & Smith
Norwood Mass. U.S.A.
For twenty-five years Professor Mau has devoted himself to the study of Pompeii, spending his summers among the ruins and his winters in Rome, working up the new material. He holds a unique place among the scholars who have given attention to Pompeian antiquities, and his contributions to the literature of the subject have been numerous in both German and Italian. The present volume, however, is not a translation of one previously issued, but a new work first published in English, the liberality of the publishers having made it possible to secure assistance for the preparation of certain restorations and other drawings which Professor Mau desired to have made as illustrating his interpretation of the ruins.
In one respect there is an essential difference between the remains of Pompeii and those of the large and famous cities of antiquity, as Rome or Athens, which have associated with them the familiar names of historical characters. Mars' Hill is clothed with human interest, if for no other reason, because of its relation to the work of the Apostle Paul; while the Roman Forum and the Palatine, barren as they seem to-day, teem with life as there rise before the mind's eye the scenes presented in the pages of classical writers. But the Campanian city played an unimportant part in contemporary history; the name of not a single great Pompeian is recorded. The ruins, deprived of the interest arising from historical associations, must be interpreted with little help from literary sources, and repeopled with aggregate rather than individual life.
A few Pompeians, whose features have survived in herms or statues and whose names are known from the inscriptions, seem vi near to us,—such are Caecilius Jucundus and the generous priestess Eumachia; but the characters most commonly associated with the city are those of fiction. Here, in a greater degree than in most places, the work of reconstruction involves the handling of countless bits of evidence, which, when viewed by themselves, often seem too minute to be of importance; the blending of these into a complete and faithful picture is a task of infinite painstaking, the difficulty of which will best be appreciated by one who has worked in this field.
It was at first proposed to place at the end of the book a series of bibliographical notes on the different chapters, giving references to the more important treatises and articles dealing with the matters presented. But on fuller consideration it seemed unnecessary thus to add to the bulk of the volume; those who are interested in the study of a particular building or aspect of Pompeian culture will naturally turn to the Pompeianarum antiquitatum historia, the reports in the Notizie degli Scavi, the reports and articles by Professor Mau in the Roman Mittheilungen of the German Archaeological Institute, the Overbeck-Mau Pompeji, the Studies by Mau and by Nissen, the commemorative volume issued in 1879 under the title Pompei e la regione sotterrata dal Vesuvio, the catalogues of the paintings by Helbig and Sogliano, together with Mau's Geschichte der decorativen Wandmalerei in Pompeji, H. von Rohden's Terracotten von Pompeji, and the older illustrated works, as well as the beautiful volume, Pompeji vor der Zerstoerung, published in 1897 by Weichardt.
The titles of more than five hundred books and pamphlets relating to Pompeii are given in Furchheim's Bibliografia di Pompei (second edition, Naples, 1891). To this list should be added an elaborate work on the temple of Isis, Aedis Isidis Pompeiana, which is soon to appear. The copperplates for the engravings were prepared at the expense of the old Accademia ercolanese, but only the first section of the work was published; the plates, fortunately, have been preserved without vii injury, and the publication has at last been undertaken by Professor Sogliano.
Professor Mau wishes to make grateful acknowledgment of obligation to Messrs. C. Bazzani, R. Koldewey, G. Randanini, and G. Tognetti for kind assistance in making ready for the engraver the drawings presenting restorations of buildings; to the authorities of the German Archaeological Institute for freely granting the use of a number of drawings in its collection; and to the photographer, Giacomo Brogi of Florence, for placing his collection of photographs at the author's disposal and making special prints for the use of the engraver. In addition to the photographs obtained from Brogi, a small number were furnished for the volume by the translator, and a few were derived from other sources.
The restorations are not fanciful. They were made with the help of careful measurements and of computations based upon the existing remains; occasionally also evidence derived from reliefs and wall paintings was utilized. Uncertain details are generally omitted.
It is due to Professor Mau to say that in preparing his manuscript for English readers I have, with his permission, made some changes. The order of presentation has occasionally been altered. In several chapters the German manuscript has been abridged, while in others, containing points in regard to which English readers might desire a somewhat fuller statement, I have made slight additions. The preparation of the English form of the volume, undertaken for reasons of friendship, has been less a task than a pleasure.
FRANCIS W. KELSEY.
Ann Arbor, Michigan,
October 25, 1899.
The author and the translator unite in expressing their deep appreciation of the kind reception accorded to the first edition of this book.
The second edition has been revised on the spot. Besides minor additions, it has been enlarged by a chapter on the recently discovered temple of Venus Pompeiana, and a Bibliographical Appendix; prepared in response to requests from various quarters. Among the new illustrations in the text are a restoration of the temple of Vespasian and a reproduction of the bronze youth found in 1900, besides the Alexandria patera and one of the skeleton cups from the Boscoreale treasure; in Plate VIII are presented two additional paintings from the house of the Vettii.
The translator is alone responsible for Chapter LIX, which was prepared for the first edition at Professor Mau's request, at a time when he was pressed with other work; for the paragraphs in regard to the treasure of Boscoreale, and for one-half of the references in the Bibliographical Appendix.
AUGUST MAU
FRANCIS W. KELSEY
Albergo del Sole, Pompei
August 2, 1901
| INTRODUCTION | |||
| CHAPTER | PAGE | ||
| I. | The Situation of Pompeii | 1 | |
| II. | Before 79 | 8 | |
| III. | The City Overwhelmed | 19 | |
| IV. | The Unearthing of the City | 25 | |
| V. | A Bird's-eye View | 31 | |
| VI. | Building Materials, Construction, and Architectural Periods | 35 | |
| PART I | |||
| PUBLIC PLACES AND BUILDINGS | |||
| VII. | The Forum | 45 | |
| VIII. | General View of the Buildings about the Forum.—The Temple of Jupiter | 61 | |
| IX. | The Basilica | 70 | |
| X. | The Temple of Apollo | 80 | |
| XI. | The Buildings at the Northwest Corner of the Forum, and the Table of Standard Measures | 91 | |
| XII. | The Macellum | 94 | |
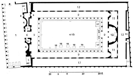
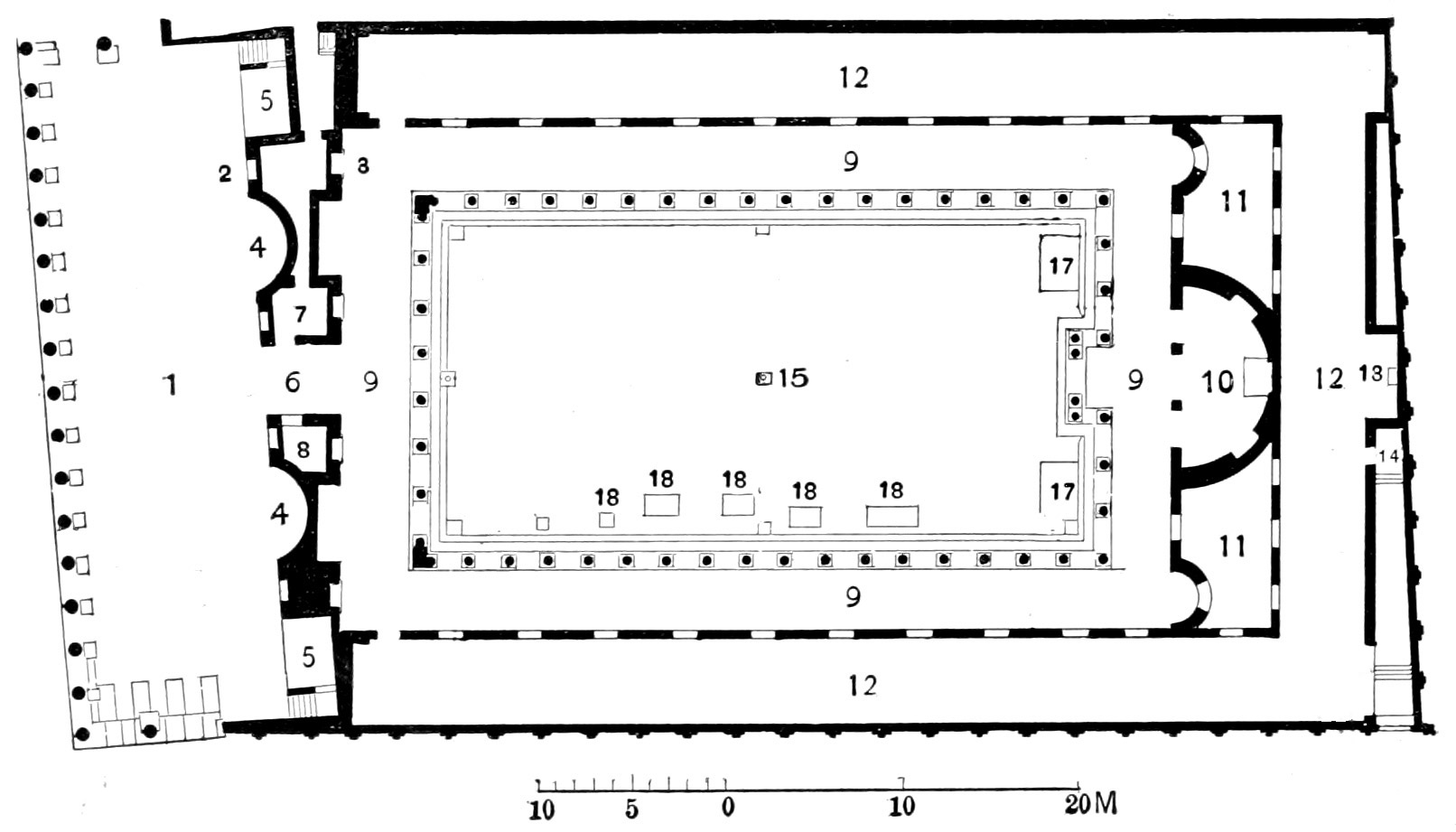
| XIII. | The Sanctuary of the City Lares | 102 | |
| XIV. | The Temple of Vespasian | 106 | |
| XV. | The Building of Eumachia | 110 | |
| XVI. | The Comitium | 119 | |
| XVII. | The Municipal Buildings | 121 x | |
| XVIII. | The Temple of Venus Pompeiana | 124 | |
| XIX. | The Temple of Fortuna Augusta | 130 | |
| XX. | General View of the Public Buildings near the Stabian Gate.—The Forum Triangulare and the Doric Temple | 133 | |
| XXI. | The Large Theatre | 141 | |
| XXII. | The Small Theatre | 153 | |
| XXIII. | The Theatre Colonnade used as Barracks for Gladiators | 157 | |
| XXIV. | The Palaestra | 165 | |
| XXV. | The Temple of Isis | 168 | |
| XXVI. | The Temple of Zeus Milichius | 183 | |
| XXVII. | The Baths at Pompeii.—The Stabian Baths | 186 | |
| XXVIII. | The Baths near the Forum | 202 | |
| XXIX. | The Central Baths | 208 | |
| XXX. | The Amphitheatre | 212 | |
| XXXI. | Streets, Water System, and Wayside Shrines | 227 | |
| XXXII. | The Defences of the City | 237 | |
| PART II | |||
| THE HOUSES | |||
| XXXIII. | The Pompeian House | 245 | |
| I. | Vestibule, Fauces, and Front Door | 248 | |
| II. | The Atrium | 250 | |
| III. | The Tablinum | 255 | |
| IV. | The Alae | 258 | |
| V. | The Rooms about the Atrium. The Andron | 259 | |
| VI. | Garden, Peristyle, and Rooms about the Peristyle | 260 | |
| VII. | Sleeping Rooms | 261 | |
| VIII. | Dining Rooms | 262 | |
| IX. | The Kitchen, the Bath, and the Storerooms | 266 xi | |
| X. | The Shrine of the Household Gods | 268 | |
| XI. | Second Story Rooms | 273 | |
| XII. | The Shops | 276 | |
| XIII. | Walls, Floors, and Windows | 278 | |
| XXXIV. | The House of the Surgeon | 280 | |
| XXXV. | The House of Sallust | 283 | |
| XXXVI. | The House of the Faun | 288 | |
| XXXVII. | A House near the Porta Marina | 298 | |
| XXXVIII. | The House of the Silver Wedding | 301 | |
| XXXIX. | The House of Epidius Rufus | 309 | |
| XL. | The House of the Tragic Poet | 313 | |
| XLI. | The House of the Vettii | 321 | |
| XLII. | Three Houses of Unusual Plan | 341 | |
| I. | The House of Acceptus and Euhodia | 341 | |
| II. | A House without a Compluvium | 343 | |
| III. | The House of the Emperor Joseph II | 344 | |
| XLIII. | Other Noteworthy Houses | 348 | |
| XLIV. | Roman Villas.—The Villa of Diomedes | 355 | |
| XLV. | The Villa Rustica at Boscoreale | 361 | |
| XLVI. | Household Furniture | 367 | |
| PART III | |||
| TRADES AND OCCUPATIONS | |||
| XLVII. | The Trades at Pompeii.—The Bakers | 383 | |
| XLVIII. | The Fullers and the Tanners | 393 | |
| XLIX. | Inns and Wineshops | 400 | |
| PART IV | |||
| THE TOMBS | |||
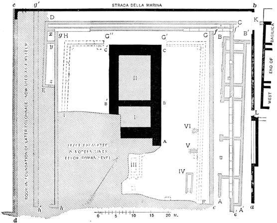
| L. | Pompeian Burial Places.—The Street of Tombs | 405 | |
| LI. | Burial Places near the Nola, Stabian, and Nocera Gates | 429 xii | |
| PART V | |||
| POMPEIAN ART | |||
| LII. | Architecture | 437 | |
| LIII. | Sculpture | 445 | |
| LIV. | Painting.—Wall Decoration | 456 | |
| LV. | The Paintings | 471 | |
| PART VI | |||
| THE INSCRIPTIONS OF POMPEII | |||
| LVI. | Importance of the Inscriptions.—Monumental Inscriptions and Public Notices | 485 | |
| LVII. | The Graffiti | 491 | |
| LVIII. | Inscriptions relating to Business Affairs | 499 | |
| CONCLUSION | |||
| LIX. | The Significance of the Pompeian Culture | 509 | |
| BIBLIOGRAPHICAL APPENDIX | 512 | ||
| INDEX | 551 | ||
| KEY TO THE PLAN OF POMPEII | 559 | ||
| PLATES | |||
| PLATE | |||
| I. | View of the Forum, looking toward Vesuvius. From a photograph | Frontispiece | |
| FACING PAGE | |||
| II. | Court of the Temple of Apollo. From a photograph | 88 | |
| III. | The Greek Temple and the Forum Triangulare, seen from the South. Restoration (Weichardt, Pompeji vor der Zerstörung, Tafel II) | 134 | |
| IV. | The Barracks of the Gladiators. From a photograph | 160 | |
| V. | Stabian Baths: Men's Apodyterium, with the Anteroom leading from the Palaestra. From a photograph | 188 | |
| VI. | Interior of the Amphitheatre, looking Northwest. From a photograph | 216 | |
| VII. | Interior of a House (IX. v. 11), looking from the Middle of the Atrium into the Peristyle. From a photograph | 260 | |
| VIII. | Two Wall Paintings in the House of the Vettii—Apollo after the Slaying of the Dragon, and Agamemnon in the Sanctuary of Artemis. From photographs | 328 | |
| IX. | A Dining Room in the House of the Vettii. From a photograph | 338 | |
| X. | The Street of Tombs, looking toward the Herculaneum Gate. From a photograph | 420 | |
| XI. | Artemis. Copy of an Archaic Work. From a photograph | 444 | |
| XII. | Specimen of Wall Decoration. Second or Architectural Style (Mau, Geschichte der decorativen Wandmalerei in Pompeji, Tafel V) | 462 | |
| XIII. | Specimen of Wall Decoration, in the Court of the Stabian Baths. Fourth or Intricate Style. From a drawing in the Naples Museum | 470 | |
| PLANS | |||
| PLAN | |||
| I. | Outline Plan of Pompeii | preceding Chap. V | |
| II. | The Forum, with Adjoining Buildings | preceding Chap. VII xiv | |
| III. | The Forum Triangulare, with Adjacent Buildings | preceding Chap. XX | |
| IV. | The Villa Rustica near Boscoreale | preceding Chap. XLV | |
| V. | The Street of Tombs | preceding Chap. L | |
| VI. | The Excavated Portion of Pompeii | following the Index | |
| ILLUSTRATIONS IN THE TEXT | |||
| FIGURE | PAGE | ||
| 1. | Map of Ancient Campania | 2 | |
| 2. | Vesuvius as seen from Naples. From a photograph | 3 | |
| 3. | View from Pompeii, looking south. From a photograph (A. M.) | 5 | |
| 4. | Venus Pompeiana. Wall painting. House of Castor and Pollux. After Monumenti dell' Instituto, Vol. III, pl. vi. b | 12 | |
| 5. | An amphora from Boscoreale. Collection of Classical Antiquities, University of Michigan. From a drawing | 15 | |
| 6. | The Judgment of Solomon. Wall painting. Naples Museum. From a photograph | 17 | |
| 7. | Cast of a man. Museum at Pompeii. From a photograph | 22 | |
| 8. | An Excavation. Atrium of the house of the Silver Wedding. From a photograph | 28 | |
| 9. | Wall with limestone framework (Ins. VII. iii. 13). From a photograph (F. W. K.) | 37 | |
| 10. | Façade of Sarno limestone, house of the Surgeon. From a photograph | 39 | |
| 11. | Quasi-reticulate facing, with brick corner, at the entrance of the Small Theatre. From a photograph | 42 | |
| 12. | Reticulate facing, with corners of brick-shaped stone (I. iii. 29). From a photograph (F. W. K.) | 43 | |
| 13. | North end of the Forum, with the temple of Jupiter, restored. From an original drawing[1] | 49 | |
| 14. | Remnant of the colonnade of Popidius, at the south end of the Forum. From a photograph (A. M.) | 51 | |
| 15. | Part of the new colonnade, near the southwest corner of the Forum. From a photograph (A. M.) | 53 | |
| 16. | Scene in the Forum—a dealer in utensils, and a shoemaker. Wall painting. Naples Museum. After Pitture di Ercolano, Vol. III, pl. 42 | 55 | |
| 17. | Scene in the Forum—citizens reading a public notice. Wall painting. Naples Museum. After Pitture di Ercolano, Vol. III, pl. 43 | 56 | |
| 18. | Plan of the temple of Jupiter | 63 | |
| 19. | Ruins of the temple of Jupiter. From a photograph | 64 xv | |
| 20. | Section of wall decoration in the cella of the temple of Jupiter. After Mazois, Les Ruines de Pompéi, Vol. III, pl. 36 (Overbeck-Mau, Pompeji, Fig. 46) | 65 | |
| 21. | Bust of Zeus found at Otricoli. Vatican Museum. After Tafel 130 of the Brunn-Bruckmann Denkmaeler | 68 | |
| 22. | Bust of Jupiter found at Pompeii. Naples Museum. From a photograph | 69 | |
| 23. | Plan of the Basilica | 71 | |
| 24. | View of the Basilica, looking toward the tribunal. From a photograph | 73 | |
| 25. | Exterior of the Basilica, restored. From an original drawing | 75 | |
| 26. | Interior of the Basilica, looking toward the tribunal, restored. From an original drawing | 76 | |
| 27. | Front of the tribunal of the Basilica. Plan and elevation. From an original drawing | 77 | |
| 28. | Corner of mosaic floor, cella of the temple of Apollo. After Mazois, Vol. IV, pl. 23 (Overbeck-Mau, Fig. 50) | 80 | |
| 29. | Plan of the temple of Apollo | 81 | |
| 30. | View of the temple of Apollo, looking toward Vesuvius. From a photograph | 83 | |
| 31. | Section of the entablature of the temple of Apollo, showing the original form and the restoration after the earthquake of 63. After Mazois, Vol. IV, pl. 21 (Overbeck-Mau, Fig. 264) | 84 | |
| 32. | Temple of Apollo, restored. From an original drawing | 86 | |
| 33. | Plan of the buildings at the northwest corner of the Forum | 91 | |
| 34. | Table of Standard Measures. After Mazois, Vol. III, pl. 40 (Overbeck-Mau, Fig. 23) | 93 | |
| 35. | Plan of the Macellum | 94 | |
| 36. | View of the Macellum. From a photograph | 95 | |
| 37. | The Macellum, restored. From an original drawing | 97 | |
| 38. | Statue of Octavia, sister of Augustus, found in the chapel of the Macellum. Naples Museum. From a photograph | 98 | |
| 39. | Statue of Marcellus, son of Octavia, found in the chapel of the Macellum. Naples Museum. From a photograph | 101 | |
| 40. | Plan of the sanctuary of the City Lares | 102 | |
| 41. | Sanctuary of the City Lares, looking toward the rear, restored. From an original drawing.* (Cf. Röm. Mitth., 1896, p. 288) | 103 | |
| 42. | North side of the sanctuary of the City Lares, restored. From an original drawing.* (Cf. Röm. Mitth., 1896, p. 289) | 104 | |
| 43. | Plan of the temple of Vespasian | 106 | |
| 44. | Front of the altar in the court of the temple of Vespasian. From a photograph | 107 | |
| 45. | View of the temple of Vespasian. From a photograph | 108 | |
| 46. | The temple of Vespasian, restored. From an original drawing.* (Cf. Röm. Mitth., 1900, p. 133) | 109 xvi | |
| 47. | Plan of the building of Eumachia | 110 | |
| 48. | Building of Eumachia—front of the court, restored. From an original drawing | 114 | |
| 49. | Building of Eumachia—rear of the court, restored. From an original drawing | 116 | |
| 50. | Fountain of Concordia Augusta. From a photograph (F. W. K.) | 117 | |
| 51. | Plan of the Comitium | 119 | |
| 52. | Plan of the Municipal Buildings | 121 | |
| 53. | View of the south end of the Forum. From a photograph (A. M.) | 122 | |
| 54. | Plan of the ruins of the temple of Venus Pompeiana* | 125 | |
| 55. | View of the ruins of the temple of Venus Pompeiana. From a photograph | 126 | |
| 56. | Plan of the temple of Venus Pompeiana, restored* | 128 | |
| 57. | Plan of the temple of Fortuna Augusta* | 130 | |
| 58. | Temple of Fortuna Augusta, restored. From an original drawing | 131 | |
| 59. | Temple of Fortuna Augusta—rear of the cella with the statue of the goddess, restored. From an original drawing.* (Cf. Röm. Mitth., 1896, p. 280) | 132 | |
| 60. | Portico at the entrance of the Forum Triangulare. From a photograph | 135 | |
| 61. | View of the Forum Triangulare, looking toward Vesuvius. From a photograph | 136 | |
| 62. | Plan of the Doric temple in the Forum Triangulare | 137 | |
| 63. | The Doric temple, restored. From an original drawing | 138 | |
| 64. | Plan of the Large Theatre | 143 | |
| 65. | View of the Large Theatre. From a photograph | 145 | |
| 66. | Plan of the Small Theatre | 153 | |
| 67. | View of the Small Theatre. From a photograph | 154 | |
| 68. | Section of a seat in the Small Theatre. After Mazois, Vol. IV, pl. 29 (Overbeck-Mau, Fig. 101) | 155 | |
| 69. | A terminal Atlas from the Small Theatre. After Mazois, Vol. IV, pl. 29 (Overbeck-Mau, Fig. 100) | 156 | |
| 70. | Ornament at the ends of the parapet in the Small Theatre—lion's foot. After Mazois, Vol. IV, pl. 29 (Overbeck-Mau, Fig. 99) | 156 | |
| 71. | Plan of the Theatre Colonnade, showing its relation to the two theatres | 157 | |
| 72. | A gladiator's greave. Naples Museum. From a photograph | 162 | |
| 73. | A gladiator's helmet. Naples Museum. From a photograph | 163 | |
| 74. | Remains of stocks found in the guard-room of the barracks. Naples Museum. From a photograph | 163 | |
| 75. | Plan of the Palaestra | 165 | |
| 76. | View of the Palaestra, with the pedestal, table, and steps. From a photograph | 166 xvii | |
| 77. | Doryphorus. Statue found in the Palaestra. Naples Museum. From a photograph | 167 | |
| 78. | Plan of the temple of Isis | 170 | |
| 79. | View of the temple of Isis. From a photograph | 172 | |
| 80. | The temple of Isis, restored. From an original drawing | 173 | |
| 81. | Scene from the worship of Isis—the adoration of the holy water. Wall painting from Herculaneum. Naples Museum. Drawing, after a photograph | 177 | |
| 82. | Temple of Isis. Part of the façade of the Purgatorium. After Mazois, Vol. IV, pl. 11, and Piranesi, Antiquités de Pompéi Vol. II, pl. 65 | 179 | |
| 83. | Decoration of the east side of the Purgatorium—Perseus and Andromeda, floating Cupids. Stucco reliefs. After Mazois, Vol. IV, pl. 10 | 180 | |
| 84. | Plan of the temple of Zeus Milichius | 183 | |
| 85. | Capital of a pilaster of the temple, with the face of Zeus Milichius. After Mazois, Vol. IV, pl. 6 (Overbeck-Mau, Fig. 62) | 184 | |
| 86. | Plan of the Stabian Baths | 190 | |
| 87. | Stabian Baths—interior of Frigidarium. Drawing, with indebtedness to Niccolini, Le Case ed i Monumenti di Pompei, Vol. I, Terme presso la porta stabiana, pl. 7 | 191 | |
| 88. | Bath basin in the women's caldarium—longitudinal and transverse sections, showing arrangements for heating. Drawing, with indebtedness to von Duhn und Jacobi, Der griechische Tempel in Pompeji, pl. IX | 194 | |
| 89. | Colonnade of the Stabian Baths—capital with section of entablature. Drawing | 198 | |
| 90. | Southwest corner of the palaestra of the Stabian Baths, showing part of the colonnade and wall decorated with stucco reliefs. From a photograph | 199 | |
| 91. | Plan of the Baths near the Forum | 202 | |
| 92. | Baths near the Forum—Interior of men's tepidarium. From a photograph | 204 | |
| 93. | Baths near the Forum—Longitudinal section of the men's caldarium. Drawing, after Gell, Pompeiana, edit. of 1837, Vol. II, pl. 33, facing p. 91 | 205 | |
| 94. | Plan of the Central Baths | 209 | |
| 95. | View of the Central Baths, looking from the Palaestra into the tepidarium. From a photograph (F. W. K.) | 210 | |
| 96. | The Amphitheatre, seen from the west side. From a photograph | 213 | |
| 97. | Preparations for the combat. Wall painting (no longer visible) in the Amphitheatre. After Mazois, Vol. IV, pl. 48 (Overbeck-Mau, Fig. 107) | 214 | |
| 98. | Plan of the Amphitheatre | 215 xviii | |
| 99. | Transverse section of the Amphitheatre. After Mazois, Vol. IV, pl. 46 (Overbeck-Mau, Fig. 104) | 217 | |
| 100. | Plan of the gallery of the Amphitheatre | 218 | |
| 101. | Conflict between the Pompeians and the Nucerians. Wall painting. Naples Museum. After Overbeck-Mau, Fig. 3 | 221 | |
| 102. | View of Abbondanza Street, looking east. From a photograph | 227 | |
| 103. | Fountain, water tower, and street shrine, corner of Stabian and Nola streets. From a photograph (F. W. K.) | 231 | |
| 104. | Plan of the reservoir west of the Baths near the Forum | 232 | |
| 105. | Ancient altar in new wall—southeast corner of the Central Baths. From a photograph (F. W. K.) | 234 | |
| 106. | Plan of a chapel of the Lares Compitales (VIII. iv. 24) | 235 | |
| 107. | Large street altar (VIII. ii. 25). From a photograph (F. W. K.) | 236 | |
| 108. | Plan of a section of the city wall, with a tower and with stairs leading to the top. After Mazois, Vol. I. pl. 12 (Overbeck-Mau, Fig. 7) | 238 | |
| 109. | View of the city wall, inside. From a photograph | 239 | |
| 110. | Tower of the city wall, restored. After Mazois, Vol. I, pl. 13 (Overbeck-Mau, Fig. 8) | 241 | |
| 111. | Plan of the Stabian Gate | 242 | |
| 112. | Plan of the Herculaneum Gate | 243 | |
| 113. | View of the Herculaneum Gate, looking down the Street of Tombs. From a photograph | 244 | |
| 114. | Early Pompeian house, restored. From an original drawing | 246 | |
| 115. | Plan of a Pompeian house | 247 | |
| 116. | Plan and section of the vestibule, threshold, and fauces of the house of Pansa. After Ivanoff, Mon. dell' Inst., Vol. VI, pl. 28, 3 (Overbeck-Mau, Fig. 136) | 249 | |
| 117. | A Tuscan atrium—plan of the roof. After Mazois, Vol. II, pl. 3 (Overbeck Mau, Fig. 139) | 251 | |
| 118. | A Tuscan atrium—section. After Mazois, Vol. II, pl. 3 (Overbeck-Mau, Fig. 140) | 252 | |
| 119. | Corner of a compluvium with waterspouts and antefixes, reconstructed. (Reconstruction, Ins. VII. iv. 16.) After Overbeck-Mau, Fig. 143 | 253 | |
| 120. | A Pompeian's strong box, arca. Naples Museum. From photograph | 255 | |
| 121. | Atrium of the house of Cornelius Rufus, looking through the tablinum and andron into the peristyle. From a photograph | 256 | |
| 122. | End of a bedroom in the house of the Centaur, decorated in the first style. From an original drawing | 262 | |
| 123. | Plan of a dining room with three couches | 263 | |
| 124. | Plan of a dining room with an anteroom containing an altar for libations (VIII. v.-vi. 16) | 264 xix | |
| 125. | Hearth of the kitchen in the house of the Vettii. From a drawing | 267 | |
| 126. | Niche for the images of the household gods, in a corner of the kitchen in the house of Apollo. From a photograph (F. W. K.) | 269 | |
| 127. | Shrine in the house of the Vettii. From a photograph | 271 | |
| 128. | Interior of a house (VII. xv. 8) with a second story dining room opening on the atrium, restored. From an original drawing | 274 | |
| 129. | Longitudinal section of the house with a second story dining room (VII. xv. 8) restored. From an original drawing | 275 | |
| 130. | Plan of a Pompeian shop. After Mazois, Vol. II, pl. 8 (Overbeck-Mau, Fig. 182) | 276 | |
| 131. | A shop for the sale of edibles, restored. After Mazois, Vol. II, pl. 8 (Overbeck-Mau, Fig. 183) | 277 | |
| 132. | Plan of the house of the Surgeon | 280 | |
| 133. | A young woman painting a herm. Wall painting from the house of the Surgeon. Naples Museum. After Pitture di Ercolano, Vol. V, pl. 1 | 282 | |
| 134. | Plan of the house of Sallust. After Mazois, Vol. II, pl. 35 (Overbeck-Mau, Fig. 165) | 284 | |
| 135. | Atrium of the house of Sallust, looking through the tablinum and colonnade at the rear into the garden, restored. From an original drawing | 286 | |
| 136. | Longitudinal section of the house of Sallust, restored. From an original drawing | 287 | |
| 137. | Plan of the house of the Faun | 288 | |
| 138. | Part of the cornice over the large front door of the house of the Faun. From an original drawing | 289 | |
| 139. | Façade of the house of the Faun, restored. From an original drawing | 290 | |
| 140. | Border of mosaic with tragic masks, fruits, flowers, and garlands, at the inner end of the fauces, house of the Faun. Naples Museum. After Museo Borb., Vol. IV, pl. 14 (Overbeck-Mau, Fig. 315) | 290 | |
| 141. | Longitudinal section of the house of the Faun, showing the large atrium, the first peristyle, and a corner of the second peristyle, restored. From an original drawing | 292 | |
| 142. | Detail from the mosaic representing the battle between Alexander and Darius. From a photograph | 294 | |
| 143. | Transverse section of the house of the Faun, showing the two atriums with adjoining rooms, restored. From an original drawing | 296 | |
| 144. | Plan of a house near the Porta Marina (VI. Ins. Occid. 13) | 298 | |
| 145. | Longitudinal section of the house near the Porta Marina, restored. From an original drawing | 299 xx | |
| 146. | Plan of the house of the Silver Wedding | 302 | |
| 147. | Longitudinal section of the house of the Silver Wedding, restored. From an original drawing | 304 | |
| 148. | Transverse section of the house of the Silver Wedding, as it was before 63. From an original drawing | 307 | |
| 149. | Plan of the house of Epidius Rufus | 310 | |
| 150. | Façade of the house of Epidius Rufus, restored. From an original drawing | 311 | |
| 151. | Transverse section of the house of Epidius Rufus. From an original drawing | 312 | |
| 152. | Plan of the house of the Tragic Poet | 313 | |
| 153. | View of the house of the Tragic Poet, looking from the middle of the atrium toward the rear. From a photograph | 314 | |
| 154. | Longitudinal section of the house of the Tragic Poet, restored. From an original drawing | 316 | |
| 155. | The delivery of Briseis to the messenger of Agamemnon. Wall painting from the house of the Tragic Poet. Naples Museum. After Museo Borb., Vol. II, pl. 58 (Overbeck-Mau, Fig. 311) | 317 | |
| 156. | The sacrifice of Iphigenia. Wall painting from the house of the Tragic Poet. Naples Museum. From a photograph | 319 | |
| 157. | Exterior of the house of the Vettii, restored. From an original drawing.* (Cf. Röm. Mitth., 1896, p. 4) | 321 | |
| 158. | Plan of the house of the Vettii* | 322 | |
| 159. | Longitudinal section of the house of the Vettii, restored. From an original drawing.* (Cf. Röm. Mitth., 1896, pl. 1) | 324 | |
| 160. | Transverse section of the house of Vettii, restored. From an original drawing.* (Cf. Röm. Mitth., 1896, pl. 2) | 324 | |
| 161. | Base, capital, and section of entablature from the colonnade of the peristyle in the house of the Vettii. From a drawing.* (Cf. Röm. Mitth., 1896, p. 31) | 326 | |
| 162. | View of the peristyle of the house of the Vettii, looking toward the south end. From a photograph | 327 | |
| 163. | System of wall division in the large room opening on the peristyle of the house of the Vettii | 329 | |
| 164. | Psyches gathering flowers. Wall painting in the house of the Vettii. From a photograph | 330 | |
| 165. | Cupids as makers and sellers of oil. Wall painting in the house of the Vettii. From a photograph | 332 | |
| 166. | Press for olives. From a wall painting found at Herculaneum. Naples Museum. Drawing after Pitture di Ercolano, Vol. I, pl. 35 | 333 | |
| 167. | Cupids as goldsmiths. Wall painting in the house of the Vettii. From a photograph | 334 xxi | |
| 168. | Cupids gathering and pressing grapes. Wall painting in the house of the Vettii. From a drawing.* (Cf. Röm. Mitth., 1896, p. 81) | 336 | |
| 169. | Cupids as wine dealers. Wall painting in the house of the Vettii. From a photograph | 337 | |
| 170. | Cupids celebrating the festival of Vesta. Wall painting in the house of the Vettii. From a drawing.* (Cf. Röm. Mitth., 1896, p. 80) | 338 | |
| 171. | The punishment of Ixion. Wall painting in the house of the Vettii. From a photograph | 340 | |
| 172. | Plan of the house of Acceptus and Euhodia (VIII. v.-vi. 39) | 341 | |
| 173. | Longitudinal section of the house of Acceptus and Euhodia, restored. From an original drawing | 342 | |
| 174. | Plan of a house without a compluvium* (V. v. 2) | 343 | |
| 175. | Transverse section of the house without a compluvium, restored. From an original drawing.* (Cf. Röm. Mitth., 1895, p. 148) | 344 | |
| 176. | Plan of the house of the Emperor Joseph II (VIII. ii. 39) | 345 | |
| 177. | Bake room of the house of the Emperor Joseph II, at the time of excavation. After Mazois, Vol. II, pl. 34 (Overbeck-Mau, Fig. 4) | 346 | |
| 178. | Capital of a pilaster at the entrance of the house of the Sculptured Capitals (VII. iv. 57). From a photograph | 349 | |
| 179. | Plan of the house of Pansa (VI. vi. 1) | 350 | |
| 180. | Section showing a part of the peristyle of the house of the Anchor (VI. x. 7), restored. From an original drawing | 351 | |
| 181. | Plan of the house of the Citharist (I. iv. 5) | 352 | |
| 182. | Orestes and Pylades before Thoas. Wall painting from the house of the Citharist. Naples Museum. From a photograph | 353 | |
| 183. | Plan of the villa of Diomedes | 356 | |
| 184. | Longitudinal section of the villa of Diomedes, restored. From an original drawing, in part based on Ivanoff, Architektonische Studien, Vol. II, pl. 5, 6 | 358 | |
| 185. | Hot-water tank and reservoir for supplying the bath in the Villa Rustica at Boscoreale. Museo de Prisco, Pompeii. From a drawing.* (Cf. Röm. Mitth., 1894, p. 353) | 362 | |
| 186. | Olive crusher found in the Villa Rustica at Boscoreale. Museo de Prisco. From a photograph | 365 | |
| 187. | Silver patera, with a representation of the city of Alexandria. Boscoreale treasure, Louvre. After H. de Villefosse. Le trésor de Boscoreale, pl. 1 | 366 | |
| 188. | Dining couch with bronze mountings, the wooden frame being restored. Naples Museum. After Overbeck-Mau, Fig. 228 | 367 | |
| 189. | Round marble table. Naples Museum. After Museo Borb., Vol. IV, pl. 56 (Overbeck-Mau, Fig. 229) | 368 xxii | |
| 190. | Carved table leg, found in the second peristyle of the house of the Faun. Naples Museum. After Museo Borb., Vol. IX, pl. 43 (Overbeck-Mau, Fig. 229) | 368 | |
| 191. | Bronze stand with an ornamental rim around the top. Naples Museum. From a photograph | 369 | |
| 192. | Lamps of the simplest form, with one nozzle. Naples Museum. After Overbeck-Mau, Fig. 231 | 370 | |
| 193. | Lamps with two nozzles. Naples Museum. After Overbeck-Mau, Fig. 231 | 370 | |
| 194. | Lamps with more than two nozzles. Naples Museum. After Overbeck-Mau, Fig. 231 | 370 | |
| 195. | Bronze lamps with ornamental covers attached to a chain. Naples Museum. After Overbeck-Mau, Fig. 231 | 371 | |
| 196. | Bronze lamps with covers ornamented with figures. Naples Museum. After Overbeck-Mau, Fig. 231 | 371 | |
| 197. | Three hanging lamps. Naples Museum. After Overbeck-Mau, Fig. 231 | 372 | |
| 198. | A nursing-bottle, biberon. Naples Museum. After Overbeck-Mau, Fig. 231 | 372 | |
| 199. | Lamp standard of bronze. Naples Museum. After Museo Borb., Vol. IV, pl. 57 (Overbeck-Mau, Fig. 234) | 373 | |
| 200. | Lamp holder for a hand lamp. Naples Museum. After Overbeck-Mau, Fig. 233 | 374 | |
| 201. | Lamp holder for hanging lamps. Naples Museum. After Museo Borb., Vol. II, pl. 13 (Overbeck-Mau, Fig. 233) | 374 | |
| 202. | Lamp holder in the form of a tree trunk. Naples Museum. After Overbeck-Mau, Fig. 233 | 374 | |
| 203. | Lamp stand. Naples Museum. From a photograph | 374 | |
| 204. | Bronze utensils. Naples Museum. After Overbeck-Mau, Fig. 241, and Museo Borb. | 375 | |
| 205. | Mixing bowl, of bronze, in part inlaid with silver. Naples Museum. After Museo Borb., Vol. II, pl. 32 (Overbeck-Mau, Fig. 248) | 376 | |
| 206. | Water heater for the table, view and section. Naples Museum. After Museo Borb., Vol. III, pl. 63 (Overbeck-Mau, Fig. 240) | 376 | |
| 207. | Water heater in the form of a brazier. Naples Museum. After Museo Borb., Vol. II, pl. 46 (Overbeck-Mau, Fig. 238) | 377 | |
| 208. | Water heater in the form of a brazier, representing a diminutive fortress. Naples Museum. After Museo Borb., Vol. II, pl. 46 (Overbeck-Mau, Fig. 238) | 377 | |
| 209. | Appliances for the bath. After Museo Borb., Vol. VII, pl. 16 (Overbeck Mau, Fig. 251) | 377 | |
| 210. | Combs. After Museo Borb., Vol. IX, pl. 15 (Overbeck-Mau, Fig. 252) | 377 xxiii | |
| 211. | Hairpins, with two small ivory toilet boxes. After Museo Borb., Vol. IX, pls. 14, 15 (Overbeck-Mau, Fig. 252) | 378 | |
| 212. | Glass box for cosmetics. After Museo Borb., Vol. IX, pl. 15 (Overbeck-Mau, Fig. 252) | 378 | |
| 213. | Hand mirrors. After Museo Borb., Vol. IX, pl. 14 (Overbeck-Mau, Fig. 252) | 378 | |
| 214. | Group of toilet articles. After Museo Borb., Vol. IX, pl. 15 (Overbeck-Mau, Fig. 252) | 378 | |
| 215. | Gold arm band. After Museo Borb., Vol. VII, pl. 46 (Overbeck-Mau, Fig. 318) | 379 | |
| 216 a-d. | Silver cups. Naples Museum. After Museo Borb., Vol. XI, pl. 45; Vol. XIII, pl. 49; Overbeck-Mau, pl. facing p. 624 | 379 | |
| 216 e. | Detail of cup with centaurs | 380 | |
| 217. | Silver cup. Boscoreale treasure, Louvre. After H. de Villefosse, Le trésor de Boscoreale, pl. 8 | 382 | |
| 218. | Ruins of a bakery, with millstones (VII. ii. 22). From a photograph | 386 | |
| 219. | Plan of a bakery (VI. iii. 3) | 388 | |
| 220. | A Pompeian mill, without the framework | 389 | |
| 221. | Section of a mill, restored. From an original drawing | 389 | |
| 222. | A mill in operation. Relief in the Vatican Museum. After Ber. der Sächs. Gesellschaft, 1861, pl. xii. 2 | 390 | |
| 223. | Section of a bake oven (VI. iii. 3). After Mazois, Vol. II, pl. 18 (Overbeck-Mau, Fig. 192) | 391 | |
| 224. | Kneading machine, restored (VI. xiv. 35). From an original drawing | 391 | |
| 225. | Scene in a fullery—treading vats. Wall painting. Naples Museum. After Museo Borb., Vol. IV, pl. 49 (Overbeck-Mau, Fig. 195) | 394 | |
| 226. | Scene in a fullery—inspection of cloth, carding, bleaching frame. Wall painting. Naples Museum. After Museo Borb., Vol. IV, pl. 49 (Overbeck-Mau, Fig. 194) | 394 | |
| 227. | A fuller's press. Wall painting. Naples Museum. After Museo Borb., Vol. IV, pl. 50 (Overbeck-Mau, Fig. 196) | 395 | |
| 228. | Plan of a fullery (VI. xiv. 22) | 396 | |
| 229. | Plan of the vat room of the tannery (I. v. 2) | 398 | |
| 230. | Mosaic top of the table in the garden of the tannery. Naples Museum. From a photograph | 399 | |
| 231. | Plan of an inn (VII. xii. 35) | 401 | |
| 232. | Plan of the inn of Hermes (I. i. 8) | 402 | |
| 233. | Plan of a wineshop (VI. x. 1) | 402 | |
| 234. | Scene in a wineshop. Wall painting (VI. x. 1). After Museo Borb., Vol. IV, pl. A | 403 | |
| 235. | Delivery of wine. Wall painting (VI. x. 1). After Museo Borb., Vol. IV, pl. A | 403 xxiv | |
| 236. | Sepulchral benches of Veius and Mamia; tombs of Porcius and the Istacidii. From a photograph (A. M.) | 409 | |
| 237. | The tomb of the Istacidii, restored. From an original drawing | 411 | |
| 238. | View of the Street of Tombs. From a photograph | 414 | |
| 239. | Glass vase, with vintage scene, found in the tomb of the Blue Glass Vase. Naples Museum. From a photograph | 416 | |
| 240. | Bust stone of Tyche, slave of Julia Augusta. After Mazois, Vol. I, p. 31 (Overbeck-Mau, Fig. 223), with the correction in the spelling of the name TYCHE | 418 | |
| 241. | Relief, symbolic of grief for the dead. After Mazois, Vol. I, pl. 29 (Overbeck-Mau, Fig. 221) | 421 | |
| 242. | Front of the tomb of Calventius Quietus, with bisellium. From a photograph | 422 | |
| 243. | End of the tomb of Naevoleia Tyche, with relief representing a ship entering port. From a photograph | 423 | |
| 244. | Cinerary urn in a lead case. After Mazois, Vol. I. pl. 22 (Overbeck-Mau, Fig. 213) | 424 | |
| 245. | Sepulchral enclosure, with triclinium funebre. After Mazois, Vol. I, pl. 20 (Overbeck-Mau, Fig. 210) | 425 | |
| 246. | Plan of the tombs east of the Amphitheatre* | 431 | |
| 247. | View of two tombs east of the Amphitheatre. From a photograph (F. W. K.) | 432 | |
| 248. | View of other tombs east of the Amphitheatre. From a photograph (F. W. K.) | 434 | |
| 249. | Four-faced Ionic capital. Portico of the Forum Triangulare. After Overbeck-Mau, Fig. 272 | 439 | |
| 250. | Capital of pilaster. Casa del duca d'Aumale. After Overbeck-Mau, Fig. 274 | 439 | |
| 251. | Altar in the court of the temple of Zeus Milichius. After Mazois, Vol. IV, pl. 6 (Overbeck-Mau, Fig. 63) | 440 | |
| 252. | Capitals of columns, showing variations from typical forms. After Overbeck-Mau, Fig. 274 | 442 | |
| 253. | Capital of pilaster, modified Corinthian type. After Overbeck-Mau, Fig. 274 | 443 | |
| 254. | Capitals of pilasters, showing free adaptation of the Corinthian type. After Overbeck-Mau, Fig. 274 | 443 | |
| 255. | Statue of the priestess Eumachia. Naples Museum. From a photograph | 446 | |
| 256. | Portrait herm of Caecilius Jucundus. Naples Museum. From a photograph | 447 | |
| 257. | Double bust, Bacchus and a bacchante. Garden of the house of the Vettii. From a photograph | 448 | |
| 258. | Dancing Satyr. Bronze statuette found in the house of the Faun. Naples Museum. From a photograph | 451 xxv | |
| 259. | Listening Dionysus, wrongly identified as Narcissus. Bronze statuette in the Naples Museum. From a photograph | 452 | |
| 260. | Bronze youth, found in November, 1900. Naples Museum. From a photograph | 454 | |
| 261. | Wall decoration in the atrium of the house of Sallust. First or Incrustation Style. After Tafel II of Mau's Geschichte der decorativen Wandmalerei in Pompeji | 460 | |
| 262. | Distribution of colors in the section of wall represented in Fig. 261 | 461 | |
| 263. | Specimen of wall decoration in the house of Spurius Mesor (VII. iii. 29). Third or Ornate style. After Tafel XII of Mau's Wandmalerei | 466 | |
| 264. | Detail of wall decoration. Fourth style. Naples Museum. After Pitture di Ercolano, Vol. IV. pl. 57 | 468 | |
| 265. | Specimen of wall decoration. Fourth style. From a copy in the Naples Museum (showing decoration that has disappeared) | 469 | |
| 266. | A fruit piece, Xenion. Wall painting. Naples Museum. After Pitture di Ercolano, Vol. II, pl. 58 | 474 | |
| 267. | A landscape. Wall painting. Naples Museum. After Pitture di Ercolano, Vol. V, p. 149 | 475 | |
| 268. | A group of women, one of whom is sounding two-stringed instruments. Wall painting. Naples Museum. From a photograph | 476 | |
| 269. | Paquius Proculus and his wife. Wall painting. Naples Museum. From a photograph | 477 | |
| 270. | The grief of Hecuba. Fragment of a wall painting. House of Caecilius Jucundus. After Ann. dell' Inst., 1877, Tafel P | 479 | |
| 271. | Athena's pipes and the fate of Marsyas. Wall painting (V. ii. 10). Naples Museum. From a drawing.* (Cf. Röm. Mitth., 1890, p. 267) | 482 | |
| 272. | The fall of Icarus. Wall painting (V. ii. 10). From a drawing.* (Cf. Röm. Mitth., 1890, p. 264) | 483 | |
| 273. | Zeus and Hera on Mt. Ida. Wall painting from the house of the Tragic Poet. Naples Museum. From a photograph | 484 | |
| 274. | Tablet with three leaves, opened so as to show the receipt and part of the memorandum, restored. After Overbeck-Mau, pl. facing p. 489 | 500 | |
| 275. | Tablet restored, with the two leaves containing the receipt tied and sealed. After Overbeck-Mau, pl. facing p. 489 | 501 | |
From Gaeta, where the south end of the Volscian range borders abruptly upon the sea, to the peninsula of Sorrento, a broad gulf stretched in remote ages, cutting its way far into the land. Its waves dashed upon the base of the mountains which now, rising with steep slope, mark the eastern boundary of the Campanian Plain—Mt. Tifata above Capua, Mt. Taburno back of Nola, and lying across the southeast corner, the huge mass of Monte Sant' Angelo, whose sharply defined line of elevation is continued in the heights of Sorrento.
This gulf was transformed by volcanic agencies into a fertile plain. Here two fissures in the earth's crust cross each other, each marked by a series of extinct or active volcanoes. One fissure runs in the direction of the Italian Peninsula; along it lie Monti Berici near Vicenza, Mt. Amiata below Chiusi, the lakes of Bolsena and Bracciano filling extinct craters, the Alban Mountains, and finally Stromboli and Aetna. The other runs from east to west; its direction is indicated by Mt. Vulture near Venosa, Mt. Epomeo on the island of Ischia, and the Ponza Islands.
At three places in the old sea basin the subterranean fires burst forth. Near the north shore rose the great volcano of Rocca Monfina, which added itself to the Volscian Mountains, and heaping the products of its eruptions upon Mons Massicus,—once an island,—formed with this the northern boundary of the plain. Toward the middle the numerous small vents of the Phlegraean Fields threw up the low heights, to which the north 2 shore of the Bay of Naples—Posilipo, Baiae, Misenum—is indebted for its incomparable beauty of landscape. Finally, near the south shore, at the intersection of the fissures, the massive cone of Vesuvius rose, in complete isolation—the only volcano on the continent of Europe still remaining active. Its base on the southwest is washed by the sea, while on the other sides a stretch of level country separates it from the mountains that hem in the plain. On the side opposite from the sea, however, Vesuvius comes so near to the mountains that we may well say that it divides the Campanian plain into two parts, of which the larger, on the northwest side, is drained by the Volturno; the small southeast section is the plain of the Sarno.
The Sarno, like the Umbrian Clitumnus, has no upper course. At the foot of Mt. Taburno, bounding the plain on the northeast, 3 are five copious springs that soon unite to form a stream. Since 1843 the river has been drawn off for purposes of irrigation into three channels, which are graded at different levels; the distribution of water thus assured makes this part of Campania one of the most fertile districts in Italy. In antiquity the Sarno must have been confined to a single channel; according to Strabo it was navigable for ships.
In Roman times three cities shared in the possession of the Sarno plain. Furthest inland, facing the pass in the mountains that opens toward the Gulf of Salerno, lay Nuceria, now Nocera. On the seashore, where the coast road to Sorrento branches off toward the southwest, was Stabiae, now Castellammare. North of Stabiae, at the foot of Vesuvius, Pompeii stood, on an elevation overlooking the Sarno, formed by the end of a stream of lava that in some past age had flowed from Vesuvius down toward the sea. Pompeii thus united the advantages of an easily fortified hill town with those of a maritime city. "It lies," says Strabo, "on the Sarnus, which accommodates a traffic in both imports and exports; it is the seaport of Nola, Nuceria, and Acerrae."
A glance at the map will show how conveniently situated Pompeii was to serve as a seaport for Nola and Nuceria; but it seems hardly credible that the inhabitants of Acerrae, which lay much nearer Naples, should have preferred for their 4 marine traffic the circuitous route around Vesuvius to the Sarno. However that may have been, Pompeii was beyond doubt the most important town in the Sarno plain.
Pompeii formerly lay nearer the sea and nearer the river than at present. In the course of the centuries alluvial deposits have pushed the shore line further and further away. It is now about a mile and a quarter from the nearest point of the city to the sea; in antiquity it was less than a third of a mile. The line of the ancient coast can still be traced by means of a clearly marked depression, beyond which the stratification of the volcanic deposits thrown out in 79 does not reach. The Sarno, too, now flows nearly two thirds of a mile from Pompeii; in antiquity, according to all indications, it was not more than half so far away.
In point of climate and outlook, a fairer site for a city could scarcely have been chosen. The Pompeian, living in clear air, could look down upon the fogs which in the wet season frequently rose from the river and spread over the plain. And while in winter Stabiae, lying on the northwest side of Monte Sant' Angelo, enjoyed the sun for only a few hours, the elevation on which Pompeii stood, sloping gently toward the east and south, more sharply toward the west, was bathed in sunlight during the entire day.
Winter at Pompeii is mild and short; spring and autumn are long. The heat of summer, moreover, is not extreme. In the early morning, it is true, the heat is at times oppressive. No breath of air stirs; and we look longingly off upon the expanse of sea where, far away on the horizon, in the direction of Capri, a dark line of rippling waves becomes visible. Nearer it comes, and nearer. About ten o'clock it reaches the shore. The leaves begin to rustle, and in a few moments the sea breeze sweeps over the city, strong, cool, and invigorating. The wind blows till just before sunset. The early hours of the evening are still; the pavements and the walls of the houses give out the heat which they have absorbed during the day. But soon—perhaps by nine o'clock—the tree tops again begin to murmur, and all night long, from the mountains of the interior, a gentle, refreshing stream of air 5 flows down through the gardens, the roomy atriums and colonnades of the houses, the silent streets, and the buildings about the Forum, with an effect indescribably soothing.
How shall I undertake to convey to the reader who has not visited Pompeii, an impression of the beauty of its situation? Words are weak when confronted with the reality. Sea, mountains, and plain,—strong and pleasing background,—great masses and brilliant yet harmonious colors, splendid foreground effects and hazy vistas, undisturbed nature and the handiwork of man, all are blended into a landscape of the grand style, the like of which I should not know where else to look for.
If we turn toward the south, we have at our feet the level plain of the Sarno, in antiquity as now—we may suppose—not checkered with villages but dotted here and there with groups of farm buildings, surrounded with stately trees. Beyond the plain rises the lofty barrier of Monte Sant' Angelo, thickly wooded 6 in places, its summit standing out against the sky in a long, beautiful profile, which, toward the right, breaks up into bold, rugged notches; the side of the mountain below is richly diversified with deep valleys, projecting ridges, and terraces that in the distance seem like steps, where among vineyards and olive orchards stand two villages fair to look on, Gragnano and Lettere, so near that individual houses can be clearly distinguished. Further west the plain before us opens out upon the sea, while the mountains are continued in the precipitous coast of the peninsula of Sorrento. Height crowds upon height, with villages wreathed in olive orchards lying between. Here the hills descend in terraces to the sea, covered with vegetation to the water's edge; there the covering of soil has been cast off from the steep slopes, exposing the naked rock, which shines in the afternoon sun with a reddish hue that wonderfully accords with the dark shades of the foliage and the brilliant blue of the sea. Further on the tints become duller, and the sight is blurred; only with effort can we distinguish Sorrento, resting on cliffs that rise almost perpendicularly from the line of the shore. Further still the outline of the peninsula sinks into the sea and gives place to Capri, island of fantastic shape, whose crags rising sheer from the water stand out sharply in the bright sunlight.
But we look toward the north, and the splendid variety of form and color vanishes; there stands only the vast, sombre mass of the great destroyer, Vesuvius, towering above the city and the plain. The sun as it nears the horizon veils the bare ashen cone with a mantle of deep violet, while the cloud of smoke that rises from the summit shines with a golden glow. Far above the base the sides are covered with vineyards, among which small groups of white houses can here and there be seen. West of us the outline of the mountain descends in a strong, simple curve to the sea. Just before it blends with the shore there rise behind it distant heights wrapped in blue haze, the first of moderate elevation, then others more prominent and further to the left. They are the heights along the north shore of the Bay of Naples—Gaurus crowned with the monastery of Camaldoli, famous for its magnificent view; 7 the cliffs of Baiae, the promontory of Misenum, and the lofty cone of Epomeo on the island of Ischia. So the eye traverses the whole expanse of the Bay; Naples itself, hidden from our view, lies between those distant heights and the base of Vesuvius.
But meanwhile the sun has set behind Misenum; its last rays are lighting up the cloud of smoke above Vesuvius and the summit of Monte Sant' Angelo. The brilliancy of coloring has faded; the weary eye finds rest in the soft afterglow. We also may take leave of these beautiful surroundings, and inquire into the beginnings of the city which was founded here. 8
When Pompeii was founded we do not know. It is more than likely that a site so well adapted for a city was occupied at an early date. The oldest building, the Doric temple in the Forum Triangulare, is of the style of the sixth century B.C.; we are safe in assuming that the city was then already in existence.[2] The founders were Oscans. They belonged to a widely scattered branch of the Italic stock, whose language, closely related with the Latin, has been imperfectly recovered from a considerable number of inscriptions, so imperfectly that in each of the longer inscriptions there still remain words the meaning of which is obscure or doubtful. From this language the name of the city came; for pompe in Oscan meant 'five.' The word does not, however, appear in its simple form; we have only the adjective derived from it, pompaiians, 'Pompeian.' If we are right in assuming that the name appeared in Oscan, as it does in Latin, in the plural form, it was probably applied first to a gens, or clan, and thence to the city; the Latin equivalent of Pompeii would be Quintii. Pompeii was thus the city of the clan of the Pompeys, as Tarquinii was the city of the Tarquins, and Veii the city of the Veian clan. The name Pompeius was common in Pompeii down to the destruction of the city, and in other Campanian towns, notably Puteoli, to much later times.
In order to follow the course of events at Pompeii, it will be necessary to pass briefly in review the main points in the history of Campania. The Campanian Oscans, sprung from a 9 rude and hardy race, became civilized from contact with the Greeks, who at an early period had settled in Cumae, in Dicaearchia, afterward Puteoli, and in Parthenope, later Naples; and the coast climate had an enervating effect upon them. When toward the end of the fifth century B.C. the Samnites, kinsmen of the Oscans, left their rugged mountain homes in the interior and pressed down toward the coast, the Oscans were unable to cope with them. In 424 B.C. the Samnites stormed and took Capua, in 420, Cumae; and Pompeii likewise fell into their hands. But they were no more successful than the Oscans had been in resisting the influence of Greek culture. How strong this influence was may be seen in the remains at Pompeii. The architecture of the period was Greek; Greek divinities were honored, as Apollo and Zeus Milichius; and the standard measures of the mensa ponderaria were inscribed with Greek names.
In less than a hundred years new strifes arose between the more cultured Samnites of the plain and their rough and warlike kinsmen in the mountains. But Rome took a part in the struggle, and in the Samnite Wars (343-290 B.C.) brought both the men of the mountains and the men of the plain under her dominion. Although the sovereignty of Rome took the form of a perpetual alliance, the cities in reality lost their independence. The complete subjugation and Romanizing of Campania, however, did not come till the time of the Social War (90-88 B.C.) and the supremacy of Sulla; the Samnites staked all on the success of the popular party, and lost.
In the narrative of these events Pompeii is not often mentioned. At the time of the Second Samnite War, in the year 310 B.C., we read that a Roman fleet under Publius Cornelius landed at the mouth of the Sarno, and that a pillaging expedition followed the course of the river as far as Nuceria; but the country folk fell on the marauders as they were returning, and forced them to give up their booty. We have no definite information regarding the attitude of the Pompeians after the battle of Cannae (216 B.C.); probably they joined the side of Hannibal, who, however, was defeated by Marcus Marcellus near Nola in the following year, and was obliged to leave Campania to the Romans. 10
In the Social War, when, in the summer of 90 B.C., the Samnite army marched into Campania, Pompeii allied itself with the insurgents; as a consequence, in 89, it was besieged by Sulla, but without success. Two years later, Sulla went to Asia to conduct the war against Mithridates. Returning victorious in the spring of 83 B.C., he led his army into Campania, where he spent the winter of 83-82; his soldiers, grown brutal in the Asiatic war and accustomed to every kind of license, may have proved unwelcome guests for the Pompeians.
The sequel came in the year 80, when a colony of Roman veterans was settled in Pompeii under the leadership of Publius Sulla, a nephew of the Dictator. Cicero later made a speech in behalf of this Sulla, defending him against the charge that he had taken part in the conspiracy of Catiline and had tried to induce the old residents of Pompeii to join in the plot. From this speech we learn that Sulla's reorganization of the city was accomplished with so great regard for the interests of the Pompeians, that they ever after held him in grateful remembrance. We learn, also, that soon after the founding of the colony disputes arose between the old residents and the colonists, about the public walks (ambulationes) and matters connected with the voting; the arrangements for voting had probably been so made as to throw the decision always into the hands of the colonists. The controversy was referred to the patrons of the colony, and settled by them. From this time on, the life of Pompeii seems not to have differed from that of the other small cities of Italy.
As the harbor of Pompeii was on the Sarno, which flowed at some distance from the city, there must have been a small settlement at the landing place. To this probably belonged a group of buildings, partly excavated in 1880-81, lying just across the Sarno canal (canale del Bottaro), about a third of a mile from the Stabian Gate. Here were found many skeletons, and with them a quantity of gold jewellery, which was afterward placed in the Museum at Naples. The most reasonable explanation of the discovery is, that the harbor was here, and that these persons, gathering up their valuables, fled from Pompeii at the time of the eruption either in order to escape by 11 sea or to take refuge in Stabiae. Flight in either case was cut off. If ships were in the harbor, they must soon have been filled with the volcanic deposits; if there was a bridge across the river it was probably thrown down by the earthquake.
A second suburb sprang up near the sea, in connection with the salt works (salinae) of the city. Our knowledge of the inhabitants, the Salinenses, is derived from several inscriptions painted upon walls, in which they recommend candidates for the municipal offices, and from an inscription scratched upon the plaster of a column in which a fuller by the name of Crescens sends them a greeting: Cresce[n]s fullo Saline[n]sibus salute[m]. From another inscription we learn that they had an assembly, conventus, possibly judicial in its functions; for in connection with a date, it speaks of a fine of twenty sesterces, which would amount to about 3½ shillings, or 85 cents: VII K. dec. Salinis in conventu multa HS XX, 'Fine of twenty sesterces; assembly at Salinae, November 25.' Still another inscription speaks of attending such a meeting on November 19: XIII K. dec. in conventu veni.
The suburb most frequently mentioned was at first called Pagus Felix Suburbanus, but after the time of Augustus, Pagus Augustus Felix Suburbanus. Its location is unknown. As it evidently took the name of Felix from the Dictator Sulla, who used this epithet as a surname, we may assume that its origin dates from the establishment of the Roman colony; it may have been founded to provide a place for those inhabitants of Pompeii who had been forced to leave their homes in order to make room for the colonists. The existence of a fourth suburb is inferred from two painted inscriptions in which candidates for office are recommended by the Campanienses; this name would naturally be applied to the inhabitants of a Pagus Campanus, who, perhaps, had originally come from Capua.
Of the government of Pompeii in the earliest times, before the Samnite conquest, nothing is known. The names of various magistrates in the Samnite period, however, particularly the period of alliance with Rome (290-90 B.C.), are learned from inscriptions. Mention is made of a chief administrative officer 12 (mediss, mediss tovtiks); of quaestors, who, probably, like the quaestors in Rome, were charged with the financial administration and let the contracts for public buildings; and of aediles, to whom, no doubt, was intrusted the care of streets and buildings, together with the policing of the markets. The Latin names of the last two officials suggest that their offices were introduced after 290. There was also an assembly called kombenniom, with which we may compare the Latin conventus; but whether it was an assembly of the people or a city council cannot now be determined.
After the establishment of the Roman colony, Pompeii was named Colonia Cornelia Veneria Pompeianorum, from the gentile name of the Dictator Sulla (Lucius Cornelius Sulla Felix) and from the goddess to whom he paid special honor, who now, as Venus Pompeiana, became the tutelary divinity of the city. This goddess is represented in wall paintings. In that from which our illustration is taken (Fig. 4), she appears in a blue mantle studded with golden stars, and wears a crown set with green stones. Her left hand, which holds a sceptre, rests upon a rudder; in her right is a twig of olive. A Cupid stands upon a pedestal beside her, holding up a mirror.
From this time the highest official body, as in Roman colonies everywhere, was the city council, composed of decurions. The administration was placed in the hands of two pairs of officials, the duumvirs with judiciary authority, duumviri iuri dicundo, and two aediles, who were responsible for the care of buildings and streets and the oversight of the markets. When the duumvirs and the aediles joined in official acts they were known as the Board of Four, quattuorviri. Down to the time of the Empire it appears that the aediles were not designated 13 officially by that name, but by a title known to us only in an abbreviated form, duumviri v. a. sacr. p. proc. This probably stands for duumviri viis, aedibus, sacris publicis procurandis, 'duumvirs in charge of the streets, the temples, and the public religious festivals.' The title of aedile seems to have been avoided because it had been in use in the days of autonomy, and the authorities thought it prudent to suppress everything that would suggest the former state of independence. Nevertheless, the word retained its place in ordinary speech, as is shown by its use in the inscriptions painted on walls recommending candidates for office; thence it finally forced its way back into the official language. The duumvirs of every fifth year were called quinquennial duumvirs, duumviri quinquennales, and assumed functions corresponding with those of the censors at Rome; they gave attention to matters of finance, and revised the lists of decurions and of citizens.
All these officials were elected annually by popular vote. The candidates offered themselves beforehand. If none came forward, or there were too few,—for the city officials not only received no salary, but were under obligation to make generous contributions for public purposes, as theatrical representations, games, and buildings,—the magistrate who presided at the election named candidates for the vacancies; but each candidate so named had the right to nominate a second for the same vacancy, the second in turn a third. The voting was by ballot; each voter threw his voting tablet into the urn of his precinct. No information has come down to us regarding the precincts (curiae) into which the city must have been divided for electoral purposes.
The election of a candidate was valid only in case he received the vote of an absolute majority of the precincts. If the result was indecisive for all or a part of the offices, the city council chose an extraordinary official who bore the title of prefect with judiciary authority, praefectus iuri dicundo. This prefect took the place of the duumvirs, not only when an election was indecisive, but also when vacancies arose in some other way, or when peculiar conditions seemed to make it desirable to have an officer of unusual powers, a kind of dictator; or finally, when 14 the emperor had received the vote; in the last two cases, the prefect was undoubtedly appointed by the emperor. Thus, in the years 34 and 40 A.D., the Emperor Caligula was duumvir of Pompeii; but the duties of the office were discharged by a prefect. A law passed in Rome toward the end of the Republic on the motion of a certain Petronius contained provisions regarding the appointment of prefects; one chosen in accordance with them was called praefectus ex lege Petronia, 'prefect according to the law of Petronius.'
There were also in Pompeii priests supported by the city, but only a few of them are mentioned in the inscriptions. References are found to augurs and pontifices, to a priest of Mars, and to priests (flamen, sacerdos) of Augustus while he was still living; Nero had a priest even before he ascended the throne. Mention is made of priestesses, too, a priestess of Ceres and Venus, priestesses of Ceres, and others, the divinities of whom are not named.
The suburbs could scarcely have had a separate administration; they remained within the jurisdiction of the magistrates of the city. In the case of the Pagus Augustus Felix mention is made of a magister, 'director,' ministri, 'attendants,' and pagani, 'pagus officials'; but apparently these were all appointed for religious functions only, in connection with the worship of the emperor. The magister and the pagani, in part at least, were freedmen; the four ministri, first appointed in 7 B.C., were slaves.
Apart from commerce, an important source of income for the Pompeians lay in the fertility of the soil. In antiquity, as now, grapes were cultivated extensively on the ridge projecting from the foot of Vesuvius toward the south. The evidence afforded by the great number of wine jars, amphorae (Fig. 5), that have been brought to light would warrant this conclusion; and lately wine presses also have been discovered near Boscoreale, above Pompeii. Pliny makes mention of the Pompeian wine, but remarks that indulgence in it brings a headache that will last till noon of the following day. The olive too was cultivated, but only to a limited extent; this we infer from the small capacity of the press and other appliances for making oil found in the 15 same villa in which the wine presses were discovered. At the present time the making of oil is not carried on about Pompeii. In the plain below the city vegetables were raised, as at the present day; the cabbage and onions of Pompeii were highly prized.
The working up of the products of the fisheries formed an important industry. The fish sauces which so tickled the palate of ancient epicures, garum, liquamen, and muria, were produced here of the finest quality. The making of them seems to have been practically a monopoly in the hands of a certain Umbricius Scaurus; a great number of earthen jars have been found with the mark of his ownership (p. 506).
The Pompeians turned to account, also, the volcanic products of Vesuvius. Pumice stone was an article of export. From the lava millstones were made for both grain mills and oil mills, which were apparently already in extensive use in the time of Cato the Elder; he twice mentions the oil mills of Pompeii. In Pompeii itself the millstones of the oldest period are of lava from Vesuvius; later it was found that the lava of Rocca Monfina was better adapted for the purpose, and millstones of that material were preferred. Small hand-mills of the lava from Vesuvius were in use at Pompeii down to 79; but the larger millstones of this material found in the bakeries had been put one side. In shape and finish the mills of local make were superior to the more carelessly worked stones from Rocca Monfina; the preference for the latter was due to the fact that they contained numerous crystals of leucite, which broke off as the mill wore away, and so kept the grinding surfaces always rough. Millstones from Rocca Monfina may be seen at different places in Rome, as in the Museum of the Baths of Diocletian. 16
To the sources of revenue which contributed to the prosperity of Pompeii we may add the presence of wealthy Romans, who, attracted by the delightful climate, built country seats in the vicinity. Among them was Cicero, who often speaks of his Pompeian villa (Pompeianum). That the imperial family also had a villa here is inferred from a curious accident. We read that Drusus, the young son of the Emperor Claudius, a few days after his betrothal to the daughter of Sejanus, was choked to death at Pompeii by a pear which he had thrown up into the air and caught in his mouth. These country seats, no doubt, lay on the high ground back of Pompeii, toward Vesuvius; they probably faced the sea. But the identification of a villa excavated in the last century, and then filled up again, as the villa of Cicero, is wholly without foundation.
Salve lucrum, 'Welcome, Gain!' Such is the inscription which a Pompeian placed in the mosaic floor of his house. Lucrum gaudium, 'Gain is pure joy,' we read on the threshold of another house. A thrifty Pompeian certainly did not lack opportunity to acquire wealth.
How large a population Pompeii possessed at the time of the destruction of the city it is impossible to determine. A painstaking examination of all the houses excavated would afford data for an approximate estimate; but the results thus far obtained by those who have given attention to the subject are unsatisfactory. Fiorelli assigned to Pompeii twelve thousand inhabitants, Nissen twenty thousand. Undoubtedly the second estimate is nearer the truth than the first; according to all indication the population may very likely have exceeded twenty thousand.
This population was by no means homogeneous. The original Oscan stock had not yet lost its identity; inscriptions in the Oscan dialect are found scratched on the plaster of walls decorated in the style prevalent after the earthquake of the year 63. From the time when the Roman colony was founded no doubt additions continued to be made to the population from various parts of Italy. The Greek element was particularly strong. This is proved by the number of Greek names in the accounts of Caecilius Jucundus, for example, and by the Greek inscriptions 17 that have been found on walls and on amphorae. The Greeks may have come from the neighboring towns; most of them were probably freedmen. In a seaport we should expect to find also Greeks from trans-marine cities; and, in fact, an Alexandrian appears in one of the receipts of Jucundus. There were Orientals, too, as we shall see when we come to the temple of Isis.
Thus far there has come to hand no trustworthy evidence for the presence of Christians at Pompeii; but traces of Jewish influence are not lacking. The words Sodoma, Gomora, are scratched in large letters on the wall of a house in Region IX (IX. i. 26). They must have been written by a Jew, or possibly a Christian; they seem like a prophecy of the fate of the city.
Another interesting bit of evidence is a wall painting, which appears to have as its subject the Judgment of Solomon (Fig. 6). On a tribunal at the right sits the king with two advisers; the pavilion is well guarded with soldiers. In front of the tribunal a soldier is about to cut a child in two with a cleaver. Two women are represented, one of whom stands at the block and is already taking hold of the half of the child assigned to her, while the other casts herself on her knees as a suppliant before the judges. It is not certain that the reference here is to Solomon; such tales pass from one country to another, and a somewhat similar story is told of the Egyptian king Bocchoris. The balance of probability is in favor of the view that we have here the Jewish version of the story, because this is consistent with other facts that point to the existence of a Jewish colony at Pompeii. 18
The names Maria and Martha appear in wall inscriptions. The assertion that Maria here is not the Hebrew name, but the feminine form of the Roman name Marius, is far astray. It appears in a list of female slaves who were working in a weaver's establishment, Vitalis, Florentina, Amaryllis, Januaria, Heracla, Maria, Lalage, Damalis, Doris. The Marian family was represented at Pompeii, but the Roman name Maria could not have been given to a slave. That we have here a Jewish name seems certain since the discovery of the name Martha.
In inscriptions upon wine jars we find mention of a certain M. Valerius Abinnerichus, a name which is certainly Jewish or Syrian; but whether Abinnerich was a dealer, or the owner of the estate on which the wine was produced, cannot be determined. In this connection it is worth while to note that vessels have been found with the inscribed labels, gar[um] cast[um] or cast[imoniale], and mur[ia] cast[a]. As we learn from Pliny (N. H. XXXI. viii. 95), these fish sauces, prepared for fast days, were used especially by the Jews.
Some have thought that the word Christianos can be read in an inscription written with charcoal, and have fancied that they found a reference to the persecution of the Christians under Nero. But charcoal inscriptions, which will last for centuries when covered with earth, soon become illegible if exposed to the air; such an inscription, traced on a wall at the time of the persecutions under Nero, must have disappeared long before the destruction of the city. The inscription in question was indistinct when discovered, and has since entirely faded; the reading is quite uncertain. If it were proved that the word "Christians" appeared in it, we should be warranted only in the inference that Christians were known at Pompeii, not that they lived and worshipped there. According to Tertullian (Apol. 40) there were no Christians in Campania before 79. 19
Previous to the terrible eruption of 79, Vesuvius was considered an extinct volcano. "Above these places," says Strabo, writing in the time of Augustus, "lies Vesuvius, the sides of which are well cultivated, even to the summit. This is level, but quite unproductive. It has a cindery appearance; for the rock is porous and of a sooty color, the appearance suggesting that the whole summit may once have been on fire and have contained craters, the fires of which died out when there was no longer anything left to burn."
Earthquakes, however, were of common occurrence in Campania. An especially violent shock on the fifth of February, 63 A.D., gave warning of the reawakening of Vesuvius. Great damage was done throughout the region lying between Naples and Nuceria, but the shock was most severe at Pompeii, a large part of the buildings of the city being thrown down. The prosperous and enterprising inhabitants at once set about rebuilding. When the final catastrophe came, on the twenty-fourth of August, 79 A.D., most of the houses were in a good state of repair, and the rebuilding of at least two temples, those of Apollo and of Isis, had been completed. This renewing of the city, caused by the earthquake, may be looked upon as a fortunate circumstance for our studies.
Our chief source of information for the events of August 24-26, 79, is a couple of letters of the Younger Pliny to Tacitus, who purposed to make use of them in writing his history. Pliny was staying at Misenum with his uncle, the Elder Pliny, who was in command of the Roman fleet. In the first letter he tells of his uncle's fate. On the afternoon of the twenty-fourth, the admiral Pliny set out with ships to rescue from impending danger the people at the foot of Vesuvius, particularly in the vicinity 20 of Herculaneum. He came too late; it was no longer possible to effect a landing. So he directed his course to Stabiae, where he spent the night; and there on the following morning he died, suffocated by the fumes that were exhaled from the earth. The second letter gives an account of the writer's own experiences at Misenum.
To this testimony little is added by the narrative of Dion Cassius, which was written a century and a half later and is known to us only in abstract; Dion dwells at greater length on the powerful impression which the terrible convulsion of nature left upon those who were living at that time. With the help of the letters of Pliny, in connection with the facts established by the excavations, it is possible to picture to ourselves the progress of the eruption with a fair degree of clearness.
The subterranean fires of Vesuvius pressed upward to find an outlet. The accumulations of volcanic dust and pumice stone that had been heaped up on the mountain by former eruptions were again hurled to a great height, and came down upon the surrounding country. On the west side of Vesuvius they mingled with torrents of rain, and flowed as a vast stream of mud down over Herculaneum. On the south side, driven by a northwest wind as they descended from the upper air, they spread out into a thick cloud, which covered Pompeii and the plain of the Sarno. Out of this cloud first broken fragments of pumice stone—the average size not larger than a walnut—rained down to the depth of eight to ten feet; then followed volcanic dust, wet as it fell by a downpour of water, to the depth of six or seven feet. With the storm of dust came successive shocks of earthquake.
Such was, in outline, the course of the eruption. It must have begun early in the morning of the twenty-fourth, and the stream of mud must have commenced immediately to move in the direction of Herculaneum; for shortly after one o'clock on that day the admiral Pliny at Misenum received letters from the region threatened, saying that the danger was imminent, and that escape was possible only by sea. Even then the Younger Pliny saw, high above Vesuvius, the cloud, shaped like an umbrella pine, which was to rain down destruction on Pompeii. 21 Toward evening, the ships off Herculaneum ran into the hail of pumice stone, which, during the night, reached Stabiae and so increased in violence that the admiral Pliny was obliged to leave his sleeping room from fear that the door would be blocked up by the falling masses.
Early in the morning of the twenty-fifth there was a severe shock of earthquake, which was felt as far as Misenum. Then the dust began to fall, and a cloud of fearful blackness, pierced through and through with flashes of lightning, settled down over land and sea. At Misenum, even, it became dark; "not," says Pliny, "as on a cloudy night when there is no moon, but as in a room which has been completely closed."
How long the fall of dust lasted we can only infer from this, that when it ceased the sun had not yet set. In Misenum, which the shower of pumice stone had not reached, everything was covered with a thick layer of dust. Although the earthquake shocks continued, the inhabitants went back into their houses. But Pompeii and Stabiae had been covered so deep that only the roofs of the houses, where these had not fallen in, projected above the surface; and Herculaneum had wholly disappeared.
All the plain of the Sarno was buried, as were also the slopes of the mountains on the south. Stabiae, as we have seen, lay at the foot of the mountains, on the coast. It had been destroyed by Sulla in the Social War; its inhabitants, forced to scatter, settled in the surrounding country. In the years 1749-82 numerous buildings were excavated in the vicinity, in part luxurious country seats, in part plain farm buildings; but the excavations were afterward filled up again. The covering of Stabiae was like that of Pompeii, only not so deep.
Herculaneum was covered with the same materials; they were not, however, deposited in regular strata, but were mixed together, and being drenched with water, hardened into a kind of tufa which in places reaches a depth of sixty-five feet. Excavating at Herculaneum is in consequence extremely difficult; and the difficulty is further increased by the fact that a modern city, Resina, extends over the greater part of the ancient site. The excavations thus far attempted have in most cases been 22 conducted by means of underground passageways. The statement that Herculaneum was overflowed by a stream of lava, though frequently repeated, is erroneous.
The woodwork of buildings in Pompeii has in many cases been preserved, but in a completely charred condition. Frequently where walls were painted with yellow ochre it has turned red, especially when brought immediately into contact with the stratum of dust—a change which this color undergoes when it is exposed to heat. Nevertheless, the inference would be unwarranted that the products of the eruption fell upon the city red-hot and caused a general conflagration. The fragments of pumice stone could scarcely have retained a great degree of heat after having been so long in the air; it is evident from Pliny's narrative that they were not hot.
With the dust a copious rain must have fallen; for the bodies of those who perished in the storm of dust left perfect moulds, into a number of which soft plaster of Paris has been poured, making those casts of human figures which lend a melancholy interest to the collections in the little Museum at Pompeii (Fig. 7). The extraordinary freshness of these figures, without any suggestion of the wasting away after death, is explicable only on the supposition that the enveloping dust was damp, and so commenced immediately to harden into a 23 permanent shape. If the dust had been dry and had packed down and hardened afterwards, we should be able to trace at least the beginnings of decay.
Neither the pumice stone nor the dust, then, could have set wood on fire. The woodwork must have become charred gradually from the effect of moisture, as in the case of coal, and the change in the color of the yellow ochre must be due to some other cause than the presence of heat. This is all the more evident from the fact that vestiges of local conflagrations, confined within narrow limits, can here and there be traced, kindled by the masses of glowing slag which fell at the same time with the pumice stone, or by the fires left burning in the houses.
From the number of skeletons discovered in the past few decades, since an accurate record has been kept, it has been estimated that in Pompeii itself, about two thousand persons perished. As the city contained a population of twenty thousand or more, it is evident that the majority of the inhabitants fled; since the eruption commenced in the morning, while the hail of pumice stone did not begin till afternoon, those who appreciated the greatness of the danger had time to escape. It is, however, impossible to say how many fled when it was already too late, and lost their lives outside the city. Mention has already been made of some who perished at the harbor; others who went out earlier to the Sarno may have made good their escape. Of those who remained in the city part were buried in the houses—so with twenty persons whose skeletons were found in the cellar of the villa of Diomedes; others, as the hail of pumice stone ceased, ventured out into the streets, where they soon succumbed to the shower of dust that immediately followed. As the bodies wasted away little except the bones was left in the hollows formed by the dust that hardened around them, and the casts already referred to, which have been made from time to time since 1863, give in some cases a remarkably clear and sharp representation of the victims.
The Emperor Titus sent a commission of senators into Campania to report in what way help could best be rendered. A plan was formed to rebuild the cities that had been destroyed, and the property of those who died without heirs was set aside 24 for this purpose. Nothing came of it, however, so far as our knowledge goes. Pompeii is indeed mentioned in the Peutinger Table, a map for travellers made in the third century, but the name was apparently given to a post station in memory of the former city. Conclusive evidence against the existence of a new city is the absence of any inscriptions referring to it. 25
The first excavations at Pompeii were undertaken by the survivors shortly after the destruction of the city. As the upper parts of the houses that had not fallen in projected above the surface, it was possible to locate the places under which objects of value were buried. Men dug down from the surface at certain points and tunnelled from room to room underneath, breaking through the intervening walls. This work was facilitated by the stratification of the volcanic deposit; the loose bits of pumice stone in the lower stratum were easily removed, while the stratum of dust above was compact enough to furnish a fairly safe roof for narrow passageways. Only infrequently is a house discovered that was left undisturbed; from this we understand why comparatively little household furniture of value has been found. Not only were rich house furnishings in demand,—the excavators carried away valuable building materials as well. So eagerly were these sought after that large buildings, as those about the Forum, were almost completely stripped of their marble.
In the Middle Ages Pompeii was quite forgotten. Possibly some remains of the ancient buildings were yet to be seen; at any rate it seems to have been believed that a city once existed there, for the site was called La Civita.
In the years 1594-1600 Domenico Fontana was bringing water from one of the springs of the Sarno to Torre Annunziata, and in the course of the work cut an underground channel through the site of Pompeii and discovered two inscriptions; but no further investigations were made. The indifference of Fontana may be explained by the fact that the water channel was not dug out from above, like a railway cutting, and then covered over, but was carried as a tunnel 26 through the hill on which the city stood, so that the workmen came to the ancient surface at only a few points. In the part now excavated, the original level was disturbed in but one place, near the temple of Zeus Milichius; here the inscriptions were probably found.
The excavation of the buried Campanian towns began, not at Pompeii, but at Herculaneum, where in 1709 the workmen of the Austrian general, Count Elbeuf, sunk a shaft, reaching the ancient level at the rear of the stage of the theatre. The current statement that Elbeuf discovered the site of Herculaneum by accident, his workmen being engaged in digging a well, is erroneous. The location of the city was already known, and Elbeuf was searching for antiquities. The error probably originated in a misunderstanding of the Italian word pozzo, which has a double meaning, "shaft," and "well."
At first little was accomplished, but after 1738 excavations were carried on by King Charles III in a more systematic manner. The director of these excavations, Rocco Gioacchino de Alcubierre, in March, 1748, had occasion to inspect the water channel mentioned above, and learned that at the place called La Civita—which he thought was Stabiae—objects of antiquity were often found. He came to the conclusion that this site was more promising than that of Herculaneum, where the excavations just then were yielding little of value; the result of his recommendation was that on the thirtieth of the same month excavations were commenced at Pompeii, with twelve workmen.
The first digging was done north of Nola Street, near the Casa del Torello; then the men were set at work on the Street of Tombs, near the Herculaneum Gate; and a part of the Amphitheatre also was cleared. In 1750 the work was stopped, because the results were thought to be unimportant.
Attention was again directed to Pompeii in 1754, when workmen engaged in constructing the highway that runs just south of the city discovered a number of tombs. About the same time, west of the Amphitheatre, the extensive establishment of Julia Felix, arranged like a villa, and some buildings lying north of it, were excavated; but they were all covered up again, as 27 was also the so-called villa of Cicero, which was uncovered in 1763.
The parts excavated were not left clear until after 1763, when the discovery of the inscription of Suedius Clemens, on the Street of Tombs, had established the fact that the site was that of Pompeii. Important discoveries were made soon after. In the years immediately following 1764 the theatres, with the adjacent buildings, and the Street of Tombs, together with the villa of Diomedes, were laid bare. The excavations were conducted slowly and without system, yet with scientific interest fostered by the Herculaneum Academy (Accademia ercolanese), which had been founded in 1755.
Under Joseph Bonaparte and Murat, 1806-15, the work received larger appropriations, and was prosecuted with greater energy, particularly in the quarter lying between the Herculaneum Gate and the Forum. In the same period the Forum was approached from the south side also. In 1799, at the time of the Parthenopean Republic, the French general Championnet had excavated, south of the Basilica, the two houses which are still called by his name. From these, in 1813, the excavators made their way into the Basilica, whence, in November of the same year, they pushed forward into the Forum. However, the excavation of the Forum itself with the surrounding buildings, prosecuted less vigorously and with limited means in the period of the Restoration, was not completed till 1825; by this time the temple of Fortuna and the Baths north of the Forum had also been uncovered. The following years, to 1832, brought to light the beautiful houses on the north side of Nola Street—the houses of Pansa, of the Tragic Poet, and of the Faun—and those on Mercury Street; later came excavations south of Nola Street and in various parts of the city.
The disturbances of the period of Revolution caused a cessation of work for two years, from July 3, 1848, to September 27, 1850. During the next nine years effort was expended chiefly in clearing Stabian Street and the Stabian Baths.
The fall of the Bourbon dynasty and the passing over of Naples to the Kingdom of Italy caused another interruption, which lasted a year, from December 5, 1859, to December 20, 28 1860. On the last date the excavations were resumed under the direction of Giuseppe Fiorelli, a man of marked individuality, who left a permanent impress upon every part of the work. To him is due the present admirable system, excellent alike from the technical and from the administrative point of view. We owe it to him, that better provision is made now than formerly for the preservation and care of excavated buildings and objects discovered; the earlier efforts in this direction naturally left room for improvement, and the painstaking of the present administration is especially worthy of commendation.
Fiorelli put an end to haphazard digging, to excavating here and there wherever the site seemed most promising. He first set about clearing the undisturbed places lying between the excavated portions; and when in this way the west part of the city had been laid bare, he commenced to work systematically from the excavated part toward the east. Since 1860 only 29 one public building has been excavated—the baths at the corner of Stabian and Nola streets; but many private houses have been uncovered, some of which are of much interest. Fiorelli remained in charge of the excavations until 1875, when he was called to Rome to become General Director of Museums and Excavations; he died in 1896, at the age of seventy-two. His successors, first Michele Ruggiero, then Giulio de Petra, have worked according to his plans, and in full sympathy with his ideals.
Up to the present time about three-fifths of Pompeii have been excavated. In 1872 Fiorelli made the calculation that if the excavations should continue at the rate then followed the whole city would be laid bare in 74 years. Since that time the work has progressed more slowly, partly in consequence of the greater care taken for the preservation of the remains. At the present rate of progress we may believe that the twentieth century will hardly witness the completion of the excavations.
Articles of furniture and objects of art that can easily be moved, as the statuettes often found in the gardens, are ordinarily taken to the Museum in Naples; a few things have been placed in the little Museum at Pompeii. Now and then small sculptures have been left in a house exactly as they were found; but the necessity of keeping such houses locked and of guarding them with especial care prevents the general adoption of this method of preservation.
In respect to the preservation of paintings the practice has varied at different periods. Generally, however, the best pictures have been cut from the walls and transferred to the Museum, while the decorative framework has been left undisturbed. It is keenly to be regretted that in this way the effect of the decorative system as a whole has been destroyed, for the picture forms the centre of a carefully elaborated scheme of decoration which needs to be viewed as an artistic whole in order to be fully appreciated; and the removal of a painting can hardly be accomplished without some damage to the parts of the wall immediately in contact with it. A far better method would be to leave intact all walls containing paintings or decorative work of interest, providing such means 30 of protection against the weather as may be necessary. A good beginning in this respect has been made in the case of the house of the Vettii, the beautiful and well preserved paintings of which have been left on the walls and are preserved with the greatest care.
The treatment of a mosaic floor is an altogether different problem. While the floor as a whole, with its ornamental designs, is left in place, fine mosaics representing paintings, which are delicate and easily destroyed, are wisely taken up and placed in the Museum.
The Regions are given as they were laid out by Fiorelli (p. 34), the boundaries being marked by broken lines. The Insulae are designated by Arabic numerals.
Stabian Street, between Stabian and Vesuvius gates, separating Regions VIII, VII, and VI, from I, IX, and V, is often called Cardo, from analogy with the cardo maximus (the north and south line) of a Roman camp. Nola Street, leading from the Nola Gate, with its continuations (Strada della Fortuna, south of Insulae 10, 12, 13, and 14 of Region VI, and Strada della Terme, south of VI, 4, 6, 8), was for similar reasons designated as the Greater Decuman, Decumanus Maior; while the street running from the Water Gate to the Sarno Gate (Via Marina, Abbondanza Street, Strada dei Diadumeni) is called the Lesser Decuman, Decumanus Minor.
The only Regions wholly excavated are VII and VIII; but only a small portion of Region VI remains covered.
The towers of the city wall are designated by numbers, as they are supposed to have been at the time of the siege of Sulla, in 89 B.C. (p. 240).
The outline of Pompeii, with its network of streets, may be traced on the accompanying plan.
The city took its shape from the end of the old lava stream on which it lay, which ran southeast from Vesuvius. It formed an irregular oval a little less than four fifths of a mile (1200 metres) long and a little more than two fifths of a mile (720 metres) wide in its greatest dimensions. On three sides, west, south, and east, the wall of the city ran along the edge of the hill; on the northwest side, between the Herculaneum and Capua gates, it passed directly across the ridge formed by the lava.
The eight gates are known by the modern names given on our plan. Two of them, the Herculaneum and Capua gates, lie at the points where the wall comes to the edge of the lava bed on either side; the streets that led from them descended to the plain. At the Herculaneum Gate the much travelled highway from Naples, passing through Herculaneum, entered the city; the Capua Gate does not seem to have been built to accommodate a large traffic. Between these two lay the Vesuvius Gate, through which the Pompeians passed out upon the ridge toward Vesuvius.
From the Herculaneum Gate nearly to the Stabian Gate, on the south side, ran a bluff, with a sharp descent. Nevertheless, as a gate was needed on the side nearest the sea, the Water Gate, Porta Marina, was placed here; through it a steep road led to the Forum, so steep that it could not have been much used by vehicles; but that may have mattered little to the fishermen bringing their catches to the market.
The Stabian Gate lay in a depression at the end of the lava bed and afforded a more convenient means of access to the city; thence a road ran to the harbor on the Sarno, and to Stabiae. 32 At the left another road apparently branched off from this in the direction of Nuceria, which could be reached also from the conveniently located Nocera Gate further east; here also the slope of the hill was less pronounced. Two gates, finally, gave access to the city on the somewhat steeper east and northeast sides, the Sarno Gate, which takes its name, not from the river, but from the modern town of Sarno, and the Nola Gate; it is at least probable that the road passing through the latter led to Nola.
A glance at the plan will make it plain that the streets of Pompeii must have been laid out according to a definite system; an arrangement on the whole so regular and symmetrical would scarcely be found in a city that had developed gradually from a small beginning, in which the location of streets had been the result of accident.
Two wide streets that cross the city very nearly at right angles give the direction for the other streets running approximately north and south and east and west, Mercury Street with its continuations, and Nola Street. The former probably served as a base line in laying out the city; this we infer from the fact that while it is exceptionally broad, and the Forum lies on it, there is no gate at either end, and it could have been little used for traffic. Nola Street has a gate only at the east end; the west end opens into the Strada Consolare, which follows the line of the city wall and leads to the Herculaneum Gate at the northwest corner. That the other streets must have taken their direction from these two is clearly seen in the case of those in the northwest part of the city; on close examination it will be found that the arrangement of the rest also is in accordance with the same system, a fact which would perhaps be still more obvious if the unexcavated eastern portion of the city were laid bare.
In two instances, however, there is a deviation from this system. One is in the quarter near the Forum. For reasons which have not been satisfactorily explained, the Porta Marina was not placed on the prolongation of the street coming from the Sarno Gate, but further north. In order to reach this gate the street, as shown on the plan, makes a bend to the north which is reproduced in the other east and west streets lying south of Nola Street; west 33 of the Forum, again, the streets converge in order to give access to this gate.
The other deviation, which affects Stabian Street, can be explained on grounds of convenience. This street, which runs from the Stabian to the Vesuvius Gate, abandoned the line of the north and south streets west of it in order to take advantage of a natural depression in the hill, by following which an easy grade could be established to the higher parts of the city; that the blocks along this important thoroughfare might not be too irregular in shape, the nearest parallel streets on the east were laid out in such a way as to follow the direction of Stabian Street. The street running south from the Capua Gate resumes, with slight variation, the north and south line of Mercury Street.
The public buildings of the city form two extensive groups. One group lies about the Forum (Plan II); with this we may reckon the Baths in the first block north, and the temples of Fortuna Augusta and Venus Pompeiana. The nucleus of the other is formed by the two theatres and the large quadrangular colonnade which, designed originally to afford protection for theatre-goers against the rain, was later turned into barracks for the gladiators (Plan III). There are in addition only four public buildings that need to be mentioned. Two are bathing establishments, the Stabian Baths, and those at the corner of Stabian and Nola streets. The third is a small building near the Herculaneum Gate, consisting of a hall opening on the street, with a base for a statue near the rear wall; this on insufficient grounds has been called a custom-house. The fourth, the Amphitheatre, lies in the southern corner of the city.
As the public buildings were thus located in clearly defined groups, it is not probable that many yet remain in the portion of the city which has not been excavated. We may expect to find only bathing establishments, and perhaps one or two temples. There were priestesses of Ceres and of Venus, but the sanctuary of Ceres has not been discovered. Mention is made also of a priest of Mars; but the temple of Mars, according to the precept of Vitruvius (I. vii. 1) would be outside the city.
A word should be added regarding the modern division of Pompeii into Regions, or wards, and Insulae. By an Insula is 34 meant—in accordance with ancient usage—a block of houses surrounded on all sides by streets. The division into Regions was introduced by Fiorelli, and rests upon a misconception which has been corrected by more recent excavations. Fiorelli thought that the Capua Gate and the Nocera Gate were connected by a street, and that the city was thus divided by four streets (the assumed street, Stabian Street, Nola Street, and Abbondanza Street with its continuations) into nine Regions, marked on our plan with the numerals I-IX.
In each Region every block, or Insula, has its number, and in the Insula a separate number is given to every door opening on a street. This arrangement is convenient because each house can be accurately designated by means of three numbers.
On the plans the Insulae are designated by Arabic numerals, but in the text small Roman numerals are used for the sake of clearness; thus, Ins. IX. i. 26, means the first Insula of Region IX, No. 26.
The names of several of the more important streets, as of the better known houses, are given in the text in the English form. 35
Six centuries lie between the dates of the earliest and the latest buildings at Pompeii; and in order to understand any structure rightly we must first of all ascertain to what period it belongs. It is indeed rarely possible to fix dates with exactness for the earlier time; but certain periods are so clearly differentiated from one another, that in most cases there is no room for doubt to which of them a building is to be assigned. Before undertaking to characterize these periods, however, it will be necessary briefly to notice what building materials were used, and how they were turned to account in construction.
Exclusive of wood, which was more freely used in Pompeii than in Campanian towns to-day, the principal building materials were Sarno limestone, two kinds of tufa (gray and yellow), lava, a whitish limestone often called travertine wrongly, marble, and brick.
The Sarno limestone (pietra di Sarno) is a deposit from the water of the Sarno, and is found in beds along the course of the river. It contains many impressions of the leaves and stems of plants, and varies greatly in compactness; it closely resembles the Roman travertine, except that it has a more decided yellowish tint.
Gray tufa is a volcanic dust which has been hardened by the presence of water into rock. It has a fine grain, and is easily worked; it was quarried in the vicinity of Nocera. The volcanic dust which formed the yellow tufa was thrown out in an earlier period, when the Sarno plain was still a part of the sea, and so hardened in salt water; it is more friable than the gray tufa, and not so durable.
The lava, which came originally from Vesuvius, was quarried 36 at Pompeii. Three varieties may be distinguished, differing in density according as they were taken from the lower or the upper strata: solid lava, or basalt, which, being heavy and extremely hard, was extensively used for pavements and thresholds; slag, like the scoriae found on the sides of Vesuvius to-day; and cruma, the foam of the lava stream, which is light and porous, but on account of its hardness has good resisting qualities.
The whitish limestone has a fine texture, without impressions of leaves, and is of an even color; it was to some extent employed as a substitute for marble. It was not quarried at Pompeii, and was not extensively used; the most important example of its use is in the later colonnade about the Forum. The white Carrara marble (marmor lunense) was preferred for columns, pilasters, and architraves; but colored marbles of many varieties, cut into thin slabs and blocks, were used as a veneering for walls and in the mosaic floors.
Bricks were used only for the corners of buildings, for doorposts, and in a few instances, as in the Basilica and the house of the Labyrinth, for columns; brick walls are not found in Pompeii. The bricks seen in corners and doorposts (Figs. 11, 95) are simply a facing for rubble work. They are ordinarily less than an inch thick; they have the shape of a right-angled triangle, and are so laid that the side representing the hypothenuse—about six inches long—appears in the surface of the wall. Sometimes fragments of roof tiles, more or less irregular in shape, were used instead. The bricks of the earlier time contain sea sand and have a granular surface, with a less uniform color; the later bricks are smooth and even in appearance.
The flat oblong roof tiles (tegulae), measuring ordinarily 24 by 19 or 20 inches, had flanges at the sides; over the joints where the flanges came together, joint tiles in the form of a half-cylinder (imbrices) were laid, like those in use at the present day (Figs. 114, 117).
The styles of masonry are characteristic and interesting. We may distinguish them as masonry with limestone framework, rubble work, reticulate work, quasi-reticulate work, ashlar 37 work, and, in the case of columns and entablatures, massive construction.
The masonry with limestone framework dates from the earliest period. The walls were built without mortar, clay being used instead. Since this served only as a filling, without strength as a binding material, it was necessary to arrange the stones themselves in such a way that the wall would stand firm. This result was accomplished by using large, oblong blocks, not only for corners and doorposts, but also for a framework in the body of the wall; as shown in our illustration, alternate vertical and horizontal blocks were built up into pillars which would hold in place the courses of smaller stones that filled the intervening spaces. The material of the larger, hewn blocks, as well as of the smaller fragments, was Sarno limestone, with occasional pieces of cruma or slag.
The rubble work, opus incertum, consists of fragments irregular in shape, of the size of the fist and larger, laid in mortar. The material used in the earlier times was ordinarily lava; later, Sarno limestone. Corners and doorposts at first were built of hewn blocks; afterwards bricks and blocks of stone cut in the form of bricks were used for this purpose, and in the latest period frequently brick and stone combined, opus mixtum 38 or opus compositum—a course of stone alternating with every two or three courses of brick. An example of the opus mixtum is seen in the entrances of the Herculaneum Gate (Fig. 113). Rubble work is the prevailing masonry at Pompeii; in comparison the other kinds described may be considered exceptional.
The reticulate work, opus reticulatum, formed the outer surface of a wall, the inner part of which was built up with rubble. It was composed of small four-sided pyramidal blocks, of which only the base, cut square and smooth, showed on the surface; the tapering part served as a key to bind the block into the wall. These blocks, which measured from three to four inches square at the base, were laid on their corners, so that the edges ran diagonally to the horizontal and vertical lines of the wall; the pattern thus formed had the appearance of a net, hence the name. The material was in most cases gray, occasionally yellow, tufa. The corners and doorposts were at first made of the same kind of stone cut in the shape of bricks; later of bricks. This style of masonry was in vogue at Rome, and apparently also at Pompeii, in the time of Augustus (Fig. 12; see also the pedestal in the foreground of Plate I).
The quasi-reticulate work belongs to the early years of the Roman colony. In appearance it lies between rubble and reticulate work, differing from the latter in that the small blocks are less carefully finished and are laid with less regularity. The material is generally lava, but tufa and limestone are also found. The corners and doorposts are of brick, or of brick-shaped blocks of tufa or limestone (Fig. 11).
Ashlar work, of carefully hewn oblong blocks laid in courses, is found in the older portions of the city wall (Fig. 109) and in the walls of the Greek temple in the Forum Triangulare; it was used otherwise only for the fronts of houses (Fig. 10). The material in the earliest times was Sarno limestone, later gray tufa. With the coming of the Roman colony ashlar work went out of use, even for the corners of houses and doorposts.
In the construction of columns and many architraves large blocks were used. Previous to the time of the Roman colony these were of gray tufa, or, in rare instances, of limestone; a coating of white stucco was laid on the surface. From the 39 advent of the colony to the time of the Early Empire, the whitish limestone was used; after that, Carrara marble.
Bearing in mind the styles of construction just described, we may now turn to the architectural history of Pompeii, which, as we shall see, falls naturally into six periods.
The first period is that to which the Doric temple in the Forum Triangulare and the city walls belong. From the style of the temple, we may safely conclude that it was built in the sixth century B.C.; the evidence is too scanty to enable us definitely to fix the date of the walls. The building materials used were the Sarno limestone and gray tufa.
The second period may be designated as the Period of the Limestone Atriums, so characterized from the peculiar construction of a number of houses found in different parts of the city. On the side facing the street these houses have walls of ashlar work of Sarno limestone (Fig. 10), but the inner walls are of limestone framework (Fig. 9).
Almost no ornamental forms belonging to this period have come down to us; so far only a single column has been found, built into the wall of a house. It is of the Doric style, and once formed part of a portico that ran along the west side of the small open space at the northwest corner of Stabian and Nola streets; it is thus the sole remnant of a public building. In the only complete house that has survived from this period, the house of the Surgeon, there was a portico in front of the garden, but the roof was supported by square pillars, not by columns. There is no trace of wall painting. 40
Characteristic as the construction of the limestone atriums is, it is difficult to determine to what age they belong. The beginning of the period cannot be determined even approximately. The end, however, is fixed by the earlier limit of the next period, the Second Punic War. We may, therefore, assign the houses with the limestone atriums to a period just preceding this war; reckoning in round numbers, they were built before 200 B.C.
In the third, or Tufa Period, came the climax of the development of Pompeian architecture prior to the Roman domination. The favorite building material was the gray tufa.
With the exception of the Greek temple mentioned above, all the public buildings of Pompeii that do not belong to the time of the Roman colony have a homogeneous character; a list of them would include the colonnade about the Forum, the Basilica, the temples of Apollo and of Jupiter, the Large Theatre with the colonnades of the Forum Triangulare and the Barracks of the Gladiators, the Stabian Baths, the Palaestra, and the outer part of the Porta Marina with the inner parts of the other gates. Closely associated with these public edifices is a large number of private houses; as a specially characteristic example, we may mention the house of the Faun.
All these buildings are similar in style and construction; they evidently date from a period of great building activity. It must also have been a period of peace and prosperity; for the whole city, from the artistic and monumental point of view, underwent a transformation. Certain Oscan inscriptions, an early Latin monumental inscription, and a few words, dating from 78 B.C., scratched upon the plaster of the Basilica, oblige us to place the Tufa Period before the time of the Roman colony; yet not long before, for the next oldest buildings date from the first years of the colony. The time of peace that furnished the background for the period can only have been that between the Second Punic War and the Social War, about 200 to 90 B.C.; the Tufa Period was approximately the second century before Christ.
In marked contrast with the Period of the Limestone Atriums, the Tufa Period has a pronounced artistic character. It is 41 preëminently a period of monumental construction. Buildings and public places are adorned with colonnades of the Doric, Ionic, and Corinthian orders. The simple and beautiful forms of the Greek architecture are used, sparingly indeed, but without petty detail and with evident fear of excessive ornamentation. Columns and architraves are white, with only slight suggestion of the earlier Greek polychrome decoration. A variety of color, however, is laid on the walls, and with this period the history of Pompeian wall decoration begins.
The Tufa Period coincides throughout with the time of the first style of decoration. This, known as the Incrustation Style, aimed to imitate in stucco the appearance of a wall veneered with colored marbles. Wall paintings are wholly lacking, but pictures, often of rare beauty, are found in the mosaics of the floors. In this period, we may truly say that Pompeian architecture was at its best. With it the pure Greek tradition dies out; all the buildings of later times bear the Roman stamp.
The buildings of the Tufa Period are easily recognized by the unobtrusiveness of the materials used in their construction. The rubble work is mostly of lava; but gray tufa was used exclusively, not only for ashlar work in façades, but also for columns and entablatures. The surface of the tufa was coated with a layer of fine white stucco, which gave it the appearance of marble. The use of marble for building purposes, however, is foreign to this period; and it speaks well for the culture of the Oscan Pompeians that they had pleasure in beauty of form above richness of material.
The fourth period covers the earlier decades of the Roman colony, from 80 B.C. to near the end of the Republic. According to inscriptions which are still extant, soon after the year 80 a wealthy colonist, Gaius Quinctius Valgus, when duumvir with Marcus Porcius as colleague, built the Small Theatre, and afterwards, when quinquennial duumvir with the same colleague, the Amphitheatre also. Both structures have the quasi-reticulate facing (Fig. 11); and several other buildings in which the same style of masonry is found without doubt belong to the same period—the Baths near the Forum, the temple of 42 Zeus Milichius, a building just inside the Porta Marina, and apparently the hall at the southeast corner of the Forum, which we shall identify as the Comitium; with these should be included also the original temple of Isis, which was destroyed by the earthquake of 63 A.D. Few houses dating from this period have been discovered; the provision made by the preceding period in this respect had been so generous that new houses were not needed.
From the aesthetic point of view the fourth period falls far below that just preceding; the exhaustion of resources and the decline of taste due to the long and terrible war are unmistakable. Theatre, Amphitheatre, and Baths were alike built for immediate use, with crude and scanty ornamentation; and where richer ornament was applied, as in the case of the temple of Isis, it could not for a moment be compared with that of the Tufa Period in beauty and finish.
The wall decoration of the fourth period is of the second Pompeian style, which came into vogue just after the founding of the colony, and which we shall call the Architectural Style; for in part, as the first style, it imitated a veneering of marble, not however with the help of slabs or panels modelled in stucco, but by the use of color only, laid on walls finished to a plane surface; in part it made use of architectural designs which were painted either correctly or with at least some regard for proper proportions.
The fifth period extends from the last decades of the Republic to the earthquake of the year 63 A.D. In the entire period, covering more than a century, we are unable to distinguish a series of buildings which may be classed together in style and construction as constituting a homogeneous, representative group. Here and there we can point out a piece of masonry 43 which, from its similarity to that of the fourth period, may be assigned to the end of the Republic; again, walls with reticulate facing of tufa and corners of brick-shaped blocks of the same stone belong to the time of Augustus (Fig. 12), while reticulate work with corners of brick (Fig. 95) is of later date; but there is a total lack of those distinguishing characteristics which would serve to set off by themselves all the buildings belonging to a particular time. Consequently in the case of each structure it is necessary to take into account all the circumstances, and then to form an independent judgment regarding its style and date.
Fig. 12.—Reticulate facing, with corners of brick-shaped stone. The filled arch is probably to bear the weight of the wall over a sewer.
The difficulty is further enhanced by the fact that three styles of wall decoration fall within the limits of the same period. The Architectural Style, already mentioned, remained in vogue to the time of Augustus; it then gave place to the third or Ornate Style, which is characterized by a freer use of ornament and the introduction of designs and scenes suggestive of an Egyptian origin. The fourth or Intricate Style came in about the year 50 A.D., and represents, with its involved and fantastic 44 designs, the last stage in the development of Pompeian wall decoration. In the fifth period marble began to be employed as a building material; the earliest dated example of its use is the temple of Fortuna Augusta, erected about 3 B.C.
The sixteen years between the earthquake of 63 A.D. and the destruction of the city form the sixth period in the architectural history of Pompeii. The buildings belonging to it can be easily recognized, not only from their similarity in style and ornament, but also from certain external characteristics, as newness of appearance, unfinished condition, and the joining of new to broken walls. The only important building wholly new is the large bathing establishment, the Central Baths, at the corner of Stabian and Nola streets. For the rest, effort seems to have been directed toward restoring the ruined buildings as nearly as possible to their original condition. The wall decoration throughout is of the Intricate Style.
The measurements of buildings in the Roman Period conform to the scale of the Roman foot, while the dimensions of structures antedating the Roman colony in most cases reduce to the scale of the Oscan or old Italic foot. The Roman foot (296 mm.) may be roughly reckoned at 0.97 of the English foot (304.8 mm.); the Oscan foot (275 mm.) is considerably shorter. As the Roman standard is of Greek origin, we may perhaps find a structure conforming to it that was designed by a Greek architect before the Roman Period.
KEY TO PLAN II
The Forum is usually approached from the west side by the short, steep street leading from the Porta Marina. Entering, we find ourselves near the lower end of an oblong open space (Plate I), at the upper end of which, toward Vesuvius, stands a high platform of masonry with the ruins of a temple—the temple of Jupiter; the remains of a colonnade are seen on each of the other three sides. Including the colonnade the Forum measures approximately 497 feet in length by 156 in breadth; without it the dimensions are 467 and 126 feet. The north side, at the left of the temple, is enclosed by a wall in which there are two openings, one at the end of the colonnade, the other between this and the temple; at the right the wall bounding the open space has been replaced by a stately commemorative arch, while the end of the colonnade is closed by a wall with a passageway. Another arch, of much simpler construction, stands at the left of the temple, in line with the façade; it cuts off the area between the temple and the colonnade from the rest of the Forum. A third arch once stood in a corresponding position at the right.
The colonnade is nowhere intersected by a street passable for vehicles. Even the entrances on the north side form no exception. At the left you descend to the area by several steps, at the right by one only; yet here the exclusion of carts and wagons was made doubly sure by placing three upright stones in the passageway. Only pedestrians could enter the Forum, and 46 they, too, could easily be shut out by means of gates in the entrances; the places where the gates swung can still be seen in the pavement, and one of them is shown in a painting (Fig. 16). No private houses opened on this area; it was wholly given up to the public life of the city and was surrounded by temples, markets, and buildings devoted to the civic administration.
The colonnade was not uniform in character upon all the three sides. As will be seen from our plan (Plan II), on the south side, and on the adjoining portion of the east side as far as Abbondanza Street, it was constructed with two rows of columns and had a double depth. On the east side, north of this street, the porticos in front of four successive buildings (K, L, M, N) took its place. For the greater part of its extent the colonnade was built in two stories, the lower of the Doric, the upper of the Ionic order. The upper gallery was made accessible by three stairways, at the southeast and southwest corners of the Forum and at the middle of the west side; on the east side it did not extend beyond Abbondanza Street.
The portico in front of the first of the four buildings referred to, that of Eumachia, contained a double series of columns, one above the other, corresponding in style and dimensions with those of the colonnade; but there was no upper floor running back from the intervening entablature. The arrangement in front of the fourth building, the Macellum, was similar; as the remains of the porticos in front of the two intervening buildings have wholly disappeared, it is impossible to determine their character.
The area of the Forum was paved with rectangular flags of whitish limestone. In front of the colonnade, the pavement of which was about twenty inches above that of the open space, a broad step or ledge projected, covering a gutter for rain water; the water found its way into the gutter through semicircular openings in the outer edge of the step.
Of the many statues that once adorned the Forum not one has been found. As may be seen from the pedestals still in place, they were of three kinds, and varied greatly in size. 47
First, statues of citizens who had rendered distinguished services were placed in front of the colonnade on the ledge over the gutter. Four pedestals that once supported statues of this sort may be seen on the west side.
Then equestrian statues of life size were set up in front of the ledge, these also in honor of dignitaries of the city (Fig. 17). On one of the pedestals the veneering of colored marble is still preserved, with an inscription showing that the person represented was Quintus Sallustius, "Duumvir, Quinquennial Duumvir, Patron of the Colony."
Finally, on the south side, the life size equestrian statues, which seem at the outset to have been arranged symmetrically, were almost all removed in order to make room for four much larger statues, the pedestals of which still remain (Fig. 53, p. 122). These must have represented emperors, or members of the imperial families. The pedestal in the middle, which is in the form of an arch almost square at the base, is much the oldest. Upon it was probably placed a colossal statue of Augustus. It is incredible that during the long and successful reign of the first emperor no statue in his honor should have been erected in Pompeii; and this is the most suitable place. The other three pedestals are similar in construction, and clearly belong together. The one at the right (2 on the plan) supported a colossal equestrian statue; that at the left (3) a colossal standing figure; on the third, further forward (4), was a smaller equestrian statue. Here stood, then, emperor, empress, and crown prince—Claudius, Agrippina, Nero.
A fifth pedestal, for an equestrian statue of the same size as that of Nero, is seen further to the north, in front of the temple of Jupiter (5). While unquestionably later than the time of Augustus, it must on the other hand be older than the pedestals of members of the Claudian family; for aside from himself, no one belonging to Nero's time can be taken into consideration, and after his death the Forum lay in ruins in consequence of the earthquake of the year 63. Who stood here, however, can scarcely be even conjectured. Not necessarily an emperor; the younger Drusus, for instance, Tiberius's son, or Germanicus might have been thus honored if they had in any way come 48 into relation with the Pompeians. But if an emperor, it must have been Caligula; another place was provided for the statue of Tiberius.
In the south side of the arch at the northeast corner of the Forum are two niches. It is highly probable that statues of the two oldest sons of Germanicus, Nero and Drusus, were placed in them; a fragment of an inscription referring to the former was found near by. These became presumptive heirs to the throne after the death of Tiberius's son Drusus, in 23 A.D.; but both afterwards fell victims to the morbid suspicions of the emperor and the plots of Sejanus, Nero in 29 A.D., Drusus four years later.
On the top of the arch an equestrian statue of Tiberius probably stood. That such a statue was placed here seems clear from analogy. North of this arch was another, almost in line with it, at the end of Mercury Street where it opens into Nola Street; and here the excavators found fragments of a bronze equestrian statue which were put together and set up in the Naples Museum. Whether this statue represented Caligula or Nero has been a matter of dispute, but the former is really excluded from consideration by the short, heavy figure, which is better suited to Nero. There is no decided resemblance to Nero either; but it is quite possible that, although as crown prince he had been honored with a statue in the Forum, the Pompeians thought it best to erect for him as emperor a more imposing monument.
Before leaving the area we may raise the question whether it contained a speakers' platform, like the Rostra in the Roman Forum. If we have reference to a special structure, probably not; no trace of a separate tribunal has been discovered. The orator who wished to address the people, however, could mount the broad platform in front of the temple of Jupiter, on which once an altar stood; before him the audience could gather in the open, on the only side of the Forum free from the colonnade. This place well suited the convenience of both speaker and hearers. It is possible that we should also identify as a tribune the platform in a recess at the southeast corner (p. 120).
On even a cursory inspection the Forum is seen to lack unity 49 in the details of its plan and in its architecture; the fact soon becomes apparent that it reached its final form only as the result of a long period of development. It will be worth while briefly to trace this development, and to note at least the more important changes which followed one another in the course of the centuries.
In the earliest times the Forum was merely an open square bounded by four streets.
The proof that this was the original form is in part based upon the orientation of the temple of Apollo. The sides of this temple have the same direction as the north and south streets in the northern part of the city, and must have been laid out parallel with a street that once ran between it and the Forum. The temple is, therefore, older than the colonnade of the Forum, which shows a marked deviation from the line of its axis; the divergence, as may be seen on our plan, was in part concealed by making a difference in the thickness of the pillars between the court of the temple and the Forum. It is obvious that the colonnade on the west side takes the place of an older street; the south side was probably defined by the prolongation of Abbondanza Street toward the southwest. 50
Near the southeast corner an inscription was found: V[ibius] Popidius Ep[idii] f[ilius] q[uaestor] porticus faciendas coeravit, 'Vibius Popidius, the son of Epidius, when quaestor caused this colonnade to be erected.' No clew to the date is given, but it must have been before the coming of the Roman colony, for after that time there was no office of quaestor in Pompeii. It must also have been before the Social War; in those years of tumult an extensive colonnade would not have been built, and when the national spirit was so vehemently asserting itself, we should expect to find inscriptions upon public works in the Oscan language, certainly not in Latin. But the use of Latin may very well date from the latter part of the period of alliance with Rome; we may then with much probability assign the inscription to the second half of the second century B.C.
Remains of the colonnade of Popidius are still to be seen on the south side, and on the adjoining part of the east side, extending just across Abbondanza Street; traces of it are found also on the west side, where it was afterward replaced by a new structure. On the east side north of Abbondanza Street no traces remain; the appearance of this part of the Forum was entirely changed when the four buildings (K, L, M, N) with their porticos were erected, but we can hardly doubt that the original colonnade extended here also. Our illustration (Fig. 14) shows the arrangement of the Doric columns in the lower story; of the Ionic columns above only scanty fragments have been recovered. The appearance of the whole may be suggested by our restoration (Fig. 13).
In style and construction this colonnade belongs to the Tufa Period (p. 40). While the forms are not those of the classical period, they nevertheless manifest Greek feeling. The low ratio in the proportions of the Doric columns, of which the height is equal to five diameters, well accords with their use as a support for an upper gallery; elsewhere in pre-Roman Pompeii more slender proportions are preferred, even for the Doric style. The shaft is well shaped, with a moderate swelling (entasis). Only the upper part is fluted; as the sharp edges of the flutings near the bottom might easily be marred, the divisions of the surface on the lower third of the shaft were left flat. 51
The architrave is relatively low, the result of an interesting peculiarity in the method of construction. Blocks of tufa long enough to span the intercolumniations were too weak to sustain the weight of the rest of the entablature. To meet this difficulty a line of thick planks was placed in old Italic fashion above the capitals of the columns, and on these were laid short tufa blocks. Thus in our illustration (Fig. 14), while the upper of the two bands of the architrave is seen to be of stone, the lower shows the modern timber supplied in the place of the ancient. That the planks were in reality no thicker than has been assumed in the reconstruction is proved beyond question by the later colonnade on the west side, which, although entirely of stone, corresponds throughout in its proportions with the older one; the architrave is equally narrow, and is likewise divided into two parts.
This explanation is curiously confirmed by an architectural painting on the garden wall of one of the finest houses of the Tufa Period, the house of the Faun. Here we find pilasters and entablature, except the architrave, painted white; but the 52 architrave is painted in two bands, of which the lower is yellow, as if to represent wood. Nothing would have been easier than to leave the architrave, moulded in stucco, of one color as if it were all of one material; but special effort was made apparently to indicate the appearance of a lower division of timber. From this we may infer that in actual construction no pains was taken to conceal the lack of uniformity in structural materials by laying a coat of white or colored stucco over wood and stone alike; on the contrary, the difference was not only recognized in the decoration, but even accentuated, as the timber, whether retaining its original color or painted with a suitable tint, presented a marked contrast with the stone the surface of which was covered with white stucco. If the strip of timber in the architrave had been perceptibly thicker than that of stone above it, the effect would not have been good; as the earlier Greek polychrome decoration was now no longer in vogue, the stripe of color above the capitals made a pleasing variation from the prevailing whiteness of the structure.
The Basilica at the southwest corner and the temple of Jupiter both conform to the same variation from the direction of the early north and south street that we have noticed in the case of the colonnade of Popidius; they belong, therefore, to the same remodelling of the Forum. It is quite possible that the erection of the temple, by limiting the area of the Forum on the north side, caused its extension toward the south beyond the earlier boundary. Originally the temple was isolated, the north end of the Forum on either side being left open; later, but still in the time of the Republic, a high boundary wall with passageways was built on both sides of it. Later still the two arches were erected in a line with its façade; afterwards, in the time of Tiberius, the wall at the right of the temple was replaced by the commemorative arch (I), and the smaller arch near the façade at the right was removed in order that there might be an unimpeded view of the great arch from the area.
The colonnade of Popidius may have stood for more than a century; the necessity of making thoroughgoing repairs no doubt became urgent. In the meantime, however, the taste of 53 the Pompeians had undergone a change, and instead of repairing the old colonnade they began to replace it by a new one, a part of which is shown in Fig. 15. Better material, the whitish limestone, was used, and the construction was more substantial; the blocks of the entablature were fitted together so as to form a flat arch. Though the new colonnade followed closely the proportions of the old, effective details, such as the fluting of the columns, and the triglyphs with the guttae underneath, were omitted. The refined sense of form characteristic of the earlier time was no longer manifest; all is coarse and inartistic, the swelling on the shafts of the columns, for example, being carried too high.
The new colonnade had a second story of the Ionic order, of the columns of which (though not of the entablature) considerable fragments have been found. The stylobate on which the columns rested was renewed in limestone, and about the same time the Forum was paved and the ledge over the gutter was laid with flags of the same material. 54
This second remodelling of the Forum commenced in the early years of the Empire, the pavement having been laid before the pedestal of the monument to Augustus was built. It was never carried to completion. On the west side the new colonnade was almost finished when the earthquake of the year 63 threw it nearly all down. At the time of the eruption only the columns at the south end of this side, which had safely passed through the earthquake, were still standing with their entablature; they are shown in Fig. 15. The area was then strewn with blocks, which the stonecutters were engaged in making ready for the rebuilding.
The Forum of Pompeii, as of other ancient cities, was first of all a market place. Early in the morning the country folk gathered here with the products of the farm; here all day long tradespeople of every sort exhibited their wares. In later times the pressure of business led to the erection of separate buildings around the Forum to relieve the congestion; such were the Macellum, used as a provision market; the Eumachia building, erected to accommodate the clothing trade; the Basilica and the market house west of the temple of Jupiter, devoted to other branches of trade. Yet in a literal sense the Forum always remained the business centre of the city.
It served, too, as the favorite promenade and lounging place, where men met to discuss matters of mutual interest, or to indulge in gossip. Here idlers loitered and plied busier men with questions regarding public affairs, makers and dealers came together to talk over and settle points of difference, and young people pursued their romantic adventures. He can best form an idea of this bustling, ceaseless, varied activity who knows what the piazza means in the life of a modern Italian city, and stops to consider how much has been taken from the life of the piazza by the cafés and similar places of resort; modern squares, moreover, are usually not provided, as were the ancient, with inviting colonnades, affording protection against both sun and rain.
The life of the Forum seemed so interesting to one of the citizens of Pompeii that he devoted to the portrayal of it a series of paintings on the walls of a room. The pictures are 55 light and sketchy, but they give a vivid representation of ancient life in a small city. First, in front of the equestrian statues near the colonnade we see dealers of every kind and description. There sits a seller of copper vessels and iron utensils (Fig. 16), so lost in thought that a friend is calling his attention to a possible purchaser who is just coming up. Next come two shoemakers, one waiting on women, another on men; then two cloth dealers. Further on a man is selling portions of warm food from a kettle; then we see a woman with fruit and vegetables, and a man selling bread. Another dealer in utensils is engaged in eager bargaining, while his son, squatting on the ground, mends a pot.
Fig. 16.—Scene in the Forum.
In the foreground, at the left, dealer in utensils; at the right, shoemaker waiting on four
ladies. Wall painting.
The scenes now change. A man sitting with a writing tablet and stylus listens closely to the words of another who stands near by; he reminds us of the scribes who, under the portico of the theatre of San Carlo, at Naples, write letters for those that have been denied the privilege of an education.
Then come men wearing tunics, engaged in some transaction, in the course of which they seem to pass judgment on the contents of bottles which they hold in their hands; their business perhaps involves the testing of wine. Beyond these, some men are taking a walk; a woman is giving alms to a beggar; and 56 two children play hide and seek around a column. The following scene is not easy to understand, but apparently has reference to some legal process; a woman leads a little girl with a small tablet before her breast into the presence of two seated men who wear the toga.
In the next scene (Fig. 17) four men are reading a notice posted on a long board, which is fastened to the pedestals of three equestrian statues. The sketchy character of the painting is especially obvious in the representations of the horses, which are nevertheless lifelike. It is also interesting to note that the heads of the men in these scenes are uncovered; in stormy weather pointed hoods (shown in a tavern scene, Fig. 234) were sometimes worn. The festoons suggest a trimming of the colonnade for some festal occasion.
The last scene is from school life. A pupil is to receive a flogging. He is mounted on the back of one of his schoolmates, while another holds him by the legs; a slave is about to lay on the lash, and the teacher stands near by with an air of composure. It would not be safe to infer from this, however, that there was a school in the Forum; the columns in this scene are different from those in the others and are further apart. Possibly a part of the small portico north of the court of the temple of Apollo was at one time let to a schoolmaster. 57
The most important religious festivals were celebrated in the Forum. Here naturally festal honors were paid to the highest of the gods—the whole area enclosed by the colonnade was the court of his temple; but we learn from an inscription, mentioned below, that celebrations were held here in honor of Apollo also, whose temple adjoined the Forum, and was at first even more closely connected with it than in later times.
Vitruvius informs us that in Greek towns the market place, agora, was laid out in the form of a square (a statement which is not confirmed by modern excavations), but that in the cities of Italy, on account of the gladiatorial combats, the Forum should have an oblong shape, the breadth being two thirds of the length. The purpose in giving a lengthened form to the Forum, as also to the Amphitheatre, was no doubt to secure, at the middle of the sides, a greater number of good seats, from which a spectacle could be witnessed. In the Pompeian Forum, as may be seen from the dimensions given at the beginning of this chapter, the breadth is less than one third of the length. However, there can be little doubt that gladiatorial exhibitions were frequently held there before the building of the Amphitheatre, which dates from the earlier years of the Roman colony. After this time the Forum was still used for games and contests of a less dangerous character. The epitaph of a certain A. Clodius Flaccus, which is now lost, but was copied by a scholar in the seventeenth century, tells us at length how in his first, and again in his second, duumvirate (he was duumvir for the third time in 3 B.C.), in connection with the festival of Apollo, he not only gave gladiatorial exhibitions in the Amphitheatre, but also provided bullfights and other spectacles, as well as musical entertainments and pantomimes, in the Forum.
Speaking of the Forum as a place for gladiatorial combats, Vitruvius adds that the spaces between the columns should be wide,—that the view of spectators might be as little as possible impeded,—and that the upper story of the colonnade should be arranged with reference to the collection of an admission fee. The latter suggestion is of special interest. As we know from other sources, at public games certain places were 58 reserved for the officials and for the friends of him who gave the spectacle; others were free to the public, while for still others an admission fee was charged. If the exhibition was held in a market place, with lower and upper colonnades, the former would be open to the people; the latter in part reserved, in part accessible on payment of the price of admission.
It would be interesting to know whether on such occasions at Pompeii the gates of the Forum itself were shut, so that admission even to the free space could be regulated; perhaps they were in earlier times when, as at Rome, slaves were forbidden to witness the games. However, Cicero speaks of this time-honored regulation as in his day already a thing of the past; and so in Roman Pompeii the gates of the Forum may have remained open even on the days of the games. Their most important use was probably in connection with the voting.
The Forum had a part also in spectacles which were not presented there. We are safe in assuming that, at least in the earlier times, whenever a gladiatorial combat was given in the Amphitheatre, or a play in the Theatre, the city officials, including especially the official providing the entertainment, formed in procession with their retinue and proceeded in festal attire to the place of amusement. These processions could scarcely have formed anywhere else than in the Forum, and thence they must have started out.
The fact that the Forum was not accessible for vehicles suggests a significant point of difference between the festal processions of the colony and those of the capital. In the latter, vehicles had a prominent place. Thus at Rome the official who gave the games in the Circus entered the edifice with his retinue in chariots in the imposing circus parade, pompa circensis, and a similar usage prevailed in the case of other processions; priests, too, and priestesses were on many occasions allowed to ride. But even in Rome carriages were always considered a matter of luxury; and the municipal regulations promulgated by Caesar prohibited the use of vehicles, except those required for religious and civic processions, on the streets of the city from sunrise till the tenth hour, that is, till four o'clock in the afternoon. 59
In Pompeii, and without doubt also in other cities of Italy and the provinces, the closing of the Forum to vehicles made it necessary that religious and other processions should proceed on foot. We have no evidence of any exception to this rule. We ought perhaps to recognize in it one of those devices by means of which Rome maintained a position of dignified superiority over the provincial towns; to her processions was allowed an element of display which to theirs was denied. It was not permitted to name the two chief executive officers of a municipality consuls, though their functions, within limits, corresponded with those of the consuls at Rome; nor could the city council be called a senate, though the Roman writers did not hesitate to apply this term to corresponding bodies in states and cities outside of Rome's jurisdiction. For like reasons, it would seem that on public occasions officials and priests of a provincial town were not permitted, as were those in Rome, to ride. Was this humiliating restriction laid upon the Pompeians when the Roman colony came, or previously when the city was in name the ally of Rome, but in reality already subject? The evidence is almost conclusive for the latter alternative; for the colonnade of Popidius, which as we have seen was erected in the period of autonomy, left no entrance for vehicles, though in other ways it added greatly to the attractiveness and convenience of the Forum as a place for civic and religious celebrations.
No record of events has survived to help us form a picture of the Forum as the seat of deliberative and judicial functions, the centre of the city's political life; yet stirring scenes present themselves to the imagination as we recall the critical periods in the history of the city.
In the Forum, about 400 B.C., the valiant Samnite mountaineers, having taken the city by storm, assembled and established their civic organization; here, in later times, without doubt amid conflicts similar to those at Rome, the polity was put to the test and underwent transformation. Fierce enough the strifes may have been during the Samnite wars, and again in the time of Hannibal,—after the battle of Cannae,—when the aristocrats who favored Rome contended with the national party for the mastery. Here, on the platform in front of the 60 temple of Jupiter, the leaders of the national party stood in 90 B.C., and with flaming words roused the people to revolt, to join the movement which, starting in Asculum, had spread like wildfire over Southern Italy.
Then ten years of bloody war,—siege, campaigns, surrender,—and again the scene changes. Roman soldiers stand thick in serried ranks upon the area. They are the veterans of Sulla. An officer bearing a civil commission, the nephew of the Dictator, appears before them. Standing in front of the temple of Jupiter, he makes a proclamation regarding the founding and administration of the colony. The citizens crowd back timidly into the colonnade. Many of the best of the Pompeians have fallen in battle; of the rest, a part at least will be dispossessed of house and home to make room for the intruders, whose arrogance they will be compelled submissively to endure.
This is the last tragic act in the Pompeian Forum. After this time, there will be disputes regarding the rights of the old residents and the colonists, public questions of many kinds will call for settlement; the elections will come each year, and the ardent southern temperament may assert itself in violent scenes. Yet all these disturbances will be only as the ripples on the surface; the depths will remain undisturbed. The life of Pompeii has become an integral part of the life of the Roman world. 61
The Forum was to the ancient city what the atrium was to the early Italic house; it was used for every purpose for which a special place was not provided elsewhere. And as sleeping rooms, dining rooms, and storerooms were grouped about the atrium and opened into it, so around the Forum lay the edifices which served the requirements of the public life,—the most important temples, the municipal buildings, and market houses or exchanges for different branches of business.
Three temples adjoined the Forum at Pompeii. In addition, there was a sanctuary of the City Lares; and the temples of Venus Pompeiana and Fortuna Augusta were but a short distance away. These religious edifices are representative of the different periods in the history of the city.
In very early times the Oscans of Pompeii received from the Greeks who had settled on the coast the cult of Apollo, and built for the Hellenic god a large, fine temple (C, in Plan II) adjoining the Forum on the west side.
Several centuries later, the divinities of the Capitol—Jupiter, Juno, and Minerva—were enthroned in the temple that on the north side towered above the area (H).
On the east or right side followed, in Roman times, the edifices erected for the worship of the emperors. The oldest is the unroofed building, with a broad, open front, dedicated to the Lares of the City and to the Genius of Augustus (L). Further north, in the first block at the right beyond the Forum, is the temple of Fortuna Augusta, the goddess who guarded the fortunes of Augustus, erected in 3 B.C. A chapel for the worship of Claudius and his family was placed in the Macellum 62 (K, 5); this seems to have sufficed also for the worship of Nero. After Nero's death and after the brief Civil War, a temple (M) was built close to the shrine of the Lares in honor of Vespasian, the restorer of peace, the new Augustus. This was the last temple erected in Pompeii; it was not entirely finished at the time of the eruption.
Three buildings at the south end of the Forum were used for city offices (P-R). They were much alike, each containing a single large hall. They were seemingly built in the early years of the Empire, and repaired after the earthquake of the year 63. There is also a structure at the southeast corner, south of Abbondanza Street, which we may identify as the voting place, the Comitium (O). At the northwest corner was apparently the city treasury, built in the latest years of Pompeii, perhaps on the site of an earlier structure of the same kind (F).
At a comparatively early period the area was found to be too small for the increasing volume of business; and the demand for roofed space made itself felt. In the second century B.C. the large and splendid Basilica (B), serving the double purpose of a court and an exchange, was built at the southwest corner.
Diagonally opposite, near the temple of Jupiter, a provision market, the Macellum (K), was constructed; this also at an early date. It was entirely rebuilt in the time of the Empire, perhaps in the reign of Claudius. Previous to this rebuilding, the priestess Eumachia had erected an exchange for the fullers on the same side of the Forum, further south (N).
On the west side, from pre-Roman times, stood a small colonnade in two stories, with its rear against the rear of the colonnade on the north side of the court of the temple of Apollo; only the first story, of the Doric order, has been preserved. Probably this structure and the small open space in front were at first used as a market; later, in the imperial period, shops (D') were built upon the open space, and the colonnade was made over into closed rooms, the purpose of which, except in the case of one, is unknown (6, 7, 7). In the last years of the city, a large market building (D) was erected 63 between this small place and the Forum. It was connected both with the city treasury and with a latrina.
Fig. 18.—Plan of the
temple of Jupiter.
View larger image
The temple of Jupiter dominates the Forum, and more than any other structure gives it character. As we have seen, its orientation accords with that of the colonnade of Popidius. It probably dates from the pre-Roman period, the columns being of tufa covered with white stucco. The earthquake of the year 63 left the temple in ruins, and at the time of the eruption the work of rebuilding had not yet commenced. In the meantime, it was used as a workshop for stonecutters. The journal of the excavations reports the finding here of the torso of a colossal statue out of which a smaller statue was being carved. A place for the worship of the divinities of the temple must temporarily have been provided elsewhere.
The temple stands on a podium 10 Roman feet high, and including the steps, 125 Roman feet long (Fig. 18). Very nearly a half of the whole length is given to the cella; of the other half, a little more than two thirds is occupied by the portico, leaving about a third (20 Roman feet) for the steps. The pediment was sustained by six Corinthian columns about 28 feet high. This arrangement—a deep portico in front of the cella—is Etruscan, though the canon of Vitruvius, that in Etruscan temples the depth of the portico should equal that of the cella, is violated. The high podium also, with steps in front, is characteristic of Etruscan, or at least of early Italic religious architecture. On the other hand, the architectural forms of the superstructure are Greek, and these in turn have had their influence upon the plan; the intercolumniations are not wide, as in the Tuscan style with its wooden architrave, but narrower, as in the Greek orders. Vitruvius speaks of temples such as this, in which Greek and Etruscan elements are united, at the end of his directions for the building of temples; they are a development of Roman architecture. 64
The arrangement of the steps is peculiar. Above is a series of long steps reaching nearly across the front (Fig. 19); below are two narrow flights near the sides, and between them is the projecting front of the podium, used as a tribune, which has already been mentioned (p. 48).
That an altar stood at the middle of this platform is proved by a relief with a representation of the north side of the Forum, found on the base of a chapel of the Lares in the house of the wealthy Pompeian, L. Caecilius Jucundus. At the left we see the arch near the façade and a strip of wall connecting it with the temple; next a corner of the platform with an equestrian statue; then a flight of steps, and the front of the platform with an altar at the middle; finally the other flight of steps and another equestrian statue in a position corresponding with that of the first. The columns shown in the relief do not agree in number or style with those of the façade of the temple, but such inaccuracies are common in ancient representations of buildings, and there can be no doubt that the temple of Jupiter is represented; the relief has, in fact, been used in making our restoration of the arch at the left (Fig. 13).
Both the portico and the cella no doubt had a coffered ceiling. Just in front of the doorway, which was fifteen Roman feet wide, are the large stones with holes for the pivots on which the massive double doors swung (indicated in Fig. 18); the 65 doors here were not placed in the doorway, but in front of it, and were besides somewhat larger, so that the effect was rendered more imposing when they were shut.
The ornamentation of the cella was especially rich. A row of Ionic columns, about fifteen feet high, stood in front of each of the longer sides; the entablature above them probably served as a base for a similar row of Corinthian columns, the entablature of which in turn supported the ceiling. On the intermediate entablature, between the columns of the upper series, statues and votive offerings were doubtless placed. The floor about the sides was covered with white mosaic, of which scanty remains have been found; the marble pavement of the centre (inside of the dotted line, Fig. 18) has wholly disappeared.
A section of the wall decoration, in the second Pompeian style, is shown in Fig. 20. We notice here the characteristic elements—imitation of marble veneering, with large red central panels and a cornice above. The base with its simple dividing lines upon a black ground was painted over in the third style; originally it must have been more suggestive of real construction, with a narrow painted border along the upper edge.
Against the rear wall of the cella stands a large pedestal, three times as long as it is broad. It was originally divided by four pilasters—two at the corners and two on the front between them—into three parts. Later the pilasters and the entablature over them were removed, and the whole was covered with marble veneering. Inside were three small rooms, entered by separate doors from the cella. The pedestal was thus built for three images; three divinities were worshipped here, and in the little chambers underneath were 66 perhaps kept the trappings with which on festal occasions the images were decked.
A head of Jupiter, of which we shall speak later, was found in the cella, as was also an inscription of the year 37 A.D., containing a dedication to Jupiter Optimus Maximus, the ruling deity of the Capitol at Rome. It is thus proved beyond question that the Capitoline Jupiter was worshipped here; and it will not be difficult to ascertain what other divinities shared with him the honors of the temple.
As the Roman colonies strove in all things to be Rome in miniature, each thought it necessary to have a Capitolium—a temple for the worship of the gods of the Roman Capitol, Jupiter, Juno, and Minerva; and this naturally became the most important temple in the city. That the worship of the three divinities was established at Pompeii is evident from the discovery of three images representing them, in the little temple conjecturally assigned to Zeus Milichius. These are poor images of terra cotta, and the temple itself was altogether unworthy to be a place of worship for the great gods that shaped the destinies of Rome. We are warranted in the conclusion that the temple of Zeus Milichius was used temporarily for the worship of the three divinities of the large temple till the latter could be rebuilt; and that Juno and Minerva stood on the great pedestal beside the king of the gods.
It seems strange that the Pompeians should have erected a temple to the gods of the Capitol in the pre-Roman period. It must be remembered, however, that the worship of the three divinities was by no means limited to Rome and her colonies. The Etruscans, as Servius informs us in his commentary on Virgil, thought that a city was not properly founded unless it contained sanctuaries of Jupiter, Juno, and Minerva. Vitruvius, also, in his directions for laying out a city, makes the general statement that the most prominent site should be set aside for the temples of the same divinities. If we consider further that the opposition of the Italians to Rome found expression only in the Social War, and that previously they had looked upon the attainment of Roman citizenship as the highest object of ambition, the gradual adoption of Roman customs at Pompeii and 67 the erection of a temple to the Capitoline divinities are seen to be less remarkable. The building of such a temple was a natural expression of political aspirations; it was in complete harmony with the use of Latin in the inscription of Popidius (p. 50).
There is, however, another possibility that may be stated. The remodelling of the Forum was certainly commenced in the pre-Roman period; but it is not impossible that the work was interrupted by the breaking out of the Social War and that the colonists completed it, dedicating the temple to the gods of the Capitol. The use of several brick-shaped blocks of stone,—such blocks are not found in other buildings of the pre-Roman time,—the lack of any trace of the wall decoration of the first style, the form of the egg-and-dart moulding on the capitals of the Ionic columns in the cella, and the correspondence of certain dimensions with the Roman scale of measurements may be alleged in favor of this hypothesis. The evidence at present does not warrant a positive decision against it.
The fact that we have here a Capitolium may explain the special prominence of the altar in front, which might just as well have been placed in the area of the Forum at the foot of the steps. In Rome the Capitol lay upon a summit of a hill; perhaps the aim in this case was to place not only the temple but also the altar upon an elevation so that here, as there, the priest should go up to offer sacrifice.
The podium of the temple contains vaulted rooms which can be entered from the Forum through a narrow door on the east side. Their use is unknown. We are reminded of the temple of Saturn in the Forum at Rome, the podium of which served as a treasury, aerarium. The vaults, favissae, may have been used as a place of safe keeping for treasure, or for furniture of the temple, or for discarded votive offerings.
Fig. 21.—Bust of Zeus from Otricoli, now in the Vatican Museum. After Tafel 130 of the Brunn-Bruckmann Denkmaeler.
The beautiful head of Jupiter found in the cella deserves more than a passing mention. In order to appreciate its character we may view it in contrast with the Otricoli Zeus, with which it is closely related. In both heads we feel the lack of that majestic simplicity, that ineffable and godlike calm, which rested 68 on the features of the Zeus of Phidias. Here man has much more obviously made God in his own image; the face shows less of the ideal, with more of human energy and passion.
It is not for us to decide whether the Otricoli mask is from the school of Praxiteles, or shows more of the influence of Lysippus; it is sufficient here to notice that the type was developed in the second half of the fourth century B.C., the century after Phidias. The similarity between these two examples of the type is apparent at first glance. The shape of the two heads is, in general, the same, and there is the same profusion of hair and beard, symbolic of power; but the differences in detail are striking.
In the Otricoli Zeus the peculiar shape of the forehead—prominent in the middle up to the roots of the hair and retreating at the sides—seems to suggest, not so much the power of a world-encompassing and lofty intellect, as absorption in great, unfathomable thoughts. In the lines of the massive face irresistible force of will is revealed, and the capability of fierce passion lurks beneath the projecting lower part of the forehead and uneven eyebrows, threatening like a thundercloud. But for the moment all is deep repose, and the lids seem partly closed over eyes that look downwards, as if not concerned with seeing. The sculptor has conceived of Zeus as the occult 69 power of nature, alike the origin and law of all things, or as the personification of the heavens veiled by impenetrable mists.
Great force of will is seen also in the face of the Pompeian god; but it is will dominated by alert and all-embracing mind. The forehead expands in a broad arch; the eyes, wide open, look out with full vision under sharply cut brows. Here we have no secret brooding; a powerful yet clearly defined and comprehensible personality is stamped upon features carved in bold, free lines. And this personality is not lost in mystical self-contemplation; the god is following with closest attention the course of events in some far distant place, affairs that in the next moment may require his intervention; excitement and expectancy are seen in the raised upper lip. The ideal of this artist was the wise and powerful king, whose watchful and all-protecting eye sees to the furthest limits of his kingdom. Surely this variation of the Otricoli type must have been conceived in a monarchical period, the period when the Greek world was ruled by the successors of Alexander.
The Pompeian god is more a sovereign; the Zeus of Otricoli is more poetic, more divine. 70
The Basilica, at the southwest corner of the Forum, was the most magnificent and architecturally the most interesting building at Pompeii. Its construction and decoration point to the pre-Roman time; and there is also an inscription scratched on the stucco of the wall, dating from almost the beginning of the Roman colony: C. Pumidius Dipilus heic fuit a. d. v. nonas Octobreis M. Lepid. Q. Catul. cos.,—'C. Pumidius Dipilus was here on the fifth day before the nones of October in the consulship of Marcus Lepidus and Quintus Catulus,' that is October 3, 78 B.C.
The purpose of the building is clearly indicated not only by its plan and the details of its arrangement but also by the word Bassilica scratched a number of times by idlers on the stucco of the outer wall at the right of the south entrance. This sure identification lends to the edifice a special significance; it is without doubt the oldest example that we have of an important architectural type whose origin is lost in obscurity, but of which the derivative forms may still be recognized in the architecture of to-day. What the temple developed by the Greeks was to pagan antiquity, that the basilica became to the Christian Church—a type dominating a system of religious architecture. Pagan worship was individual,—a narrow chamber sufficed for the image of the god and the requirements of religious service; but Christian worship was social, and its functions demanded a larger room, in which a congregation could be assembled. The religious architecture of the Church therefore broke with the religious architecture of pagan antiquity, and turned for its model to the basilica.
Our knowledge of the history of the basilica begins with the erection of the Basilica Porcia in Rome by Cato the Elder, in 71 184 B.C.; other basilicas followed, and in Caesar's day a number stood about the Forum. Regarding its development prior to the time of Cato only conjectures can be offered. The name basilica (basilike stoa, 'the royal hall') points to a Greek origin; we should naturally look for the prototype of the Roman as well as the Pompeian structure in the capitals of the Alexandrian period and in the Greek colonies of Italy. But no ruin, no reference in literature comes to our aid. The supposition that the King's Hall (basileios stoa) in Athens, the official residence of the King Archon, was the prototype of all basilicas, has little to support it; our information in regard to the form of this building is quite inadequate, and the name alone warrants no positive conclusion. It is more probable that both the name and the architectural type came from the 'royal hall' of one of the successors of Alexander.
A basilica was a spacious hall which served as an extension of a market place, and was itself in a certain sense a covered market. It was not limited to a specific purpose; in general, whatever took place on the market square might take place in the basilica, the roof of which afforded protection against the weather. It was chiefly devoted, however, to business transactions and to the administration of justice. The form is known partly from the remains of the basilicas in Rome—Basilica Julia, Basilica Ulpia, the Basilica of Constantine—and in Africa, but more fully from the treatise of Vitruvius and the description of a basilica which he himself erected at Fano.
Fig. 23.—Plan of the Basilica.
View larger image
According to these sources the plan of a typical basilica is essentially that of the building before us (Fig. 23). An oblong space is divided by columns into a broad central hall and a corridor which runs around the four sides. The height of the columns, in the typical basilica, is equal to the width of the corridor, which is covered by a flat roof; the inner edge of this roof is carried by the entablature above the columns. The main room is 72 higher than the corridor. Above the entablature is a low wall on which there is a second row of columns; these carry the main roof and form a clerestory, the light being admitted through the intercolumniations.
The main hall and the corridor were devoted to trade; the dealers perhaps occupied the former, while in the latter the throng of purchasers and idlers moved freely about. The place set aside for the administration of justice, the tribunal, was ordinarily an apse projecting from the rear end. In our Basilica, however,—and in some others as well,—it was a small oblong elevated room back of the central hall, toward which it opened in its whole length.
This ideal plan would answer very well for that of the early Christian basilicas, excepting in one respect; instead of a corridor on all four sides they have only aisles parallel with the nave, an arrangement which had already been adopted in some basilicas designed for markets. The Christian basilicas would give us a still truer idea of the arrangement and lighting of the pagan prototype if in most cases a part of the numerous windows had not been walled up, thus producing a dimness in keeping with a religious but not a secular edifice.
In pagan structures the ideal plan was by no means strictly followed. Vitruvius himself at Fano, and the architects of other basilicas the remains of which have been discovered, did not hesitate to depart from it. So the Basilica at Pompeii, as we shall see, presents a modification of the general plan in an important particular, the admission of light; and this deviation was carried out with finer artistic feeling than was displayed by Vitruvius in his building.
Our Basilica is undoubtedly of later date than the Basilica Porcia, but the Pompeians, who at the time when it was built were pupils of the Greeks in matters of art, found their model not in Rome but in a Greek city, perhaps Naples.
Five entrances, separated by tufa pillars, lead from the colonnade of the Forum into the east end of the basilica. First comes a narrow entrance court (a), extending across the entire building and open to the sky. On the walls, as also on the outside of the building, are remains of a simple stucco decoration; 73 below, a yellow base with a projecting red border along the upper edge; above, a plain white surface. At the left outside the entrance court is a cistern for rain water collected from the roof; the stairway close by (shown on the plan) had nothing to do with the Basilica, but was connected with the upper gallery of the colonnade about the Forum.
Mounting four steps of basalt we pass from the narrow court into the building. The five entrances here are separated by four columns. Those next to the two sides on the right and on the left were closed by a wall in which was a wide doorway; the three at the middle were left as open intercolumniations. The enclosed space before us measures 180⅓ English feet (200 Oscan feet) in length, 78¾ feet in breadth. Twenty-eight massive brick columns, 4 Oscan feet in diameter, separate the great central hall from the broad corridor running about it; only the lower part of the columns, built of small bricks evidently made specially for this purpose, is preserved (Fig. 24). Attached half-columns, with a diameter a little more than three fourths that of the others, project from the walls; the wall decoration, which imitates in stucco a veneering of colored marbles, is of the first style (p. 41). The columns of the entrance and 74 those at the rear have the same diameter as the half-columns; part of the Ionic capitals belonging to them have been found, but the capitals of the large columns have wholly disappeared.
There are only scanty remains of the floor, which consisted of bits of brick and tile mixed with fine mortar and pounded down (opus Signinum); it extended in a single level over the whole enclosed space, and from this level our estimates of height are reckoned. On three sides of the main hall near the base of the columns under the floor is a square water channel, indicated on our plan; eight rectangular basins lie along its course, but the purpose of it is not clear. The tribunal projects from the rear wall, its floor being six Oscan feet above that of the rest of the building.
The large columns about the main hall, with a diameter of more than 3½ feet, must have been at least 32 or 33 feet high; the attached half-columns with the columns at the entrance and at the rear, including the Ionic capitals, were probably not more than 20 feet high. But assuming that the roof of the corridor was flat, the walls must have been as high as the entablature of the large columns, and so must have extended above the entablature of the half-columns; considerable portions of this upper division of the walls remain.
Along the walls on the ground are to be seen a number of capitals, fragments of shafts and bases belonging to a series of smaller columns with a diameter of 1.74 feet, all found in the course of the excavations. They are of tufa, coated with white stucco; they can belong only here, and by the study of their forms—columns, half-columns, and peculiarly shaped three-quarter-columns—the upper division of the walls can be restored with some degree of certainty. Not to go into technical details, in the upper part of the side walls a section of wall containing a window alternated with a short series of columns in which the columns, for the sake of greater solidity, were set twice as close as the half-columns in the lower division of the wall, the intercolumniations being left entirely open (Fig. 25); over the entrances at the front the wall was continuous but was 75 divided into sections by half-columns corresponding with the columns below, a window being placed between every two half-columns in order to conceal the difference in width between the sections of wall at the front and those at the sides. The arrangement was similar at the rear, on either side of the tribunal, as may be seen from the section (Fig. 27).
With this restoration of the outer walls completed we are able to form a clear idea of the appearance of the main hall. Whether or not the rafters could be seen from below is uncertain, but the probability is that, as assumed in our restoration (Fig. 26), they were hidden by a coffered ceiling. The simple and beautiful interior abounded in fine spatial effects. The corridor and main room were almost as high as the main room was wide, that is between 35 and 40 feet. The light streaming in through the openings in the upper portion of the walls was evenly distributed throughout the hall; we may assume that when the sun became too hot on the south side it could be shut out by curtains.
In our Basilica, then, we notice a wide divergence from the ideal or normal plan. Instead of a clerestory above the main hall a proportionally greater height is given to the corridor. The normal height of a basilica corridor is represented by the 76 lower division of the walls with the attached half-columns and their entablature; this, however, is here treated simply as a lower member, and upon it, rather than upon the entablature of the columns about the main hall, was placed an upper division of wall admitting light and air through intercolumniations and windows.
The tribunal at the rear is the most prominent and architecturally the most effective portion of the building. The base is treated in a bold, simple manner; upon it, at the front, stands a row of columns the lower portions of which show traces of latticework. The decoration of the walls, like that of the rest of the interior, imitates a veneering of colored marbles. The shape and comparatively narrow dimensions of the elevated room indicate that we have here a tribunal in the strict sense, a raised platform for the judge and his assistants; in the basilicas provided with apses the latter were large enough to make room both for the judicial body and for the litigants. Here the litigants stood on the floor in front of the tribunal, and when court was in session the general public must have been excluded from this part of the corridor. The arrangement in this respect 77 was far from convenient, but seemingly convenience was sacrificed to aesthetic considerations; the builders wished to treat the projecting front of the tribunal as an ornament to the building.
Under the tribunal was a vaulted chamber half below the level of the ground; two round holes, indicated on the plan, opened into it from above. It could hardly have been designed as a place for the confinement of prisoners; escape would have been easy by means of two windows in the rear, especially when help was rendered from the outside. More likely it was used, in connection with the business of the court, as a storeroom, in which writing materials and the like, or even documents, might be kept; they could easily have been passed up through the holes when needed. The second story of the tribunal was not as completely open to the main hall as the first. Its front, the remains of which have for the most part been recovered, was divided off by half-columns corresponding in number and arrangement with the columns of the first story, but each half-column was flanked by narrow pilasters, while a parapet of moderate height occupied the intervening spaces. It was built apparently with a view to architectural effect rather than practical use (Fig. 27).
At the right and the left of the tribunal are places for stairways. Each of these contains a landing on the same level with the floor of the tribunal, from which it was cut off by a door; the steps connecting with these landings, being of wood, have disappeared. In both stair rooms, however, flights of stone steps lead down to the vaulted chamber below, so that this could not have been accessible if there were wooden steps on both sides connecting the tribunal with the floor of the Basilica. Probably on one side the wooden steps led from the tribunal 78 down to the floor, but on the other ascended from the corresponding landing to the second story, thus leaving the stairway to the lower room unobstructed on that side. At some later time the door at the left between the tribunal and the landing was walled up, perhaps because the gallery was no longer used; if still in use it could to all appearances have been reached only by a ladder.
The two open rooms at the rear on either side of the tribunal agree in their decoration with the entrance court except that the base with its border is higher, and the white surface above is moulded in stucco so as to give the appearance of slabs of white marble. They were no higher than the first division of the wall; the windows seen in Fig. 27 above the broad entrances opened into the outer air. Perhaps they were used as waiting rooms for litigants.
Opposite the north entrance between two columns stood a curb like those over the mouths of cisterns; only the foundation stone with a circular opening is preserved. The remains of a lead pipe, which brought the water to it, show that it must have been connected with an aqueduct. At the further end of the main hall was an equestrian statue of which no trace has been found.
The arrangement of the roof is a problem of much difficulty. Without wearying the reader by presenting various possibilities, it will be sufficient for our purposes to suggest the explanation which, on the whole, has the most in its favor. As assumed in our restoration, the roof of the main hall was carried by the entablature of the twenty-eight large columns. Thus in general the arrangement corresponded fairly well with that of other basilicas except that, owing to the lack of a clerestory, the roof of the main hall was not much if any higher than that of the corridor. From the flat roof of the corridor, at least on the south side, the rain water flowed into the cistern near the front part of the building.
The five entrances opening from the Forum into the narrow court could be closed by latticed doors. Similar doors hung also on the wooden jambs of the north and south entrances. With such doors a complete safeguarding could not have 79 been contemplated. Tradespeople using the Basilica must either have removed their wares at the close of business hours or have made the stalls sufficiently secure for protection. We can hardly doubt that ordinarily a night watchman was on duty about the building. 80
In some respects the study of the large temple on the west side of the Forum is especially satisfactory. The building had been completely restored after the earthquake of 63, and was in good order at the time of its destruction. Though ancient excavators removed many objects of value, including the statue of the divinity of the temple, much was left undisturbed, as the interesting series of statues in the court; in addition, a number of inscriptions have been recovered. On the whole, more complete information is at hand regarding this sanctuary than in reference to any other in Pompeii.
The identification of this as the temple of Apollo is certain. The accompanying illustration shows a corner of the floor laid over the greater part of the cella (3 on the plan); the parts along the inner walls were of white mosaic. This floor was composed of small, lozenge-shaped pieces of green and white marble and slate; of the two narrow stripes between the lozenge pattern and the bright mosaic fret along the border one is of slate, the other of red marble. In the slate stripe was an inscription. The letters were outlined by means of small holes filled with metal, every seven holes forming a vertical line, every four a horizontal. The inscription, which was in Oscan, stated that the quaestor O[ppius] Camp[anius], by order of the council and with money belonging to Apollo, had caused something 81 to be made;[3] what this was cannot be determined, as the important word is missing, but apparently it was the floor. In the cella, moreover, stands a block of tufa, having the shape of half an egg; this is the Omphalos, the familiar symbol of Apollo. In the court on the first pilaster at the right as you enter a tripod is painted, too large for mere decoration, and explicable only as a symbol of the god. Lastly, in the design of the stucco ornamentation with which the entablature of the peristyle was adorned after the earthquake, the principal figures are griffins. The griffin was sacred to Apollo, and though it was often used as a purely decorative theme, in this case a reference to the divinity of the temple is unmistakable (Fig. 31).
Fig. 29.—Plan of the
temple of Apollo.
View larger image
As previously stated (p. 49), the deviation of the axis of this building from that of the Forum is undoubtedly due to the fact that it followed the direction of a street which bordered it on the east side before the colonnade of Popidius was built; this is therefore an evidence of the antiquity of the temple. The style of architecture, however, is in no essential particular different from that of the colonnade and of other buildings of the Tufa Period, and gives no indication of great age. The most probable explanation is that the temple was rebuilt in the Tufa Period on the site of an earlier structure, the orientation of which was preserved. The difference in direction is concealed by the increasing thickness, from south to north, of the pillars between the Forum and the court of the temple. The spaces between the pillars were originally left open. Later, at what time it is impossible to determine, they were all walled up except the three opposite the side of the temple; since the temple was excavated these also have been closed. In comparison with the entrances from the Forum, at first ten in number, the 82 one on the south side, opening on the street leading from the Porta Marina, must have been considered unimportant. Otherwise pains would have been taken to give to the colonnade on that side an even number of columns, so that the door of the temple should face an intercolumniation; as it is the number is uneven and the entrance to the court had to be put a little to one side that it might not open upon a column.
The court is of oblong shape. The continuous colonnade about the sides, the peristyle, was originally in two stories. At the rear of the peristyle on the north side stood the small colonnade of the Doric order already mentioned (p. 62); one of the rooms into which in later times this was divided (6) was connected with the court of the temple, and was probably occupied by the sacristan (aedituus).
The temple stood upon a high podium, in front of which is a broad flight of steps. The small cella was evidently intended for but one statue. The columns at the sides of the deep portico, which in other respects follows the Etruscan plan (p. 63), are continued in a colonnade which is carried completely around the cella.
In Plate II and Fig. 30 we give a view of the ruins as they are to-day; in Fig. 32 a view of the temple as it appeared before the earthquake of 63. The height and diameter of the Corinthian columns seen in the restoration can be calculated with approximate correctness; of the entablature and parts above nothing has been found except a large waterspout of terra cotta in the form of a lion's head.
The colonnade about the court was built of tufa, and coated with white stucco. It presents an odd mixture of styles, of which other examples also are found at Pompeii; a Doric entablature with triglyphs was placed upon Ionic columns having the four-sided capital known as Roman Ionic. Here, as in the earlier colonnade about the Forum, the stone blocks of the entablature were set upon beams; and in the blocks now in place we may see the sockets made to receive the ends of the joists of the second story floor. Evidently with the purpose of supporting this second story, which was probably of the Corinthian order, the Ionic columns below were made relatively 83 short. No remains of an upper gallery, however, have been found; and it is quite possible that when the colonnade was restored, after the earthquake, the second story was omitted. The upper floor could be reached from the second story of the small colonnade north of the court, which was accessible by means of a stairway leading from the Forum.
Fig. 30.—View of the temple of Apollo, looking toward Vesuvius. At the left of the steps, the column on which was the sundial; in front of the steps, the altar.
When the restoration of the temple and its colonnade was undertaken, the feeling for the pure and simple forms of the Greek architecture was no longer present; the prevailing taste demanded gay and fantastic designs, with the use of brilliant colors. The Pompeians improved the opportunity afforded by the rebuilding to make the temple and its colonnade conform to the taste of the times.
First the projecting portions of the Ionic and Corinthian capitals were cut off; then shaft and capital alike were covered with a thick layer of stucco. New capitals were moulded in the stucco, of a shape in general resembling the Corinthian, and were painted in red, blue, and yellow; the lower part of 84 the shaft, unfluted, was also painted yellow. The entablature, at least in the case of the colonnade, was in like manner covered with stucco and ornamented with reliefs in the same colors. All this gaudy stucco has now fallen off; and our illustration (Fig. 31) is taken from Mazois, who made the drawing soon after the court was excavated. The later capitals and stucco ornamentation of the temple itself had wholly disappeared before the excavations were made.
Fig. 31.—Section of the entablature of the temple of Apollo, showing the original form and the restoration after the earthquake.
The wall decoration of both the temple and the colonnade was originally in the first style; a remnant of it may still be seen in the cella. After 63 it was modernized. The walls of the temple both within and without were done over in stucco, so as to resemble ashlar work of white marble; apparently it was the intention to give the appearance of real marble. The walls of the colonnade were painted in the latest Pompeian style, in bright colors, on a white ground. The decorative designs, to judge from the remains and from sketches, were not of special interest. There was a series of pictures representing scenes from the Trojan War,—the quarrel between Achilles and Agamemnon, the embassy of the Greeks to Achilles, the battle between Achilles and Hector (the subject of this, however, is doubtful), the dragging of Hector's body about the walls of 85 Troy, Priam making entreaty for the body of Hector, and the rape of the Palladium,—but they have long since perished and are known only from unsatisfactory drawings.
Long before this modernizing of the temple the west side of the court had undergone a complete transformation. The peculiar bend in the street at the northwest corner (shown in Plan II), the diagonal line with which the small colonnade north of the court ends, and the narrow, quite inaccessible space between the west wall of the court and the houses lying near it, cannot easily be explained as a part of an original plan, but must rather be the result of later changes. The north and south street which now ends abruptly at the northwest corner must originally have been continued through the west colonnade, the ends of which were left open; this colonnade was then a public thoroughfare, on which the windows of houses opened, and perhaps also doors.
We learn from an inscription that about the year 10 B.C. the city purchased from the residents whose property adjoined the colonnade, for the sum of 3000 sesterces (about $155), the right to build a wall in front of their windows; this explains how the narrow space between the wall on the north side of the court and the houses came to be cut off. The inscription reads: M. Holconius Rufus d[uum] v[ir] i[uri] d[icundo] tert[ium], C. Egnatius Postumus d. v. i. d. iter[um] ex d[ecurionum] d[ecreto] ius luminum opstruendorum 𐆘 ∞ ∞ ∞ redemerunt, parietemque privatum Col[oniae] Ven[eriae] Cor[neliae] usque ad tegulas faciundum coerarunt,—'Marcus Holconius Rufus, duumvir with judiciary authority for the third time, and Gaius Egnatius Postumus, duumvir with judiciary authority for the second time, in accordance with a decree of the city council purchased for 3000 sesterces the right to shut off light (from adjoining buildings) and caused to be constructed a wall belonging to the colony of Pompeii to the height of the tiles,' that is, as high as the roofs of the houses.
The wall referred to was no doubt that on the west side of the court of the temple; when it was built the ends of the colonnade on that side must have been closed, so that this ceased to be a thoroughfare. Marcus Holconius was duumvir for the 86 fourth time in the year 3-2 B.C.; as an interval of at least five years must intervene between two duumvirates, his third duumvirate must have been not far from 10 B.C.
The pedestal in the cella, on which the statue of Apollo stood, still remains, but no trace of the statue itself has been found.
Near the foot of the steps in front is a large altar of travertine, having the same inscription on both sides: M. Porcius M. f., L. Sextilius L. f., Cn. Cornelius Cn. f., A. Cornelius A. f. IIII vir[i] d[e] d[ecurionum] s[ententia] f[aciundum] locar[unt],—'Marcus Porcius the son of Marcus, Lucius Sextilius the son of Lucius, Gnaeus Cornelius the son of Gnaeus, and Aulus Cornelius the son of Aulus, the Board of Four, in accordance with the vote of the city council let the contract (for building this altar).' The names of the four officials who erected the altar, the two duumvirs and two aediles (for the title see p. 12), appear without surnames; this points to a relatively early time, at the latest the age of Augustus.
At the left of the steps is an Ionic column with the inscription: L. Sepunius L. f. Sandilianus, M. Herennius A. f. Epidianus duovir[i] i[uri] d[icundo] d[e] s[ua] p[ecunia] f[aciundum] c[urarunt],—'Lucius Sepunius Sandilianus the son of Lucius, and Marcus Herennius Epidianus the son of Aulus, duumvirs with judiciary authority, caused (this) to be 87 erected at their own expense.' Old sketches, made soon after the court was excavated, represent the column with a sundial on the top. The probability that a sundial belonging to the column was actually found is increased by the fact that these same men placed one on the circular bench in the Forum Triangulare. Here, in front of the temple of the Sun-god, such a dial would certainly have been in place. At the right of the steps are some blocks of lava containing holes, in which, undoubtedly, the supports of a votive offering were once set, but the holes give no clew to the size or character of the offering.
Other divinities besides Apollo were honored in this sanctuary, which in the earlier time was evidently the most important in the city; statues and altars for their worship were placed in the court. The pedestals of the statues still remain where they were originally placed, on the step in front of the stylobate of the colonnade; the statues themselves, with one exception, have been taken to Naples. There were in all six of them, grouped in three related pairs. In front of the third column at the left of the entrance, stood Venus, at the right was a hermaphrodite—both marble figures of about one half life size. They belong to the pre-Roman period and were originally of good workmanship, but even in antiquity they had been repeatedly restored and worked over. As a work of art, the hermaphrodite is the more important.
An altar stands before the statue of Venus. In pre-Roman times this may have been the only shrine in the city at which worship was offered to Herentas; for by that name the goddess of love was known in the native speech. Venus as goddess of the Roman colony (Fig. 4), was represented in an altogether different guise, and had a special place of worship elsewhere (see pp. 124-129).
Though the statues of Venus and of the hermaphrodite here form a pair, both artistically and in respect to arrangement, the latter belongs not to the cycle of Venus but to that of Bacchus; and in order to make this the more evident, the ears of a satyr were given to the figure. We may, perhaps, infer that the god of wine also was worshipped in this sanctuary. In the sacristan's room (6 on the plan) we find a painting in which Bacchus 88 is represented as leaning upon Silenus who is playing the lyre, meanwhile allowing the panther to drink out of his cup. This seems strange enough in a temple of Apollo; still it cannot be considered conclusive evidence that Bacchus actually received worship here. Without doubt the Wine-god was honored in Pompeii, the region about which was rich in vines. He appears countless times in wall paintings, but no shrine dedicated to him has yet been found.
On the right side of the court, in front of the third column, was a statue of Apollo; on the left directly opposite stood Artemis, both life size figures in bronze. An altar stood before the statue of Artemis; the altar of Apollo was before the temple. Both statues were armed with the bow, and it is evident that they were not designed to stand facing each other, but side by side, or one behind the other; both may originally have belonged to a Niobe group. As works of art, they are not of high merit. We recognize a certain elegance and nicety of finish, but these qualities cannot compensate for superficiality in the treatment of the figure, want of expression in the faces, and lack of energy in the movement. We have no other evidence of the worship of Artemis in Pompeii.
Further on, in front of the fifth column on either side, was a marble herm. That on the right is still in place and is seen in Plate II. It is of fine workmanship, and clearly belongs to the pre-Roman period; it represents Hermes, or Mercury. The god appears as a youth standing with his mantle drawn over the back of his head; the face, with a placid, serious, mild expression, is inclined a little forward. In this form Mercury was honored as the presiding divinity of the palaestra, the god of gymnastic exercises; we shall find him in the same guise later in the court of the Stabian Baths (p. 200). How this type of Hermes came to be chosen for the place of honor in athletic courts is by no means clear; it was certainly designed originally to represent him as a god of death, the Psychopompus, conductor of souls to the Underworld. The worship of Mercury here as a god of gymnastic exercises would not be in harmony with the surroundings; we should rather believe that the Pompeians, having placed him in such close 89 relation with Apollo, god of the death-dealing shaft, and the earth goddess, Maia, associated more serious ideas with his image.
The herm on the opposite side of the court probably represented Maia. No trace of it has been found; the female herm in the Naples Museum formerly assigned to this place is now known to have been brought from Rome. In Greek mythology, the mother of Hermes was Maia, the daughter of Atlas; and this relationship, by a common confusion, was transferred to the Italian Maia, who was originally goddess of the spring, and gave her name to the month of May. The assignment of the herm opposite Mercury to Maia is based upon a number of inscriptions which establish the existence of a cult of Mercury and Maia in Pompeii. From the same source we learn that with the worship of these two that of Augustus was intimately associated; there are few better illustrations of the development of emperor worship in the Early Empire.
These inscriptions were found in different places, none of them in their original location. They are dedications once attached to votive offerings, of which one was set up each year by a college of priests, consisting of slaves and freedmen, under the general direction of the city authorities. The official title of this college at first, certainly to 14 B.C., was Ministri Mercurii Maiae, 'Servants of Mercury and Maia'; the word minister indicates a low order of priesthood. The worship of the emperor was then added, and the priests were called 'Servants of Augustus, Mercury, and Maia.' Still later, at least as early as 2 B.C., the names of the two divinities were dropped, and the priests were designated simply as 'Servants of Augustus.'
The extant inscriptions of this series come down to the year 40 A.D. As an example, we give that of 2 B.C., in which the ministri Augusti first appear: N. Veius Phylax, N. Popidius Moschus, T. Mescinius Amphio, Primus Arrunti M. s., min. Aug., ex d. d. iussu M. Holconii Rufi IV, A. Clodi Flacci III d. v. i. d., P. Caeseti Postumi, N. Tintiri Rufi d. v. v. a. s. p. p. Imp. Caesare XIII, M. Plautio Silvano cos,—'Numerius Veius Phylax, Numerius Popidius Moschus, Titus Mescinius Amphio and Primus the slave of Marcus Arruntius, Servants of Augustus (set this up), in accordance with a decree of the city council, on 90 the order of Marcus Holconius Rufus, duumvir with judiciary authority for the fourth time, Aulus Clodius Flaccus, duumvir for the third time, and of Publius Caesetius Postumus and Numerius Tintirius Rufus, duumvirs in charge of the streets, buildings, and public religious festivals (the official title of the aediles, p. 13) in the thirteenth consulship of the Emperor Caesar (Augustus), the other consul being Marcus Plautius Silvanus.'
It is not difficult to understand how the worship of Augustus came to have a place in this sanctuary. The divinities here honored stood in close relation to him. Apollo was his tutelary divinity, to whom he thought that he owed the victory at Actium, and in whose honor he built the magnificent temple on the Palatine. Venus, moreover, was revered as the ancestress of the Julian family; and finally Mercury was said to be incarnate in Augustus himself.
This last conception found expression in one of the finest of the odes of Horace, written in 28 B.C. Fearful portents, the poet says, are threatening Rome; Jupiter with flaming right hand has even struck his own temple on the Capitoline. To what god shall we turn for help—to Apollo, to Venus, or to Mars? or rather to thee, winged god, Maia's son, that even now doest walk the earth in the form of a youth, the avenger of Caesar:—
Sive mutata iuvenem figura
Ales in terris imitaris almae
Filius Maiae, patiens vocari
Caesaris ultor.
It is interesting to note that evidence of the worship of Augustus as Mercury has come to light also in Egypt. In an inscription from Denderah we find Helmîs Kaisar, 'beloved of Ptah and of Isis'; Helmîs Kaisar is apparently 'Hermes Caesar,' and in Egyptian inscriptions Augustus is elsewhere referred to as 'the beloved of Ptah and of Isis.' 91
The large building at the northwest corner of the Forum (Fig. 33, 1, 2, 3) was erected after the earthquake of the year 63. We do not know whether at the time of the eruption it had yet been roofed; the inside at least was in an unfinished state.
Fig. 33.—Plan of the buildings
at the northwest corner of the
Forum.
View larger image
This building is divided into three parts, one of which, that furthest north, at the corner, contains both lower and upper rooms. Below, at the level of the Forum, are two dark vaulted chambers, one at the rear of the other. The front chamber is dimly lighted by a slit in the ceiling and was entered from the Forum by a narrow door; there are traces of a strong iron grating in the doorway. It has been supposed, not without probability, that these were the vaults of the city treasury, the aerarium; if they had been built for prison cells, they would naturally have had separate entrances.
Above these chambers are two rooms which open not on the Forum, but on the street that runs past them on the north (1, 1). They resemble shops and would be classed as such without further question but for the fact that the level of the floor is nearly five feet above the sidewalk, so that they could have been reached only by means of steps. If the identification of the chambers below as the vaults of the city treasury is correct, these rooms must have been occupied 92 by the treasury officials, who could here transact business with the public without admitting the latter to their offices.
The middle room (2) was a public closet, with a small anteroom. As the doors to and from the anteroom were not placed opposite each other, the interior was not visible from the street. The room was not entirely finished; nevertheless, we can see the water channel running along three sides, and above it the stones on which the woodwork was to be placed; the inlet pipe was in position, as well as the outlet for carrying the water off into a sewer at the rear.
The last of the three parts of the building (3) is by far the largest. It was a high and spacious hall, with numerous entrances from the Forum. It was divided into two rooms by two short sections of wall projecting from the sides, and was evidently a market house, perhaps for vegetables and farm products.
The rooms formed by enclosing the small colonnade at the rear of the court of Apollo have already been mentioned (p. 62). At the left of the stairway leading to the second story (shown in Plan II) is a small room which opens in its entire breadth upon the Forum (11). Close by is a recess (10), also open toward the Forum, in the side of the first of the thick pillars which separate the Forum from the court of the temple.
In this recess stood the table of standard measures, mensa ponderaria (Fig. 34), which is now in the Naples Museum, unfortunately not entire; a part of it has disappeared. The part remaining consists of a large slab of limestone (a little over 8 feet long and 1.8, or 2 Oscan feet, wide), in which are nine bowl-shaped cavities with holes at the bottom through which the contents could be drawn off; this slab rested on two stone supports, and similar supports above it carried another slab, which is now lost, with three cavities. The table thus contained twelve standards of capacity for liquid and dry measure, but only ten are shown in the illustration, as two are too far back.
It is evident that the table has come down from the pre-Roman period. The names of the measures were originally written in Oscan, beside the five largest cavities, and though 93 the letters were later erased, they are still in part legible. Only one word, however, can be made out with certainty, beside the next to the smallest cavity; that is Kuiniks, plainly the same as the Greek Choinix. We naturally infer that in the pre-Roman time the Pompeians used Greek measures.
In the time of Augustus, about 20 B.C., the cavities were enlarged and made to conform to the Roman standard, but the new names were not put beside them. The inscription on the front of the larger slab has reference to these changes: 'Aulus Clodius Flaccus, the son of Aulus, and Numerius Arcaeus Arellianus Caledus, the son of Numerius, duumvirs with judiciary authority, in accordance with a decree of the city council, caused the measures to be made equal' to the Roman measures.
A similar adjustment of measures to the Roman standard is indicated by the use of the phrase metra exaequare on a table found at Minturnae. The adoption of a uniform standard was made a subject of imperial regulation by Augustus, who, by this means, sought to promote the unification of the Empire. Similar tables of measures have been found in various parts of the Roman world, as at Selinunto in Sicily, in the Greek islands, and at Bregenz on the Lake of Constance.
It is probable that an official charged with the oversight of the measures had his office in the small room next to the stairway (11). 94
The large building at the northeast corner of the Forum was a provision market, of the sort called Macellum. The name Pantheon, once applied to it, is now abandoned, and there is no longer the slightest doubt regarding its purpose, which is indicated by its general plan, the remains found in the course of the excavations, and the paintings upon the walls.
Such markets, where provisions, especially of the finer and more expensive kinds, were sold and in which a cook also might be secured, without doubt existed in the Greek cities after the time of Alexander; from the Greeks, as in the case of the basilica, the Romans took both the name and the architectural type.
Fig. 35.—Plan of the Macellum.
View larger image
The first macellum in Rome was built in 179 B.C. in connection with the enlargement of a fish market. In later times, as we learn from inscriptions, others were constructed in Rome and in various cities of Italy and the provinces.
A macellum built by Nero is shown on one of the coins of this emperor. It agrees in essential points with our building, having stalls or shops of more than one story in height, and at the middle of the court a structure with a dome-like roof. The central structure, the tholus, is mentioned by Varro as an essential part of a macellum, but its use is known to us only from the remains found at Pompeii. 95
The plan of our building is simple. A court in the shape of a rectangle, slightly longer than it is broad, is surrounded by a deep colonnade on the four sides. In the middle twelve bases, arranged so as to form a dodecagon, supported an equal number of columns on which a roof rested; underneath was a rectangular basin in the pavement, from which a covered drain led toward the southeast corner. Under this roof the fish that had been sold were scaled, the scales being thrown into the basin, where they were found in great quantity. Behind the colonnade on the south side, and opening into it, was a row of market stalls or small shops (3 on the plan). Above these were upper rooms, in front of which was a wooden gallery, but there was no stairway, and apparently the shopkeeper who wished to use his second story had to provide himself with a ladder.
Fig. 36.—View of the Macellum.
In the foreground, part of the stylobate. In the middle ground, remains of the tholus.
In the background, at the middle, walls and pedestal of the imperial chapel; at the
right, market room; at the left, banquet room.
There were shops also on the north side, but they opened upon the street bounding the Macellum on the north; a southern 96 exposure for the shop fronts seems to have been avoided on account of the damage that the heat in summer might cause to the stock. In the shops on this street—whether in those belonging to the building or those on the opposite side is not stated—the excavators found charred figs, chestnuts, plums, grapes, fruit in glass vessels, lentils, grain, loaves of bread, and cakes. A few shops behind the portico in front faced toward the Forum.
A large market room (4) opened on the colonnade at the southeast corner, the entrance being divided by two columns. Along three sides runs a counter for meat and fish, the surface of which slopes toward the middle of the room. That fish were sold on the left side is plain from the special arrangement made to carry off the water; the floor behind the counter here was raised and sloped toward the rear, where a gutter connecting with it, and passing across the room, led under the counter on the south side into the street.
In the little room or pen at the northeast corner of the colonnade (8) remains of skeletons of sheep were found. Such animals, then, were sold here alive; instead of buying the flesh of slaughtered animals, many purchasers no doubt preferred to obtain a victim which could be sacrificed as an offering to the household gods before it was used for food.
The paintings on the walls of the colonnade are among the best examples of the latest Pompeian style. Above the base are large black panels with a broad red border; between them, in the vertical spaces separating the border of one panel from that of the next, are light and fantastic architectural designs in yellow on a white ground, the parts designed to appear furthest from the eye being in green and red. In this way a rich development of architectural forms is united, in a consistent and effective decorative scheme, with large panels suitable for paintings.
Along the edges of the black panels run conventional plant designs; in the middle are paintings symmetrically arranged in a series in which a pair of floating figures alternates with a mythological scene enclosed in a painted frame. Among the mythological pictures are Ulysses before Penelope, who does not recognize him, Io guarded by Argus, and Medea plotting the 97 murder of her children. The whole arrangement is in excellent taste, while the execution is careful and delicate.
The treatment of the upper part of the wall is especially worthy of note. Generally in walls of the fourth style the portion above the large panels is filled with airy architectural designs upon a white or at least a bright ground. In this instance the fantastic architectural forms in the spaces between the black panels are continued upwards to the ceiling, and in the midst of each group a standing figure is painted on a blue ground—a girl with utensils for sacrifice, a satyr playing the flute; but the spaces above the panels are completely filled with representations of the things exposed for sale. Unfortunately only a few of these pictures remain. One contains birds, some alive, some killed and dressed; in another, different kinds of fish are seen; and a third presents a variety of vessels in which wine and other liquids could be kept. This departure from the usual style of decoration, strikingly suggestive, can be explained only as having a direct reference to the purpose of the building.
Fig. 37.—The Macellum, restored.
In two small pictures in the black panels of the north entrance Cupids took the place of men. The Pompeians were very fond of the representation of Cupids as engaged in human occupations; it gave opportunity for the poetic treatment of everyday 98 life, which was thus carried over into fairyland. So in one picture sprightly, winged little figures are celebrating the festival of Vesta, the tutelary divinity of millers and bakers, who on this day, just as appears in the painting, wreathed with garlands their mills and much belabored asses that once a year were thus admitted to a share in the festal celebrations of their masters; the reference to trade in bread and flour is obvious.
In the other picture the Cupids are plaiting and selling wreaths; in view of the extensive use of garlands at banquets and on gala days the inference is warranted that they, too, were sold in this market. In the market room for meat and fish there is another interesting picture representing the local divinities of Pompeii—personifications of the Sarno, of the coast, and of the country round about, suggesting that here the products of the sea, the river, and the land might be obtained.
Fig. 38.—Statue of Octavia, sister of Augustus, found in the chapel of the Macellum. She is represented in an attitude of worship, with a libation saucer in her right hand, and a box of incense in her left.
Besides the rooms thus far considered, which served a practical end, we find in the Macellum two other rooms which gave to the building a religious character and placed it under the special protection of the imperial house. One, at the middle of the east end (5), is a chapel consecrated to the worship of the emperors. The floor is raised above that of the rest of the building, and the entrance is reached by five steps leading up from the rear of the colonnade. On a pedestal against the rear wall, and in four niches at the sides, were statues, of which only the two in the niches at the right have been found; these represent Octavia, the sister of Augustus (Fig. 38), and Marcellus (Fig. 39), the hope of Augustus and of Rome, whose 99 untimely death was lamented by Virgil in those touching verses in the sixth book of the Aeneid. An arm with a globe was also found, doubtless belonging to the statue of an emperor that stood on the pedestal at the rear. The chapel contains no altar; sacrifice was probably offered on a portable bronze coal pan in the form of a tripod. Several beautiful examples of these movable altars have been found, and there are numerous representations of them in reliefs and in wall paintings.
The Macellum in its present form was at the time of the eruption by no means an ancient building. While finished and no doubt in use at the time of the earthquake of 63, it had been built not many years before, in the reign of Claudius or of Nero, in the place of an older structure which dated from the pre-Roman period. The earlier Macellum, of which scanty but indubitable traces remain, could not have contained a chapel for the worship of the emperors; this was probably introduced into the plan of the structure at the time of the rebuilding. The most reasonable supposition is that the chapel was built in honor of Claudius, and that his statue with the globe as a symbol of world sovereignty stood on the pedestal at the rear, while in the niches at the left were his wife Agrippina and adopted son Nero.
We can hardly doubt that Claudius was worshipped in Pompeii during his lifetime; it is known from inscriptions that even before the death of Claudius Nero was honored with the services of a special priest. That Octavia and Marcellus, another mother with a son who was heir to the throne, should be placed opposite Agrippina and Nero, was quite natural. Claudius, who through his mother Antonia was the grandson of Octavia, had great pride in this relationship, through which alone he was connected with the family of Augustus; and from Octavia, Agrippina and Nero also were descended, the former as a daughter of Germanicus, Claudius's brother, and the latter through his father Gnaeus Domitius, who was a son of the older daughter of Octavia, also called Antonia. This thought was suggested by the grouping of Octavia and Marcellus with Agrippina and Nero: Octavia's descendants are now on the throne, as Augustus intended that they should be; and Nero is the pride 100 and hope of the emperor and the Roman people, as once Marcellus was.
The room at the left of the imperial chapel, with a wide entrance divided by two columns (6), was also consecrated to the worship of the emperors. It contains a low altar (shown on the plan) of peculiar shape. A slab of black stone rests on two marble steps; it has a raised rim about the edge with a hole in one corner. Evidently this is an altar for drink offerings; in this room sacrificial meals were partaken of, at which the long estrade at the right, like a counter, nearly three feet high, was perhaps used as a serving table. Such meals had an important place among the functions of the Roman colleges of priests, and some priesthood connected with the worship of the emperors apparently had its place of meeting here; but whether this was the college of the Seviri Augustales, composed of freedmen, or a more aristocratic priesthood modelled after the Sodales Augustales at Rome, cannot be determined. The purpose of the niche in the corner, with the platform in front of it approached by steps, is unknown.
In this room, also, there were two pictures containing Cupids. In one they were represented as drinking wine and playing the lyre; in the other, as engaged in acts of worship—both appropriate decorative subjects for a room intended for sacrificial banquets.
The Macellum was entered from three sides. At the front, facing the Forum, was a portico consisting of two orders of white marble columns, one above the other, supporting a roof. Fragments of the Ionic or Corinthian columns belonging to the lower order, and of the well proportioned intermediate entablature, have been preserved. Statues stood at the foot of the columns, as also at the ends of the party walls between the shops at the rear of the portico, and beside the two columns of the little vestibule at the entrance; between the two doors was a small shrine, and here, too, was a statue.
The difference in direction between the front of the Macellum and the side of the Forum is concealed by increasing the depth of the shops from south to north, so that the depth of the portico remained the same. The room at the extreme right, 101 being so shallow that it could not be used as a shop, was made into a shrine; the image or images set up in it must have been very small. What divinities were worshipped here, unless the Street Lares, cannot be conjectured.
There is another entrance on the north side, and a third near the southeast corner. In the latter are steps, and at the left as you come in is a small niche under which two serpents were painted. This humble shrine was probably dedicated to the presiding divinity of the building, the Genius Macelli.
The colonnade of the Macellum was thrown down by the earthquake of 63. At the time of the eruption the stylobate on which the columns rested, and the gutter in front of it, had been renewed; but only the columns on the north side and a part of those on the west side had been set up again. Both the columns and the entablature have entirely disappeared, in consequence of excavations made in ancient times. 102
In earlier times a street opened into the Forum south of the Macellum. Later, apparently in the time of Augustus, it was closed, and the end, together with adjoining space at the south, was occupied by a building which measures approximately sixty by seventy Roman feet.
In richness of material and architectural detail this was among the finest edifices at Pompeii. Its walls and floors were completely covered with marble. Now we see only rough masonry, stripped of its veneering, but enough vestiges remain to enable us to reconstruct the whole; in Figs. 41 and 42 both rear and side views of the interior are given.
Fig. 40.—Plan of the sanctuary
of the City Lares.
View larger image
Opening into the main room at the rear is a large apse (Fig. 40, 2), which gives to the building a peculiar character. In the inner part of the apse is a broad foundation about six feet high, on which stood a shrine (aedicula), containing a pedestal for three statues of not more than life size; the foundation projects in front of the pedestal, forming a table for offerings. A base of the same height as the foundation of the shrine runs along the walls of the apse; it supported two columns and two attached half-columns on the right, and the same number on the left.
On either side of the main room is a recess, ala, containing a pedestal for a statue of more than life size. The two entrances were flanked by pilasters nearly two Roman feet square, while each entrance was divided into three parts by two columns. There were three niches about six feet above the floor in each 103 of the side walls of the main room, and two more at the rear; all were originally flanked by small pilasters which rested on a projecting base. The remains of an altar may still be seen in the middle of the room.
The height of both side and rear walls can be approximately computed from the existing remains, the basis of computation for the side walls being the thickness of the pilasters at the entrance. The rear part of the building was certainly not less than 45 feet high, exclusive of the gable, while the sides could not have been more than 30 or at most 35. This difference in height, taken with other indications, obliges us to conclude that the central room was treated as a paved court open to the sky; only the apse and the wings were roofed.
It is evident that we have here a place of worship, yet not, properly speaking, a temple. The shrine in the apse, with its broad pedestal for several relatively small images, presents a striking analogy to the shrines of the Lares found in so many private houses. Cities, as well as households, had their guardian spirits. The worship of these tutelary divinities was reorganized by Augustus, who ordered that, just as the Genius of 104 the master of the house was worshipped at the family shrine, so his Genius should receive honor together with the Lares of the different cities; thus in each city the emperor was to be looked upon as a father, the head of the common household. As the house had its shrine for the Lares, so also had the city; that in Rome was near the spot on which the arch of Titus was afterwards erected.
Undoubtedly we should recognize in this edifice the sanctuary of the Lares of the city, Lararium publicum. On the pedestal of the shrine in the apse the Genius of Augustus probably stood, represented by a statue of the emperor himself, with his toga drawn over the back of his head, offering a libation; on his right and on his left were the two Lares, like those represented in paintings (p. 271) and in the little bronze images so often found in house shrines.
In connection with the Lares the members of a family honored other gods, Penates, to whose special protection the head of the household had committed himself and his interests. As we shall see later, in house shrines diminutive bronze figures representing Hercules, Mercury, Fortuna, and other divinities 105 are often found together with those of the Lares. It is quite possible that other gods were likewise associated with the Lares of the city; and perhaps here in the two chapels at the sides of the main room images of Ceres and of Bacchus were placed. Regarding the statues that stood in the eight niches it is better to refrain from conjecture. On the outside of the building, under the portico of the Macellum, was a small platform (4), the raised floor of which was reached by steps.
At the edge of the Forum in front of the building are eight square blocks of basalt, which still have traces of the iron clamps by which marble veneering was fastened on. These supported the columns of a portico which was joined with the porticos of the Macellum and the temple of Vespasian and took the place of the Forum colonnade. As the main room of the building was open to the sky, the portico also must have been without a roof; there is no trace of any support for the ends of the rafters at the rear. The columns in front, probably of two orders one above the other, were merely for ornament. Possibly awnings were at times stretched over the area of the portico as a protection against sun and rain. 106
South of the sanctuary of the City Lares is another religious edifice of an entirely different character. Passing from the Forum across the open space once occupied by the portico—of which no remains have been found—we enter a wide doorway and find ourselves in a four-sided court somewhat irregular in shape (Fig. 43). The front part is occupied by a colonnade (1).
Fig. 43.—Plan of the temple
of Vespasian.
View larger image
At the rear a small temple (3) stands upon a high podium which projects in front of the cella and reached by two flights of steps. The pedestal for the image of the divinity is built against the rear wall.
In the middle of the court is an altar faced with marble and adorned on all four sides with reliefs of moderately good workmanship. The sacrificial scene shown in the accompanying illustration (Fig. 44) is on the front side, facing the entrance to the court. A priest with a toga drawn over his head in the manner prescribed for those offering sacrifice, pours a libation from a shallow bowl, patera, upon an altar having the form of a tripod. With him at the left are two lictors with their bundles of rods, a fluteplayer, two boys, camilli, carrying the utensils for the sacrifice, and an attendant; at the right a bull intended for sacrifice is being brought to the altar by the slayer, victimarius, and an assistant. In the background is a tetrastyle temple, doubtless the temple before us; the scene represents the dedicatory exercises. The middle intercolumniation of the portico, as indicated by the relief and shown in the plan, is wider than the other two. 107
On the sides of the altar some of the utensils and ceremonial objects used in sacrificing are represented: at the left the napkin (mantele), the augural staff (lituus), and the box in which the incense was kept (acerra); at the right the libation bowl (patera), a ladle (simpulum), and a pitcher.
The reliefs on the back of the altar, which consist simply of a wreath of oak leaves with a conventional laurel on either side, are of special significance and give a clew to the purpose of the edifice. On the thirteenth of January, 27 B.C., the Senate voted that a civic crown—that is, one made of oak leaves, of the kind awarded to a soldier who had saved the life of a Roman citizen—should be placed above the door of the house in which Augustus lived, and that the doorposts should be wreathed with laurel. From that time the civic crown and the laurel were recognized as attributes denoting imperial rank. This temple, therefore, was built in honor of an emperor. From the inscriptions of the Arval Brethren, we learn that in the case of a living emperor 108 a bull was the suitable victim, but that an ox was sacrificed to an emperor who had been deified after death. As the victim on our altar is a bull, the temple must have been dedicated to an emperor during his lifetime. With these facts in mind it will not be difficult to ascertain to whose worship the building was consecrated.
The coins of Augustus have both the civic crown and the laurel, but those of his immediate successors have only the former. In the year 74 the laurel again appears with the crown on the coins of Vespasian and Titus, and we may suppose that the distinction formerly conferred on Augustus was about this time revived in honor of Vespasian. It was indeed quite natural that men should think of Vespasian and Augustus together. Both restored peace and order after disastrous civil wars; both adopted severe repressive measures against luxury and immorality, and both adorned Rome with great public buildings. The temple of Jupiter on the Capitoline, which Augustus had repaired and made more magnificent, Vespasian rebuilt from the foundation after it was burned in 69.
The Senate, which had suffered so seriously at the hands of 109 Nero, had reason to be deeply grateful to Vespasian, who treated it with marked respect, in this also following the example of Augustus. If the annals of the reigns of the Flavian emperors were not so meagre, we should very likely find a decree of the Senate honoring Vespasian with the civic crown and the laurel. Such a decree might well have suggested the founding of a temple, and the placing of these symbols of peace and victory upon its altar.
The temple itself was built, together with the court, after the earthquake of 63, and at the time of the eruption the work was not entirely completed. The walls of the cella and of the entrance from the Forum had received their veneering of marble and were in a finished state; but those of the court, divided off into a series of deep panels above which small pediments alternated with arches (Fig. 45), had received only a rough coat of stucco and were still awaiting completion. The temple must have been built in the time of Vespasian, who reigned from 68 to 79 A.D.; and as this emperor possessed too great simplicity of character to allow men to worship him as a god while he was still alive, it was probably dedicated to his Genius.
The rooms at the rear of the temple (shown on the plan) were entered by a door at the right. They may have served as a habitation for the sacristan, or as a place of storage for the sacrificial utensils. The north room was also connected with rooms belonging to the sanctuary of the Lares, the purpose of which is unknown. 110
Fig. 47.—Plan of the building of Eumachia.
View larger image
The plan of the large building on the east side of the Forum, between the temple of Vespasian and Abbondanza Street, is simple and regular. In front is a deep portico (1), facing the Forum. The interior consists of a large oblong court with three apses at the rear and a colonnade about the four sides (9); on three sides there is a corridor behind the colonnade, with numerous windows opening upon it (12). The corridor could be entered by three doors, two at the front end of the court, connecting 111 with the colonnade, and a third at the rear, entered from the end of a passage leading up from Abbondanza Street (14), the grade of which at this point is considerably below the pavement of the building (Fig. 50).
An inscription appears in large letters on the entablature of the portico, and again on a marble tablet over the side entrance in Abbondanza Street: Eumachia L. f., sacerd[os] publ[ica], nomine suo et M. Numistri Frontonis fili chalcidicum, cryptam, porticus Concordiae Augustae Pietati sua pequnia fecit eademque dedicavit,—'Eumachia, daughter of Lucius Eumachius, a city priestess, in her own name and that of her son, Marcus Numistrius Fronto, built at her own expense the portico, the corridor (cryptam, covered passage), and the colonnade, dedicating them to Concordia Augusta and Pietas.'
The word pietas, in such connections, has no English equivalent, and is difficult to translate. It sums up in a single concept the qualities of filial affection, conscientious devotion, and obedience to duty which in the Roman view characterized the proper conduct of children toward their parents and grandparents. Here mother and son united in dedicating the building to personifications, or deifications, of the perfect harmony and the regard for elders that prevailed in the imperial family.
The reference of the dedication can only be to the relation between the Emperor Tiberius and his mother Livia; it cannot apply to Nero and Agrippina, for the reason that the walls of the building were decorated in the third Pompeian style, which in Nero's time was no longer in vogue. In 22 A.D., when Livia was very ill, the Senate voted to erect an altar to Pietas Augusta. In the following year Drusus, the son of Tiberius, gave expression to his regard for his grandmother by placing her likeness upon his coins, with the word Pietas.
On the coins of colonies also—of Saragossa and another the name of which is not known—the Pietas Augusta appears, apparently about the same time. Not long afterwards the harmonious relations between Tiberius and his mother gave place to mutual suspicion and hostility; the dedication therefore points to the earlier part of the reign of Tiberius, and in this period the building was no doubt erected. The statue of 112 Concordia Augusta, a female figure with a gilded cornucopia, was found in the building; the head, which has not been preserved, probably bore the features of Livia. By this dedication the building of Eumachia, as the Macellum later, was placed under the protection of the imperial house.
While the parts are enumerated in the dedicatory inscription, neither the name of the building as a whole, nor the purpose, is mentioned. A hint of the latter, however, is found in another inscription. A broad niche (13) opens into the corridor at the rear, directly behind the largest apse. Here stood a marble statue of a beautiful woman (Fig. 255), now replaced by a cast; the original is in Naples. Upon the pedestal we read: Eumachiae L. f., sacerd[oti] publ[icae], fullones,—'Dedicated to Eumachia, daughter of Lucius Eumachius, a city priestess, by the fullers.'
This building, in which the fullers had set up, in a specially prominent place, a statue of the person who had erected it, must in some way have served the purposes of their trade. Clearly enough it was not a fullery; on the other hand, it was well adapted for a clothier's exchange, a bazaar for the sale of cloth and articles of clothing. Tables and other furniture for the convenience of dealers could be placed in the colonnade and the corridor; in the corridor, especially, goods exposed for sale in front of the open windows could be conveniently inspected by prospective buyers,—not only by those in the corridor itself, but also by those looking in from the colonnade. The small doors between the corridor and the colonnade could be securely closed, and the entrance from Abbondanza Street could be easily guarded; there was only a narrow door at the end of the passage opening into the corridor, and at the street entrance was a porter's room connected by doors both with the passage and with the street. This evidence of unusual precaution suggests that possibly the side entrance, from its close connection with the corridor, was intended especially for the conveyance of goods to and from the building, in order that the front entrance might be left for the exclusive use of purchasers and dealers.
On the assumption that the building was a cloth market, it is 113 clear that the colonnade would naturally be open at all times, the corridor only during business hours; after business hours the corridor would be closed for the protection of the goods left there over night. The windows may have been closed with shutters as in the Oriental bazaars. Other peculiarities of arrangement also are cleared up by this explanation, but we cannot present them in detail. It is not possible, however, to make out what the purpose was of certain remains of masonry found on the south side of the court (18) which have now disappeared, or of two rectangular elevations at the rear (17), or, finally, of a large stone in the middle of the court in which a movable iron ring is fastened (15). Our information is so scanty that we are unable to determine in all particulars what the requirements of a fuller's exchange might have been.
At the time of the eruption men were still engaged in rebuilding the parts of the edifice that had suffered in the earthquake of 63. The front wall at the rear of the portico was finished and had received its veneering of marble; as shown by the existing remains, it conformed to the plan of the earlier structure. The columns and entablature of the portico had not yet been set in place; considerable portions of them were found in the area of the Forum. The wall at the rear of the court, with the three apses, had been rebuilt, and the workmen had begun to add the marble covering. The other walls had remained standing at the time of the earthquake; but the colonnade had been thrown down and was now in process of erection. The remains of the colonnade were removed in ancient times, probably soon after the destruction of the city; yet from the parts that remain, both of the old building and of the restorations, we can determine the architectural character with certainty. We give two reconstructions of the interior, one showing the front (Fig. 48), the other the rear (Fig. 49).
The colonnade and the portico were characterized by the same peculiarity of construction: they were in two stories, one above the other, but there was no upper floor corresponding with the intermediate entablature. In the case of the portico this is certain from the treatment of the wall at the rear, the ornamentation of which is carried without interruption high 114 above the level of the entablature. If the appearance of this building alone had been taken into account, it would have been simpler and more effective to place at the front of the portico a single order of large columns the height of which should correspond with that of the façade; but as the colonnade about the Forum was in two stories, the front of the portico was made to conform to it. The columns below were of the Doric, those above of the Ionic, order. The material—whitish limestone—was the same as that used in the new colonnade of the Forum. Nevertheless, by the skilful handling of details a certain individuality was given to the columns; while in general appearance they harmonized with those about the Forum, the portico as a whole stood out by itself as something distinct and characteristic.
The columns of the portico were left unfluted, as were those of the new Forum colonnade, and were of the same height; but their proportions were more slender, their ornamental forms were slightly different, and they were set closer together. The pains and skill manifested in harmonizing the particular with the general architectural effect reflect much credit upon the Pompeian board of public works. Under the portico at the foot of each column was a statue, facing the front of the building; the pedestals, which still remain, assist in determining the places of the columns, of which only one was found in position. The spaces between the columns could be closed by latticed gates, as may be seen from traces of them remaining in the marble pavement at the south end of the portico; the pavement elsewhere has disappeared.
The wall at the rear of the portico, facing the Forum, was richly ornamented. The broad entrance in the middle (6) was 115 bridged at the top by a lintel. At the ends are two large niches more than four feet above the pavement (5), both reached by flights of steps. Between each of these and the doorway is a large apsidal arched niche (4) extending down to the pavement. Lastly in the projecting portions of the wall are four smaller niches for statues. The whole façade was overlaid with various kinds of colored marbles.
None of the statues have been found, but the inscriptions belonging to the two that stood in the small niches at the left are extant and of special interest; the names of the persons represented, Aeneas and Romulus, are given, together with a short enumeration of their heroic deeds. These statues were evidently copies; the originals formed a part of a famous series in Rome.
Augustus set up in his Forum the statues of renowned Roman generals with inscriptions setting forth their services to the State; in this way, he said, the people might obtain a standard of comparison for himself and his successors. At the beginning of the series were Aeneas, the kings of Alba Longa, and Romulus. Not one of these statues has been preserved, but some of the inscriptions have been found in Rome, while others are known from copies discovered in Arezzo, where without doubt, as at Pompeii, they were set up with copies of the statues—a forcible illustration of the striving of the smaller cities to be like Rome. Two other statues, perhaps representing Julius Caesar and Augustus, stood in the niches at the right corresponding with those of Aeneas and Romulus; it is not probable that the rest of the series in Rome was duplicated here, because the remaining pedestals in the portico were all designed for figures of larger size.
The colonnade about the court was of marble. The front part, as one entered from the portico, was higher than that on the sides and rear (Fig. 48); it must have presented a fine architectural effect. The two series of Corinthian columns, one above the other, reached the height of 30 feet; the wall behind was diversified with niches and completely covered with marble. At the right and at the left one could pass down the sides under the colonnade, or through small doors into the corridor. 116 The walls between the colonnade and the corridor, pierced with large windows, were decorated below with a dado of colored marbles and above with painting upon stucco, in the third style.
The two smaller apsidal niches at the rear were no higher than the colonnade, but the central apse projected above and terminated in a marble pediment (Fig. 49), fragments of which are still to be seen in the building. It was entered through three arched doorways, above which apparently there were windows. The image of Concordia Augusta, with the features of Livia, probably stood on the pedestal at the rear of the apse, while the statues of Tiberius and Drusus may have adorned the niches at the sides.
We can readily see why the colonnade was made so high, and in two stories, when a lower structure would have afforded better protection against sun and rain. Had it been limited to the usual height the corridor behind it would have been too dark; and if instead of a double series of small columns, one above the other, there had been a single series of large columns of the usual proportions, the thickness of the latter would have shut out much light and have made the colonnade seem less roomy. The arrangement adopted had the further advantage that it harmonized the aspect of the colonnade with that of the portico, the character of which, as we have seen, was determined by that of the colonnade about the Forum.
The small rooms of irregular shape at the sides of the apse (11) were light courts, left open to the sky in order to furnish light to the corridor at the rear, which was shut off from the colonnade. 117
The corridor was about fourteen feet in height; its walls still have remains of decoration in the third style.
At the right of the broad niche (13), in which the statue of Eumachia was found, a door opened into the passage leading from Abbondanza Street; in the corresponding position at the left, where there was no entrance, a door was painted upon the wall. This is a folding door in three parts, of a kind quite common at Pompeii; the middle part is hung by means of hinges, like those on doors of the present day, fastened to one of the leaves at the sides, while these are represented as swinging on pivots at the top and the bottom.
A stairway at the southeast corner of the corridor, over the entrance from Abbondanza Street, led to an upper room. A similar stairway was placed in the last of the little rooms between the court and the portico, at the left of the front entrance. The upper rooms, difficult to reach, could hardly have been intended for salesrooms. They must have been low, probably no higher than the difference between the height of the colonnade and that of the corridor. They were most likely used as temporary storerooms for the goods of the dealers.
Fig. 50.—Fountain of Concordia Augusta.
In the background, steps in the side entrance of the Eumachia building.
In front of the entrance from Abbondanza Street, is a fountain of the ordinary Pompeian form; as the material is limestone it is probably of later date than the other fountains, which are generally of basalt. As may be seen in our illustration 118 (Fig. 50), the inlet pipe was carried by a broad standard projecting above the edge of the basin, on the front of which a bust of a female figure with a cornucopia is carved in relief. The right side of the face has been worn away by eager drinkers pressing their mouths against the mouth of the figure, whence the jet issued; it reminds one of the attenuated right foot of the famous bronze St. Peter in Rome. Hands also have worn deep, polished hollows in the stone on either side of the standard. The figure represents Concordia Augusta, but the name Abundantia, given to it when first discovered, still lingers in the Italian name for the street, which might more appropriately have been called Strada della Concordia. 119
The last building on the east side of the Forum, south of Abbondanza Street, had undergone a complete transformation a short time before the destruction of the city. Before the rebuilding, a row of pillars separated the interior of the structure from the Forum and from the street. At the edge of the sidewalk along the latter are square holes opposite the pillars (shown on the plan, Fig. 51), evidently designed for the insertion of posts, so that a temporary barrier of some sort could be set up. The end of the space within the barrier where this came to the Forum, and of the rest of the street as well, could be shut off by latticed gates.
Fig. 51.—Plan of the
Comitium.
View larger image
If the barrier were set up, and the latticed gate at the Forum end left open, the building and the space within the barrier would be shut off from Abbondanza Street, but closely connected with the Forum by the numerous entrances. After the rebuilding only two entrances from the Forum were left, and one from Abbondanza Street.
It is altogether unlikely that so large a building, of irregular shape and with pillars on two sides, was provided with a roof; we have here an open space rather, serving as an extension of the Forum. The walls were covered with marble and adorned with niches, in which, without doubt, statues were placed. On the south side is a large recess the floor of which, reached by a flight of steps, forms a kind of platform or tribune about four feet above the pavement of the enclosure (1). A small door at 120 the right leads into a narrow room containing a similar platform opening on the colonnade of the Forum (2), and to all appearances once accessible from it by steps; afterwards both the steps and the tribune were walled up.
The purpose of these tribunes, and of the building as a whole, is far from clear. An analogy, however, suggests itself. On one side of the Roman Forum near the upper end was a small rectangular open space called the Comitium, used in early times as a voting place. Between the Forum and the Comitium was originally a speaker's platform, the Rostra, so placed that orators by turning toward one side could address an audience in the Comitium and facing about could harangue the Forum. Though the later changes have obscured the original form of our building, yet it is plain that at one time there must have been two connected tribunes, one facing the Forum, the other the enclosed open space; we may at least hazard the conjecture that the colonists of Sulla, taking the arrangements of the capital as their pattern in all things, designed this place as their Comitium.
The enclosure was too small to admit of its use for voting according to the ancient fashion, but general elections in the Comitium had long been a thing of the past; only the unimportant curiate elections were held there, at which each curia was represented by a lictor, and at other times the place was used for judicial proceedings. So our building was probably used, if not for elections, for formalities preliminary to the elections and for business connected with the courts. 121
At the south end of the Forum were three buildings similar in plan and closely connected. In front they presented a common façade, the narrow spaces between them being entered by low doors. The building at the right (Fig. 52, 3) was at the corner of the Forum, while the space separating the other two lay on a line dividing the Forum into two equal parts; east of the last building is the Strada delle Scuole.
Fig. 52.—Plan of the Municipal
Buildings.
View larger image
The three buildings were erected after the earthquake of 63, on the site of older buildings of the same character. In the walls of that furthest east (1), considerable remains of the earlier walls are embodied; in that near the corner the original pavement is preserved, and in the middle building there are traces of the original pavement. Previous to this rebuilding the inner series of columns belonging to the colonnade about the Forum had in part been removed and a barrier set up, by which the space in front of the middle building and that at the left could be shut off (indicated on the plan by broken lines). At the time of the eruption only the building at the left (1) was entirely finished. The others still lacked their decoration on both inner and outer walls.
These three spacious halls must have served the purposes of the city administration. The two at the right and the left are alike in having at the end opposite the entrance an apse large enough to accommodate one or more magistrates with their attendants; they were the official quarters of the aediles and the duumvirs, while the middle hall was the council chamber, curia, where the decurions met. 122
The middle room was obviously intended to be the most richly ornamented of the three, and was further distinguished from the others by the elevation of its floor, which was more than two feet above the pavement of the colonnade. In front of the entrance is a platform reached at either end by an approach hardly wide enough for two persons, thus suited for a select rather than a large attendance.
Fig. 53.—View of the south end of the Forum.
In the background, the ruins of the municipal buildings; in front of these, the remains of
the colonnade. In the middle ground the pedestals of the statues of the imperial family.
Along the sides within runs a ledge a little more than five feet above the floor, on which rested a double series of columns, one above the other, serving both as ornament and as a support for a ceiling like that of the temple of Jupiter. If we picture to ourselves the columns in place, the walls covered with marble, and a rich coffered ceiling above, we are led to form a favorable idea of the recuperative powers of the city which set about the construction of such costly and splendid buildings so soon after the terrible earthquake.
The recess at the rear was designed for a large shrine patterned after the small shrines of the Lares and Penates in private houses. The Penates of the city were above all the emperor and his family. If this shrine had been finished, figures representing Vespasian, Titus, and Domitian would probably have been placed in it, facing the three Capitoline divinities in the temple of Jupiter at the other end of the Forum. 123
The office of the aediles, situated at the corner of the colonnade and close to the Basilica, and with no barrier to prevent ready access, was particularly convenient for magistrates who, among other duties, were charged with the maintenance of order and the enforcement of regulations in the markets. One or perhaps both aediles sat in the apse; while the rear and middle parts of the room were reserved for those who had business with them. The front part, lower than the rest by two steps (shown on the plan), may have served as a waiting room. At the rear of the apse and in the walls at the sides were niches for the statues of members of the imperial family and of those who had rendered important services to the city.
As the duumvirs not only sat as judges but also had in their hands the financial administration of the city, we can see why the hall set aside for their use was the first to be rebuilt after the earthquake. The magistrates, of course, sat in the apse, along the wall of which was a ledge for statues. The strong front doors were fastened with iron bolts, and there was also a latticed gate on the step in front of the threshold; probably the archives of the duumviral office were kept within. The small side door at the right made it possible to enter and leave the building after business hours or at other times when the large doors were closed. 124
For some years it had been known that a temple once stood in the rectangular block south of the strada della Marina; and in 1898 workmen excavating here began to uncover the massive foundations. When the volcanic deposits had been removed it was seen that the court of the temple, with the surrounding colonnade, occupied the whole area between the Basilica and the west wall of the long room now used as a Museum. On the podium (Fig. 55) was found a part of a statuette of Venus, of the familiar type which represents the goddess as preparing to enter the bath; it was probably a votive offering set up by some worshipper. In the subterranean passageway entered near the southeast corner (, IV) the excavators found another votive offering, a bronze steering paddle of the kind shown in paintings as an attribute of Venus Pompeiana; an example may be seen in Fig. 4 (p. 12). From these indications, as well as from the size of the temple and its location, near the Forum and on an elevation commanding a wide view of the sea, we are safe in assigning the sanctuary to Venus Pompeiana, the patron divinity of Roman Pompeii.
Prior to the founding of the Roman colony the site of the temple had been occupied by houses, built in several stories on the edge of the hill, which here slopes sharply toward the southwest; remains of the houses, which must have resembled those farther east (an example is the house of the Emperor Joseph II, p. 344), have been brought to light in the course of the excavations. In less than a century and a half the temple was twice built, twice destroyed; a third building was in progress at the time of the eruption.
Fig. 54.—Plan of the temple of Venus Pompeiana.
View larger image
The first temple was erected in the early years of the Roman colony. An area approximately 185 Roman feet square was 125 prepared for it by levelling off and filling up, terrace walls being built to hold in place the earth and rubbish used for filling. The foundations of the walls about the court (A-B, C-D-E) can still be traced except on the south side, where, perhaps in consequence of the earthquake at the time of the eruption, every vestige has disappeared, and at the southwest corner, where excavations for building materials in modern times have been 126 carried below the Roman level, a part of the foundation of the temple itself having been removed. These walls conformed to the direction of the walls of the Basilica, the corners, as those of the Basilica, showing a noticeable divergence from a right angle.
Fig. 55.—Ruins of the temple of Venus Pompeiana, viewed from the southeast.
At the right, foundation of the front row of columns of the latest (unfinished) colonnade; then foundation
of stylobate of earlier colonnade, with gutter. In foreground, entrance to subterranean passage.
On the podium of the temple at the farther end is seen the pedestal of the statue of the
divinity. The wall at the rear of the court is on the south side of the strada della Marina.
The front of the earlier colonnade is outlined by the gutter (F-G-G', G"-H-I), constructed of blocks of tufa, which show signs of long use, and the foundation of the stylobate behind the gutter, which is plainly seen (Fig. 55); in places (as indicated in the plan), the layer of mortar spread over this foundation shows the impressions made by the blocks of the stylobate which rested on it. At the middle of the north side (G'-G") both the gutter and the wall under the stylobate were removed when the foundations of the third temple were extended in that direction. 127 Along the gutter were basins for water used in cleaning the floor of the court, which was made of fine concrete. The entrance to the court was at the northeast corner.
On the east side of the court were six rooms, the rear of which was formed by the wall A'B'. Two of these opened on the colonnade in their whole breadth, and four with narrow doors, the thresholds of which, of whitish limestone, are still in place. Their purpose cannot be determined. The cross walls shown in the plan on the west side (x, y, z) belonged to an earlier building, and have nothing to do with the temple.
In front of the temple are remains of a large altar of whitish limestone (III). On the east side of the court is the base of an equestrian statue (V), of the same material, which was afterwards veneered with marble; near it is a pedestal of a standing figure (VI), of masonry covered with stucco, and behind this is the small base of a fountain figure. Near the southeast corner is the entrance (IV) to a subterranean passageway which runs toward the south; it probably led to rooms of earlier houses which were preserved, when the area was filled up, for the use of the attendants of the temple.
The temple itself, as the other edifices, religious and secular, of the first years of the Roman colony, must have been built of common materials and coated with stucco. Of the existing remains only the inner part of the podium (I, II on the Plan) can be assigned to it; a series of small blocks of tufa at the rear end is perhaps a remnant of the cornice which was carried around the upper edge of the podium.
To the Pompeians of the Empire the modest structure of Republican days seemed unworthy of the tutelary divinity of their city. On the same podium they built a temple of marble. Of this are preserved the foundations of the door posts of the cella (Fig. 56 a) and the core of the pedestal (D) on which stood the statue of the divinity, besides some bits of the cella floor, which consisted of a border of white mosaic (b), a broad strip of pavement of small flags of colored marble (c), and an ornamental centre (a) now entirely destroyed. The only remains of the superstructure that can be identified are in a storeroom north of the temple of Apollo. They consist of fragments of large 128 marble columns, nearly thirty-two inches in diameter, and of an entablature of corresponding dimensions.
Fig. 56.—Plan of the second temple, restored.
View larger image
After the completion of the temple the Pompeians set about rebuilding the colonnade, on a scale of equal magnificence. First of all they enlarged the court by removing the old walls to the foundations, and constructed new outside walls (a-b-c-d), the corners of which form right angles. The wall on the north side, of reticulate work, can be distinguished in Fig. 55. That on the east side is also well preserved, but of that on the south side no trace remains. The deep foundation of the wall on the west side forms the farther wall of the present Museum, the roof of which very nearly represents the level of the floor of the ancient court. The colonnade was to be single on the north, double on the east and west sides. The principal entrance was at the northeast corner (K), with a smaller entrance (L) at the end of the narrow street south of the Basilica.
How far the work had progressed before the earthquake of the year 63 it is not easy to determine. The new gutter along the front of the colonnade had not yet been laid, but the foundations of the rows of columns (e-f-g-h, e'f', g'h') were for the most part ready. From the Corinthian capital and fragments of shafts and entablature lying about the court it is clear that these members were fitted and in place when they were thrown down. Part of the colonnade was therefore finished. It was in two stories, probably without an intervening floor, like the porticoes in front of the Macellum and the building of Eumachia. Not less than three hundred marble columns must have been required to complete the work; undoubtedly the wall back of the colonnade 129 was divided off by pilasters below and half columns above, the intervening spaces being filled with marble. In point of size, the temple with its court formed the largest sanctuary, in richness of materials the most splendid edifice of the entire city.
The great earthquake felled to the ground alike the finished temple and the unfinished colonnade. But the Pompeians, in their time of trouble least of all disposed, we may assume, to forsake their patron goddess, soon commenced the work of rebuilding. Postponing the renewal and completion of the colonnade as of secondary importance, they cleared away the débris of the temple, and on the podium where the cella had stood constructed a temporary place of worship, a small wooden building strengthened at the bottom by a low wall around the outside. Then they proceeded to enlarge the podium; the third temple was to be even more imposing than its predecessor. The old steps were removed from the front. The existing podium was cut back five Roman feet on each side, and four inches at the rear, to form the core of the new podium; on all sides of this a massive foundation wall was commenced, five and a half Roman feet thick, made of large blocks of basalt carefully worked and fitted. A similar wall was carried through the old podium (B—B'), to serve as the foundation for the front wall of the cella. The relative size of the component parts of the new temple is thus clearly indicated. The cella was to extend over the space B—C—C'—B', the portico over that marked A—B—B'; how far the steps were to project in front is uncertain.
At the time of the eruption five courses of basalt had been laid, reaching a height of more than four feet, the space between the core of the old podium and the outer wall being filled with concrete as the work progressed. On the north side of the court are still to be seen a number of blocks of basalt not yet trimmed and fitted, just as they were abandoned by the workmen when the work was stopped forever. 130
Passing out from the Forum under the arch at the northeast corner, we enter the broadest street in Pompeii. On the right a colonnade over the sidewalk runs along the front of the first block, at the further corner of which, where Forum Street opens into Nola Street, stands the small temple of Fortuna Augusta. The front of the temple is in a line with the colonnade, which seems to have been designed as a continuation of the colonnade about the Forum; the builders apparently wished to have it appear that the temple was located on an extension of the Forum rather than on a street. The colonnade is certainly not older than the earlier years of the Empire, and the temple dates from the time of Augustus.
Fig. 57.—Plan of the temple of Fortuna Augusta.
View larger image
The divinity of the temple and the name of its builder are both known to us from an inscription on the architrave of the shrine at the rear of the cella: M. Tullius M. f., d. v. i. d. ter., quinq[uennalis], augur, tr[ibunus] mil[itum] a pop[ulo], aedem Fortunae August[ae] solo et peq[unia] sua,—'Marcus Tullius the son of Marcus, duumvir with judiciary authority for the third time, quinquennial duumvir, augur, and military tribune by the choice of the people, (erected this) temple to Fortuna Augusta on his own ground and at his own expense.' 131
Such inscriptions were ordinarily placed on the entablature of the portico. The portico of this temple, however, had been thrown down by the earthquake of 63, and had not yet been rebuilt. The cella may have been damaged also, but in order that the worship might not be interrupted the shrine was restored; the inscription was temporarily placed over it.
The remains of the walls, columns, and entablature make it possible to reconstruct the edifice with certainty (Fig. 58). The plan (Fig. 57) in several respects closely resembles that of the temple of Jupiter, from which the architect copied the projecting platform in front of the podium, with its altar and double series of steps. The eight columns sustaining the portico had Corinthian capitals. The walls of the cella were veneered with marble. In the shrine at the rear stood, without doubt, the image of Fortuna as guardian of the fortunes of Augustus and protectress of the imperial family (Fig. 59).
There were also in the walls of the cella four niches for statues, of which two have been found. The face of one, a female figure, had been sawed off in order to replace it with 132 another, which has not come to light; the features of the other statue were said in the reports of the excavations to resemble those of Cicero, but the resemblance is purely fanciful, suggested by the name Marcus Tullius in the dedicatory inscription. Both statues were of persons connected with the priesthood, not of members of the imperial family. Probably statues of the latter were set up elsewhere, so that the cella was left free for less important personages.
Fig. 59.—Rear of the cella in the temple of Fortuna Augusta, with the statue of the goddess, restored.
The worship of Fortuna Augusta was in charge of a college of priests, consisting of four slaves and freedmen, who were called Ministri Fortunae Augustae,—'Servants of Fortuna Augusta.' Our information in regard to them is derived from five inscriptions, of which two were found in the temple, the others in different places; but none of them where they originally belonged. These all relate to the small statues, signa, of which one was set up by the college every year. One inscription, of the year 3 B.C., speaks of the 'first servants (ministri primi) of Fortuna Augusta.' The priesthood was therefore established in that year, and the temple was probably built only a short time before.
In donating the land for the temple Tullius retained the ownership of a narrow strip of irregular shape at the right. Here a rough block of basalt was set up with the inscription: M. Tulli M. f. area privata,—'Private property belonging to Marcus Tullius, son of Marcus.'
KEY TO PLAN III
The end of the old lava stream on which Pompeii lay runs off into two points; in the depression between them, as we have seen, was the Stabian Gate. On the edge of the spur at the left a temple of the Doric style was built in very early times. The descent here, toward the southwest, is so sharp and the height so great that it was not necessary to add a wall at the top as a means of defence.
The sides of the temple followed in general the direction of the edge of the cliff. Raised upon a high foundation, it not only dominated the plain below but was visible also from the greater part of the city; glistening in the sun, it became a landmark for mariners far out at sea, who from a distance could offer greetings to the gods there enshrined.
In the second century B.C. the northwest corner of the depression back of the Stabian Gate was selected as the site for a large theatre (E on Plan III); previously, we may suppose, temporary wooden structures had answered the purpose. This location was chosen, in accordance with the Greek custom, because the places for the greater part of the seats for the spectators could be easily cut in the natural slope, which here had the shape of half a shallow saucer; a superstructure was necessary only for the upper rows of seats. The architect, if not a Greek, was certainly of Greek training.
South of the theatre an extensive colonnade (G) was erected. It was intended as a shelter for theatre-goers, but was afterwards turned into barracks for gladiators.
With a similar purpose, a colonnade of the Doric order was built along two sides of the triangular level space about 134 the Greek temple (1). In front of the north end, where the two arms of the colonnade meet, a high portico of the Ionic order was erected (A) facing the street, thus forming a monumental entrance to the Theatre. The southwest side of the area was left unobstructed, and the place, by reason of its shape, is called the Forum Triangulare, 'Three-cornered Forum.'
In connection with the building of the Theatre land had been expropriated and cleared as far north as the first east and west street. Here, near the entrance of the Forum Triangulare, a Palaestra for gymnastic exercises (C) was built, with funds left for public purposes by a benevolent citizen. Later, probably not before the time of the Roman colony, a temple of Isis (I) was erected, adjoining the Theatre on the northeast.
Early in the Roman Period, not long after 80 B.C., a small roofed theatre (F) was constructed east of the stage of the Large Theatre and of the area at the rear.
Stabian Street north and south of the Small Theatre was lined with private houses. At the northeast corner of the block was a temple of Zeus Milichius (H), seemingly of early date, but entirely rebuilt about the time that the Small Theatre was erected.
Part of the columns and entablature belonging to the beautiful portico at the entrance of the Forum Triangulare have been set up again and are seen in our illustration (Fig. 60). The brackets projecting from the rear wall were probably designed for statuettes or vases. When the wall was rebuilt, after the earthquake of 63, a change was made in at least one particular. The small doorway at the middle, now at right angles with the wall, formerly passed obliquely through it, opening toward the end of the promenade which was laid out in front of the colonnade at the left. This promenade (2 on Plan III) was separated from the area of the Forum by a low wall; on sunny winter days it must have been the most frequented walk in the city.
PLATE III.—THE GREEK TEMPLE AND THE FORUM TRIANGULARE, SEEN FROM THE SOUTH. RESTORATION BY WEICHARDT
Besides the small doorway, which was closed by a latticed gate hung from a wooden jamb, there was at the left a massive 135 double door with strong bolts, inside of which was still a second door. It seems odd that one entrance should be so securely closed, while the fastenings of the other were so light. Ordinarily, the large doors must have been kept shut, while the small entrance was left open for everyday use; but when there was to be a play in the Theatre, and the magistrate who gave the entertainment proceeded from the Forum with a retinue in festal attire, then the great doors were swung back in honor of the occasion, and the opening of them formed part of an impressive ceremony.
The colonnade within contained ninety-five Doric columns. It was only one story in height, and the columns for this reason are more slender than those of the same order in the Forum. The entablature varies from the Doric type only in respect to the architrave, which consists of two bands. The continuation of the colonnade along the southwest side was prevented by the nearness of the temple to the edge of the cliff. Here the magnificent view over the plain to the mountains and across the Bay was unimpeded; for the enjoyment of it, two duumvirs in the early years of the Empire built near the west 136 corner of the temple a semicircular stone seat, schola (4 on Plan III), like those found in connection with tombs. On the back they placed a sundial with the inscription: L. Sepunius L. f. Sandilianus, M. Herennius A. f. Epidianus duo vir[i] i. d. scol[am] et horol[ogium] d. s. p. f. c. (for de sua pecunia faciundum curarunt),—'Lucius Sepunius Sandilianus the son of Lucius, and Marcus Herennius Epidianus the son of Aulus, duumvirs with judiciary authority, caused the seat and the sundial to be made at their own expense.' The same duumvirs, as we have seen, set up a sundial in the court of the temple of Apollo.
Fig. 61.—View of the Forum Triangulare, looking toward Vesuvius.
At the left, remains of the Doric temple and of the altars and well house in front of it; at
the right, exterior of the large theatre.
At the foot of the middle column at the north end of the colonnade is a broad basin of Carrara marble resting on a finely proportioned, fluted standard; a jet of water fell into it from the end of a pipe which passed through the column above. A little further forward is a pedestal (8) veneered with marble on which is the inscription: M. Claudio C. f. Marcello patrono,—'To Marcus Claudius Marcellus, the son of Gaius, patron.' Here stood a statue of Marcellus, the nephew of Augustus, a portrait statue of whom we have already found in the imperial 137 chapel of the Macellum. The reason why he was honored with more than one statue is clear from the inscription before us: he was patron of the colony.
The surface of the Forum Triangulare was considerably higher than the top of the city wall (K) south of the barracks of the Gladiators. It seems likely that a flight of steps led down to the wall between the barracks and the long colonnade, as seen in Weichardt's restoration (Plate III). This explanation accounts for the existence of certain remains of walls (L on the plan), the purpose of which is otherwise obscure.
Of the ancient Doric temple but little remains: only the foundation, which was high for a Greek temple, with a flight of steps in front; two stumps of columns and traces of a third; four capitals, and portions of the right wall of the cella. The plan of the cella, however, has been traced by means of excavations.
Fig. 62.—Plan of the Doric
temple in the Forum Triangulare.
View larger image
The foundation, unlike the podiums of the other temples at Pompeii, was built up in a series of broad, high steps. The number of the columns, eleven on the sides and seven in front, as in the temple of Zeus at Agrigentum, has been calculated from the distances between the stumps. Of those in front two were opposite the corners of the cella, where the edges of the flight of steps come to the stylobate (Fig. 62). Only a narrow space was needed between the walls of the cella and the surrounding columns, but in order to make the outward appearance more imposing the columns were set as far out as they would have been if a second series had been placed within, between them and the cella; according to the classification of Vitruvius the temple was a pseudodipteral. On account of the interval thus afforded between the entrance of the cella and the columns in front (a little over sixteen feet), it was thought proper to leave the number of columns uneven, so that one stood over against the middle of the doorway. 138
The temple was of mixed construction, part stone and part wood. The entablature must have been of stone, otherwise the intercolumniations would not have been so narrow. The space between the entablature and the cella, however, could only have been bridged by means of timbers. The stone used was the gray tufa, but the capitals were of the more durable Sarno limestone. The surface was coated with stucco, which in part at least was painted in bright colors. The projecting edge of the eaves trough, also covered with stucco, was painted red, yellow, and black, and ornamented with waterspouts in the shape of lions' heads alternating with rosettes.
The proportions of the columns (lower diameter 6.07 feet, upper diameter 3.12 feet) with their flaring capitals, and the narrow intercolumniations (Fig. 63), point to an early period; the archaic character of the capitals will be more fully appreciated if they are compared with those of the colonnade of the Forum Triangulare. In respect to age this temple ranks with the oldest of those at Selinunto; it must have been built in the sixth century B.C.
The cella, as our plan shows, was divided into two chambers. In the inner chamber (3) a large rectangular flag is embedded in the floor at one side so that a second (indicated on the plan by dotted lines) must have been near it; the supports of a stone table in front of the image of the divinity perhaps rested on them. On the long pedestal at the right of the cella stood a deer of terra cotta, above life size, of which some fragments have been found. 139
Directly in front of the temple, at the foot of the steps, we find a monument of an altogether unusual character. The respect with which it was regarded is evidenced by its location in the place ordinarily occupied by the principal altar. It consists of a small enclosure of peculiar shape, fenced in by an outer wall and a low inner wall. To judge from its form, it must have been a place of burial; we shall find a tomb later the plan of which is quite similar (Plan V, right side, 2), and it is said that human bones were found here. These walls are not earlier than the imperial period, but they must have taken the place of an older structure; for the altars were evidently put over near the east corner of the temple (6 on the plan), because the place which they would naturally have had was already occupied. For a time—how long it would be idle to conjecture—this was beyond doubt the most important temple of the city; the placing of the tomb in the most sacred spot in front of it suggests that the founder or founders of the city may have been buried here, and afterwards revered as heroes.
Instead of a single altar in front of the temple there are three, all made of blocks of tufa, two of them resting on a single foundation; the third is built on the ground without a foundation, and is of later date. One altar is larger than the other two, and its surface is divided into three parts.
Not far from the altars are the remains of a small round structure (7 on the plan, shown in Fig. 61) about twelve feet in diameter. The roof, supported by eight Doric columns, was over the mouth of a well, which had been driven down through the old lava bed till living water was found for cleaning the temple and for religious rites. According to the Oscan inscription on the architrave the well house was built by N. Trebius, chief administrative officer (meddix tuticus) of the city.
It is impossible to determine what divinities were worshipped here. The placing of two altars together, one being divided into three parts, and the addition of a third, seem to imply that three divinities received worship in common, and that besides these two other gods were honored in this sanctuary. The terra cotta deer furnishes a clew, but is not decisive evidence; deer were sacred to several divinities, among others to Apollo and 140 Artemis. A marble torso of about half life size, found on the declivity south of the temple, has been identified with some degree of probability as belonging to a statue of Apollo. Perhaps originally Apollo and Artemis were honored here, and with them Leto; but in an Oscan inscription discovered in 1897 the temple seems to be designated as belonging to Minerva (p. 240), who was perhaps also worshipped with them.
At the time of the eruption the temple was in ruins. It may have been in this condition only since the earthquake of 63, or for a longer time. That the worship might not be abandoned a poor shrine was built among the ruins, smaller than the old cella and a little further to the right; a drum of a column, set up on the flag in the floor of the cella, served as a pedestal for the image of the divinity. 141
Performances upon the stage were first given in Rome in the year 364 B.C.; a pestilence was raging, and the Romans thought to appease the gods by a new kind of celebration in their honor. The performers were brought from Etruria, and the exercises were limited to dancing, with an accompaniment on the flute. There was as yet no Latin drama. The first regular play was presented more than a century later, in 240 B.C., and the playwright was not a Roman but a Greek from Tarentum, Livius Andronicus, who translated both tragedies and comedies from his native tongue. The next dramatist was a Campanian, Gnaeus Naevius. The building of a theatre was not yet thought of; a temporary wooden platform was erected for the actors, and the spectators spread themselves out on the green slope of a hillside facing it.
When the censor Cassius Longinus in 154 B.C. commenced the erection of a theatre on the Palatine hill near the temple of Cybele, at whose festivals plays were given, the ex-consul Scipio Nasica rose in the Senate and in a speech full of feeling warned the Romans not to countenance this foreign amusement, on the ground that it would sap the foundations of the national character. His words produced so deep an impression that the Senate not only voted to pull down the part of the building already erected, and to refuse permission for the erection of similar buildings in the future, but even prohibited altogether the renting of seats at theatrical representations; Romans who wished to see a play must remain standing during a performance, or sit on the ground. Naturally so stringent measures could not long remain in force. Nine years later Mummius, the destroyer of Corinth, presented dramas in connection with his triumph, and put up 142 wooden seats for the spectators. The first stone theatre in Rome was built by Pompey, the rival of Caesar, in 55 B.C. In Pompeii, on the contrary, a permanent theatre had been erected at least a hundred years earlier.
The Oscan culture was so completely merged in that of Rome that our knowledge of it as an independent development is extremely slight; and no information has come down to us regarding the history of the native drama. From literary sources we know only of a crude form of popular comedy in which, as in the Italian Commedia dell' arte, there were stock characters distinguished by their masks,—Maccus a buffoon, Bucco a voracious, talkative lout, Pappus an old man who is always cheated, and Dossennus a knave. The scene of these exhibitions was always Atella, the Gotham of Campania, whence they were called Atellan farces.
The Theatre at Pompeii, however, is a proof that as early as the second century B.C., in at least one Campanian city, dramatic representations of a high order were given. Here, perhaps, as at Athens, they were associated with the worship of Dionysus; for the satyrs were companions of the Wine-god, and the head of a satyr, carved in tufa, still projects from the keystone of the arch at the outer end of one of the vaulted passages leading to the orchestra. Greek verse, and native verse modelled after the Greek, must have gained a hearing at Pompeii, and the works of Oscan poets—not a line of which has come down to us—must have stirred the hearts of the people long before Livius Andronicus, and Naevius, who brought inspiration from his Campanian home, produced their dramas at Rome.
In describing the Theatre it will be best to take up in order the three main divisions common to Greek and Roman buildings of this class: the cavea, the large outer part shaped somewhat like half a funnel, containing seats for spectators; the orchestra, the small semicircular portion enclosed by the cavea, with an entrance, parodos, on either side; and the stage, facing the orchestra and the cavea. The accompanying illustrations give a plan (Fig. 64), and a view of the ruins in their present condition (Fig. 65); the exterior as seen from the south is shown in Fig. 61. 143
The cavea afforded seats for about five thousand persons. The greater part of it, from the orchestra to the vaulted corridor under the summa cavea (Fig. 64, 6), lies on the slope of the hill; the floor of the corridor is on a level with the Forum Triangulare.
The seats are arranged in three semicircular sections. The lowest, ima cavea (4), next to the orchestra, contains four broad ledges on which, as well as in the orchestra itself, the members of the city council, the decurions, could place their chairs, the 'seats of double width.'
Fig. 64.—Plan of the Large Theatre.
View larger image
The middle section, media cavea (5), was much deeper, extending from the ima cavea to the vaulted corridor. It contained twenty rows of marble seats arranged like steps, of which only a small portion is preserved. On a part of one of these, individual places, a little less than 16 inches wide, are marked off by vertical lines in front, and numbered; they probably belonged to some corporation which found it necessary, in order to avoid confusion, to assign places to its members by number. In Rome the fourteen rows nearest the bottom were reserved for the knights. Whether a similar arrangement prevailed in the municipalities and the colonies is not known, but if so the number reserved here must have been smaller.
The upper section, summa cavea (6), supported by the vault over the corridor, was too narrow to have contained more than four rows of seats.
The ima cavea was entered from the orchestra. The media cavea could be entered on the lower side from the passage (diazoma, praecinctio) between it and the ima cavea, which at the ends was connected by short flights of steps with the parodoi leading outside; on the upper side six doors opened into the media cavea from the corridor, from which flights of 144 steps descended dividing the seats into five wedgelike blocks, cunei, with a small oblong block in addition on either side near the end of the stage.
The corridor was accessible by four doors, one from the Forum Triangulare, another from the open space between this and the rounded exterior of the Theatre, a third at the end of an alley east of the temple of Isis, and a fourth opening from a steep passage leading up from Stabian Street. The summa cavea, which for convenience we may call the gallery, was entered by several doors (the exact number is uncertain) from a narrow vaulted passage along the outside. This passage, however, did not extend the whole length of the gallery, but stopped where the outer wall of the Theatre joined that of the Forum Triangulare. Here a stairway led to it; there was a second stairway at the rear of the Palaestra, and a third leading from the alley east of the temple of Isis; the three are shown on Plan III. At the edge of the Forum Triangulare, a narrow stairway, built in the thick wall, led directly to the gallery (Fig. 64).
The outer wall back of the gallery rose to a considerable height above the last row of seats. On the inside near the top were projecting blocks of basalt (seen in Fig. 65), containing round holes in which strong wooden masts were set; from these the great awning, velum, was stretched over the cavea and orchestra to the roof of the stage, protecting the spectators from the sun. This sort of covering for the theatre was a Campanian invention, and here, where the cavea opened toward the south, was especially necessary. In the Coliseum, and the well preserved theatre at Orange, the arrangements for fastening the masts are on the outside of the wall. The upper part of the wall of our Theatre has been rebuilt in modern times, and it has been doubted whether the blocks of basalt and the pieces of cornice above with corresponding incisions are ancient; the latter surely are not modern, and their slightly wedged shape shows that from the beginning they must have been on the inside of the wall.
Near the front of the orchestra at the right and the left were small rectangular platforms; one is shown in Fig. 65. They 145 were supported by the vaults over the entrances (7, 7), and were reached by small stairways near the ends of the stage. They were called tribunals, and here, as in Rome, were no doubt reserved for the seats of those to whom special honor was paid. One was set aside for the use of the magistrate who gave the play; in Rome the vestal virgins, in accordance with a decree of Augustus, occupied the other, and in Pompeii their place was very likely taken by the city priestesses.
The shape of the orchestra is that of a semicircle enlarged in the direction of tangents at right angles with the diameter; a complete circle could be inscribed in the space. It was probably never used for a chorus, but was occupied by the seats of prominent spectators, particularly the city officials and their friends. It was entered by means of the vaulted passages under the tribunals.
The steps leading from the orchestra upon the stage (Fig. 65) can be explained only on the supposition that even in the Roman period, to which the steps in their present form belong, 146 actors who took the part of persons arriving from distant places came upon the stage through the orchestra. In the niches in front of the stage, as we learn from a wall painting, sat those charged with the maintenance of order in the Theatre, two perhaps in the rectangular niches, or one in the semicircular niche in the middle.
The stage is long and narrow, measuring 120 by 24 Oscan feet; the floor is a little more than three feet above the level of the orchestra. The rear wall, as in ancient theatres generally, was built to represent the front of a palace, entered by three doors, and adorned with columns and niches for statues. In each of the short sections of wall at the ends of the stage is a broad doorway, extending across almost the entire space. The long narrow room behind the stage, used as a dressing room (postscaenium), was entered by a door at the rear, which was reached by an inclined approach. No trace of the roof of the stage remains, but from the better preserved theatres at Orange, in the south of France, and at Aspendus, in Asia Minor, we infer that it sloped back toward the rear wall. The floor was of wood.
The room underneath the stage was divided into several parts. Between the front wall and that just back of it (seen in Fig. 65) was the place for the curtain, which, as in Roman theatres, was let down at the beginning of the play, and raised at the end. The space between the parallel walls must have been covered, leaving only a narrow slit for the curtain; otherwise it would not have been easy to go upon the stage from the steps in the orchestra.
Underneath the place for the curtain is a low passage, in the vaulted roof of which are two rows of holes, a little more than a foot square, cut in blocks of basalt, and evidently designed to hold upright timbers. This passage has in recent years been entirely cleared. In the floor, directly under the openings in the vaulted roof and corresponding with them, were square holes. In those nearer the front of the stage were remains of timbers and of square pieces of iron fitted to the ends of these, a larger and a smaller piece for each hole. It seems likely that, as Mazois suggested, hollow upright beams 147 were set in the holes, and in them smaller hollow beams were placed, in which were still smaller poles or iron rods; by the sliding of these up and down, the long horizontal pole on which the curtain was hung could be raised or lowered. The use of the inner row of holes has not been satisfactorily explained.
The room under the right of the stage is so low, about three feet, that it could not have been available for any purpose, but that at the left is higher, and was used for theatrical machinery, the scanty remains of which arouse our curiosity without satisfying it. In the floor are set two oblong blocks of limestone, about four feet in length. Each has in its upper surface a round hole, between two and three inches deep, with an iron socket, in which there are still remains of an iron cap once fitted to the lower end of a vertical wooden shaft that turned in it; the upper end of the shaft—assuming that the blocks are in their original position—must have revolved in a socket fixed in one of the joists of the stage floor. There is besides on the upper surface of each block a rectangular depression, and on either side a shallow incision; the purpose is altogether obscure. A third stone, similar to these two, is set in the north wall of the same room, and opposite it was fitted another; here, then, a horizontal shaft turned; there was a similar pair of stones at the left end of the place for the curtain. These arrangements suggest the crane-like machine by which floating figures were brought upon the stage, as Medea in the play of Euripides riding in a chariot drawn by dragons, and the familiar deus ex machina; such machinery, according to Pollux (Onomast. IV. 128), was placed on the left side of the stage.
When plays were presented, the front of the palace at the back of the stage was concealed by painted scenery. As several pieces might be produced one after the other, it was necessary to arrange for the shifting of scenes. This was accomplished by drawing one set of decorations off to the sides, thus bringing the next set into view (scaena ductilis); the ends were changed by turning the periactoi, huge three-sided prisms, each side of which was suited to a different scene (scaena versilis). In spite of the clumsiness of the arrangements, as contrasted with those of the best modern theatres, the mounting 148 of plays was artistic and impressive, and compares favorably with that of Shakespeare's time.
The only allusions to matters connected with theatrical representations at Pompeii are in inscriptions relating to actors, as Sorex (p. 176). A number of graffiti scratched on walls in various parts of the city mention an Actius Anicetus, whose name is given in full in an inscription found at Puteoli, C. Ummidius Actius Anicetus. He seems to have been a very popular actor of pantomime, at the head of a troupe. One of the inscriptions reads: Acti, a[mor] populi, cito redi,—'Actius, darling of the people, come back quickly!'
The theatre in antiquity was by no means reserved for scenic representations alone. It was a convenient place for bringing the people together, and was used for public gatherings of the most varied character. In the theatre at Tarentum the memorable assembly met which heaped insults upon the Roman ambassadors and precipitated war with Rome. At Pergamos King Mithridates was to be crowned in the theatre by a descending Victory, but by some mishap the wreath fell to the floor, an omen of evil. When the Ephesians, stirred up by Demetrius the silversmith, wished to take measures against Paul and his companions, "They rushed with one accord into the theatre." On such occasions we may suppose that the front of the palace at the rear of the stage served as a background without other decoration. This use of the theatre for general purposes was a Greek rather than a Roman custom, but the theatre itself in Italy was an importation from Greece; and we may suppose that the theatre at Pompeii was on more than one occasion the scene of notable demonstrations.
Our Theatre, as is evident from the character of the construction, in its original form belonged to the Tufa Period, but was rebuilt in Roman times. Some particulars in regard to the rebuilding are given in an inscription: M. M. Holconii Rufus et Celer cryptam, tribunalia, theatrum,—'Marcus Holconius Rufus and Marcus Holconius Celer (built) the crypt, the tribunals, and the part designed for spectators,' that is, the vaulted corridor under the gallery, the platforms over the entrances to the orchestra, and the cavea. 149
The two Holconii lived in the time of Augustus. The elder, Rufus, was duumvir for the fourth term in 3-2 B.C. The work on the Theatre was probably done about that time; for soon afterwards, before his fifth duumvirate, a statue in his honor was erected in the Theatre, as we learn from an inscription. Later, in 13-14 A.D., the younger Holconius also, when he had been chosen quinquennial duumvir, was honored with a statue. The masonry of the corridor and of the exterior arches supporting it, as well as of the tribunals, well agrees with that in vogue in the Augustan Age; we find brick-shaped blocks of tufa and reticulate work. The marble seats in the cavea may be assigned to the same period; in the original structure the benches must have been of tufa. About the same time the present wall at the back of the stage was built, in the place of an older and much simpler façade, but not by the Holconii; if this also had been rebuilt by them, it would have been mentioned in the inscription.
Possibly the tribunals were an addition due to the Holconii. The corridor under the gallery, however, must have been built in the place of an earlier corridor, for the piers on the outside rest on foundations similar in character to the oldest parts of the building. As these piers served no other purpose than to sustain the passage opening into the section of seats above the corridor, this must have formed a part of the original plan.
The statues of both the Holconii probably stood in niches in the wall at the back of the stage. Holconius Rufus was further honored with a monument of some sort in the cavea. The lowest seat of the media cavea had at the middle, directly opposite the stage, a double width for a distance of about five feet, gained by removing a portion of the next seat above. Here was an inscription in bronze letters: M. Holconio M. f. Rufo, II. v. i. d. quinquiens, iter[um] quinq[uennali], trib[uno] mil[itum] a p[opulo], flamini Aug[usti], patr[ono] colo[niae], d[ecurionum] d[ecreto],—'[Dedicated] in accordance with a decree of the city council to Marcus Holconius Rufus the son of Marcus, five times duumvir with judiciary authority, twice quinquennial duumvir, military tribune by the choice of the 150 people, priest of Augustus, and patron of the colony.' The object placed here was of bronze, and was made secure by fastenings set in twelve holes; what it was is altogether uncertain. The ancients had the custom of conferring lasting honor upon a deserving man after death by placing in the theatre a seat inscribed with his name. We should be glad to believe that a 'seat of double width,' bisellium, the use of which was allowed to members of the city council, was placed here, but the arrangement of the twelve holes is difficult to reconcile with this explanation.
The architect employed by the Holconii, a freedman, was not honored with a statue, but his name was transmitted to posterity in an inscription placed in the outer wall near the east entrance to the orchestra: M. Artorius M. l[ibertus] Primus, architectus,—'Marcus Artorius Primus, freedman of Marcus, architect.'
The plan of the Theatre could not have been taken from a Roman model; it conforms, as we should have expected, to the Greek type. In the Roman theatre the orchestra was in the form of a semicircle, of which the diameter was represented by the stage. In Greek theatres, on the contrary, the stage according to Vitruvius was laid out on one side of a square inscribed in the circle of the orchestra; the orchestra, as shown by existing remains, in most cases was either a complete circle or was so extended by tangents at the sides that a circle could be inscribed in it. The latter is the case in our Theatre, of which the orchestra has essentially the same form as that of the theatre of Dionysus at Athens.
The stage falls under the limit of height,—five feet,—allowed by Vitruvius for the stage of the Roman theatre, not to mention the height of ten to twelve feet specified for that of the Greek type. The reason assigned for the moderate elevation of the Roman stage is that the orchestra was occupied by the seats of senators, whose view would be obstructed if more than a moderate elevation should be given to the front of the stage. The orchestra of our Theatre was apparently from the beginning intended for the use of spectators, not for a chorus. 151
The conclusions reached by Dr. William Doerpfeld in regard to the stage of the Greek theatre, if borne out by the facts, would necessitate a complete abandonment of previous views on the subject. His theory, in brief, is, that not only the chorus but also the actors went through their parts not on the stage but in the orchestra, which had the form of a circle, and that what we are accustomed to consider the front wall of the stage was rather the rear wall of the platform in the orchestra on which the actors and chorus stood, this wall being laid out on a tangent of the circle and having a height of twelve feet, as we may understand from Vitruvius and from the remains of the theatre at Epidaurus.
The main reasons advanced in support of this theory are that the platform currently regarded as the stage, which according to Vitruvius and the existing remains was hardly more than ten feet wide, must have been too narrow to allow free movement on the part of the actors, and that the height above the orchestra was too great to admit of the close relation between the actors and the chorus, of which there is abundant evidence in the extant dramas. According to Dr. Doerpfeld, the stage came into existence in Italy first, and in the Roman period, when there was no longer any chorus; a platform five feet high was built for the actors, extending to the middle of the orchestra, so that this now took the form of a semicircle and could be used for the seats of spectators.
To undertake the examination of Dr. Doerpfeld's theory in detail would not be pertinent here; yet we cannot bring our description of the Theatre at Pompeii to a close without inquiring whether this structure, which is perhaps a century older than the oldest Roman theatre, shows any trace of the arrangement which the theory assumes. Unfortunately, the evidence is not conclusive for either a negative or an affirmative answer. Just as this second edition goes to press a joint investigation of the whole matter has been undertaken by the author and Dr. Doerpfeld, whose work is being facilitated by excavations. It is yet too early to anticipate the conclusions to which the evidence thus gained will lead; we may hazard a tentative statement in regard to only one or two points. 152
It now appears probable that the present stage was not constructed at the same time with the other parts of the Theatre, but that it is a later addition. There is no trace of an earlier stage, and there is nothing to indicate that this was built against the part of the structure designed for the spectators. We might assume that this earlier stage was placed at a slight distance from the other parts of the building, and that the entrances of the orchestra, the parodoi, lay between, were it not for the fact that the outer doorways of the present parodoi—notably that on the west side with the head of a satyr on the keystone—unquestionably belong to the original structure; and we should not be warranted in assuming two entrances to the orchestra on each side. At the same time it is evident that the construction of the tribunalia must have involved a rebuilding of this part of the Theatre, and it is possible that originally passages led from the outer doors of the present parodoi, not to the orchestra, but to the ranges of seats. In that case, assuming that the stage was slightly removed from the rest of the structure, we may freely grant that the acting may have gone on in front of it rather than upon it, and that this may have been a Greek theatre according to Dr. Doerpfeld's view. But we are here dealing only with possibilities; it is to be hoped that further investigation will bring to light data for a final solution of the problem.
In the open space between the Theatre, the Forum Triangulare, and the Palaestra there is a deep reservoir for water (D), square on the outside and round within. It was evidently used for the sprinklings, sparsiones, with saffron-colored water, by which on summer days the heat of the Theatre was mollified. That such sprinklings were in vogue in Pompeii is known from announcements of gladiatorial combats, painted on walls, in which they are advertised together with an awning as part of the attraction,—sparsiones, vela erunt. 153
The names of the builders of the Small Theatre are known from an inscription which is found in duplicate in different parts of the building: C. Quinctius C. f. Valg[us], M. Porcius M. f. duovir[i] dec[urionum] decr[eto] theatrum tectum fac[iundum] locar[unt] eidemq[ue] prob[arunt],—'Gaius Quinctius Valgus the son of Gaius and Marcus Porcius the son of Marcus, duumvirs, in accordance with a decree of the city council let the contract for building the covered theatre, and approved the work.' Later the same officials, when, after the customary interval, they had been elected quinquennial duumvirs, built the Amphitheatre 'at their own expense' (p. 212).
When two magistrates set up an inscription in duplicate, ordinarily the name of one appears first in one copy, while that of the second is put first in the other. In all four inscriptions, however, two at the Small Theatre and two at the Amphitheatre, Valgus has the first place. The reason in the case of the Amphitheatre is not far to seek: Valgus was the man of means, who furnished the money for the building, but allowed his colleague and friend to share in the honor. We may also believe that, while the Small Theatre was erected 'in accordance with a decree of the city council,' and hence presumably at public expense, a part of the funds was contributed by Valgus, who on this account received honor above his less opulent colleague.
The son-in-law of this Valgus, Publius Servilius Rullus, has been undeservedly immortalized by a speech of Cicero in opposition to a bill brought forward by him in regard to the division of the public lands. From the same oration we learn that Valgus, 154 a man without scruples, had taken advantage of the reign of terror instituted by Sulla to acquire vast wealth, particularly in the way of landed property. Among his estates was one in the country of the Hirpini, near the city of Aeclanum (south of Beneventum), which made him its patron and for which, as shown by an inscription, he repaired the walls destroyed in the Civil War. He was undoubtedly one of the leading men in the colony founded by Sulla at Pompeii, and very likely sought by large public benefactions to cast his former life into oblivion. The Small Theatre must have been built in the early years of the Roman colony, not long after 80 B.C.
A covered auditorium in the immediate vicinity of a large unroofed theatre was not uncommon. About the time of the destruction of Pompeii the poet Statius, praising the magnificence of his native city Naples, speaks of 'twin theatres in a single structure, one open and one roofed,'—geminam molem nudi tectique theatri. Our only clew to the special use of such a 155 building, however, is derived from the one erected at Athens by Herodes Atticus, in the reign of Hadrian. This was called an Odeum, that is, according to the derivation of the word, a room for singing; musical entertainments were held there, especially, we may assume, those musical contests which had so important a place in ancient festivals. The purpose of the roof was doubtless to add to the acoustic effect.
The plan of the Large Theatre has been discussed at so great length that a few words will suffice in relation to that of the smaller structure (Fig. 66). That it might be possible to cover the enclosed space with a roof, the upper rows of seats were reduced in length, and the whole building—cavea, orchestra, and stage—was brought into an oblong shape; only the orchestra and the lower rows of seats in the cavea form a complete semicircle. The pyramidal roof was supported by a wall on all four sides; in the upper part of the wall, between the roof and the highest row of seats, there were probably windows.
The seating capacity of the building was about fifteen hundred. The lowest section of the cavea, as in the Large Theatre, consisted of four low, broad ledges on which the chairs of the decurions could be placed. Above these is a parapet, behind which is a passage accessible at either end by semicircular steps. The broad range of seats above was divided into five wedge-shaped blocks by flights of steps; only two of these, however, extended as far as the passage running along the upper side, which could be reached from the alley at the rear of the building by means of stairways connecting with outside doors.
The seats were of masonry capped with slabs of tufa about seven inches thick. They had depressions in the side and in the top, as may be seen in the accompanying section (Fig. 68). They were thus made somewhat more comfortable, the person in front being less subject to disturbance from the feet of one sitting on the next seat behind; a saving of room was also effected—an important consideration in the construction of a small auditorium. 156
The tribunals (3, 3) differed from those in the Large Theatre in that they were shut off entirely from the seats of the cavea by a sharply inclined wall, and were entered only from the stage, by means of narrow stairways; in this way the exclusive character of the seats was made still more prominent. Besides the platform itself, measuring only about 11 by 9 feet, three seats above each tribunal were set off with it by the same division wall and were available for the occupants.
The sloping wall between the tribunal and the cavea on each side ends with a kneeling Atlas (Fig. 69); large vases probably stood on the two brackets supported by these figures. The end of the parapet on either side is embellished with a lion's foot of tufa (Fig. 70). These rather coarse sculptures illustrate the character of the art that was brought to Pompeii by the Roman colony. The workmanship is by no means fine, yet the muscles of the figures are well rendered, and the effect is pleasing.
The pavement of the orchestra (seen in Fig. 67) consists of small flags of colored marble. An inscription in bronze letters informs us that it was laid by the duumvir Marcus Oculatius Verus pro ludis, that is instead of the games which he would otherwise have been expected to provide.
At the ends of the stage, as in the case of the Large Theatre, there were two broad entrances. The wall at the rear, which was veneered with marble, had the customary three doors, and in addition two small doors, one near each end. The long dressing room behind the stage had likewise two broad entrances at the ends, besides four at the rear. Apparently the two narrow doors near the ends of the wall at the rear of the stage, and the two doors corresponding with them at the back of the dressing room, were for the use of those who had seats on the tribunals; they could thus enter and leave their places even when the large side doors of both stage and dressing room had been shut—as undoubtedly happened immediately after the procession (pompa) had passed across the stage. 157
'Behind the stage,' says Vitruvius (V. ix.), speaking of the arrangements of the theatre, 'colonnades should be built, that shelter may be afforded to spectators in case of rain and a place provided for making preparations for the stage.'
Fig. 71.—Plan of the Theatre Colonnade, showing its relation
to the two theatres.
View larger image
This maxim of ancient architects was applied at Pompeii in a generous way; in connection with the theatres there was an extensive system of colonnades. To understand their use it will be necessary first to view them as they were in the earlier time, and then to take account of later changes.
In the Oscan Period, and afterwards to the end of the Republic, 158 when a performance in the Large Theatre was interrupted by a shower, the spectators in the upper seats could take refuge under the colonnade of the Forum Triangulare; those below found shelter under the rectangular colonnade at the rear, which was obviously built for the purpose, and may be called, by way of distinction, the Theatre Colonnade (Fig. 71). It contained seventy-four Doric columns, and enclosed a large open area. The main entrance (2) was near the northeast corner. The entrance hall on the side of the colonnade was supported by three Ionic columns. It was connected at the north end with a short colonnade on the east side of the area back of the stage of the Theatre; this led to the large door at the east end of the stage and the corresponding parodos of the orchestra; the wall at 4 on our plan is a later addition. The Theatre Colonnade must have been used also as a promenade on days when there was no performance; it was connected by a broad passage (1) with Stabian Street.
This colonnade seems too far away to have served as a place for making preparations for the stage; another was erected for that purpose. At the northwest corner a broad stairway leads down from the Forum Triangulare (5; cf. Fig. 65); from the foot a small and inconvenient flight of steps leads into the area at the rear of the stage. In a line with the stairway is a series of small rooms opening toward the south. These do not belong to the original structure. In their place there was once a colonnade, which faced the north and connected the large stairway with the short colonnade, the remains of which are still to be seen on the east side of the area; the back of it was at the same time the back of the north division of the Theatre Colonnade. There was thus a covered passage extending from the foot of the stairway along two sides of the area to the east entrance of the stage and of the orchestra, which would answer very well to the second part of Vitruvius's dictum; but it had also another important use.
The portico of the Forum Triangulare, as we have seen, was at the same time the monumental entrance of the Theatre, and the large doorway at the left was used only for the ceremonious admission of the city officials, who with their retinue formed a 159 procession in the Forum and wended their way hither in festal attire in order to open the performance—a formality that may be compared with the parade with which the Roman games were opened at Rome.
The route of such a procession, after entering the Forum Triangulare, is now clear. It passed along under the colonnade adjoining the Theatre, beyond the entrances to the upper portion of the cavea; turned and descended the broad stairway (5), proceeded under the colonnade along the south and east sides of the area behind the stage, and finally came upon the stage through the wide doorway at the east end. It was indeed possible to pass beyond the stage entrance and proceed through the parodos directly to the seats of the orchestra and the lowest section of the cavea; but it is more in accordance with the fondness of the ancients for display to suppose that the procession moved across the stage, receiving as it passed the plaudits of the great audience, and emerged from the entrance opposite that by which it came in, disbanding in the court, whence the members could go to their respective seats. We need not here raise the question whether the procession passed upon the stage behind the triangular side screens (periactoi), or whether these were set in place only after it had already passed.
When the colonnade on the south side of the court had been replaced by rooms, and the Theatre Colonnade itself had been transformed into barracks, this route of the processions was blocked. They could still pass down the street in front of the temple of Isis, turn into Stabian Street, and reach the stage through the passage at the rear of the Small Theatre; but it does not seem probable that they followed this course, for the reason that there are three large stepping stones in the street before one comes to the entrance of the passage; these would have proved a serious obstruction, and would undoubtedly have been removed had the processions gone this way.
We may rather believe that before the usual route was closed the processions themselves had been given up. They were still in vogue, however, when the Small Theatre was built; otherwise the purpose of the wide entrances at the ends of the stage and of the room back of it is not clear. Moreover the sidewalk 160 in front of the Small Theatre, on Stabian Street, is of an altogether unusual width, and was apparently covered by a portico. We infer that the procession to this theatre entered at the west end of the stage, and passed out at the east end; since it could not disperse on the street, it would turn where the sidewalk was broadest, go back through the room at the rear of the stage into the court, and there disband.
The discontinuance of the processions must then be assigned to the period between the building of the Small Theatre and the changing over of the Theatre Colonnade into barracks, which, to judge from the masonry and the remains of the decoration, did not take place before the time of Nero. The processions were abandoned either in the troubled period of the Civil Wars, or in the early years of the Empire; if in the latter period, their discontinuance may have been due to legislation connected with the reorganization of the Empire under Augustus, or to the overshadowing of them by more imposing ceremonies introduced in connection with the religious festivals.
Our information in regard to the later use of the Theatre Colonnade is indeed meagre; not a single inscription bearing upon it has been found. Yet when we take into account the changes that were made in it, and the objects found there, the supposition that it was turned into barracks for gladiators in the time of the Early Empire, and so used till the destruction of the city, is seen to harmonize with almost all the facts.
First, rooms were built on all sides behind the colonnade; on the north side they took the place of the south arm of the colonnade in the area back of the stage. They were in two series, one above the other; the upper rooms were entered from a low wooden gallery accessible by three stairways. They could not have been intended for shops; they were too small, measuring on the average hardly more than twelve feet square, and the doors were too narrow. There were no doors opening from one room into the other. Both lower and upper rooms, we may conclude, were used for men's quarters.
In the middle of the south side a large room was left, with the front open toward the area, an exedra (6). On the east side was a still larger room the front of which is divided off 161 by pillars; other rooms open from it, and among them is one (10) with several hearths, evidently intended for a mess kitchen, if the hearths are ancient; they may be modern. Over these rooms was a second story, reached by a broad stairway (9).
The immediate connection of the colonnade with the area behind the stage was now cut off by a wall (4); there was left only a small door in the corner, which could be readily fastened. The entrance from the passage leading to Stabian Street (2) was provided with doors and placed under the control of a guard, for whom a special room was built at one side (3). There was a third entrance, narrow and easily closed, at the northwest corner, where a flight of steps connected the foot of the broad stairway (5) with the landing of the stairs leading to the wooden gallery.
Thus a complete transformation was effected. The promenade for theatre-goers had become barracks, with a great number of cell-like rooms, a mess kitchen, and narrow, guarded entrances. Soldiers, however, could not have been kept here; in the period to which the rebuilding belongs, garrisons were not stationed in the cities of Italy except the Capital. On the other hand, gladiatorial combats in Pompeii were so frequent, and on so large a scale, that a special building for the housing and guarding of gladiators would seem to have been a necessity; such a building would naturally have been erected by the city and placed at the disposal of those who gave the games. As early as the time of Augustus, Aulus Clodius Flaccus brought forward forty pairs of gladiators in a single day, and on various occasions afterwards as many as thirty pairs were engaged. How well the colonnade was now suited for gladiators' quarters may be seen from a glance at the plan. The area would serve as a practice court, the exedra on the south side (6), protected from the sun, as the station for the trainers and lounging room for men awaiting their turn; the mess room would be the large apartment adjoining the kitchen (11), while the quarters of the chief trainer, lanista, and his assistants, would be in the second story, reached by the broad stairway (9).
The small rooms were poorly decorated, in the fourth style. There were better paintings only in the exedra. On the rear 162 wall of this room was the oft repeated group of Mars and Venus; on the side walls, gladiatorial weapons were represented, piled up in heaps, after the manner of trophies, about eight feet high. The reference to the purpose of the building, as in the case of the paintings in the Macellum, is obvious. The columns about the area were originally white; after the rebuilding the unfluted lower part was painted red, the upper part yellow. Four columns, however, two at the middle of the east side, and the two opposite them on the west side, were painted blue, probably to serve as bounds in marking off the area for athletic exercises.
The objects found in the barracks are recorded in the journal of the excavations. They indicate that at the time of the eruption the rooms were occupied. Everything of value was removed from those on the north side by the survivors, but the south half was apparently left undisturbed, and has yielded a rich harvest.
In ten rooms the excavators found a great quantity of weapons of the kinds used by gladiators, including fifteen helmets, a shield, greaves (Fig. 72), several broad belts trimmed with metal, and a couple of armlets; there were more than a hundred scales of horn belonging to a coat of mail, and a half dozen shoulder protectors, galeri, which the net fighter, retiarius, who carried no shield and was armed only with a net and a trident, wore on his left shoulder. The weapons were mostly for defence, but remains of a few offensive weapons were found, as the head of a lance, a sword, and a couple of daggers. In the same room with the daggers and the sword (perhaps 7) were the remains of two wooden chests containing cloth with gold thread; this may have been used in gladiators' costumes.
The helmets are characteristic (Fig. 73). They are furnished with a visor, and part of them have a broad rim, richly ornamented with reliefs; their shape corresponds exactly with that 163 of the helmets seen in paintings and reliefs representing gladiatorial combats. The shield, which is round and only about sixteen inches in diameter, would have been quite useless in military service. In a room under the stairs the skeleton of a horse was found, with remains of trappings richly mounted with bronze; one class of gladiators, the equites, fought on horseback.
One of the small rooms on the west side (8) was used as a guard room. Here were the stocks, the remains of which are shown in Fig. 74; they were fastened to a board. At one end of the under piece was a lock, by which the bar passed through the rings could be made secure. The men confined had the choice of lying down or sitting in an uncomfortable position. The four persons whose skeletons were found in this room, however, were not in the stocks at the time of the eruption. That such means of discipline should be employed in controlling gladiators is entirely consistent with ancient methods.
Besides these finds, there were others not so easily explained. In the two rooms in which the spearhead and the other offensive weapons were found, there were eighteen skeletons, among them that of a woman richly adorned with gold jewelry; she had a necklace with emeralds, earrings, and two armbands, besides rings and other ornaments, and in a casket a cameo, the elaborate setting of which is in part preserved. In a room near 164 the southwest corner the bones of a new-born infant were found in an earthen jar. A number of weights also were discovered, and vessels of terra cotta and glass; in three rooms there were more than six dozen small saucers. Were the barracks wholly given up to gladiators at the time of the eruption, or were some other persons allowed to have quarters here, perhaps some of those whose houses had been destroyed by the earthquake of 63 and had not been rebuilt? A certain conclusion cannot be reached. 165
The oblong court north of the Large Theatre, between the entrance of the Forum Triangulare and the temple of Isis, is the Palaestra. Originally, the enclosed area was entirely surrounded by a colonnade, with ten columns on the sides and five at each end; but at a comparatively late period, probably after the earthquake of 63, the columns at the east end were removed and the space thus gained was added to the temple of Isis.
A number of the columns on the other three sides are still standing. They are Doric but of slender proportions, the height, 10½ feet, being equal to eight diameters, while the intercolumniations measure about nine feet. It is doubtful whether the columns carried a complete entablature; more likely the roof rested directly on a wooden architrave.
The building clearly dates from the pre-Roman period. The columns are of tufa coated with stucco, the dimensions of the colonnade (90 by 36 Oscan feet) reduce to the early standard of measurement; and an Oscan inscription was found here which says that the building was erected by the Quaestor Vibius Vinicius, with money which Vibius Adiranus had left by will to the Pompeian youth. The translation of the word vereiiai, 'to the youth,' otherwise doubtful, is confirmed by various facts which indicate that the building was intended as a small palaestra or open-air gymnasium for boys.
While the Palaestra had its original length, the entrance, which is now nearer the east end, was at the middle of the north side. Opposite it, near the colonnade on the south side, is a pedestal of tufa, before which stands a small table of the 166 same stone (Fig. 76). The pedestal is reached by narrow steps. Here stood a statue of the patron divinity of the Palaestra. When an athletic contest was held, the wreath intended for the victor was laid on the stone table before the god; after the award had been made, the successful contestant took up the wreath and dedicated it to the divinity by mounting the steps and placing it on the head of the statue. It is evident from the height of the steps that the contestants were boys, not men.
On the pedestal was undoubtedly a statue of Hermes, but not of the type which we have already met with in the court of the temple of Apollo (p. 88), and shall find later in the palaestra of the Stabian Baths (p. 200); a base of this sort can hardly have been intended for a herm. No trace of the missing statue has been discovered.
Another statue stood at the foot of one of the columns on the south side. It is a copy of the doryphorus of Polyclitus, and is 167 now in the Naples Museum (Fig. 77). Though it has been restored, there seems no good reason to believe that the restoration is incorrect, and that the figure is really a Hermes, having originally carried on the left shoulder a herald's staff with entwined snakes, caduceus, instead of a spear. For the adornment of a place devoted to athletic exercises nothing could have been more appropriate than a copy of the doryphorus as an ideal of youthful strength, of harmonious physical development; and the Elder Pliny bears witness (N. H. XXXIV. v. 18), that it was customary to set up such statues in a palaestra. This figure had no pedestal; it stood on the ground, a man among men.
At the west end of the court were dressing rooms where the boys, before exercising, could anoint themselves and afterwards could remove the oil and dirt with the strigil; such a dressing room in connection with a bath was called a destrictarium. Water was brought into the court by a lead pipe, which passed through one of the columns at the right of the entrance and threw a jet either into a basin standing below or into the gutter in front of the colonnade.
It would be of interest to know what athletic exercises were practised in the Palaestra; but apart from the pedestal with its steps and table no characteristic remains were found here. The exercises in the Roman period undoubtedly differed somewhat from those practised at the time when the building was erected, when the Greek system was everywhere in vogue. 168
The loftiest and purest religious conceptions of the ancient Egyptians were embodied in the myth of Isis and Osiris, which in the third millennium B.C. had already become the basis of a firmly established cult. These conceptions approached the monotheistic idea of an omnipresent god, and with them was associated a belief in a blessed immortality. Isis was the goddess of heaven, and Osiris was the Sun-god, her brother and husband, who is slain at evening by his brother Set,—the Greek Typhon,—ruler of darkness. Their child Horus, also called Harpocrates, born after the father's death, is the fresh sun of the new day, the successor and avenger of his father, the conqueror of Set; he becomes a new Osiris, while the father, ever blessed, rules in the realm of the dead, the kingdom of the West. Man, the followers of Isis taught, is an incarnation of deity, whose destiny is also his. He is himself an Osiris, and will enter upon a better state of existence beyond the grave if a favorable judgment is passed upon him in the trial given to the dead.
The worship of Isis, associated with Mysteries from an early period, was reorganized by the first Ptolemy with the help of Manetho, an Egyptian priest, and Timotheus, a Greek skilled in the Eleusinian Mysteries. The purpose of the king was to unite his Egyptian and Greek subjects in one faith, and the effort was more successful than might have been anticipated. In its new Alexandrian form the worship of Isis and Osiris, or Serapis, as the latter divinity was now called, spread, not only over all Egypt, but also over the other countries in the East into which Greek culture had penetrated, and soon made its way to Italy and the West.
Various causes contributed to the rapid extension of the cult. 169 It had the charm of something foreign and full of mystery. Its doctrine, supported by the prestige of immemorial antiquity, successfully opposed the mutually destructive opinions of the philosophers, while at the same time its conception of deity was by no means inconsistent with philosophic thought; and it brought to the initiated that expectation of a future life to which the Eleusinian Mysteries owed their attractive power. The ascetic side of the worship, too, with its fastings and abstinence from the pleasures of sense, that the soul might lose itself in the mystical contemplation of deity, had a fascination for natures that were religiously susceptible; and the celebration of the Mysteries, the representation of the myth of Isis in pantomime with a musical accompaniment, appealed powerfully to the imagination. The cult also possessed elements that brought it nearer to the needs of the multitude. The activities of the Egyptian divinities were not confined to the other world; their help might be sought in the concerns of this life. Thus the chief priest could say to Apuleius that Isis summoned her elect to consecrate themselves to her service only when the term of life allotted to them had really expired, and that she lengthened their tale of years, so that all of life remaining was a direct gift from the hands of the goddess. The priests of Isis were looked upon as experts in astrology, the interpretation of dreams, and the conjuring of spirits.
A college of the Servants of Isis, Pastophori, was founded in Rome in the time of Sulla, about 80 B.C. In vain the authorities tried to drive out the worship of the Egyptian gods. Three times their temple, in the midst of the city, was destroyed by order of the consuls, in 58, 50, and 48 B.C. But after Caesar's death, in 44 B.C., the triumvirs built a temple in honor of Isis and Osiris; and a few decades later, perhaps in the reign of Caligula, their festival was recognized in the public Calendar. In Campania the Alexandrian cult gained a foothold earlier than in Rome. An inscription of the year 105 B.C., found at Puteoli, proves that a temple of Serapis was then standing in that enterprising city, which had close commercial relations with Egypt and the East. Soon after this date the earlier temple of Isis at Pompeii must have been built. 170
Fig. 78.—Plan of the temple of Isis.
View larger image
The entrance to the court of the temple (Fig. 78) is from the north. Above the door is an inscription which informs us that after an earthquake (that of the year 63) Numerius Popidius Celsinus, at his own expense, rebuilt the temple of Isis from the foundation, and that in recognition of his generosity, though he was only six years of age, the members of the city council, the decurions, admitted him without cost to their rank: N[umerius] Popidius N[umerii] f[ilius] Celsinus aedem Isidis terrae motu conlapsam a fundamento p[ecunia] s[ua] restituit; hunc decuriones ob liberalitatem, cum esset annorum sexs, ordini suo gratis adlegerunt. The temple evidently belonged to the city; and the places for statues in the court, as the inscriptions show, were assigned by vote of the city council.
Other inscriptions give information in regard to the family of the child Celsinus. His father was Numerius Popidius Ampliatus, his mother Corelia Celsa; a brother bore the same name as the father. The real rebuilders were of course the parents; by associating their munificence with the name of their son, they opened the way for him to the city offices, for which the father, a freedman, was not eligible. Ampliatus perpetuated his own name by setting up a statue of Bacchus in a niche in the outside of the rear wall of the temple (at c on the plan), with the inscription: N. Popidius Ampliatus pater p. s., 'Numerius Popidius Ampliatus the father (set up this statue) at his own expense.' The names of the two sons appear with that of their mother in the mosaic floor of the large room (6) behind the colonnade at the rear.
Though the rebuilding of Celsinus was 'from the foundation,' 171 remains of the old temple were utilized, as shafts of columns and Corinthian capitals coated with white stucco; and the plan of the new building was very nearly the same as that of the old. The stylobate of the colonnade belongs to the earlier structure, but the columns originally stood nearer together, eight instead of seven at the ends, and ten on the sides.
The architectural forms and the workmanship of these remains point to a time just after the founding of the Roman colony; nevertheless the dimensions of the colonnade, approximately fifty by sixty Oscan feet, reduce to the pre-Roman standard of measurement, and the building may have been commenced earlier. In later times the increasing number of the worshippers of Isis made necessary an enlargement of the sanctuary. The two rooms at the west end (5 and 6) were added at the expense of the Palaestra, probably at the time of the rebuilding.
In the middle of the court, which is surrounded by the colonnade, is the temple, consisting of an oblong cella (2), the east side of which is treated as a front, with a portico borne by six columns (1). A pit for the refuse of sacrifices, enclosed by a wall (b) stands in the corner of the court near the entrance from the street; in the opposite corner there is a larger enclosure having the appearance of a small temple (4). Near this are two altars; a third altar stood close to the temple, and there are five others, somewhat smaller, between the columns. On the south side, between the colonnade and the Theatre, is a small area of irregular shape, east of which is a dwelling containing five rooms (7, 8, 9).
The accompanying illustrations show the temple as it is to-day (Fig. 79) and as it was before the eruption (Fig. 80). It has architecturally nothing suggestive of the Egyptian style. Yet the plan presents a marked deviation from ordinary types, as if the builders, erecting an edifice for the worship of foreign gods, strove with set purpose to produce a bizarre effect; at the right and the left of the front of the cella is a large niche, projecting beyond the sides of the portico, and inorganically connected with the main part of the temple by a pilaster. In the ornamentation of this temple, as in that of the temple of Apollo, 172 the simple and chaste forms of the Greek architecture were replaced by gaudy stucco ornaments more in harmony with the prevailing taste.
Besides the broad flight of steps in front, a narrow stairway at the left of the temple led to a side door opening into the cella. A base of masonry about six feet high extends across the rear of the cella, on which were two pedestals of tufa, about sixteen inches square, for the statues of Isis and Osiris. In the two large niches outside other divinities stood, perhaps Anubis and Harpocrates. The latter was apparently worshipped also at the shrine in the wall on the east side of the court (3), facing the doorway of the cella. A painting from this shrine, now in the Naples Museum, represents a statue of Harpocrates of the familiar type—a boy with his finger in his mouth holding a cornucopia, with a lotus blossom resting on his forehead; before him stands a priest in a long white robe, holding a candlestick in each hand, while in the background is a temple surrounded by a colonnade, evidently intended for a free representation 173 of the temple before us. In front of the shrine were the charred remains of a wooden bench.
No statue was found in the cella or in the two niches in front. We may suppose that the images of the four divinities, being of relatively small size, were carried off by the priests at the time of the eruption; had they been removed afterwards, the excavators would have taken also the other objects in the cella used in the services of the temple. Among these were two skulls, probably made use of in the ceremonies attending initiation into the Mysteries, and a marble hand, about four inches long, but whether a right or a left hand, the journal of the excavations does not say. A left hand was carried in the procession in honor of Isis, described by Apuleius; as the weaker of the two, and so less ready to do evil, it symbolized the even justice (aequitas) with which the deity governs the world. There were also two wooden caskets, one of which contained a diminutive gold cup, measuring less than an inch across the top, a glass vessel a trifle over an inch and a half in height, and a statuette of a god about half as high; in the other were two 174 bronze candlesticks about ten inches high, the use of which may be inferred from the painting described above, and a bronze lamp with places for two wicks.
The walls of the colonnade were painted in bright colors on a deep red ground. The lower part of the columns was red, but above they were white; the temple also was white, the purpose obviously being to give the appearance of marble. Nevertheless the same decorative framework appears both in the white stucco of the temple and the painted decoration of the colonnade: a division of the body of the wall into large panels, with a continuous garland of conventional plant forms above. In the colonnade there was a yellow base, treated as a projecting architectural member; above it large red panels alternated with light, fantastic architectural designs in yellow on a red ground. The frieze was black, with garlands in strong contrast—green, blue, and yellow—enlivened with all sorts of animal forms. In the middle of each of the large panels was a priest of Isis; in the lower part of the intervening architectural designs were marine pictures,—galleys maneuvering, and seafights. Similar pictures are found in other buildings, as the Macellum, but marine views were especially appropriate here, because Isis was a patron divinity of seamen. Apuleius gives an interesting description of the spring festival, by which the navigation of the opening season was committed to her guardian care.
Opposite the entrance of the temple the colonnade presents an interesting peculiarity of construction, which is found also in other buildings at Pompeii, as the Stabian Baths. The place of the three middle columns on that side is taken by two large pillars, higher than the rest of the colonnade, each of which is backed by an attached half-column. This arrangement made the approach to the temple more imposing, and also furnished an appropriate setting for the shrine of Harpocrates against the wall.
The principal altar, on which sacrifice was offered to the divinities worshipped in the temple, is that near the foot of the steps in front (e). The officiating priest stood on a block of stone at the side of it, with the temple at his right; on this 175 altar were found ashes and fragments of calcined bones. The two smaller altars near by were probably consecrated to the gods whose images were placed in the exterior niches.
Two rectangular pits were used as receptacles for the refuse of sacrifices. One was quite small, and no trace of it can now be found; it was near the large altar, and contained remains of burnt figs, pine kernels and cones, nuts, and dates, with fragments of two statuettes representing divinities. The wall about the other (b), when excavated, was built up at each end in the form of a gable, and evidently once supported a wooden roof; in this pit also were charred remains of fruits. What divinities were worshipped at the altars between the columns, it is impossible to determine. The small base standing against the corner column near the entrance (seen in Fig. 79) was probably a pedestal, not an altar.
At the left of the steps leading up to the temple, and facing the large altar, is a small pillar of masonry fifteen inches square and nearly two and a half feet high. A similar pillar, which formerly stood at the right, had thin slabs of stone on three sides. One of these, that on the front of the pillar (now in the Naples Museum), was covered with hieroglyphics. It is a memorial tablet, which Hat, 'the writer of the divine word,' hierogrammateus, set up in honor of his parents and grandparents; it contains symbolic representations in three divisions, one above the other. In the upper division Hat, his brother and colleague Meran, their father and grandfather, are praying to Osiris, 'Lord of the Kingdom of the Dead'; below, Hat is bringing to his parents and grandparents offerings for the dead, while in the lower division Meran and two sisters unite with him in prayer to Osiris. The tablet could hardly have been designed for a temple, but still, by reason of its contents, it was considered appropriate for this place. It was doubtless intended that a similar tablet should be affixed to the pillar at the left, but perhaps none happened to be available; statuettes of divinities were probably placed on the pillars.
The presence of a statue of Bacchus in the niche in the rear wall of the cella is easily explained; this divinity was identified with Osiris. Two ears are moulded in the stucco beside the niche, 176 symbolic of the listening of the god to the prayers of his worshippers.
Against the west wall of the colonnade, near the corners, were two pedestals, with statues of female divinities about one half life size. At the right was Isis, in archaic Greek costume, with the inscription: L. Caecilius Phoebus posuit l[oco] d[ato] d[ecurionum] d[ecreto], 'Set up by Lucius Caecilius Phoebus, in a place granted by a decree of the city council'; the name indicates that the donor was a freedman. The other statue, at the left, represents Venus drying her hair after the bath; it is of a common type and possesses small value as a work of art, yet is of interest because of the well preserved painting and gilding. Venus, as many other goddesses, was identified with Isis.
In the same corner with the statue of Venus, against the south wall, stood the herm of Gaius Norbanus Sorex, a marble pillar with a bronze head. According to the inscription, he was an actor who played the second part (secundarum, sc. partium), and was also magister of the suburb Pagus Augustus Felix. He was probably a generous supporter of the temple. A duplicate of the herm is found in the Eumachia building, to which also he may have made a contribution. The low social standing of the various benefactors of the temple is noteworthy; it indicates in what circles the worship of the Egyptian divinities found its adherents. As yet this was by no means an aristocratic cult, although it became such later, especially after the time of Hadrian.
While the Greek and Roman gods were honored chiefly at their festivals, the Egyptian divinities demanded worship every day, indeed several times a day. The early service, the 'opening of the temple,' is described by Apuleius, who was probably admitted to the college of the Servants of Isis in Rome in the time of the Antonines, and wrote about 160 A.D. Before daybreak the priest went into the temple by the side entrance and threw back the great doors, which were fastened on the inside. White linen curtains were hung across the doorway, shielding the interior from view. Now the street gate of the court was opened; the thronging multitude of the devout streamed in and 177 took their places in front of the temple. The curtains were drawn aside and the image of the goddess was presented to the gaze of her worshippers, who greeted her with prayers and shaking of the sistrum, a musical rattle, the use of which was characteristic of the worship of the Egyptian gods. For a time they remained sitting, engaged in prayer and in the contemplation of the divinity; an hour after daybreak the service was closed with an invocation to the newly risen sun. This description throws light on the purpose of the bench in front of the shrine of Harpocrates.
Fig. 81.—Scene from the worship of Isis—the adoration of the holy water. Wall painting from Herculaneum.
The second service was held at two o'clock in the afternoon, but we do not possess exact information in regard to it. It is, 178 perhaps, depicted in a fresco painting from Herculaneum (Fig. 81), the subject of which is a solemn act in the worship of Isis, the adoration of the holy water. In the portico of the temple, above the steps, two priests and a priestess are standing. The priest in the middle holds in front of him, in the folds of his robe, a vessel containing the holy water, which was supposed to be from the Nile; his two associates are shaking the sistrum. There is an altar at the foot of the steps; a priest is fanning the fire into flame. On the right and the left of the altar are the worshippers, with other priests, part of whom are shaking the sistrum, while a fluteplayer sits in the foreground at the right.
Another painting, the counterpart of that just described, seems to portray the celebration of a festival; the surroundings correspond fairly well with those of our temple. The doors are thrown back; a dark-visaged man, wearing a wreath, is dancing in the doorway. Behind him, within the temple, are the musicians, among whom can be distinguished a girl striking the cymbals and a woman with a tambourine. About the steps are priests and other worshippers, shaking the sistrum and offering prayer; in front stands a burning altar. An important festival of Isis occurred in November. It commenced with an impassioned lamentation over the death of Osiris and the search for his body. On the third day, November 12, the finding of the body by Isis was celebrated with great rejoicing. So, perhaps, in this painting the dance is a manifestation of the joy with which the festival ended, the whole picture being a scene from the observance of the Egyptian Easter.
In such celebrations use would be made of the small brazier of bronze found in the court in front of our temple, on which incense could be burned. The ablutions, which played so important a part in Egyptian rites, were performed in the rear of the court, where stood a cylindrical leaden vessel, adorned with Egyptian figures in relief; a jet fell into it from a lead pipe connected with the city aqueduct.
The small building at the southeast corner of the court, which is known as the Purgatorium, was open to the sky. It was made to look like a roofed structure by the addition of gables 179 at the ends. On the inside, at the rear, a flight of steps leads down toward the right to a vaulted underground chamber, about five feet wide and six and a half feet long. The inner part of the chamber, divided off by a low wall, was evidently intended for a tank. In one of the corners in the front part is a low base, on which a jar could be set while it was being filled. Here the holy Nile water—more or less genuine—was kept for use in the sacred rites.
The purpose of the tank is suggested by certain of the stucco reliefs on the outside of the enclosing wall. In the gable, above the entrance, is a vase, standing out from a blue ground, with a kneeling figure on either side. The frieze contains Egyptian priests and priestesses, also on a blue ground, with their faces turned toward the vessel (Fig. 82). The figures are all worshipping the sacred water in the vase.
Of the other figures in relief, only the two goddesses in the panels at the sides of the entrance have an Egyptian character. Under each of them was a small altar of tufa, attached to the wall; the figure at the left (Fig. 82) is plainly Isis.
The side walls are decorated with reliefs in Greco-Roman style. They are divided into a large middle panel, containing two figures, and two side panels, each with a Cupid. In the middle panel, on the right side, Mars and Venus are represented; in that at the left, Perseus rescuing Andromeda (Fig. 83).
The dwelling back of the colonnade, on the south side, consists of a kitchen (8), a dining room (7), a sleeping apartment (9), 180 and two small rooms at the rear, under the stairway leading to the highest seats of the Large Theatre. The ritual of the Egyptian gods was so exacting, and the services of worship were so numerous, that it was necessary for one or more priests to reside within the precincts of the temple. These rooms were the habitation of a priest.
Fig. 83.—Decoration of the east side of the Purgatorium—Perseus rescuing Andromeda. At the right and the left floating Cupids, the one at the left bearing a box of incense.
One of the rooms on the west side (6) is oblong in shape, with five broad, arched entrances opening from the colonnade. The walls were richly decorated in the last Pompeian style. There were seven large paintings, five of which were landscapes with shrines, part being Egyptian landscapes; the other two represent Io watched by Argus, with Hermes coming to rescue her, and Io in Egypt, received by Isis. Against the rear wall was a pedestal, on which probably stood the female figure, above life size, the remains of which were found in one of the entrances. Only the head, the hands, and the front parts of the feet were of marble; the rest was of wood, no doubt concealed by drapery. The priests seemingly had started to carry the statue with them when they fled, but abandoned the attempt at the doorway. In the same room a marble table, a sistrum, two pots of terra cotta, three small glass bottles, and a glass cup were found. We may safely conclude that here the common 181 meals were served, of which, as we learn from Apuleius, the devotees of the cult partook. And when, in connection with the great festivals, the Mysteries were celebrated with a presentation of the myth of Isis and Osiris in pantomime, this large room was well adapted for the sacred exhibitions.
The adjoining room, at the southwest corner of the colonnade (5), is irregular in shape and of an entirely different character. It seems to have been regarded as a sacred place, and to have been used for secret ceremonies. It was entered from the colonnade by a narrow door, which could be securely fastened. Large, sketchy pictures of gods were painted on the walls on a white ground,—Isis, Osiris, Typhon,—with sacred animals and symbols relating to the myth which to us are unintelligible. The excavators found here the remains of four wooden statues with marble heads, hands, and feet, one of a male figure, the other three female; there were besides a statuette of an Egyptian god made of green stone, on which were hieroglyphics; a statuette of white clay, covered with a green glaze; a sphinx of terra cotta, fragments of terra cotta statuettes of Egyptian figures, different kinds of vessels of clay, glass, and lead, and a bronze knife, evidently intended for use in sacrifices. At the left near the entrance is a small reservoir, reached by three steps. On the north side is a niche that apparently formed part of a small shrine.
A kind of alcove opens off from the southeast corner of this room, the entrance to which could be closed by a curtain. From this a few steps and a door led into a storeroom, in which were found about three dozen vessels of various shapes, an iron tripod, and no less than fifty-eight earthen lamps. The lamps were in part provided with iron rings, so that they could be suspended; there were also iron rods, which the excavators supposed to be lamp holders. A rear door connected the storeroom with the small area of irregular shape between the Palaestra and the Theatre.
These arrangements suggest the celebration of secret rites by night; we may well believe that novices were here initiated into the order of the Servants of Isis. Obscure hints in regard to the ceremonies connected with the consecration to the service 182 of the goddess are thrown out by Apuleius. 'The initiation,' said the priest to him, 'is conducted under the image of a voluntary death, with the renewing of life as a gift from the deity.' Of his own experience he says merely: 'I came to the borders of death, I trod the threshold of Proserpina, then came back through all the stages to life. In the middle of the night I saw the sun shine brightly; I entered into the immediate presence of the gods above and the gods below, and worshipped them face to face.'
Renunciation of past life, and a second birth to a new and purified existence, were the main ideas underlying the ceremonies, which as presented here must have been far less splendid and impressive than in Rome, where they were witnessed by Apuleius. 183
The small temple near the northeast corner of the block containing the theatres is entered from Stabian Street. The court (Fig. 84, 2), like that of the temple of Vespasian, has a colonnade across the front; only the foundation and a Doric capital of lava are preserved.
Fig. 84.—Plan of the temple of Zeus
Milichius.
View larger image
At the end of the colonnade on the right is the room of the sacristan (4). The large altar (Fig. 251) stands close to the foot of the steps leading up to the temple. It is built of blocks of tufa, with a frieze of triglyphs and panels like those found on walls in the first style of decoration.
The steps extend across the front of the temple, the unusual elevation of which is explained by the inequality of the ground. Of the six columns in the tetrastyle portico no remains have been found, but three capitals of pilasters are preserved, two belonging to those at the corners of the cella, and one, considerably smaller, to a doorpost; they are of tufa, and were once covered with white stucco.
The excellent proportions and fine workmanship of the capitals point to the period of the first style of decoration; there was formerly a remnant of that style on the north wall of the cella, copied before 1837. Nevertheless the quasi-reticulate masonry of the cella, closely resembling that of the Small Theatre, dates from the early years of the Roman colony. In this period the temple in its present form was built, perhaps with the help of native Pompeian masons. 184
Attached to the rear wall of the cella was an oblong pedestal on which were placed two statues, representing Jupiter and Juno, together with a bust of Minerva, all of terra cotta and of poor workmanship. The suggestion at once presents itself that this was the Capitolium, erected by the Roman colonists soon after they settled in Pompeii. It is incredible, however, that colonists who had the means to erect monumental buildings, such as the Amphitheatre and the Small Theatre, should have housed the great gods of the Capitol in so modest a temple, in so inconspicuous a spot, and should not have provided more costly images.
All the evidence is in favor of the explanation, already proposed (p. 66), that after the earthquake the worship of the gods of the Capitol was transferred hither temporarily from the temple in the Forum, until that should be rebuilt.
What divinity thus became the host of the Roman gods? It would be impossible to say but for the fortunate recovery of an Oscan inscription, which was set up in the passage of the Stabian Gate. This commemorates the work of two aediles, M. Sittius and N. Pontius, who improved the street leading out from the Stabian Gate 'as far as the Stabian Bridge, and the Via Pompeiana as far as the temple of Zeus Milichius; these streets, as well as the Via Jovia (and another, the name of which cannot be made out) they placed in perfect repair.'
It is natural to suppose that the Via Pompeiana, mentioned in immediate connection with the road leading to Stabiae, was the continuation of the latter within the city, or Stabian Street. This, then, led to the temple named in the inscription, and as there is no other temple on the street, the small sanctuary in which the images of the Capitoline divinities were placed was the temple of Zeus Milichius. 185
This building, however, is not old enough to have been mentioned in an Oscan inscription. It probably stands in the place of a much earlier edifice. The masonry of the wall on the south side of the court is different from that of the other walls, and older; as it shows no trace of a cross wall, it must always have stood at the side of an open space, such as that of the present court. To the earlier building the capitals belong, the style of which, as remarked above, is pre-Roman.
In view of this explanation, we should probably recognize in the head carved on the smallest of the pilaster capitals (Fig. 85) a representation of Zeus Milichius, a divinity honored in many parts of Greece, especially by the farmers; Zeus the Gracious, the patron of tillers of the soil. The serious, kindly face, bearded and with long locks, was more than a mere ornament; it was the god himself looking down upon the worshipper who entered his sanctuary. As a representation of Zeus it probably exemplifies an ancient type. 186
In comparison with the great bathing establishments of Rome, the baths at Pompeii are of moderate size. They have, however, a special interest, due in part to their excellent preservation, in part to the certainty with which the purpose of the various rooms can be determined; and their remains enable us to trace the development of the public bath in a single city during a period of almost two hundred years. From this source, moreover, most of our knowledge of the arrangements of the ancient bath is derived, without which the imposing but barren remains of Rome itself would be for the most part unintelligible. It is not easy for one living under present conditions to understand how important a place the baths occupied in the life of antiquity, particularly of the Romans under the Empire; they offered, within a single enclosure, opportunities for physical care and comfort and leisurely intercourse with others, not unlike those afforded in the cities of modern Europe by the club, the café, and the promenade.
Though the Roman baths differed greatly in size and in details of arrangement, the essential parts were everywhere the same. First there was a court, palaestra, surrounded by a colonnade. This was devoted to gymnastic exercises, and connected with it in most cases was an open-air swimming tank. The dressing room, apodyterium, was usually entered from the court through a passageway or anteroom. A basin for cold baths was sometimes placed in the dressing room; in large establishments a separate apartment was set aside for this purpose, the frigidarium. To avoid too sudden a change of temperature for the bathers, a room moderately heated, tepidarium, was placed between the dressing room and the caldarium, in which hot baths were given. At one end of the caldarium was 187 a bath basin of masonry, alveus; at the other was ordinarily a semicircular niche, schola, in which stood the labrum, a large, shallow, circular vessel resting upon a support of masonry, and supplied with lukewarm water by a pipe leading from a tank back of the furnace. The more extensive establishments, as the Central Baths at Pompeii, contained also a round room, called Laconicum from its Spartan origin, for sweating baths in dry air. In describing baths it is more convenient to use the ancient names.
In earlier times the rooms were heated by means of braziers, and in one of the Pompeian baths the tepidarium was warmed in this way to the last. A more satisfactory method was devised near the beginning of the first century B.C. by Sergius Orata, a famous epicure, whose surname is said to have been given to him because of his fondness for golden trout (auratae). He was the first to plant artificial oyster beds in the Lucrine Lake, and the experiment was so successful that he derived a large income from them; we may assume that he turned an honest penny also by his invention of the 'hanging baths,' balneae pensiles, with which his name has ever since been associated. These were built with a hollow space under the floor, the space being secured by making the floor of tiles, two feet square, supported at the corners by small brick pillars (Fig. 88); into this space hot air was introduced from the furnace, and as the floor became warm, the temperature of the room above was evenly modified.
This improved method of heating was not long restricted to the floors. As early as the Republican period, the hollow space was extended to the walls by means of small quadrangular flues and by the use of nipple tiles, tegulae mammatae, large rectangular tiles with conical projections, about two inches high, at each corner; these were laid on their edges, with the projections pressed against the wall, thus leaving an air space on the inside.
In bathing establishments designed for both men and women, the two caldariums were placed near together. There was a single furnace, hypocausis, where the water for the baths was warmed; from this also hot air was conveyed through broad 188 flues under the floors of both caldariums, thence circulating through the walls. Through similar flues underneath, the warm air, already considerably cooled, was conveyed from the hollow spaces of the caldariums into those of the tepidariums. In order to maintain a draft strong enough to draw the hot air from the furnace under the floors, the air spaces of the walls had vents above, remains of which may still be seen in some baths. These vents were no doubt sufficient to keep up the draft after the rooms had once been heated; but in order to warm them at the outset a draft fire was needed,—that is, a small fire under the floor at some point a considerable distance from the furnace and near the vents, through which it would cause the escape of warm air, and so start a hot current from the furnace. The place of the draft fire has been found under two rooms of the Pompeian baths; and a similar arrangement has been noted in the case of Roman baths excavated in Germany.
The use of the baths varied according to individual taste and medical advice. In general, however, bathers availed themselves of one of three methods.
The most common form of the bath was that taken after exercise in the palaestra,—ball playing was a favorite means of exercise,—use being made of all the rooms. The bather undressed in the apodyterium, or perhaps in the tepidarium, where he was rubbed with unguents; then he took a sweat in the caldarium, following it with a warm bath. Returning to the apodyterium, he gave himself a cold bath either in this room or in the frigidarium; he then passed into the Laconicum, or, if there was no Laconicum, went back into the caldarium for a second sweat; lastly, before going out, he was thoroughly rubbed with unguents, as a safeguard against taking cold.
Some bathers omitted the warm bath. They passed through the tepidarium directly into the Laconicum or caldarium, where they had a sweat; they then took a cold bath, or had cold water poured over them, and were rubbed with unguents.
In the simplest form of the bath the main rooms were not used at all. The bathers heated themselves with exercise in the palaestra, then removed the dirt and oil with scrapers, strigiles, and bathed in the swimming tank. 189
Up to the present time three public baths have been excavated in Pompeii, two for both men and women, one for men only. Besides these there are two private establishments in the eighth Region (VIII. ii. 17 and 23), one perhaps for men, the other for women; and another, apparently for men, was discovered in the eighteenth century near the Amphitheatre and covered up again, being a part of the villa of Julia Felix. It is quite possible that two or three more bathing establishments yet await excavation; one at least, connected with a warm spring, is known to us from an inscription—that of M. Crassus Frugi. About a dozen houses also contain complete baths for private use.
The largest and oldest bathing establishment at Pompeii is that to which the name Stabian Baths has been given, from its location on Stabian Street. It was built in the second century B.C., but was remodelled in the early days of the Roman colony, and afterwards underwent extensive repairs. It is of irregular shape, and occupies a large part of a block, having streets on three sides; on the north side it is bounded by the house of Siricus. Opening upon two of the streets are shops, which have nothing to do with the baths and are not numbered on the plan (Fig. 86).
Entering from the south through the broad doorway at A, we find ourselves in the palaestra, C, which has a colonnade on three sides. On the west side the place of the colonnade is taken by a strip of smooth pavement with a raised margin; two heavy stone balls were found here, which were obviously used in a game resembling the modern ninepins; at the further end is the room for the players, K. Close to the bowling course, at the middle of the west side, is the swimming tank, F, with rooms (E, G) adjoining it at either end. At the corner near the further room, G, is a side entrance, L; J is the office of the director or superintendent in charge of the building.
On the east side of the court are the men's baths, rooms I-VIII; north of these are the women's baths, rooms 1-6, with the furnace room, IX, between them. In the northwest corner of the building were small rooms (e-e) intended for private baths. They had not been provided with the improved heating 190 arrangements, and were not in use at the time of the catastrophe. The larger room adjoining (k) was a closet.
The anteroom of the men's baths (IV), opens at one end into the dressing room or apodyterium (VI), as seen in Plate V. It has a vaulted ceiling, richly decorated. A door at the left leads into the frigidarium (V), and another at the right into a servants' waiting room (I), which is accessible from the court. This room was formerly entered also from the street, through a passage (III), which was later closed; on one side of it is a bench of masonry for the slaves in attendance upon their masters. Similar benches are found in the waiting room at the other end of the apodyterium (X).
Fig. 86.—Plan of the Stabian Baths.
View larger image
The apodyterium also was provided with benches of the same sort, as indicated on the plan; they are shown in Plate V. Along the walls at the sides, just under the edge of the vaulted ceiling, was a row of small niches, the use of which corresponded with that of the lockers in a modern gymnasium. These niches are about 5¾ feet above the floor, while those in the other dressing room (2) are a little less than five feet; from this difference in height it has been rightly inferred that the smaller and simpler division of the baths was set aside for women. The floor is paved with rectangular flags of gray marble, with blocks of basalt next to the walls. While the walls were left simply white, with a red base, the ceiling was elaborately decorated with stucco reliefs in the style prevalent shortly before the destruction of the city; there are vestiges of similar decoration in the tepidarium. In 191 octagonal, hexagonal, and quadrangular panels are rosettes, Cupids, trophies, and bacchic figures. The lunettes are adorned with fantastic architectural designs, in which we see bacchic figures standing on pedestals, and Cupids riding on dolphins; the sides of the two arches supporting the ceiling (one of them is seen in Plate V) are decorated with female figures mounted on dolphins, which run out into arabesques. The frequent suggestion of water in these motives is in harmony with the purpose of the room.
Even more effective is the decoration of the small round frigidarium. Light is admitted, as in the Pantheon at Rome, through a round hole in the apex of the domed ceiling. At the edge of the circular bath basin, lined with white marble, was a narrow strip of marble floor, which is extended into the four semicircular niches. Wall and niches alike are painted to represent a beautiful garden, with a blue sky above (Fig. 87). The eye wanders among trees and shrubs, catching glimpses of birds overhead, of statues and vases here and there in the midst of the green foliage, and of jets of water falling into circular basins. The blue dome is studded with stars. The bather could scarcely feel the narrowness of a room, the decoration of which was so suggestive of expanse and open air. A jet of water fell into the basin from a small niche in the upper part of the wall; and the place of the overflow pipe may be easily recognized.
The tepidarium (VII) and caldarium (VIII) were heated by means of hollow floors and walls. The former is much the smaller, as we should have expected from its use as an intermediate room, in which the bathers would ordinarily not tarry so 192 long as in the caldarium. The large bath basin at the east end (indicated on the plan) is unusual; it was seemingly a later addition, and was probably made to accommodate those who in the winter shrank from using the frigidarium, but wished nevertheless to take a moderately cold bath. Near the bottom of the wall back of this basin, a hole had been made so that underneath a fire could be kindled from the outside (in X), not in order to heat the basin, which could be supplied with warm water by means of a pipe, but to start the circulation of hot air from the furnace; at the top of the wall above were two vents opening from the warm air chamber. There was a place for another draft fire under the women's caldarium.
One of the fragments of stucco relief still remaining in the tepidarium presents the figure of a man reading from a roll of manuscript. It suggests the standing complaint of the ancients in regard to the trials of bathers, who could not escape the ever-present poet declaiming his latest production.
At one end of the caldarium we find the bath basin, alveus; at the other is the support of the labrum, which has disappeared. In the niche above the latter are two vents for the draft, and above the niche was a round window. This room, as most of the others, was dimly lighted. The little round window of the anteroom is shown in our plate. There were two similar windows in the lunette of the apodyterium, above the roof of the anteroom; they are not seen in our plate, having at one time been entirely covered up by the construction of a wall to support the roof. A similar window was very likely placed at the end of the tepidarium, over the roof of the frigidarium; and perhaps these were supplemented by holes in the crown of the arched ceilings, as in the women's apodyterium.
The women's baths are entered from the court through a long anteroom (6); the dressing room is connected also with the two side streets by means of corridors (1, 5). Originally there was no communication between the women's baths and the palaestra.
The apodyterium (2) is the best preserved room of the entire building, and also the most ancient. It shows almost no traces of the catastrophe. The vaulted ceiling is intact. The smooth, white stucco on the walls and the simple cornice at the base of 193 the lunettes date from the time of the first builders. Now, as then, light is admitted only through two small openings in the crown of the vault and a window in the west lunette. To a modern visitor the interior seems gloomy. The pavement, of lozenge-shaped, reddish glazed tiles, belongs to the same early period. There is a strip of basaltic flags connecting the door of one of the corridors (1) with that of the tepidarium. This much travelled path seems to indicate that many ladies—particularly, we may assume, in the winter—went at once into the more comfortable tepidarium without stopping in the dressing room. Along the walls were benches, and above them niches, as in the men's apodyterium. In the time of the Empire the fronts of the niches, finely carved in tufa, were overlaid with a thick coating of stucco, the upper part being ornamented with designs in relief.
The women had no frigidarium. A large basin for cold baths was built at the west end of the dressing room, but this also is a later addition; before it was made, those who wished for cold baths must have contented themselves with portable bath tubs.
The tepidarium (3) and caldarium (4) are in a better state of preservation than those of the men's baths, which they so closely resemble in all their arrangements that a detailed description is unnecessary. In their present form they are not so ancient as the apodyterium, and the decoration is less elaborate than that of the corresponding rooms on the other side.
The labrum is intact, a round, shallow basin of white marble resting on a support of masonry; it has here no separate niche. The bath basin in the caldarium also retains its veneering of white marble, with an overflow pipe of bronze at the upper edge; it is about two feet deep. In such basins the bathers leaned against the sloping back, which for this reason was called a cushion (pulvinus) by Vitruvius. This alveus would accommodate eight bathers, that in the men's caldarium perhaps ten. Places were probably assigned in numerical order, each bather awaiting his turn. Those who did not wish to wait, or preferred to bathe by themselves, might use individual bath tubs of bronze. Remains of such a tub, as well as of bronze benches, were found in this room. Near the bottom 194 of the alveus in front is an opening, through which the water could be let out; when it was emptied, the water ran over the white mosaic floor, which was thus cleaned.
In the time of the Early Empire it became the fashion to bathe with very warm water. 'People want to be parboiled,' Seneca exclaims. The construction of the alveus, however, was not well adapted to conserve the heat, and an ingenious contrivance was devised to remedy the difficulty, which may best be explained with the help of our illustration, showing the arrangement of the bath basin in room 4 (Fig. 88). A large hot air flue, D, led directly from the furnace to the hollow space, C, under the alveus, A. Above this flue was a long bronze heater, B, in the form of a half cylinder, with one end opening into the end of the alveus. As the bottom of the heater was six inches lower than that of the alveus, the cooler water from the basin would flow down into it and be heated again, a circulation being thus maintained.
Fig. 88.—The bath basin in the women's caldarium—longitudinal and transverse sections,
showing the arrangement for heating the water.
View larger image
A similar arrangement (called testudo alvei by Vitruvius) probably existed for the alveus in the caldarium on the other side; but that part of the men's baths has been destroyed. Only one other heater of this kind has been found,—and that much smaller,—in a villa near Boscoreale, recently excavated; but the semicircular opening made for the heater above the hot air flue may be seen in the Central Baths, in a private establishment at Pompeii, and generally in the remains of Roman baths.
In the furnace room (praefurnium, IX) between the two caldariums, stood three large cylindrical tanks. They have disappeared, 195 but their outlines can still be seen in the masonry of the foundations, and are shown in our plan. The one furthest east was for hot water. It was directly over the fire, and connected with the bath basins of the two caldariums. The next, for lukewarm water, stood over a hollow space opening into the furnace. A lead pipe leading from it to the labrum of the women's caldarium is still to be seen; the water bubbled up in the middle of the labrum. The third and largest reservoir, for cold water, was placed on a foundation of solid masonry.
The more important alterations made in the baths during the two centuries that they were in use had to do with the arrangements for heating, and may briefly be considered here before we proceed to another part of the building. It will be best not to weary the reader with details, but to present a brief summary of conclusions, which will perhaps be found of interest, not only as casting light on the gradual development of these baths, but also as illustrating that adjustment of public buildings to the needs and tastes of successive generations, which was as characteristic of ancient as it is of modern life.
For the extensive changes made in the earlier part of the first century B.C. we have the evidence of an inscription, which had been cast aside and was found in one of the smaller rooms. It reads, C. Uulius C. f., P. Aninius C. f., II v. i. d., Laconicum et destrictarium faciund. et porticus et palaestr[am] reficiunda locarunt ex d[ecurionum] d[ecreto] ex ea pequnia quod eos e lege in ludos aut in monumento consumere oportuit faciun[da] coerarunt eidemque probaru[nt]. The form of the letters and the spelling point to the time of Sulla as the period in which the inscription was cut. The syntax is confused, but the meaning is clear: a Laconicum and destrictarium were built, the colonnade and palæstra repaired, by the duumvirs Gaius Ulius and Publius Aninius, in accordance with a vote of the city council; and they furnished the means for this work in fulfilment of their obligation, incurred by the acceptance of the duumviral office, to spend a certain sum upon either games or buildings.
The destrictarium—a room for removing dirt and oil with the strigil after gymnastic exercises—is easily identified (D), as are also the palaestra and colonnade; but in our survey of 196 the baths, we have found no separate chamber to which the term Laconicum could properly be applied. In order to arrive at a solution of the difficulty, we must note the successive steps by which, as shown by an examination of the remains of the masonry, the heating arrangements were extended and improved.
At first, in the Baths as originally constructed, there were neither hollow walls nor hollow floors. The heating was done by means of braziers; and there were niches or lockers in the walls of the caldariums and tepidariums similar to those now found in the dressing rooms, but in double rows, the upper niches being larger, the lower smaller.
Later, a hollow floor was built in the men's caldarium. Later still, this room was provided with hollow walls, which were extended to the crown of the ceilings and the lunettes, the tepidarium being still heated with braziers.
Finally, a hollow floor and hollow walls were constructed at the same time in the men's tepidarium, but the hot air chamber was not carried up into the ceiling or the lunettes.
A similar transformation was gradually accomplished in the women's apartments; but owing, it would seem, to a desire for greater warmth in the tepidarium, the hot air chamber here, as in the caldarium, was extended to the lunettes and the ceiling.
Since the method of heating by means of hollow floors only came into vogue about 100 B.C., and since the duumvirate of Ulius and Aninius must have occurred soon after 80 B.C., we are probably safe in supposing that they built the hollow floors of the two caldariums, and that the new heating arrangement was loosely called a Laconicum. At least a partial warrant for this interpretation is found in a passage of Dion Cassius (LIII. xxvii. 1), in which he says that Agrippa built the 'Spartan sweating bath,' τὸ πυριατήριον τὸ Λακωνικόν. Agrippa, however, built, not a Laconicum in the narrow sense, but a complete bathing establishment, and Dion, doubtless following some earlier writer, uses the word as generally applicable to a system of warm baths. In default of a better explanation, we must accept a meaning equally loose for our inscription.
It is not possible to date, even approximately, the other 197 changes by which the baths were conformed to the increasing desire for warmth and comfort; but the decoration of the greater part of the building, with its complicated designs and stucco reliefs, was clearly applied to the walls not many decades before the destruction of the city.
The unroofed swimming tank, F, was separated from the court by a barrier of masonry about two feet high, which was extended also in front of the rooms at the ends, E and G. On either side was a step, both the steps and the barrier being veneered with white marble. The tank was supplied by a pipe entering from the northeast; the overflow pipe, at the southeast corner, is indicated on the plan.
The rooms E and G, opening both on the swimming tank and on the court with high arched doorways, were roofed shallow basins where the athletes could give themselves a preliminary cleaning before going into the tank. The walls are veneered with marble to a height of 6½ feet; above are painted plants, birds, statues, and nymphs, one of whom holds a shell to catch a jet of water; over these the blue sky. Here, as in the frigidarium, the artist strove to convey the impression of being in the open air, in a beautiful garden, adorned with sculptures. A jet of water spurted from the rear wall just above the marble dado; above it is a large oblong niche, apparently for a statue.
After a time the basin in G was filled up, and covered with a mosaic floor of the same height as the threshold; when one cleaning room was found to be adequate, that was retained which had a separate dressing room, D. On the white walls of the dressing room are traces of the wooden wardrobes that once stood against them. In this room, the destrictarium, the athletes disrobed, and rubbed themselves with oil before engaging in gymnastic exercises, and to it they returned from the palaestra, in order to scrape themselves (se destringere); then they washed themselves in the next room, E, and finally plunged into the tank.
The room of the official in charge of the baths, J, had windows opening on the court and into the bowlers' room, K. A large bronze brazier was found here, presented, according to an inscription on it, by Marcus Nigidius Vaccula, who, as a 198 symbol of his name, had the figure of a cow (vacca) stamped in relief on the brazier. We find a similar brazier, together with benches, in the tepidarium of the baths near the Forum, which had no other means of heating; we naturally infer that the furniture here was intended for one of the tepidariums, and used there before the improved method of heating was introduced. A Nasennius Nigidius Vaccula, who died before 54 A.D., is known to us from the receipts of Caecilius Jucundus. If he was the donor, and made the gift when he was a young man, the change of the system of heating in the tepidarium may have been made as early as 20 A.D.
The colonnade was originally uniform on all the three sides. The Doric columns were of tufa, coated with fine white stucco. They were of slender proportions, the height being a trifle over nine feet, with a diameter of only sixteen inches. They were edged, not fluted, and doubtless carried an entablature with triglyphs, of which no trace remains. In the time of the Empire, apparently before the earthquake of 63, the colonnade was remodelled in accordance with the prevailing taste. The columns received a thick coating of stucco, with flutings indicated by incised lines; the lower third of the shaft was painted red, the upper portion being left white. Over the capitals, moulded in stucco, was an entablature resting on thick planks, and ornamented with light-colored stucco reliefs. The general effect may be seen from our illustration (Fig. 89).
In this reconstruction the sameness of the earlier colonnade was varied with pleasing irregularities. Thus in front of the main entrance (A), and in a corresponding position on the opposite side of the court, the place of four columns was taken 199 by two broad pillars flanked by half-columns, and carrying a roof more than five feet higher than that of the rest of the colonnade. A similar arrangement has already been noted in the colonnade of the temple of Isis (p. 174).
Fig. 90.—Stabian Baths: southwest corner of the palaestra, showing part of the colonnade and wall decorated with stucco reliefs.
The wall decoration of the court has been particularly well preserved on the outer wall of D and E (Fig. 90; cf. Pl. XIII). The surface is diversified by fantastic architectural designs in two stories, made up of slender columns with their entablatures, open doorways with steps leading up to them, and glimpses of interiors. In the panels thus outlined, figures of all kinds stand out in white relief on a bright red or blue ground. Above the arched doorway Jupiter sits, resting his right hand on his sceptre; near by, on a pillar, is the eagle. Further to the left a satyr offers Hercules a drinking horn. Another relief, not so well preserved, has a motive suggestive of the purpose of the building—Hylas at the spring seized by the nymphs. With this we may associate two designs having reference to the exercises 200 of the palaestra: a boxer, at the left of the doorway of E, and at the right a man scraping himself with a strigil. On the outer wall of G is Daedalus, making wings for himself and Icarus.
Under the colonnade at the rear, a herm stands close to the wall, having the features of a youth with a garment drawn over his head and covering the upper part of the body. For the explanation of it we are indebted to Pausanias. 'In the gymnasium at Phigalia, in Arcadia,' says this writer, 'is an image of Hermes. It has the appearance of a man wrapped in a cloak, and terminates below in a square pillar in the place of feet.' This is Hermes, the god of the Palaestra, here, as in Phigalia, in a guise suggestive of his function of Psychopompus, the conductor of departed souls. We have already met with an example of the same type in the court of the temple of Apollo.
A sundial stood on the roof of the frigidarium and men's caldarium, supported by a foundation of masonry still visible. It bore an Oscan inscription, from which we learn that it was set up by the Quaestor Maras Atinius, in accordance with a decree of the council, the money for the expenditure being derived from fines. The fines were very likely collected here, by the official in charge of the building. Sundials were erected also in the other baths at Pompeii. They were a necessity, for all such establishments were conducted on a schedule of hours. Hadrian ordered that the baths in Rome should be open from the eighth hour, that is, after two o'clock in the afternoon; and a regulation in regard to the time of opening, if not of closing, was probably in force at Pompeii.
A motley and tumultuous life once filled the barren court, the rooms now ruined and deserted. The scene is well pictured by Seneca (Ep. 56): 'Quiet is by no means so necessary for study as men commonly believe,' the philosopher gravely argues. 'I am living near a bath: sounds are heard on all sides. Just imagine for yourself every conceivable kind of noise that can offend the ear. The men of more sturdy muscle go through their exercises, and swing their hands heavily weighted with lead: I hear their groans when they strain themselves, or the 201 whistling of labored breath when they breathe out after having held in. If one is rather lazy, and merely has himself rubbed with unguents, I hear the blows of the hand slapping his shoulders, the sound varying according as the massagist strikes with flat or hollow palm. If a ballplayer begins to play and to count his throws, it's all up for the time being. Meanwhile there is a sudden brawl, or a thief is caught, or there is some one in the bath who loves to hear the sound of his own voice; and the bathers plunge into the swimming tank with loud splashing. These noises, however, are not without some semblance of excuse; but the hair plucker from time to time raises his thin, shrill voice in order to attract attention, and is only still himself when he is forcing cries of pain from some one else, from whose armpits he plucks the hairs. And above the din you hear the shouts of those who are selling cakes, sausages, and sweetmeats, besides all the hawkers of stuff from the cookshops, each with a different and characteristic cry.'
Such were the distractions of a Roman bath. 202
The bathing establishment in the block north of the Forum is smaller and simpler in its arrangements than that described in the last chapter, but the parts are essentially the same. Here also we find a court, with a colonnade on three sides; a system of baths for men, comprising a dressing room (I) with a small round frigidarium (II) opening off from it, a tepidarium (III), and a caldarium (IV); a similar system for women, the place of the frigidarium being taken by a tank for cold baths (2) in the dressing room; and a long narrow furnace room between the two baths (V). On three sides of the establishment are shops, in connection with which are several inns.
Fig. 91.—Plan of the baths near the Forum.
View larger image
These baths were built shortly after 80 B.C., about the time that Ulius and Aninius repaired the Stabian Baths; the characteristic masonry, with quasi-reticulate facing, is similar to that of the Small Theatre and the Amphitheatre. The names of the builders are known from an inscription found in duplicate: 203 L. Caesius C. f. d[uum] v[ir] i[uri] d[icundo], C. Occius M. f., L. Niraemius A. f. II v[iri] d[e] d[ecurionum] s[ententia] ex peq[unia] publ[ica] fac[iundum] curar[unt] prob[arunt] q[ue]. Thus we see that the contract for the building was let and the work approved by Lucius Caesius, duumvir with judiciary authority,—his colleague had probably died since election and the vacancy had not yet been filled,—and the two aediles, Occius and Niraemius, who are here styled 'duumvirs,' for reasons already explained (p. 12); the cost was defrayed by an appropriation from the public treasury. Though these Baths are of later construction than the Stabian Baths, they seem more ancient because fewer changes were made in them.
The court here was not a palaestra; it was small for gymnastic exercises, and was not provided with a swimming tank and dressing rooms. The open space was occupied by a garden.
The colonnade on the north and west sides of the court had slender columns standing far apart, with a low and simple entablature; on the east side the columns were replaced by pillars carrying low arches, which served as a support for a gallery affording a pleasant view of the garden. This gallery was accessible from the upper rooms of several inns along the street leading north from the Forum, whose guests no doubt found diversion in watching what was going on below—an advantage that may have been taken into account by the city officials in fixing the rent. There are benches on the north side of the court, and at the middle a deep recess, or exedra (b), making a pleasant retreat for quiet conversation. The entrance from the frequented street at the left (A) is so arranged that passers-by could not look in; near the entrance from the street on the opposite side (A') is a closet (c). The decoration of the court was extremely simple. Columns and walls were unpainted; on the lower parts, stucco with bits of brick in it; above, white plaster.
From the court a corridor (a) led into the men's apodyterium, which could be entered also on the north side from the Strada delle Terme. This room contained benches, as shown on the plan; but there were no niches, as in the dressing rooms of the Stabian Baths, and wooden shelves or lockers may have 204 been used instead. The small dark chamber at the north end (f) may have been used as a storeroom for unguents, such as the Greeks called elaeothesium. It seems to have been thought necessary here to connect the dressing room with the furnace room (V) by a separate passage.
Light was admitted to the dressing room through a window in the lunette at the south end, closed by a pane of glass half an inch thick, set in a bronze frame that turned on two pivots. On either side of the window are huge Tritons in stucco relief, with vases on their shoulders, surrounded by dolphins; underneath is a mask of Oceanus, and in the same wall is a niche for a lamp, similar to that seen in Fig. 92, blackened by the soot.
The frigidarium is well preserved. In all its arrangements it is almost an exact counterpart of the one in the Stabian Baths, but the scheme of decoration, suggestive of a garden, is less realistically carried out, the ground being yellow; and the round window at the apex of the domed ceiling has a 205 rectangular extension toward the south in order to admit as much sunlight as possible.
The tepidarium, as will be seen from our illustration (Fig. 92), is in the condition of the tepidariums of the Stabian Baths before the improved arrangements for heating were introduced. There were no warm air chambers in the walls or the floor. At one end we see the remains of the large bronze brazier and benches (the iron grating is modern) presented by Vaccula, to which reference has already been made (p. 197). The feet of the benches are modelled to represent hoofs, each with a cow's head above.
There are niches in the walls, as formerly in the tepidariums of the Stabian Baths, but several of them for some reason have been walled up. Wild-visaged, muscular Atlantes stand out in bold projection on the front of the partitions between the niches, sustaining a cornice upon their uplifted hands. The window, seen in the illustration above the lamp niche, was closed, as that in the dressing room, by a pane of glass in a bronze frame.
The decoration of the ceiling, unfortunately only in part preserved, is well designed. Along the lower edge are arabesques, interwoven in a scroll pattern, in white stucco on a white background. Above these are panels of different sizes, in which raised white ornaments and figures appear on a white, blue, or violet ground; among the motives are Cupid leaning on his bow, Apollo riding on a griffin, Ganymede with the eagle, and Cupids on sea horses.
The caldarium is well preserved; only a part of the vaulted 206 ceiling has been destroyed. The hollow space for hot air in the floor and walls is indicated in our section (Fig. 93). Here we see at the right, the bath basin, lined with white marble, with its sloping back affording a comfortable support for the bathers; at the other end is the apsidal niche (schola) with the labrum. The direction of Vitruvius, that the labrum should be placed under a window in such a way that the shadows of those standing around should not fall on it, is here literally observed. There were three other small windows at the same end of the room, and a niche for a lamp.
We learn from an inscription on the labrum, in bronze letters, that it was made under the direction of Gnaeus Melissaeus Aper and Marcus Staius Rufus, who were duumvirs in 3-4 A.D., at a cost of 5250 sesterces, not far from $270. This room seems to have received its final form before the new method of heating the water in the alveus came into vogue; there is no trace of a bronze heater, such as that found in connection with the bath basin of the women's caldarium at the Stabian Baths. The simple decoration is in marked contrast with the usual ornamentation of the later styles. Above a low marble base are yellow walls divided by dark red pilasters, shown in Fig. 93. These support a projecting flat cornice of dark red, whose surface is richly ornamented with stucco reliefs. The ceiling is moulded in flutings running up to the crown of the vault; only in the ceiling of the schola do we find raised figures.
The rooms of the women's baths are small, their arrangement being determined in part by the irregular shape of the corner of the building in which they are placed; but the system of heating is more complete than in the men's baths, for both the tepidarium (3) and the caldarium (4) were provided with hollow floors and hot air spaces in the walls extending to the lunettes and the ceiling. The vaulted ceilings of both of these rooms, as well as of the apodyterium, are preserved; but the caldarium has lost its hollow floor and walls, together with the bath basin, which was placed in a large niche at the right as one entered; only the base of the labrum remains. The condition of this room may be due to the earthquake of the year 63, the necessary repairs not having been made before the eruption. There 207 was no connection between the women's baths and the court at the rear (D), which had a separate entrance from the street. At the women's entrance there was a narrow waiting room for attendants, separated from the street by a thin wall and protected by a roof.
The furnace room could be entered at one end from the street. The three cylindrical tanks for hot, lukewarm, and cold water were arranged as in the Stabian Baths. Beyond the tanks is a cistern (g), which was supplied in part by rain water from the roof, in part by a feed pipe connected with the water system of the city. The raised walk (h) on the right side of the furnace room is continued to the small court (D) in the corner of which is a stairway leading to the flat roof of the men's caldarium. From this point of vantage, the view over the landscape and the sea must have been beautiful in antiquity, as it is to-day.
A sundial doubtless stood on the larger of the two pillars in the court (d), which is about seventeen feet high and nearly five feet thick at the base; on the smaller pillar was perhaps a statue or other ornamental object of the sort frequently seen in wall paintings. 208
Seneca in an entertaining letter (Ep. 86) gives an account of a visit about 60 A.D. to the villa at Liternum in which the Elder Scipio had lived in the years immediately preceding his death, in 183 B.C. The philosopher was particularly struck with the bath, the simplicity of which he contrasts forcibly with the luxurious appointments of his own time. We cannot follow him through the extended disquisition—he speaks of various refinements of luxury of which we find no traces at Pompeii; but he mentions as the most striking difference the lack of light in the old bath, with its small apertures more like chinks than windows, while in his day the baths were provided with large windows protected by glass, and people 'wanted to be parboiled in full daylight,' besides having the enjoyment meanwhile of a beautiful view. Some such feeling as this we have in turning from the two older baths at Pompeii—one of pre-Roman origin, the other dating from the time of Sulla—to the Central Baths, which were in process of construction at the time of the eruption, and had been designed in accordance with the prevailing mode of life.
This extensive establishment, at the corner of Stabian and Nola streets, occupied the whole of a block; but a large part of the frontage on the two streets mentioned was utilized for shops. Notwithstanding the size of the building, it had only a single series of apartments, which were laid out on a correspondingly large scale. It was doubtless built for men, although the use of it at certain hours by women may possibly have been contemplated, in case the women's baths at the two other establishments should be overcrowded.
Entrances from three streets lead to the ample palaestra, from which the remains of the houses demolished to make room 209 for it had not yet been entirely removed. On the northeast side is the excavation for a large swimming tank (h), and for a water channel leading to the closet (e). In order to have water at hand for building purposes, the masons had built a low wall around an old impluvium on the south side (shown on the plan, Fig. 94) into which a feed pipe ran. For a short distance on the north side the stylobate had been made ready for the building of the colonnade; elsewhere only the preliminary work had been done. The rooms at the southeast corner (f, g) were no doubt intended for dressing rooms for the palaestra and the plunge bath.
Fig. 94.—Plan of the Central Baths.
View larger image
Two small rooms (b, c) open upon the north entrance of the palaestra; one of them, perhaps, was to be a ticket office, for the adjustment of matters relating to admission, the other a cloak room, in which the capsarius would guard the valuables of the bathers.
Two doors admit the visitor from the palaestra to the series of bath rooms, one of them opening from the north end of the colonnade. The first room (i, l) was designed to answer the purpose of a store, with four booths (k, m, n, o) opening into it for the sale of edibles and bathers' conveniences.
The apodyterium (p), tepidarium (q), and caldarium (s) had each three large windows opening on the palaestra; two of those belonging to the tepidarium are seen in Fig. 95. None of the rooms were finished, though a hollow floor and hollow walls had been built in the tepidarium, caldarium, and Laconicum. The bath basins yet lacked their marble linings, and the two furnaces (at x and y) had not been built. 210
Five smaller windows on the southeast side of the caldarium looked out on a narrow garden, about which the workmen had commenced to build a wall to cut off the sight of the firemen passing to and fro between the two furnaces. The caldarium was so placed as to receive the greatest possible amount of sunlight, particularly in the afternoon hours, when it would be used; this was in accordance with a recommendation of Vitruvius, who says that the windows of baths ought, whenever possible, to face the southwest, otherwise the south.
The contrast is indeed marked between the numerous large windows here, with their attractive outlook, and the small apertures, high in the walls and ceiling, through which light was admitted in the older baths.
In the Central Baths there was no frigidarium; but a large basin for cold baths, nearly five feet deep, was placed in the dressing room opposite the windows. Supply pipes were so laid that jets would spring into the basin from three small niches, one in each wall; the overflow was conducted by pipes under the floor to a catch basin (w), and thence to the street. 211
The tepidarium (q)—here, as usual, relatively small—is connected with the apodyterium by two doors, and similarly with the caldarium. The latter room has a bath basin at each end, thus affording accommodations for twenty-six or twenty-eight bathers at once; at the middle of the southeast side was a smaller basin that took the place of the labrum. The hot air flues leading from the furnaces under the bath basins were already built, and above them openings were left for semi-cylindrical heaters like that in the women's caldarium of the Stabian Baths.
The round sweating room, Laconicum, was made more ample by means of four semicircular niches, and lighted by three small round windows just above the cornice of the domed ceiling. There was probably another round opening at the apex, designed for a bronze shutter, which could be opened or closed from below by means of a chain, so as to regulate the temperature. Doors led into the Laconicum from both the tepidarium and the caldarium.
The oblong court between the bath rooms and the street on the northeast side was apparently to be laid out as a garden. At the north end the workmen had begun to build pillars for a short colonnade. A large square foundation for a sundial stands near the opposite corner. 212
In the southeast corner of the city, at a distance from the other excavations, lies the Amphitheatre, the scene of gladiatorial combats. The Pompeians called it 'the show,' spectacula, as in the inscription, preserved in two copies, that gives us the names of the builders: C. Quinctius C. f. Valgus, M. Porcius M. f[ilius] duo vir[i] quinq[uennales] coloniai honoris caussa spectacula de sua peq[unia] fac[iunda] coer[arunt] et coloneis locum in perpetuom deder[unt]. According to this, the Amphitheatre was built by the same men, Valgus and Porcius, who are already known to us as the builders of the Small Theatre (p. 153); and they presented it to the city in recognition of the honor conferred upon them by their reëlection as duumvirs. The Amphitheatre may thus have been finished half a decade later than the Theatre, but in any case it belongs to the earliest years of the Roman colony,—as might be inferred, in default of other evidence, from the archaic spelling of the inscription, and the character of the masonry, which is like that of the Small Theatre and the baths north of the Forum (p. 41).
The colonists, however, did not receive from Rome their impulse to erect such a building. The passion for gladiatorial combats was developed in Campania earlier, and manifested itself more strongly, than in Latium. Strabo's statement that gladiators were brought forward at Campanian banquets, in larger or smaller numbers according to the rank of the guests, has reference to the period before the Second Punic War; but it was considered a noteworthy event in Rome when, in 264 B.C., gladiators engaged in combat in the Forum Boarium in celebration of funeral rites, as also when, on a similar occasion in 216 B.C., twenty-two pairs fought in the Forum. Buildings were 213 erected for gladiatorial shows in Campanian towns earlier than at the Capital. As late as the year 46 B.C. the spectators who witnessed the games given by Julius Caesar sat on wooden seats supported by temporary staging; and the first stone amphitheatre in Rome was built by Statilius Taurus in 29 B.C., almost half a century after the quinquennial duumvirate of Valgus and Porcius. The Amphitheatre at Pompeii is the oldest known to us from either literary or monumental sources.
In comparison with later and more imposing structures, our Amphitheatre seems indeed unpretentious. Its exterior elevation is relatively low (Fig. 96); as our section shows (Fig. 99), the arena and the lower ranges of seats are in a great hollow excavated for the purpose below the level of the ground. The dimensions (length 460 feet, breadth 345) are small when compared with those of the Coliseum (615 and 510 feet, respectively) or even the amphitheatres at Capua or Pozzuoli; and the lack of artistic form is noteworthy.
The exhibitions held here must also have been on a modest scale. There were no underground chambers, below the arena, with devices by means of which wild beasts could be lifted up into view and the sand suddenly covered with new combatants. The limited means of this small city were not adequate to make provision for the elaborate equipment and costly decoration found in the amphitheatres of larger towns.
The arena, a view of which is given in Plate VI, is surrounded by a wall about 6½ feet high. This wall was covered with frescoes which, still fresh at the time of excavation, are 214 now known to us only from copies in the Naples Museum. They consisted of alternate broad and narrow panels, the latter containing each a herm between two columns, while the larger spaces presented alternately a conventional pattern and a scene connected with the games. One of the scenes gives an interesting glimpse of the preparations for the combat (Fig. 97). In the middle we see the overseer marking out with a long staff the ring within which the combatants must fight. At the right a gladiator stands, partly armed; two attendants are bringing him a helmet and a sword. A hornblower, also partly armed, stands at the left; and behind him two companions, squatting on the ground, make ready his helmet and shield. At either end of the scene, in the background, is an image of a Winged Victory with a wreath and palm.
The limestone coping of the wall about the arena shows traces of iron in the joints between the blocks, apparently remains of a grating designed to protect the spectators from attacks by the infuriated wild beasts. The traces are not visible all the way around, but this may be accounted for on the supposition that repairs were in progress at the time of the eruption.
Two broad corridors (3, 3A) connect the ends of the arena with the outside of the building. The one at the north end, toward Vesuvius, follows a straight line; the other bends sharply to the right in order to avoid the city wall, which bounds the structure on the south and east sides. By these corridors the gladiators entered the arena, first in festal array, passing 215 in stately procession across the sand from one entrance to the other, then coming forth in pairs as they were summoned to mortal combat.
Fig. 98.—Plan of the Amphitheatre at different levels showing, above, the arrangement
of the seats; below, the arrangement of the vaulted passages under the seats.
View larger image
At the middle of the west side there is a third passage, narrow and low (e); this is the grewsome corridor through which the bodies of the dead were dragged by means of hooks, its entrance being the Porta Libitinensis, 'Death Gate.' Near the inner end of each of the three corridors is a small, dark chamber (f) the purpose of which is unknown. It has been 216 suggested that wild animals may have been confined here, but larger and more easily accessible rooms would have been required for this purpose. They may have been storerooms for appliances of various kinds required for the exhibitions.
The seats, of which there are thirty-five rows, have the same form as those in the Small Theatre, and are of the same material, gray tufa. They are arranged in three divisions,—the lowest, ima cavea, having five rows; the middle division, media cavea, twelve; and the highest, summa cavea, eighteen (Figs. 98, 99). In the middle section of the ima cavea on each side the place of the seats is taken by four low, broad ledges, set aside for members of the city council, who could place upon them the seats of honor, bisellia, to the use of which they were entitled. At the middle of the east side the second ledge is interrupted for a distance of ten feet (the break is shown in Plate VI), a double width being thus given to the lowest. This place was designed for seats of special honor, and was, no doubt, reserved for the official who provided the games, and his associates. On the same side the ledges are extended into the next section on the south, the continuity of the seats being interrupted by a low barrier. This supplementary section was, perhaps, intended for certain freedmen, as the Augustales (p. 100), who had the right to use bisellia, but who nevertheless could not become members of the city council, and were not ranked on a social equality with the occupants of the middle section.
The seats of the ima cavea and media cavea were reached through a vaulted passage (4), which, in accordance with ancient usage, we may call a crypt. It ran under the first seats of the second range, and stairs led from it to both divisions. It might be entered either from the two broad corridors leading to the arena, or directly from the west side by means of two separate passages (c, d, on the plan). It is, however, interrupted at the middle on each side of the Amphitheatre. On the west side the prolongation of the crypt would have interfered with the use of the corridor leading to the Death Gate; but as no such reason existed for blocking the east branch, it is probable that the designers of the Amphitheatre interrupted both branches of the crypt in order to force the spectators who had seats in 217 the lower and middle divisions of the south half of the structure to enter and leave by the somewhat inconvenient south entrances, which are situated in an angle of the city wall. Had the crypt been carried completely around, the crowd would always have pressed into the building through the north entrances, which opened toward the city, thus causing confusion, if not danger, on occasions of special interest.
In the corridor leading from the north entrance, as may be seen on the plan, a row of stones with square holes in them were placed in the pavement near the left wall. In these stakes could be set and connected by ropes, thus making a narrow passageway along the side. The purpose of the arrangement is not difficult to understand. Through the north corridor the gladiators entered and left the building, and the wild beasts were brought in; so provision had to be made to give them a passage separate from that used by the spectators. Before the commencement of an exhibition the whole entrance was accessible to the populace, which eagerly crowded forward to secure seats in good season. When they had for the most part found their places, the barrier was set up, and only a narrow alley was left along the east wall for belated spectators who wished to pass into the crypt on that side; the rest of the passage was reserved for the gladiators, and the spectators whose seats were reached from the opposite branches of the crypt were obliged to use the side entrance (c).
The middle division was separated from the summa cavea (8) by a low parapet with a narrow passage (praecinctio, b) on the upper side. The seats of the summa cavea could be reached in two ways, by passing through the crypt and up the long flights of stairs that led through the middle division to the top (best seen in Fig. 99), or by mounting the stairs on the outside of the 218 building to the terrace (10), which has the same level as the highest rows of seats; it is also of the same height as the city wall, with which it is merged on the south and east sides. The terrace was no doubt the principal means of access; ample provision was made for the crowd by building two large double stairways (11), with smaller single flights at the corners where the terrace joined the city wall (12).
Between the terrace and the seats of the summa cavea was an elevated gallery, divided up into small boxes, about four feet square; under the row of boxes were vaulted vomitoria, making the seats of the summa cavea accessible from the terrace. A passage ran along the outside of the boxes, with steps leading from the terrace; only every third box was connected with this passage, however, the other two of the group being entered from a narrow ramp along the front (Fig. 100).
The Amphitheatre had a seating capacity of about twenty thousand persons. We have no information in regard to the distribution of seats, but it may safely be assumed, from the arrangements known to have existed elsewhere, that the lowest division was reserved for the city officials with their friends and other prominent people; that an admission fee was charged for the seats of the middle division; and that the seats of the upper division were free. The gallery was doubtless set aside for women, who were permitted by a regulation promulgated in the reign of Augustus to have a place only in the upper portion of the Amphitheatre.
Besides the inscription giving the names of the builders (p. 212) there are several others of interest in connection with the building. Four of them, cut in large letters in the travertine coping of the wall about the arena, commemorate the construction of seats. One reads: L. Saginius II vir i. d. pr[o] lu[dis] lu[minibus] ex d[ecurionum] d[ecreto] cun[eum],—'Lucius Saginius, duumvir with judiciary authority, in accordance with a resolution of the city council (constructed) a section of seats in the place of the games and illumination,' that otherwise he would have been required to provide. Another of the series is even more abbreviated, but the meaning is clear: MAG · PAG · AUG · F · 219 S · PRO · LUD · EX · D · D, that is, Magistri Pagi Augusti Felicis Suburbani pro ludis ex decurionum decreto,—'The officials of the suburb Pagus Augustus Felix by authority of a resolution of the city council (constructed a section of seats) in the place of providing games.'
From an inscription in the Stabian Baths, to which reference has already been made (p. 195), it is clear that some freedom of choice was permitted to the city officials regarding the disposition of the sum which they were required to contribute for public purposes in recognition of the honor conferred upon them by their election. The Amphitheatre was not provided with seats at the beginning, and one wedge-shaped section (cuneus) after another was added until the divisions were complete; meanwhile the spectators made themselves as comfortable as they could on the sloping ground. As the organization of the Pagus Augustus Felix did not take place till 7 B.C., the construction of the seats could not at that time have been completed; but they were all finished before the overwhelming of the city.
The north entrance to the arena was adorned with two portrait statues of Gaius Cuspius Pansa, father and son, placed in niches in the walls facing each other. The statues have disappeared, but the inscriptions underneath are still in place. What services the Pansas had rendered in connection with the Amphitheatre to merit this distinction, we do not know; but the father, as the inscription indicates, was 'prefect in accordance with the law of Petronius' (p. 14); that is, he was appointed by the city council to exercise the functions of the two duumvirs when no valid election occurred. Bulwer Lytton, by a natural error, makes Pansa a commissioner to secure the execution of an altogether different Lex Petronia, which forbade the giving of slaves to wild beasts unless judicial sentence had been previously passed upon them.
The attraction of the gladiatorial exhibitions, together with the ample seating capacity of the building, stimulated attendance from neighboring cities, and on one occasion unfortunate results followed. In the year 59 A.D. a Roman senator, Livineius Regulus, who had been expelled from the Senate, and 220 had apparently taken up his residence at Pompeii, gave an exhibition that attracted a great concourse. Among those who came to witness the combats were many inhabitants of Nuceria. The people of the two towns may not have been on the best of terms previously; whatever the cause, the Pompeians and Nucerians commenced with mutual bantering and recriminations, then resorted to stone-throwing, and finally engaged in a free fight with weapons.
The Nucerians, as can easily be understood, fared the worse, having many killed and wounded. They carried the matter to Rome, lodging a complaint with Nero; the emperor referred the case to the Senate, which decreed that Regulus and the leaders of the disturbance should be sent into exile, that the Pompeians should not be permitted to hold any gladiatorial exhibitions for the space of ten years, and that the illegal societies at Pompeii—in regard to which, unfortunately, we have no further information—should be dissolved. From the receipts of Caecilius Jucundus we learn, further, that the duumvirs of the year 59 were removed from office, and that with the new duumvirs, elected in their places, a magistrate with extraordinary powers, praefectus iuri dicundo, was associated—measures that indicate how serious the disturbance of public order must have been.
Reminiscences of this bloody fray are found in several inscriptions scratched on walls; and a lively idea of it is given by a wall painting found in 1869 in a house near the theatres, now in the Naples Museum (Fig. 101). The picture is of special interest as throwing light on the surroundings of the Amphitheatre and some of its arrangements. The open space with the trees in the foreground, among which are various booths, remind one of a park; at the right is a single house. It is clear from the painting that the women's boxes, in the gallery, were arched in front; and we see how the great awning, velum, was stretched over the south end to protect the audience from the sun. It was carried by the two towers of the city wall (one of them is indicated on the plan, 13) and by masts that stood in the passage behind the women's boxes, where several of the perforated stones in which they were set may still be seen. 221
That the sports of the Amphitheatre had at all times the keenest interest for the Pompeians is evident, not only from the number of notices having to do with the games, which we see painted in red on walls along the streets or on tombs by the roadside, but also from the countless graffiti in both houses and public places having reference to combats and favorite gladiators. The limits of space do not permit us to describe the gladiatorial exhibitions as they took place at Pompeii and other Roman cities; but the inscriptions bring so near to us the scenes and excitement of those days that it seems worth while to quote and interpret a few typical examples.
On a tomb near the Nuceria Gate, excavated in 1886, is the following notice, painted in red letters: Glad[iatorum] par[ia] XX Q. Monni Rufi pug[nabunt] Nola K[alendis] Mais, VI. V. Nonas Maias, et venatio erit,—'Twenty pairs of gladiators, furnished by Quintus Monnius Rufus, will fight at Nola May 1, 222 2, and 3, and there will be a hunt.' The forms of the letters and the numerous ligatures point to a comparatively early period, perhaps antedating the reign of Augustus. The 'hunt,' venatio, was an exhibition of wild beasts, which sometimes were pitted against one another, sometimes fought with men. Another tomb close by bears a notice of a gladiatorial combat to take place at Nuceria.
A still larger number of gladiators is announced in this notice: Cn. Allei Nigidi Mai quinq[uennalis] gl[adiatorum] par[ia] XXX et eor[um] supp[ositicii] pugn[abunt] Pompeis VIII VII VI K[alendas] Dec[embres]. Ven[atio] erit. Maio quin[quennali] feliciter. Paris va[le],—'Thirty pairs of gladiators furnished by Cn. Alleius Nigidius Maius, quinquennial duumvir, together with their substitutes, will fight at Pompeii November 24, 25, 26. There will be a hunt. Hurrah for Maius the quinquennial! Bravo, Paris!' The substitutes were to take the place of the killed or wounded, that the sport might not suffer interruption. Nigidius Maius appears to have been a rich Pompeian of the time of Claudius. In another painted inscription, he advertises a considerable property for rent (p. 489). His daughter, as we know from an inscription belonging to a statue erected in her honor, was a priestess of Venus and Ceres. Paris was probably a popular gladiator.
Other officials besides duumvirs provided exhibitions. Thus an aedile: A. Suetti Certi aedilis familia gladiatoria pugnab[it] Pompeis pr[idie] K[alendas] Iunias; venatio et vela erunt,—'The gladiatorial troop of the aedile Aulus Suettius Certus will fight at Pompeii May 31; there will be a hunt, and awnings will be provided.'
The following notice can be dated, approximately: D. Lucreti Satri Valentis flaminis Neronis Caesaris Aug[usti] fili perpetui gladiatorum paria XX, et D. Lucreti Valentis fili glad[iatorum] paria X pug[nabunt] Pompeis VI V IV III pr[idie] Idus Apr[iles]. Venatio legitima et vela erunt. Scr[ipsit] Aemilius Celer sing[ulus] ad luna[m],—'Twenty pairs of gladiators furnished by Decimus Lucretius Satrius Valens, permanent priest of Nero, son of the emperor, and ten pairs of gladiators furnished by Decimus Lucretius Valens his son, will fight at 223 Pompeii April 8, 9, 10, 11, and 12. There will be a big hunt, and awnings. Aemilius Celer wrote this, all alone by the light of the moon.' The reference to Nero as the son of the emperor, shows that the inscription was written after he was adopted by Claudius, in 50 A.D., and before Claudius's death, in 54. Celer was an enterprising painter of notices, whose name appears elsewhere in a similar connection.
Besides the general announcement of a gladiatorial exhibition, a detailed programme, libellus, was prepared in advance, of which copies were sold. No such copy has come down to us, but the character of the contents of a programme may be inferred from the order of events which a Pompeian with waste time on his hands scratched on a wall; the memorandum covers two exhibitions, which came near together in the early part of May, the result of each combat being carefully noted. Unfortunately the letters have now become almost illegible; but we give the superscription and three of the nine pairs of combatants mentioned in the second programme, which is the better preserved of the two, adding in a separate column the full forms of the abbreviated words; the figures indicate the number of combats in which the different gladiators had taken part:—
| MUNUS · N ... IV · III | Munus N ... IV. III. | ||
| PRID · IDUS · IDI[BUS] · MAI[S] | pridie Idus, Idibus Mais | ||
| T M | Threx, Myrmillo | ||
| v. | Pugnax · Ner · III | vicit. | Pugnax, Neronianus, III |
| p. | Murranus · Ner · III | periit. | Murranus, Neronianus, III |
| O T | Hoplomachus, Threx | ||
| v. | Cycnus · Iul · VIIII | vicit. | Cycnus, Iulianus, VIIII |
| m. | Atticus · Iul · XIV | missus est. | Atticus, Iulianus, XIV |
| ESS | Essedarii | ||
| m. | P · Ostorius · LI | missus est. | Publius Ostorius, LI. |
| v. | Scylax · Iul · XXVI | vicit. | Scylax, Iulianus, XXVI |
The name of the official who gave the exhibition (munus) is obliterated. The contests extended over four days, May 12-15.
In the first pair of gladiators Pugnax, equipped with Thracian weapons—a small, round shield and short, curved sword or 224 dagger—was matched with the Myrmillo Murranus, who bore arms of the Gallic fashion, with the image of a fish on his helmet. Both were Neroniani; that is, from the training school for gladiators founded by Nero, apparently at Capua. Pugnax and Murranus had both been through three contests previously. The name of a gladiator entering a combat for the first time was not followed by a number, but by the letter T, standing for tiro, 'novice.' At the left we see the record added to the programme by the writer in order to give the result of the combat. Pugnax was the victor, Murranus was killed.
In the second pair Cycnus, in heavy armor, was pitted against Atticus, who had the Thracian arms. Both were from the training school founded by Julius Caesar, probably at Capua, and hence are called Iuliani. Cycnus won, but the audience had compassion on Atticus, and his life was spared. The same term was applied to a defeated gladiator permitted to leave the arena as to a soldier having an honorable discharge—missus, 'let go.'
The third pair fought in chariots, being dressed in British costume. Scylax was from the Julian school. Such establishments let out gladiators to those who gave exhibitions, and obtained in this way a considerable income. But Publius Ostorius, as his name implies, was a freeman; presumably he was a gladiator, who, having served a full term, had secured his freedom, and was now fighting on his own account. Though beaten, he was permitted to live, perhaps on account of his creditable record; he had engaged in fifty-one combats.
The combatants from the schools of Caesar and Nero were especially popular, and were generally victorious; but gladiators belonging to other proprietors are mentioned, as in the inscriptions of a house on Nola Street, which will be mentioned again presently. Here we find gladiators who were evidently freemen named with others who were slaves of different masters. In only one of these inscriptions, however, do we find the name of an owner that is known to us: Essed[arius] Auriolus Sisen[nae]. The chariot fighter Auriolus belonged to a Sisenna, seemingly either the Sisenna Statilius Taurus, who was consul in 16 A.D., or his son of the same name. As we have seen, it was a Statilius 225 Taurus who built the first permanent amphitheatre in Rome, in 29 B.C. The control of this building remained in the hands of the family. In the columbarium in which the ashes of their slaves and freedmen were placed, we find inscriptions of a 'guard of the amphitheatre,' and of a 'doorkeeper'—custos de amphitheatro, ostiarius ab amphitheatro. It is highly probable that the family—the first in Rome after the imperial house—possessed a training school, and derived an income from furnishing gladiators to those who gave exhibitions.
In view of these facts, we must suppose that the 'troop' (familia gladiatoria) of Suettius Certus, for example, was simply a band of gladiators brought together for a particular engagement, not a permanent organization. The giver of an exhibition would make a contract for the gladiators that he might need. At the close of the combats the dead would be counted, the surviving freemen paid off and dismissed, and the surviving slaves returned to their masters, 'the troop' thus going out of existence.
Occasionally the individual who provided the combats would erect a monument to the fallen, by way of perpetuating the memory of his munificence. A familiar example is the memorial set up by Gaius Salvius Capito at Venosa, of which the inscription is extant. The names are given of the gladiators who were killed, together with the number of their previous combats and victories. They were slaves of different masters, only one of them, Optatus, being owned by Capito himself. Optatus was a tiro, who fell thus in his first contest. Possibly his master had obliged him, on account of some misdemeanor, to enter the arena with little previous training.
Besides the classes of inscriptions of which examples have been presented, all sorts of scratches upon the plastered walls bear witness to the general enthusiasm for gladiatorial sports. Sometimes there is simply the name of a gladiator, with his school and the number of combats, as Auctus, Iul[ianus], XXXXX; sometimes we find a rough outline of a figure with a boastful legend, as Hermaïscus invictus hac, 'Here's the unconquered Hermaïscus.'
There are also memoranda in regard to particular combats, 226 illustrated by rude sketches. Thus on a wall in the house of the Centenary we find a drawing of a gladiator in flight, pursued by another, with the note: Officiosus fugit VIII Idus Nov[embres] Druso Caesare M. Iunio Silano cos.,—'Officiosus fled on November 6, in the year 15 A.D.' A similar sketch has been found in another house, with these words written beside the fleeing gladiator, Q. P[e]tronius O[c]ta[v]us XXXIII, m[issus]; beside the pursuer, Severus lib[ertus], XXXXXV, v[icit]. Severus was thus a gladiator who had been a slave, and had gained his freedom: he had fought fifty-five combats. Petronius Octavus may have been a freeman, who had fought on his own account from the beginning. In taverns a painting of a gladiator with an inscription like the record of a programme was a favorite subject of decoration.
Athletes in all ages have won the admiration of the gentler sex; and it would be surprising if among so many gladiatorial graffiti there were not some containing references to female admirers. In the peristyle of a house on Nola Street (V. v. 3) the names of about thirty gladiators are found; the kinds of weapons and the owners are designated, and the number of previous combats given, as in the programmes, while records of the results of the combats are entirely lacking. Terms of endearment are lavished upon two, Celadus, Threx, and Crescens, net fighter; Celadus is suspirium puellarum, 'maidens' sigh,' and puellarum decus, 'glory of girls'; while Crescens is puparum dominus, 'lord o' lassies,' and puparum medicus, 'the darlings' doctor.'
Another graffito informs us that at one time—before the year 63—a gladiator lived in this house: Samus / Ↄ / m[urmillo], idem eq[ues], hic hab[itat],—'Samus, who has fought once, and once conquered (Ↄ is for corona, 'crown'), Myrmillo, and at the same time fighter on horseback, lives here.' Other gladiators, no doubt, shared the dwelling with him; and the amatory graffiti may have been written by one and another miles gloriosus, referring to conquests outside the arena, or by companions in bitter scorn. 227
Fig. 102.—View of Abbondanza Street, looking east.
At the left, fountain of Concordia Augusta, and side entrance of the Eumachia building.
In the pavement, three stepping stones.
The streets of Pompeii vary greatly in width. The widest is Mercury Street, the continuation of which near the Forum has a breadth of nearly 32 feet. Next come Abbondanza and Nola streets, the greatest width of which is about 28 feet; the other streets and thoroughfares vary from 10 to 20 feet. With unimportant exceptions, broad and narrow streets alike are paved with polygonal blocks of basalt, which in laying were fitted to one another with great care; on both sides are 228 raised sidewalks, with basalt or tufa curbing. The sidewalks in some places are paved with small stones, elsewhere are laid with concrete, or left with a surface of beaten earth. As there is no uniformity, the sidewalk varying in front of adjoining houses, it is clear that the choice of materials was left to individual owners of abutting property. The limits of ownership are often designated by boundary stones, laid in the surface of the walk.
Broad ruts, worn by wheels, are seen in the pavement, shallower in places where the basalt flags, cut from the lowest stratum of the stream of lava, are particularly hard; deeper wherever there are blocks quarried nearer the surface. Only the principal streets were wide enough to allow wagons to meet and pass; elsewhere drivers must have waited at a corner for a coming team to go by. It seems likely that driving on the streets of the city was forbidden, wheeled vehicles being used only for traffic; people who wished to ride availed themselves of litters.
At various places along the thoroughfares, but particularly at the corners, large oblong stepping stones with rounded corners were set in the pavement at convenient distances for those wishing to cross, the surface being on a level with the sidewalk. The number varied according to the width of the pavement; in the broadest streets as many as five were used. They were arranged always in such a way as to leave places for the wagon wheels. It is not difficult to understand how Pompeian drivers guided their teams past them; draft animals were attached to the wagon by means of a yoke fastened to the end of the pole, and, as there were no tugs or whippletrees, they had a greater freedom of movement than is allowed to modern teams.
It is not to be supposed that so complete a system of paving existed from the beginning of the city. Some light is thrown on the period of its laying by two inscriptions,—one, EX · K · QUI, cut in the edge of the sidewalk west of Insula IX. iv.; the other, K · Q, in the pavement between the second and fourth Insulae of Region VII. Both are evidently dates, and in full would read ex Kalendis Quinctilibus, 'from the first day of July,' and Kalendis Quinctilibus, 'July 1.' Apparently they 229 relate to the laying of the pavement; this was in place, even in the unimportant side street of Region VII, when the inscriptions were cut, and so must go back to the time before the name of the month Quinctilis was changed to Iulius, our July. Pompeii was paved, therefore, before 44 B.C.
The stepping stones were particularly useful when there was a heavy rain; for the water then flowed in torrents down the streets, as it does to-day in Catania, where the inhabitants have light bridges which they throw over the crossings after a storm. There were covered conduits to carry off the surface drainage of the Forum, one of which runs under the Strada delle Scuole to the south, the other under the Via Marina to the west. Elsewhere the water rushed down the streets till it came near the city walls, where it was collected and carried off by large storm sewers. These are still in successful operation, as are also the conduits at the Forum. One is at the west end of the Vico dei Soprastanti, another at the west end of Nola Street; and a third leads from Abbondanza Street, where it is crossed by Stabian Street, toward the south.
There were other sewers in the city, but they were of small dimensions and have not been fully investigated. They seem generally to have been under sidewalks. They were not designed to receive surface water, but the drainage of houses. They cannot have served this purpose fully, however, for most of the closets were connected, not with the sewers, but with cesspools.
After the lapse of more than eighteen centuries, the visitor at Pompeii will distinguish at a glance the business streets from those less frequented. The sides of the former are lined with shops; along the latter are blank walls, broken only by house doors, with now and then a small window high above the pavement. The greatest volume of business was transacted on the two main thoroughfares, Stabian and Nola streets; next in importance were Abbondanza Street, leading from the Forum toward the Sarno Gate, and the continuation of Augustales Street from the north end of the Forum toward the east. First in the list of quiet thoroughfares is the broad Mercury Street, along which were many homes of wealth; the north end of it is closed by the city wall. 230
There were many fountains along the streets of Pompeii, most of them at the corners. They were fed by pipes connecting with the water system of the city. The construction is simple. A deep basin was made by placing on their edges four large slabs of basalt, held together at the corners by iron clamps. Above one of the longer sides, usually near the middle, is a short, thick standard, of the same stone, pierced for the lead feed pipe, which threw a jet of water forward into the basin below; on the opposite side is a depression through which the superfluous water ran off into the street. Most of these standards are ornamented with reliefs, roughly carved but effective,—an eagle with a hare in its beak, a calf's head, a bust of Mercury, a head of Medusa, a drunken Silenus (Fig. 103), or some other suitable design, arranged so that the water would spurt from the mouth of the figure or from an amphora.
Occasionally we find a fountain of finer material. That of Concordia Augusta, of limestone, has already been mentioned (p. 117). In the neighborhood of the Porta Marina there is a fountain of white marble with a relief showing a cock that has tipped over a jar, from the mouth of which the water flowed. Both these more costly fountains were probably the gift of private individuals, one presented to the city by Eumachia, the other by the owner of the nearest house, at VII. xv. 1-2. All the fountains bear witness to long use by the depressions worn in the stone by the hands of those leaning forward to drink.
Water towers stand at the sides of the streets, small pillars of masonry preserved ordinarily to the height of 20 feet. Usually on one side there is a deep perpendicular groove (shown in Fig. 103) in which ran the pipe that carried the water to the top of the tower, where it was received by a small open reservoir, presumably of metal, and distributed through numerous small pipes leading to the fountains and to private houses. The sides of the towers are often covered with incrustations of lime deposited from the water, in which the impressions of the lead pipes are still to be seen; in the case of one tower, at the northeast corner of Insula VI. xiii, a number of the pipes have been preserved. A reservoir was placed also on the top of the commemorative arch at the lower end of Mercury Street, on 231 which stood the bronze statue of Nero or Caligula (p. 48); the traces of the pipes leading from it are clearly seen on the surface of the arch. Similar water towers are in use now in Constantinople and Palermo, having been introduced into the latter city, it would seem, by the Saracens, who very likely took their water system from that of the Turkish capital.
In consequence of these arrangements, Pompeii was well supplied with water. There were flowing jets in all houses except the poorest, and in some the amount used must have been large. In the house of the Vettii there were no less than sixteen jets, in the house of the Silver Wedding, seven; and an equally generous distribution is found in many other of the more extensive private establishments. Large quantities of water were used also in the public baths. The water pipes were made of sheet lead folded together, a transverse section showing the shape of a pear. They were of all sizes, according to the pressure; the flow of water was regulated by means of stopcocks, much like those in use to-day.
Across the street from the Baths near the Forum, on the west, is a deep reservoir, of which we give the plan (Fig. 104). It is built partly below the level of the sidewalk, and measures about 50 feet in length and 13 in width, being covered by a 232 vault. In the south end is a window (c), reached from one of the stairways; when the reservoir was filled to the bottom of the window, it contained not far from ninety-five thousand gallons. There were two outlets. One was at the level of the floor, closed by means of a bronze slide; the grooves in which the slide worked are preserved. This must have been used only when the reservoir was cleaned. The other outlet was placed about three feet above the floor, so that the water could be drawn off without disturbing the bottom. On the flat roof were rooms the arrangement of which cannot be determined.
Similar reservoirs are found in Constantinople, designed to furnish a supply of water in case of siege. Such may have been the purpose of our structure, which seems to have been built in the early years of the Roman colony. The residents, remembering the hardships of the siege of Sulla, may have thought it necessary to make provision against a similar strait in the future.
Fig. 104.—Plan of reservoir, west of the
Baths near the Forum.
View larger image
a, b, c. Windows.
d, e. Stairs.
The source from which the city received its water supply has not been discovered. Evidently it did not draw upon the sources of the Sarno; the water channel constructed by Fontana (p. 25) runs through the city at a height of less than sixty feet above the level of the sea, while the ancient aqueduct that supplied Pompeii had so great a head that in the highest parts of the city, more than 130 feet above the sea, it forced the water to the top of the water towers, at least twenty feet more. Copious springs can never have existed on the sides of Vesuvius; water must have been brought to the city from the more distant mountains bounding the Campanian plain on the east.
We can hardly believe that the construction of a water channel for so great a distance lay within the resources of so small a town. We find, however, the remains of a great aqueduct which, starting near Avellino, a dozen miles east of Nola, skirted the base of Vesuvius on the north and extended westward, furnishing water not only to Naples but also to Puteoli, 233 Baiae, and Misenum. This ancient structure drew from the same springs, and followed substantially the same route, as the new aqueduct which since 1885 has been bringing water to Naples. No inscription in regard to it has been found, and there is no reference to it in ancient books. The remains—of which the longest section, known as Ponti Rossi, 'Red Bridges,' may be seen near Naples—seem to indicate two styles of construction, extensive repairs having been made after the aqueduct had been partly destroyed; but up to the present time it has not been possible to determine the period to which they belong.
The water system of Pompeii goes back to the time before the founding of the Roman colony. This is evident, not only from the arrangements of the older baths, which contemplated a freer use of water than could well have been provided by cisterns, but also from the existence of three marble supports for fountain basins, which, as shown by their style of workmanship, the use of Oscan letters as mason's marks, and their location in pre-Roman buildings—the temple of Apollo, the Forum Triangulare, and the house of the Faun—belonged to the earlier period. If we may ascribe the building of the great aqueduct to the time of peace and prosperity in Campania between the Second Punic War and the Social War, and suppose that Pompeii, joining with other towns in its construction, was supplied by a branch from it, we have a simple and highly probable solution of the problem. Nothing in the character of the masonry requires us to assign the aqueduct to a later date.
The shrines along the streets, with few exceptions, were dedicated to the guardian deities presiding over thoroughfares, particularly the gods of street crossings, Lares Compitales. The worship of these divinities in Rome was reorganized by Augustus and placed in charge of the precinct wardens, vicorum magistri, who were to see that the worship of his guardian spirit, Genius, was associated with that of the Lares at each shrine. The arrangements at the Capital were naturally followed by the colonies and other cities under Roman rule. 234
At Pompeii the shrines of the street gods differ greatly in size and character. Sometimes there is a small altar against the side of a building, with two large serpents, personifications of the Genius of the place, painted on the wall near it; one of the serpents, with a conspicuous crest, represents a male, the other, a female.
Frequently the place of the altar is taken by a niche, in which the passer-by could deposit his offering. In our illustration (Fig. 105) we see an ancient street altar which was carefully preserved when the Central Baths were built, a niche being made over it in the new wall.
Sometimes a large altar is found, and the Lares, with their offerings, are painted on a wall above it. Such a shrine may be seen at the northwest corner of Stabian and Nola streets, between the fountain and the water tower (Fig. 103). Back of the altar is a wall terminating in a gable (the tiles are modern) on which was a painted altar with four worshippers clad in togas, and a fluteplayer, the inseparable accompaniment of a Roman sacrificial scene; at the sides were the two Lares, represented as youths, in loose tunics confined by a girdle, holding in one hand, high uplifted, a drinking horn (rhyton), from which a jet of wine flows into a small pail (situla) in the other hand. It is remarkable that we do not find in this or similar paintings at Pompeii, 235 any figure representing the Genius of the emperor, while in private houses the Genius of the proprietor often has a place with the Lares, and sometimes the Genius of the emperor also; in theory at least, as already remarked (p. 104), the emperor stood to all men in the relation that the master of a house bore to the household.
There is also a small chapel for the worship of the street gods on the west side of Stabian Street, near Abbondanza Street. As may be seen from the accompanying plan (Fig. 106), at the left as you enter is a bench of masonry (1), at the rear a long altar (2). In the wall at the right is a niche for the bronze or terra cotta figures of the Lares and the Genius, while the surface of the altar is divided into two parts, for the separate worship of the same divinities. A similar chapel is situated on the west side of Mercury Street (VI. viii. 14). Here also we find a bench of masonry, with two niches above it; in the middle was a block of limestone which may have been used as an altar. At the rear is a door leading into a small back room. This chapel was formerly thought to be a barber shop.
It has been customary to assign to the street gods all of the shrines at the side of the street. Occasionally, however, other divinities were thus honored; and the only street altar found with an inscription is consecrated to a different deity. This altar is near Nola Street, on the east side of Insula IX. vii. On the wall above two cornucopias are painted the words Salutei sacrum, 'Sacred to Salus'; the goddess of health was worshipped here.
Near the upper end of the Forum, on the north side of Insula VII. vii, is another altar, above which is a stucco relief representing a sacrifice; at the sides of the relief are pilasters, and over it a gable, in which an eagle is seen. This indicates that the shrine was dedicated to Jupiter.
The largest of the street altars, of tufa, stands free in a vaulted niche on the north side of Insula VIII. ii, but no traces of painting are to be seen near it (Fig. 107). 236
Various divinities are painted on the outside of houses. The largest picture of this kind is at the corner of Abbondanza Street, on the east side of Insula VIII. iii. It contains figures of the twelve gods, distinguished by their attributes—Vesta, Diana, Apollo, Ceres, Minerva, Jupiter, Juno, Vulcan, Venus Pompeiana, Mars, Neptune, and Mercury. Underneath are the two serpents, facing each other, on either side of a painted altar; near the altar are other figures that cannot be plainly distinguished, probably of men offering sacrifice. This is not a shrine—there is no place for the offerings. The owner of the property (house of the Boar), desired to place his household under the protection of these gods, perhaps also to preserve the corner from defilement. We often find roughly sketched figures of single gods, to the guardian care of whom the master of a house wished to commit his interests—most frequently Mercury, the patron divinity of traders, and Bacchus; but also Jupiter, Minerva, and Hercules.
Sometimes merely a pair of serpents are painted on a wall, in order to give a religious association to the place, as a means of protection. In one case (east side of Insula VII. xi. 12) an explicit warning was painted on the plaster beside them: Otiosis locus hic non est; discede, morator,—'No place for loafers here; move along!' 237
From the military point of view, Pompeii at the time of the eruption did not possess a system of defences. For many years previously the city wall had been kept in repair only as a convenience in matters of civil administration, and the gates had long since lost all appearance of preparedness to resist attack. The fortifications are not, however, without interest. They form a massive and conspicuous portion of the ruins, and as a survival from an earlier period they have recorded many evidences of the successive changes through which the city passed.
The relation of the wall to the configuration of the height on which Pompeii stood was pointed out in connection with our general survey of the city (p. 31). Along the southwest side, at the time of the eruption, it had almost completely disappeared. Here, where the slope was steepest and the city best defended by nature, the wall had been removed, and its place occupied by houses, at a comparatively early date, probably in the second century B.C.; enough fragments remain, however, to enable us to determine its location with certainty. Elsewhere the greater part of the wall is in a fair state of preservation. The towers did not belong to the original structure, and one of the gates in its present form is of still more recent origin.
The construction of the wall will be readily understood with the help of the accompanying illustrations.
First, two parallel stone walls were built, about 15 feet apart and 28 inches thick; both walls were strengthened on the side toward the city by numerous buttresses, the inner wall being further supported by massive abutments projecting into the space between (Fig. 108). This space was filled with earth. 238
When the desired height, 26 or 28 feet, was reached, a breastwork of parapets was constructed on the outer wall; the inner wall was carried up about 16 feet above the broad passageway on the top (Fig. 110) as a shield against the weapons of the enemy, preventing the missiles from going over into the town and causing them to fall where the garrison could easily pick them up to hurl back again. Rain water falling on the top flowed toward the outside, and was carried beyond the face of the masonry by stone waterspouts.
Fig. 108.—Plan of a section of the city wall.
View larger image
For additional strength there was heaped against the inner wall an embankment of earth, which still remains on the north side, between the tenth and twelfth towers. At the right of the Herculaneum Gate the place of the embankment and of the inner wall was taken by a massive stairway (E in Fig. 108) leading to the top. Originally, the stairs extended east about 270 feet, but afterwards they were demolished for the greater part of the distance, and houses were built close to the wall. There is a smaller stairway of the same kind east of the Stabian Gate (Fig. 111).
In the original structure both outer and inner walls were built of hewn blocks of tufa and limestone; but we find portions of the outer wall, and all the towers, of lava rubble, the surface of which was covered with stucco. The towers were already standing, as shown by inscriptions, at the time of the Social War. We are therefore safe in believing that in the period of peace following the Second Punic War the walls were not kept in repair, some parts of the outer wall being utilized as a quarry for building stone; that with the advent of the Social War they were hastily repaired on the north, east, and south sides, and strengthened by towers, but that no attempt was made to renew the fortifications on the steep southwest side, between the Herculaneum 239 Gate and the Forum Triangulare, where the line of the old wall was covered with buildings.
Fig. 109.—View of the city wall, inside, where the embankment has been removed. The door in the tower at the left marks the height of the embankment.
When the towers were added—probably not long before 90 B.C.—they were not distributed evenly along the wall, but were placed where they seemed to be most needed. The western portion of the ridge between the Herculaneum and 240 Capua Gates was particularly favorable for the approach of an enemy; hence three towers were built near together here, numbered 10, 11, and 12 on Plan I. Another part of the wall especially exposed was on the southeast side, where the height covered by the city slopes gradually down to the plain; and we find five towers within a comparatively short distance, two east of the Amphitheatre, the other three further south. On the north side, between the Capua and Sarno gates, the slope is steeper and two towers were thought to be sufficient.
That there were once two additional towers, besides the ten that have been enumerated, is evident from several Oscan inscriptions, painted in red letters on the street walls of houses. One of them, near the southwest corner of the house of the Faun, reads thus: 'This way leads between Towers 10 and 11, where Titus Fisanius is in command.' The street referred to runs between the tenth and twelfth Insulae of Region VI, direct to the city wall. Two others refer to a 'Tower 12' near the Herculaneum Gate, this part of the fortifications being in charge of Maras Adirius.
In a fourth inscription we read: 'This way leads between the houses of Maras Castricius and of Maras Spurnius, where Vibius Seximbrius is in command.' In 1897, a fifth inscription became visible on the north side of Insula VIII. v-vi, where it had been concealed by a coat of plaster: 'This way leads to the city building (and) to Minerva.' The street referred to is seemingly the blind alley which formerly ran through the insula (Plan I). If this is correct, the sanctuary of Minerva is the Doric temple in the Forum Triangulare; but the 'city building' cannot be identified.
The five inscriptions evidently date from the siege of Sulla; they were intended for the information of the soldiers, belonging to the army of the Allies, who were quartered in the city to assist in its defence. At this time there must have been twelve towers, that near the Herculaneum Gate being reckoned last in the enumeration, as in Plan I; but the location of the two that have disappeared has not been determined. Another suggestive reminder of the same siege is the name L · SVLA, 241 scratched by a soldier in the stucco on the inside of Tower 10, near a loophole.
The towers, which measure approximately 31 by 25 feet, were built in two stories, with strong vaulted ceilings. The floor of the second story was on a level with the top of the wall, and over this story was a terrace with battlements, as shown in Fig. 110; the roof seen on the two towers in Fig. 101 was a later addition, made when the city walls were no longer needed as a means of defence. Stairways on the inside gave ready access to the lower part of the towers, which could be entered from the city by a door (Fig. 109) opening on the embankment. On the outside were loopholes. Below, at the right, was a sally port, placed thus in order that the soldiers when rushing forth might present their shields to the enemy, leaving the right hand free to use with offensive weapons; when returning to the wall they would, if possible, cut their way to the sally port in the next tower to the right, so as to avoid the danger of exposing their right sides to the enemy.
Four of the gates have been excavated, the Porta Marina and the Stabian, Nola and Herculaneum gates; two others, the Vesuvius and Sarno gates, have been partly exposed to view. The remaining two are still completely covered. All bear evidence of extensive repairs, and one of them, the Herculaneum Gate, was entirely rebuilt at a comparatively late period; with this exception, however, they seem to have assumed their present form in the Tufa Period. Three of them still retain traces 242 of decoration of the first style on the inner parts. The different gateways enter the walls at various angles.
The Stabian Gate may be taken as typical. Entering from the outside, at A, one came through a vaulted passage, B, about twelve feet wide, to a broad middle passage, or vantage court, open to the sky, into which missiles and boiling pitch could be hurled from above upon the heads of an enemy attempting to force the gates; then followed a second vaulted passage, a little wider than the other, in which were hung the heavy double doors, opening outward. The projecting posts of the doors are preserved, as are also the stones on which they rested when they were swung back against the wall; the vaulting has been restored. The gateway was paved throughout, with a raised walk on the right side. On one side of the inner entrance is a well (a), the Gorgon's head upon the curb reminding one of the protectress of the gate; on the other, the flight of steps already mentioned (b) leads to the top of the wall. Just beyond the steps are the remains of a small building, perhaps the lodge of the gate keeper (c).
Fig. 111.—Plan of the Stabian Gate.
View larger image
The patron divinity of city gates, Minerva, was probably honored with a small statue in the niche still to be seen in the wall of the vantage court. Two inscriptions commemorate the making of repairs on the thoroughfare passing under the gateway. One of them (at d) is the Oscan inscription recording the work of the aediles Sittius and Pontius, to which reference has already been made (p. 184). The other (at e) is in Latin, and of much later date. It informs us that the duumvirs L. 243 Avianius Flaccus and Q. Spedius Firmus at their own expense paved the road 'from the milestone,' which must have been near the gate, 'to the station of the gig drivers (cisiarios), at the limits of the territory of the Pompeians.' The Roman gigs, cisia, were very light, and adapted for rapid travelling; they were drawn by horses or mules, and were kept for hire at stations along the highways. The site of the station between Pompeii and Stabiae is not known.
The Nola Gate, and the partially excavated Vesuvius and Sarno gates, follow the plan just described in all essential particulars. The inner keystone of the Nola Gate, facing the city, is ornamented with a helmeted head of Minerva, in high relief, which being of tufa has suffered from exposure to the weather. There was once an Oscan inscription near by, which stated that the chief executive officer of the city, Vibius Popidius, let the contract for building this gate, and accepted the structure from the contractor.
Fig. 112.—Plan of the Herculaneum Gate.
View larger image
The front of the Porta Marina has the appearance of a tower projecting from the wall. The gateway consists simply of two vaulted entrances, of unequal width; one for vehicles, the other, at the left, for pedestrians. Both were closed by doors. In the niche at the right of the wider passage the lower part of a terra cotta statue of Minerva was found. There was no vantage court, no inner passage; but in the early years of the Roman colony the steep lower end of the Via Marina for a distance of 70 feet was covered with a vaulted roof, which still remains. Opening into this corridor on the right is a long narrow room, which formed a part of the foundations of the court of the temple of Venus Pompeiana, and is now used as a Museum.
This gate in its present form could hardly have been intended for defence; it was adapted rather for administrative 244 purposes, and must have been built—probably in the place of an earlier structure—in a period when the possibility of war seemed remote. Such a time, as previously remarked, was the second century B.C., particularly the latter half, after the destruction of Carthage.
Fig. 113.—Herculaneum Gate, looking down the Street of Tombs.
The corners of the entrances are opus mixtum, a course of brick-shaped blocks of stone alternating with three courses of bricks.
A still more peaceful aspect is presented by the Herculaneum Gate. The style of masonry—rubble work with opus mixtum at the corners—points to the end of the Republic, rather than to the Empire, as the period of construction. Here we find three vaulted passages, the middle one for vehicles, those on either side for pedestrians. The vaulting over the middle part of the gate has disappeared; but according to appearances a vantage court was left here, in the middle passage, if not in those at the sides; at the inner end of this court the gates were placed. The greater part of the structure served no purpose of utility; it was obviously designed as a monumental entrance to the city. 245
Our chief sources of information regarding the domestic architecture of ancient Italy are two,—the treatise of Vitruvius, and the remains found at Pompeii. The Pompeian houses present many variations from the plan described by the Roman architect; yet in essential particulars there is no disagreement, and it is not difficult to form a clear conception of their arrangements.
The houses of Greco-Roman antiquity differed from those of modern times in several respects. They took their light and air from the inside, the apartments being grouped about a court or about a large central room which ordinarily had an opening in the ceiling; the distribution of space being thus made on a different principle, the large rooms were often larger, the small rooms smaller and more numerous than in modern dwellings of corresponding size; and in the better houses the decoration of both walls and floors was more permanent than is usual in our day. The ancient houses were relatively low, in most cases, if we except the crowded tenements of imperial Rome, not exceeding two stories. The windows in the outside walls were generally few and small, and the external appearance was not unlike that of Oriental houses of the present time. In the city house the large front entrance was frequently ornamented with carved posts and lintel.
The development of the Italic house can be traced at Pompeii over a period of almost four hundred years. The earlier form 246 consisted of a single series of apartments,—a central room, atrium, with smaller rooms opening into it, and a garden at the rear; an example is the house of the Surgeon (p. 280). A restoration of such a house with its high atrium, wide front door, and garden is shown in Fig. 114.
Later, under Greek influence, a court with a colonnade and surrounding rooms was added. This was called peristylium, 'peristyle'; it is simply the more elaborate inner part of the Greek house, andronitis, joined to the dwelling of Italic origin. We find the union of atrium and peristyle with their respective groups of apartments fully accomplished in the second century B.C., the Tufa Period; the type of dwelling thus developed remained in vogue during Roman times and is often called the Roman house. 247
The double origin is clearly indicated by the names of the rooms. Those of the front part are designated by Latin words,—atrium, fauces, ala, tablinum; but the apartments at the rear bear Greek names,—peristylium, triclinium, oecus, exedra. In large houses both atrium and peristyle were sometimes duplicated.
The houses of Pompeii impress the visitor as having been designed primarily for summer use. The arrangements contemplate the spending of much time in the open air, and pains was taken to furnish protection from the heat, not from the cold. The greater part of the area is taken up by colonnades, gardens, and courts; from this point of view the atrium may be classed as a court. The living rooms had high ceilings. In summer they were cool and airy, in winter difficult to heat; they were dark and close when the door was shut, cold when it was open.
With a single exception the arrangements for heating so often met with in the remains of houses discovered in northern countries are found at Pompeii only in connection with bath-rooms; the cold was ineffectively combated by means of braziers. We are led to believe that the Pompeians were extremely sensitive to heat, but endured cold with great patience. One who makes himself familiar with the arrangements of Italian houses to-day will receive a similar impression, although the peculiarity is perhaps less obvious than in the case of the ancient dwellings.
In describing the Pompeian houses it is more convenient to designate the principal rooms by the ancient names. In Fig. 115 we present an ideal plan; in it the names are given to the parts of the house, the relative location of which is subject to comparatively 248 little variation. These parts will first be discussed; then those will be taken up which present a greater diversity in their arrangements.
The vestibulum was the space between the front door and the street. The derivation of the word (ve- + the root of stare, 'to stand aside') suggests the purpose; the vestibule was a place where one could step aside from the bustle and confusion of the street. In many houses there was no vestibule, the front door opening directly on the sidewalk; and where vestibules did exist at Pompeii, they were much more modest than those belonging to the houses of wealthy Romans, to which reference is so frequently made in classical writers. Roman vestibules were often supported by columns of costly marbles, and adorned with statues and other works of art. Only one vestibule at Pompeii was treated as a portico, that of the house of the Vestals near the Herculaneum Gate. This was once as wide as the atrium, the roof being carried by four columns; but before the destruction of the city two partitions were built parallel with the sides dividing it into three parts, a narrow vestibule of the ordinary type, with a shop at the right and at the left.
The passage inside the front door was called fauces, or prothyron. According to Vitruvius the width of it in the case of large atriums should be half, in smaller atriums two thirds, that of the tablinum; at Pompeii the width is generally less than half. In the houses of the Tufa Period the corners of the fauces where it opens into the atrium were ornamented with pilasters connected at the top by an entablature.
The vestibule and fauces were ordinarily of the same width, and were separated by projecting doorposts with a slightly raised threshold (Fig. 116) and heavy double doors. Sometimes, as in the house of Epidius Rufus, there was in addition a small door at the side of the vestibule opening into a narrow passage connecting with the fauces (Fig. 149). In such cases the folding doors, which on account of their size and the method of hanging must always have been hard to open, were generally kept shut. 249 They would be thrown back early in the morning for the reception of clients, and on special occasions; at other times the more convenient small door would be used.
In several instances the volcanic dust so hardened about the lower part of a front door that it has been possible to make a cast by pouring soft plaster of Paris into the cavity left by the crumbling away of the wood; there are several of these casts in the little Museum at Pompeii. With their help, and with the well preserved stone thresholds before us, it is possible to picture to ourselves the appearance of the doorway.
Fig. 116.—Plan and section of the vestibule, threshold, and fauces of the house of Pansa.
View larger image
The doorposts were protected by wooden casings, antepagmenta, which were made fast at the bottom by means of holes in the threshold (α, α in Fig. 116).
The folding doors swung on pivots, which were fitted into sockets in the threshold (β, β) and in the lintel. The pivots were of wood, but were provided—at least the lower ones—with a cylindrical cap of iron or bronze, and the socket had a protective lining of the same metal. Both caps and sockets, 250 especially those of bronze, are found in the thresholds in a good state of preservation. It seems strange that ancient builders did not use smaller pivots of solid metal, on which the doors would have turned much more easily; but a conservative tradition in this regard prevailed against innovation.
The fastenings were elaborate. Near the inner edge of each door was a vertical bolt, which shot into a hole in the threshold (γ, γ); there was probably a corresponding bolt at the top, as in the case of large modern doors. Sometimes there was a heavy iron lock, turned with a key, and also an iron bar which was fastened across the crack in such a way as to tie the two folds together. In many houses there are holes in the walls of the fauces, just back of the door, in which at night a strong wooden bar, sera, was placed; hardly less often we find a hole in the floor a few feet back, in which one end of a slanting prop was set, the other end being braced against the middle of the door. These arrangements bring to mind Juvenal's vivid picture of the disturbances and dangers of the streets of Rome at night.
An atrium completely covered by a roof was extremely rare. With few exceptions, there was a large rectangular opening over the middle, compluvium, toward which the roof sloped from all sides (Figs. 114, 118). In the floor, directly under the compluvium, was a shallow basin, impluvium, into which the rain water fell (h in Fig. 118). The impluvium had two outlets. One was connected with the cistern; a round cistern mouth, puteal, ornamented with carving, often stood near the edge of the basin, as in the house of the Tragic Poet (Fig. 153). The other outlet led under the floor to the street in front, carrying off the overflow when the cistern was full, and also the water used in cleaning the floor. In the better houses a fountain was often placed in the middle of the impluvium.
Vitruvius (VI. iii. 1 et seq.) mentions five kinds of atriums, the basis of classification being the construction of the roof—Tuscan, tetrastyle, Corinthian, displuviate, and tortoise atriums. The first three are well illustrated at Pompeii. 251
The Tuscan atrium, supposed by the Romans to have been derived from the Etruscans, was apparently the native Italic form. Two heavy girders were placed across the room, above the ends of the impluvium (Fig. 117, b). On these, two shorter crossbeams were laid (c), over the sides of the impluvium. The corners of the rectangular frame thus made were connected with the walls at the corners of the atrium by four strong slanting beams (Figs. 117, 118, e). On these and on the frame were placed the lower ends of the sloping rafters (Fig. 117, f), carrying the tiles, the arrangement of which can be seen in Figs. 114, 117, and 118. This was the most common arrangement of the roof at Pompeii.
Fig. 117.—A Tuscan atrium: plan of the
roof.
View larger image
The edge of the compluvium was frequently ornamented with terra cotta waterspouts, representing the heads of animals. In a house near the Porta Marina the projecting foreparts of dogs and lions were used in place of the heads; the remains of a part of the compluvium have been put together again, and are seen in Fig. 119. The lions were placed over the larger spouts at the four corners; the under side of the spouts surmounted by the dogs and lions was ornamented with acanthus leaves in relief. The same illustration presents an example of the antefixes sometimes found.
The tetrastyle atrium differed from the Tuscan in only one respect: there were four columns supporting the roof, one at each corner of the impluvium. In most cases these supports, which interfered with the view of the interior, can hardly have been intended primarily for ornament; they simplified the construction, making the ceiling and roof firm without the use of the heavy and expensive girders. 252
The Corinthian atrium had a larger compluvium than the other kinds, the roof being supported by a number of columns. There are three examples at Pompeii, the houses of Epidius Rufus with sixteen columns (p. 310), of Castor and Pollux with twelve, and of the Fullonica with six.
The roof of the displuviate atrium sloped from the middle toward the sides, the water being carried off by lead pipes. The aperture for the admission of light and air was relatively much higher above the floor than in the kinds previously described. No example of this type has been found at Pompeii.
Fig. 118.—A Tuscan atrium: section.
View larger image
The tortoise atrium, atrium testudinatum, was small and without a compluvium. The roof had a pyramidal shape. There were possibly a few examples at Pompeii, as we may infer from the occasional absence of an impluvium; in the only instance, however, in which it is possible to determine the form of the roof (V. v. 1-2), this must have been very different from that referred to by the Roman writer (p. 343).
Vitruvius says further that the atrium should have an oblong shape, the width being three fifths or two thirds of the length, or measured on the side of a square, the hypothenuse of which is taken for the length. The design was obviously to bring the sides nearer together, thus lessening the strain on the two girders which in the commonest form were used to sustain the roof. The height, to the frame of the compluvium, should be three fourths of the width.
In the case of the tetrastyle and Corinthian atriums at Pompeii the height is indicated by that of the columns, but there are rarely adequate data for determining the height of the others with exactness. In regard to length and breadth the proportions 253 harmonize fairly well with those recommended by Vitruvius; but the height, in the cases in which it can be ascertained, is often greater than that contemplated by the rules of the architect.
Looking at the Pompeian atriums in their present condition (Plate VII, Figs. 121, 153) one might easily receive the impression that they were primarily courts rather than rooms. In this respect the restorations of Roman houses in the older books are often at fault, the atrium being generally represented as too low in comparison with the rooms around it.
The references in the ancient writers uniformly point to this as the principal room of the house. In the earliest times the hearth stood here; a hole in the roof served as a chimney. The accumulation of soot on the ceiling and the walls suggested the characteristic name 'black room'; for atrium comes from ater, 'black.' Here the household gathered at mealtime; here they worked, or rested from their labors. In the atrium Lucretia sat with her maids spinning late at night when her husband entered unexpectedly with his friends.
Such the atrium remained in farmhouses to the latest times. The name meanwhile was transferred to the corresponding apartment of elegant city homes, while in the country it went out of use, being replaced by culina, 'kitchen,' on account of 254 the presence of the hearth. In such a room in his Sabine villa Horace loved to dine, conversing on topics grave or gay with his rustic neighbors, and partaking of the simple fare with relish; while his slaves, freed from the restraints of city life, were permitted to eat at the same time, sitting at a separate table. The remains of an atrium of this kind, with its hearth and niche for the images of the household gods, may be seen in the villa recently excavated near Boscoreale (p. 361).
Without doubt some houses of the ancient type might be found in cities, even in Rome, as late as the end of the Republic. We read of one in Cicero's time in the atrium of which spinning was done. But at Pompeii the hearth had been banished from the atrium at a comparatively early date, in the Tufa Period if not before; and the room was made uncomfortable to sit in, for a considerable part of the year, by the broad opening of the compluvium.
From the architectural point of view, however, the atrium never lost its significance as the central apartment. In all its dimensions, but particularly in height, it presents so great a contrast with the rooms around it as to remind us of the relation of a Roman Catholic church to the chapels at the sides. The impression of spaciousness was perhaps deepened when the atrium was provided with a ceiling. Few traces of such ceilings are found at Pompeii, and in the smaller houses the inside of the roof seems generally to have been visible.
The atrium of the Corinthian type most nearly resembled a court, on account of the size of the opening to the sky and the use of many columns. A suggestion of the un-Italic character of this type appears in the name; for one can scarcely suppose that atriums in the strict sense existed at Corinth.
Although the Pompeian atriums show no traces of a hearth, there is possibly a reminiscence of the ancient arrangement in the gartibulum, a table which we frequently find at the rear of the impluvium. Varro says that since his boyhood these tables, on which vessels of bronze were placed, had gone out of use; at Pompeii they remained in fashion much longer. The gartibulum with its bronze vases may symbolize the ancient hearth with the cooking utensils. Possibly, however, it represents 255 the kitchen table near the hearth on which the dishes were washed; that it may have served a similar purpose in later times is evident from the fact that in front of it a marble pedestal was often placed for a statuette which threw a jet of water into a marble basin at the edge of the impluvium. This group of table, fountain figure, and basin appears in many Pompeian atriums. In Plate VII we see the gartibulum and the supports of the marble-basin, but the base of the fountain figure has disappeared.
The strong box of the master of the house, arca, often stood in the atrium, usually against one of the side walls. It was sometimes adorned with reliefs, as the one shown in Fig. 120, which is now in the Naples Museum. It stood on a heavy block of stone, or low foundation of masonry, to which it was attached by an iron rod passing down through the bottom. A wealthy Pompeian sometimes had more than one of these chests.
In three atriums the herm of the proprietor stands at the rear. One, with the portrait of Cornelius Rufus, is shown in Fig. 121.
When there were two atriums in a house, the larger was more elaborately furnished than the other, and was set aside for the public or official life of the proprietor; the smaller one was used for domestic purposes. Typical examples are found in the houses of the Faun and of the Labyrinth. In the former the principal atrium is of the Tuscan type, the other tetrastyle; in the latter the large atrium is tetrastyle, the smaller Tuscan.
The tablinum was a large room at the rear of the atrium, opening into the latter with its whole width; the connection of the two rooms is clearly shown in Plate VII and Fig. 121. 256 According to Vitruvius, when the atrium was 30 to 40 feet in width—as in the larger Pompeian houses—the tablinum should be half as wide; when the atrium was smaller, the width of the tablinum should be two thirds that of the atrium, while the height at the entrance should be nine eighths, and inside four thirds of the width. These proportions will not hold good for Pompeii, where the tablinum is generally narrower and higher (Vitr. VI. iv. 5, 6).
Fig. 121.—Atrium of the house of Cornelius Rufus, looking through the tablinum and
andron into the peristyle.
In the foreground, the impluvium, with the carved supports of a marble table; at the left,
between the entrances to the andron and the tablinum, the herm of Rufus.
The posts at the entrance were usually treated as pilasters, joined above by a cornice; architecturally the front of this room formed the most impressive feature of the atrium. Between the pilasters hung portières, which might be drawn back and fastened at the sides. In the house of the Silver Wedding the fastenings were found in place,—bronze disks from which a ship's beak projected, attached to the pilasters. 257
In early times the tablinum ordinarily had an opening at the rear also, but this was not so high as that in front, and could be closed by broad folding doors. In winter the doors were probably kept shut. In summer they were left open and the room, cool and airy, served as a dining room, a use which harmonizes well with a passage of Varro explaining the derivation of the name. "In the olden time," says this writer, "people used to take their meals in the winter by the hearth; in summer they ate out of doors, country folk in the court, city people in the tabulinum, which we understand to have been a summer house built of boards." The derivation of tabulinum, of which tablinum is a shortened form, from tabula, 'a board,' is obvious.
The period to which Varro refers antedates that of the oldest houses at Pompeii. The room which we call tablinum was then a deep recess at the rear of the atrium, open at the front, as now, but enclosed by a wall at the rear; against this wall was a veranda opening into the garden, toward which the board roof sloped. People took their meals in the veranda in summer, and to it the name tablinum was naturally applied. In the recess at the rear of the atrium, corresponding to the later tablinum, was the bed of the master of the house, called lectus adversus because 'facing' one who entered the front door. As late as the reign of Augustus, long after it became the custom to set aside a closed apartment for the family room, a reminiscence of the ancient arrangement still remained in the couch which stood at the rear of the atrium or in the tablinum, which was called lectus adversus, or even lectus genialis.
The removal of the hearth and the bed from the atrium must have taken place when the small hole in the roof was replaced by the compluvium. A broad opening was made in the rear wall, and the place where the bed had been was turned into a light, airy room; this was now used as a summer room instead of the veranda, the name of which was in consequence transferred to it.
Even in later times, when the houses were extended by the addition, at the rear, of a peristyle with its group of apartments, the tablinum may often have been used as a summer dining room; but the tendency now was to withdraw the family life 258 into the more secluded rooms about the peristyle. The tablinum, lying between the front and the rear of the house, was used as a reception room for guests who were not admitted into the privacy of the home; and here undoubtedly the master of the house received his clients.
In the house of the Vettii the tablinum is omitted on account of the abundance of room; but at the rear of the atrium there are wide openings into the peristyle (Fig. 158).
The alae, the 'wings' of the atrium, were two deep recesses in the sides (Fig. 115). They were ordinarily at the rear, but were sometimes placed at the middle, as in the house of Epidius Rufus (Fig. 149). Vitruvius (VI. iv. 4) says that where the atrium is from 30 to 40 feet long, one third of the length should be taken for the breadth of the alae; in the case of larger atriums the breadth of these rooms should be proportionally less, being fixed at one fifth of the length for atriums from 80 to 100 feet long; the height at the entrance should be equal to the breadth.
At Pompeii the alae, as the tablinum, are narrower and higher than required by these proportions. In the Tufa Period the entrances were ornamented with pilasters, and treated like the broad entrance of the tablinum.
With reference to the purpose and uses of these rooms we have no information beyond a remark of Vitruvius in regard to placing the images of ancestors in them. This throws no light upon their origin; for only a few noble families could have possessed a sufficiently large number of ancestral busts or masks to make it necessary to provide a special place for these, while the alae form an essential and characteristic part of the Pompeian house. Now and then an ala was used as a dining room; more frequently, perhaps, one was utilized for a wardrobe, as may be seen from the traces of the woodwork. A careful study of the remains only deepens the impression that at Pompeii the alae served no definite purpose, but were a survival from a previous period, in which they responded to different conditions of life. 259
An interesting parallel presents itself in the arrangements of a type of peasants' house found in Lower Saxony. The main entrance, as in the early Italic house, leads into a large and high central room; at the sides of this and of the main entrance are the living rooms and stalls. At the back the central room is widened by two recesses corresponding with the alae; the hearth stands against the rear wall. In the side walls, at the rear of each recess, are a window and a door. The two windows admit light to the part of the central room furthest from the entrance; the doors open into the farmyard and the garden.
The Italic house in the beginning was not a city residence shut in by party walls, but the isolated habitation of a countryman. The design of the alae, as of the recesses in the Low Saxon farmhouse, was to furnish light to the atrium, which, as we have seen, was completely covered by a roof, there being only a small hole to let out the smoke. The large windows in the rear of the alae of the house of Sallust may be looked upon as a survival; but in city houses generally light could not be taken in this way from the sides. After the compluvium had come into general use, a conservative tradition still retained the alae whenever possible, though they no longer answered their original purpose.
In front there were rooms at either side of the entrance, ordinarily fitted up as shops and opening on the street, but sometimes used as dining rooms or sleeping rooms, or for other domestic purposes.
On each side of the atrium were two or three small sleeping rooms; in narrow houses these, as well as one or both of the alae, were occasionally omitted.
At the rear were one or two rooms of the same depth as the tablinum, used in most cases as dining rooms. They frequently had a single broad entrance on the side of the peristyle or the garden (Fig. 134, 22), but were sometimes entered by a door from the atrium or from one of the alae (Figs. 115, 121). The door on the side of the atrium seems generally to have been 260 made when the house was built; if the owner did not wish to use it, it was walled up and treated as a blind door, an ornament of the atrium.
The rooms about the atrium in the pre-Roman period were made high, those in front and at the sides often measuring fifteen feet to the edge of the ceiling, which had the form of a groined vault. The rear rooms were still higher, the crown of the vaults being as far above the floor as the flat ceiling of the tablinum. A corresponding height was given to the doors; those in the house of the Faun measure nearly fourteen feet. The upper part of the doorway was doubtless pierced for the admission of light in the manner indicated by wall paintings, and shown in our restoration of one side of the atrium in the house of Sallust (Figs. 261, 262).
The andron was a passage at the right or the left of the tablinum, connecting the atrium with the peristyle (Figs. 115, 121). The name was used originally to designate an apartment in the Greek house, but was applied by the Romans to a corridor. In modern times the passage has often been erroneously called fauces.
The andron is lacking only in small houses, or in those in which a different connection is made between the front and rear portions by means of a second atrium, or other rooms.
A few Pompeian houses, like those of the olden time, are without a peristyle, having a garden at the rear. In such cases there is a colonnade at the back of the house, facing the garden; this is the arrangement in the houses of the Surgeon, of Sallust, and of Epidius Rufus. In the large house of Pansa (Fig. 179), we find both a peristyle and a garden, the latter being at the rear of the peristyle; and in many houses a small garden was placed wherever available space could be found.
The peristyle is a garden enclosed by a colonnade, or having a colonnade on two or three sides. When this was higher on the north side than on the other three, as in the house of the Silver Wedding, the peristyle was called Rhodian. In the Tufa 261 Period the colonnade was frequently in two stories, on all four sides or on the front alone. Fragments of columns belonging to the second story have been found in many houses, but in only one instance, that of the house of the Centenary, are they of such a character as to enable us to make an accurate restoration; here the double series of columns extended only across the front.
A separate entrance, posticum (Fig. 115), usually connected the peristyle with a side street. At the rear there was often a broad, deep recess, exedra, corresponding with the tablinum. The location of the other rooms in this part of the house is determined by so many conditions, and manifests so great a diversity that it may be spoken of more conveniently in connection with their use.
The small, high rooms about the atrium were in the earlier times used as bedrooms; and such they remained in some houses, as that of the Faun, down to the destruction of the city.
The sleeping rooms about the peristyle were much lower, and the front opened by means of a broad door in its whole, or almost its whole, width upon the colonnade. These rooms could frequently be entered also through a small side door from a dining room, or a narrow recess opening on the peristyle (Fig. 146, x). The design of the arrangement is obvious. In summer the inconvenient large door could be left open day and night, a curtain being stretched across the space; in winter it would be opened only for airing and cleaning, the small door being used at other times.
The place for the bed was sometimes indicated in the plan of the room. In a bedroom of the house of the Centaur, of which an end view is given in Fig. 122, a narrow alcove was made for the bed at the left side; the floor of the alcove is slightly raised, and the ceiling, as often, is in the form of a vault, while the ceiling of the room is higher and only slightly arched. A similar arrangement is found in several other rooms 262 decorated in the first style. In several houses, as in the house of Apollo, there is a sleeping room with alcoves for two beds.
In bedrooms with a mosaic floor the place for the bed is ordinarily white, being separated from the rest of the room by a stripe suggestive of a threshold. A similar division is often indicated in the wall decoration, particularly that of the second style; the part designated for the bed is set off by pilasters on the end walls, and differently treated both in respect to the decorative design and in the arrangement of colors.
Fig. 122.—End of a bedroom in the house of the Centaur, decorated in the first style.
At the left, alcove for the bed; above, two windows.
View larger image
As long as it was customary to sit at meals any fair-sized apartment could be used as a dining room. When the early Italic house was extended by the addition of a peristyle, and the Greek custom of reclining at table was introduced, it became necessary to provide a special apartment, and the Greek name for such a room with the three couches, triclinium, came into use. For convenience in serving, the length of a dining room, 263 according to Vitruvius, should be twice the width. At Pompeii, however, the dimensions are less generous; with an average width of 12 or 13 feet the length rarely exceeds 20 feet. In many cases one end of the room opened on the peristyle, but could be closed by means of broad doors or shutters.
Fig. 123.—Plan of a dining
room with three couches.
View larger image
The plan of a typical dining room is given in Fig. 123. The couch at the right of the table was called the upper couch; that at the left, the lower; and that between, the middle couch. With few exceptions each couch was made to accommodate three persons; the diner rested on his left arm on a cushion at the side nearer the table, and stretched his feet out toward the right. Hence, the first on the upper couch had what was called 'the highest place.' The one next was said to recline 'below' him, because lying on the side toward which the first person extended his feet; the man at the outer end of the lower couch was said to be 'at the foot,' imus. When in the Gospel of John we read of a disciple "lying on Jesus' breast," the meaning is easily explained by reference to Roman usage; John was reclining in the place next below the Master. This arrangement makes clear to us the reason why the couches were so placed that the lower one projected further beyond the table than the upper one; the feet of those on the lower couch were extended toward the end furthest from the table.
To the couches grouped in the manner indicated the same name was applied as to the dining room, triclinium. Of those in the dining rooms only scanty remains are found. In summer the Pompeians, as the Italians of to-day, were fond of dining in the open air. In order to save the trouble of moving heavy furniture couches of masonry were not infrequently constructed in the garden, and have been preserved; such a triclinium is that in the garden of the tannery (p. 398). The arrangement is in most cases precisely that indicated in Fig. 123, the outer end of the lower couch projecting beyond the corresponding 264 end of the upper one. In the middle stands the base of the table, also of masonry; the top is rarely preserved. Near by is a little altar for the offerings made in connection with each meal. The appearance of such a triclinium may be inferred from that of the triclinium funebre shown in Fig. 245, which has a square table and round altar.
Fig. 124.—Plan of a dining
room with an anteroom
containing an
altar for libations.
View larger image
In many gardens we find about the triclinium the remains of four or six columns. These supported a frame of timber or lattice-work, upon which vines were trained, making a shady bower, as in the garden of the tavern in the first Region, referred to below (p. 404).
The couches were ordinarily not provided with backs, but the outer ends of the upper and lower couches sometimes had a frame to hold the cushions, as indicated in Fig. 123 and shown more clearly in our restoration, Fig. 188. In the dining rooms small movable altars must have been used for the offerings, such as those of terra cotta or bronze not infrequently met with in the course of excavation. A fixed altar has been found in only one instance, in a small dining room in the eighth Region (VIII. v-vi. 16). Here, as our plan (Fig. 124) shows, the front of the apartment is set off as an anteroom, and in this was placed an altar of tufa.
In accordance with an ancient custom the children, even those of the imperial family, sat on low stools at a table of their own on the open side of the large table. In an open-air triclinium in the ninth Region (IX. v. 11) the children's seat is preserved, a low bench of masonry about forty inches long connected with the projecting arm of the lower couch (Plate VII.).
The inner part of the dining room, designed for the table and couches, was often distinguished from the free space in the same way that the place for the bed was indicated in bedrooms, sometimes by a difference in the design of the mosaic floor, more frequently by the division of the wall decoration and the arrangement of the ceiling. In the third and fourth decorative styles the division is less plainly marked than in the second; but often 265 the side walls back of the couches and the inner end of the room have each a single large panel with a small panel at the right and left, while on each side wall in front are only two panels, of the same size.
In one respect the ordinary dining room was far from convenient; those who had the inner places could not leave the table or return to it in the course of a meal without disturbing one or more of those reclining nearer the outside. Large rooms, in which an open space was left between the couches and the wall, or in which several tables with their sets of couches could be placed, were unknown in pre-Roman Pompeii. In the time of the Empire a few of these large dining rooms were built in older houses. There is one measuring about 25 by 33 feet in the house of Pansa; another, of which the dimensions are 23 by 30 feet, in the house of Castor and Pollux; and a third, 36 feet long, in the house of the Citharist.
In a number of houses we find a large, fine apartment—designated by the Greek word oecus—which seems often to have been used for a dining room, especially on notable occasions. A particularly elegant form was the Corinthian oecus, which had a row of columns about the sides a short distance from the walls, the room being thus divided into a main part with a vaulted ceiling and a corridor with a flat ceiling. The couches would be placed in the main part; the guests could pass to their places along the corridor, behind the columns. The remains of such an oecus may be seen in the houses of Meleager and of the Labyrinth.
A specially interesting example—unfortunately not yet wholly excavated—is in the house of the Silver Wedding. In this case only the inner part, designed for the couches, is set off by columns. We may assume that there was a vaulted ceiling over the middle, resting on the entablature of the columns; that the ceiling of the corridor between the columns and the wall was flat, and of the same height as the entablature; and that the front part of the room had a flat or slightly arched ceiling of the same height as the crown of the vault over the middle.
In the more pretentious Roman houses there was sometimes a dining room for each season of the year; when Trimalchio in 266 Petronius's novel boasts that he has four dining rooms, we are to understand that he had one each for winter, summer, autumn, and spring. In the case of the Pompeian houses we are warranted in assuming that dining rooms opening toward the south were for winter use, those toward the north for use in summer. Other airy apartments, with a large window in addition to the wide door, may well have been intended for summer triclinia. Further than this it is hardly possible to classify Pompeian dining rooms according to the seasons.
In the Pompeian house the kitchen had no fixed location. It was generally a small room, and was placed wherever it would least interfere with the arrangement of the rest of the house.
The most important part of the kitchen was the hearth. This was built of masonry, against one of the walls. It was oblong, and the fire was made on the top. The cooking utensils sometimes rested on rectangular projections of masonry, as in the kitchen of the house of Pansa, sometimes on small iron tripods, as in the house of the Vettii (Fig. 125). The hearth of the latter house was found undisturbed, with a vessel in place ready to be heated. In one house the place of an iron tripod was taken by three pointed ends of amphorae set upright on the hearth. Underneath there was often a hollow place, like that shown in our illustration, in which fuel was kept, as in similar openings under the hearths of Campanian kitchens to-day.
Sometimes we find near the hearth a bake oven, not large enough to have been used for bread, and evidently intended for pastry; bread must ordinarily have been obtained from the bakers. In one of the cellars of the house of the Centenary there is a larger oven, which may have been used to bake coarse bread for the slaves; the heat was utilized in warming a bath above.
Over the hearth was a small window to carry off the smoke. As the kitchen was ordinarily high there may have been a hole in the roof also, but the upper parts have been destroyed, and their arrangement cannot be determined. From the small size 267 of the kitchens and of the hearths in even the largest and finest houses, we may infer that the luxury of the table prevalent in the Early Empire had made only slight progress at Pompeii.
Close by the kitchen, frequently forming a part of it and next to the hearth, was the closet; a separate closet of good size is found in the houses of the Faun and of Castor and Pollux.
Fig. 125.—Hearth of the kitchen in the house of the Vettii. The arched place underneath is for the storage of fuel.
In many large houses there is a bath, generally too small to have been used by more than one person at a time. These baths ordinarily include only a tepidarium and a caldarium, but occasionally there is an apodyterium, less frequently still a small frigidarium; in most cases a basin in the apodyterium or tepidarium must have been used for the cold bath. The heating arrangements are similar to those found in the public baths, and more or less complete according to the period in which the bath was fitted up, and the taste of the proprietor; a progressive refinement in the appointments of the private baths can be traced similar to that which we have already noted in the case of the Stabian Baths. The close relation generally existing between the bath-rooms and the kitchen is well illustrated in the houses of the Faun and of the Silver Wedding.
In connection with this group of rooms we may mention the 268 storerooms, which are found in various parts of the houses and may be identified by the traces of the shelves that were fastened to the walls.
Comparatively few houses were provided with cellars. In the house of the Centenary, however, there are two. One, entered from the atrium by a stairway, extends under the tablinum and the front colonnade of the peristyle; the other is accessible from a side atrium and is divided into several rooms, in one of which is the oven mentioned above. The cellar belonging to the house of Caecilius Jucundus is under the garden; that of the villa of Diomedes will be described later.
In ancient Italy each household worshipped its guardian spirits and tutelary divinities, which formed a triple group, the Lares, the Penates, and the Genius. In Pompeii the remains associated with domestic worship are numerous and important.
Many Pompeians painted representations of the household gods upon an inner wall, often upon a wall of the kitchen, near the hearth. There was usually a painted altar underneath, with a serpent on either side coming to partake of the offerings.
In a large number of houses a small niche was made in the wall, in which were placed little images of the gods, the Lares and the Genius being also painted on the back of the cavity or on the wall at the sides or below. Such a niche may be seen in a corner of the kitchen in the house of Apollo (Fig. 126); the pictures of the gods are almost obliterated, but that of the serpent—in this case there is but one—and of the altar can be clearly seen. In front is a small altar of masonry; the ferns and grasses with which the floor is carpeted make this kitchen in summer an attractive nook. Sometimes the niches were ornamented with diminutive half-columns or pilasters at the sides and a pediment above.
Frequently a more elaborate shrine was provided, a diminutive temple raised on a foundation, placed against a wall of the atrium or of the garden. An example is the one at the rear of the peristyle in the house of the Tragic Poet (Fig. 153). 269
In rare instances a small, separate chapel was devoted to the domestic worship, as in the house of the Centenary. In a house of the ninth Region (IX. viii. 7) there is such a chapel in the garden, a niche for the images being placed in the wall.
Fig. 126.—Niche for the images of the household gods,
in a corner of the kitchen in the house of Apollo.
Underneath, a painted serpent represented as about to
take offerings from a round altar. In front is a
square altar for the domestic worship.
The Lares are the guardian spirits of the household. Originally but one was worshipped in each house; they began to be honored in plurality after the time of Cicero, and at Pompeii we invariably find them in pairs. They are represented as youths clad in a short tunic confined by a girdle (Fig. 127), stepping lightly or dancing, with one hand high uplifted in which a drinking horn, rhyton, is seen; from the end of the horn a jet of wine spurts in a graceful curve, falling into a small pail, situla, or into a libation saucer, patera, held in the other hand.
Simple offerings were made to these beneficent spirits,—fruits, sacrificial cakes, garlands, and incense,—and at every meal a portion was set aside for them in little dishes. When a sacrifice was offered to the Lares, the victim was a pig.
With the worship of the Lares was associated that of the Genius, the tutelary divinity of the master of the house. He is 270 represented as a standing figure, the face being a portrait of the master. The toga is drawn over his head, after the manner of one sacrificing; in the left hand there is usually a cornucopia, sometimes a box of incense, acerra; with the right hand he pours a drink offering from a patera.
Very rarely we find a representation of the Genius of the mistress of the house. In one painting she appears with the attributes of Juno; the Genius of a woman was often called Juno, as in the inscription on the bust stone of Tyche, the slave of Julia Augusta (p. 418). As a man might swear in the name of his Genius, so a woman's oath might be 'By my Juno.'
The Lares and the Genius are often found together both in the hearth paintings, and in the groups of little bronze images frequently placed in the shrines. They are associated also in an inscription on the shrine in the house of Epidius Rufus: Genio M[arci] n[ostri] et Laribus duo Diadumeni liberti,—'To the Genius of our Marcus and the Lares; (dedicated by) his two freedmen with the name of Diadumenus.' Marcus was the first name of the head of the household.
In a few cases the Genius of the emperor seems to have been revered at a house shrine. Horace (Od. IV. v. 34) speaks distinctly of the worship of the tutelary divinity of Augustus in connection with that of the Lares,—et Laribus tuum Miscet numen. On the rear wall of a little chapel in a garden is a painted altar at the right of which stands Jupiter, at the left a Genius, each pouring a libation. We can scarcely believe that the Genius of an ordinary man would thus be placed as it were on an equality with the ruler of heaven; more likely the Genius of an emperor is represented, perhaps that of Claudius. The face is not unlike the face of Claudius, and the painting is on a wall decorated in the third style (Ins. VII. xi. 4).
In another house (IX. viii. 13) two Genii are painted, and under one of them is scratched in large letters EX SC, undoubtedly for ex senatus consulto,—'in accordance with a decree of the Senate.' We are probably safe in assuming that the decree referred to is that of the reign of Augustus, by which the worship of the Lares was regulated (Dio Cass. LI. xix. 7); if so, the figure is intended to represent the Genius of that emperor. 271
Fig. 127.—Shrine in the house of Vettii.
In the middle the Genius, with libation saucer and box of incense; at the sides, the two
Lares, each with a drinking horn and pail; below, a crested serpent about to partake
of the offerings.
The face of the Genius in the house of the Vettii (Fig. 127) bears a decided resemblance to that of Nero. Here the shrine was placed in the rear wall of the smaller atrium. It consists of a broad, shallow niche, the front of which is elaborately ornamented to give the appearance of a little temple, while on the back are painted the household divinities. The Genius stands with veiled head between the two Lares, holding in his left hand a box of incense and pouring a libation with the right. In the original painting the features were unusually distinct.
The Penates were the protecting divinities of the provisions or stores, penus, and the storerooms of the house; under this name were included various gods to whom the master and the household offered special worship. At Pompeii the Penates, as the Lares and the Genius, appear in paintings, and are also represented by bronze images placed in the shrines. In the shrine of the house of Lucretius were diminutive bronze figures of the Genius and of Jupiter, Hercules, Fortuna, and another divinity that has not been identified. Statuettes of Apollo, Aesculapius, Hercules, and Mercury were found, together with those of the two Lares, in another house; in a third, Fortuna alone with the Lares.
Jupiter and Fortuna are frequently met with in shrine paintings, as well as Venus Pompeiana (Fig. 4), Hercules, Mars, and Vulcan as a personification of the hearth fire; Vesta, the patron goddess of bakers, usually appears in the hearth paintings of bake shops.
Underneath the representations of the Lares and Penates ordinarily are painted two serpents, one on either side of an altar, which they are approaching in order to partake of the offerings; these consist of fruits, in the midst of which an egg or a pine cone can usually be distinguished. As early as the beginning of the Empire the significance of the serpent in the Roman worship had ceased to be clearly understood; Virgil represents Aeneas as in doubt whether the serpent which came out from the tomb of Anchises was the attendant of his father or the Genius of the place (Aen. V. 95).
In the Pompeian paintings, when a pair of serpents occurs, one may usually be recognized as a male by the prominent 273 crest. They were undoubtedly looked upon as personifications of the Genii of the master and mistress of the house. When a single crested serpent appears, as in the shrine paintings of both the house of the Vettii (Fig. 127) and the house of Apollo (Fig. 126), we are to understand that the head of the household was unmarried.
With few exceptions the houses of pre-Roman Pompeii were built in only one story; where the peristyle was in two stories, there must have been rooms opening upon the upper colonnade. In Roman times, as the population of the city increased and more space was needed, it became a common practice to make the rooms about the atrium lower and build chambers over them. A complete second story was rare; small rooms were added here and there, frequently at different levels and reached by different stairways. Sometimes the second story on the front side projected a few feet over the street; an example may be seen in a house in the seventh Region (casa del Balcone Pensile), the front of which, with the part projecting over the sidewalk, has been carefully rebuilt by replacing the charred remains of the ancient beams with new timbers.
Houses with three stories were quite exceptional, and the rooms of the third floor must have been unimportant. Along the steep slope of the hill, on the west and southwest sides of the city, a number of houses are found that present the appearance of several stories; they are not properly classed with those just mentioned, however, for the reason that the floors are on terraces, the highest at the level of the street, the others lower down and further back, being adjusted to the descent of the ground.
From the time of Plautus, second story rooms were designated as 'dining rooms,' cenacula. Varro says that after it became customary to dine upstairs, all upper rooms were called cenacula. This explanation is not altogether satisfactory, because other literary evidence for the prevalence of such a custom is lacking. Perhaps in early times, when, on account 274 of the introduction of the compluvium and impluvium, the atrium ceased to be convenient and comfortable for the serving of meals, a dining room was frequently constructed on an upper floor, and, being the principal second story apartment, gave its name to the rest. In some places the ancient custom may still have lingered in the time of the Early Empire.
The upper parts of the Pompeian houses in most cases have been completely destroyed; in a few, however, there are traces of a second story apartment that was probably used as a dining room.
One of these houses is in Insula XV of Region VII, near the temple of Apollo. It is painted in the second style, and dates apparently from the end of the Republic. At the rear of the atrium are two rooms and a passageway leading to the back of the house. Over these was a single large apartment, closed at 275 the sides and rear, but opening on the atrium in its entire length; along the front, as seen in our restoration (Fig. 128), ran a balustrade connecting the pilasters—ornamented with half-columns—which supported the roof.
In a corner of the atrium at the rear a narrow stairway led to the second floor. At the right, as our section shows (Fig. 129), was a narrow gallery resting on brackets, which connected the upper room at the rear with one in the front of the house.
Fig. 129.—Longitudinal section of the house with a second story dining room.
At the right, vestibule, door, and fauces, with front room above; then the atrium, with the
gallery connecting the front room with the dining room; lastly, the apartments at the
rear of the house. In this house there was no peristyle.
The large upper room was so well fitted for a dining room, especially in summer, that we can hardly resist the conclusion that it was designed for this purpose. There is no trace of a kitchen on the ground floor; and for greater convenience this also was probably placed in the second story, behind the dining room.
In the fifth Region there was a small dwelling, which afterwards became a part of the house of the Silver Wedding; the arrangement of the two stories at the rear of the atrium was similar to that just described, except that columns were used in place of the pilasters, and there was only the one upper room in the back part of the house. In such cases as this 'dining room' and 'upper story' might easily have come to be used as synonymous terms.
Where there was a large upper room at the rear of the atrium, no place was left for the high tablinum; in a house in the seventh Region (casa dell' Amore Punito, VII. ii. 23) the 276 cenaculum was in front. On the front wall of the atrium one may still see part of the carefully hewn stones on which the columns of the second story rested, and fragments of these columns were found on the floor below.
The outer parts of the houses fronting on the principal thoroughfares were utilized as shops. On the more retired side streets there were fewer shops, and we often find a façade of masonry unbroken except for the front door and an occasional window.
Fig. 130.—Plan of a Pompeian shop.
View larger image
The shop fronts were open to the street. The counter, frequently of masonry, has in most cases the shape indicated on our plan (Fig. 130, 2), being so arranged that customers could make their purchases, if they wished, without going inside the shop. Large jars were often set in it, to serve as receptacles for the wares and edibles exposed for sale. Sometimes on the end next to the wall there are little steps, on which, as seen in our restoration (Fig. 131), measuring cups and other small vessels were placed. At the inner end we see now and then a depression (3) over which a vessel could be heated, a fire being kindled underneath as on a hearth. In the wineshops a separate hearth is sometimes found, and occasionally a leaden vessel for heating water.
In the houses of the Tufa Period the shops, as the front doors and the rooms about the atrium, were relatively high. Those of the house of Caecilius Jucundus measured nearly 16 feet; those of the house of the Faun, 19 feet; the appearance of the latter may be suggested by our restoration (Fig. 139). The height was divided by an upper floor, pergula, 10 or 12 feet 277 above the ground, along the open front of which was a balustrade; the stairs leading to it were inside the shop. On such a pergula Apelles, according to Pliny (N. H. xxxv. 84), was accustomed to display his paintings; and in the Digest reference is more than once made to cases in which a person passing along the street was injured by an object falling upon him from the second story of a shop. 'Shops with their upper floors' are advertised for rent in one of the painted inscriptions found at Pompeii (p. 489).
In Roman times the shops, as the inner rooms of the house, were built lower, and over them small closed rooms were made, which were called by the same name as the open floor, pergula. These rooms were frequently accessible from the street by a stairway, and in such cases could be rented separately. In colloquial language, a man whose early life had been passed amid unfavorable surroundings was said to have been 'born in a room over a shop,'—natus in pergula. 278
Shops were entered by means of small doors; the front was closed with shutters. These consisted of overlapping boards set upright in narrow grooves at the top and the bottom. A separate set of shutters was provided for the open pergula.
The walls were covered with a thick layer of plaster and painted; the preparation of the stucco, the processes employed in painting, and the styles of decoration are reserved for discussion in a later chapter.
The floors were frequently made of an inexpensive concrete, consisting of bits of lava or other stone pounded down into common mortar. A much better floor was the Signia pavement, opus Signinum, so named from a town in Latium. This was composed of very small fragments of brick or tile pounded into fine mortar. The surface was carefully finished, and was sometimes ornamented with geometrical or other patterns traced in outline by means of small bits of white stone.
In the Tufa Period a floor was often made by fitting together small pieces of stone or marble, and bedding them well in mortar. The colors are white and black,—slate is used in the floor of the atrium in the house of the Faun; sometimes also violet, yellow, green, and red appear with white and black. Pavements of square or lozenge-shaped and triangular pieces of colored marble and slate, like that in the cella of the temple of Apollo (Fig. 28), are occasionally found in houses. In the time of the Early Empire floors paved with larger slabs were not uncommon.
The mosaics of the Pompeian floors—using the term mosaic in a restricted sense—may be divided into two classes, coarse and fine. In the former the cubes, tesserae, are on the average a little less than half an inch square. The patterns are sometimes shown in black on a white surface, sometimes worked in colors. The finer variety, in which the pictures appear, is not often extended over a whole room, but is usually confined to a rectangular section in the middle, coarse mosaic being used for the rest of the floor. 279
The windows at the front of the house, as we have seen, were ordinarily few and small. From the Tufa Period, however, large windows were often made in the rooms around the peristyle; in the house of the Faun they range in width from 10 to 23 feet, and are so low that one sitting inside could look out through them. Upper rooms, also, were provided with windows of good size, sometimes measuring 2½ by 4 feet; but the remains are scanty. In later times occasionally a lower window opening on the street was made almost as large, and was protected by an iron grating.
Windows were ordinarily closed by means of wooden shutters. Small panes of glass were found in the openings of the Baths near the Forum; had the Central Baths been finished, glass would undoubtedly have been used for the windows of the caldarium. The window of the tepidarium in the villa of Diomedes was closed by four glass panes set in a wooden frame (p. 357); in the other houses a narrow pane is occasionally found, but invariably set in masonry. 280
The house of the Surgeon (casa del Chirurgo) is the oldest of the Pompeian houses that retained to the last, with but slight modifications, its original plan and appearance. It lies at the right of the Strada Consolare (VI. i. 10), about fifty paces inside the Herculaneum Gate. The name was suggested by the discovery of several surgical instruments in one of the rooms.
Fig. 132.—Plan of the house of the Surgeon.
View larger image
This house was undoubtedly built before 200 B.C. The façade (Fig. 10) and the walls of the atrium are of large hewn blocks of Sarno limestone; other inner walls are of limestone framework (p. 37). The plan conforms to the simple Italic type, before the addition of the peristyle; yet it does not illustrate the oldest form of the native house, for the tablinum (Fig. 132, 7) has already displaced the recess for the bed opposite the front door. The measurements of the rooms are according to the Oscan standard (p. 44), the atrium being about 30 by 35 Oscan feet.
We pass directly from the street through the fauces (1) into the Tuscan atrium (5) at the sides of which are sleeping 281 rooms (6) and the two alae (8). Back of the tablinum is a colonnade (16) opening on the garden (20), which originally had a greater length; the room at the right (19) is a later addition, as also the smaller room at the other end (21). The roof of the colonnade was carried by square limestone pillars, one of which has been preserved in its original form.
The oblong room at the right of the tablinum (10) was once square, as (9). Both were well adapted for winter dining rooms; in summer, meals were undoubtedly served in the tablinum. The room at the left of the entrance (2) was a shop, at least in later times. The corresponding room on the other side (6') was retained for domestic use.
The shop at the right (3) and the back room (4), as well as the kitchen with the adjoining rooms at the rear, used as store closets and quarters for slaves, were a later addition; 22 is a light court, to which the rain water was conducted from different parts of the roof. Over these rooms was a second story reached by stairs leading from the colonnade (18). It may be that this part of the house took the place of a garden in which previously there was an outside kitchen; that the ground belonged to the house from the beginning is clear from the existence of a door between the rooms 6' and 3, afterwards walled up, and the appearance of the unbroken party wall on this side.
The rooms about the atrium had no upper floor, and were relatively high; the doors measured nearly twelve feet in height, and the ceiling of the tablinum was not far from twenty feet above the floor. In respect to height, this house was not unlike those of the next period.
In the later years of the city, but before 63, the decoration was renewed in the fourth style. There are paintings of interest, however, only in the room at the rear (19), which had a large window opening on the garden. In one of the panels here we see a man sitting with a writing tablet in his hand; opposite him are two girls, one sitting, the other standing; the latter holds a roll of papyrus. This kind of genre picture is not uncommon; the type is spoken of elsewhere (p. 477).
In another panel, which was transferred to the Naples 282 Museum, a young woman is represented as painting a herm of Dionysus (Fig. 133); a Cupid is holding the unfinished picture while she mixes colors on her palette. Two other maidens are watching the artist with unfeigned interest. Upon the pillar behind the herm hangs a small painting; in the vista another herm is seen, together with a vase standing on a pillar.
The room contained a third picture which is now almost obliterated. Perhaps this pleasant apartment was once the boudoir of a favorite daughter, who busied herself with painting and verse. 283
The house of Sallust (VI. ii. 4) received its name from an election notice, painted on the outside, in which Gaius Sallustius was recommended for a municipal office. It has no peristyle, and its original plan closely resembled that of the house of the Surgeon. It was built in the second century B.C.; the architecture is that of the Tufa Period, and the well preserved decoration of the atrium, tablinum, alae, and the dining room at the left of the tablinum (Fig. 134, 22) is of the first style. The pilasters at the entrances of the alae and the tablinum are also unusually well preserved; the house is among the most important for our knowledge of the period to which it belongs.
The rooms on the left side (6-9) were used as a bakery. Those in front (2-5) were shops; two of them (2, 3), at the time of the destruction of the city, opened into the fauces (1) and another (5) had two rear rooms, one of which was entered from a side street.
The rooms at the right (31-36) were private apartments added later and connected with the rest of the house only by means of the corridor (29), which with the cell designed for the porter (30) was made over from one of the side rooms of the atrium.
If we leave these groups of rooms out of consideration, it is easy to see that the Tuscan atrium and the apartments connected with it—the tablinum (19), the alae (17), and the rooms at the sides—once formed a symmetrical whole. At the rear was a garden on two sides (24, 24'), with a colonnade. A broad window in the rear of the left ala opened into this colonnade (p. 259), a part of which was afterwards enclosed, making two small rooms (23, 18). At the end of the latter 284 room a stairway was built leading to chambers; in the beginning the house had no second floor.
Fig. 134.—Plan of the house of Sallust.
View larger image
The andron (20), the wardrobe (17') at the side of the right ala, and the small room back of it (28) were made out of a square room corresponding in dimensions with that at the other end of the tablinum (22). The latter was originally entered from the atrium by a door at e, which was closed when the wide door was made at the rear opening upon the colonnade. At the rear of the tablinum is a broad window. 285
In the corner of the garden is an open air triclinium (25), over which vines could be trained; there was a small altar (l) near by. At n a jet of water spurted from an opening in the wall upon a small platform of masonry; the water was perhaps conducted into the rectangular basin (k) opposite, the inside of which was painted blue. Only the edges of this portion of the garden, which is higher than the floor of the colonnade, were planted; steps led up to it at f and g. A hearth (p) was placed in the colonnade at the left, for the preparation of the viands served in the triclinium. The room at the other end of the garden (27) was connected with the street at the rear by a posticum; back of it was an open space (26) with remains of masonry (m), the purpose of which is not clear.
The large dining room (13) may once have belonged to the bakery; the anteroom (12) leading to it was made from one of the side rooms of the atrium. The arrangement recalls that of the dining room of which the plan is given in Fig. 124.
The appearance of the atrium in its original form may be suggested by our restoration (Fig. 135). The proportions are monumental. The treatment of the entrances to the tablinum and the alae, with pilasters joined by projecting entablatures, the severe and simple decoration (illustrated in Fig. 261), and the admission of light through the compluvium increased the apparent height of the room and gave it an aspect of dignity and reserve. At the rear we catch glimpses of the vines and shrubs at the edge of the garden; painted trees and bushes were also seen upon the garden wall.
The series of apartments entered through the room at the right of the atrium (29) present a marked contrast with the rest of the house. They are low, the eight-sided, dark-red columns of the colonnade (31), with their white capitals, being less than ten feet high; and the dark shades of the decoration, which is in the fourth style upon a black ground, give a gloomy impression to one coming from the atrium with its masses of brilliant color.
There was a small fountain in the middle of the little garden (32), the rear wall of which is covered by a painting representing the fate of Actaeon, torn to pieces by his own hounds as a penalty for having seen Diana at the bath. At first the colonnade 286 had a flat roof, with an open walk above on the three sides; but when the large dining room (35) was constructed, the flat roof and promenade on this side were replaced by a sloping roof over the broad entrance to the dining room. On the outer walls of the two sleeping rooms (33, 34) were two paintings of similar design, Europa with the bull, Phrixus and Helle with the ram. The rear inner wall of 34 contained two pairs of lovers, Paris and Helen in the house of Menelaus, and Ares and Aphrodite. The room at the corner of the colonnade (36) is the kitchen; the stairway in it led to the flat roof of the colonnade.
Fig. 135.—Atrium of the house of Sallust, looking through the tablinum and colonnade at the rear into the garden, restored.
This portion of the house probably dates from the latter part of the Republic; it underwent minor changes in the course of the century during which it was used. Previously there was in 287 all probability a garden on this side, into which opened a large window in the rear wall of the right ala, afterwards closed.
The changes made in the stately house of the pre-Roman time are most easily explained on the supposition that near the beginning of the Empire it was turned into a hotel and restaurant. The shop at the left of the entrance (3) opens upon the atrium as well as on the street; the principal counter is on the side of the fauces, and near the inner end is a place for heating a vessel over the fire. Large jars were set in the counter, and there was a stone table in the middle of the room. Here edibles and hot drinks were sold to those inside the house as well as to passers-by. The shop at the right of the entrance was connected with the fauces, the atrium, and a side room (16). The number of sleeping rooms had been increased by changes in several of the earlier apartments, and by the addition of a second floor reached by the stairway in room 18. The private apartments were for the use of the proprietor, and were guarded against the intrusion of the guests of the inn by the porter stationed at the entrance (in 30).
Fig. 136.—Longitudinal section of the house of Sallust, restored.
View larger image
At the left, the fauces with the counter of the shop; then the north side of the atrium with the entrance of the left ala, the north side of the tablinum, with one of the pilasters at the entrance from the atrium; lastly, the colonnade at the back and the vine-covered triclinium in the corner of the garden.
This explanation is confirmed by the close connection of the bakery with the house; and the use of the open-air triclinium is entirely consistent with it (p. 404). The arrangement of the house after it had become an inn may be seen in our section (Fig. 136). 288
The house of the Faun, so named from the statue of a dancing satyr found in it (Fig. 258), was among the largest and most elegant in Pompeii. It illustrates for us the type of dwelling that wealthy men of cultivated tastes living in the third or second century B.C. built and adorned for themselves. The mosaic pictures found on the floors (now in the Naples Museum) are the most beautiful that have survived to modern times.
Fig. 137.—Plan of the house of the Faun.
View larger image
The wall decoration, which is of the first style, in the more important rooms was left unaltered to the last, and is well preserved. This decoration, however, does not date from the building of the house. In order to protect the painted surfaces against moisture, the walls in the beginning were carefully covered with sheets of lead before they were plastered. Later two doorways 289 were walled up, and the plastering over the apertures, which was applied directly to the wall surface without the use of lead sheathing, forms with its decoration an inseparable part of that found on either side. When the original decoration was replaced by that which we see on the walls to-day it is impossible to determine, but the change must have been made before the first century B.C. A few unimportant rooms are painted in the second and fourth styles.
An entire block (VI. xii.), measuring approximately 315 by 115 feet, is given to the house; there are no shops except the four in front (Fig. 137). The apartments are arranged in four groups: a large Tuscan atrium, B, with living rooms on three sides; a small tetrastyle atrium, b, with rooms for domestic service around it and extending on the right side toward the rear of the house; a peristyle, G, the depth of which equals the width of the large and half that of the small atrium; and a second peristyle, K, occupying more than a third of the block. At the rear of the second peristyle is a series of small rooms (q-u) the depth of which varies according to the deviation of the street at the north end of the insula.
In front of the main entrance we read the word HAVE (more commonly written ave), 'Welcome!' spelled in the sidewalk with bits of green, yellow, red, and white marble. The street door here, quite exceptionally, was at the outer end of the vestibule. It consisted of three leaves (seen in Fig. 139) and opened toward the inside, while the double door between the vestibule and the fauces (A on the plan) opened toward the outside; the closed vestibule was not unlike those of many modern houses. Fragments of the lintel over the outer door, with its projecting dentil cornice, are preserved in one of the shops (Fig. 138).
The shops with their upper floors, pergulae, were nineteen feet high. When the shutters were up they presented a monotonous appearance (Fig. 139), but on sunny days, when 290 the articles offered for sale were attractively displayed, and buyers and idlers were loitering in front or leisurely passing from one to the other, shops and street alike were full of color and animation.
Fig. 139.—Façade of the house of the Faun, restored.
At the left, the front of a shop (1 on the plan) with its upper floor; then the large front
door, two shops, the entrance of the smaller atrium and the fourth shop, which, like the
second, is completely closed by shutters.
View larger image
The floor of the fauces, as of many of the other rooms, is rich in color. It is made of small triangular pieces of marble and slate—red, yellow, green, white, and black. At the inner end it was marked off from the floor of the atrium by a stripe of finely executed mosaic, suggestive of a threshold (Fig. 140), now in the Naples Museum. Two tragic masks are realistically outlined, appearing in the midst of fruits, flowers, and garlands, the details of which are worked out with much skill.
Fig. 140.—Border of mosaic with tragic masks, fruits, flowers, and garlands, at the inner end of the fauces.
The walls of the fauces are ornamented in an unusual manner. The ordinary decoration of the first style is carried to the height of eight feet. Above this on either side projects a tufa shelf 291 about sixteen inches wide, on which is placed the façade of a diminutive temple; that on the left is seen in Fig. 141. The front of the cella, with closed doors, is presented in relief, but the four columns of the portico stand free. The shelf is supported underneath by a cornice which rested originally on stucco brackets in the shape of dogs; the underside is carved to represent a richly ornamented coffered ceiling.
The atrium was a room of imposing dimensions. The length is approximately 53 feet, the breadth 33; the height, as indicated by the remains of the walls and the pilasters, was certainly not less than 28 feet. Above was a coffered ceiling. The sombre shade of the floor, paved with small pieces of dark slate, formed an effective contrast with the white limestone edge and brilliant inner surface of the shallow impluvium, covered with pieces of colored marbles similar to those in the fauces. Still more marked was the contrast in the strong colors of the walls. Below was a broad surface of black; then a projecting white dentil cornice, and above this, masses of dark red, bluish green, and yellow. The decoration, as usual in the first style, was not carried to the ceiling, but stopped just above the side doors; the upper part of the wall was left in the white.
As one stepped across the mosaic border at the end of the fauces, a beautiful vista opened up before the eyes. From the aperture of the compluvium a diffused light was spread through the atrium brilliant with its rich coloring. At the rear the lofty entrance of the tablinum attracted the visitor by its stately dignity. Now the portières are drawn aside, and beyond the large window of the tablinum the columns of the first peristyle are seen (Fig. 141). The shrubs and flowers of the garden are bright with sunshine, and fragrant odors are wafted through the house; in the midst a slender fountain jet rises in the air and falls with a murmur pleasant to the ear. If the vegetation was not too luxuriant, one might look into the exedra, on the further side of the colonnade, and even catch glimpses of the trees and bushes in the garden of the second peristyle.
Of the rooms at the side of the atrium, one (f') was apparently the family sleeping room; places for two beds were set off by slight elevations in the floor. This room had been carefully 292 redecorated in the second style; the room opposite, the decoration of which was inferior to that of the rest, was perhaps used by the porter (atriensis).
The tablinum (D), like that of the house of Sallust, had a broad window opening on the colonnade of the peristyle. In the middle of this room is a rectangular section paved with lozenge-shaped pieces of black, white, and green stone; the rest of the floor is of white mosaic. The floor of each ala was ornamented with a mosaic picture. In that at the left (C) are doves pulling a necklace out of a casket—a work of slight merit.
Fig. 141.—Longitudinal section of the house of the Faun, showing the large
atrium, the first peristyle, and a corner of the second peristyle, restored.
View larger image
The mosaic picture found in the right ala is characterized by delicacy of execution and harmonious coloring. It is divided into two parts; above is a cat with a partridge; below, ducks, fishes, and shellfish. A large window in the rear wall of this ala opens into the small atrium, not for the admission of light, but for ventilation; in summer there would be a circulation of air between the two atriums.
Two doors, at the right and the left of the tablinum (seen in Fig. 143), opened into large dining rooms, one (E) nearly square, the other (F) oblong. Both had large windows on the side of the peristyle, and the one at the left also a door opening upon the colonnade. The mosaic pictures in the floors harmonized well with the purpose of the rooms. In one were fishes of various kinds, and sea monsters; in the other was the picture—often 293 reproduced—in which the Genius of the autumn is represented as a vine-crowned boy sitting on a panther and drinking out of a deep golden bowl.
The colonnade of the first peristyle was of one story (Fig. 141). The entablature of the well proportioned Ionic columns presented a mixture of styles often met with in Pompeii, a Doric frieze with a dentil cornice. The wall surfaces were divided by pilasters and decorated in the first style. In the middle of the garden the delicately carved standard of a marble fountain basin may still be seen.
The open front of the broad exedra (H) was adorned with two columns, and at the rear was a window extending almost from side to side, opening upon the second peristyle. Between the columns of the entrance were mosaic pictures of the creatures of the Nile,—hippopotamus, crocodile, ichneumon, and ibis; and in the room, filling almost the entire floor, was the most famous of ancient mosaic pictures, the battle between Alexander and Darius.
This great composition has so often been reproduced that we need not present it here; as illustrating the style and treatment, however, we give a small section, in which the face of Alexander appears (Fig. 142). The mosaic is a reproduction of a painting made either in the lifetime of Alexander, or soon after his death. The battle is perhaps that of Issus. The left side of the picture 294 is unfortunately only in part preserved. At the head of the Greek horsemen rides Alexander, fearless, unhelmeted, leading a charge against the picked guard of Darius. The long spear of the terrible Macedonian is piercing the side of a Persian noble, whose horse sinks under him. The driver of Darius's chariot is putting the lash to the horses, but the fleeing king turns with an expression of anguish and terror to witness the death of his courtier, the mounted noblemen about him being panic-stricken at the resistless onset of the Greeks. The grouping of the combatants, the characterization of the individual figures, the skill with which the expressions upon the faces are rendered, and the delicacy of coloring give this picture a high rank among ancient works of art. The colors in the mosaic are necessarily more subdued than in the original painting.
Fig. 142.—Detail from the mosaic picture representing a battle between Alexander and Darius.
Alexander, having thrown aside his helmet, is leading the charge upon the guard of Darius, who is already in flight.
A corridor (p), both ends of which could be closed, led from the first to the second peristyle. The columns here, of the Doric order, were of brick, with tufa capitals, the shafts being edged, not fluted. The entablature rested on a line of timbers, as often in the buildings of the Tufa Period. In our restoration 295 (Fig. 141) an upper colonnade of the Ionic order is assumed, extending about the four sides. The restoration is here possibly at fault; the colonnade may have been in two stories only on the south side, with twice as many columns above as below.
On either side of the exedra were two dining rooms (I, J), one open in its entire breadth upon the second peristyle, the other having a narrow door with two windows. The fine mosaic picture in I was found in so damaged a condition that the subject—a lion standing over a prostrate tiger—could not be made out, until a duplicate was discovered in 1885.
In the sleeping room on the other side of the corridor (N), which had been redecorated in the second style, remains of two beds were found. The room next to it (L) was the largest in this part of the house; at the time of the eruption it was without decoration and was used as a wine cellar. A great number of amphorae were found in it, as also in both peristyles.
One of the small rooms at the rear (q) was perhaps occupied by the gardener; the one next to it (r) was the doorkeeper's room. At v is a long, shallow niche, designed for statues. Nearer the corner were two smaller niches, each of which was ornamented in front with pilasters and a gable. These were the shrines of the household gods; in front of them were found two bronze tripods, two bronze lamp stands, two pairs of iron tongs, a couple of common lamps, and the remains of a branch of laurel with the bones and eggs of a dove that had nested in it. A bronze statuette of a Genius was found seemingly in one of the niches.
The domestic apartments were entered by a front door between the two shops at the right (Fig. 139). The vestibule, unlike that of the other entrance, is open to the street, the fauces being narrower and deeper. The relation of the tetrastyle to the Tuscan atrium is indicated in our transverse section (Fig. 143). The alae (c, c') are here at the middle of the sides; the one at the left served as a passageway between the two atriums. The four tufa Corinthian columns, nearly twenty feet high, are well preserved, as well as the pilasters at the entrances of the alae. A tablinum was not needed in this part of the house, and the space which it might have occupied was given 296 to the andron (k) and a sleeping room opening on the first peristyle (l).
This part of the house was much damaged by the earthquake of 63, and there are many traces of repairs, particularly in the upper rooms. The walls were simply painted in the fourth style. Two money chests stood on large flat stones in the rear corners of this atrium.
Fig. 143.—Transverse section of the house of the Faun, showing the two atriums with
adjoining rooms.
View larger image
In one of the rooms at the front (e) there are traces of shelves; stairs at one side led to the upper rooms at the left of the atrium, the shape and size of which are indicated in Fig. 143. On the right, also, there were small chambers over g, h, and h', on the same level as the second floor of the shop in front (4), and accessible only by means of the stairway in this shop; there were no other stairs in this corner of the house, and these rooms could not have been connected with chambers over other parts of the atrium, because there were no upper rooms over the fauces and the right ala (c'). Another stairway in d, partly of wood, led to chambers over i, d', n', n, o, o', and part of the kitchen, M.
Bronze vessels and remains of ivory feet belonging to a bedstead were found in the double room h, h'; but it is more likely that this was used as a storeroom for discarded furniture than that members of the family slept here.
A long corridor at the end of the first peristyle (m) connected 297 the rooms at the right of the small atrium with the closet (n), the bath (o, o'), the kitchen (M), and the large bedroom (N) opening on the second peristyle. The two rooms of the bath, tepidarium and caldarium, were provided with hollow floors and walls, and were heated from the kitchen, into which the draft vents (p. 188) opened; in order to make the smoke less objectionable, the kitchen was built very high, with several windows.
The kitchen is of unusual size. A niche for the images of the household gods was placed in the wall at the left, so high up that it could only have been reached by means of a ladder. The front is shaped to resemble the façade of a small temple, and in it is a small altar of terra cotta for the burning of incense.
The first room at the right of the corridor (n') was completely excavated in 1900, and found to be a stall. In it were brought to light the skeletons of two cows and of four human beings, an adult and three children. 298
The height of the important rooms can be accurately determined in so few houses of the Tufa Period, that special importance attaches to a house on the edge of the city north of the Porta Marina (No. 13), in which not merely the three-quarter columns at the entrance of the tablinum, but also the pilasters at the corners of the fauces and alae and part of the Ionic columns of the peristyle are seen in their full height. The atrium is the best preserved of any in the large pre-Roman houses, and the height of the ceiling in several of the adjoining rooms is clearly indicated. The house lies about seventy paces north of the Strada della Marina, on the last street leading to the right. It is without a name and is seldom visited.
Neither the decoration, renewed in the second style and without paintings, nor the arrangement of the rooms (Fig. 144) requires extended comment. There are two atriums, the smaller with the domestic apartments being at the left and entered directly from the street. The fauces of the other are of unusual width, being about two fifths of the width of the atrium. The alae are at the middle of the sides, as in the house of Epidius Rufus and the smaller atrium of the house of the Faun. At the sides of 299 the tablinum are large windows opening into two dining rooms, which are entered from the peristyle.
More than a third of the plot enclosed by the peristyle is taken up by a deep rectangular basin for fish. At the rear are apparently other rooms, adjusted to the slope of the ground, which, however, have not yet been excavated.
It will, perhaps, be easier to appreciate the stately character of the pre-Roman atriums if we give a few of the dimensions which were used in making our restoration (Fig. 145).
The atrium is 41 by 29 feet. The tablinum measures 13 feet 9 inches between the three-quarter columns which stand, in place of the usual pilasters, at the entrance; it is thus half as wide as the atrium. The height of the tablinum at the entrance is 18 feet 6 inches; according to the proportions given by Vitruvius it should be 15 feet 4 inches.
The alae and fauces also exceed the dimensions presented by the Roman architect, the former being 12⅔ feet wide and 16¼ feet high, while the height of the broad fauces, 17½ feet, is only a trifle less than that of the tablinum.
The height of the walls of the atrium is easily determined with the help of the data before us; and the arrangement of the roof over the fauces, atrium, tablinum, and colonnade of the peristyle must have been very similar to that shown in our restoration. The entablature seen over the entrance of the left ala is restored in accordance with the architectural forms commonly used in the period when the house was built.
Both the three-quarter columns and the pilasters present a peculiarity of construction found also in other houses, but not 300 easy to explain. The former appear as half-columns on the side of the tablinum, but present fully three fourths of their breadth on the side of the atrium. The pilasters at the entrances of the alae and fauces have, on the inside, a good proportion, the breadth being about one eighth of the height; but on the outside, toward the atrium, they are much more slender.
Fig. 145.—Longitudinal section of the house near the Porta Marina.
View larger image
A well designed scroll pattern appears in the black and white mosaic floor of the fauces, which, as often in Pompeian houses, slopes gently toward the street. The floor of the atrium is made of black mosaic with pieces of colored marble arranged in rows, and white stripes at the edges. The base of a shrine for the household gods stands against the right wall. In the first room at the right was an alcove for a bed opposite the door; the ceiling of the alcove, in the form of a vault, was lower than that of the rest of the room. 301
Among the more interesting of the large houses excavated in the last decade is the house of the Silver Wedding, which marks the limit of excavation in the fifth Region (V. ii. a on Plan VI). The main part was cleared in 1892 (Fig. 8); and in April, 1893, in connection with the festivities with which the Silver Wedding of the King and Queen of Italy was celebrated, a special excavation was made in one of the rooms, in the presence of their Majesties and of their imperial guests, the Emperor and Empress of Germany. Portions of the house are still covered, the façade, the inner end of the oecus, and the greater part of an extensive garden on the left side.
Notwithstanding the extent of the house—the greatest length is not far from 150 feet, the breadth of the excavated portion 130—and the number of apartments, the plan is simple (Fig. 146). From the fauces (a) we pass into a tetrastyle atrium (d), the largest of its kind yet discovered, with alae on either side and a high tablinum (o). Back of this is a Rhodian peristyle, at the rear of which is an exedra (y) with sleeping rooms at the right and the left (x, z). Opening into the rear of the peristyle on one side is the oecus (4), on the other a long dining room (w).
Another series of apartments lay between the peristyle and the garden at the right (2), a kitchen (s), and a bath (t-v). In front of the garden and extending to the street is a small house (α-ι) which had been joined to the larger establishment; it was connected with this by a small door under the stairs in the corner of the atrium (β), which opened into a side room (e) of the large atrium.
The essential parts of the house date from the Tufa Period. Alterations were made from time to time in the course of the 302 two centuries during which it was occupied, but they were not so extensive as to obscure the original plan. The most obvious changes were those affecting the wall decoration.
Fig. 146.—Plan of the house of the Silver Wedding.
View larger image
In the small rooms at the right of the atrium are traces of the decoration of the first style, which was in vogue when the house was built. Toward the end of the Republic almost the whole interior was redecorated in the second style, but without paintings. Brilliant blocks and panels dating from this renovation may still be seen upon the upper part of the walls of the atrium and on those of the oecus, the exedra, the two bedrooms next to the exedra, and the front part of the long apodyterium.
Afterwards a few rooms were done over in the third style, of which scanty remains are found.
Lastly, after the fourth style had come into vogue, but before 60 A.D.—as shown by an inscription on a column of the peristyle—a large part of the house was redecorated in the fourth style, including the tablinum, the andron and the room at the right (q), the peristyle, the long dining room (w), and the inner portion of the apodyterium. The lower part of 303 the walls of the atrium were also painted over, but with designs and coloring that harmonized well with the decoration of the second style above. In this house the history of Pompeian wall decoration can be followed from the century after the Second Punic War to the middle of the first century of our era, from the time of Cato the Elder to that of Claudius and Nero. There are few paintings, however, and they are not of special interest.
In marked contrast with the atriums in the house of the Faun and the other houses which we have examined, the atrium here had a relatively large compluvium (Fig. 147); all parts of the room must have been brilliantly lighted. In summer some kind of protection against the sun was a necessity. It was probably afforded by hanging curtains between the columns; on the side of each column, facing the corner of the atrium, is a bronze ring through which a cord might have been passed to use in drawing the curtains back and forth. The large compluvium with its supporting columns suggests the arrangement of the Corinthian atrium.
The dimensions of the atrium are monumental. The length is approximately 54 feet, the breadth 40; and the Corinthian columns of tufa coated with stucco, are 22¾ feet high.
At the rear of the impluvium is a fluted cistern curb of white marble (seen in Fig. 8). In the impluvium near the edge is the square pedestal of a fountain figure, which threw a jet into a round marble basin in front.
The doors of the rooms at the sides of the atrium were originally more than thirteen feet high; those which we now see are comparatively low. The height was reduced because a second floor was placed in the rooms, thus making low chambers, which were reached by three stairways, one (g) at the right of the atrium, the other two (k and m) on the opposite side. The upper rooms were lighted by small windows, part of which opened into the atrium, others upon the garden on the left side of the house. These changes were completed before the atrium received its decoration in the second style. There was no second story over the alae, the tablinum, or the rooms about the peristyle. In the left ala was once a large window opening on the garden, but it was afterwards walled up (p. 259). 304
The curtain fastenings on the pilasters at the front of the tablinum have been referred to in another connection (p. 256). The arrangement of the rooms at the sides is not unlike that in the house of Sallust; one, n, retained its original form; the other was divided up into an andron (p), with a bedroom (q) at one side.
The peristyle is remarkably well preserved. We find not only the columns in their full height, but also, except on the north side, large portions of the entablature, with its stucco ornamentation intact, supported on a line of planks placed upon the columns at the time of excavation; and the decoration of the walls retains much of its brilliancy of coloring.
Fig. 147.—Longitudinal section of the house of the Silver Wedding.
View larger image
The colonnade of this peristyle has been mentioned elsewhere as illustrating the Rhodian form (p. 260). The difference in height between the colonnade in front and on the other three sides was accentuated in the decoration. On the walls in front are large red panels separated by architectural designs on a yellow background; the walls under the lower part of the colonnade were painted with black panels, the designs of the narrow intermediate sections being on a white background. The lower third of the columns in front was yellow; at the sides and rear, dark red, like that on the lower part of the high columns in the atrium. Thus a pleasing contrast was made between the portions of the colonnade designed to receive the sunshine, particularly in winter, and the shadier parts; and the higher front served as an intermediate member between the lofty atrium 305 with its stately tablinum and the lower rear division of the house.
The ornamentation of the architrave retains no trace of the decorative forms in vogue at the time when it was constructed. The surface, moulded in stucco, is divided into sections, corresponding with the capitals and intercolumniations, as in the colonnade of the Stabian Baths (Fig. 89); in these sections are small figures of birds and animals and other suitable designs, the effect being heightened by the use of color.
That the decoration of the peristyle received its present form before the earthquake is evident from an inscription scratched upon the plaster of one of the columns on the north side:
Nerone Caesare Augusto
Cosso Lentulo Cossi fil[io] co[n]s[ulibus]
VIII Idus Febr[u]arias
Dies Solis, Luna XIIIIX, nun[dinae] Cumis, V nun. Pompeis,—
'In the consulship of Nero and of Cossus Lentulus the son of Cossus,' that is 60 A.D. The dates given in the rest of the inscription are difficult to explain, and the reading of the number after Luna is uncertain. The memorandum seems to indicate that the eighth day before the Ides of February in this year was the market day at Cumae, being Sunday and the sixteenth day after the New Moon; and that the market day at Pompeii came three days later. The inscription is the earliest yet found in which a day of the week is named in connection with a date. 306
The garden plot enclosed by the peristyle was watered by means of two jets at the front corners, fed by pipes under the floor. In the middle was a slight elevation on which were found two crocodiles, a huge toad, and a frog of a whitish glazed earthenware, apparently made in Egypt. The figures are about sixteen inches long.
Each of the bedrooms at the rear had an alcove for a bed, the ceiling being vaulted over the alcove, flat between this and the door; a distinction between the two parts of the room was made also in the wall decoration and in the floor, of black and white mosaic. The frescoing on the walls of the sleeping rooms presents a brilliant variety of colors; the decoration of the exedra is in yellow. One of the bedrooms has a small side door (p. 261). In the large dining room at the right (w) the place for the table is indicated by an ornamental design in the mosaic floor; in the oecus (4) the part of the room designed for the table and couches is distinguished from the rest by a difference in the decoration both of the floor and of the wall.
In the oecus, the excavation was made from which the house received its name. The peristyle had already been cleared, and the volcanic débris had been, for the most part, removed from the front part of the oecus, leaving a layer at the bottom about two feet deep. The King and Queen of Italy, with the Emperor and Empress of Germany and a small suite, stationed themselves in the corner of the peristyle opposite the opening of the oecus; when all was ready a line of workmen proceeded to draw back the loose fragments of pumice stone, exposing the floor to view. Here nothing was found except the bronze fastenings of the large doors; but a more fruitful outcome followed a similar search in a room of a small house adjoining the oecus on the south, in which several vessels of bronze were brought to light.
The bath is unusually complete for a private house, comprising a long, narrow apodyterium (v), an open-air swimming tank in the garden (1), a tepidarium (u), and a caldarium (t). Steps led down into the swimming tank at the corner nearest the door of the apodyterium, and also on the side furthest from the house; on the same side a jet fell into it from a marble standard 307 adorned with a lion's head. If we imagine a thick growth of shrubs and flowers about the tank, we have the setting which explains the tasteful decoration of the frigidarium in the Stabian Baths (p. 191) and in the Baths near the Forum.
The pavement of the apodyterium is especially effective, being composed of small bits of black, white, dark red, green, and yellow marble and stone; near the rear wall a place for a couch is left white.
The caldarium and the side of the tepidarium next to it were provided with hollow walls; a hollow floor extended under both rooms. In the left wall of the tepidarium is the bronze mouth of a water pipe; perhaps in winter a cold bath was taken here rather than in the swimming tank. In the caldarium the niche for the labrum remains; the bath basin probably stood opposite the entrance, where it could be easily heated from the kitchen.
Fig. 148.—Transverse section of the house of the Silver Wedding, as it was before 63.
View larger image
Above the broad hearth of the kitchen (s), which stands against the wall adjoining the garden, are the vestiges of a painting of the two Lares; near them a serpent is seen coiled around an altar, on which is a large pine cone. At the end next the caldarium is a depression in the floor, for convenience in building a fire to heat the bath rooms. In the corner is a foundation of masonry to support the vessel, of lead, in which water was kept for the bath.
The colonnade at the left of the house (6 on the Plan; see Fig. 148), with its slender eight-sided columns, seems to have been thrown down by the earthquake of 63, and removed. In the place of four of the columns an open-air triclinium was made, 308 like that in the house of Sallust. It is well preserved, and shows an interesting peculiarity of construction. When the table was not in use, a jet of water would spring from the foundation of masonry supporting the round top. The water was conveyed by a lead pipe, and at the rear of the colonnade one may still see the stopcock by which the flow was regulated.
The stairway at the left of the small atrium (β) led to rooms over the front of the house. Over the rooms at the rear, a bedroom (γ), a central room (δ) taking the place of the tablinum, and a corridor (ε), was a dining room, the front of which was supported by columns (p. 275), the stairway being in the corridor; fragments of the tufa columns are lying on the floor. At the back of the house was originally only the small sleeping room (ζ) with a simple decoration in the first style, and a colonnade (η) with Doric columns opening on the garden (κ). Later the colonnade was turned into an apartment, and two rooms were built at the left, a dining room (θ) and a bedroom (ι).
In the front of one of the rooms (λ) is an unusually well preserved niche for the images of the household gods, ornamented with stucco reliefs and painted in the last style. On the rear wall stands Hercules, with the lion's skin hanging from his left arm, his club on the left shoulder. In his right hand he holds a large bowl above a round altar; at the left is a hog ready to be offered as a victim. 309
The house of Epidius Rufus, built, like those previously described, in the pre-Roman time, presents a pleasing example of a Corinthian atrium. In one respect it resembles the oldest Pompeian houses, such as that of the Surgeon; in the place of the peristyle is a garden extending back from a colonnade at the rear of the tablinum. In a period when large peristyles were the fashion, a Pompeian of wealth and taste, whose building lot was ample enough to admit of an extension of his house toward the rear, contented himself with a single group of rooms arranged about one central apartment.
The arrangement of rooms is seen at a glance (Fig. 149). The vestibule, like that of the principal entrance in the house of the Faun, had a triple door at the end toward the street (shown in Fig. 150), which was no doubt left open in the daytime. Entering, one would pass into the fauces ordinarily through the small door at the right (p. 248), the large double doors between the vestibule and the fauces only being opened for the reception of clients or on special occasions.
The front of each ala (7, 13) is adorned with two Ionic columns. At the corners of the entrances are pilasters, the Corinthian capitals of which have a striking ornament, a female head, moulded in stucco, looking out from the midst of the acanthus leaves. The eyes and hair are painted, and in one instance the features of a bacchante can be recognized.
In the right ala is an elaborate house shrine, built like a temple with a façade supported by columns, raised on a podium five feet high (Fig. 151). On the front of the podium is a dedicatory inscription to the Genius of the master (p. 270).
The tablinum originally opened on the atrium in its full width, the entrance being set off by pilasters at the corners. It was 310 then higher; when the entrance was changed the height was reduced to about twelve feet. The sixteen Doric columns about the impluvium, well preserved for the most part, are only a trifle over fourteen feet high.
Fig. 149.—Plan of the house of Epidius Rufus.
View larger image
The contrast between this atrium and the lofty halls of the houses of Sallust and the Faun was indeed marked. Here the atrium had become more like a court than a hall; yet the impluvium, paved with tufa, was retained, and we find the same arrangement for the flow of water as in many houses with Tuscan and tetrastyle atriums. On the edge of the impluvium at the rear is the pedestal of a fountain figure which threw a jet into a basin resting on two rectangular standards; the places of these, as well as the course of the feed pipe, are indicated on 311 the plan. Behind the pedestal is a round cistern curb; another jet rose in the middle of the impluvium.
The apartment at the right of the tablinum (20) was a dining room. Of the smaller rooms about the atrium, three (6, 8, and 12) were sleeping rooms for members of the family; some of the others were so poorly decorated as to prompt the suggestion that they were intended for slaves. That next the stairs (14) was a storeroom; the traces of the shelving are easily distinguished. Under the stairs was a low room (16), perhaps used for a similar purpose; the small double room (17) was also low, and used as a sleeping room.
The domestic apartments were reached by the andron (18). In the kitchen (21) is a broad hearth (b); a dim light was furnished by narrow windows. The little room at the entrance of the kitchen (a) was perhaps a storeroom; the closet, as often, was in the corner of the kitchen.
At the opposite end of the colonnade is the gardener's room (23). The main part of the garden (24), as indicated by the arrangement of the ground, was used for vegetables; the small flower garden at the rear (25) was on a higher level.
In the house originally there was no second floor. In the Roman period, apparently near the end of the Republic, a large upper room—probably a dining room—was built over the kitchen; and there may have been one or two small storerooms at the head of the stairway which was built in one of the side rooms of the atrium. 312
Traces of the first and third decorative styles are found in the atrium; but the most interesting remains are those of the last style. The alae and several rooms were redecorated shortly before the destruction of the city. The dining room (20) contains a series of paintings illustrating the contest between Apollo and Marsyas; they are skilfully displayed in a light architectural framework on a white ground. On the wall at the left (at a) Apollo is seen with left foot advanced, striking with his right hand a large cithara which rests against his left shoulder. Opposite him (at b) is Marsyas, playing the double flute; on the intervening panels (d, e) are the Muses, who are acting as judges in the contest of skill. The painting at c seems to relate to Apollo, but the subject has not been explained. The choice of subjects such as these may have been influenced by the cult of the early divinity of the city; but it probably implies a taste for poetry and music on the part of the proprietor.
Fig. 151.—Transverse section of the house of Epidius Rufus, restored.
View larger image
There were no shops in the front of this house, but in one respect our restoration of the façade (Fig. 150) can not be taken as indicating the appearance of such houses in general. Here the front line was set back several feet from that of the adjoining houses on either side, and the space thus gained was given to a terrace or ramp about four feet high, mounted by steps at either end. The elevation of the front entrance above the sidewalk and the placing of the approaches at the ends of the ramp gave the house an appearance of seclusion. 313
In the "Last Days of Pompeii" the house of the Tragic Poet is presented to us as the home of Glaucus. Though not large, it was among the most attractive in the city. It received its present form and decoration not many years before the eruption, apparently after the earthquake of 63, and well illustrates the arrangements of the Pompeian house of the last years.
Fig. 152.—Plan of the house of the Tragic Poet.
View larger image
The house received its name at the time of excavation, in consequence of a curious misinterpretation of a painting—now in the Naples Museum—which was found in the tablinum. The subject is the delivery to Admetus of the oracle which declared that he must die unless some one should voluntarily meet death in his place. On one side sits Admetus, with his devoted queen Alcestis; opposite them is the messenger who is 314 reading the oracle from a roll of papyrus. The excavators thought that the scene represented a poet reciting his verses; and since they found, in the floor of the tablinum, a mosaic picture in which an actor is seen making preparations for the stage, they concluded that the figure with the papyrus in the wall painting must be a tragic poet.
Fig. 153.—View of the house of the Tragic Poet, looking from the middle of the atrium
through the tablinum toward the shrine at the end of the peristyle.
At the right, the andron. In the foreground, a cistern curb, at the rear of the impluvium.
The plan (Fig. 152) presents slight irregularities; yet in essential points the arrangement of rooms does not differ materially from that which we have found in the houses of the pre-Roman time. As our section (Fig. 154) shows, all the parts of the house are comparatively low; the ceiling of the atrium and of the large dining room at the rear (15) were only a few feet higher than the colonnade of the peristyle. The entrances of the ala—here there is but one—and of the tablinum are not adorned with pilasters; plain wooden casings were used instead. The second story rooms are not an afterthought but 315 a part of the architect's design; the stairways (4) leading to them are symmetrically placed at the sides of the atrium. There was no upper floor, however, over the fauces, the atrium, or the tablinum. To a modern visitor this dwelling would have seemed more homelike and comfortable than the monumental houses of the earlier time.
The large shops (2) are both connected with the house by doors opening into the fauces (1). They were doubtless the proprietor's place of business. In one of them gold ornaments were found, but we should scarcely be warranted in assuming from this fact that the master of the house was a goldsmith.
In the floor of the fauces, immediately behind the double front door, is a dog, attached to a chain, outlined in black and white mosaic, with the inscription, cave canem, 'Beware of the dog!' The picture was for many years in the Naples Museum. The black and white mosaic is well preserved in the atrium, the tablinum (Fig. 153), and the dining room opening on the peristyle, as well as in the fauces.
The purpose of the various rooms is in most cases easy to determine. The first at the left of the atrium (5) was the room of the porter, atriensis. The three rooms marked 6 were sleeping rooms, as were also 12 and 14 opening on the peristyle; 6' was a storeroom, 13 the kitchen. There was a colonnade on three sides of the peristyle; against the wall at the rear stands the shrine of the household gods (seen in Fig. 153) in which was found a marble statuette of a satyr carrying fruits in the fold of a skin hanging in front of him.
The decoration of the large dining room (15) is especially effective. In the front of the room is a broad door opening into the colonnade of the peristyle; each of the three sides contains three panels, in the midst of a light but carefully finished architectural framework. In the central panels are large paintings: at r, a young couple looking at a nest of Cupids; at q, Theseus going on board ship, leaving behind him the beautiful Ariadne; and at p a composition in which Artemis is the principal figure. In four of the smaller panels are the Seasons, represented as graceful female figures hovering in the air; the 316 others present youthful warriors with helmet, shield, sword, and spear, all well conceived and executed with much delicacy.
The atrium, unlike most of those at Pompeii, was rich in wall paintings. Six panels, more than four feet high, presented a series of scenes from the story of the Trojan war, as told in the "Iliad." These were united with the decorative framework in such a way as to make a harmonious and pleasing whole; the main divisions of the right wall of the atrium, as well as of the fauces and tablinum, are indicated in Fig. 154.
Fig. 154.—Longitudinal section of the house of
the Tragic Poet, restored.
View larger image
In arranging the pictures, the decorators had little regard for the order of events. The subjects were the Nuptials of Zeus and Hera (at a on the plan); the judgment of Paris (b)—though this is doubtful, as the picture is now entirely obliterated; the delivery of Briseis to the messenger of Agamemnon (c); the departure of Chryseis (d), and seemingly Thetis bringing arms across the sea to Achilles (f). Of the painting at e only a fragment remained, too small to make it possible to recognize the subject. The fragment at f, in which were seen a Triton, two figures riding on a sea horse, and a Cupid on a dolphin, is now entirely faded. Half of the painting in which Chryseis appears was already ruined at the time of excavation; the other half was transferred to the Naples Museum, together with the paintings that were best preserved, the Nuptials of Zeus and Hera, and the sending away of Briseis.
The two pictures last mentioned are among the best known of the Pompeian paintings, and have often been reproduced. In one (Fig. 273) we see Zeus sitting at the right, while Hypnos presents to him Hera, whose left wrist he gently grasps in his 317 right hand as if to draw her to him. Hera seems half reluctant, and her face, which the artist, in order to enhance the effect, has directed toward the beholder rather than toward Zeus, is queenly in its majesty and power. The scene is located on Mt. Ida. In the background stands a pillar, on which are three small figures of lions; below at the side are two pipes, cymbals, and a tambourine, all sacred to the potent divinity of Mt. Ida, Cybele. Three youths, crowned with garlands, appear in the lower right hand corner of the picture; they are perhaps the Dactyli, demons skilled in the working of metals who followed in the train of Cybele.
A higher degree of dramatic interest is manifested in the other painting, which we present in outline (Fig. 155). In the 318 foreground at the right, Patroclus leads forward the weeping Briseis. In the middle Achilles, seated, looks toward Patroclus with an expression of anger, and with an impatient gesture of the right hand directs him to deliver up the beautiful captive to the messenger of Agamemnon, who stands at the left waiting to receive her. Behind Achilles is Phoenix, his faithful companion, who tries to soften his anger with comforting words. Further back the helmeted heads of warriors are seen, and at the rear the tent of Achilles.
The scene is well conceived. Yet in both this picture and the one previously described, the composition seems to lack depth and perspective. The artist is remarkably skilful in portraying facial expression, and foreground details; his limitations are apparent in the handling of groups. We have the feeling that the first designs were not made freely with brush or pencil, but that the artist was here translating into painting designs which he found already worked out in reliefs. The original paintings, of which these are copies, very likely go back to the fourth century B.C.
Another painting worthy of more than passing mention was found on a wall of the peristyle (at o), and removed to the Naples Museum. The subject is the sacrifice of Iphigenia, who was to be offered up to Artemis that a favorable departure from Aulis might be granted to the Greek fleet assembled for the expedition against Troy (Fig. 156).
At the right stands Calchas, deeply troubled, his sheath in his left hand, his unsheathed sword in his right, his finger upon his lips. The hapless maid with arms outstretched in supplication is held by two men, one of whom is perhaps Ulysses. At the left is Agamemnon, with face averted and veiled head, overcome with grief. Beside him leans his sceptre, and on a pillar near by we see an archaic statue of Artemis with a torch in each hand, a dog on either side. Just as the girl is to be slain, Artemis appears in the sky at the right, and from the clouds opposite a nymph emerges bringing a deer, which the goddess accepts as a substitute.
In this painting, also, though the style is entirely different from that of the others, we perceive the limitations of the artist 319 in the treatment of the background. Nevertheless the boldness of the conception, and the skill manifested in the handling of several of the figures, seem to point to an original of more than ordinary merit.
Not far from 400 B.C. the sacrifice of Iphigenia was made the subject of a painting by Timanthes, in which the maiden was represented as standing beside the altar. We are told that the artist painted Calchas sorrowful, Ulysses more sorrowful, Ajax lamenting, and Menelaus in sorrow so deep that deeper sorrow could not be expressed; finding it impossible to portray the grief of the father, Agamemnon, Timanthes represented him with veiled head. 320
The veiled Agamemnon appears in our painting, and the figure of Calchas perhaps reflects the conception of Timanthes. For the rest, it is difficult to establish a relation between the two pictures; even if we did not know that Iphigenia, in the painting of Timanthes, stood beside an altar, we could scarcely believe that a great painter would have represented her thus awkwardly carried. Undoubtedly the Pompeian painting, or its original, is indebted to the masterpiece of the Greek artist; but the decorative painter has adapted this to suit his purpose, omitting the figures, the facial expression of which was most difficult to reproduce, and at the same time attempting to heighten the effect by making more prominent the helplessness and terror of the victim. 321
The house of the Vettii, excavated in the years 1894-1895, bears the same relation to the other houses built in the Roman period that the house of the Faun does to those of the earlier time; it is the most important representative of its class. It was situated in a quiet part of the city, and was not conspicuous by reason of its size; its interest for us lies chiefly in its paintings and in the adornment of the well preserved peristyle.
The relationship between the two owners, Aulus Vettius Restitutus and Aulus Vettius Conviva (p. 508) is not known. They were perhaps freedmen, manumitted by the same master; 322 Conviva, as we learn from a painted inscription, was a member of the Brotherhood of Augustus,—Vetti Conviva, Augustal[is].
The exterior of the house (Fig. 157) was unpretentious. The main entrance was on the east side, and there was a side door near the southeast corner; elsewhere the street walls were unbroken except by small, square windows, part of which were in low second story rooms.
The vestibule (Fig. 158, a), as in the house of Epidius Rufus (p. 248), was connected with the fauces (b) by a large double door and also by a small door at the right. The atrium (c) is without a tablinum; at the rear it opens directly on the peristyle. One of the alae (h) at the time of the eruption was used as a wardrobe. At the sides of the atrium were two money chests; the one at the right is seen in Fig. 159.
Fig. 158.—Plan of the house of the Vettii.
View larger image
Opening on the peristyle are three large apartments (n, p, q), and two smaller rooms (o, r). A door at the right leads into a small side peristyle (s, shown in Fig. 160), with a quiet dining room (t) and bedroom (u).
The domestic apartments were near the front of the house. At the right of the principal atrium is a small side atrium (v) without a separate street entrance. Grouped about it were rooms for the slaves and the kitchen (w) with a large hearth (Fig. 125). Beyond the kitchen is a room for the cook (x'). 323 At the rear of the small atrium is the niche for the household gods (Fig. 127).
The corridor at the left of the principal atrium (γ) led to an unimportant room (β) with a door opening on a side street. In this corridor there was a stairway to the second story, which extended over this corner of the house (above e, f, h, n, o, β, δ). Along the front also were low chambers, over the fauces and the small rooms on either side (d, k), and over the rooms adjoining the small atrium (x, y, z).
In the accompanying sections two restorations of the interior are given. In the first (Fig. 159) we are looking toward the right side of the atrium and the inner end of the peristyle; the depth of the peristyle more than equals that of the atrium, together with the vestibule and fauces. The difference in height between the atrium and the peristyle, as in the house of the Tragic Poet, is much less than in the houses built in the pre-Roman period; and the corners of the alae were protected by simple wooden casings, altogether unlike the stately pilasters of the olden time.
The transverse section (Fig. 160) presents the long side of the peristyle next to the atrium, with the side of the small peristyle at the north end. The extent of the house is greater measured across the two peristyles (along the line C-D on the plan) than from front to rear. Of the three entrances from the atrium into the peristyle, that in the middle is broader and higher than the other two, which are not much wider than ordinary doors; the arrangement of the openings is similar to that in houses having a tablinum open toward the peristyle with an andron on one side, and on the other a room with a door corresponding with the door of the andron.
The columns of the peristyle are well preserved (Fig. 161). They are white, with ornate capitals moulded in stucco and painted with a variety of colors. Part of the entablature also remains; the architrave is ornamented with an acanthus arabesque in white stucco relief on a yellow background.
The roof of the greater part of the colonnade has been restored, and the garden has been planted with shrubs in accordance with the arrangement indicated by the appearance 324 of the ground at the time of excavation. Nowhere else in Pompeii will the visitor so easily gain an impression of the aspect presented by a peristyle in ancient times. The main part of the house was searched for objects of value after the eruption, but the garden was left undisturbed, and we see in it to-day the fountain basins, statuettes, and other sculptures placed there by the proprietor.
Fig. 159.—Longitudinal section of the house of the Vettii, restored.
View larger image
Fig. 160.—Transverse section of the house of the Vettii, restored, showing the two peristyles.
View larger image
In each corner of the colonnade is a round fountain basin 325 (indicated on the plan), at each side an oblong basin, all of marble. Jets fell into them from statuettes standing on pedestals beside the columns; there were two figures for each side basin, one each for those at the corners. The two statuettes at the inner end of the colonnade (Fig. 162) are of bronze; they represent a boy with a duck, from the bill of which the water spurted. The rest are of marble, and not of special interest. Among them are a Bacchus and two satyrs. The 326 water pipes were so well preserved that it has been found possible to place them in repair, and they are now ready for use. There were also two fountains in the garden.
Near the middle of the garden is a round, marble table. Three others stand under the colonnade, one of which, at the right near the inner end, is particularly elegant. The three feet are carved to represent lions' claws; the heads above are well executed, and there are traces of yellow color on the manes. On two pillars in the garden are double busts, the subjects of which are taken from the bacchic cycle. One represents Bacchus and a bacchante (Fig. 257), the other Bacchus and Ariadne; there are traces of painting on the hair, beard, and eyes.
The wall paintings of this house are the most remarkable yet 327 discovered at Pompeii. Although the decoration of which they form a part is throughout of the fourth style, they fall into two groups, an earlier and a later, distinguished by differences in composition and handling that are easily perceived.
The earlier paintings are found in the atrium (c), the alae (h, i), and the large room at the end of the peristyle (q). At the time when they were painted the left ala (h) was connected with the room behind it (n) by a door, and had a large window opening on the peristyle like that in the other ala (seen in Fig. 160). Afterwards both window and door were walled up and the ala was turned into a wardrobe. After this change had been made, as the remains of the masonry show, the earthquake of 63 threw down a part of the wall between the ala and the peristyle. The earlier paintings, then, must have been placed upon the walls before the year 63, in the reign of Claudius or the earlier part of the reign of Nero.
The later pictures are on the walls of the fauces (b), the large apartment at the left of the atrium (e), the colonnade of the 328 peristyle (l), the two dining rooms opening on the peristyle (n, p), and the small peristyle (s) with the adjoining rooms (t, u); to the same class belongs also the painting of the Genius with the Lares in the side atrium (v), which, aside from this, contains no pictures. The remaining rooms present nothing of interest.
The paintings of the first group are characterized by refinement in the choice of subjects, fertility in the composition, firmness of touch in the drawing, and exquisite finish in even the smallest details. The colors used are simple and harmonious, violent contrasts being avoided. A number of these pictures show the hand of a true artist, whose work has been found in no other house, and the system of decoration is the most effective of its kind in Pompeii.
The decoration of the walls painted after the earthquake is not unlike that found in other houses upon walls of the fourth style. The designs are sketchy and without painstaking in the handling of details; the lines are coarse, the colors sometimes crude. The pictures in the panels are by different painters, some of whom were not without skill, yet none far above the average. One of the decorators had a fondness for representing mythological death scenes, manifesting a taste little short of barbarous.
The contrast between the earlier and the later decoration is so marked that it seems impossible to explain except on the assumption of a change of owners. We may well believe that about the middle of the first century this was the home of a family of culture and standing, who secured for the decoration of it the best artist that could be obtained, bringing him perhaps from Rome or from a Greek city. But within a score of years afterwards the house passed into the hands of the Vettii, freedmen, perhaps, whose taste in matters of art was far inferior to that of the former occupants, and a number of rooms were redecorated.
Apollo after the slaying of the Dragon
Agamemnon in the Shrine of Artemis
PLATE VIII.—TWO WALL PAINTINGS IN THE HOUSE OF THE VETTII
The excellent preservation of a large part of both the earlier and the later decoration gives the house the appearance of an art gallery. To describe fully and interpret all the paintings would require a small volume. The limitations of space make it possible to present here only the more important; we commence 329 with those in the large room at the right of the peristyle, which are the most interesting of the entire series.
This apartment (q) may have been used either as a dining room or as a sitting room. The scheme of decoration is indicated in Fig. 163, which presents the division of the end wall; the side walls had five large panels instead of three.
The ground of the base is black. The stripe separating the base from the main part of the wall is red, except the small sections (4, 4), which have a black ground; the vertical stripes between the panels are black, and the same color forms the background of the border above. The ground of the panels is cinnabar red. The painting in the central panel (1) has not been preserved; in those at the sides (2) are floating figures. The upper division of the wall (6) is filled with an architectural framework upon a white background, against which many figures, skilfully disposed, stand out with unusual distinctness.
The floating figures in the side panels differ from those found elsewhere in the choice of subjects. Here instead of satyrs and bacchantes we find gods and heroes. In one panel is Poseidon with a female figure, perhaps Amymone; in another, Apollo with Daphne. Bacchus and Ariadne also appear, and Perseus with Andromeda.
The figures in the upper part of the wall at the end of the room belong to the bacchic cycle,—Silenus, satyrs, and bacchantes. Of those at the sides, one, near the right-hand corner, represents a poet with a roll of papyrus against his chin, the open manuscript case, scrinium, at his feet; opposite him sits a maiden clothed in white, drinking in his words. A comic mask on the left wall seems to suggest a writer of comedy, and the scene reminds one of the letter of Glycera to Menander, in Alciphron: "What is Athens without Menander, what Menander without Glycera? Without me, who make ready your masks, who 330 lay out your costume, and then stand behind the scenes pressing my finger tips into the palms of my hands till the applause breaks forth. Then all a-trembling I breathe again, and enfold you, godlike poet, in my arms."
The figures in which we are specially interested, however, are not those in the upper or middle division of the wall, but those in the black stripes (3), nine and ten inches wide, under the panels, in the narrow sections (4) and in the corresponding sections of the base.
In each of the sections at the bottom is a standing figure. In those of the end wall (5) are a satyr and a bacchante; in the two nearest the middle of each side wall are Amazons, in the rest female figures with implements of sacrifice. The Amazons, armed with battle-axe and shield, are full of life; they are distinguished by the colors of their mantles and their Phrygian caps.
In the narrow sections on the end walls (4), and all but four of the others, were Psyches gathering flowers. Only a part of the scenes are preserved; in each are three figures, grouped with a pleasing variety and rendered with singular delicacy of touch. In one, the Psyches are sprightly children (Fig. 164); in another, young girls; and in a third we see a lady sitting at ease and plucking the flowers close at hand, while two maids gather the blossoms beyond her reach.
The two narrow sections nearest the middle panel of each side wall contained mythological scenes, of which three are preserved. The subjects are taken from the cycle of myths relating to Apollo and Artemis. In one of the pictures both the divinities 331 appear. Apollo has just slain the Python, which lies coiled about the Omphalos, the sacred symbol of the god as the giver of oracles at Delphi. His bow and quiver are hanging upon a column in the background, and he moves forward with vigorous step singing the Paean with an accompaniment upon the cithara. At the right, Artemis, with a quiver and long hunting spear, leans upon a pillar looking at her brother. Nearer the Omphalos are a priest and a female attendant, with a bull intended for sacrifice; the relation of these to the rest of the scene is not clear (Plate VIII.).
The companion picture takes us to a sanctuary dedicated to Artemis. At the left a gilt bronze image of the goddess, in hunting costume, stands upon a pillar, to the side of which a bow, quiver, and boar's head are fastened. On one side of the round altar in the middle is a white hind, sacred to the goddess; on the other, moving toward it with a sword in the uplifted right hand, is a kingly figure, the face turned with a wild and threatening look toward a frightened attendant; another attendant, back of the hind, seems not yet to have noticed the sacrilegious intruder. The composition is full of dramatic power; the subject can be none other than the slaying of the hind of Artemis by the impious Agamemnon (Plate VIII.).
The third of these small paintings presents a scene not infrequently met with on Pompeian walls, Orestes and Pylades at Tauris in the presence of King Thoas, and of Iphigenia, who is now a priestess of Artemis. The conception is akin to that of the painting in the house of the Citharist (Fig. 182), but the picture is partially obliterated.
The long stripe below the panels is preserved in more than half its length, on the end wall (3), on that at the right, and on the short sections of the front wall; there is also a fragment on the left side. It contains a series of charming pictures representing Cupids and Psyches. Some of the little creatures are engaged in sports, others are celebrating a festival, while others still are busying themselves with the manifold work of everyday life. The execution is less careful than in the small mythological pictures; yet the figures are so full of life, their movements are so purposeful, and their bearing so suggestive that we seem to 332 catch the expression of the tiny faces. The Cupids and Psyches, whether playing the part of children or of men and women in elegant attire, whether garland makers or vinedressers or smiths, are always Cupids and Psyches still; we instinctively recognize them as such, not by reason of outward attributes so much as by their bearing. Prosaic daily toil has nowhere been more happily idealized.
The Cupids at the left of the entrance are playing with a duck. One holds the duck under his arm ready to let it go; the other stretches out his hands to catch it as it tries to escape. The group on the other side are throwing at a wooden mark. One is setting up the target. Two are making ready to throw, one of them being mounted on the back of a companion; the successful contestant in such games was called "the king," the loser, "the ass," because he had to carry the others upon his back. A fifth stands ruefully beside the target, awaiting his turn to carry the victor.
Among the most attractive groups are those of the flower dealers, at the end of the right wall near the entrance. First we see the gardener leading to market a goat laden with roses; his little son trudges along behind the animal, carrying a basket of roses suspended from a stick on the left shoulder. Next is the dealer, who stands behind a broad marble table covered with garlands; he is handing two to a youth who already has 333 several, while a Psyche near by is placing the garlands in a basket. Beyond these, workmen are making garlands, which hang in profusion from a wooden frame. At the extreme left is a lady asking the price. One of the workmen holds up two fingers, signifying two asses. The price of a wreath is given in a graffito as three asses (p. 497).
In the following scene Cupids appear as makers and sellers of oil (Fig. 165). At the right is the oil press. It stands upon a square stone, the upper surface of which contains a semicircular incision to catch the oil and carry it to a round vessel standing in front. The two sides, each with a broad vertical opening, are securely fastened by a crosspiece at the top. The ends of four horizontal boards are fitted to the openings, in which they move up and down. The olives are placed under the lowest board; in the spaces between the others, and between the upper board and the crosspiece, thick wooden wedges are driven. As the workmen drive in the wedges with heavy mallets, the pressure upon the olives is increased, and the oil is forced out. The arrangement may be more plainly seen in Fig. 166, from a wall painting at Herculaneum, in which a similar press appears. 334
At the left of the press is a large kettle resting on a tripod. The oil is being stirred as it is heated; a similar kettle appears in the scene in a shop presented in the other part of the picture. Further on are two figures beside a deep vessel, but the process represented is not clear.
The rest of the picture relates to the selling of oil. In the background is a cupboard, with a statuette—possibly an Aphrodite—on the upper shelf. In front is an open chest resting on four legs. Both the cupboard and the box contain bottles and jars of various shapes and sizes for holding oil; a Cupid has just taken one up. On the top of the chest is a roll of papyrus with a pair of scales; oil was sold by weight. A memorandum on the wall of an adjoining house reads: XIII. K. Fe. oli. p. DCCCXXXX,—'January 20, 840 pounds of oil.'
The central figure of the group at the left is the lady who has come to make a purchase. A cushioned seat has been placed for her, with a footstool; the maid stands motionless behind, a large fan resting on the right shoulder. The proprietor holds in his right hand a spoon containing a sample which he has just taken from the jar under his arm; the lady seems to be testing the quality on the back of her wrist. The article sold is doubtless the fine perfumed oil, not the common variety. 335
Hardly less animated are the scenes in which Cupids take the place of goldsmiths (Fig. 167). At the right is the furnace, adorned with the head of Hephaestus, the patron divinity of workers in metals. In front is a Cupid with a blowpipe and pincers. Behind it another is working with a graver's tool upon a large gold vessel. The pose, suggesting at the same time exertion and perfect steadiness, is rendered with remarkable skill.
Next is a figure at a small anvil; then the counter for the sale of jewellery, which is displayed in three open drawers. Behind the case containing the drawers a large and a smaller pair of scales are seen.
The first two figures in the other half of the picture represent a lady purchaser, seated, and the proprietor, who weighs out an object with a small pair of scales. The left hands of both point to the balance; they are deeply interested in the weighing. Lastly, we see two figures at an anvil. Nothing could be more natural than the pose of the one at the left, holding the metal upon the anvil for his companion to strike, yet drawing back as far as possible in order to avoid the sparks.
The processes of the fullery also are illustrated,—treading the clothes in vats, carding, inspection of the cloth to see if the 336 work is properly done, and folding the finished garments for delivery to the owners.
Three of the pictures—two on the end wall and one on the left side—relate to wine.
The first is a vintage scene (Fig. 168), of which only a part is distinct. At the left is a Cupid gathering grapes, from vines trained to run from tree to tree. The press is worked on a different principle from the one shown in Fig. 165. Here two Cupids are turning a windlass by means of long levers. The windlass is connected by a pulley with a press beam above; as the end of this is gradually lowered, the pressure upon the grapes underneath is increased.
Fig. 168.—Vintage scene: Cupids gathering and pressing grapes.
Wall painting in the house of the Vettii.
The triumph of Bacchus is presented in another picture, which is fortunately in a better state of preservation. At the head of the procession is a bacchante, riding on a panther. Bacchus sits in a four-wheeled chariot drawn by goats; the coachman is a satyr. Behind the triumphal car is Pan, dancing and playing the double flute; last comes a vine-crowned Cupid, dancing, with a large mixing bowl upon his shoulder. The skill shown in the pose of the dancing figures is especially noteworthy; they stand lightly erect, seeming not to feel their weight or the exertion of rapid movement.
In the last of this series, upon the left wall, Cupids appear as wine dealers; the part of the picture that has been preserved is shown in Fig. 169. The rustic bearing of the seller, at the left, is in pleasing contrast with the free and graceful carriage of the well-bred buyer, to whom he is handing a sample of the wine in a cup. At the right two servants are drawing another 337 sample from an amphora; one tips the amphora so cautiously that the other, who is holding the bowl, presses the neck gently with his left hand in order to make the slender stream flow faster.
Rapidity of movement reaches a climax in the middle picture of the right wall, which represents the games of the Circus. The scene is laid in the country; each goal is marked by three trees. Antelopes take the place of horses, and the groups are conceived with wonderful realism. The tiny, fluttering garments of the drivers display the colors of the four parties,—green, red, white, and blue.
Two of the pictures on the end wall are so damaged that it is not easy to make out the details. One of them, like that just described, presents a purely Roman subject—the festival of Vesta (Fig. 170). Cupids and Psyches are reclining at ease about a serving table in the shape of a deep platter with two handles, on which drinking vessels are seen; in the background are two asses, sacred to Vesta (p. 98). Some, at least, of the Cupid pictures could not have been taken from Greek originals.
In the atrium also there was a black stripe containing Cupids similar to those already described, but the figures are not so well preserved. The most interesting scene represents a sacrifice to 338 Fortuna. Cupids appear also riding and driving. Some are mounted on goats and engaged in a contest. One stands on a crab, guiding the ungainly creature with reins and plying the whip; another is similarly mounted on a lobster. A few are in chariots, the chariot in one case being drawn by two dolphins.
In each division of the wall of the atrium near the bottom is the half-length figure of a child, painted on a dark red ground. The children are busied with vessels of all kinds, apparently intended for sacrifice. The seriousness of their task, the importance which they attach to their helpfulness, is finely expressed in the faces, which are individualized in the manner of a true artist.
We may dismiss the later paintings of the house with few words. In the fauces (b) are small monochrome panels containing a pair of deer, a cock fight, vases, and a wallet with a herald's staff, attributes of Mercury, who perhaps had a place among the Penates of the house.
In the room at the left of the atrium (e) is a painting of Cyparissus, the youth beloved of Apollo, with his wounded deer on the ground near him; in another part of the room is the wrestling match between Pan and Eros. Among the figures seen in the architectural framework of the upper division of the wall is Zeus, sitting on his throne, represented as a youth, unbearded; Leda with the swan also appears, and Danaë holding out her robe to catch the golden rain.
The direction of the owner's tastes is perhaps indicated by a painting in the peristyle, at the middle of the wall under the colonnade at the left. It contains a portrait, probably of an author; near by is a manuscript case with rolls of papyrus. 339
The paintings in the two dining rooms opening on the peristyle, n and p, are in a better state of preservation than those of any other part of the house. In the first room, n, the simple and restful decoration surrounding the large pictures is in striking contrast with the pictures themselves, one of which is placed at the middle of each of the three walls. Here we see the infant Hercules strangling the serpents, there Pentheus and the Maenads about to tear him in pieces; the subject of the third painting is the punishment of Dirce, the treatment being not unlike that of the sculptured Farnese group in the Naples Museum.
The decorative effect of the other room, p, is more harmonious. The divisions of the wall space, the relation of the three principal paintings to the decorative design, and the distribution of ornament are indicated in our illustration (Plate IX); but no reproduction can do justice to the richness of the coloring.
The painting in the middle panel at the right brings before us Bacchus with his train as they come upon the sleeping Ariadne. On the left wall opposite is Daedalus, pointing out the wooden cow that he has made to Pasiphae, who hands to him a golden arm band. The subject of the third picture is here met with for the first time at Pompeii—the punishment of Ixion.
The tragedy of the scene (Fig. 171) is plainly suggested, but not forced upon the beholder; we see, at the left, only half of the ever revolving wheel to which the wretched victim is bound. The other figures are more prominent and, with one exception, convey no suggestion of pain or sympathy in either pose or expression of face. Nearest the wheel is Hephaestus, who has just fastened Ixion upon it; his pincers, hammer, and anvil are lying upon the ground in the corner. In front of him is Hermes, who, in obedience to the command of Zeus, brought the offender to the place of punishment.
A sad-faced female figure with veiled head sits in the foreground—a personification of the spirit of one who has died, a shade introduced to indicate that the place of punishment is the Underworld. The left hand is involuntarily raised with the shock that the thought of the victim's suffering brings; the face 340 has been thought by some to resemble that often given to the Madonna.
The two figures at the right of the picture are of the upper world, not directly connected with the main action, yet well conceived and skilfully introduced. Nearer the foreground Hera sits enthroned, her sceptre in her left hand; behind her stands Iris, faithful messenger, who points out to her the well deserved fate of him who dared to offer an affront to the queen of heaven. 341
In the houses described in the preceding chapters the distribution of the rooms is characterized by a certain regularity, which makes it possible to indicate the arrangements by reference to an ideal or normal plan. A wide departure, however, is occasionally noted; and by way of illustration three houses of unusual plan will be briefly presented here, first a house without an atrium, then one having an atrium but no compluvium, and, lastly, a large establishment built on terraces at different levels.
Fig. 172.—The House of Acceptus
and Euhodia.
View larger image
Sometimes a few rooms of a large house were cut off from the atrium and used as a separate dwelling; the original plan in such cases is easily determined. The number of houses built without an atrium in the beginning is exceedingly small. Among the pleasantest was the modest dwelling of Acceptus and Euhodia, on the south side of the double Insula in the eighth Region (VIII. v.-vi. 39); the names are taken from a couple of election notices painted on the front, in which they appear together.
From the street one passed directly under a colonnade (Fig. 172, a) in two stories, facing a small garden (b), from which it 342 was separated by a low wall. At one end of the garden was an open-air triclinium (k), which still remains. The rest of the plot, used as a flower garden, was profusely ornamented; five heads of herms, a frog and other objects of marble were found in it, besides a couple of alabaster basins and five statuettes of Egyptian divinities made of glazed pottery. In the corner of the colonnade, between the garden and the entrance, is a small hearth, conveniently placed for serving the open-air triclinium; in the opposite corner at the left the excavators found the remains of a cupboard, together with vessels of bronze, glass, and clay. At the further end of the colonnade one passed into another small garden (g).
A bedroom (d) opened on the colonnade near the entrance. A corridor (e) led to the kitchen (c) behind it. Beyond the corridor is the dining room (f). Another sleeping room (i) with places for two beds is entered through a kind of anteroom (h) at the rear of the house.
The rooms of the second story corresponded closely with those underneath, and were entered from the second story of the colonnade; the stairs, partly of wood, started in the kitchen. The appearance of the house as one looked from the garden at the right toward the colonnade may be inferred from our restoration, which gives a longitudinal section (Fig. 173); the letters under the section refer to the rooms as they are indicated in the plan.
The house was decorated in the fourth style. On the south wall of the kitchen there is a painting of Fortuna, with the usual attributes, a cornucopia and a rudder resting on a ball. The Genius and the Lares nowhere appear, and as a lotus blossom is 343 painted on the forehead of the goddess, who is thus conceived of as a form of Isis, we may suppose that Acceptus and his wife were adherents of the Egyptian cult. Besides the statuettes of Egyptian divinities there was found in the garden the foot of a marble table with a Greek inscription "of Serapion," an Egyptian name. Acceptus and Euhodia may have come from Alexandria and thence have introduced into Pompeii this type of house, so unlike the native form. The Latin name of Acceptus does not stand in the way of this explanation, for he was probably a freedman, who in Egypt may have had a Roman master.
Fig. 174.—Plan of a house without a compluvium (V. v. 2).
View larger image
The accompanying plan (Fig. 174) shows the arrangement of a small house on the north side of Nola Street in the fifth Region (V. v. 2). The problem of lighting the atrium (e), the roof of which sloped toward the back, was met in a simple way.
At the rear a light court (f) was constructed, which furnished light and air by means of broad windows, not only to the atrium, but also to the adjoining room g and indirectly to the dining room k, which had a window opening on g.
This arrangement, however, is in part the result of later changes. Originally the room marked g belonged to the court, f, and the house consisted of two parts, separated by a narrow area. The kitchen was then in the low room (i) above which 344 was a correspondingly low chamber, the height of the two rooms being only equal to that of the dining room (k). In later times, however, the hearth was moved to the corner of the atrium (1), the smoke being let out through a small window in the wall. A stairway, partly of wood, led to the upper rooms at the front of the house. Along the street ran a stone bench, protected by a roof projecting over it.
Fig. 175.—Transverse section
of the house without a compluvium.
At the left, light court (f), with
stairs (h) leading to an upper
room over i. At the
right, room g, with the window
opening into the dining
room k.
The water from the roofs fell into the light court f, and was collected in a cistern. We give a transverse section across f and g (Fig. 175), showing the arrangement of the roofs, doors, and window at the rear.
On the wall of g is scratched the inscription, Fures foras, frugi intro,—'Let thieves keep out, let honest folk come in!'
A good example of a house extended over terraces at different levels may be seen on the edge of the hill west of the Forum Triangulare (VIII. ii. 39), that of the Emperor Joseph II, casa dell' Imperatore Giuseppe II. The name was given in commemoration of a visit of this emperor to Pompeii, in 1769, when a special excavation in his honor was made in a part of the house.
The uppermost of the three terraces on which the house is built (Fig. 176, 1) is at the level of the street (Vico della Regina, Plan VI), the lowest (3) in part occupies the place of the old city wall; the middle terrace is adjusted to the intervening slope. The arrangement of the stairways between the terraces and the distribution of the rooms may be more easily understood from an inspection of the plan in connection with the key below than from description.
There was a second story over a part of the rooms on the upper terrace, as indicated by the stairways at e and n and in 345 the corner of u, but the extent of it is not easy to determine. The traces of the upper rooms of the middle terrace, however, are clearly seen, and their arrangement is indicated on the plan (4); the height of θ and κ, which were in one story, was equal to that of the smaller rooms with the chambers above.
The front of the house, the large Tuscan atrium with the adjoining rooms, dates from the Tufa Period; the atrium was originally one of the most richly decorated at Pompeii. The rooms back of the atrium opening toward the rear, and those of the middle and lower terraces, are a later addition, built after 346 the city wall at this point had been removed, perhaps not long before the end of the Republic; traces of the second style of decoration are found in one of the lowest rooms, the tepidarium of the bath. Remains of the first style are found in the fauces, but the greater part of the house is decorated in the last style.
One of the small rooms (c) opening on the atrium, originally a bedroom, was in later times turned into a house chapel. In the right wall is a small niche, on the back of which a Genius of the ordinary type is painted. Near him and also offering a libation is a female figure with the attributes of Juno, a diadem, and a sceptre. The two figures represent the Genii of the master and mistress of the house (p. 270). Under the niche, and at the sides are iron nails, driven into the plaster to hold wreaths and garlands.
Fig. 177.—Corner of bake room in the lowest story of the house of the Emperor Joseph II, at the time of excavation.
On either side of the broad middle room (w) is a dining room (v, x), connected with it by two large windows. All three rooms open upon the colonnade (y), and this again opens out upon a terrace (z).
The principal room of the middle story (2. η, under z) takes the place of an atrium; it is lighted by a door and two windows opening upon a terrace (μ). Connected with it are two dining rooms (θ, κ), considerably higher than the other apartments of this story, and three sleeping rooms (ι, λ, ζ). A dark corridor 347 (β) separated these rooms from the solid earth at the rear, and furnished access, by means of ladders, to two low upper rooms (over ι and λ; see 4. II, III), perhaps used as storerooms. From β one could also reach, in the same way, an oblong chamber excavated in the earth (I), designed originally as a cistern, but used as a cellar at the time of the eruption. Of the remaining upper rooms one (IV) was built on the solid ground at the side of the stairway leading from the upper floor (α); the other two (V, over γ, δ and VI, over ζ) were connected by a gallery or bridge over the stairway leading to the lower floor (ε); this gallery could be reached also by a ladder or wooden stairway in the large middle room (η). The outermost room (VI) was perhaps a washroom; there is a rectangular basin in one corner.
The lower floor was given up to a bath (frigidarium, 8; tepidarium, 6; caldarium, 7) and to a bakery (3, 4).
In the vaulted ceiling of the frigidarium (8) and one of the rooms of the bakery (3) is a round hole for ventilation, opening upon the terrace above through a kind of chimney. The hollow walls of the caldarium (7) are carried to the crown of the vault, at the middle of which is a similar opening for the vent. The places of the three openings in the floor of the terrace are seen in the plan (2, μ).
At one end of the larger room of the bakery (3) is the oven; at the other two rectangular basins of masonry. In the corner near the basins was found the skeleton of a man who at the time of the eruption had taken refuge in this room and probably died of hunger. The appearance of the room at the time of excavation is shown in a sketch published by Mazois (Fig. 177).
The door near the corner, seen in the illustration, led outside the city. The proprietor of the house perhaps had a special permit enabling him to leave or enter the city at any time without surveillance; none of the other houses along the edge of the city have a private entrance of this kind. 348
The houses accorded a detailed description in the previous chapters are few in comparison with the number of those worthy of special study. He alone who has wandered day after day among the ruins, returning again and again to explore the parts of the city which are rarely seen by the hasty visitor, can realize what a wealth of interesting material lies behind the barren walls lining the streets on either side.
The location of the houses mentioned incidentally is given in Plan VI, at the end of the volume. Such are, the house of Caecilius Jucundus, on Stabian Street (V. i. 26), the tablinum of which contains one of the most beautiful specimens of wall decoration yet discovered, in the third style; the house of Lucretius, on the same street (IX. iii. 5), with a little garden behind the tablinum adorned with quaint sculptures; the house of the Hunt on Nola Street (VII. iv. 48), so named from the large hunting scene on the wall at the rear of the garden; and further down on Nola Street (IX. vii. 6) the extensive house with three atriums and a large peristyle, excavated in 1879, eighteen centuries after the destruction of the city, and hence called the house of the Centenary, casa del Centenario.
In the same block with the house of the Hunt, opposite that of the Faun, is the house of the Sculptured Capitals, casa dei Capitelli Figurati (VII. iv. 57). It received its name from the figures carved in the tufa capitals of the pilasters at the entrance, one of which is shown in Fig. 178; the stucco with which the surface was coated has now fallen off. Such figures are not infrequently met with in pilaster capitals of the Tufa Period, the subjects being always taken, as here, from the bacchic cycle; the satyr at the left is well rendered. The plan of the house is 349 simple, like that of other houses of moderate size dating from the pre-Roman time.
Near the west end of Nola Street is the house of Pansa, which occupies the whole of the sixth Insula of Region VI. Although of approximately the same size as the house of the Faun, and built in the same period, it contained fewer large rooms; its proportions were less impressive, its finish less elegant. The walls present many evidences of repairs and alterations, but of the wall decoration nothing remains.
The plan (Fig. 179) is of interest on account of its regularity. It well illustrates the extent to which, at Pompeii, rooms not required for household purposes were utilized as shops and small separate dwellings, which were rented to tenants, and doubtless formed an important source of income.
The vestibule and fauces have been mentioned previously (p. 249). The living rooms are grouped about a single atrium (2) and a large peristyle (9). A colonnade at the rear of the house faces the garden, which, as indicated by the appearance of the ground at the time of excavation, was used for vegetables. Opening on the colonnade is the gardener's room (a).
In the front were shops, one of which (35) was connected with the house and served as the proprietor's place of business; another (33) was used as a salesroom for the bakery, which occupied the rooms numbered 28-34. On the same side of the house were three small two-story dwellings, one of which (22-23) contained windows opening into an adjoining room (12) of the house and into the peristyle; it was doubtless occupied by some one connected with the household. The dwellings on the other street (A, B, C) were larger. Fiorelli thought that this Insula belonged to Alleius Nigidius Maius (p. 489); the name of Pansa was given to it from an election notice painted on the front. 350
Fig. 179.—Plan of the house of Pansa.
View larger image
There is a remarkable group of houses near the north end of Mercury Street. The first in importance is the house of Castor and Pollux (VI. ix. 6), which is so named from the figures of the Dioscuri, holding their horses by the bridle, painted on the walls of the principal fauces. Between the two atriums, one of which is of the Corinthian type, lies a large peristyle; and behind the Corinthian atrium is a garden with a colonnade in front. The decoration of the house is especially effective; that of the larger tablinum was by one of the best artists who worked at Pompeii. The paintings in the two central panels of this room are often mentioned; on the right wall, the recognition of Achilles among the daughters of Lycomedes; on the left, the quarrel between Achilles and Agamemnon. The representation of Venus Pompeiana shown in Fig. 4 is from the peristyle.
Beyond the house of Castor and Pollux is that of the Centaur (VI. ix. 3), which received its name from a painting in which Hercules, Deianira, and Nessus appear; the end of a bedroom 351 in this house is shown in Fig. 122. The rest of the insula belongs to the large house of Meleager, named from a picture representing Meleager and Atalanta. The walls contained numerous mythological pictures, part of which were transferred to the Naples Museum; those left on the walls have suffered from exposure to the weather.
The house of Apollo also (VI. vii. 23), on the opposite side of the street, is noteworthy on account of its decoration, in the last style; the god appears in a series of paintings. Two houses in the next insula, on the south, have in their gardens fountain niches veneered with bright mosaics, the casa della Fontana Grande (VI. viii. 22) and the casa della Fontana Piccola (VI. viii. 23).
Fig. 180.—Section showing a part of the peristyle of the
house of the Anchor, restored.
View larger image
At the middle of the tenth Insula, in the same Region, is the house of the Anchor (VI. x. 7), so called from an anchor outlined in the black and white mosaic of the fauces. The peristyle here presents an interesting peculiarity of construction. The level of the street at the rear of the house was below that of Mercury Street. Instead of filling up the lot so as to raise the garden to the height of the front part, the builder constructed a kind of basement under the colonnade of the peristyle, the floor of which was thus adjusted to the level of the floors in the front rooms; the garden and the floor of the basement were on the same level as the street at the rear. The colonnade was higher on the north than on the other three sides (Fig. 180). The effect of the whole was far from unpleasing. Whether the projections seen in the niches below, at the level of the garden, are pedestals or small altars cannot be determined. The niches at the front end were made larger, and 352 were three in number. In the middle niche was a diminutive temple; the other two had the form of an apse, and contained fountain figures.
Fig. 181.—Plan of the house of the Citharist.
View larger image
Houses were sometimes enlarged at the expense of neighboring dwellings, which, in some cases, were destroyed to the foundations, in others remodelled or incorporated with slight change. An example is the house of the Citharist, which fills the greater part of the fourth Insula in Region I, on the east side of Stabian Street. A bronze statue of Apollo playing the cithara, found in the middle peristyle (Fig. 181, 17), gave its 353 name to the house. It is apparently a faithful copy of a Greek masterpiece at Sparta, and is now in the Naples Museum. The house is sometimes referred to as that of Popidius Secundus.
There are two atriums (6, 47) and three peristyles (17, 32, 56). A large part of the house, the west atrium (6), with the connecting rooms and the two peristyles, 17 and 32, was built in the Tufa Period, in the place of several older houses. The rooms east of the two peristyles, and the north atrium (47) and peristyle (56), with the adjoining rooms, were added in Roman times, probably near the end of the Republic; the house was afterwards decorated in the second style. Remains of the third and fourth styles also are found in some parts of the house. The better apartments are grouped about the peristyles; the rooms about 354 the atriums were turned over to the slaves or used for domestic purposes.
In the large room (35) opening on the south peristyle were two paintings of unusual merit, both of which were transferred to the Naples Museum. The subject of one was the finding of the deserted Ariadne by Bacchus; in the other Orestes and Pylades appear as captives before Thoas, the king of Tauris (Fig. 182).
At the right of the picture sits Thoas, looking at the captives, his sword lying across his knees, his hands resting upon the end of his sceptre. Behind him stands a guard with a long spear in the right hand. Another guard with two spears stands behind Orestes and Pylades, whose hands are bound. Orestes, upon whose head is a wreath of laurel, looks downward, an expression of sadness and resignation upon his finely chiselled features. Pylades is not without anxiety, but is alert and hopeful. Between the two groups is an altar on which incense is burning. In the background Iphigenia is seen moving slowly forward; the head is entirely obliterated. It is unfortunate that the painting is so badly preserved. The faces of the two youths are individualized with remarkable skill, and the picture here used as the centre of a decorative framework of the fourth style is evidently a copy of a masterpiece.
On the south side of Abbondanza Street, opposite the Stabian Baths, is the house of Cornelius Rufus (VIII. iv. 15), a view of the interior of which has already been given. The name of the proprietor is known from the dedication on the herm (seen in Fig. 121), C. Cornelio Rufo; the carved table supports behind the impluvium are among the finest yet discovered.
In the same block is the house of Marcus Holconius (VIII. iv. 4), a good example of a house completely restored and decorated after the earthquake of 63. The right ala was fitted up with shelves, on which at the time of the eruption were kitchen vessels of bronze, iron, and terra cotta. The colonnade about the peristyle was in two stories. From the columns at the front six jets of water, at a height of about four feet, fell forward into the gutter; and there was an equal number at the rear. There was also a little fountain in the exedra at the rear of the peristyle. 355
Two classes of villas were distinguished by the Romans,—the country seat, villa pseudourbana, and the farmhouse, villa rustica. The former was a city house, adapted to rural conditions; the arrangements of the latter were determined by the requirements of farm life.
The country seats manifested a greater diversity of plan than the city residences. They were relatively larger, containing spacious colonnades and gardens; as the proprietor was unrestricted in regard to space, not being confined to the limits of a lot, fuller opportunity was afforded for the display of individual taste in the arrangement of rooms. We can understand from the letters of Pliny the Younger, describing his two villas at Laurentum and Tifernum Tiberinum (now Città di Castello), and from the remains of the villa of Hadrian at Tivoli, how far individuality might assert itself in the planning and building of a country home.
The main entrance of a country seat, according to Vitruvius, should lead directly to a peristyle; one or more atriums might be placed further back. The living rooms would be grouped about the central spaces in the way that would best suit the configuration of the ground and meet the wishes of the owner. In farmhouses there would naturally be a court near the entrance; and the hearth, as we have seen, down to the latest times, was placed in the room that corresponded with the atrium of the city house. In most parts of Italy a large farmhouse would contain appliances for making wine and oil.
The arrangement of the two types of country house in the vicinity of Pompeii may be briefly illustrated by reference to an example of each, the villa of Diomedes and the farmhouse recently excavated at Boscoreale. 356
Fig. 183.—Plan of the villa of Diomedes.
View larger image
The location of the villa of Diomedes, beyond the last group of tombs at the left of the road leading from the Herculaneum Gate, is indicated in Plan V. An extensive establishment similar in character, the so-called villa of Cicero, lies nearer the Gate on the same side of the road; on the right there is a third villa, of which only a small part has been uncovered. The three seem to have belonged to a series of country seats situated on the ridge that extends back from Pompeii in the direction of Vesuvius. The villa of Diomedes, excavated in 1771-74, received its name from the tomb of Marcus Arrius Diomedes, facing the entrance, on the opposite side of the Street of Tombs (Plan V, 42).
The front of the villa forms a sharp 357 angle with the street. The orientation of the building was determined by an abrupt descent in the ground, which runs across the middle and divides it into two parts. The front part, the rooms of which are numbered on the plan (Fig. 183), is a few feet above the level of the street at the entrance. The rear portion, as may be seen from our section (Fig. 184), is considerably lower; on the plan the rooms of this portion are designated by letters. From traces of the second style of decoration found in two of the rooms, and from the character of the masonry, we infer that the villa was built in Roman times, but before the reign of Augustus.
In front of the door was a narrow porch (Fig. 184). The door opened directly into the peristyle (3 on the plan), in the middle of which was a garden. At the left is a small triangular court (17) containing a swimming tank (ζ) and a hearth (ε) on which a kettle and several pots were found; the Romans partook of warm refreshments after a bath. The wall back of the swimming tank was in part decorated with a garden scene, not unlike those in the frigidariums of the two older public baths. Over the tank was a roof supported by two columns, and on the other two sides of the court there was a low but well proportioned colonnade.
The arrangements of the bath were unusually complete, comprising an apodyterium (19), a tepidarium (20), and a caldarium (21), from which the tepidarium was warmed by means of an opening in the wall; the caldarium had a hollow floor and walls, and was heated from the kitchen (22). In the tepidarium were found four panes of glass about 10½ inches square, together with the remains of the wooden frame in which they were set. The caldarium, like those of the public baths, had a bath basin and a semicircular niche for the labrum.
A small oven stands on one end of the hearth in the kitchen, and a stone table is built against the wall on the long side. The room in the corner (23) was used as a reservoir for water, which was brought into it by means of a feed pipe and thence distributed through smaller pipes leading to the bath rooms and other parts of the house.
At the left of the peristyle is a passage (15) leading to a garden 358 which has not yet been excavated. The only apartment of special interest in this portion of the house is the semicircular sleeping room (14) built out into the garden. It faced the south, and had three large windows; it was separated from the rest of the house by an anteroom, procoeton (13), at one end of which is a small division (β) designed for the bed of an attendant. In the semicircular room are an alcove for a bed (γ) and a stationary wash bowl of masonry (δ). The plan is similar to that of a bedroom in Pliny's villa at Laurentum. Another sleeping room (9) was provided with both a large and a small door (p. 261).
Fig. 184.—Longitudinal section of the villa of Diomedes, restored.
View larger image
The large room (8) at the rear of the peristyle may be loosely called a tablinum; it could be closed at the rear. Back of the tablinum was originally a colonnade (26), which was later turned into a corridor, with rooms at either end; the original form is assumed in our restoration. Beyond the colonnade was a broad terrace (28) extending to the edge of the garden. It commanded a magnificent view of Stabiae, the coast in the direction of Sorrento, and the Bay. Connected with it was an unroofed promenade over the colonnade (e, f, g, h) surrounding the large garden below. A rectangular room (27, indicated on the plan but not in the restoration) was afterwards built on the terrace.
Members of the family could pass into the lower portion of the villa by means of a stairway, at b; the slaves could use a 359 long corridor (a), which was more directly connected with the domestic apartments. The flat roof of the quadrangular colonnade (e, f, g, h) was carried on the outside by a wall, on the inside by square pillars (Fig. 184). The rooms (i, k) opening into the front of the colonnade were vaulted, and the decoration, in the last style, is well preserved; the ceiling of the corner rooms (l, m) is flat, and the decoration of one of them (l) is noteworthy; green and red stars are painted on a white ground. In the narrow space between i and c a cistern was built, from which water could be drawn by means of a faucet in front.
At the opposite corners of the colonnade were two airy garden rooms (n, o). Outside of the left arm (e, f) was a broad walk (u), at the upper end of which were steps leading to the garden above.
The garden enclosed by the colonnade was planted with trees, charred remains of which were found at the time of excavation. In the middle was a fish pond (r), in which was a fountain. Back of it was a platform, over which vines were trained on a framework supported by six columns, making a pleasant arbor in which meals were doubtless often served.
The door at the rear of the garden led into the fields. Near it were found the skeletons of two men. One of them had a large key, doubtless the key of this door; he wore a gold ring 360 on his finger, and was carrying a considerable sum of money—ten gold and eighty-eight silver coins. He was probably the master of the house who had started out, accompanied by a single slave, in order to find means of escape.
The floor of the three sides of the colonnade was a few feet higher than that of the front. Underneath was a wine cellar, lighted by small windows in the wall on the side of the garden; it contained a large number of amphorae.
At the time of the eruption many members of the family took refuge in the cellar. Here were found the skeletons of eighteen adults and two children: at the time of excavation the impressions of their bodies, and in some instances traces of the clothing, could be seen in the hardened ashes. Among the women was one adorned with two necklaces and two arm bands, besides four gold rings and two of silver. The victims were suffocated by the damp ashes that drifted in through the small windows. According to the report of the excavations, fourteen skeletons of men were found in other parts of the house, together with the skeletons of a dog and a goat.
KEY TO PLAN IV
Less than two miles north of Pompeii, near the village of Boscoreale, a farmhouse was excavated in 1893-94 on the property of Vincenzo de Prisco. In the last century similar buildings were brought to light in the vicinity of Castellammare, but they were covered up again. Especial importance attaches to this villa rustica, both on account of the extreme rarity of examples of the type and because of the character of the remains, which makes it possible to determine the arrangements with certainty.
The living rooms, the stable, and the rooms used for the making of wine and oil were all under one roof. The size of the building is not so great as might have been assumed from the variety of purposes which it served; the enclosed area, exclusive of the threshing floor, measures about 130 by 82 feet. The plan (Plan IV) is regular, the principal entrance being near the middle of the southwest side.
The entrance was wide enough for carts and wagons, which were kept in the court (A). Along three sides of the court ran a colonnade, over which at the front were upper rooms; the roof on the left side and the rear rested on columns connected by a parapet. Under the colonnade at the further corner is a cistern curb (1), on one side of which is a large wash basin of masonry (2); on the other is a pillar supporting a small reservoir of lead (3). The reservoir, reached by means of steps (4), was filled from the cistern.
In a Roman farmhouse the kitchen was the large, central room (p. 253). Vitruvius recommends that it be placed on the warmest side of the court; and in our villa rustica it lies at the north corner (B) where, in winter, it would receive the full benefit of the sunshine. The hearth (1), on which remains of 362 fire were found, stands in the middle of the room; in the wall at the rear is a niche, ornamented to resemble the façade of a diminutive temple, in which were placed the images of the household gods.
A large door in the right wall of the kitchen opened into the stable (H). Near it was a stairway (3) leading to upper rooms; in the corner was a pit (4) affording access to a small cellar in which the standard of the press beam in the adjoining room (P, 4) was made fast. In the opposite corner was a reservoir of lead (2) standing on a foundation of masonry; it received water from the reservoir in the court (A, 3) and supplied the bath. On the same side of the room is the entrance to the bath and to the closet (G).
Fig. 185.—Hot water tank and reservoir for supplying
the bath in the villa rustica at Boscoreale.
View larger image
The arrangements of this bath are in a better state of preservation than those of any other Roman bath yet discovered; the tank and reservoir with the connecting pipes may now be seen at Pompeii in the little Museum near the Forum fitted up for the exhibition of the objects found in this villa. The bath rooms comprised an apodyterium (D), a tepidarium (E), and a caldarium (F) with a bath basin at one end and a labrum in a semicircular recess at the other. The bath was heated from a small furnace room (C). Over the hot air flue leading from the furnace into the hollow space under the floor of the caldarium was a water heater in the form of a half cylinder similar to the one found in the Stabian Baths (p. 194). The tepidarium, as well as the caldarium, had a hollow floor and walls.
Over the furnace stood a round lead tank, the lower part of which was encased in masonry; the pipes connecting it with the reservoir in the corner of the kitchen and with the bath 363 rooms were found in place, and are shown in Fig. 185. The middle pipe supplied the tank with cold water; the flow could be regulated by means of a stopcock. The lower pipe started from the reservoir, but before reaching the tank was divided, the left arm leading into the tank, the other into the bath basin. As there were stopcocks in the main pipe and in the arm entering the tank, by adjusting these the bath basin could be supplied with either hot or cold water through a single pipe. The upper pipe was divided in the same way, one arm leading to the labrum. In the public baths there was a separate tank for lukewarm water; here a moderate temperature was obtained by mixing hot and cold water.
At the bottom of the tank (seen at the right) is a short bibcock used when the water was drawn off. On the side of the reservoir we see the end of the feed pipe leading from the reservoir in the court; at the right is a supply pipe which conducted to the stable (H) water not needed for the bath.
On the same side of the court is a tool room (J), in which were found remains of tools; several sickles were hanging on the walls. Next are two sleeping rooms (K, L); a passage between them leads to the bakery, with a single mill (1) and oven (2). In the corner is a dining room (N) in which the remains of three couches were found; it was separated from the court by an anteroom (M).
Over the colonnade on the front side of the court was a sleeping room with a large room adjoining, perhaps the bedroom of the overseer, villicus, which, according to Varro should be near the entrance.
The oblong room at the northeast side of the court contained appliances for making wine. At each end was a large press with a raised floor (forum, 1). The presses were operated on the same principle as that previously described (p. 336, Fig. 168).
At the rear of each press was a strong standard (arbor, 4), to which the inner end of the press beam (prelum) was attached. In front stood two posts (stipites, 5-5), to which were fitted the ends of a horizontal windlass. By means of a pulley and a rope passed around the windlass, the outer end of the press beam could be raised or lowered. When it was lowered in order to 364 increase the pressure on the grapes, both standard and windlass posts would be pulled out of the ground unless firmly braced. Under the rear of each press was a small cellar, in which was placed a framework for holding the standard in place. One was entered from a pit in the corner of the kitchen (B, 4), the other from a similar depression in a small separate room (W); at 6 was a pit for fastening the windlass posts.
The grape juice ran into round vats (2, 2) sunk in the ground. In front of the first press are two, in front of the second only one; a cistern of which the curb (3) is indicated on the plan, here takes the place of the other vat. The cistern could be filled also from the first press by means of a lead pipe under the floor. The round vats were for the pure juice of the first pressing. Into the other was conducted the product of the second pressing; the remains of the grapes, after the juice had ceased to flow, were drenched with water and again subjected to pressure.
In Pliny's "Natural History" (XIV. xxi. 136) we read that in Campania the best wine underwent fermentation in the open air, exposed to sun, rain, and wind. This villa supplies an interesting confirmation of the statement; the round fermentation vats fill a large court (R), the walls of which are pierced with openings in order to give readier access to the wind. Along one side runs a channel of masonry about three feet above the ground (1), protected by a narrow roof; thence the grape juice was distributed through lead pipes to the vats. During the vintage season, the inner end of the channel was connected with the press room by means of a temporary pipe or channel entering the wall above the cistern (P, 3).
The surface of this court is higher than that of the rest of the building; instead of excavating in order to set the large earthen vats in the ground, the proprietor filled in with earth around them. In one corner is a lead kettle (3) with a place for building a fire underneath; perhaps wine was heated in it. The vats in the court seem not to have been used exclusively for wine. In one were found remains of wheat, in another of millet. Other vats stood in the passageway on the side of the court (Q, 1).
Three of the small rooms toward the rear were sleeping rooms (V-V). In another (X) was found a hand mill. At the end of 365 the passageway was a double room containing the appliances for making oil, a press (in Y) and a crusher (in Z). The press was like the wine press described above, only much smaller, with a raised floor (1), a standard for the press beam (2), a pit for bracing the standard of the press beam (3), two posts at the ends of the windlass (4, 4), a pit from which a crosspiece connecting these posts could be reached, and a vat (6) at one side for receiving the oil. This vat, for some reason not understood, was divided into two parts by a partition in the middle.
The olive crusher, trapetum, now in the Museum at Pompeii mentioned above, is shown in the accompanying illustration (Fig. 186). It was designed to separate the pulp of the olives from the stones, which were thought to impair the flavor of the oil. It consists of a deep circular basin of lava, so hollowed out as to leave in the centre a strong standard of the stone, miliarium. In the top of this standard was set an iron pin, on which was fitted a revolving wooden crosspiece (shown in Fig. 186, restored). This carried two wheels of lava, having the shape of half a lens, which travelled in the basin. The wheels were carefully balanced so that they would not press against the side of the basin and crush the stones of the olives. 366
In the long room S remains of bean straw and parts of a wagon were found. South of it is the threshing floor (T), the surface of which is raised above the ground and covered with Signia pavement. The water that fell upon the threshing floor was conducted to a small open cistern (U).
For at least a part of the year the proprietor of the villa probably lived in it. So elaborate a bath would not have been built for the use of slaves; and in the second story was a modest but comfortable series of apartments (over V, W, X, and part of Q), apparently designed for the master's use, as was also the dining room (N) with K and L.
Fig. 187.—Silver patera with a representation of the city of Alexandria in high relief. From the Boscoreale treasure.
In a place where such a find would least have been anticipated—the cistern in the room of the wine presses—was made a remarkable discovery of treasure. Here a man had taken refuge, and with his skeleton were found about a thousand gold coins, four gold bracelets, ear-rings, a gold chain, and the beautiful collection of silver ware (p. 380) afterwards presented by Baron Rothschild to the Louvre. 367
Much less large furniture has been found at Pompeii than is ordinarily supposed. In not a single sleeping room has a bed been preserved; and in only one of all the dining rooms have sufficient remains of the dining couches been found to make it possible to reconstruct them. Beds, couches, chairs, and tables were ordinarily of wood, which crumbled away, leaving slight traces. Reference has been made elsewhere to the marble tables standing in the atrium, and occasionally in other parts of the house. Tables of bronze are infrequently met with, while bronze chairs are almost as rare as bronze couches.
Wood was not a suitable material for many classes of smaller articles, and these, made of bronze, clay, glass, or stone, are 368 found in great numbers. Such are the lamps, the bronze lamp stands, the kitchen utensils, the table furnishings, and the toilet articles of bronze, ivory, or bone.
The wooden frame and end board of one of the dining couches just mentioned was completely charred, but the form was clearly indicated, and the woodwork has been restored (Fig. 188). The couch is now in the Naples Museum, as are also the other articles of furniture illustrated in this chapter.
The half figures on the front of the end board, shown more plainly in the detail at the left of the illustration, were cast; the rest of the mounting was repoussé work. The bronze on the side toward the table was inlaid with silver. The end boards were placed at the head of the upper couch and the foot of the lower one (p. 263); the middle couch did not have a raised end. The mattress rested on straps stretched across the frame. The dining room in which the couches were found adjoins the tablinum of a house in the seventh Region (VII. ii. 18).
The carved marble supports of a gartibulum are shown in Fig. 121; a complete table of a plainer type is seen in Plate VII. An example of a round marble table, found in 1827 in a house near the Forum, is presented in Fig. 189. The three legs are carved to represent those of lions, a lion's head being placed at the top of each. A table of similar design was found in the peristyle of the house of the Vettii, with traces of yellow color on the manes of the lions (p. 326). 369
Among the best examples of ornamental carving is the marble table leg in the form of a sphinx, found in the second peristyle of the house of the Faun (Fig. 190). Effective also is the bold carving of the gartibulum in the north atrium of the house of Siricus (VII. i. 25).
Small tables or stands of bronze supported by three slender legs were called tripods. The top was flat, but not infrequently surrounded by a deep rim, making a convenient receptacle for light objects. The rim of the example shown in Fig. 191 is ornamented with festoons and bucrania, while the upper parts of the legs are modelled to represent winged sphinxes. This stand was not found in the temple of Isis, as is often stated, but probably in Herculaneum.
The bisellium, the 'seat of double width,' was a chair of simple design without a back, used in the Theatre and Amphitheatre by members of the city council and others upon whom the "honor of the bisellium" had been conferred. The remains of one with bronze mountings have been restored. The restoration, however, does not seem to be correct in all particulars, and instead of presenting it we may refer the 370 reader to the somewhat conventional bisellium carved on the tomb of Calventius Quietus (Fig. 242).
The lamps are found in a great variety of forms. The essential parts are the body, containing the oil, which was poured in through an opening in the top, and the nozzle with a hole for the wick (Fig. 192). Hand lamps were usually provided with a handle, hanging lamps with projections containing holes through which the chains could be passed.
The opening for the admission of oil was often closed by an ornamental cover (Figs. 195, 196). In front of it, near the base of the nozzle, was frequently a much smaller orifice through which a large needle could be inserted to pick up the wick when it had burned out and sunk back into the oil, and air could be admitted when the cover was closed.
The material of the lamps was clay or bronze. The bronze lamps were more costly and ordinarily more freely ornamented. Those of clay were left unglazed, or covered with a red glazing like that of the Arretian ware; lamps with a greenish glaze are occasionally found.
The light furnished by the wicks was dim and smoky. A more brilliant light was obtained by increasing the number of 371 nozzles. Lamps with two nozzles are often found. These were sometimes placed at one end, the handle being at the other; sometimes in the case of hanging lamps, at opposite ends, as in the example shown in Fig. 193.
Lamps with several nozzles are not infrequently met with. The shape is often circular, as in two of the examples presented in Fig. 194, one of which had six wicks, the other twelve. Sometimes a more ornamental form was adopted. Lamps having the shape of a boat are not uncommon; the one represented in Fig. 194 was provided with nozzles for fourteen wicks.
The hanging lamps were sometimes made with a single nozzle, as the curious one having the shape of a mask shown in Fig. 197, at the left; sometimes with two nozzles (Fig. 193). Bronze hanging lamps with three arms, each of which contained a place for a wick, are occasionally found; an example is given in Fig. 197, at the right. Still more elaborate are those with a large number of nozzles, as the one represented in the same illustration, which had nine wicks.
The name of the maker is often stamped upon the bottom of the lamp, sometimes in the nominative case, as Pulcher, in the example given in Fig. 192, more often in the genitive and in an abbreviated form.
The variety displayed in the ornamentation of lamps was as great as that manifested in the forms. Ornament was applied to all parts,—the body, the handle, the cover, and even the nozzle. The covers of the two bronze lamps shown in Fig. 196 are adorned with figures. On one is a Cupid struggling with a 372 goose. The chain attached to the right hand of the figure on the other is fastened to a hooked needle for pulling out the wick.
The object of which we give a representation in Fig. 198, often erroneously classed as a lamp, is a nursing bottle, biberon. The material is clay, and the figure of a gladiator is stamped on it, symbolizing the hope that the infant will develop strength and vigor. On some bottles of this kind the figure of a thriving child is seen, on others a mother suckling a child.
Three kinds of supports for lamps may be distinguished according to their size: lamp standards, which stood on the floor and ranged in height from 2½ to 5 feet; lamp holders, not far from 20 inches high, which were placed on tables; and small lamp stands, also used on the table. The general term candelabrum was originally applied to candle holders containing several candles (candelae). Such candle holders have been found in Etruscan graves, but the candelabra met with at Pompeii were all designed to carry lamps.
The lamp standards, of bronze, are often of graceful proportions and ornamented in good taste. The feet are modelled to represent the claws (Fig. 199) or hoofs of animals. The slender 373 shaft rises sometimes directly from the union of the three legs at the centre, sometimes from a round, ornamented disk resting on the legs. Above the shaft is usually an ornamental form, a sphinx, as in our illustration, a head, or a vase-like capital sustaining the round flat top on which the lamp rested. Occasionally the shaft is replaced by a conventional plant form.
Adjustable standards also occur; the upper part slides up and down in the hollow shaft of the lower part, so that the height can be changed at will.
The bronze lamp holders were sometimes designed to support a single lamp (Fig. 200). Frequently the main part divides into two branches, each of which sustains a small round disk for a lamp; often the arms or branches were designed to carry hanging lamps. The example shown in Fig. 201 is from the villa of Diomedes.
In the lamp holders conventional plant forms are more frequently met with than in the standards. The trunk of a tree with spreading branches is especially common (Fig. 202).
The lamp stands, which resemble diminutive bronze tables, are found in a pleasing variety of form and ornament. The top is sometimes a round disk resting on a single leg supported by three feet; sometimes, as in the example presented in Fig. 203, the legs are carried to the top, and the intervening spaces are utilized for ornamentation. 375 The lamp seen in this illustration is the same as that shown more clearly in Fig. 196, at the right.
Kitchen utensils of bronze and red earthenware have been found in great quantity; table furnishings more rarely. A group of typical examples is presented in Fig. 204. The forms are so similar to those of the utensils found in modern households that few words of explanation are needed.
Fig. 204.—Bronze utensils.
View larger image
The pastry mould (s) is of good size and neatly finished, and must have left a clear impression. Besides the two types of table spoons illustrated here (n, v) a third is represented by examples found at Pompeii, the cochlear, which had a bowl at one 376 end and ran out into a point at the other. The point was used in picking shellfish out of their shells, the bowl in eating eggs.
The two long ladles were used in dipping wine out of the mixing bowl into the cups. The ancients ordinarily drank their wine mingled with water; for mixing the liquids they used a large bowl of earthenware or metal, which was often richly ornamented. The mixing bowl presented in Fig. 205 was found in a house on Abbondanza Street, near the entrance of the building of Eumachia. It is in part inlaid with silver, and nearly twenty-two inches high.
Hot water was often preferred for mixing with wine, and small heaters of ornamental design were sometimes used upon the table. The ancient name for these utensils is authepsa, 'self-cooker'; the appropriateness of it is apparent from an example found at Pompeii, in which the coals of fire were entirely concealed from view.
This heater (Fig. 206) has the form of an urn. In the middle is a tube, the bottom of which is closed by a diminutive grate; the arrangement is shown in the section at the right. In this tube the coals were placed, and when the water in the urn was hot, it could be drawn off by means of a faucet at the side. Back of the faucet is a small vertical vent tube.
In some cases the appearance of a heater was more suggestive of its purpose. One (Fig. 207) has the form of an ordinary brazier, the water being heated in the hollow space about the fire pan. In another instance (Fig. 208) the brazier is ornamented with towers and battlements like those of a diminutive fortress; the faucet can be seen in our illustration, on the left side.
An interesting group of toilet appliances for the bath was found in the Baths north of the Forum (Fig. 209). Hanging from a ring were an unguent flask, four scrapers (strigiles), and a shallow saucer with a handle in which the unguent was poured out when it was to be applied. One of the scrapers is repeated in a side view at the right, and both side and front views of the unguent saucer are given. 378
Small articles of toilet are discovered in a good state of preservation. The forms in most cases do not differ greatly from those to which we are accustomed.
The fine comb seen in Fig. 210 a is of bone; the two coarse combs (Fig. 210 b and Fig. 214 d) are of bronze.
Fig. 214.—Group of toilet articles.
The ends of the hairpins were often ornamented with figures. The specimens shown in Fig. 211 are of ivory. The designs in which female figures appear are in keeping with the use, but the ornamentation for the most part seems excessive.
The toilet boxes, of glass or ivory, were used for a variety of purposes. Of those presented in our illustrations, one (Fig. 211, at the right) probably contained perfumed oil. The round 379 glass box (Fig. 212) was used for cosmetics, as was also the ivory box seen in Fig. 214, the outside of which is carved in low relief.
The mirrors were of metal, highly polished. The one seen in Fig. 214 was designed to stand upon a dressing case; the other three (Fig. 213) are hand mirrors. The frame of the rectangular mirror is modern; whether or not this had a handle is not clear.
Jewellery of gold and silver and other small objects wrought in the precious metals have now and then been found. A characteristic example of the jewellery is the large gold arm band in the form of a serpent, with eyes of rubies, found in the house of the Faun (Fig. 215). It weighs twenty-two ounces; to judge from the size, it must have been intended for the upper arm.
Much more important, from the aesthetic point of view, are the cups and other articles of silver designed for table use. As these do not differ essentially from objects of the same class found elsewhere, we should not be warranted in entering upon an extended discussion of them here; a few examples must suffice.
Of the three cups with repoussé reliefs shown in Fig. 216, one 380 (a) has a simple but effective decoration of leaves. Another (c) presents the apotheosis of Homer; the bard is being carried to heaven by an eagle, while on either side (detail in b) sits an allegorical figure—the Iliad with helmet, shield, and spear, and the Odyssey with a sailor's cap and a steering paddle. On the third (d, detail in Fig. 216 e) we see a male and a female Centaur, with Bacchic emblems, conversing with Cupids posed gracefully on their backs. This last is one of a pair found in 1835.
The Boscoreale treasure contained a hundred and three specimens of silver ware, undoubtedly the collection of an amateur.
Of the purely decorative pieces the finest is the shallow bowl (phiala, patera) 8⅞ inches in diameter, with an allegorical representation of the city of Alexandria, in high relief (Fig. 187). The city is personified as a female divinity—alert, powerful, majestic. Upon her head are the spoils of an elephant; the trunk and tusks project above, while the huge ears, hanging down behind, are skilfully adjusted to the outline of the goddess's neck.
In the fold of her chiton, held by the right hand, and in the cornucopia resting on the left arm, are fruits of Egypt, among which grapes and pomegranates are easily distinguished. A representation of Helios appears in low relief upon the upper part of the cornucopia; below is the eagle, emblem of the Ptolemies. A lion is mounted on the right shoulder of the goddess; in her right hand she holds an asp, sacred to Isis, with head uplifted as in the representation described by Apuleius (Met. XI. 4); facing the asp is a female panther.
Around the group in low relief are the attributes (not all distinguishable in our illustration) of various divinities—the bow and quiver of Artemis, the club of Hercules, the sistrum of Isis, the forceps of Vulcan, the serpent of Aesculapius entwined around a staff, the sword of Mars in a scabbard, and the lyre of 381 Apollo. A dolphin in the midst of waves (under the right hand) symbolizes the maritime relations of the city.
The central medallion (emblema) was made separately and attached to the bottom of the patera. Between it and the outer edge of the bowl is a band of pleasing ornament, composed of sprays of myrtle and laurel. The surface of the medallion was all gilded except the undraped portions of the goddess. The ears of the goddess were pierced for ear-rings, which were not found. The date of the patera can not be determined; it is perhaps as old as the reign of Augustus.
Among the cups, sixteen in number, two are especially noteworthy. They are four inches high, and form a pair; they are ornamented with skeletons in high relief, so grouped that each cup presents four scenes satirizing human life and its interpretation in poetry and philosophy.
Two scenes from one of the cups are shown in Fig. 217. At the left the Stoic Zeno appears, standing stiffly with his philosopher's staff in his left hand, his wallet hanging from his neck; with right hand extended he points the index finger in indignation and scorn at Epicurus, who, paying no heed to him, is taking a piece of a huge cake lying on the top of a small round table. Beside Epicurus an eager pig with snout and left foreleg uplifted is demanding a share. Over the cake is the inscription: τὸ τέλος ἡδονή, 'the end of life is pleasure.' The letters of the inscription, as of the names of the philosophers, are too small to be shown distinctly in our illustration.
No names are given with the figures in the other scene; a kind of genre picture is presented. The skeleton in the middle is placing a wreath of flowers upon his head. The one at the right holds in one hand a skull which he examines contemplatively—we are reminded of Hamlet in the scene with the gravedigger; in the other hand (not seen in the illustration) is a wreath of flowers. The third of the principal figures holds in his right hand a bag exceedingly heavy, as indicated by the adjustment of the bones of the right arm and leg; over the bag is the word φθόνοι, 'envyings.' The object in the left hand is so light that its weight is not felt; it is a butterfly, held by the wings, and above it is inscribed ψύχιον, a diminutive of ψυχή, 382 'soul'; we shall later find another instance of the representation of a disembodied soul as a butterfly (p. 398). It was perhaps the design of the artist to represent the figure as holding the bag behind him while presenting the butterfly to the one who is putting on the wreath.
On either side of the middle figure are two others less than half as large. One, under the butterfly, is playing the lyre; over his head is the word τέρψις, 'pleasure.' The second is clapping his hands, and above him is a Greek inscription which gives the thought of the whole design: 'So long as you live take your full share' of life, 'for the morrow is uncertain.'
Both cups had evidently long been in use; there are still some traces of gilding, which, however, seems not to have been applied to the skeletons. While the explanatory inscriptions are in Greek, a Latin name, Gavia, is inscribed on the under side of the second cup, in the same kind of letters as the record of weight (p. 508). The Gavii were a family of some prominence at Pompeii; we are perhaps warranted in concluding that the cups were made by a Greek for this Pompeian lady, and that afterward they came into the possession of another lady, Maxima, who formed the collection. 383
In antiquity there was no such distinction between trades and professions as exists to-day. In the Early Empire all activity outside the field of public service, civil and military, or the management of estates, was considered beneath the dignity of a Roman; the practice of law, which had received its impulse largely from the obligation of patrons to protect their clients, was included among public duties. The ordinary work of life was left mainly to slaves and freedmen. Not only the trades, as we understand the term, but architecture and engineering,—in antiquity two branches of one occupation,—the practice of medicine, and teaching, were looked upon as menial. A Roman of literary or practical bent might manifest an interest in such vocations, but it was considered hardly respectable actively to engage in them.
This attitude of mind, especially toward the higher occupations, is only explicable in the light of the social conditions then existing. Men who kept slaves of every degree of intelligence and training, and were at all times accustomed to command, were not disposed to hold themselves in readiness to do another's bidding, excepting in the service of the State alone; and work committed to slaves and freedmen naturally came to be considered unworthy the employment of a gentleman. The freemen of the same craft were often united in guilds or corporations, for the administration of certain matters of mutual interest; but nothing is known in regard to the activities of such organizations at Pompeii. 384
In a city as large as Pompeii, all the occupations corresponding to the needs of daily life must have been represented. The remains of the appliances and products of labor are of the most varied character, sometimes far from satisfactory, raising more difficulties than they solve; yet often revealing at a glance the ancient methods of work, and casting light upon the economic background of Greek and Roman culture. The excavations have brought before us three sources of information, inscriptions, paintings, and the remains of buildings or rooms used as workshops.
The inscriptions refer to more than a score of occupations; from farming to innkeeping, and from hairdressing to goldworking. Most of them are election notices, in which the members of a craft unite, or are exhorted to unite, in recommending a certain candidate for a municipal office. These are painted in red letters on the walls along the streets, and are much alike, though some are fuller than others. The simplest form contains only three words, as Trebium aed. tonsores,—'The barbers recommend Trebius for the office of aedile.' The more elaborate recommendations may be illustrated by the following: Verum aed. o. v. f. (for aedilem, oro vos, facite), unguentari, facite, rog[o],—'Do make Verus aedile, perfumers, elect him, I beg of you.' The whole craft of goldsmiths favored the election of Pansa: C. Cuspium Pansam aed. aurifices universi rog[ant],—'All the goldsmiths recommend Gaius Cuspius Pansa for the aedileship.'
The recommendations of the fruit sellers are particularly conspicuous. On one occasion they joined with a prominent individual in the support of a ticket: M. Holconium Priscum II vir. i. d. pomari universi cum Helvio Vestale rog.,—'All the fruit sellers, together with Helvius Vestalis, urge the election of M. Holconius Priscus as duumvir with judiciary authority.' There may have been some special reason why the fruiterers wished to keep in favor with the city authorities, and so took an active part in the elections; the dealers in garlic (aliari) also had a candidate.
Among the representatives of other employments that joined in the support of candidates were the dyers (offectores), cloak-cutters 385 (sagarii), pack-carriers (saccarii), mule-drivers (muliones), and fishermen (piscicapi). The inscription in which reference is made to the gig-drivers is mentioned elsewhere (p. 243).
The paintings in which we see work going on are numerous. By far the most pleasing are those in which the workmen are Cupids, busying themselves with the affairs of men. Several pictures of this kind have already been described (pp. 97, 332-337); but we ought to add to those mentioned two scenes from Herculaneum, often reproduced, in which Cupids are represented as carpenters and as shoemakers.
Among the more important paintings in which the figures of men appear are those which picture the life of an inn and those that present the processes of cleaning cloth; both groups are reserved for later discussion. In a house in the ninth Region (IX. v. 9) a stuccoer is pictured at work putting the finishing touches on a wall with a smoothing tool, and in the house of the Surgeon an artist is seen painting a herm (Fig. 133).
In only a few instances are the remains of workshops sufficiently characteristic to indicate their purpose. Among the most impressive, to the visitor at Pompeii, are the ruins of the bakeries, with their large millstones (Fig. 218). Equally important, also, are the remains of the fulleries, and of a large tannery, which, as well as those of the inns and winerooms, will be discussed in separate chapters.
A few out of the hundreds of shops opening on the streets contain remains of the articles exposed for sale. The discovery of charred nuts, fruits, and loaves of bread in the market stalls north of the Macellum has already been noted (p. 96). We know the use of other shops from the remains of paints found in them. The arrangements of such places of business were discussed in connection with those of the Pompeian house.
Several establishments which contain large lead kettles set in masonry, with a place for a fire underneath, have been identified as dyehouses. In the case of one on Stabian Street (VII. ii. 11), the identification seems complete. Nine such kettles stood in the peristyle, which has a direct connection with the street; in a closet were numerous bottles, part of which contained coloring materials. There was formerly a painting on the 386 wall of the entrance, representing a man carrying on a pole an object which had the appearance of a garment fresh from the dye.
On the opposite side of the street is the election notice: Postumium Proculum aed. offectores rog[ant],—'The dyers request the election of Postumius Proculus as aedile.' The house on which this inscription is painted (IX. iii. 2) contained three kettles similar to those already mentioned; the dyers of both establishments may have united in supporting the candidacy of Proculus.
A potter's workshop, with two ovens, is located outside the Herculaneum Gate, where the streets divide opposite the villa of Diomedes (Plan V, 29-30). The ovens, which are not large, have an upper division, in which were placed the vessels to be baked, and a firebox underneath, the floor above being pierced with holes to let the heat through. The vault of one of the ovens was constructed of parallel rows of jars fitted into one another.
There was a shoemaker's shop on the northwest corner of 387 Insula VII. i opening upon two streets. It is connected with the entrance hall of the adjoining house (No. 40), and near the middle is a small stone table. The identification rests upon the discovery here of certain tools, particularly leather-cutters' knives with a crescent-shaped blade; there was also an inscription on the wall, making record of some repairing done 'July 14, with a sharp-cornered knife (scalpro angulato) and an awl.' Apparently the porter of the house (ostiarius) was at the same time a cobbler, as frequently in Italy to-day.
On the same wall is another scribbling: M. Nonius Campanus mil. coh. VIIII pr. 𐆛 Caesi,—'Marcus Nonius Campanus, a soldier of the ninth praetorian cohort, of the century led by Caesius.' The name of the centurion, M. Caesius Blandus, is scratched twice on the columns of the peristyle in the same house. Captain and private may have come from Rome in the escort of an emperor. Perhaps the centurion was quartered in this house; the soldier, waiting to have his shoes mended, scratched his name upon the wall.
The better houses were so freely adorned with statuettes and other ornaments of marble that there must have been marble-workers in the city. The workshop of one was found, in 1798, on Stabian Street, near the Large Theatre. It contained various pieces of carving, as herms, table feet, and table tops; there was also an unfinished mortar, together with a slab of marble partly sawed, the saw being left in the cut.
Signs of shops are not often seen in Pompeii, but two or three may be mentioned. In the wall of a shop-front in the block containing the Baths north of the Forum, there is a terra cotta plaque with a goat in relief, to indicate the place of a milk dealer; and not far away we find a sign of a wineshop, a tufa relief of two men carrying between them an amphora hung from a pole supported on their shoulders.
Not all such reliefs, however, are signs of shops. Near the Porta Marina (at the northwest corner of Insula VII. xv), a tufa block may be seen near the top of the wall, showing a mason's tools in relief; above it is the inscription, Diogenes structor, 'Diogenes the mason.' This is not a sign—the inscription can hardly be read from below; it is, moreover, on the 388 outside of a garden wall, with no house or shop entrance near it. It is rather a workman's signature; Diogenes had built the wall, and wished to leave a record of his skill.
In antiquity the miller and the baker were one person. We rarely find in Pompeii—and then only in private houses—an oven without mills under the same roof. There were many bakeries in the city. The portion already excavated contains more than twenty, each of them with three or four mills; bread was furnished, therefore, by a number of small bakeries rather than by a few large establishments.
Fig. 219.—Plan of a bakery.
View larger image
The appearance of a bakery to-day, with its mills and its large oven, may be seen in Fig. 218. The arrangements can more easily be explained, however, from the plan of another establishment, one of the largest, in the third Insula of Region VI. (Fig. 219). Entering from the street through the fauces, we find ourselves in an atrium of simple form (8) with rooms on either side; the tablinum (14) is here merely an entrance to the mill room (15). In the corner of the atrium is a stairway leading to a second story, which was particularly needed here, because the living rooms at the rear were required for the bakery; the floor of the second story was supported by brick pillars at the corners of the impluvium, joined by flat arches.
The four mills (b), were turned by animals; the floor around them is paved with basalt flags like those used for the streets. In the same room, at d, were the remains of a low table; at c there is a cistern curb, with a large earthen vessel for holding water on either side, while the wall above was ornamented with a painting representing Vesta, the patron goddess 389 of bakers, between the two Lares. On one side of the oven (17) is the kneading room (18), on the other the storeroom (19). The room at the left (16) is the stall for the donkeys that turned the mills.
The mills of Pompeii, with slight variations, are all of one type; if there were watermills on the Sarno, no trace of them has been found. The millstones are of lava (p. 15). The lower stone, meta, has the shape of a cone resting on the end of a cylinder, but the cylindrical part is in most cases partially concealed by a thick hoop of masonry, the top of which was formed into a trough to receive the flour, and was covered with sheet lead (Fig. 220). A square hole, five or six inches across, was cut in the top of the cone, in which was inserted a wooden standard; this supported a vertical iron pivot on which the frame of the upper millstone turned.
The shape of the upper millstone, catillus, may best be seen in Fig. 221. It was like a double funnel, the lower cavity being fitted to the cone of the lower millstone, while that in the upper part answered the purpose of a hopper. The two cavities were connected at the centre by an opening similar to that of an hourglass, which left room for the standard and allowed the grain to run down slowly, when the catillus was turned, to be ground between the two stones. The flour ran out at the base of the 390 cone and fell into the trough, ready to be sifted and made into bread.
The upper millstone was nicely balanced over the lower, the surface of which it touched but lightly; it could not have rested on the under stone with full weight, for in that case the strength of a draft animal would not have sufficed to move it. The stones could be set for finer or coarser grinding by changing the length of the standard.
The arrangement for turning the mill was simple. In shaping the upper millstone, strong shoulders were left in the narrowest part (Fig. 220), on opposite sides. In these square sockets were cut, in which the ends of shafts were inserted and firmly fastened by round bolts passing through the shoulders (Fig. 221). The shafts were tied to the ends of the crossbeam above by curved vertical pieces of wood, or by straps of iron, which were let into grooves in the stone and so made firm. The crosspiece above, which turned on the pivot in the end of the standard, was sometimes of iron, sometimes of wood with an iron socket fitting the pivot. The framework must necessarily have been exceedingly strong. One of the mills at Pompeii (IX. iii. 10) has lately been set up with new woodwork, and grinds very well.
The smaller mills were turned by slaves, the larger by draft animals. Men pushed on the projecting shafts, but animals wore a collar which was attached by a chain or rope to the end of the crosspiece at the top. The links of the chain running to the crossbeam are distinctly shown in a relief in the Vatican Museum (Fig. 222), in which a horse is represented turning a mill. Blinders are over the eyes of the horse, which seems also to be checked up in order to prevent eating. A square hopper rests on the crossbeam, and the miller is bringing a measure of wheat to pour into it. On a shelf in the corner of the room is a lamp. 391
The ovens were not unlike those still in use in many parts of Europe. They were shaped like a low beehive, generally with some kind of a flue in front to make the fire burn inside while they were being heated. The oven in the bakery described above, however, has a special device for saving as much heat as possible (Fig. 223); it is entirely enclosed in a smoke chamber (b), with two openings above (d) for the draft. Fires were kindled in such ovens with wood or charcoal; the latter was probably used here. When the proper temperature for baking had been reached, the ashes were raked out (in Fig. 223, e is an ashpit), the loaves of bread shoved in, and the mouth closed to retain the heat. A receptacle for water stands in front of our oven (f), a convenience for moistening the surface of the loaves while baking. The front of the oven (at c) was connected with the rooms on either side, as may be more clearly seen by referring to Fig. 219. In the kneading room (18), where were found remains of a large table and shelves, the loaves were made ready, and could be passed through one opening to the front of the oven; the hot loaves could be conveniently passed through the other opening into the storeroom (19).
In many establishments a machine was used for kneading; the best example is in a bakery on the north side of Insula xiv in Region VI. Such kneading machines are seen also in ancient representations of the baker's trade, as in the reliefs of the tomb of Eurysaces, near the Porta Maggiore at Rome.
The dough was placed in a round pan of lava a foot and a half or two feet in diameter. In this a vertical shaft revolved, to the lower part of which two or three wooden arms were attached (three in Fig. 224); the one at the bottom was strengthened by an iron crosspiece on the under side, the projecting centre of which turned in a socket below. The side of the pan was pierced in two or three places for the insertion of wooden teeth, so placed as not to interfere with the revolution of the arms. As the shaft was turned, the dough was pushed forward by the arms and held back by the teeth, being thus thoroughly kneaded. Modern kneading machines are constructed on the same principle, but have two sets of teeth on horizontal cylinders revolving toward each other. 393
The work of the ancient fuller was twofold, to make ready for use the cloth fresh from the loom, and to cleanse garments that had been worn. As the garments used by the Romans were mainly of wool, and needed skilful manipulation to retain their size and shape, they were ordinarily sent out of the house to be cleansed; in consequence the trade of the fuller was relatively important. In the part of Pompeii thus far excavated we find two large fulleries and one smaller establishment that can be identified with certainty; and there were doubtless many laundries, with less ample facilities, the purpose of which is not clearly indicated by the remains. The following account of the processes employed relates exclusively to woollen fabrics.
At the time of the destruction of Pompeii, soap, a Gallic invention, was only beginning to come into use; the commonest substitute was fuller's earth, creta fullonia, a kind of alkaline marl. For raising the nap, teasel does not seem to have been used, as with us, but a species of thorn (spina fullonia) the spines of which were mounted in a carding tool resembling a brush (aena); the skin of a hedgehog also was sometimes utilized for this purpose.
The fulling of new cloth involved seven or eight distinct processes,—washing with fuller's earth, or other cleansing agents, to remove the oily matter; beating and stretching, to make the surface even; washing and drying a second time, for cleaning and shrinking; combing with a carding tool to raise the nap, brushing in order to make it ready for clipping, and shearing to reduce the nap to proper length; then, particularly in the case of the white woollens so commonly used, bleaching with sulphur fumes; and finally, smoothing in a large press. The process of cleaning soiled garments was more simple. 394
A series of paintings in the largest of the fulleries, on the west side of Mercury Street, picture several of these processes with great clearness. They were on a large pillar at the front end of the peristyle, from which they were removed to the Museum at Naples; they supplement admirably the scenes of the Cupids' fullery in the house of the Vettii, mentioned in a previous chapter (p. 335).
In the first picture (Fig. 225), the clothes are being washed. They are in four round treading vats, which stand in niches formed by a low wall. One of the workmen is still treading his allotment, steadying himself by resting his arms on the walls of the niche at both sides; the other three have finished treading and are standing on the bottom of their tubs, rinsing the garments before wringing them out.
The next scene (Fig. 226) is threefold. In the foreground at the left sits a richly dressed lady, to whom a girl brings a garment that has been cleaned; that the woman is not one of those employed in the fullery is evident 395 from her elaborate headdress, necklace, and bracelets. In the background a workman dressed in a tunic is carding a large piece of cloth. Near by another workman carries on his shoulders a bleaching frame, over which garments were spread to receive the fumes of the sulphur; he holds in his left hand the pot in which the brimstone was burned. An owl, symbol of Minerva, who was worshipped by fullers as their patron divinity, sits upon the frame; and the man underneath has on his head a wreath of leaves from the olive tree, which was sacred to the same goddess.
In the third picture a young man hands a garment to a girl; at the right a woman is cleaning a carding tool. The fourth (Fig. 227) gives an excellent representation of a fuller's press, worked by two upright screws; it is so much like our modern presses as to need no explanation. The festoons with which it is adorned are of olive leaves.
With these pictures before us, it will be easy to understand the plan of the fullery on the west side of Stabian Street, opposite the house of Caecilius Jucundus (Fig. 228). It was excavated in 1875. The building was not originally designed for a fuller's establishment, but for a private house, and part of the rooms were retained for domestic use, as the well preserved kitchen (d), and some of the other rooms opening off from the atrium (b). The furniture of the atrium—a table in front of the impluvium, with a pedestal for a fountain figure, and a marble basin to receive the jet—is like that of the house the interior of which is shown in Plate VII.
The fuller's appliances are found in the shop next to the entrance (21), and in the peristyle (q). In the former are the 396 foundations of three treading vats, and on the opposite side an oblong depression in which the press was placed. The peristyle contains three large basins of masonry for soaking and rinsing the clothes. A jet of water fell into the one next the rear wall (3), from which it ran into the other two through holes in the sides. Along the wall is a raised walk (4) on a level with the top of the basins, into which the workmen descended by means of steps. At the ends of this walk are places for seven treading vats, five in one group, two in the other. The wall above is decorated with a long sketchy painting, in which the fullers are seen engaged in the celebration of a festival,—doubtless the Quinquatrus, the feast of Minerva; the celebration is followed by a scene before a magistrate, resulting from a fight engaged in by the celebrants. A mass of fuller's earth was found in the passage at m.
From the receipts found in the house of Caecilius Jucundus, it appears that this thrifty Pompeian, in the years 56-60 A.D., rented a fullery belonging to the city. In view of the nearness of this establishment to his house, it seems likely that he was in charge of the business here. At the time of the eruption, however, the enterprise was in the hands of Marcus Vesonius Primus, who lived in the house next door (No. 20), where a portrait herm, dedicated to him by his cashier (arcarius), stands in the atrium; the house is often called the house of Orpheus, from the large painting on the rear wall of the garden.
To judge from the election notices painted on the front of the fullery and on the houses at either side, Primus must have taken an active interest in local politics. He was an ardent partisan, as witness this inscription: Cn. Helvium aed. d. r. p. (for aedilem, dignum re publica) Vesonius Primus rogat,—'Vesonius Primus urges the election of Gnaeus Helvius as aedile, a man 397 worthy of public office.' The endorsement of Gavius Rufus is even stronger: C. Gavium Rufum II vir. o. v. f. utilem r. p. (duumvirum, oro vos, facite, utilem rei publicae) Vesonius Primus rogat,—'Vesonius Primus requests the election of Gaius Gavius Rufus as duumvir, a man serviceable to public interests; do elect him, I beg of you.'
In one of the shorter recommendations, Primus names his occupation: L. Ceium Secundum II v. i. d. Primus fullo ro[gat],—'Primus the fuller asks the election of Lucius Ceius Secundus as duumvir with judiciary authority.' On one occasion he united with his employees in favoring a candidate for the aedileship: Cn. Helvium Sabinum aed. Primus cum suis fac[it],—'Primus and his household are working for the election of Gnaeus Helvius Sabinus as aedile.'
The fullery on Mercury Street, like that just described, had been made over from a private house, built in the pre-Roman period. Among other changes, the columns of the large peristyle were replaced by massive pillars of masonry supporting a gallery above for the drying of clothes. At the rear are four square basins, the two larger of which are more than seven feet across; the water passed from one to the other as in the basins of Primus's fullery. In the corner near the last basin are six rectangular niches for treading vats, separated by a low wall, the purpose of which is clear from Fig. 225. There is a vaulted room at the right of the peristyle, with a cistern curb, a large basin of masonry, and a stone table. Here a substance was found which the excavators supposed to be soap, but which was doubtless fuller's earth, like that found in the establishment on Stabian Street.
There were naturally fewer tanners than fullers; and so far only one tannery has been discovered. That is a large establishment, however, filling almost an entire block near the Stabian Gate (Ins. I. v), excavated in 1873. Like the two larger fulleries, it occupied a building designed for a house. The appliances of the craft are found in only a small part of the structure; they relate to two processes,—the preparation of the fluids used for tanning, and the manipulation of the hides. 398
The mixture for the tan vats was prepared in a tank under a colonnade opening on the garden. It could be drawn off through two holes in the side into a smaller basin below, or conducted by means of a gutter running along the wall to three large earthen vessels.
The vats, fifteen in number, are in a room formerly used as an atrium (Fig. 229). They are about 5 feet in diameter, and from 4 to about 5½ feet deep; they were built of masonry, and plastered; two holes were made in the side of each to serve as a convenience in climbing in and out. Between adjacent pairs of pits was an oblong basin about twenty inches deep, lined with wood. On either side of this was a large earthen jar, sunk in the earth; a small, round hole between the basin and each jar seems to mark the place of a pipe tile, connected with the former at the bottom. The large pits were for ordinary tanning; the oblong basins were probably used in making fine leather (aluta), a process in which alum was the principal agent, the chemicals being placed in the jars on either side, and supplied to the basins through the pipe tiles.
In the same building four tools were found, similar to those used by tanners at the present time. One was a knife, of bronze, with a charred wooden handle on the back of the blade; two were scraping irons, with a handle on each end; and there was another iron tool with a crescent-shaped blade.
The garden on which the colonnade opened contains an open-air triclinium. The table was ornamented with a mosaic top, now in the Naples Museum, with a characteristic design (Fig. 230). The principal motive is a skull; below is a butterfly on the rim of a wheel, symbols of the fluttering of the disembodied 399 soul and of the flight of time. On the right and on the left are the spoils that short-lived man leaves behind him,—here a wanderer's staff, a wallet, and a beggar's tattered robe; there, a sceptre, with a mantle of royal purple. Over all is a level, with the plumb line hanging straight, symbolic of Fate, that sooner or later equalizes the lots of all mankind. The thought of the tanner, or of the earlier proprietor of the house, is easy to divine: Mors aurem vellens, Vivite, ait, venio,
'Death plucks my ear, and says,
"Live!" for I come.'
Wineshops, cauponae, were numerous in Pompeii, and the remains are easily identified. Like the Italian osterie, they were at the same time eating houses, but the arrangements for drinking were the more conspicuous, and give character to the ruins. The Roman inn, hospitium, or simply caupona, was a wineshop with accommodations for the night, provision being also made in most cases for the care of animals. Keepers of inns, caupones, are frequently mentioned in Pompeian inscriptions, sometimes in election notices, more often in graffiti.
Several inns have been identified from signs and from scribblings on the walls within. At the entrance of one (west side of Ins. IX. vii) is painted Hospitium Hygini Firmi, 'Inn of Hyginius Firmus.' The front of the 'Elephant Inn' (west side of Ins. VII. i) was ornamented with the painting of an elephant in the coils of a serpent, defended by a pygmy. The name of the proprietor is perhaps given at the side: Sittius restituit elephantu[m], 'Sittius restored the elephant,' referring no doubt to the repainting of the sign. Evidently the owner, whether Sittius or some one else, was anxious to rent the premises; below the elephant is the painted notice: Hospitium hic locatur—triclinium cum tribus lectis,—'Inn to let. Triclinium with three couches.' The rest of the inscription is illegible.
The plan of another inn in the same region (west side of VII. xii) well illustrates the arrangements of these hostelries (Fig. 231). The main room (a), which probably served as a dining room, is entered directly from the street. At one side is the kitchen (h); six sleeping rooms (b-g) open upon the other sides. But the landlord did not provide merely for the entertainment of guests from out of town; he endeavored to attract local patronage also, by means of a wineshop (n), which opened 401 upon the street and had a separate dining room (o). A short passage (i) led from the main room to the stalls (k), in front of which was a watering trough. The vehicles were probably crowded into the recess at m, or the front of a. The two side rooms (l and p) were closets.
The walls of several of the rooms contain records of the sojourn of guests. C. Valerius Venustus, 'a pretorian of the first cohort, enrolled in the century of Rufus,' scratched his name on the wall of c, to which also an affectionate husband confided his loneliness: 'Here slept Vibius Restitutus all by himself, his heart filled with longings for his Urbana.' Four players, one of them a Martial, passed a night together in the same apartment. In the next room (d) a patriotic citizen of Puteoli left a greeting for his native town: 'Well be it ever with Puteoli, colony of Nero, of the Claudian line; C. Julius Speratus wrote this.' This city, as we learn from Tacitus, received permission from Nero to call itself Colonia Claudia Neronensis. Lucifer and Primigenius, two friends, spent a night in room f, Lucceius Albanus of Abellinum (Avellino) in g.
The arrangement of rooms here is so unlike that of an ordinary house that the building must have been designed at the beginning for a tavern. Sometimes a dwelling was turned into an inn, as in the case of the house of Sallust, which, as we have seen, in the last years of the city must in part at least have been used as a hostelry.
Inns near the gates had a paved entrance for wagons, interrupting the sidewalk. A good example is the inn of Hermes, in the first block on the right as one came into the city by the Stabian Gate (Fig. 232). On either side of the broad entrance (a), are winerooms (b, d). Behind the stairway at the right, which leads from the street to the second story, is a hearth with a water heater. On the wall at the left was formerly a painting with the two Lares and the Genius offering sacrifice; below was the figure of a man pouring wine from an amphora into an earthen hogshead (dolium), and beside it was written Hermes, 402 apparently the name of the proprietor. The wagons stood in the large room at the rear (f), with which the narrow stable (k) is connected; in one corner is a watering trough of masonry. On the ground floor were only three sleeping rooms (e, g, and h), but there were upper rooms at the rear, reached by a flight of stairs in f; these were probably not connected with the upper rooms of the front part, which (over a, b, c, d, e), having a street entrance, may have been rented separately.
The Pompeian inns were doubtless fair representatives of their class in the different Roman cities. Those of Rome must have been numerous, but are rarely mentioned, and innkeepers are generally referred to in terms of disrespect. The ordinary charges seem to have been low, and the accommodations were of a corresponding character. Owing to the universal custom of furnishing private entertainment to all with whom there existed any ground of hospitality, places of public entertainment tended to become the resorts of the vicious.
The wineshop of which the plan is here given (Fig. 233) is on the east side of Mercury Street, at the northwest corner of Ins. VI. x. It was designed not only for the accommodation of guests who would go inside to partake of refreshments, but also for the sale of drinks over the counter to those who might stop a moment in passing. This is evident from the arrangement of the main room (a), which has a long counter in front, with a series of small marble shelves arranged like stairs on one end of it, for the display of cups and glasses; on the other is a place for heating a vessel over a fire. Large jars are set in the counter, in which liquids and eatables could be kept. In the corner of the room, at the right as one enters, a hearth is placed. In view of the provision for heating water, we are safe in calling this a thermopolium, a wineshop which made a specialty of furnishing hot drinks. The passage at the rear of the hearth (c) 403 is connected with a small room (d) and also with the adjoining house, which may have been the residence of the proprietor, or may have been used for lodgings.
The long room with an entrance from the side street (b, now walled up) was intended for the use of those who preferred to eat and drink at their leisure. The walls are decorated with a series of paintings presenting realistic scenes from the life of such places. We see the guests eating, drinking, and playing with dice. Some are standing, others sitting on stools; it is the kind of public house that Martial calls a 'stool-ridden cookshop,' in which couches were not provided, but only seats without backs (Mart. Ep. V. lxx. 3).
In one of the scenes (Fig. 234) four men are drinking, about a round table, while a boy waits on them; two of the figures have pointed hoods like those seen to-day in Sicily and some parts of Italy. Strings of sausage, hams, and other eatables hang from a pole suspended under the ceiling.
Some of the figures in the pictures are accompanied by inscriptions. Thus by the side of a guest for whom a waiter is pouring out a glass of wine is written: Da fridam pusillum, 'Add cold water—just a little.' In a similar connection we read, Adde calicem Setinum, 'Another cup of Setian!' The Setian wine came from a town in Latium at the 404 foot of the hills bordering the Pontine Marshes, now Sezze; we infer that our wineshop sold not merely the products of neighboring vineyards, but choice brands from other regions as well. Wines from the locality were probably brought to town in amphorae; the delivery of a consignment from a distance is shown in a separate scene (Fig. 235), in which amphorae are being filled from a large skin on a wagon; the team of mules is meanwhile resting, unharnessed, the yoke hanging on the end of the pole.
The pictures present the life of a tavern from the point of view of the landlord; but occasionally we have a suggestion of the other side, as in the following couplet, the faulty spelling of which we can forgive on account of its pithiness: Talia te fallant utinam me[n]dacia, copo, Tu ve[n]des acuam et bibes ipse merum,—
'Landlord, may your lies malign
Bring destruction on your head!
You yourself drink unmixed wine,
Water sell your guests instead.'
The wineshop in which this graffito is found (I. ii. 24) is larger than that on Mercury Street, and has several dining rooms. Connected with it is a garden with a triclinium, once shaded by vines, which calls to mind the invitation of the barmaid in the Copa:—
'Here a garden you will find,
Cool retreat, with cups and roses,
Lute and pipe, for mirth designed,
Bower that mask of reeds encloses.
'Come, weary traveller, lie and rest
'Neath the shade of vines o'er-spreading.
Wreath of roses freshly pressed
On your head its fragrance shedding.'
All the pictures found in Pompeian wineshops bear out the inference, based upon numerous allusions in classical writers, that such places everywhere were in the main frequented by the lower classes; among the adjectives applied to taverns by the poets are 'dirty,' 'smoky,' and 'black.' They were haunted by gamblers and criminals, and the life was notoriously immoral.
KEY TO THE LEFT SIDE
KEY TO THE RIGHT SIDE
The tombs of Pompeii, like those of Rome, were placed in close array along the sides of the roads that led from the city gates. Only a few have been uncovered; how many still lie concealed under the mantle of volcanic débris that rests upon the plain, no one has yet ventured to conjecture. The tombstone of a magistrate of one of the suburbs was found at Scafati, a mile and a half east of the ancient town; and others have been brought to light on the east, south, and west sides. The most interesting and best known tombs are those of the Street of Tombs, in front of the Herculaneum Gate; but important remains have been found also near the Stabian and Nocera gates, and burial places of a humbler sort lie along the city wall near the Nola Gate.
Most of the tombs thus far excavated belong to the Early Empire, having been built between the reign of Augustus and 79 A.D. Two or three date from the end of the Republic; and a small corner of an Oscan cemetery has been uncovered on the northwest side of the city. Remains of skeletons were found only in the Oscan graves; the Roman burial places were all arranged with reference to the practice of cremation, the ashes being deposited in urns.
The tombs present so great a variety of form and construction that it is impossible to classify them in a summary way, or to dismiss them with the presentation of two or three typical examples. The character of the monument varied not merely according 406 to the taste and means, but also according to the point of view or religious feeling of the builder. Some deemed it more fitting that the ashes of the dead should be covered over with earth; others preferred to place them in a conspicuous tomb that would please the eye and impress the imagination of the beholder. To many the matter of paramount importance seemed to be the provision for the worship of the dead, the arrangement of the tomb so that offerings could easily be made to the ashes. Others still desired to have the sepulchre convenient for the living, who at times would gather there, and tarry near the resting place of the departed. And there were not a few who attempted, in the construction of a monument, to accomplish at the same time several of these ends. The architectural designs were suggested by the form of an altar, a temple, a niche, a commemorative arch, or a semicircular bench, schola.
On account of this diversity of aim and of type, it will be most convenient to study the tombs in topographical groups, commencing with those at the northwest corner of the city.
The highway that passes under the Herculaneum Gate runs almost directly west, descending with a gentle grade. Above it on the north side is the ridge formed by the stream of lava on the end of which the city lay; here, before the eruption, were sightly villas. Below, to the south, was the sea, not so far away as now, over the shimmering surface of which the traveller, as he rode along, could catch charming glimpses of the heights above Sorrento and of Capri. A short distance from the gate on the left, a branch road, which for convenience we may call the Bay Road, led directly to the sea. Another branch, on the right, followed the direction of the city wall; further from the gate on the same side, a third, which may be designated as the Vesuvius Road, ran off from the highway in the direction of the mountain. The highway itself, so far as excavated, has been named the Street of Tombs.
The tombs that have been uncovered here are distributed in four groups. The first, on the left side, extends from the gate to the Bay Road; it comprises Nos. 1-4a on Plan V. The second, on the right (Nos. 1-9), includes the tombs between the 407 gate and the beginning of the Vesuvius Road. The third group, on the left, lies between the ruins of the villa to which the name of Cicero has been attached and the villa of Diomedes; the tombs are numbered on the plan 16-23. The monuments of the fourth group occupy the tongue of ground at the right between the highway and the Vesuvius Road (33-43). The outer parts of the two villas by which the continuity of the series of tombs on both sides is interrupted, appear to have been used as inns; along the street in front of each there was a colonnade supported by pillars, behind which were small rooms opening toward the street.
At the further end of the villa on the right (10-29) is the potter's workshop (29-30), mentioned in a previous chapter (p. 386). Beyond this are the Oscan graves (31-32), several of which have been explored. In them were found rough stone coffins, made of slabs and fragments of limestone, containing remains of skeletons together with small painted vases, of the sort manufactured in Campania in the third and second centuries B.C. Two coins were found, in separate graves, with Oscan legends that have not yet been deciphered; apparently they were from Nola. The burial places lie close together, and evidently belong to a cemetery for people of humble station; there are no headstones to mark the graves. This is the only place at Pompeii in which painted vases have been found.
A narrow strip of land on each side of the road belonged to the city, and burial lots therein were granted by the municipal council to citizens who had rendered public service. Others, however, might obtain lots by purchase; private ownership may be assumed unless the gift of the city is indicated in the inscription. The location of several tombs—1, 3, 4, 6 on the right, 3 on the left—shows that the direction of the street near the gate was changed after sepulchral monuments had begun to be erected.
An interesting inscription referring to the municipal ownership of land was found at the further corner of the Bay Road: Ex auctoritate imp. Caesaris Vespasiani Aug. loca publica a privatis possessa T. Suedius Clemens tribunus causis cognitis et mensuris factis rei publicae Pompeianorum restituit,—'By virtue 408 of authority conferred upon him by the Emperor Vespasian Caesar Augustus, Titus Suedius Clemens, tribune, having investigated the facts and taken measurements, restored to the city of Pompeii plots of ground belonging to it which were in the possession of private individuals.'
To judge from the location of the inscription, the land which the military tribune sent as commissioner by Vespasian gave back to the city, must have been at the sides of the Bay Road. A marble statue of a man dressed in a toga and holding a scroll in his hand, was found near by. It was probably a portrait of Suedius Clemens, and may have stood in a niche in the villa of Cicero.
There is an implied reference to the Bay Road also in another inscription which was found out of its proper place, in the court of the adjoining inn: THERMAE · M · CRASSI · FRVGI · AQVA · MARINA · ET · BALN · AQVA · DVLCI · IANVÁRIVS · L—'Bathing establishment of Marcus Crassus Frugi. Warm sea baths and freshwater baths. (Superintendent) the freedman Januarius.' We learn from Pliny the Elder that M. Licinius Crassus Frugi, who was consul in 64 A.D., and was afterwards (in 68) put to death by Nero, owned a hot spring which gushed up out of the sea. This spring, then, was at Pompeii, and was utilized for baths. The inscription is at the same time an advertisement and a sign directing people down the Bay Road to the bath house.
A general view of the Street of Tombs is given in Plate X. It is taken from the high ground beyond the fourth group, as one looks toward the Herculaneum Gate. The rugged mass of Monte Sant' Angelo looms up in the distance; at the right the trees skirting the edge of the excavations form an effective background. The beauty of the surroundings, especially on a summer morning, the associations of the street, its deserted appearance, and the unbroken, oppressive stillness give rise to mingled feelings of pleasure and sadness in the visitor.
We commence our survey with the first group of tombs at the left as one passes out from the Herculaneum Gate. Close by the gate is the tomb of Cerrinius Restitutus (1 on the plan, left side). It is simply a low vaulted niche, having 409 seats at the sides. Against the rear wall stood a marble tombstone, with a place for a carved portrait; in front of it was a small altar under which doubtless was placed the urn containing the ashes. Both altar and tombstone (now in the Naples Museum) have the inscription: M. Cerrinius Restitutus, Augustalis, loc. d. d. d. (for locus datus decurionum decreto),—'Marcus Cerrinius Restitutus, member of the brotherhood of Augustus. Place of burial granted by vote of the city council.' The tomb here was designed as a structure to which relatives might repair on anniversary days in order to make offerings to the dead.
The remains of the other tombs in the first group are shown in the accompanying illustration (Fig. 236). We notice first two large semicircular benches. That at the left (2 on the plan) marks the resting-place of Veius. It is of tufa, and nearly twenty feet wide at the front. The ends are modelled to represent winged lion's paws, the carving of which is full of vigor and may be compared with that of the lion's paws in the Small Theatre (Fig. 70). The statue that once stood at the rear, on a high pedestal, has disappeared, but the inscription remains: A. Veio M. f. II vir. i. d. iter. quinq. trib. milit. ab populo ex d. d.,—'To the memory of Aulus Veius, son of Marcus, twice duumvir with judiciary authority, quinquennial duumvir, military tribune by the choice of the people. (Erected) by order of the city council.' The city not only gave a burial place, but built 410 the tomb as well. The cinerary urn was probably placed in the earth in the narrow unwalled space behind the bench.
This monument was intended at the same time to do honor to the dead and render service to the living. Here, on feast days of the dead, relatives could gather and partake of a commemorative meal; but at all times the inviting seat and conspicuous statue served to maintain that friendly relation with the living, the desire for which so often finds expression in Roman epitaphs. The portrait and inscription made it seem as if Veius himself offered a friendly greeting to those that passed by, and was greeted by them in turn as they looked upon his face and read his name.
The other bench (4) was evidently built by the heirs of a priestess, Mamia, upon a lot given by the city. The inscription appears in large letters on the back of the seat: Mamiae P. f. sacerdoti publicae; locus sepultur[ae] datus decurionum decreto,—'To the memory of Mamia, daughter of Publius Mamius, priestess of the city. Place of burial granted by order of the municipal council.' In this instance, also, the cinerary urn was probably buried in the earth behind the bench. A certain delicacy in the modelling of the lion's paws seems to indicate for this monument a somewhat later date than that of the monument to Veius,—possibly the end of the reign of Augustus, or the reign of Tiberius. The date of erection is not given in the case of any Pompeian tomb.
Between the two benches we see a lava base and the core of a superstructure; they belong to the tomb of Marcus Porcius. The name is known from a boundary inscription which appears on two small blocks of lava at the corners of the lot in front: M. Porci M. f. ex dec. decret. in frontem ped. xxv, in agrum ped. xxv,—'(Lot) of Marcus Porcius son of Marcus, granted by order of the city council; twenty-five feet front, twenty-five feet deep.'
This Porcius may have been one of the builders of the Small Theatre and the Amphitheatre, or a son of that Porcius, whose name appears on the altar of the temple of Apollo. The tomb was in the form of an altar; the terminal volutes at the top, of travertine, have been preserved. The sides were of tufa blocks, 411 which may have been carried off for building purposes after the tomb was damaged by the earthquake of 63. The interior was made hollow to save expense; there was no sepulchral chamber, the ashes being placed in the earth under the monument. This tomb is the oldest of the group.
The conspicuous monument of the Istacidii (4 a) stands behind the tombs of Mamia and Porcius, at the left of the Bay Road. It is raised upon a narrow terrace, enclosed by a balustrade of 412 masonry, and has the appearance of a temple, with half-columns at the sides. The remains of the lower story alone are seen in Fig. 236; above this was a circular structure formed by columns supporting a roof, under which were placed statues of members of the family (Fig. 237). The lower story contains a sepulchral chamber, entered by a door at the rear; in the middle of the chamber is a massive pillar reaching to the vaulted ceiling. The decoration of the room is simple, of the third style. On one side is a large niche, for two urns, those of the head of the family and his wife; the other three sides contain ten smaller niches.
The principal inscription of the tomb has not been found, but a number of names are preserved on the commemorative stones set up in the plot of ground about it. These stones are of a peculiar type, met with elsewhere only at Capua and Sorrento; we shall call them bust stones. The outline resembles that of a human head and neck terminating below in a pillar, but the front was left smooth, and an inscription was cut or painted on the bust. Difference of sex was indicated by the treatment of the hair; an example maybe seen in Fig. 240. The bust stones of men are generally larger than those of women; those of children are still smaller, the size perhaps varying with the age.
The bust stones here may refer to those whose ashes were deposited in urns in the tomb, or to others whose urns were buried in the plot of ground in which it stands. From them we learn that the head of the family was Numerius Istacidius, and that he had a daughter, Istacidia Rufilla, who was a priestess. Representatives of two other families, the Melissaei and the Buccii, are named on similar stones found in a plot connected with that of the Istacidii at the rear. The three families were perhaps closely connected by intermarriage. The bust stone of one of the Melissaei, Gnaeus Melissaeus Aper, duumvir in 3-4 A.D., stood in the same enclosure with those of the Istacidii.
Only one of the nine tombs in the second group (2) bears a name. In the case of two (3 and 4) the superstructure has completely disappeared, leaving only the lava bases in place. Another (5) has not been excavated; the front of the burial lot has been cleared, but the monument, lying further back, is still covered. 413
The first tomb lies in the angle between the highway and the branch road along the wall, which was evidently laid out after the monument was erected. It has the form of an altar, and must have resembled in appearance the tomb of Porcius on the opposite side of the street. Here, however, there is a sepulchral chamber in the base, entered by a low, narrow passage, which was closed until 1887 by a block of stone. In corners of this chamber two cinerary urns, in lead cases, were found covered with earth and with the remains of a funeral pyre—bits of wood and iron nails used in building the pyre, together with pieces of a richly carved ivory casket and broken perfume vials of terra cotta. Among the fragments of bone in each urn was a coin of Augustus. Though the ashes of the dead were here placed in a burial vault, it was nevertheless considered important to cover them with earth. It was not thought necessary, however, to leave the vault accessible for the performance of sacred rites in honor of the dead; the entrance, securely closed, was only to be unsealed for the admission of new urns.
The next tomb (2) is of an entirely different type from any of those previously described. It is an unroofed enclosure, entered by a door at one end. As we learn from the inscription, it was built in honor of Terentius Felix by his widow, the city furnishing the burial lot and a contribution of two thousand sesterces (about $90) toward the expense: T. Terentio T. f. Men. Felici maióri aedil[i]; huic publice locus datus et 𐆘 ∞ ∞. Fabia Probi f. Sabina uxor,—'To the memory of Titus Terentius Felix the Elder, son of Titus, of the tribe Menenia, aedile. The place of burial was given by the city, with two thousand sesterces. His wife, Fabia Sabina, daughter of Fabius Probus (built this monument).' Pompeians who were Roman citizens were enrolled in the tribe Menenia.
The cinerary urn of Felix was of glass. It was protected by a lead case and placed in an earthen jar, which was buried in the earth under a small altar or table of masonry against the wall on the left as one enters. Here also was a tombstone, with the inscription, 'To the elder Terentius'; he probably left a son with the same name. In the urn, or near it, were found two coins, one of Augustus, the other of Claudius, deposited to 414 pay the fare of Charon. The right side of the enclosure was set off by a low wall; here several urns belonging to other members of the household were buried. Shells of oysters and other shellfish were found in the main room, remains of a banquet in honor of the dead; the libations were poured upon the earth above the urns. The plan of this tomb closely resembles that of the enclosure in front of the Doric temple in the Forum Triangulare (p. 139).
Fig. 238.—View of the Street of Tombs.
At the left, the Bay Road and remains of the so-called villa of Cicero; at the right, Garland
tomb, foundation of the tomb of the Blue Glass Vase, and semicircular niche.
Of the remaining tombs of the second group, two are prominent, and may readily be distinguished in the accompanying illustration (Fig. 238), the so-called Garland tomb (6 on the plan), and the roofed semicircular niche at the end (9). The Garland tomb has the shape of a temple, with pilasters instead of columns, between which hang festoons of leaves and flowers. It is solid; the cinerary urn was probably placed underneath. 415 The form of the second story cannot be determined. The material is tufa, coated with white stucco, and the monument is one of the oldest in the series, dating from the end of the Republic.
Adjoining the Garland tomb is a simple sepulchral enclosure (7) with an entrance from the street. Between this and the roofed niche we see in Fig. 238 the limestone base of a tomb, like those seen in Plate X, at the right; the altar-shaped superstructure has disappeared (8). This is called the tomb of the Blue Glass Vase. The base contains a sepulchral chamber, entered by a door at the rear. Here three urns, two of glass and one of terra cotta, were found, standing in niches. On the floor were several statuettes, a couple of small figures of animals, and a mask with a Phrygian cap,—all of terra cotta.
In beauty of material, harmony of design, and skill of workmanship, one of the glass urns, which gave the name to the tomb and is now preserved in the Naples Museum, ranks with the finest examples of its class in the world. Among specimens of ancient glass it stands second only to the famous Portland vase in the British Museum, which was found in a tomb near Rome. The urn has the form of an amphora; the support seen at the bottom (Fig. 239) is modern. It is decorated with reliefs cut in a layer of pure white on a background of dark blue. Near the bottom is a narrow band, showing goats and sheep in pasture. Resting on this are two bacchic masks, on opposite sides of the vase; vines laden with clusters rise in graceful arabesques above the masks, dividing the body of the vase into two fields, which present scenes from the vintage.
One of these scenes is reproduced in Fig. 239. The vintage is interpreted as a festival of Bacchus. Above is a festoon of fruits and flowers. At the sides are two boys on elevated seats, one playing the double flute, the other holding a Pan's pipe in his hands, ready to take his turn; the grapes are gathered and pressed to an accompaniment of Bacchic airs, the two players following each other with alternate strains. A third boy, treading the grapes in a round vat, shakes the thyrsus in honor of the Wine-god, while a companion empties in fresh bunches. The scene is full of action; no reproduction can do justice to the delicacy and finish of the original. 416
A bench of masonry runs along the inner wall of the semicircular niche (9), which is covered by a roof in the form of a half dome and opens upon the street as do the large unroofed monuments of Veius and Mamia. A blank marble tablet was placed in the gable; the builder of the monument, who was doubtless living at the time of the eruption, preferred to leave it 417 to his heirs to add the memorial inscription, but the disaster interfered with the fulfilment of his wishes. It was probably intended to bury the cinerary urn either in the floor of the niche or in the ground at the rear. The effect of the double series of pilasters at the corners, placed one upon the other without an intervening entablature, and of the fantastic stucco decoration of the gable, is not unpleasing, although the designs are far from classical; the tiles shown in the illustration are modern. The inner wall is painted in red and black panels; the vaulted ceiling, from which the stucco has now fallen, was moulded to represent a shell.
Both the niche and the tomb of the Blue Glass Vase seem to have belonged to the adjoining villa. The stucco decoration of the villa in its main features is identical with that of the niche; and the plot of ground behind the tombs is connected by a gateway with a garden of the villa (12 on the plan), which was too richly adorned to have been intended for the use of the occupants of the inn. In the middle of the garden was a pavilion supported by four mosaic columns (now in the Naples Museum), similar to that in the garden of the villa of Diomedes, and to others belonging to city houses. A mosaic fountain niche was made in the rear wall facing the entrance from the street, and in two corners were short columns on which were placed small figures,—on one a boy with a hare, in marble, on the other a frog of glazed terra cotta.
Nevertheless, the garden seems to possess a distinctly sepulchral character. Besides the entrances from the tombs and from the street, there was a third, which led into a court of the villa, with which the peristyle and living rooms were connected by a passageway; in the corner of the court nearest the garden, and facing the entrance from the street (15), was an elaborate domestic shrine, dedicated, as shown by the symbolical decoration, to Apollo, Bacchus, Hercules, and Mercury. The relation of the garden with the living rooms of the villa was only indirect; and we conclude that it was intended for gatherings and sacred rites in honor of the dead. Relatives could partake of the sepulchral banquet under the pavilion.
The tombs of the third group, as may be seen from Plate X, 418 form a stately series. The prevailing type is that which was in vogue at the time of the destruction of the city—a high base, with marble steps at the top leading up to a massive superstructure in the form of an altar, faced with marble. The burial plot was enclosed by a low wall. In the base of the tomb was a sepulchral chamber, entered by a door in the rear or at one side; it was now the custom for relatives to enter the burial vault when they wished to pour libations on the ashes.
The first of the series (16 on the plan, seen in Plate X next to the cypress) was unfinished at the time of the eruption. Part of the marble veneering had not yet been added, the walls of the sepulchral chamber were in the rough, and there were no urns in the five niches designed for their reception. In the burial plot surrounding the tomb, however, a marble bust stone was found (Fig. 240) with the inscription, Iunoni Tyches Iuliae Augustae Vener[iae],—'To the Genius of Tyche, slave of Julia Augusta,—of the cult of Venus.'
The reference is plainly to a female slave of Livia, the wife of Augustus; how her ashes came to be deposited here it is not worth while, in default of information, to conjecture. In sepulchral inscriptions of women Iunoni sometimes takes the place of genio in men's epitaphs. Tyche was seemingly a member of a sisterhood for the worship of Venus, to which, as to the organization of the 'Servants of Mercury and Maia,' and of the 'Servants of Fortuna Augusta,' slaves were admitted.
The tomb of Umbricius Scaurus (17) is conspicuous by reason of its size and noteworthy on account of its decoration. The inscription on the front of the altar-shaped superstructure gives interesting details in regard to the man the memory of whom is here perpetuated: A. Umbricio A. f. Men. Scauro, II vir i. d.; huic decuriones locum monum[ento] et 𐆘 ∞ ∞ in funere et statuam equestr[em in f]oro ponendam censuerunt. Scaurus pater filio,—'To the memory of Aulus Umbricius 419 Scaurus son of Aulus, of the tribe Menenia, duumvir with judiciary authority. The city council voted the place for a monument to this man and two thousand sesterces toward the cost of the funeral; they voted also that an equestrian statue in his honor should be set up in the Forum. Scaurus the father to the memory of his son.'
Why these honors were conferred upon Scaurus, who probably became a duumvir early in life and died soon after his term of office, is not clear. The upper part of the base of the tomb in front was adorned with stucco reliefs—now for the most part gone—in which gladiatorial combats and a venatio were depicted; but a painted inscription along the edge of one of the scenes indicates that the show thus commemorated was given by another man, N. Fistius Ampliatus; Munere [N. Fis]ti Ampliati die summo. Perhaps the last two words mean that 'on the last day' the younger Scaurus, a relative or friend of Ampliatus, shared the cost of the exhibition under some such arrangement as that between Lucretius Valens and his son (p. 222). If this be the correct explanation, it is evident that Scaurus could have given no shows in the Amphitheatre during his duumvirate, else the father would have taken pains to mention the fact in the inscription. His term of office may have come after the year 59, when such exhibitions were prohibited at Pompeii for ten years (p. 220).
The gladiatorial scenes, if space permitted, would merit a detailed presentation—they are so full of human interest. Two gladiators are fighting on horseback, the rest on foot. The vanquished with uplifted thumbs are mutely begging for mercy. The plea of some of them is heeded by the populace; in other groups we see the victor preparing to give the death thrust. Beside each gladiator was painted his name, school, and number of previous combats, as in a programme; and letters were added to give the result of this fight. One combatant, who was beaten and yet by the vote of the audience permitted to live, died on the sand from his wounds. We see him resting on one knee, faint from loss of blood; the letter M 420 beside his name, for missus, is followed by the death sign Θ, the first letter of the Greek word for death, ΘΑΝΑΤΟΣ.
The animals shown in the venatio are mainly wild boars and bears, but we recognize also a lion and a bull. Lions were doubtless much more rarely seen in such exhibitions at Pompeii than at Rome.
As more attention came to be given to the outward appearance of tombs, less was bestowed upon the adornment of the sepulchral chamber. So in the tomb of Scaurus the burial vault is low, cramped, and with plain white walls. A massive pillar, as in the tomb of the Istacidii, supports the vaulted ceiling. It is pierced by two openings, forming four niches, two on each side. Three of these, when the tomb was opened, were closed by panes of glass, and there were traces of a curtain that hung over the one opposite the entrance. There were fourteen other niches in the walls at the sides.
No name is associated with the third tomb (18 on the plan) which, as shown by Plate X, is simply a large cylinder of masonry, the top of which probably had the shape of a truncated cone; the material is brick, with a facing of white stucco lined off to give the appearance of blocks of marble. The base is square; the enclosing wall is adorned with miniature towers. The structure illustrates in its simplest form the type of the massive tomb, or mausoleum, found at Rome; we are at once reminded of the imposing monument of Caecilia Metella on the Appian Way, and of Hadrian's Mausoleum in the city.
A blank tablet was placed by the builder on the front of the enclosing wall to receive an inscription after his death. The heirs, however, preferred to put the memorial on the tomb itself, where the place of an inscription is plainly seen, the slab itself having disappeared. The sepulchral chamber is in the superstructure; it was decorated with simple designs in the fourth style on a white ground. There were only three niches, perhaps for father, mother, and child; the urns were let into the bottoms of the niches, as often in the Roman columbaria.
One of the miniature towers on the enclosing wall is ornamented with a relief presenting a singular design; a woman in mourning habit is laying a fillet on a skeleton reclining on a 421 heap of stones (Fig. 241). The scene may be interpreted as symbolizing the grief of a mother for a dead son.
There is only a simple bust stone in the burial lot (19) beyond the round monument. Next comes the beautiful tomb of Calventius Quietus (20), which may be seen in Plate X, as well as the tomb of Naevoleia Tyche (22; further to the right). Between these two is a walled enclosure (21) without a door, in which are three bust stones. The largest stone bears the name N. Istacidius Helenus; in front of one of the others a small jar was set to receive offerings for the dead. On the front of the enclosing wall is a tablet on which the names of N. Istacidius Januarius and of Mesonia Satulla appear with that of Helenus; they were all freedmen of the Istacidii (p. 412).
The monuments of Quietus and of Tyche are the finest examples of the altar type at Pompeii. Both are ornamented in good taste, but the carvings of the former are more delicate, while the motives of the latter are more elaborate. Quietus was a man of some prominence, as we see from the epitaph: C. Calventio Quieto Augustali; huic ob munificent[iam] decurionum decreto et populi conse[n]su bisellii honor datus est,—'To the memory of Gaius Calventius Quietus, member of the Brotherhood of Augustus. On account of his generosity the honor of a seat of double width was conferred upon him by the vote of the city council and the approval of the people.'
At the Theatre and the Amphitheatre, Quietus had the privilege of sitting on a bisellium, as if he were a member of the city council. Below the inscription is a representation of the 'seat of double width,' shown in Fig. 242. The square footstool at the middle implies that the seat was intended for a single person. The ends of the tomb were ornamented with finely carved reliefs of the civic crown, which was made of oak leaves and awarded to those who had saved the life of a Roman citizen (Fig. 243). As the inscription does not record any deed of 422 valor, it may be that the crown is used here merely as a decorative device.
Though the monument of Quietus was built in the last years of the city, when such structures were generally provided with sepulchral chambers, it has no burial vault, and the enclosing wall is without a door. It is perhaps a cenotaph, a monument erected in honor of a man whose remains were interred elsewhere; it is also possible that Quietus had no relatives who wished to have an accessible sepulchral chamber in order to make libations to his ashes, and that for this reason the monument was made solid, the urn being buried in the earth underneath. The small turrets on the enclosing wall were adorned with reliefs; among them Oedipus solving the riddle of the Sphinx, and Theseus after the slaughter of the Minotaur. The suggestion is obvious: he who is commemorated here had solved the riddle of existence, had found an exit from the labyrinth of life.
Around the front and sides of the tomb of Naevoleia Tyche runs a border of acanthus arabesques, forming panels in which reliefs are placed. The border in front is interrupted at the middle of the upper side by the portrait of Tyche; the lower half of the panel is devoted to a ceremonial scene in which offerings appear to be made to the dead, while in the upper half, under the portrait, we read the inscription: Naevoleia L. lib[erta] Tyche sibi et C. Munatio Fausto Aug[ustali] et pagano, cui decuriones consensu populi bisellium ob merita eius decreverunt. 423 Hoc monimentum Naevoleia Tyche libertis suis libertabusq[ue] et C. Munati Fausti viva fecit,—'Naevoleia Tyche, freedwoman of Lucius Naevoleius, for herself and for Gaius Munatius Faustus, member of the Brotherhood of Augustus and suburban official, to whom on account of his distinguished services the city council, with the approval of the people, granted a seat of double width. This monument Naevoleia Tyche built in her lifetime also for the freedmen and freedwomen of herself and of Gaius Munatius Faustus,' who was seemingly her husband.
Fig. 243.—End of the tomb of Naevoleia Tyche, with relief of a ship entering port; beyond, end of the tomb of Calventius Quietus, with the civic crown.
The bisellium of Faustus is shown in one of the end panels; in the other we see a ship sailing into port (Fig. 243). The carving of the relief is bold, though crude; we see the sailors furling the sail, as the vessel glides into still water. The scene is symbolical of death,—the entrance of the soul after the storms of life into a haven of rest. The thought is expressed by Cicero with deep feeling in his essay on Old Age: 'As for myself, I find 424 the ripening of life truly agreeable; the nearer I come to the time of death, the more I feel like one who begins to see land and knows that sometime he will enter the harbor after the long voyage.'
The sepulchral chamber of this tomb has a large niche opposite the entrance; the urn standing in it apparently contained the cinerary remains of two persons, Tyche and Faustus. Other urns were found in the smaller niches in the walls and on the bench of masonry along the sides. Three were of glass, protected by lead cases; one of them is shown in Fig. 244. They contained ashes and fragments of bone, with remains of a liquid mixture, which was shown by chemical analysis to have consisted of water, wine, and oil. Lamps were found on the bench, one for each urn, and there were others in a corner; they were used on anniversary days to light the chamber.
The last monument consists of a walled enclosure, with a table and couches of masonry like those often found in the gardens of private houses (Fig. 245). In front of the table is a small round altar for libations. This was a place for banquets in honor of the dead, triclinium funebre; a tomb designed to serve the convenience of the living, like the niche of Cerrinius Restitutus and the benches of Veius and Mamia. The walls were painted in the last style.
Over the entrance in front we read: Cn. Vibrio Q. f. Fal. Saturnino Callistus lib.,—'To the memory of Gnaeus Vibrius Saturninus son of Quintus, of the tribe Falerna; erected by his freedman Callistus.' As Saturninus did not belong to the tribe Menenia, he was very likely not a native of Pompeii. His ashes were probably placed in an urn and buried in the earth between the altar and the entrance.
There is every reason to suppose that the series of tombs on the south side of the highway is continued beyond the villa of Diomedes; but it has not yet been found possible to carry the excavations further in that direction.
The tombs of the fourth group present no new types of 425 design or construction. Several of them are of interest, however, on account of peculiarities of arrangement. At the time of the eruption two of the monuments (33, 35) were in process of building; it is impossible to tell what form they were to have. A third (36) had been commenced on a large scale, but apparently the money of the heirs gave out, and little pyramids were set up at the corners of the walled enclosure, the urns being buried in the earth.
Two of the monuments were erected for children (40, 41). They stand near together on the high ground in the angle formed by the Vesuvius Road. They are small vaulted niches, ornamented with reliefs in white stucco, most of which has fallen off. The urn in each was placed in the earth under the bottom of the niche, with a small pipe tile leading to the surface, through which libations could be poured down upon it. A tablet is set in the sustaining wall at the side of the street below the larger niche (41), with the simple inscription, N. Velasio Grato, vix[it] ann. XII,—'To the memory of Numerius Velasius Gratus, who lived twelve years.' The inscription belonging 426 to the other niche was even more simple, giving no first name: Salvius puer vixit annis VI,—'The boy Salvius lived six years.'
One tomb (34) is noteworthy on account of its door. This has the appearance of a double door, but it is made of a single slab of marble, and swings, like an ordinary Roman door, by means of pivots which are fitted into sockets in the threshold and lintel. It was also provided with a lock. The exterior of the tomb was unfinished; the reticulate masonry still lacked its facing of more costly material. The sepulchral chamber, however, contained several cinerary urns; one of them, of alabaster, was in a large niche facing the entrance, and a gold seal ring, with the figure of a deer in an intaglio, was found in it among the ashes and fragments of bone. There were also several lamps, a small altar of terra cotta, and a few glass perfume vials. Two amphorae, of the sort used for wine, stood against the sides of the chamber; such were sometimes utilized as repositories for ashes.
One of the volutes of the well preserved limestone tomb of M. Alleius Luccius Libella (37) is seen in Plate X. The monument has the shape of an altar, and is apparently solid. It was erected by the widow, Alleia Decimilla, priestess of Ceres, in memory of her husband, who was duumvir in 26 A.D., and of a son of the same name, who was a member of the city council and died in his eighteenth year. The burial plot was given by the city. As no opening was left in the monument, Decimilla evidently planned to have her ashes deposited in another tomb, perhaps that of her father's family.
The remaining four tombs are of the same type; the idea is that of a temple, the columnar construction being suggested not by projecting half-columns, as in the tomb of the Istacidii, but by more or less prominent pilasters at the corners and on the sides. Two of the tombs (38 and 39) stand where the tongue of land between the highway and the Vesuvius Road begins to descend to the level of the pavement.
The remains of the tomb of Ceius Labeo (38) are shown in Plate X (in the foreground, at the left). The appearance of this monument was somewhat like that of the Istacidii; there 427 was a second story, the roof of which was supported entirely by columns; between these, statues of members of the family were placed, of both men and women, some of marble, others of tufa coated with stucco. The base was ornamented with stucco reliefs, which have almost entirely disappeared; above, in front, were two portrait medallions.
The large sepulchral chamber can be seen in the plate. The floor was more than six feet below the surface of the ground. A vaulted niche in the rear wall was connected with the outside by means of a small opening at the top, through which libations could be poured or offerings dropped upon the urn below. In the vicinity of the monument was found the inscription: L. Ceio L. f. Men. Labeoni iter[um] d. v. i. d. quinq[uennali] Menomachus l[ibertus],—'To the memory of Lucius Ceius Labeo son of Lucius, of the tribe Menenia, twice duumvir with judiciary authority, also quinquennial duumvir; erected by his freedman, Menomachus.'
There were bust stones in the plot belonging to this monument, and also about the adjoining tomb (39); the names of those whose ashes were deposited under the stones, in part, at least, seem to have been painted upon the base of Labeo's tomb, but they were illegible at the time of excavation. The adjoining tomb (39) is without a name, but was built after that erected in honor of Labeo.
The tombs at the end of the fourth group (42, 43) belong to one household. In the sustaining wall along the highway a sepulchral tablet of tufa is seen with the inscription: Arriae M. f. Diomedes l[ibertus] sibi suis,—'Diomedes, a freedman, for Arria, daughter of Marcus Arrius, for himself and for his family.' On the elevation directly above is his tomb, the end of which is seen in Plate X (in the foreground). It bears the inscription: M. Arrius Ↄ. l. Diomedes sibi suis memoriae, magister pag[i] Aug[usti] Felic[is] suburb[ani],—'Marcus Arrius Diomedes, freedman of Arria, magistrate of the suburb Pagus Augustus Felix, in memory of himself and his family.'
The abbreviation Ↄ. l. takes the place of Gaiae libertus, 'freedman of Gaia,' the letter C, which stands for Gaius, being reversed; Gaia is used, as in legal formulas, to show that the 428 person referred to is a woman. The slave Diomedes, after receiving his freedom, was entitled to the use of the family name, and was known as Marcus Arrius Diomedes. His mistress, as Roman ladies generally, was called not by a first name, but by the feminine form of the family name, Arria, which was as plainly suggested to a Roman reading the name Arrius followed by the symbol as if it had been written in full.
On the front of the tomb we observe in stucco relief two bundles of rods, fasces, with axes, having reference to the official position of Diomedes as a magistrate of a suburb. The axes are quite out of place. Suburban officers did not have the 'power of life and death'; the lictors of such magistrates carried bundles of rods without axes. The vain display of authority reminds one of the pompous petty official held up to ridicule by Horace in his Journey to Brundisium; it suggests also the rods and axes painted on the posts at the entrance of the dining room of Trimalchio, in Petronius's novel. The tomb was constructed without a burial vault, but there were two bust stones near by with names of freedmen of Diomedes.
The monument to Arria (43) lies further back; it fronts on the Vesuvius Road. Diomedes found a way to reconcile happily his own love of display with his duty to his former mistress; he built a larger monument for her, but chose for his own the more conspicuous position. The small sepulchral chamber of Arria's tomb contained nothing of interest and is now walled up. 429
No part of the highway leading from the Nola Gate has yet been excavated. In the year 1854, however, excavations were made for a short distance along the city wall near this gate, and thirty-six cinerary urns were found buried in the earth. In or near them were perfume vials of terra cotta with a few of glass. Here in the pomerium, the strip of land along the outside of the walls, which was left vacant for religious as well as practical reasons, the poor were permitted to bury the ashes of their dead without cost. In some cases the place of the urn was indicated by a bust stone; often the spot was kept in memory merely by cutting upon the outside of the city wall the name of the person whose ashes rested here.
There was another cemetery of the poor a short distance southwest of the Amphitheatre, south of the modern highway. It lay along a road which branched off from the highway leading to Stabiae and ran east in the direction of Nocera. Sepulchral remains were found here in 1755-57, and again in 1893-94, when further explorations were made. They consist of cinerary urns, buried in the earth, with small glass perfume vials in or near them, and a bust stone to mark the spot. A few of the stones are of marble and bear a name; the great majority are roughly carved out of blocks of lava, and if a name was painted on the front it has disappeared.
Of special significance, in connection with these burial places, is the arrangement for making offerings to the dead. In order that libations might be poured directly upon the cinerary urns, these were connected with the surface of the ground by means of tubes. In one instance a lead pipe ran from above into an opening made for it in the top of the lead case inclosing an urn. 430 More often the connection was made by means of round tiles; in the case of one urn, three tiles were joined together, making a tube five feet long. The upper end of the libation tube did not project from the ground, but was placed just below the surface and covered with a flat stone; over this was a thin layer of earth, which the relatives would remove on the feast days of the dead. Pagan antiquity was never able to dissociate the spirit of the dead from the place of interment; the worship of ancestors was in no small degree the product of local associations.
In the vicinity of these remains is a sepulchral monument of modest dimensions, which, as we learn from the tablet over the entrance, was erected by Marcus Petasius Dasius in memory of his two sons, Severus and Communis, and of a freedwoman named Vitalis. There was no floor in the burial chamber; the urns were placed in the earth and marked by bust stones, among which was one set up for Dasius himself, with the initials M. P. D.
The Stabian Road has been excavated for but a short distance near the gate. The only monuments completely cleared are two large, semicircular benches, like those of Veius and Mamia (p. 409). At the rear of each is a small sepulchral enclosure in which the urns were buried. The memorial tablet belonging to the monument nearest the gate has disappeared, but two boundary stones at the corners of the lot bear the inscription: M. Tullio M. f. ex d[ecurionum] d[ecreto],—'To Marcus Tullius son of Marcus, in accordance with a vote of the city council.' The Tullius named was perhaps the builder of the temple of Fortuna Augusta (p. 132).
The inscription of the second bench, like that of Mamia, is cut in large letters on the back of the seat: M. Alleio Q. f. Men. Minio, II v. i. d.; locus sepulturae publice datus ex d. d.,—'To the memory of Marcus Alleius Minius son of Marcus, of the tribe Menenia, duumvir with judiciary authority. The place of burial was given in the name of the city by vote of the municipal council.'
A third bench, close to the second, lies under a modern house and has not been uncovered. Further from the gate a rectangular seat, probably belonging to the same series of monuments, 431 was discovered in 1854, it was built in memory of a certain Clovatius, duumvir, as shown by a fragment of an inscription that came to light at the same time. From still another tomb are reliefs with gladiatorial combats, now in the Naples Museum.
With the exception of those near the Herculaneum Gate, the most important tombs yet discovered at Pompeii are in a group beyond the Amphitheatre, excavated in 1886-87. They are six in number, and lie close together on both sides of a road which ran east from the Nocera Gate, bending slightly to the north (Fig. 246). This road was not in use in the last years of the city; the stones of the pavement and sidewalk had been removed. The monuments, however, were large and stately, erected by people of means, and the ruins are characteristic and impressive. The tombs were built of common materials, stucco being used on exposed surfaces instead of marble. The simplicity of construction, and the shapes of the letters in the election notices and other inscriptions painted on them, suggest a relatively early date, which is confirmed by the age of the coins found in the urns; the monuments belong to the early decades of the Empire.
The first tomb at the right (No. 1 on the plan) was built in the form of a commemorative arch, with pilasters at the corners. Above was a low cylinder surmounted by a truncated cone, on which stood a terminal member in the shape of a pine cone, found near by. The cinerary urn was buried in the earth below an opening in the floor of the passage under the arch (shown in the plan). No name appears in connection with this monument. 432
Fig. 247.—View of two tombs east of the Amphitheatre.
That at the left is No. 3 on the plan; the next is No. 4.
Another monument of the arch type, that of Mancius Diogenes, is seen on the opposite side of the street (5; Fig. 248). The structure is shallow, the vaulted opening low. On the top of the arch were three niches, in which stood three travertine statues; two of these, both of women, have been preserved, and are of indifferent workmanship. A marble tablet was placed in front, over the vault, with the inscription, P. Mancio P. l[iberto] Diogeni ex testamento arbitratu Manciae P. l[ibertae] Dorinis,—'To the memory of Publius Mancius Diogenes, freedman of Publius Mancius; (the monument was erected) in accordance with the terms of his will, under the direction of Mancia Doris, freedwoman of Publius Mancius.'
There is a curious ambiguity in this inscription; we cannot tell whether Doris, seemingly the wife of Diogenes, was manumitted by the Publius Mancius who gave him his freedom, or by Diogenes himself after he had gained his freedom and was entitled to use the name Publius Mancius. Four bust stones stood in front of the tomb and two at the rear, 433 arranged as indicated on the plan; those in front are seen in our illustration.
The tomb at the left of that just described (4; Fig. 247) is of interest as showing the result of an attempt to blend the arch type with that of the temple. A passage roofed with a flat vault runs through the middle of the first story. The second story had the appearance of a diminutive temple with four Corinthian columns in front. The niche representing the cella was of the full width of the tomb, and occupied two thirds of the depth; the other third was given to the portico. Four statues of tufa coated with stucco that were found here probably stood under the portico or in the intercolumniations, where they would best be seen from below; three were statues of men, the fourth of a woman.
The arrangement of the five bust stones in the vaulted passage is indicated on the plan. The three nearest the street entrance bear the name of a freedman, L. Caesius L. l. Logus,—'Lucius Caesius Logus, freedman of Lucius Caesius,' and of Titia Vesbina and Titia Optata, both evidently freedwomen manumitted by a lady named Titia. We are probably safe in assuming that the two inmost stones, without names, are those of Caesius and Titia, husband and wife, who gave Logus, Vesbina, and Optata their freedom, and built the monument. It was not necessary to place the names of the builders upon the commemorative stones, because they were doubtless given in the memorial tablet in front, which has disappeared. Coins of Augustus and Tiberius were found in the urns.
One tomb (2) has the form of a niche, resembling those of the two children near the end of the Street of Tombs (p. 425), but larger and more costly than they. The corners are embellished with three-quarter columns, which have Doric flutings and composite capitals. On the walls at the entrance we see, modelled in stucco, doorposts with double doors swung back. Two marble bust stones, the places of which are indicated on the plan, show where the urns of the two most important members of the family, Apuleius and his wife Veia, were buried; their names doubtless appeared in an inscription on the front of the monument. In one of the urns was found a coin of 434 Tiberius of the year 10 A.D. The other was enclosed in a lead case, and a lead libation tube was extended from the ashes through both covers to the surface.
The names of Apuleius and Veia are obtained from two other bust stones, in front of the niche. One reads, Festae Apulei f[iliae] vix[it] ann[os] XVII,—'To the memory of Festa, daughter of Apuleius, who lived seventeen years.' The other has simply [C]onviva Veiaes vix. an. XX,—'Conviva, slave of Veia, lived twenty years.' An as of the time of the Republic was found in the urn of Conviva; and a square tile, the upper end of which was closed by a piece of marble, served as a libation tube for the urn of Festa.
The two remaining tombs are of the temple type, one (3; Fig. 247) having pilasters at the corners, the other half-columns at the corners and on the sides (6). The first has a vaulted sepulchral chamber, entered from the rear. On the inside of the wall next the street are three low niches, the top of which is nearly on a level with the sidewalk; each of them contained 435 an urn. Directly over the inner niches, in the outside of the wall and opening toward the street, are three other niches, shown in the illustration, in the bottom of which were libation tubes leading to the urns below. Relatives could thus pour their offerings of wine or oil upon the urns without entering the sepulchral chamber. Lava bust stones were placed against the back of the outer niches. The hair on one of them is treated in a manner to indicate that a woman is represented. The entrance of the tomb was closed by a large block of lava. On account of the arrangement for offering libations from the outside, it was not necessary to make the burial vault easy of access.
The entrance to the other tomb (6; Fig. 248) was in front, and closed by a door of limestone. It led, not to a sepulchral chamber, but to a stairway by which one ascended to the second story. Here statues were placed, but the exact form of the upper part cannot be determined. The finding of five tufa capitals suggests that the second story may have been a columnar structure, like that of the tomb of the Istacidii; when the excavations are carried further east enough other fragments will perhaps be found to make a complete restoration possible. One of the statues is of a man holding a roll of papyrus in his hand, with a round manuscript case, scrinium, at his feet.
Among the inscriptions painted on these tombs were two, relating to gladiatorial combats, which have already been mentioned (p. 221). One of the election notices, oddly enough, refers to a candidate for an office in Nuceria: L. Munatium Caeserninum Nuceriae II vir. quinq. v. b. o. v. f. (for duumvirum quinquennalem, virum bonum, oro vos, facite),—'Make Lucius Caeserninus quinquennial duumvir of Nuceria, I beg of you, he's a good man.' As long as the relations of the Pompeians and Nucerians were friendly, the highway between the two towns was doubtless much travelled by the citizens of both places.
If the visitor pauses to think of the religious feeling which the ancients manifested generally in relation to their burial places, it gives somewhat of a shock to see notices even of a semi-public character painted in bright red letters upon tombs. 436 All such inscriptions, however, are surpassed in ludicrous incongruity with the purpose of the monument by the following advertisement regarding a stray horse: Equa siquei aberavit cum semuncis honerata a. d. VII Kal. Septembres (corrected into Decembres), convenito Q. Deciu[m] Q. l. Hilarum ... L. l. ... chionem, citra pontem Sarni fundo Mamiano,—'If anybody lost a mare with a small pack-saddle, November 25, let him come and see Quintus Decius Hilarus, freedman of Quintus Decius, or ... (the name is illegible), freedman of Lucius, on the estate of the Mamii, this side of the bridge over the Sarno.' The two freedmen were very likely in partnership, working a farm belonging to the family, one representative of which we have already met, Mamia the priestess (p. 410).
A more serious desecration of burial places, after offerings to the dead ceased to be made by relatives, or a family became extinct, was probably not uncommon. Different families had different gods, and those of one household were quite independent of those of another. Ordinarily a man had no reason to fear or respect the gods of his neighbor; notwithstanding the associations of worship connected with tombs, the general feeling toward them was very different from that manifested toward temples, where local divinities or the great gods were worshipped. The most stringent regulations of the emperors could not prevent the ransacking of the tombs about Rome for objects of value, and the removal of their materials of construction for building purposes. The superstructure of two of the monuments near the Herculaneum Gate had disappeared apparently before the destruction of the city, and of the tomb of Porcius only the core remained. 437
In the preceding pages the principal buildings of Pompeii have been described, and reference has been made to many works of art. We shall now offer a few observations of a more general nature in regard to the remains of architecture, sculpture, and painting.
The different periods in the architectural history of the city have been defined in a previous chapter. The most significant of these, from every point of view, is that which we have called the Tufa Period, which corresponds roughly with the second century B.C. Its importance is chiefly due to the fact that it records for us a phase of architectural development, a style, of which only slight traces are found elsewhere,—in the East. It is the last offshoot of untrammelled Hellenistic art in the field of construction; the architecture of the following period was still derived from Hellenistic sources, but was dominated by Roman conceptions, and received from Rome the impulse that determined the direction of its development. The remains of the Tufa Period at Pompeii furnish materials for a missing chapter in the history of architecture.
As we have seen, the stone preferred in this period for all purposes was the gray tufa. Where used for columns, pilasters, and entablatures, it was covered with stucco; in plain walls it appeared in its natural color. Unfortunately, the covering of stucco is preserved in only a few cases; the best example is presented by an Ionic capital in the first peristyle of the house of the Faun. The stucco was generally white, but color was sometimes 438 employed, as in the Corinthian columns and pilasters of the exedra in the same house, which are painted a deep wine red.
No other period of Pompeian art shows in an equal degree the impress of a single characteristic and self-consistent style, alike in public buildings, temples, and private houses, in the interior decoration as well as in the treatment of exteriors. The wall decoration of the first style is simply the adaptation of tufa construction to decorative use. The motives are identical. The forms are the same, but these naturally appear in a freer handling upon interior walls, the effect being heightened by the use or imitation of slabs of marble of various colors.
This style throughout gives the impression of roominess and largeness. It is monumental, especially when viewed in contrast with the later architecture of Pompeii. No building erected after the city became a Roman colony can be compared, for ample dimensions and spatial effects, with the Basilica. In the same class are the temples of Jupiter and Apollo, with the impressive two-storied colonnades enclosing the areas on which they stand; the contrast with the later temples, as those of Fortuna Augusta and Vespasian, is striking. All the more important houses of this period are monumental in design and proportions, with imposing entrances, large and lofty atriums, and high doors opening upon the atrium; the shops in front also were high, and in two stories.
In point of detail, the architecture of the Tufa Period reveals less of strength and symmetry than its stately proportions and modest material would lead us to expect. The ornamentation is a debased descendant of the Greek. It is characterized by superficial elegance, together with an apparent striving after simplicity and an ill-concealed poverty of form and color. Though the ornamental forms still manifest fine Greek feeling, they lack delicacy of modelling and vigor of expression. They are taken from Greek religious architecture, but all appreciation of the three orders as distinct types, each suited for a different environment, has disappeared. In consequence, we often find a mixture of the orders, a blending of Doric, Ionic, and Corinthian elements; and still more frequently do we meet with a marked departure from the original proportions. 439
Thus in the court of the temple of Apollo and in the first peristyle of the house of the Faun we see Ionic columns supporting a Doric entablature; in the house of the Black Wall, Doric columns with an Ionic entablature. The Doric architrave, contrary to rule, appears divided into two stripes, not only in the colonnade of the Forum, where the stripes represent a difference of material, but also in the house of the Faun, where the architrave is represented as composed of single blocks reaching from column to column (p. 51). In the Palaestra (p. 165), and in many private houses, the Doric column was lengthened, in a way quite out of harmony with the original conception, in order to make it conform to the prevailing desire for height and slender proportions. The shaft nowhere appears with the pronounced entasis and strong diminution characteristic of the type, and the capital has lost the breadth and graceful outline of the Greek Doric.
The Ionic columns in the cella of the temple of Jupiter (p. 65) are of the Greek type, with volutes on two sides; elsewhere we find only the so-called Roman Ionic, with four volutes, a type that appears in several well defined and pleasing examples. One of these, a capital from the portico at the entrance of the Forum Triangulare, is shown in Fig. 249. The deep incisions of the egg-and-dart pattern, which give the egg almost the appearance of a little ball, is characteristic; it is found only at Pompeii, and there not after the Tufa Period. A still freer handling of the Ionic is seen in the capital of a pilaster in the casa del duca d'Aumale (Fig. 250). 440
The Corinthian capital appears in the usual forms, but the projecting parts are shallow, on account of the lack of resisting qualities in the stone. The best examples are the capitals of the columns and pilasters of the exedra in the house of the Faun. The workmanship here is fine, the realistic treatment of the acanthus leaves being especially noteworthy. An interesting series of variations from the normal type is seen in the capitals of the pilasters at house entrances; we have already met with a striking example of this series, ornamented with projecting busts of human figures (Fig. 178). The design is often so fantastic that the essential character of the Corinthian capital seems entirely lost sight of.
The entablatures of the temples built in the Tufa Period, as of those erected in later times, have all perished. The entablatures of the colonnades, however, are at least in part well preserved in a number of instances, and are of two types, the Doric, characterized by the use of triglyphs, and the Ionic, distinguished by the dentils of the cornice.
Both types are found also in the wall decoration, the first rarely, the second very frequently. On the altar of the temple of Zeus Milichius, which is of tufa coated with stucco, the Doric entablature appears in association with the characteristic decoration of the first style, the imitation of large blocks of marble; on the top are terminal volutes of Ionic origin, as generally 441 upon Roman altars and altar-shaped tombs (Fig. 251). On walls decorated in the first style, however, only Ionic entablatures are seen,—sometimes even twice upon the same wall, as in the example shown in Fig. 122. From this we infer that in the temple construction of the Tufa Period, the simple and elegant Ionic entablature was the prevailing type.
Notwithstanding its free adaption of Greek forms, the Tufa Period availed itself very sparingly of polychrome decoration for architectural members. The stucco of the Ionic capital in the house of the Faun is white; white likewise are most of the capitals of pilasters found in the houses, and also the numerous Ionic cornices on the walls.
There are, nevertheless, scanty traces of the application of color. In the wall decoration of the house of Sallust we find a Doric frieze with the metopes painted red. The frieze under the Ionic cornices on the walls also is usually made prominent with color,—red, yellow, or blue; and a red frieze is seen in the peristyle of the house of the Black Wall, above the pilasters of the garden wall. The lower stripe of the painted architrave in the house of the Faun, already referred to, is yellow.
It seems probable that in some cases color was applied to the projecting figures of the peculiar capitals used in houses; at the time of excavation, traces of coloring were distinctly seen upon those belonging to the alae of the house of Epidius Rufus (p. 309). The exposed capitals at the entrances (Fig. 178), if originally painted, would naturally have lost all traces of the coloring before the destruction of the city, unless it were from time to time renewed. Notwithstanding these exceptions, we must conclude that the stucco coating upon public buildings and temples was generally white, in the case of capitals and cornices as well as of the shafts of columns and outside walls; colors were used to a limited extent, upon friezes and perhaps other parts of entablatures.
The architectural remains of the half century immediately succeeding the Tufa Period, between the founding of the Roman colony at Pompeii and the establishment of the Empire, present nothing specially characteristic outside of the peculiarities of construction mentioned in Chap. 6. 442
In the earlier years of the Empire, the Pompeians, as Roman subjects everywhere, commenced to build temples and colonnades of marble. The style, which was distinctively Roman, can be studied to better advantage elsewhere; the remains at Pompeii are relatively unimportant, and the chief points of interest have been mentioned in connection with our study of individual buildings.
Fig. 252.—Capitals of columns, showing variations from typical forms.
The stylistic development of Roman architecture in the next period,—the gradual transition from the simplicity of the Augustan Age to the more elaborate ornamentation of the Flavian Era,—is marked by two opposing tendencies, one conservative, holding to the traditions of marble construction, the other reactionary. The latter tendency manifests itself so strongly at Pompeii that it merits special comment.
First in the East, it appears, men wearied of seeing the ornamental forms of the Greek religious architecture repeated over and over again in every kind of building, and attempted to break away from them entirely. The reaction reached Italy in the earlier years of the Empire, and began to exert an influence upon ornamental forms, especially of domestic architecture, at the time when the third style of wall decoration was coming into vogue.
At Pompeii, this revolt from tradition affected not only the ornamentation of private houses, but also that of public buildings, as the Stabian Baths, and even of temples, as those of Apollo and Isis, rebuilt after the earthquake of the year 63. 443 Greek forms were replaced by fantastic designs of every sort, worked in stucco. The capitals of columns and pilasters retained a semblance of Doric and Corinthian types, but were adorned with motives from many sources; the variety of form and treatment can best be appreciated by inspecting the examples shown in our illustrations (Figs. 242, 253, 254).
The entablatures no longer retained the ancient division of architrave, frieze, and cornice, but were made to represent a single broad stripe, sometimes, however, with a projecting cornice; this stripe was ornamented with stucco reliefs, and was frequently painted in bright colors. Sometimes the decorative theme is taken from a vine, as in the entablature of the portico in front of the temple of Isis (Fig. 80) and that of the peristyle of the house of the Vettii (Fig. 161). In some cases the stripe is divided into vertical sections; the broad sections correspond with the intercolumniations, the narrow ones with the spaces above the columns; and the ornamental design is varied accordingly, as in the palaestra of the Stabian Baths (p. 198), the court of the temple of Apollo (Fig. 31), and the peristyle of the house of the Silver Wedding. In many instances the background is white, frequently part of the details of ornament as well; but colors were freely used, particularly red, blue, and yellow, in all parts of the entablature.
The lower third of the columns also was painted a bright red or yellow—a treatment that would have been abhorrent to the 444 taste of the Tufa Period. The desire for variety and brilliancy of color increased, and was more pronounced in the years immediately preceding the eruption than at any previous time.
Consistently with this change in the standard of taste in regard to details, the Pompeians no longer had pleasure in the ample dimensions of the olden time. Houses were not now built with high rooms, great doorways, and lofty columns as in the Tufa Period. The rooms were smaller and lower, and also, we may add, more homelike. But curiously enough, the columns were often made thick as well as short, doubtless in order to afford more space for the display of color on the capitals and the lower part of the shaft.
Roman public and religious architecture in most cities still adhered to the forms of marble construction, a suggestion of which we find in the white walls of the temple of Isis; but the lower third of the columns in the colonnade about this temple was painted red, and the entablature was no doubt ornamented with colored designs, as was that of the temple of Apollo. The best preserved example of this last phase of Pompeian architectural ornamentation is in the semicircular vaulted niche at the right of the Street of Tombs.
Thus we see accomplished at Pompeii, in less than two centuries, a complete revolution in matters of taste, so far as relates to architecture. An entirely new feeling has been developed. The beauty of contour and of symmetrical proportion found in the Greek architecture had no charm for the Pompeian of the later time; its place had been usurped by a different form of beauty, that produced by the use of a variety of brilliant colors in association with forms that were intricate, and often grotesque.
The open squares and public buildings of Pompeii were peopled with statues. The visitor who walked about the Forum in the years immediately preceding the eruption, saw on all sides the forms of the men of past generations who had rendered service to the city, as well as those of men of his own time.
Besides the five colossal images of emperors and members of the imperial families, places were provided in the Forum for between seventy and eighty life size equestrian statues; and behind each of these was room for a standing figure. Whether all the places were occupied cannot now be determined, but from the sepulchral inscription of Umbricius Scaurus (p. 418) it is clear that as late as the time of Claudius or Nero, there was yet room for another equestrian figure. Statues were placed also in the Forum Triangulare and occasionally at the sides of the streets.
In the portico of the Macellum were twenty-five statues; the sanctuary of the City Lares contained eight, while the portico of the Eumachia building furnished places for twenty-one. But only one of the hundreds of statues erected in honor of worthy citizens has been preserved, that of Holconius Rufus, the rebuilder of the Large Theatre; the figure was dressed in the uniform of a military tribune, and stood on Abbondanza Street near the Stabian Baths. With this should be classed the portrait statues in the temple of Fortuna (p. 131), and those of Octavia (Fig. 38), Marcellus (Fig. 39), and Eumachia.
The statue of Eumachia is an interesting example of the ordinary portrait sculpture of the Early Empire (Fig. 255). The pose is by no means ungraceful, the treatment of the drapery is modest and effective. The tranquil and thoughtful 446 face is somewhat idealized, and without offensive emphasis of details. The statue is not a masterpiece; nevertheless, it gives us a pleasant impression of the lady whose generosity placed the fullers under obligation, and affords an insight into the artistic resources of the city.
A number of portrait statues belonging to sepulchral monuments were found when the tombs east of the Amphitheatre were excavated (Chap. 51). Most of them are of tufa covered with stucco; the rest are of fine-grained limestone. From the aesthetic point of view they are valueless.
Sculptured portraits of a different type were set up in private houses. Relatives, freedmen, and even slaves sometimes placed at the rear of the atrium, near the entrance of the tablinum, a herm of the master of the house. At each side of the square pillar supporting the bust, there was usually an arm-like projection (seen on the herm of Cornelius Rufus, Fig. 121), on which garlands were hung upon birthdays and other anniversary occasions. Both the herm of Rufus and that of Vesonius Primus previously mentioned (p. 396) are of marble; the head belonging to the herm of Sorex (p. 176) is of bronze.
The most striking of the portrait herms is that of Lucius 447 Caecilius Jucundus (Fig. 256), which was set up in duplicate, for the sake of symmetrical arrangement, in the atrium of his house on Stabian Street. The pillar is of marble; the dedication reads Genio L[ucii] nostri Felix l[ibertus],—'Felix, freedman, to the Genius of our Lucius.'
The bust, of bronze, is modelled with realistic vigor. There is no attempt to soften the prominent and almost repulsive features by idealization. We see the Pompeian auctioneer just as he was, a shrewd, alert, energetic man, with somewhat of a taste for art, and more for the good things of life,—a man who would bear watching in a financial transaction.
Houses were adorned also with heads and busts of famous men of the past,—poets, philosophers, and statesmen. An extensive collection of historical portraits was discovered at Herculaneum, but Pompeii thus far has not yielded many examples. In a room in one of the houses was found a group of three marble heads, about one half life size, representing Epicurus, Demosthenes, and apparently the Alexandrian poet Callimachus, whose works were particularly valued in the time of the Early Empire. The identification of the third head is not certain, but whether Callimachus or some other poet is intended, the group reveals the direction of the owner's literary tastes; he was interested in philosophy, oratory, and poetry. 448
Two portrait busts of distinguished men, which evidently belong together, were found in another house, laid one side. In the Naples Museum they bore the names of the Younger Brutus and Pompey, but both identifications are erroneous; the features in neither case agree with the representations upon coins. The faces, as shown by the physiognomy and the treatment of the hair, are those of Romans of the end of the Republic or the beginning of the Empire. Recently a new identification has been proposed which has much in its favor. It rests chiefly upon the resemblance of one of the busts to the mosaic portrait of Virgil, discovered in 1896 at Susa, in Africa. The full, round face of the other agrees very well with what we know of the appearance of Horace. It may be that we have here a pair of poets, the two most prominent of the Augustan Age.
Frequently the gardens of the peristyles, as those of the houses of the Vettii and of Lucretius, were profusely adorned with sculptures of all kinds. We find in them statuettes, herms, small figures of animals, and diminutive groups. Figures derived from the myths of the bacchic cycle, Bacchus, Silenus, satyrs, and bacchantes, are particularly common. The artistic value is slight; among the best examples is the double bust, with Bacchus on one side and a bacchante on the other, found in the garden of the house of the Vettii (Fig. 257).
Characteristic among these sculptures are the figures designed for the adornment of fountains; a number of them are exhibited in the Museum at Naples. Bacchic figures are met with most frequently. A good example is the marble Silenus in the garden 449 of the house of Lucretius; the water spurts from the opening in the wineskin which the old man carries. The design of the small bronze satyr in the peristyle of the house of the Centenary is more pleasing; an opening in the wineskin, held under the left arm, cast a jet against the outstretched right hand in such a way that the water was thrown back upon the satyr's body.
Fountains were adorned also with genre groups and animal forms. We have already noticed the two bronze groups in the peristyle of the house of the Vettii, each representing a boy holding a duck, from the bill of which sprang a jet of water (Fig. 162). The largest collection of animal forms was about the basin in the middle peristyle of the house of the Citharist; it comprised two dogs, a boar, a lion, a deer, and a snake, each throwing a jet into the basin below. The fountain jets, however, were not in all cases so closely related to the ornamental pieces. A number of those in the house of the Vettii sprang from lead pipes near the figures. The familiar bronze statue of the seated fisherman, in the Naples Museum, belonged to a fountain, in which the jet was thrown forward, not from the figure, but from the mouth of a mask projecting from the stump on which the fisherman sits.
Of the statues of divinities set up for worship in the temples, there are unfortunately but few remains. The most important fragment is the head of Jupiter, discussed in a previous chapter (Fig. 22). Three wretched terra cotta statues of the gods of the Capitol were found, as we have seen, in the temple of Zeus Milichius; and mention has been made also of the herms and other specimens of sculpture in the courts of the temples of Apollo and Isis, and in the palaestra. More numerous than any other class of sculptures, however, are the small bronze images of tutelary divinities preserved in the domestic shrines. These are of interest rather from the light which they shed on the practices of domestic worship than from their excellence as works of art, and it seems unnecessary to add anything here to what has already been said in regard to them in the chapter dealing with the arrangements of the Pompeian house. But occasionally there were large domestic shrines, in which statues of merit were placed; among these are two worthy of mention. 450
In the corner of a garden belonging to a house in the first Region (I. ii. 17) is a shrine faced with white marble, in which was a small marble statue of Aphrodite, partly supported by a figure commonly identified as Hope, Spes. The carving is in no way remarkable, but the statue is of interest on account of the well preserved coloring applied to the eyes, hair, and dress. The group is now in the Naples Museum.
A more important example, from the aesthetic point of view, is the statue of Artemis, of one half life size, shown in Plate XI. It was found in a house near the Amphitheatre which was excavated in 1760 and covered up again. It is a careful copy, made in the time of Augustus, of a Greek masterpiece produced in the period of the Persian Wars. The original was probably the Artemis Laphria mentioned by Pausanias. This was a work of Menaechmus and Soedas, two sculptors of Naupactus. Previous to the battle of Actium it stood in a sanctuary in Calydon, whence it was removed by Augustus, who presented it to the colony founded by him at Patras.
The goddess appears in this statue as a huntress, moving forward with a firm but light step; the bow in the left hand has disappeared. The copyist was remarkably successful in impressing upon his work the gracious and pleasing character of the original; the later archaic Greek art, in spite of its conventions, is full of human feeling. The copy preserved also the coloring of the model; but the tinting of the Roman colorist was probably less delicate than that of the Greek limner who added the polychrome decoration to the marble original. The hair was yellow. The pupils of the eyes were brown, the eyelashes and eyebrows black. The rosettes of the diadem were yellow, and the border of the outer garment was richly variegated in tints of yellow, rose color, and white. Traces of rose-colored stripes are visible also about the openings of the sleeves, on the edge of the mantle at the neck, and on the border of the chiton.
Besides the bronze statues of Apollo and Artemis already mentioned (pp. 88, 352), four others of those found at Pompeii are worthy of more than passing notice,—the dancing satyr from which the house of the Faun received its name, the 451 small Silenus used as a standard for a vase, the so-called Narcissus and the Ephebus found in 1900.
The dancing satyr is shown in Fig. 258. It was found lying on the floor of the atrium in the house of the Faun, but the pedestal could not be identified. The figure is instinct with rhythmic motion. Every muscle of the satyr's sinewy frame is in tension as he moves forward in the dance, snapping his fingers to keep time; the pose is a marvel of skill. The unhuman character of the half-brute is indicated by the horns projecting from the forehead, and the pointed ears. The face, marked by low cunning, offers no suggestion of lofty thought or moral sense. We have here the personification of unalloyed physical enjoyment. The satyr, unvexed by any care or qualm of conscience, is intoxicated with the joy of free movement, and dances on and on, unwearied, with perfect ease and grace.
Muscular tension is skilfully indicated in the Silenus, who stands holding above his head with his left hand a round frame, in which, as shown by the fragments, a vase of colored glass was standing at the time of the eruption. The head, crowned with ivy, leans forward and to the right, and the right hand is moved 452 away from the body in the effort to balance the weight supported by the left. The frame is awkwardly designed to represent a snake. The thick-set figure of Silenus is about sixteen inches high. This bronze was discovered in 1864, in the house of Popidius Priscus (VII. ii. 20).
Fig. 259.—Listening Dionysus, wrongly identified as Narcissus. Bronze statuette in the Naples Museum.
The third of the bronzes mentioned is also a statuette, about two feet high (Fig. 259). It was found in 1863 in a house of the seventh Region (VII. xii. 21). The figure is that of a youth of 453 remarkable beauty. The face wears an expression of childlike innocence and pleasure. The head leans forward in the attitude of listening; the index finger of the right hand is extended, and the graceful pose is that of one who catches the almost inaudible sound of a distant voice.
The name Narcissus, given to the figure by Fiorelli immediately upon its discovery, is surely wrong; that unhappy youth did not reciprocate the love of the nymph Echo, and could not have been imagined with so cheerful a face. The figure has also been called Pan, from a myth in which Pan and Echo appear together; but the characteristic attributes are lacking, and the rough god of the shepherds would not have been represented in so lithe and graceful a form.
This beautiful youth, with an ivy crown upon his head and elaborate coverings for the feet, and with the skin of a doe hanging over his shoulder, is none other than Dionysus himself. The mirthful god of the vine is not playing with his panther—the base is too small to have been designed for two figures, and the attitude of listening is not consistent with this interpretation. The youthful divinity has fixed his attention upon some distant sound,—the cries of the bacchantes upon some mountain height, or the laughter of naiads in a shady glen.
Of unusual interest is the bronze statue of an ephebus, discovered in November, 1900, outside the city on the north side, about a hundred paces from the Vesuvius Gate; it was laid away in an upper room of a house presenting nothing else worthy of note. It is apparently a Greek original, and is of three-quarters life size (Fig. 260).
The statue represents a youth about fourteen years of age, of slender but well-developed form, and finely chiselled features. Advancing with firm but graceful step, he rests the right foot, and is bringing the left foot forward. In his right hand, extended, he carried some object—a branch, it may be, or a crown, which was to be laid upon an altar; the eye naturally follows the movement of the hand.
Especially effective is the rhythmic movement of the body. The right thigh, sustained by the resting foot, is carried slightly forward; the chest on the left side swings back, while in consequence 454 of the extension of the right hand the shoulders remain horizontal. Notwithstanding the felicity of the pose, it must be confessed that the modelling as a whole is somewhat lacking in vigor, the treatment of details being superficial.
In Greece, before it was carried off to Italy, the figure may have been set up as a votive offering in some sanctuary, or have stood in a gymnasium. From indications on the under side of the feet it is clear that the statue, after the manner in vogue in Greece, was mounted on a stone pedestal, being joined to the pedestal with melted lead; the round bronze base found with it is of Italian origin. Probably when it was being transported from Greece the eyes, of marble, became loose in their sockets and fell down into the hollow interior of the statue; they were replaced by glass eyes. The breaking of the right arm, which was severed when found, made possible the recovery of the original eyes, which have now again been set in place.
Insensible to the charm of the figure when seen as the sculptor designed it, the Pompeian owner, deciding to turn it to practical use, converted it into a lampholder. In the right hand was placed a short bar of bronze, to either end of which was fastened a small ornament with a projecting arm, for a hanging lamp; 455 the whole statue was then coated with silver. However barbarous the taste that prompted the transformation, the decorative effect of the silvered statue with its lighted lamps must have been far from unpleasant.
Regarding the place of the statue in relation to the development of Greek sculpture, it is yet too early to speak.
Had the ruins of Pompeii not been systematically searched, after the disaster, for works of art and other objects of value, they would have yielded a far richer store of sculptures. But while the specimens recovered add little to our knowledge of types, they give a new insight into the application of the sculptor's art in antiquity to the beautifying of the surroundings of everyday life. 456
The inner walls of houses and public buildings at Pompeii were plastered, and usually decorated with colors; only storerooms, kitchens, and apartments designed for the use of slaves were left in the white. Outer walls were as a rule plastered, except when built of hewn stone, a kind of construction not employed after the Tufa Period. Stucco was occasionally used on façades of ashlar work where special ornamentation seemed to be needed, as at the entrance of the house of the Faun; and in later times, now and then, a front with reticulate or brick facing was left unplastered. Previous to the time of Augustus the stucco coating of outer walls ordinarily remained uncolored. Afterwards color was employed, but only to a limited extent, as in the addition of a dark base to a wall the rest of which remained white.
The painting upon Pompeian walls, as shown by the painstaking investigations of Otto Donner, was fresco, that is, executed in water colors upon the moist stucco of a freshly plastered surface. The method of preparing the wall was less elaborate than that recommended by Vitruvius, who advises the use of seven coats of plaster, first a rough coat, then three of sand mortar and three of stucco made with powdered marble, each coat being finer than the one preceding. In the better rooms, however, we find upon the walls at least one, often several, layers of sand mortar, and one or more coats of marble stucco; the entire thickness of the plastering varies from two to three inches. In unfinished or neglected rooms walls are sometimes found with a single coat of sand mortar. Occasionally powdered brick was used in the stucco as a substitute for marble dust.
Plastering so thick as that ordinarily used must have remained moist for a considerable length of time, much longer than the 457 plastering of our day; yet it could not have retained its moisture long enough to complete the painting of an entire wall as one piece. Walls which are elaborately decorated sometimes show traces of a seam, where a moist section was laid on next to one that had already become partially dry. When the decorative design included pictures, usually the divisions and borders and other decorative elements were finished rapidly while the surface was moist; then a square or round hole was cut where a picture was to be inserted, and filled with fresh stucco, on which the picture was painted. In this way a carefully executed painting could be set in a wall already dry.
In the last years of the city pictures were sometimes painted on the dry surface of a wall that had previously received its decorative framework; some of the figures seen in the middle of the large panels furnish examples of this method of work. A size of some kind must have been used in such cases, but chemical analysis thus far has failed to determine its nature. The distemper painting was much less durable than the fresco, the colors of which became fixed with the hardening of the wall.
Sometimes, as in the house of Lucretius, the place of paintings upon stucco was taken by paintings upon wood, the wooden panels being let into the wall. As these panels were thin and lacked durability, we may perhaps believe that the paintings which they contained were of inferior quality.
The artistic value of Pompeian painting varies from the routine work of indifferent decorators to pictures of genuine merit, such as those found in the house of the Tragic Poet, the house of the Vettii, and the house of Castor and Pollux. Viewed as a whole, the wall decoration has a peculiar interest for us; it not only richly illustrates the application of painting by the ancients to decorative uses, but also affords a striking example of the evolution of decorative designs from simple architectural motives to intricate patterns, in which the scheme of coloring is hardly less complicated than that of the ornamental forms.
The four styles of wall decoration were briefly characterized in the Introduction, in connection with our survey of the periods 458 of construction. It now remains to illustrate these by typical examples and to trace their inner connection. We are here concerned only with the decorative designs, or ornamental framework of the walls; the paintings, which formed the centre of interest in the later styles, are reserved for consideration in a separate chapter.
The development of ancient wall decoration came comparatively late, after the art of painting, in the hands of the Greek masters, had reached and passed its climax. Yet we know almost nothing in regard to the earlier stages. Apparently the system which we find at Pompeii originated in the period following the death of Alexander the Great, and received its impulse of development from the contact of Greece with the Orient. But whatever the origin, from the time to which the earliest specimens at Pompeii belong—the second century B.C.—to the destruction of the city, we can trace an uninterrupted development, which, nevertheless, comes to an end in the latter part of the first century A.D.
The decline is characterized by increasing poverty of design, with feeble imitation of past styles. Just as it is setting in, however, extant examples become rare. Some specimens of the wall decoration of later times, as of the period of the Antonines and the reign of Septimius Severus, are preserved, but they are isolated and not sufficient in number to enable us to follow the stages of the decline. Thus it happens that the only period in the history of ancient wall decoration in regard to which we have the materials for a full and satisfactory study, is the period exemplified in the remains at Pompeii, the chronological sequence of which extends over two centuries.
The oldest houses, those belonging to the Period of the Limestone Atriums (p. 39), have preserved no traces of wall decoration beyond the limited application of white stucco.
The remains of the decoration of the Tufa Period are fairly abundant, and are well preserved on account of the excellent quality of the stucco to which the colors were applied. They belong to the first or Incrustation Style. A good example has already been given, the end wall of a bedroom in the house of the Centaur (Fig. 122); we present here, for more detailed 459 examination, the left wall of the atrium in the house of Sallust (Fig. 261).
Notwithstanding the lack of color in our illustration, the divisions of the wall are plainly seen—a dado, painted yellow; a relatively low middle division, the upper edge of which is set off by a projecting cornice; and an upper part reaching from the first cornice, which appears in three sections on account of the doors, to the second. The surface of the main part of the wall is moulded in stucco to represent slabs or blocks with bevelled edges, which are painted in imitation of different kinds of marble. Above the high double doors opening into rooms connected with the atrium, frames of lattice-work for the admission of air and light have been assumed in our restoration.
The dado in the Incrustation Style is generally treated as a separate member; in rare instances the imitation of marble blocks is extended to the floor. It has a smooth surface and is painted a bright color, usually yellow; there is no suggestion of the practice of later times, which gave a darker color to the base than to the rest of the wall. This independent handling is undoubtedly to be explained as a survival from a previous decorative system, in which the lower part of the wall, as at Tiryns, was protected by a baseboard; the conventional yellow color with which it is painted, as in the case of the lower stripe of the Doric architrave in the house of the Faun (p. 51), is a reminiscence of the use of wood. The upper edge of the dado was ordinarily distinguished by a smooth, narrow projecting band or fillet.
The blocks moulded in slight relief upon the main part of the wall are of different sizes. In our illustration we see first a series of three large slabs, which are painted black. Above these are three narrow blocks of magenta. The rest present a considerable variety of size and color, until we reach those just under the cornice, which again are all of the same shade, magenta.
The cornice in this style is always of the Ionic type, with dentils. In many cases, as that of the bedroom in the house of the Centaur, it serves as an upper border for the decoration, the wall above being unpainted. Sometimes, however, the 460 imitation of marble is carried above the cornice, the wall surface being divided to represent smoothly joined blocks without bevelled edges, or painted in plain masses of color separated by a narrow white stripe, as in the atrium of the house of Sallust. Above these brilliant panels we see in Fig. 261 a second cornice of simple design; the wall between this cornice and the ceiling was left without decoration.
This system made no provision for paintings; their place was taken in the general scheme of decoration by elaborate mosaic pictures upon the floor. The taste of the age evidently preferred representations in mosaic; otherwise the painting of pictures upon the walls, which was brought to so high a degree of perfection by Polygnotus and his contemporaries, would not have been abandoned.
The Incrustation Style, as exemplified at Pompeii, is in a secondary stage; it must have been worked out originally in genuine materials, at a time when walls were actually veneered, to a certain height, with slabs of various kinds of marble, cut and arranged to represent ashlar work; above the cornice marking the upper edge of the veneering, the surface was left in the white. The use of different varieties of marble points 461 to an active commercial intercourse between the countries about the Mediterranean Sea, such as first became possible after the conquests of Alexander. So characteristic a style, requiring the use of costly materials, could only have been developed in an important centre of wealth and culture.
In view of all the circumstances, we are probably safe in concluding that the Incrustation Style originated in Alexandria, in the third century B.C. From Alexandria it spread to other cities of the East and West, stucco being used in imitation of marble, where marble could not be procured; scanty remains similar to those at Pompeii, and of approximately the same period—the second century B.C.—have been found at Pergamon, on the island of Delos, and lately in Priene. This style represents for us the wall decoration of the Hellenistic age. It is characterized by the same poverty of form and obvious striving after simplicity which we have noticed in the architecture of the Tufa Period. The projecting cornice above the body of the wall is always of the same type; yet the second century B.C. enjoyed a rich heritage of architectural forms, and lack of variety in this and other details of ornamentation was due, not to dearth of materials, but to the prevailing taste. 462
The earliest known example of the decoration of the second or Architectural Style, is on the walls of the Small Theatre, which was built soon after 80 B.C. The style remained in vogue till the middle of the reign of Augustus; it may be loosely characterized as the wall decoration of the first century B.C. It shows an interesting development from simpler to richer and more complex forms. The more elaborate and finished designs are not so well exemplified at Pompeii as in Rome, where two beautiful series have been found, both dating from the earlier part of the reign of Augustus. One series is in the so-called house of Livia or Germanicus on the Palatine. The other was found in a house on the right bank of the Tiber, excavated in 1878; the paintings were removed to the new Museo delle Terme. The specimen shown in Plate XII, however, is from a Pompeian wall; the room in which it was found opens off from the peristyle of a house in the fifth Region (V. i. 18).
The oldest walls of the second style closely resemble those of the first, with this characteristic difference: the imitation of marble veneering is no longer produced with the aid of relief; color alone is employed, upon a plane surface, as in the cella of the temple of Jupiter (Fig. 20). The earlier division of the wall into three parts is retained, but the painted cornice, no longer restricted to the dentil type, appears in a variety of forms. The base also is treated with greater freedom. Frequently it is painted in strong projection, as if the rest of the wall above it were further from the eye, while upon the shelf thus formed are painted columns reaching to the ceiling and seemingly in front of the main part of the wall; such columns and pillars, with Corinthian capitals, are seen in Plate XII, at the right and the left.
Thus the designs of this style at first comprised only simple elements, a wall made up of painted blocks or panels with a dado painted in projection supporting columns that seemed to carry an architrave on which the ceiling rested; there is an excellent example in the house of the Labyrinth, on the walls of a room at the rear of the garden. But the designs gradually became more complex, partly through the differentiation of the simple elements, partly through the introduction of new motives, until 463 a complete architectural system was developed. This system differs from that of the fourth style, which is also architectural, in that it adheres in the main to actual or possible structural forms, while those of the fourth style are fantastic in their proportions and arrangement.
In this process of development two clearly defined tendencies become manifest, one affecting the treatment of the upper division of the wall, the other the elaboration of a characteristic motive which now first appears, a framework for the principal painting; for architectural designs are well adapted for the display of pictures, and wall paintings now begin to have a prominent place in Pompeian decoration.
The upper division tends more and more to be represented as an open space, behind the plane of projection in which the main part appears. Thus in Plate XII we see on either side a silver vase with fruits and vine leaves, standing on the cornice of the main wall, in the open. Often the upper space is painted blue, as if one caught a glimpse of the sky above the wall; sometimes the outline of a wall further beyond is seen, or columns in the rear connected with those in front by a decorative framework; and not infrequently small architectural designs, in perspective, rest upon the cornice where the vases are shown in our plate. But in all the designs of this style, complex as well as simple, the threefold division of the wall carried over from the first style is retained; very often the distinction between the base, main wall, and upper portion is emphasized by painting them so that they seem to be in three planes of projection.
The ornamental framework for the painting, consistently with the architectural character of the decoration as a whole, is generally conceived as a pavilion projecting from the wall; so in Plate XII, where we see two columns sustaining a roof, upon the front of which winged figures stand, each with a hand extended upward to the entablature of the large pillars at the sides. The design of the pavilion is suggested by that of a shrine, such a shrine as the one in the apse of the sanctuary of the City Lares (Fig. 41).
This conception is here borne out by the subject of the painting, which represents a statue of Dionysus resting, ivy-crowned, 464 with a thyrsus in his left hand; the right hand is thrown gracefully over the head, and at the feet of the god the lifelike figure of a panther is seen. The round high pedestal supporting the group is in the open, and the background affords a charming vista among the trees.
This framing of the principal painting led further to the division of the body of the wall vertically into three sections, a broad central section, included within the outline of the pavilion, and two panels, one at each side. The arrangement is well illustrated in our plate, the side panels of which are adorned with painted statues of tastefully draped figures, one of them holding a lyre. The later styles of decoration retained this symmetrical division of the wall space, which made prominent the picture of greatest interest without detracting from the finish of the decorative setting; but in the fourth style it is often obscured by the intricacy of the designs.
The third style came into vogue during the reign of Augustus, and was prevalent until about 50 A.D.; we shall call it the Ornate Style, from its free use of ornament. It was developed out of the second style in the same way that the second style was developed out of the first; but the transition was not accomplished at Pompeii, which, like the provincial cities of our day, received its fashions from the great centres.
The characteristics of the Ornate Style, as regards both the main design and the ornamentation, may easily be perceived from the example presented in Fig. 263, especially if this is viewed in contrast with the specimen of the preceding style shown in Plate XII. The architectural design has now lost all semblance of real construction. Columns, entablatures, and other members are treated conventionally, as subordinate parts of a decorative scheme; they are, with few exceptions, reduced to narrow bands or stripes of color dividing the surface of the wall. The elaborate border of the central painting suggests a pavilion, yet the projecting base, which in the second style gave this design its significance, is lacking. Hardly less noteworthy is the treatment of the upper portion of the wall. Fanciful architectural forms and various ornaments stand out against a white background, suggestive of the open sky; yet in our 465 example, as often in this style, there is no organic connection between the decoration of the main part of the wall and that of the ceiling.
Every part of the framework of the third style is profusely ornamented. The ornamental system is seen to have a certain affinity with that of Egypt, and Egyptian figures occasionally appear; whence we infer that it was developed in Alexandria. Early in the reign of Augustus, in consequence of the relations with Egypt following the battle of Actium, a new impulse may well have been given to the introduction into Italy of Alexandrian art.
The specimen of the third style shown in Fig. 263 is from the beautiful decoration of the house of Spurius Mesor, portions of which are well preserved. The base of our specimen consists of two parts, a lower border and a broad stripe of black divided into sections of different shapes and sizes by lines of light color. In the small sections ornaments are seen painted in delicate shades, two of them being faces.
The large painting presents a mythological scene, but the subject is not clear. The priestess seems to be performing a ceremony of expiation in order to free from the taint of some crime the young man who, with a wreath on his head and a sword, pointed downward, in his right hand, bends over the hind just slain as a sacrifice. The colors are subdued and effective; the painting from the technical point of view is among the best found at Pompeii.
Around the painting are narrow black stripes separated by white lines; in the broader stripe underneath, between the columns, are two light blue birds upon a dull red ground. The small squares in the flat cornice above are of many colors, shades of green, pink, and brown predominating. The broad panels on either side of the painting are of the color often called Pompeian red; they have an ornamented border, and a small winged figure in the centre. The stripe below these shows vases and other ornaments on an orange-yellow ground; that above, interrupted by the cornice over the painting, is black, with various ornaments, as baskets of fruit, sistrums, and geese, painted in neutral colors. Among the ornaments of the upper 466 part of the wall, festoons of leaves, vines, vases, parrots, and griffins can be distinguished, painted in light shades of brown, blue, green, and yellow.
The effect of the Ornate Style, with its symmetrical forms and variety of detail, is pleasing; but the free use of neutral 467 tones gives the walls a somewhat cold and formal appearance when we bring into contrast the warm coloring of the next period.
The fourth or Intricate Style first appears about the middle of the first century A.D. It started, as did the third, with the symmetrical division of the wall developed in the second style; it differs from the third in that it always retained a sense of architectural form. The columns are often fluted, as in a specimen in the Naples Museum (Fig. 264). The entablatures and coffered ceilings, light and airy as they often seem, have nevertheless a suggestion of reality; we know that architectural forms are presented, and not mere stripes of color. Yet the difference between the fourth and the second style is no less apparent. In the latter the architectural designs are not inconsistent with real construction; in the former the imagination of the designer had free scope, producing patterns so fantastic and intricate that the fundamental idea at the basis of the wall divisions seems entirely lost sight of at times.
The preference for architectural forms was carried so far that between the large panels of black, red, or yellow, vertical sections of wall were left which were filled with airy structures on a white background; the parts represented as nearest the beholder were painted yellow, those further back were adorned with all the colors of the rainbow, thus forming a kind of color perspective (Fig. 265). The designs of the main part were extended into the upper division, and frequently the whole wall appears as an intricate scaffolding, partially concealed by the large panels; these sometimes have the appearance of tapestries hanging suspended from the scaffolding, and are so treated, as in the case of the curtains shown in Plate XIII. The fundamental conception of the decorative system is lost when the background of the upper part and of the airy scaffoldings is no longer left white, but painted the same color as the rest of the wall, so that the effect of distance and perspective is obscured. Occasionally, also, the architectural framework of the upper portion of the wall has no connection with that of the main part.
The ornaments of the fourth style were taken largely from the domain of plastic art. Groups of statuary as well as single 468 figures appear either upon projecting portions of the architectural framework, as in Fig. 264, or in the background. They are frequently painted yellow, suggesting the gilding applied to ancient statues, particularly those of bronze, and present a striking contrast to the masses of strong color in the large panels and the brilliant shades of the architectural designs. They are in harmony with the taste of the period, which, as we have seen, manifested a fondness for ornamentation in stucco relief, the effect of which was heightened by the free use of color.
The large panels contained paintings of various sizes, sometimes copies of masterpieces, more often a simple floating figure or a Cupid; groups are also found, as Cupid and Pysche, or a satyr with a bacchante. The appearance of a picture worked in tapestry is given by a border just inside the framework of the panel, as often in the decoration of the fourth style.
The fourth style cannot have been derived from the third. It is organically related with the second, out of which it was developed by laying stress on precisely that element, the architectural, the suppression of which gave rise to the third style 469 of decoration. The most reasonable explanation of the relations of the four styles, briefly stated, is this:—
The Incrustation Style, a direct offshoot of Hellenistic art, was prevalent in eastern cities, where it was naturally followed by the Architectural Style; this may have been developed at one centre or, in different phases, at different centres contemporaneously.
Fig. 265.—Specimen of wall decoration. Fourth style.
In the middle panel, mythological scene in which Hercules is the principal figure; in each
of the panels, a satyr and a bacchante.
At some prominent centre, probably Alexandria, the Architectural Style passed over into the Ornate Style, which was introduced into Italy in the reign of Augustus and remained in vogue till the middle of the first century A.D.
Meanwhile, at some other centre of culture, possibly Antioch, the Architectural Style, by an equally natural course of development, 470 had passed over into the Intricate Style, which was first brought to Pompeii about 50 A.D. and remained in fashion till the destruction of the city.
The earthquake of the year 63 threw down some buildings and made necessary the thorough-going repair of many others. Between that year and 79, more walls were freshly decorated, probably, than in any previous period of equal length in the history of the city. For this reason, examples of decoration in the Intricate Style are much more numerous than might have been expected from the length of time that it was in vogue; they give the prevailing cast to the remains of painting in the ruins, and this style is ordinarily thought of when Pompeian wall decoration is referred to. The complex designs and brilliant colors form a decorative scheme which is often most effective, although the system of the third style reveals a finer and more correct taste.
If no remains of the two earlier styles had survived to modern times, the antecedents and relations of the other two could not possibly be understood. But with the first two in mind, we are able to see clearly how the most complex forms of the later decoration may be reduced, in last analysis, to simple elements. Even in the example of the Intricate Style given in Plate XIII, we find a suggestion of the threefold division of the wall into base, main part, and upper part, which was so prominent in the Incrustation Style; and also an elaborate structural form at the middle of the wall recalling the pavilion framework of the second style, with a symmetrical arrangement of the architectural designs on either side, suggesting the panels at the sides of the principal painting.
The slabs of colored marble in the Incrustation Style are represented by panels for pictures or ornamental forms of all shapes and sizes; and the architectural designs, so simple at the beginning, have by almost imperceptible changes and additions become decorative patterns so varied and intricate that taken by themselves they give no hint of their origin.
The hanging of pictures upon the walls seems not to have been in vogue at Pompeii during the period to which the remains belong. The system of decoration left no room for framed paintings, and no traces of any such have been discovered. The paintings which have been preserved at Pompeii, not merely the small groups and single figures introduced to enliven the design, but the large compositions as well, all formed a part of the wall decoration.
The number is relatively large. In the catalogue by Helbig, published in 1868, there are nearly two thousand entries, including a few paintings from Herculaneum and other Campanian sites. The supplement compiled by Sogliano in 1879 records more than eight hundred pictures brought to light in the preceding decade. We are probably safe in estimating the whole number of Pompeian paintings still in existence, or known from description, as about thirty-five hundred.
In all this wealth of examples, however, it is not possible to find any evidence of a progressive development either in composition or in technique. There are indeed slight differences, mainly in regard to technical handling and color scheme, which distinguish the paintings found in the decoration of the third style from those of the other two styles in which paintings appear; but, on the other hand, the distinction between those of the second and those of the fourth style is much less marked.
The period from 80 B.C. to 79 A.D. was as little creative in the field of painting as in that of sculpture. No new types appear, no improvements are worked out; the painter, as the sculptor, was an eclectic, who drew upon the creations of the past as suited his fancy, and contented himself with copying or imitating. In 472 the adaptation of paintings to decorative use the artist reproduced either entire compositions or single motives which seemed to answer his purpose. The general preference was for paintings of the Hellenistic age, after the death of Alexander; yet examples of earlier styles are occasionally found, as the Sacrifice of Iphigenia (Fig. 156) and the dramatic scene in which Orestes and Pylades appear before King Thoas (Fig. 182).
New discoveries and the progress of research will sometime, perhaps, make it possible to present a general survey of the Pompeian paintings from the historical and critical point of view. No such comprehensive treatment is yet possible, however, and we must content ourselves with offering a few observations in regard to the distribution of the paintings among the different decorative styles and the classes of subjects represented.
The Incrustation Style, as previously remarked, left no place for paintings upon the walls. Nevertheless, in isolated cases, we find a simple pictorial representation upon the surface of one of the blocks painted in imitation of marble, as if the veins of the stone had run into a shape suggestive of an object, as a vase or a bird; in one instance, curiously enough, a wrestling match is outlined, between Hercules and Antaeus. In the Tufa Period the desire for paintings was satisfied by the mosaic pictures upon the floor.
The earlier walls of the second style in this respect resemble those of the first; the examples in the house of the Labyrinth have no paintings. The later walls, however, are rich in pictures, but those of Pompeii are not so abundantly adorned as those in Rome (p. 462). The elaborate painting shown in the pavilion frame in Plate XII is exceptional among the Pompeian remains of this style.
The great majority of the paintings are found upon walls of the third and fourth styles. On the older walls of the third style, as we have seen, the principal painting appears in a frame, the design of which is taken from that of the conventional pavilion of the second style. In later examples the close relation between the picture and the frame is no longer maintained; the frame simply encloses a large panel of uniform 473 color, in the middle of which a relatively small picture is seen. This arrangement was carried over into the fourth style, but the conception of a pavilion frame is entirely lost sight of; the painting is in the middle of a large panel of brilliant color, around which the architectural framework is extended. A Pompeian room well decorated in either of the later styles contained four of these prominent paintings, in case there was no door at the middle of one of the sides; if a door interfered, there were only three.
Paintings were also placed in the divisions of the wall at the right and the left of the central panel. In Plate XII we noticed a single figure on either side of the pavilion, but such additions are rare in the second style. In the third style the side panels are uniformly adorned with paintings. In Fig. 263 the small figure in the middle of the panel at the left is a Cupid; frequently a flying swan is seen, or a landscape lightly sketched in monochrome on the ground of the panel. Sometimes the painting is set off by a separate frame; if this is round, a bust is usually represented. Groups of two figures were preferred for the side panels of the fourth style, the favorite subject being a satyr and a bacchante, as in Fig. 265; these sometimes appear as busts, but are more often represented as floating figures.
Characteristic of the fourth style, in respect to the distribution of paintings, is the use of single figures and simple compositions to add life to the fantastic architectural designs in the upper part of the wall and in the divisions between the large panels. Here we may see satyrs and bacchantes, young girls and solemn-visaged men with implements of sacrifice; the figures appear in great variety of type and subject. Sometimes groups are broken up, and the elements of a mythological scene, as that of Admetus and Alcestis, are distributed as single figures in the architectural framework.
At the time of the eruption the fondness for pictorial representations was increasing, and they were being introduced into every part of the decoration, including the frieze of the main part of the wall, the use of which in this way commenced in the time of the third style (Fig. 263), and the stripe below, between the main part of the wall and the base (Fig. 265); 474 how elaborate this intermediate decoration might become we have already seen in the case of the house of the Vettii.
Frequently in the fourth style the lower part of the architectural framework separating two large panels appears to be closed, as in Plate XIII, by a narrow panel, above which a painting is seen. The pictures found in these places often represent still life. Seafights are also a favorite subject; such may be seen in the temple of Isis, the Macellum, and one of the rooms in the house of the Vettii. Generally on the walls of the fourth style, wherever there is available space, we find small pictures in great variety, the most common being landscapes, simply painted, with the use of few colors.
It is by no means easy to make a satisfactory classification of Pompeian paintings according to subject. Nevertheless, with a few exceptions, they may be roughly grouped in four general classes, mythological paintings, genre paintings, landscapes, and still life. Most of the large and important pictures belong to the first class. The mythological paintings will therefore be discussed at somewhat greater length; the other three classes will require only a brief characterization.
The still-life paintings represent all kinds of meat, fish, fowl, and fruits. According to Vitruvius, this kind of picture was called Xenion. The reason given for the name recalls a curious custom of ancient Greece. When a guest, xenos, was received into a Greek home, says this writer, he was invited to sit at the table for one day. After that provisions were furnished to him uncooked, and he prepared his own meals. A portion of unprepared victuals thus came to be called xenion, 'the stranger's portion,' and the name was afterwards transferred to pictures in which such provisions appear. A fruit piece, now in the Naples Museum, is shown in Fig. 266. 475
Landscapes are numerous and of all sizes. Occasionally a garden wall of the fourth style is covered with a single large painting, in which villas, gardens, roads, and harbors are realistically presented. Such pictures are of Italian origin; the name of the artist who first painted them is probably Sextus Tadius, but the reading of the passage in which the name occurs (Plin. N. H. XXXV. x. 116) is uncertain.
Common to the third and fourth styles are garden scenes, in which, behind a light barrier, the plants of a garden appear, with birds, statues, and fountains. The finest extant example is in the villa of Livia, at Prima Porta, near Rome.
Large landscapes sometimes have a place in the principal panels of the walls. These are all of Hellenistic origin, and are found almost without exception in the decoration of the third style. They generally represent a quiet nook of woodland, with high cliffs; in the foreground is a shrine—perhaps more than one—with figures of men sacrificing or coming to offer worship.
The great majority of the landscapes, however, are introduced into various parts of the decoration outside of the large panels, and are quite small. In them we see little shrines or villas by the seaside; a river with a bridge on which a traveller appears crossing the stream; or buildings on an island or peninsula in the edge of a body of water, as in Fig. 267. Often they are 476 simply light sketches; now and then one of these small landscapes is painted in a peculiar tint, as if the scene were represented by moonlight.
The genre paintings are of special importance on account of the light they shed on the life and customs of the ancients. A number have already been described or illustrated in the chapter on the house of the Vettii, and in the part devoted to the trades and occupations. To these we should add the picture of an artist in the house of the Surgeon (Fig. 133), and the scenes from the life of the Forum (Figs. 16, 17).
Here belong also the groups in which figures are seen with a roll of papyrus or a writing tablet, suggestive of literary pursuits, and figures with musical instruments. A group of musicians 477 is shown in Fig. 268, in which are four women, one of whom is tuning a couple of stringed instruments to sound in unison.
In the same class are included two small painted busts not infrequently met with, that of a girl with a writing tablet in her left hand holding the end of a stylus against her lips, as if pondering what to write, and that of a young man with one end of a roll of papyrus, in which he has been reading, under his chin. A Pompeian baker, Publius Paquius Proculus, brought these two ideal busts into one painting, substituting for the faces of the youth and maiden those of himself and his wife (Fig. 269). The portraits are realistic, but the faces are not unattractive; that of Proculus seems more kindly and ingenuous than the face of Caecilius Jucundus (Fig. 256).
Two ideal painted busts have recently been found, each of a youth with a roll of papyrus. Their chief interest lies in the 478 fact that each roll is provided with a narrow tag or label, of the sort that the Romans called index, on which the names Plato and Homerus can be plainly read. The two types of face well correspond with the trend of taste suggested by the titles: the delicate features and upturned gaze of the one indicate a poetic temperament; the other has a high forehead and an air of meditation, appropriate for a student of philosophy.
The mythological paintings rarely present rapid movement. To the few exceptions belong the two familiar pictures placed opposite each other in the tablinum of the house of Castor and Pollux, Achilles among the daughters of Lycomedes on the island of Scyros, and the quarrel between Achilles and Agamemnon. Only part of the latter painting is preserved, but both are strong compositions, and are repeated on other walls.
Scenes of combat, the interest of which lies in the display of physical force, are still more infrequently met with, and seem out of harmony with the prevailing taste. Two pictures from Herculaneum represent Hercules putting forth his strength; in one he is struggling with the Nemean lion, in the other carrying the Erymanthian boar. The few paintings of this kind at Pompeii are badly preserved. In two of them Meleager appears, engaged in combat with the boar; in another we see Achilles before the walls of Troy with drawn sword in one hand, with the other grasping by the hair Troilus, an effeminate Trojan youth, attired in Oriental fashion, who mounted on his horse is vainly trying to escape; a fourth represents a combat between a heavy-armed warrior and an Amazon. But such paintings are the more conspicuous by reason of their rarity, and those that have thus far been discovered are all found upon walls of the third style.
A much larger number of mythological compositions represent a moment of dramatic interest, the artist relying for his effect upon the bearing and facial expression of the persons appearing in the scene. The interest is purely psychological, and several of the pictures that have been preserved give us an exceedingly favorable idea of the ability of ancient painters to express emotion, especially when we remember that these paintings 479 are merely decorative copies of masterpieces the originals of which in most cases had probably never been seen by the workmen who painted the copies on the walls.
Among the more familiar examples is the face of Orestes in the painting found in the house of the Citharist (Fig. 182), and that of Io, watched by Argus, in the Macellum. Emotion is expressed with even greater skill in the face of Io in a painting of the temple of Isis. The goddess welcomes the wanderer to Egypt after her long season of suffering; the traces of the suffering are clearly seen, yet are illumined by the ineffable and serene joy of final deliverance.
One of the most beautiful specimens of ancient painting is a fragment, badly preserved, in the tablinum of the house of Caecilius Jucundus. The composition probably represented Priam turning back toward Troy with the body of Hector, which he had just ransomed. In the fragment, shown in Fig. 270, we see the aged Hecuba, together with a daughter or maidservant, looking with unutterable anguish from an upper window down upon the scene. The gray-haired queen, whose features still retain much of their youthful beauty, gazes upon the dust-stained body of her son with grief too deep for tears.
Fig. 270.—Hecuba with a younger companion looking from an upper window as Priam brings back the body of Hector.
In the majority of paintings the subjects of which are taken from myths the characters are represented either in a relation of rest, not suggestive of intense emotion, or in a lasting situation of dramatic interest, which is devoid of momentary excitement and does not suggest the display of evanescent feeling. The situation is sometimes cheerful, sometimes calculated to arouse sympathy; if the characters were not mythological, the scenes might pass for those of everyday life. Thus we see Narcissus 480 looking at the reflection of his face in a clear spring in the forest; Polyphemus, on the seashore, receiving from the hands of a Cupid a letter sent by Galatea; and Apollo playing on the lyre for Admetus, while the herd grazes around him.
To the same series of cheerful or idyllic pictures belong the Selene hovering over the sleeping Endymion; Paris and Oenone on Mt. Ida, Paris cutting the name of his sweetheart in the bark of a tree; and Perseus with Andromeda looking at the reflection of the head of Medusa in a pool. With these we may class also the representations of Bacchus as he moves along with his rollicking band and suddenly comes upon the sleeping Ariadne; and Hercules with Omphale, sometimes sitting in woman's attire beside her and spinning, sometimes staggering in his cups or lying drunk upon the ground while she stands or sits near him.
Examples of a pathetic situation are equally abundant. We find Aphrodite caring for the wounded Adonis, and Cyparissus grieving over the dead stag. The pathos of the scene, however, is not always so obviously suggested. The familiar painting of Europa represents the maiden playfully sitting upon the bull, which one of her girlish companions is caressing. The situation, from one point of view, is idyllic, yet it brings to mind the unhappy fate of the girl, borne far away from home over the sea to a distant land, and the effect is heightened by giving her a wonderfully beautiful form.
Not infrequently a similar result is produced by placing figures of incongruous type in sharp contrast; so in the oft-repeated composition in which the beautiful Thetis in elegant attire sits in the workshop of Hephaestus, looking at the shield which the rough and grimy smith is finishing for Achilles. In another composition Pasiphaë is seen in the shop of Daedalus, who points out the wooden cow; and a similar idea of contrast must have been present in the mind of the artist who painted Danaë after she had been cast ashore in a chest on the island of Seriphus, sitting on the beach with little Perseus in her lap, while two fishermen standing near make inquiry concerning her strange fate.
The symmetrical arrangement of the paintings in a Pompeian room can hardly have failed to influence the choice of compositions 481 for the principal panels, especially in cases in which mythological scenes were to be represented. Sometimes, though not so frequently as might have been expected, pictures were grouped according to subject. We have already noticed the relation of two paintings, in the house of Castor and Pollux, in which Achilles is the principal figure. The first of these, Achilles among the daughters of Lycomedes, is found in a room of another house in a group of three; one of the companion pieces represents Thetis in the smithy of Hephaestus looking at the weapons which are being made for Achilles, while in the other she is seen riding over the sea on a Triton, bringing them to her son. There is another group of three pictures related by subject in a room in the house of the Vettii; they belong to the Theban cycle, and represent the infant Hercules strangling the serpents, the death of Pentheus, and the binding of Dirce.
Similarity of scene and of treatment influenced the selection of paintings for a room much more often than unity of subject. A good illustration is the pair of pictures several times found together, one of which represents Polyphemus on the beach receiving from a Cupid a letter written by Galatea; in the other Aphrodite is seen on the seashore fishing, with Cupids all about her. The suggestion of Love is common to both paintings, but the juxtaposition of the two as counterparts is due to the similarity of scene. Opposite the picture of Europa referred to above, is a Pan playing on his pipe, with nymphs around him; the two pictures, which appear in a room of the third style, from the decorative point of view form an effective pair.
A sleeping room of the same style—though in respect to grouping no difference between the styles is apparent—offers an interesting example of a double group. The four principal paintings form two pairs. In one pair we see, on one side, Hercules in the garden of the Hesperides approaching an altar around which three maidens are standing; on the other, a shrine of Artemis in a forest with three worshippers drawing near, one of whom brings a garland. The two pictures harmonize in the character of the scenery and in the arrangement of the figures.
The effectiveness of the other pair as a decorative counterpart can be seen in our illustrations; the subject of one of the 482 paintings is the fate of the pipes which Athena cast aside (Fig. 271), and of the other the fall of Icarus (Fig. 272).
In the first of the two pictures we have one of the few extant examples of a kind of painting associated with the name of Philostratus, in which different scenes representing the successive stages of an action are united in one composition.
In the foreground at the left sits Athena, with her shield on the ground beside her, playing the double pipe; a nymph in front rising from the surface of a stream holds up a mirror in which the goddess may see her face reflected as she plays.
The next two scenes lie just across the brook. At the foot of the cliff sits the divinity of the country, Phrygia, in which the story of Marsyas is localized. Above, at the left, we see the satyr with a shepherd's crook in his left hand blowing a Pan's pipe; he has not yet espied the pipes thrown away by Athena.
At the right he appears again, near the tree, having found the pipes discarded by the goddess and picked them up. Lastly, in the middle of the background, we see him playing the pipes 483 in the presence of the Muses, who are serving as judges in the contest of skill between the satyr and Apollo.
The final scene with the flaying of Marsyas, which was sometimes represented in sculpture, and appears also in several Pompeian paintings, is here omitted.
The inner connection of the other picture is not so clear. It is perhaps a confused form of a composition in which Icarus, lying on the ground after his fall, was the central figure; the local divinities and natives of the region were looking upon the body of the hapless youth with pity; while Daedalus, hovering in the air above, was trying to find the spot where he had fallen.
Our artist, however, thinking to heighten the effect, represented Icarus as plunging headlong through the air, with the result shown in the illustration; neither Daedalus nor the figures in the foreground seem yet to have become aware of the catastrophe.
We can in no way more appropriately bring to a close our brief survey of the Pompeian paintings than by presenting a reproduction of the scene in which Zeus and Hera appear on 484 Mt. Ida (Fig. 273). This painting has been sufficiently discussed in another connection (pp. 316-317); though preserved in a damaged condition, it clearly represents an original of no slight merit.
The inscriptions discovered at Pompeii number more than six thousand. They cover a wide field, ranging from commemorative tablets put up at public expense to the scribblings of idlers upon the plastered walls. It would be an exaggeration to say that they contribute to our knowledge of antiquity much that is new; their value lies rather in the insight which they give into the life of the city and its people.
In one respect the evidence derived from inscriptions, though often of the most fragmentary character, is especially satisfactory. We feel that we are handling original documents, without the intervention of that succession of copyists which stands between the author of a Greek or Roman masterpiece and the modern reader. The shapes of the letters and the spelling are just as they were left by the stonecutter or the scribbler; the various handwritings can still be as plainly distinguished on the charred tablets of Caecilius Jucundus as though the signatures were witnessed only yesterday. Through the inscriptions we are brought into contact with the personality of the Pompeians as in no other way.
The inscriptions may be classified either according to the subject matter or according to the form in which they appear, whether cut in stone, or painted, or scratched upon a smooth surface with a stylus. No detailed classification need be given here; it will be sufficient for our purposes to discuss the main divisions briefly under four heads,—monumental inscriptions and 486 public notices, graffiti, and inscriptions relating to business affairs.
Monumental inscriptions include those which are cut in hard material and are intended to be read by all who see them. They are found at Pompeii chiefly in or upon public buildings, on pedestals of statues and on sepulchral monuments. They are characterized by extreme brevity. A few are in the Oscan language, the rest are in Latin. The more important examples have been presented in the preceding pages in connection with the monuments to which they belong. A list of them is given in the Index under "Inscriptions."
The public notices are painted upon the walls along the sides of the streets, ordinarily in a bright red color; a few are in black. The most important are the election notices, in which a candidate is recommended for a public office. These are about sixteen hundred in number, and the names of more than a hundred different candidates appear in them.
The election notices fall into two classes, distinguished both by the style of writing and by the manner of expression,—earlier, from the time of the Republic, and later, belonging to the Imperial period. The shapes of the letters in those of the former class are irregular, and bear the mark of an unpractised hand. The later notices, on the contrary, have a more finished appearance; they are executed in a kind of calligraphic style that suggests the employment of skilled clerks who made the painting of electoral recommendations a part of their business. We have already met with the name of one painter of notices who signed his work, Aemilius Celer (p. 223). His house has been discovered, near the northeast corner of the ninth Region; it was identified by means of an inscription painted on the outside: Aemilius Celer hic habitat,—'Aemilius Celer lives here.'
The language of the earlier recommendations is of the simplest. We find the name of the candidate with no suggestion of praise excepting occasionally the letters v. b., for virum bonum, 'good man.' The name of the office is given in an abbreviated form, but that of the person who makes the recommendation nowhere appears. In one example the elements of 487 the common formula o. v. f., for oro vos, facite, are given almost in full: M. Marium aed. faci., oro vos,—'Make Marcus Marius aedile, I beg of you.' The following notice appears on Stabian Street in letters nearly 8 inches high: P · FVR · II · V · \B · O · \F, that is Publium Furium duumvirum, virum bonum, oro vos, facite,—'Make Publius Furius duumvir, I beg of you; he's a good man.'
Some of the later election notices are almost equally brief, presenting merely the name of the candidate, the office for which he is recommended, and the formula o. v. f., as in this instance: Herennium Celsum aed[ilem] o. v. f.,—'Make Herennius Celsus aedile, I beg of you.' Occasionally even the formula is omitted, and we have simply the name of the candidate and of the office, both invariably in the accusative case, as Casellium aed., which appears in several places, and M. Holconium Priscum II. vir. i. d.
More frequently the recommendation includes a reference to the good qualities of the candidate. Sometimes he is simply styled 'a good man,' as in the earlier notices; but the most common formula in this connection is d. r. p., for dignum re publica, 'worthy of public office.' In some instances the characterization is more definite. More than one candidate is affirmed to be 'an upright young man' (iuvenem probum), or 'a youth of singular modesty' (verecundissimum iuvenem). In regard to one aspirant for office we are informed that 'he will be the watch-dog of the treasury'—hic aerarium conservabit.
The names of those who make the recommendations often appear in the later notices. Now and then individuals assume the responsibility, as Vesonius Primus (p. 396), and Acceptus and Euhodia (p. 341), who were undoubtedly owners of the property on which the notices appear. Thus the candidate's neighbors are sometimes represented as favoring his election, as in the case of Claudius Verus: Ti. Claudium Verum II. vir. vicini rogant,—'His neighbors request the election of Tiberius Claudius Verus as duumvir.' Electoral recommendations are painted on all sides of the house of Verus—the extensive establishment in the ninth Region known as the house of the Centenary.
The class of election notices in which we find the members of 488 a craft united in the support of a candidate has been sufficiently illustrated in another connection (p. 384). To these we may add a recommendation found on a wall facing the temple of Isis: Cn. Helvium Sabinum aed. Isiaci universi rog[ant],—'The worshippers of Isis, as a body, request the election of Gnaeus Helvius Sabinus as aedile.' A suburb also might have a candidate, as in the following instance: M. Epidium Sabinum aed. Campanienses rog.,—'The inhabitants of the Pagus Campanus ask for the election of Marcus Epidius Sabinus as aedile.'
Sometimes all those who are engaged in an occupation are urged to support a candidate. 'Innkeepers, make Sallustius Capito aedile,' we read in one notice. In others, various classes of citizens having a common bond, as the ballplayers, and the dealers in perfumes, are exhorted to work for the election of a candidate presumably favorable to their interests. In one instance there is a direct appeal to an individual, involving a pledge of future support: Sabinum aed[ilem], Procule, fac, et ille te faciet,—'Proculus, make Sabinus aedile, and he will do as much for you.'
In view of the deep interest in the municipal elections, revealed by these notices, it is not surprising to find that the support of a candidate by a man of unusual prominence was extensively advertised. In three different parts of the city the attention of voters was directed to the fact that Suedius Clemens, the commissioner sent by Vespasian to decide the ownership of certain plots of ground (p. 407), favored the election of Epidius Sabinus as duumvir. One of the notices reads: M. Epidium Sabinum II. vir. iur. dic. o. v. f., dignum iuvenem, Suedius Clemens sanctissimus iudex facit vicinis rogantibus,—'At the request of the neighbors, Suedius Clemens, most upright judge, is working for the election of Marcus Epidius Sabinus, a worthy young man, as duumvir with judiciary authority. He begs of you to elect this candidate.'
So public a method of pressing a candidacy put a formidable weapon into the hands of the candidate's enemies, and the form of a recommendation was sometimes used against an office seeker with telling effect. Vatiam aed. furunculi rog.,—'The sneak thieves request the election of Vatia as aedile,' we find 489 conspicuously painted on a wall on Augustales Street. According to other notices near by, 'The whole company of late drinkers' (seribibi universi) and 'all the people who are asleep' (dormientes universi) favored the candidacy of the same unhappy Vatia. The last notice which we shall present in this connection may have been painted on the order of the girl who appears in it: Claudium II. vir. animula facit,—'His little sweetheart is working for the election of Claudius as duumvir.' The reference is probably to the Tiberius Claudius Verus mentioned above.
The other kinds of public notices are represented by relatively few examples. Of special interest are the announcements of gladiatorial combats, which were discussed in a previous chapter (p. 221). Next in importance are perhaps the advertisements of buildings to rent. One of these, relating to the Elephant Inn, has already been mentioned (p. 400). We present here two others, which have to do with large properties. The first, which has now disappeared, was painted on a wall in the sixth Region, at the south end of the third Insula. It reads as follows:—
INSULA ARRIANA
POLLIANA CN. ALLEI NIGIDI MAI
LOCANTUR EX K[alendis] IULIS PRIMIS TABERNAE
CUM PERGULIS SUIS ET CENACULA
EQUESTRIA ET DOMUS. CONDUCTOR
CONVENITO PRIMUM, CN. ALLEI
NIGIDI MAI SER[vum].
'To rent, from the first day of next July, shops with the floors over them, fine upper chambers, and a house, in the Arrius Pollio block owned by Gnaeus Alleius Nigidius Maius. Prospective lessees may apply to Primus, slave of Gnaeus Alleius Nigidius Maius.'
The word equestria, translated 'fine,' is used colloquially with cenacula, in the sense 'fit for a knight.' The Insula named after Arrius Pollio was thought by Fiorelli to be the so-called house of Pansa, across the street from the block on which the advertisement was found. The identification may be correct, 490 but a notice painted in so prominent a place might refer to a block in any part of the city.
The following inscription was found in the last century near the Amphitheatre, on a wall of the extensive establishment named from it the villa of Julia Felix:—
IN PRAEDIS IULIAE SP. F. FELICIS
LOCANTUR
BALNEUM VENERIUM ET NONGENTUM, TABERNAE, PERGULAE,
CENÁCULA EX IDIBUS AUG. PRIMIS IN IDUS AUG. SEXTÁS, ANNÓS
CONTINUOS QUINQUE
S. Q. D. L. E. N. C.
'To let, for the space of five years, from the thirteenth day of next August to the thirteenth day of the sixth August thereafter, the Venus bath, fitted up for the best people, shops, rooms over shops, and second story apartments in the property owned by Julia Felix, daughter of Spurius.'
The bath may have received its name from Venus Pompeiana. The word nongentum is difficult to understand. The interpretation given is based upon a passage of Pliny the Elder, from which we understand that in colloquial language the knights were known as 'the nine hundred.' A bath 'of the nine hundred' would then be one designed to attract the patronage of the best people. The seven letters at the end of the inscription have not yet been satisfactorily explained.
Advertisements of articles lost or found are also met with. A notice in regard to a stray horse, painted on one of the tombs east of the Amphitheatre, is given on p. 436. On the east side of Insula VIII. v.-vi. we read:—
VRNA AENIA PEREIT · DE · TABERNA
SEIQVIS · RETTVLERIT DABVNTVR
HS LXV · SEI · FVREM
DABIT · VND ...
'A copper pot has been taken from this shop. Whoever brings it back will receive 65 sesterces. If any one shall hand over the thief' ... (the rest of the inscription is illegible). 491
The graffiti form the largest division of the Pompeian inscriptions, comprising about three thousand examples, or one half of the entire number; the name is Italian, being derived from a verb meaning 'to scratch.' Writing upon walls was a prevalent habit in antiquity, as shown by the remains of graffiti at Rome and other places besides Pompeii, a habit which may be accounted for in part by the use of the sharp-pointed stylus with wax tablets; the temptation to use such an instrument upon the polished stucco was much greater than in the case of pens and lead pencils upon the less carefully finished wall surfaces of our time. Pillars or sections of wall are covered with scratches of all kinds,—names, catchwords of favorite lines from the poets, amatory couplets, and rough sketches, such as a ship, or the profile of a face. The skit, occasionally found on walls to-day,
'Fools' names, like their faces,
Are always seen in public places,'
has its counterpart in the couplet preserved as a graffito both at Pompeii and at Rome: Admiror, paries, te non cecidisse ruinis, Qui tot scriptorum taedia sustineas,—
'Truly 'tis wonderful, Wall, that you have not fallen in ruins,
Forced without murmur to bear the taint of so many hands.'
Of a similar vein is a Greek line scratched upon a wall on the Palatine hill in Rome: 'Many persons have here written many things; I alone refrained from writing.'
Taken as a whole, the graffiti are less fertile for our knowledge of Pompeian life than might have been expected. The people with whom we should most eagerly desire to come into direct contact, the cultivated men and women of the ancient city, were 492 not accustomed to scratch their names upon stucco or to confide their reflections and experiences to the surface of a wall. Some of the graffiti, to judge from the height at which we find them above the floor, were undoubtedly made by the hands of boys and girls; for the rest, we may assume that the writers were as little representative of the best elements of society as are the tourists who scratch or carve their names upon ancient monuments to-day. Nevertheless, we gain from these scribblings a lively idea of individual tastes, passions, and experiences.
A few graffiti have reference to events, as the siege of Sulla, in 89 B.C. (p. 240). The most interesting historical examples are those which relate to the conflict between the Pompeians and the Nucerians, in the year 59 A.D. (p. 220). An ardent Pompeian wrote: Nucerinis infelicia,—'Down with the Nucerians!' From a scribbling by a partisan of the other side it appears that the inhabitants of Puteoli sympathized with the Nucerians, while those of Pithecusae—the island of Ischia—favored the Pompeians: Puteolanis feliciter, omnibus Nucherinis felicia, et uncu[m] Pompeianis [et] Pitecusanis,—'Hurrah for the Puteolaneans, good luck to all Nucerians; a hook for the Pompeians and Pithecusans.' The hook referred to in this connection was that used by executioners and the attendants of the Amphitheatre in dragging off the dead. Another Pompeian wrote: Campani, victoria una cum Nucerinis peristis,—'Campanians, you were conquered by the same victory with the Nucerians.' The Campani were not the inhabitants of Campania, but of the suburb called Pagus Campanus.
Two inscriptions, attesting the presence of members of the Praetorian Guard in Pompeii, have been previously mentioned (pp. 387, 401). Another praetorian left his name in a house of the eighth Region (VIII. iii. 21): Sex. Decimius Rufus milis coh[ortis] V pr[aetorianae] Ↄ Martialis,—'Sextus Decimius Rufus, a soldier of the fifth praetorian cohort, of the century led by Martialis.' To the same division of the army probably belonged a centurion of the first rank, Q. Spurennius Priscus, whose name was found in a house of the first Region (I. iii. 3). The first, fifth, and ninth praetorian cohorts, mentioned in the graffiti, may have come to Pompeii with different emperors, or 493 on different occasions with the same emperor; it is unlikely that the three were united to form a single escort.
Graffiti are sometimes useful for the identification of buildings; so in the case of the Basilica and of several inns. The dated examples throw some light on the age of the stucco on which they are found. They are for the most part late, and afford little help in determining the time of commencement of the various decorative styles; but in several cases they indicate a later limit clearly. In this way we learn that the decoration of the Basilica, in the first style, was finished before October 3, 78 B.C.—how long before we cannot tell; and that in 37 B.C. the plastering of the Small Theatre was already on the walls, decorated in the second style. The gladiatorial graffito in the house of the Centenary (p. 226) proves that the decoration of the room in which it is found—a late example of the second style—was finished before November, A.D. 15. A dated inscription of the reign of Nero is given in the chapter on the house of the Silver Wedding (p. 305).
Several hundred graffiti present merely the name of the scribbler, sometimes with the addition hic fuit,—'was here,' or simply hic; as, Paris hic fuit, Sabinus hic.
A large number contain a greeting, perhaps in some cases intended for the eye of the person mentioned, as Aemilius Fortunato fratri salutem,—'Aemilius greets his brother Fortunatus.' In this as in other examples it is interesting to note that one brother is designated by the gens name, the other by the cognomen. Sometimes the greeting is the reverse of cordial, as in this instance: Samius Cornelio, suspendere,—'Samius to Cornelius: go hang yourself.' Hardly less naïve is the message to a friend who has died: Pyrrhus Chio conlegae sal[utem]: moleste fero, quod audivi te mortuom; itaq[ue] vale,—'Pyrrhus to his chum Chius: I'm sorry to hear that you are dead; and so, Good-by.'
The most prominent theme of the graffiti is love, which is constantly reappearing, in prose scribblings and in snatches of verse. The verse form is usually the elegiac distich. Some of the lines are taken from the poets; others were made up for the occasion, and not a few verses were finished in prose, 494 as if the would-be versifier found original composition more difficult than he had anticipated.
Several distichs extol the power of love, as the following, which, taken from some unknown poet, is found in several places: Quisquis amat, valeat, pereat qui nescit amare; Bis tanto pereat quisquis amare vetat:—
'Good health be with you, lovers all;
Who knows not how to love, be cursed;
But oh may double ruin fall
On him who sets out love to worst!'
A similar thought finds expression in a single line, perhaps also a quotation: Nemo est bellus nisi qui amavit mulierem,—'He who has never been in love can be no gentleman.'
Not all the Pompeians, however, viewed the matter so seriously. To the first line of the couplet just quoted a scribbler of a cynical turn in one instance joined a parody, to the effect that those who are in love may well avoid the use of hot baths, on the principle that 'the burnt child dreads the fire,'—Nam nemo flammas ustus amare potest.
The uselessness of interference with the course of love is also made prominent. In this distich, apparently from some poet, the scribbler seems to have made a slight change to meet a specific case, substituting obiurgat for custodit or some similar word: Alliget hic auras, si quis obiurgat amantes, Et vetat assiduas currere fontis aquas,—
'Whoever has a mind
To hinder lovers' way,
Let him go zephyrs bind
Or running waters stay.'
Ancient lovers nevertheless had their fears, and the following couplet, which is no doubt borrowed from a poet, appears also, in a slightly different form, on a wall in Rome: Si quis forte meam cupiet violare puellam, Illum in desertis montibus urat Amor,—
'If any man shall seek
My girl from me to turn,
On far-off mountains bleak
May Love the scoundrel burn.'
Of extant elegiac poets Ovid, Propertius, and Tibullus are quoted or paraphrased. Among the quotations is the familiar couplet of Propertius: Nunc est ira recens, nunc est discedere tempus; Si dolor afuerit, crede, redibit amor,—
'Now is it time to depart,
Now anger freshly burns;
When one ceases to feel the smart,
Believe me, love returns.'
If it was written by a lover after a quarrel, reconciliation was not far off. Another discouraged suitor perhaps consoled himself by writing on the wall of the Basilica this distich from Ovid's "Art of Love," the form of which differs slightly from that given in the manuscripts: Quid pote tam durum saxso aut quid mollius unda? Dura tamen molli saxsa cavantur aqua,—
'What is so hard as rock, or what can be softer than water?
Hard rocks nevertheless by water are worn away.'
Amatory inscriptions often have the form of a message or greeting to a loved one, as in this example: Victoria, vale, et ubique es, suaviter sternutes,—'Health to you, Victoria, and wherever you are may you sneeze sweetly,' that is, may good luck follow you. Often the greeting is more ardent, as that to Cestilia: Cestilia, regina Pompeianorum, anima dulcis, vale,—'Cestilia, queen of the Pompeians, sweet soul, greeting to you.'
Sometimes the lover avoided writing the lady's name: Pupa quae bella es, tibi me misit qui tuus est; vale,—'Maiden who are so beautiful, he who is yours sent me to you; good-by.' Now and then we find an inscription of this class that leaves an unfavorable impression. The following is repeated several times on the outside of a house in the first Region: Serenae sodales sal[utem],—'Greeting to Serena, from her companions!'
Spurned lovers also confided their woes to graffiti, sometimes adding an appeal to the obdurate one, as in this wretched couplet, which can scarcely have been taken from a poet; the play upon words in the last clause was apparently intentional: Si quid amor valeat nostei, sei te hominem scis, Commiseresce mihi, da veniam ut veniam,— 496
'If you a man would be,—
If you know what love can do,—
Have pity, and suffer me
With welcome to come to you.'
It was probably a lover in straits who scratched on the wall a line of the Aeneid (IX. 404) as a prayer to Venus: Tu, dea, tu praesens nostro succurre labori,—
'Thou, goddess, with thy present help
Our sore distress relieve.'
Another unsuccessful suitor found the lines of a single poet inadequate to express his feelings, and joined together a couplet from Ovid (Am. I. viii. 77-78) and one from Propertius (IV. v. 47-48) in order to voice his complaint against a miserly mistress who barred her door upon all except wealthy lovers. But the climax is reached in four lines of irregular verse in which the rejected lover proposes to vent his anger on the goddess of love herself: 'All lovers, come! I purpose to break the ribs of Venus and to smash the small of her back with clubs; if she can bore a hole in my tender breast, why can I not break her head with a cudgel?' From the psychological point of view the complete identification of the goddess with a statue representing her is noteworthy.
Occasionally a pair of lovers left on a wall a record of a meeting; thus, Romula hic cum Staphylo moratur,—'Romula tarried here with Staphylus.' Staphylus, however, was apparently a flirt; in the house of Caecilius Jucundus a similar meeting with another maiden is recorded on a column of the peristyle: Staphilus hic cum Quieta. But Staphylus does not seem to have gained the confidence of the fair sex to the extent that another Pompeian gallant did, of whom we find it written: Restitutus multas decepit saepe puellas,—'Restitutus has many times deceived many girls.'
The names of husband and wife are sometimes joined together, as in a room of a house in the ninth Region: L. Clodius Varus, Pelagia coniunx; there is a similar example in a house ruined by the earthquake of the year 63, [Ba]lbus et Fortunata, duo coiuges. 497
We find a pleasing instance of marital affection in a graffito in which a lonely wife sends a greeting to an absent husband and other relatives: Hirtia Psacas C. Hostilio Conopi coniugi suo manuductori et clementi monitori et Diodot[a]e sorori et Fortunato fratri et Celeri suis salutem semper ubique plurimam, et Primigeniae suae salutem,—'Hirtia Psacas at all times and in all places sends heartiest greeting to Gaius Hostilius Conops, her husband and guide and gentle adviser, and to her sister Diodota, her brother Fortunatus and her Celer; and she sends a greeting to her Primigenia, too.' The names of both husband and wife are Greek, psacas signifying 'dewdrop,' and conops 'gnat.'
Many happenings are chronicled on the walls; and there are memoranda of every description. The programmes of gladiatorial combats have already been mentioned (p. 223). One man records the result of a trip to Nuceria, where he won at the gaming table—without cheating, he takes pains to add—a sum amounting to $130: Vici Nuceriae in alia (for alea) 𐆖 DCCCLVS, fide bona,—'At Nuceria, I won 855.5 denarii by gaming, fair play.'
Another Pompeian counted the steps as he walked up and down the colonnade at the side of his garden (in the house VII. ii. 41) for exercise; he recorded 640 paces for ten turns back and forth.
In the peristyle of a house in the first Region the advent of young pigs, or of puppies, is noted: XV K[alendas] Nov[embres] Puteolana peperit mascl[os] III, femel[as] II,—'On October 17 Puteolana had a litter consisting of 3 males and 2 females.'
The inscriptions relating to business transactions are reserved for another chapter. We may notice here, however, that memoranda of accounts were sometimes scratched on walls, usually containing only the figures indicating measure or price, as in the shops on the south side of the Macellum. The following is from a bakery in the first Region (I. iii. 27): Oleum, l[ibra], a[ssibus] IV; palea a. V; faenum a. XVI; diaria a. V; furfure a. VI; viria I a. III; oleum a. VI,—'Oil, a pound, 4 asses; straw, 5 asses; hay, 16 asses; a day's wages, 5 asses; bran, 6 asses; one wreath for the neck, 3 asses; oil, 6 asses.' 498 The value of the as varied; in the Early Empire it was nearly equivalent to 1½ pence, or 3 cents.
Children scratched upon walls the alphabet that they were learning. The frequent quotations from Virgil, generally incomplete, are likewise an echo of lessons at school, where this author was carefully studied; we find very often the beginnings of lines at the opening of a book, as Arma virumque cano, or Conticuere omnes. The first word of the poem of Lucretius, Aeneadum, also occurs several times.
Occasionally gnomic quotations are found, in most cases, perhaps, from writers of comedy. Among them is the well-known maxim, Minimum malum fit contemnendo maxumum,—'The smallest evil, if neglected, will reach the greatest proportions.' A proverb more concrete in its form of statement is the following: Moram si quaeres, sparge milium et collige,—'If you want to waste your time, scatter millet and pick it up again.' 499
The most important inscriptions relating to business transactions are the receipts, discovered in 1875, which formed a part of the private accounts of L. Caecilius Jucundus (p. 447). They were written on wax tablets, which were carefully packed in a wooden box. The box, which was in the second story of the house, crumbled to pieces when the volcanic dust about it was removed; but many of the tablets, 154 in number, still retained their shape and were taken to the Naples Museum. The wood of the tablets had turned to charcoal, but the writing has been for the most part deciphered. One receipt dates from 15 A.D., another from the year 27; the rest belong to the decade immediately preceding the earthquake, 52-62 A.D. The documents are of the greatest interest as casting light on the business methods of antiquity.
Most of the tablets are triptychs. The three leaves were tied at the back so as to open like the leaves of a book, making six pages (Fig. 274). The average height is about 5 inches, the width varies from 2 to 4 inches. Pages 1 and 6 served as covers, being left smooth and without writing. Pages 2, 3, and 5 were hollowed out, leaving a polished surface with a raised rim around it. On this surface a thin layer of wax was spread, in which the letters were made with a stylus; the writing could be easily read because the wood, which was of a light color, showed through wherever a scratch was made in the wax coating.
Two pages facing each other, 2 and 3, were devoted to the receipt. Page 4, as shown in Fig. 275, was not hollowed out but was divided into two parts by a broad, flat groove running across the middle. When the document was ready to be sealed, the first two leaves were brought together and tied by a thread 500 which passed around the middle, the ends meeting in the groove on page 4. In this groove at convenient distances melted wax was then dropped, on which the witnesses, ordinarily seven in number, impressed their seals. The names of the witnesses were written with pen and ink in a line with the seals, parallel with the sides of the page, sometimes at the right, as in Fig. 275, sometimes divided, the first name and the gens name being at the left of the seal, the cognomen at the right.
Fig. 274.—Tablet with three leaves, opened so as to show the receipt and part of the memorandum on page 5, restored.
This arrangement made it impossible to consult the receipt without cutting the thread or disturbing the seals of the witnesses. To meet the difficulty a memorandum, which was practically a duplicate receipt, was placed on page 5; this could be read at any time.
The difference in form between the receipt, on pages 2 and 3, and the memorandum will be plain from the examples. The receipt, with few exceptions, is simply a record of an oral acknowledgment 501 in the presence of witnesses that a sum of money was received, accepti latio. In nearly all the tablets this acknowledgment and the names of the witnesses, on page 4, are in the same handwriting, which must have been either that of Jucundus himself or of his secretary. It did not matter who wrote the receipt; in case of a dispute the seals of the witnesses would alone be sufficient to prove its genuineness. The memorandum, however, was ordinarily in a different hand, either that of the person who gave the receipt, or of some one authorized to write for him. As it was not under the seals of witnesses, the handwriting might become a matter of importance if any question should arise in regard to the document.
Fig. 275.—Tablet, restored, with the two leaves containing the receipt tied and sealed, and with the signatures of the witnesses at the right of the seals.
The entire tablet, with its receipt, memorandum, and names and seals of witnesses was called perscriptio, 'entry of account.' This word appears ordinarily on the edge of the tablet, with the name of the person who gave the receipt in the genitive case.
Nearly all the tablets record transactions connected with auction sales, the person whose effects were thus disposed of giving 502 Jucundus a receipt in full for the proceeds of the sale less a commission, mercede minus. A few contain receipts for rent which Jucundus paid for the use of property belonging to the city—a fullery (p. 394), the rent of which altogether amounted to 1652 sesterces, about $75; a pasture, for the use of which he paid 2675 sesterces, about $130; and a piece of arable land, fundus, on which he paid 6000 sesterces, about $300, in rents.
We present an example of both classes of receipts. The first, which we may call Tablet A, was given by a lady, Umbricia Januaria, for the proceeds of an auction sale; it is dated December 12, A.D. 56. The other, Tablet B, is the receipt for the rent of public pasture land and belongs to the year 59 A.D.
TABLET A
Title
Perscriptio Umbriciae Januariae, 'Entry of account of Umbricia Januaria.'
Receipt.
HS n. CC|ↃↃ ∞ XXXVIIII, quae pecunia in stipulatum L. Caecili Iucundi venit ob auctionem Umbriciae Ianuariae mercede minus persoluta habere se dixit Umbricia Ianuaria ab L. Caecilio Iucundo.
Act[um] Pompeis pr[idie] id[us] Dec[embres] L. Duvio, P. Clodio cos.
'Umbricia Januaria declared that she had received from L. Caecilius Jucundus 11,039 sesterces, which sum came into the hands of L. Caecilius Jucundus by agreement as the proceeds of an auction sale for Umbricia Januaria, the commission due him having been deducted.
'Done at Pompeii on the twelfth day of December, in the consulship of Lucius Duvius and Publius Clodius.'
Names of the Witnesses. Page 4
The seals of the witnesses, nine in number, appear in the groove at the middle of the page. The names are in the genitive case, as if dependent on sigillum, 'seal.' 503
'Seal of Quintus Appuleius Severus, Marcus Lucretius Lerus, Tiberius Julius Abascantus, M. Julius Crescens, M. Terentius Primus, M. Epidius Hymenaeus, Q. Granius Lesbus, Titus Vesonius Le..., D. Volcius Thallus.'
Memorandum. Page 5
L. Duvio Avito, P. Clodio Thrasea cos., pr. id. Decembr. D. Volcius Thallus scripsi rogatu Umbriciae Ianuariae eam accepisse ab L. Caecilio Iucundo HS n. XI xxxix ex auctione eius mercede minus ex interrogatione facta tabellarum [signatarum]. Act. Pompeis.
'On December 12, in the consulship of Lucius Duvius Avitus and Publius Clodius Thrasea, I, Decimus Volcius Thallus, having examined the tablets put under seal, at the request of Umbricia Januaria declared in writing that she had received from L. Caecilius Jucundus 11,039 sesterces as the proceeds of an auction sale after deducting his commission. Done at Pompeii.'
Tablet A gives the ordinary form of the receipt and the memorandum. There are occasional variations. A few tablets have only two leaves and four pages. In such cases, the leaves are tied and sealed in the same way as the first two of the triptych, but only half of the fourth page is left for the signatures of the witnesses; the memorandum is written on the other half with pen and ink, and so appears on the outside of the tablet.
In two of the older tablets, dated 27 and 54 A.D., the memorandum, as the receipt, is a record of an oral acknowledgment; it may be that this was the proper legal form in use to the end of the reign of Claudius. In a few of the later examples, as Tablet B, the receipt as well as the memorandum has the form of a voucher in the handwriting of the person who receives the money, or his agent. 504
TABLET B
Receipt. Pages 2 and 3
L. Veranio Hupsaeo, L. Albucio Iusto duumviris iure dic[undo] XIIII K[alendas] Iulias Privatus coloniae Pompeian[orum] ser[vus] scripsi me accepisse ab L. Caecilio Iucundo sestertios mille sescentos septuaginta quinque nummos, et accepi ante hanc diem, quae dies fuit VIII idus Iunias, sester[tios] mille nummos, ob vectigal publicum pasqua [for pasquorum].
Act[um] Pom[peis] Cn. Fonteio C. Vipstano cos.
'On June 18, in the duumvirate of L. Veranius Hypsaeus and L. Albucius Justus, I, Privatus, slave of the colony of Pompeii, declared in writing that I had received from L. Caecilius Jucundus 1675 sesterces, and previous to this day, on June 6, I received 1000 sesterces, as rent for the public pasture.
'Done at Pompeii in the consulship of Gnaeus Fonteius and Gaius Vipstanus.'
Names of the Witnesses. Page 4
In the groove in the middle of the page are four seals. As the receipt was given for the city, the witnesses were the two duumvirs and the slave Privatus, who received the money. The name of Privatus appears twice with seal, under that of each duumvir. In antiquity municipalities, as well as individuals, owned slaves.
L. Verani Hypsaei
Privati, c. c. V. C. ser. (for colonorum coloniae Veneriae
Corneliae servi)
L. Albuci Iusti
Privati, c. c. V. C. se.
Chirographum Privati c. c. V. C. ser.
'Seal of Lucius Veranius Hypsaeus; Privatus, slave of the citizens of the colony of Pompeii; L. Albucius Iustus; Privatus, slave of the citizens of the colony of Pompeii.
'Autograph of Privatus, slave of the citizens of the colony of Pompeii.'
Memorandum. Page 5
L. Veranio Hupsaeo L. Albucio Iusto d[uumviris] i[ure] d[icundo] XIV K. Iul. Privatus c. c. V. C. ser. scripsi me accepisse ab L. Caecilio Iucundo HS ∞ DCLXXV et accepi ante hanc diem VIII idus Iunias HS ∞ nummos ob vectigal publicum pasquorum.
Act. Pom. C. Fonteio C. Vips. cos.
The language of the memorandum is so nearly identical with that of the receipt that it is unnecessary to add a translation.
A considerable number of the amphorae found at Pompeii bear inscriptions, generally written with a pen in black ink, but sometimes painted with a brush in red or white. Most of them contained wine. The percentage of Greek inscriptions is large, an evidence of the strength of the Greek population in the region about the city.
The wine underwent fermentation in large round vats of baked clay, dolia, which stood in the wine cellar of the villa, cella vinaria, or in a court (p. 364); from these the amphorae were filled. The vats containing the common wines were ordinarily emptied before the next vintage, when they were needed for the new wine, but the better sorts were allowed to remain in the dolia for a longer time. The wine of one Pompeian amphora was left in the vat till after the harvest of the second year: C. Pomponio C. Anicio cos., ex fund[o] Badiano, diff[usum] id. Aug., bimum,—'Consulship of Gaius Pomponius and Gaius Anicius. From the Badian estate. Poured (into amphorae) August 13. Two years old.' In what year Pomponius and Anicius were consuls we do not know.
The earliest amphora of which the date is certain was filled in 25 A.D.: [Cosso Len]tulo M. Asinio cos. fund. The place from which it came, however, is not so easily determined, since fund. may refer to the town of Fundi, or stand for fundus, 'estate,' the name that followed having been obliterated. The names of two such estates were lately recovered from amphorae in the house of the Vettii, fundus Satrianus and fundus Asinianus.
In addition to the product of Italian vineyards the Pompeians used also imported wines from the coast of Asia Minor and the islands near by. One dealer, M. Fabius Euporus, kept wine from Cnidus, Cnidium. Wine from the island of Cos is frequently 506 mentioned, as in this inscription: Coum vet[us] P. Appulei Bassi,—'Old Coan of Publius Appuleius Bassus.'
Different kinds of wine were sometimes designated by characteristic names. A certain Greek, M. Pomponius Teupon, produced a brand which he called 'Frenzy Wine' (Λύττιος), as if so strong that it would make the drinker frantic. Another Greek, Timarchus, named one of his wines 'White Drink,' Λευκουνάριον.
An amphora in the house of the Vettii was labelled Gustaticium, 'Breakfast Drink'; it no doubt contained mulsum, a kind of mead made by mixing honey with wine, which the ancients drank with the first meal of the day. The word mulsum occurs on another amphora discovered previously.
Fruits and other edibles of all kinds were kept in amphorae. On one was written: Oliva alba dulce (for olivae albae dulces) P. C. E.,—'White sweet olives of P. C. E.'; the name cannot be determined from the initials. On other amphorae the words for bean meal (lomentum), honey, and lentils appear, the last being designated by the Greek word.
A large number of small jars contained the fish sauces,—garum, liquamen, and muria,—of which the ancients were so fond; reference has already been made to Umbricius Scaurus (p. 15), who seems to have had several establishments for the making of the sauces, conducted by slaves, freedmen, and perhaps by members of his family.
The best quality of garum, which was probably a thick preparation, a kind of fish jelly, was designated by the letters g. f., for garum—flos, 'garum blossom,' as in the following inscription: g[arum]—f[los] scombr[i] Scauri ab Eutyche Scauri,—'Scaurus's tunny jelly, blossom brand, put up by Eutyches, slave of Scaurus.' We frequently find liquamen optimum, 'best liquamen.'
The muria was apparently a fish pickle, certain parts of the fish, or certain varieties, being preserved in brine. According to Pliny the Elder some fish sauces were prepared in a special way, to be used by the Jews on fast days; two of these, as already noted, appear in the inscriptions upon Pompeian jars, garum castum and muria casta (p. 18). 507
In these inscriptions upon jars of various sizes the name of the proprietor is sometimes given, in the genitive case, as M. Caesi Celeris,—'Of M. Caesius Celer.' The name of the man to whom the consignment is made is put in the dative, as Albucio Celso.
The name of the consignor sometimes follows that of the consignee, as liquamen optimum A. Virnio Modesto ab Agathopode,—'Best liquamen, for Aulus Virnius Modestus, from Agathopus.'
An inscription similar to that just mentioned, on an amphora found in the house of Caecilius Jucundus, illustrates the extent to which family pride might assert itself in the naming of children: Caecilio Iucundo ab Sexsto Metello,—'To Caecilius Jucundus from Sextus Metellus.' The sender and the recipient were both sons of Lucius Caecilius Jucundus. According to common usage, one of the sons would have received the name Lucius Caecilius Jucundus, after the father; while the other would have been called Lucius Caecilius, with a cognomen derived perhaps from the name of the mother. But the prosperous Pompeian wished to suggest a relationship with the distinguished family of the Caecilii Metelli, so he named one son Sextus Caecilius Jucundus Metellus, and the other Quintus Caecilius Jucundus, the name Quintus being common in the family of the Caecilii Metelli. The names of the two sons are found together in an election notice: Q. S. Caecili Iucundi,—'Quintus and Sextus Caecilius Jucundus.'
Besides the names of the makers, inscriptions relating to weight and ownership are found on the cups and other objects of the Boscoreale treasure. Thus on the under side of the Alexandria patera (Fig. 187, and p. 380) we find the following record, the letters of which are outlined with points: Phi[ala] et emb[lema] p[endentia] p[ondo libras] II, uncias X, scrupula VI. Phi[ala] p[endens] p[ondo libras] II, uncias II, semunciam; emb[lema] p[endens] p[ondo] uncias VII, semunciam, 'The bowl and the relief medallion' together 'weigh 2 pounds, 10 ounces, and 6 scruples. The bowl weighs 2 pounds, 2½ ounces; the relief medallion weighs 7½ ounces.' In giving the items separately no account was taken of the 508 scruples. Reckoning the Roman pound as 327.453 grammes, the weight of the patera with its relief was 934.608 grammes, or 2.504 Troy pounds. This differs from the present weight by less than a gramme.
Occasionally a name in the genitive case is found with the record of weight, written with the same kind of letters; in such cases it is probably safe to assume that the name is that of the original owner. On the under side of one of the pair of cups ornamented with skeletons (Fig. 217) is the inscription: GAVIAE P·II·S𐆐IIII; a later hand, writing with a fine point, added VAS II in the space after GAVIAE, as if to supply an obvious omission, so that the inscription in full would read, Gaviae. Vas[a] II [pendentia] p[ondo libras] II, uncias VIII, [scrupula] IV, 'The property of Gavia. The two cups weigh 2 pounds, 8 ounces, and 4 scruples' (2.351 Troy pounds).
In some instances the name of a later owner has been scratched on the surface with a pointed tool. The name of a woman, Maxima, written in full or in abbreviation, appears on forty-five of the pieces in the Louvre. We may safely accept the conclusion of De Villefosse, that she is probably the one who made the collection, obtaining her specimens from different sources, and that to her the Boscoreale treasure belonged at the time of the eruption.
Besides the seals which were used in signing documents the Romans had stamps, signacula, which they impressed upon various articles as a means of identification or as an advertisement. Impressions of such stamps are found upon bricks and other objects of clay, and in one or two instances upon loaves of bread. Several charred loaves in the Naples Museum have the stamp: [C]eleris Q. Grani Veri ser.,—'(Made by) Celer, slave of Quintus Granius Verus.'
The names upon stamps appear regularly in the genitive case, as N. Popidi Prisci, spelled backward on the stamp, so that the letters appear in the right order in the impression. Since the time of Fiorelli many houses have been named from the stamps found in them; in the house of the Vettii, for example, two stamps were found with the names of Aulus Vettius Restitutus and Aulus Vettius Conviva. 509
The ideals of a nation—the true index of its culture—find expression alike in its laws, its literature, its art, and the environment of daily life. They are a common heritage, which one generation passes on to another with its own increment of change, and their influence extends as far as that of the people whose spirit is manifested in them. Thus it happens that the conditions of culture found in a single city, unless that city, as Athens, had an independent development as a state, are not isolated but are determined in the main by general movements and tendencies, and are reproduced, with local differences, in all places having the same racial and political connections. The local element was more pronounced and more characteristic in ancient than in modern cities; yet, unless the surroundings were exceptionably favorable, we should not be warranted in expecting to find in a small city an isolated development of special significance in art or taste. Pompeii forms no exception to the rule.
The situation of Pompeii was unfavorable to the growth of an indigenous culture. Founded by Samnites, a primitive folk, it lay in the overlapping edges of two great zones of influence, Greek and Roman. It was a small town, which never rose to the dignity even of a provincial capital. It was a seaport, which through marine traffic kept in touch with other cities, especially those of the East, from which fashions of art, religion, and life travelled easily westward. The political institutions of the Pompeians were at first those which they shared in common with the Samnite and Oscan cities of the mountains and the Campanian 510 plain, later those imposed upon them by the forceful and levelling administration of Rome. The literature which they read, as we learn from quotations scratched upon the walls, consisted of the Greek and Roman writers of their own or previous periods; not a single line of an Oscan drama or poem has been found. Their art was a reproduction of designs and masterpieces produced elsewhere,—at first under Hellenistic, later under Roman influence,—on a scale commensurate with the limited resources of the place. Finally the countless appliances of everyday life, from the fixed furniture of the atrium to articles of toilet, were not rare and costly objects such as were seen in the wealthy homes of Rome or Alexandria, but those of the commoner sort everywhere in use. Any one of fifty cities might have been overwhelmed in the place of Pompeii, and the results, so far as our knowledge of the ancient culture in its larger aspects is concerned, would not have been essentially different.
The representative rather than exceptional character of the remains at Pompeii makes them either of less or of greater value, according as we look at them from different points of view. If we are seeking for the most perfect examples of ancient art, for masterpieces of the famous artists, we do not find them. Many of the Pompeian paintings appeal to modern taste; yet it would be as unfair to judge of the merits of ancient painting from the specimens which are worked into the decorative designs of Pompeian walls as it would be to base an estimate of the value of modern art upon chromos and wall papers. For the noblest creations of ancient art in any field we must look not to provincial towns, but to the great centres of population and of political administration, where genius found encouragement, inspiration, and adequate means. No large city, fortunately for its inhabitants, was visited by such a disaster as that which befell the Campanian town; and the wealth of artistic types at Pompeii bears witness to the universality of art in the Greco-Roman world.
Since these remains are so broadly typical, they are invaluable for the interpretation of the civilization of which they formed a part. They shed light on countless passages of Greek and 511 Roman writers. Literature, however, ordinarily records only that which is exceptional or striking, while here we find the surroundings of life as a whole, the humblest details being presented to the eye.
Pompeii, as no other source outside the pages of classical authors, helps us to understand the ancient man. 513
CHAPTER I. THE SITUATION OF POMPEII
Physical geography of Campania, Vesuvius: Nissen, Italische Landeskunde, vol. I (Berlin, 1883), pp. 263-272; Phillips, Vesuvius (Oxford, 1869); G. vom Rath, Der Vesuv (Berlin, 1873); Palmieri, Il Vesuvio e la sua storia (Milan, 1880); Judd, Volcanoes (International Scientific Series, New York, 1831); Lobley, Mount Vesuvius—A Descriptive, Historical, and Geological Account of the Volcano and its Surroundings (London, 1889); Ruggiero, Della eruzione del Vesuvio nell' anno LXXIX, in the commemorative volume published under the title Pompei e la regione sotterrata dal Vesuvio nell' anno LXXIX (Naples, 1879), pp. 15-32.
Pompeii as a seaport [p. 3]: Strab. Geog. V. IV. 8 (p. 247).
The seacoast and the Sarno in antiquity [p. 4]: Ruggiero, op. cit., pp. 5-14; Mau, Dell' antico lido del mare, Bull. dell' Inst., 1880, pp. 89-92; 514 F. von Duhn, Der Hafen von Pompei, Rhein. Mus., vol. 36 (1881), pp. 127-130, 632-634; Mau, Der Hafen von Pompeji, Rhein. Mus., vol. 36. pp. 326-328, and vol. 37 (1882), pp. 319-320.
CHAPTER II. POMPEII BEFORE THE ERUPTION
The founding of Pompeii [p. 8]: the question of the origin of the city is closely connected with that of the system of streets, for which see references to Chap. V, p. 517.
Origin of the name [p. 8]: cf. F. von Duhn, Verhandlung der 34ten Philologen-Versammlung (1880), p. 154; for pompe = quinque, cf. Buck, Der Vocalismus der Oskischen Sprache (Leipzig, 1892), pp. 118-119. The derivation of Pompeii from πομπή (πέμπειν) is assumed by Nissen, Pompejanische Studien (Leipzig, 1877), p. 580; cf. also Sogliano, Rendiconto della Accademia di Archeologia, Nuova Serie, Naples, vol. 15 (1901), p. 115.
The expedition of P. Cornelius [p. 9]: Liv. IX. XXXVIII. 2-3.
The siege of Sulla [p. 10]: Appian. Bel. Civ., I. V. 39, VI. 50; Oros. V. XVIII. 22; Vell. Pater. II. XVI. 2.
The Pompeians and P. Sulla [p. 10]: Cic. Pro P. Sulla, XXI.
Excavations near the Sarno canal [p. 10]: Not. d. scavi, 1880, pp. 494-498; 1881, pp. 25-29, 64-66. For other evidence relating to the suburbs, see Nissen, Pompejanische Studien, p. 379; Mau, Röm. Mitth., vol. 4 (1889), pp. 299-300, 344.
Inscriptions [p. 11]—referring to the Salinenses: C. I. L. IV. 1611; Not. d. scavi, 1884, p. 51. Referring to the Campanienses: C. I. L. IV. 470, 480, 1216, 1293 [quoted p. 492], 2353 [p. 219].
Venus Pompeiana [p. 12]: Museo Borb., vol. 8, pl. 34; Helbig, Wandgemälde der vom Vesuv verschütteten Städte Campaniens (Leipzig, 1868), no. 295; Wissowa, De Veneris simulacris Romanis (Breslau, 1882), pp. 15-21; cf. also Rossbach, Vier Pompejanischen Wandbilder, Jahrb. des Inst. vol. 8 (1893), pp. 57-59 (no. 4).
Name of the Roman colony [p. 12]: known from inscriptions, as that of Holconius Rufus and Egnatius Postumus [p. 85], and the tablets of Caecilius Jucundus, as 3340, CXLIII. in C. I. L. IV. Suppl. 1; with the latter we may compare the abbreviation after the name of Privatus [p. 504].
Civic administration [p. 12]: Marquardt, Römische Staatsverwaltung, vol. 1 (Edit. 2, Leipzig, 1881), pp. 132-215: C. I. L. X. pp. 90-93, IV. pp. 249-255; Willems, Les élections municipales à Pompéi (Paris, 1886), and review of this book by Mau, Röm. Mitth., vol. 4 (1889), pp. 298-302.
Duumvirates of Caligula [p. 14]: C. I. L. X. 901, 902, 904.
Lex Petronia [p. 14]: C. I. L. X. 858 [cf. p. 219]; Marquardt, op. cit. vol. 1, p. 170.
Inscriptions referring to priests [p. 14]: augurs, C. I. L. X. 806, 820, 822; pontifices, C. I. L. X. 788, 789, 791, 851, 859; of Mars, C. I. L. IV. 879; of Ceres, C. I. L. X. 812, 1036, 1074; of Ceres and Venus, Not. d. scavi, 1890, 515 p. 91, and Ephem. Epigr. VIII. p. 86; divinity not mentioned, C. I. L. X. 810-813, 816, 950, 998-999; of Augustus, C. I. L. X. 798, 830, 837-840, 943-948, IV. 1180 (?); of Julia Augusta, C. I. L. X. 961 (?); of Fortuna Augusta, C. I. L. X. 824-828; of Mercury and Maia, C. I. L. X. 884-923; of Nero, C. I. L. IV. 1185 [quoted on p. 222].
Officials of the Pagus Augustus Felix [p. 14]: C. I. L. X. 814, 853, 924, 944, 1027, 1028, 1030, 1042, 1055, 1074; Röm. Mitth., vol. 4 (1889), p. 344.
Pompeian wine [p. 14]: Plin. N. H. XIV. II. 35, III. 38, VI. 70; Columella, De re rust. III. II. 27. For the forms of the amphorae, see the plate at the end of C. I. L. IV. following the map; for the inscriptions, C. I. L. IV. pp. 171-188 and Suppl. 2.
Pompeian cabbage and onions [p. 15]: Plin. N. H. XIX. VIII. 140; Columella, De re rust. X. 135, XII. X. 1.
Volcanic products [p. 15]: pumice stone, Vitr. II. VI. 2; oil mills, Cato, De agri cultura, XXII. 3, 4, CXXXV. 2.
Cicero's Pompeianum [p. 16]: Cic. Acad. pr. II. III. 9, XXV. 80; ad Att. I. XX. 1, V. II. 1, X. XV. 1, XVI. 4, XIII. VIII; ad Fam. VII. III. 1, IV, XII. XX; ad Quint. fr. II. XIV. 1; Plut. Cic. VIII. See also Schmidt, Cicero's Villen—Das Pompeianum, Neue Jahrbücher für das Klassische Altertum, vol. 3 (1899), pp. 489-497, and the review by Mau, Röm. Mitth. vol. 15 (1900), pp. 129-130.
Death of Claudius's Drusus at Pompeii [p. 16]: Suet. Div. Claud. XXVII.
Inscriptions [p. 16]: C. I. L. X. 874, 875; for the Greek inscriptions discovered at Pompeii, cf. C. I. L. IV, Index, p. 264; Kaibel, Inscriptiones Graecae Siciliae et Italiae, pp. 188-189; Dilthey, Dipinti Pompeiani accompagnati d' epigrammi greci, Ann. dell' Inst. vol. 48 (1876), pp. 294-314.
Population of Pompeii [p. 16]: Fiorelli, Gli Scavi di Pompei dal 1861 al 1872, App. 3, pp. 12-14; Nissen, Pomp. Studien, pp. 374-379.
Evidence regarding the existence of a Jewish colony at Pompeii [pp. 17-18]—inscriptions cited: C. I. L. IV, 1507, 2569, 2609, 2611, IV. Suppl. 4976, 5244. Painting with the judgment of Solomon: Lumbroso, Sul dipinto pompeiano in cui si è ravvisato il giudizio di Salomone, Memorie della Acc. dei Lincei, Serie 3, vol. II (1883), pp. 303-305; Samter, Archäologischer Anzeiger, Beiblatt zum Jahr. des Inst., vol. 13 (1898), pp. 49-50. Supposed Christian inscription and the literature relating to it: de Rossi, Una memoria dei Cristiani in Pompei, Bulletino di Archeologia Cristiana, vol. 2 (1864), pp. 69-72, and Dei Giudei Libertini e dei Cristiani in Pompei, ibid. pp. 92-93; C. I. L. IV. 679, and Suppl. p. 461.
CHAPTER III. THE DESTRUCTION OF POMPEII
The particulars of the eruption are treated at length in the works on Vesuvius cited in the note to Chap. I.
Vesuvius before the eruption [p. 19]: Strabo, V. VIII. (p. 247); Diod. 516 Sic. IV. XXI. 5; Vitr. II. VI. 2, 3; Mart. Epigr. IV. XLIV; Palmieri, Del Vesuvio dei tempi di Spartaco e di Strabone e del precipuo cangiamento avvenuto nell' anno 79 dell' era volgare, Pompei e la regione sotterrate dal Vesuvio nell' anno LXXIX, pp. 91-94; see also Lobley, Mount Vesuvius, pp. 95-98 and pl. 8. Representation of Vesuvius in a Pompeian wall painting (discovered in 1879): Not. d. scavi, 1879, p. 285; reproduction, Not. d. scavi, 1880, pl. VII., with a geological analysis by Palmieri, pp. 233-234; reproduced also by de Marchi, Il culto privato di Roma antica, vol. 1 (Milan, 1896), pl. 5 (p. 100).
The earthquake of 63 A.D. [p. 19]: Tac. Ann. XV. XXII (erroneously assigned to 62); Sen. N. Q. VI. I. 1-15, XXVI. 5, XXVII. 1; cf. also the dedicatory inscription of the temple of Isis [p. 170].
Date of the eruption [p. 19]: Mau, Del mese e del giorno dell' eruzione, Bull. dell' Inst. 1880, pp. 92-96; Not. d. scavi, 1889, pp. 407-410; Röm. Mitth., vol. 5 (1890), pp. 282-283.
Ancient sources of our knowledge of the eruption [pp. 19-20]: Plin. Ep. VI. XVI, XX; Dio Cass. LXVI. XXI-XXIII; incidental references, M. Aurel. Anton. IV. XLVIII; Euseb. Chron. ad an. Abr. 2095; Plut. De sera numinis vindicta, XXII. p. 566 E, De Pythiae oraculis, IX. p. 398 E; Tertullian, Apologet. XL, De pallio, II.
Covering of Herculaneum [p. 21]; Ruggiero, Della eruzione del Vesuvio nell' anno LXXIX (see note to Chap. I.), pp. 21-22.
Excavations at Stabiae [p. 21]: see note to Chap. IV.
Commission sent by Titus [p. 23]: Suet. Div. Tit. 8.
CHAPTER IV. THE UNEARTHING
Excavations at Pompeii: Fiorelli, Pompeianarum antiquitatum historia (3 vols., Naples, 1860-1864); Fiorelli, Gli scavi di Pompei dal 1861 al 1872 (Naples, 1873); C. I. L. X. pp. 93-94. Periodical reports of the excavations: Bullettino Archeologico Napolitano pubblicato da Avellino (vols. 1-6, Naples, 1842-1848). Bullettino Archeologico Napolitano, Nuova Serie, edited by Garrucci and Minervini (vols. 1-8, Naples, 1853-1863); Bullettino Archeologico Italiano, edited by Minervini (1861-1862); Giornale degli scavi di Pompei pubblicato da Giuseppe Fiorelli (Naples, 1861-1865, incomplete); Giornale degli scavi di Pompei, Nuova Serie, pubblicata dagli alunni della Scuola archeologica (vols. 1-4, Naples, 1868-1879); since 1876, in the Notizie degli scavi di antichità. The reports on the excavations by Professor Mau were published in the Bullettino dell' Instituto from 1873 to 1885; since 1885 they have appeared in the Römische Mittheilungen.
Excavations at Herculaneum: Ruggiero, Storia degli scavi di Ercolano (Naples, 1885).
Excavations at Stabiae: Ruggiero, Degli scavi di Stabia dal MDCCXLIX al MDCCLXXXII (Naples, 1881). 517
Inscriptions discovered by Fontana [p. 25]: C. I. L. X. 928, 952.
Time required to complete the excavations [p. 29]: Fiorelli, Gli scavi di Pompei dal 1861 al 1872, App. p. 10.
CHAPTER V. A BIRD'S-EYE VIEW
The system of streets [p. 32]: Nissen, Das Templum (Berlin, 1869), pp. 63-81; Nissen, Pomp. Studien, pp. 572-593; Fiorelli, Gli scavi di Pompei dal 1861 al 1872, App. pp. 10-12; von Bezold, Osservazioni sulla limitazione di Pompei, Bull. dell' Inst. 1880, pp. 151-159; Mau, Osservazioni sulla rete stradale di Pompei, Bull. dell' Inst. 1881, pp. 108-112.
The regions and insulae [p. 34]: Fiorelli, Sulle regioni Pompeiane e della loro antica distribuzione (Naples, 1858); Fiorelli, Descrizione di Pompei (Naples, 1875), pp. 24-25; for the names given to houses, Fiorelli, Gli scavi di Pompei dal 1861 al 1872, App. pp. 18-20. Meaning of the word Insula: Richter, Insula, Hermes, vol. 20 (1885), pp. 91-100.
CHAPTER VI. MATERIALS, CONSTRUCTION, ARCHITECTURAL PERIODS
Materials, construction, periods, systems of measurement: Nissen, Pomp. Studien, pp. 1-97; Fiorelli, Gli scavi di Pompei dal 1861 al 1872, pp. 78-86; Ruggiero, Delia eruzione del Vesuvio nell' anno LXXIX (see note to Chap. I), pp. 5-8; Mau, Pompejanische Beiträge (Berlin, 1879), pp. 1-41, and Röm. Mitth., vol. 4 (1889), pp. 294-298.
Mason's marks: C. I. L. IV. pp. 166-167; Richter, Ueber antike Steinmetz-zeichen (Berlin, 1883), pp. 13-22, summarized by Mau, Röm. Mitth., vol. 4 (1899), pp. 292-294; Mau, Segni di scarpellino di Pompei, Röm. Mitth., vol. 10 (1895), pp. 47-51. Marriott, Facts about Pompeii (London, 1895), pp. 62-85, reviewed by Mau, Röm. Mitth., vol. 10 (1895), pp. 222-224. A complete collection of mason's marks will appear in C. I. L. IV. suppl. 2.
CHAPTER VII. THE FORUM
Excavation (1813-1818), plan, remains: Fiorelli, Pomp. ant. hist., vol. 1, pt. 3, pp. 135-212, vol. 3, pp. 1-17; Gell, Pompeiana (Edit. 2, 2 vols., London, 1832), vol. 1, pp. 27-38; Mazois, Les ruines de Pompéi (four parts, cited as vols.; vols. 1 and 2, 1824; vols. 3 and 4, continued by Gau, 1828-1829; Paris), vol. 3, pp. 28-36, plates 13bis, 14; Nissen, Pomp. Studien, pp. 313-319, 344-374.
Inscriptions relating to the Forum or found in it: C. I. L. X. 787-794, IV. pp. 4, 41, 125-127; inscription of A. Clodius Flaccus [p. 57], X. 1074.
Statues of the Forum [pp. 46-48]: Mau, Die Statuen des Forums von Pompeji, Röm. Mitth., vol. 11 (1896), pp. 150-156. 518
History of the colonnade [p. 50]: Mau, Il portico del Foro di Pompei, Röm. Mitth., vol. 6 (1891), pp. 168-176.
Paintings illustrating the life of the Forum [p. 55]: Le pitture antiche di Ercolano e contorni (5 vols., Naples, 1757-1779), pp. 213, 221, 227; Helbig, Wandgemälde, nos. 1489-1500; particularly Jahn, Ueber Darstellungen des Handwerks und Handelsverkehrs auf antiken Wandgemälden, Abhandlungen der sächsischen Gesellschaft der Wissenschaften, philologisch.-hist. Classe, vol. 5 (1870), pp. 263-318 and pl. 1-3; reproduced also by Baumeister, Denkmäler des klassischen Altertums (3 vols., Munich, 1884-1888), vol. III. Fig. 1653; Schreiber, Atlas of Classical Antiquities (trans. by Anderson; London, 1895), pl. 87, 88, 89.
Shape of a typical forum contrasted with that of the agora [p. 57]: Vitr. V. I. 1-3.
Admission fee, [p. 57]: Friedlaender in Marquardt, Röm. Staatsverwaltung (Edit. 2), vol. 3, pp. 492-493.
Slaves not permitted to witness the games [p. 58]: Cic. De harus. resp. XII. 26.
CHAPTER VIII. THE BUILDINGS AROUND THE FORUM—THE TEMPLE OF JUPITER
Of the Capitolium in Roman colonies generally: Kuhfeldt, De capitoliis imperii Romani (Berlin, 1882); Castan, Les capitaux provinciaux du monde romain (Besançon, 1886); de Rossi and Gatti, I campidogli nelle colonie e nelle altre città del mondo romano, Bull. com., vol. 15 (1887), pp. 66-68; Wissowa, Capitolium (2), Pauly-Wissowa Real-Encyclopädie, vol. 3, pp. 1538-1540.
The temple of Jupiter (excavated in 1816-1818, 1820): Fiorelli, Pomp. ant. hist., vol. 1, pt. 3, pp. 185-200, vol. 2, pp. 16-17, vol. 3, p. 13; Mazois, Les ruines de Pompéi, vol. 3, pp. 48-50, pl. 30-36; Nissen, Pomp. Studien, pp. 320-327; Mau, Pomp. Beiträge, pp. 200-209; Weichardt, Pompeji vor der Zerstörung (Leipzig, 1897), pp. 61-78.
Variation of the plan from the Etruscan, union of Greek and Etruscan elements [p. 63]: cf. Vitr. IV. VII. 1, VIII. 5.
Relief in the house of Caecilius Jucundus [p. 64]: Mau, Röm. Mitth., vol. 15 (1900), pp. 115-116.
Decoration of the cella [p. 65]: Mau, Geschichte der decorativen Wandmalerei in Pompeji (Berlin, 1882), pp. 61-62, 248.
Inscriptions found in the cella [p. 66]: C. I. L. X. 796-797.
The Capitolium and the temple of Zeus Milichius [p. 66]: Mau, Röm. Mitth., vol. 11 (1896), pp. 141-149.
Temples of Jupiter, Juno, and Minerva in Etruscan and Roman cities [p. 66]: Serv. Com. in Verg. ad Aen. I. 422; Vitr. I. VII. 1.
Capitals of the Ionic columns of the cella, and of the Corinthian columns of the portico [pp. 63-67]: Mazois, Les ruines de Pompéi, vol. 3, pl. 35. The 519 shape of the acanthus leaves is not that characteristic of the pre-Roman period. It is therefore most probable that the temple was built, or at any rate was completed, in the early years of the colony.
The vaults in the podium [p. 67]: Not. d. scavi, 1900, pp. 341-344.
CHAPTER IX. THE BASILICA
Excavation (1813-1816): Fiorelli, Pomp. ant. hist., vol. 1, pt. 2, p. 86, pt. 3, pp. 111-179 passim; vol. 2, p. 13.
Inscriptions: C. I. L. X. 805-807, IV. pp. 113-125.
Decoration: Mau, Geschichte der dec. Wandmalerei, pp. 11-17.
Reconstruction: Mau, Röm. Mitth., vol. 3 (1888), pp. 14-46, vol. 6 (1891), pp. 67-71, vol. 8 (1893), pp. 166-171; cf. also Wolters, Das Chalcidicum der Pompejanischen Basilica, Röm. Mitth., vol. 3 (1888), pp. 47-60. Equal height of main room and corridor was first assumed by Mazois (Les ruines de Pompéi, vol. 3, pls. 17, 18), afterward by Mau (Pomp. Beiträge, pp. 156-199). A clerestory was added by Canina (Architettura Antica, vol. 3, pl. 93), and by Lange (Haus und Halle, Leipzig, 1885, pp. 351-372). Schoene (Nissen, Pomp. Studien, pp. 198-201) assumes an equal height for the large columns and the half-columns, with a gallery above the corridor.
The Basilica Porcia [p. 70]: Huelsen, Röm. Mitth., vol. 8 (1893), pp. 84, 91. Other references on the Roman basilicas: Huelsen, Nomenclator topographicus (Kiepert and Huelsen, Formae urbis Romae antiquae, Berlin, 1896), pp. 13-14.
The Basilica at Fano [p. 71]: Vitr. V. I. 6-10; Prestel, Des M. Vitruvius Pollio, Basilica zu Fanum Fortunae (Strassburg, 1900). Reconstruction: Viollet-le-Duc, Entretiens sur l'architecture (2 vols. Paris, 1863, 1872), vol. 1, pp. 150-157, and Atlas, pl. 8-10; translation of vol. 1 by van Brunt (under the title Discourses on Architecture, Boston, 1873), pp. 144-149 and pls. 8-10.
Literature relating to the origin of the Christian basilica: Dehio and von Bezold, Die kirchliche Baukunst des Abendlandes, vol. 1 (Stuttgart, 1892), pp. 62-63, and Lowrie, Monuments of the Early Church (New York, 1901), pp. 420-421; cf. also Holtzinger, Die altchristliche und byzantinische Baukunst (Stuttgart, 1899; in Durm's Handbuch der Architektur), pp. 19-25; Kraus, Realencyclopädie der christl. Alterthümer (2 vols., Freiburg, 1882-1886), vol. I. under Basilica; Lange, Haus und Halle (Leipzig, 1885), pp. 270-326; F. Witting, Die Anfänge christlicher Architektur (Strassburg, 1902).
CHAPTER X. THE TEMPLE OF APOLLO
Excavation (1817-1818), remains, restoration: Fiorelli, Pomp. ant. hist., vol. 1, pt. 3, pp. 191, 203-210, vol. 2, pp. 9, 69, vol. 3, pp. 9-16; Gell, Pompeiana (Edit. 3, by Gell and Gandy, London, 1852), pl. 53-54; Mazois, 520 Les ruines de Pompéi, vol. 4, pls. 16-23; Nissen, Pomp. Studien, pp. 213-232; Mau, Pomp. Beiträge, pp. 93-116; Overbeck-Mau, Pompeji (Pompeji in seinen Gebäuden, Alterthümern und Kunstwerken dargestellt von Johannes Overbeck; vierte im Vereine mit August Mau durchgearbeitete und vermehrte Auflage, Leipzig, 1884), pp. 96-104 and 636-637 (Anm. 41-45); Ivanoff, Architektonische Studien, Heft 2 (Berlin, 1895), pl. 1-3; Weichardt, Pompeji vor der Zerstörung, pp. 35-52.
Inscriptions relating to the temple—Oscan [p. 80]: Mau, Bull. dell' Inst, 1882, pp. 189-190, 203, 205-207; Buecheler, Rhein. Mus., vol. 37 (1882), p. 643; Zvetaieff, Inscriptiones Italiae inferioris dialecticae (Moscow, 1886), p. 55 (no. 156 a); von Planta, Grammatik der Oskisch-Umbrischen Dialekte (2 vols.; Strassburg, 1892, 1897), vol. 2, p. 500; Conway, Italic Dialects (2 vols., London, 1897), vol. 1. p. 65. Latin [pp. 85-86]: C. I. L. X. 787, 800-804.
Paintings [pp. 84, 87]: Helbig, Wandgemälde, nos. 266, 395, 1306, 1324, 1325, 1544, and Nachträge, pp. 461-462.
Statues found in the court [p. 87]—Venus: Museo Borb., vol. 14, pl. 23. Artemis and Apollo: Museo Borb., vol. 8, pl. 59, 60. Herm in the Naples Museum formerly thought to be Maia: Patroni, La pretesa Maia, erma del Museo Nazionale di Napoli, Röm. Mitth., vol. 15 (1900), pp. 131-132.
The cult of Mercury and Maia [p. 89]: cf. Samter, Altare di Mercurio e Maia, Röm. Mitth., vol. 8 (1893), pp. 222-225.
Augustus as Mercury [p. 90]: Kiessling, Zu Hor. Od. I. 2, in Philologische Untersuchungen (herausgegeben von Kiessling und U. von Wilamowitz-Moellendorff, Berlin), Heft 2 (1881), p. 92. Inscriptions referring to the cult of Mercury and Maia, afterward of Augustus, at Pompeii: C. I. L. X. pp. 109-113. Dendereh inscription (found with a wall painting showing the portrait of an emperor): Duemichen, Baugeschichte des Denderah Tempels (Berlin, 1877), p. 16 and pl. 9; Krall, Wiener Studien, vol. 5 (1883), p. 315, note.
CHAPTER XI. THE BUILDINGS AT THE NORTHWEST CORNER OF THE FORUM—THE TABLE OF STANDARD MEASURES
The table of standard measures [p. 92]: Mancini, La mensa ponderaria di Pompei esistente nel Museo Nazionale di Napoli, Giornale degli scavi di Pompei, Nuova Serie, vol. 2 (1871), pp. 144-161; Nissen, Pomp. Studien, pp. 71-74; Conway, The Italic Dialects, vol. 1, pp. 67-68, vol. 2, pp. 521-523; Zvetaieff, Sylloge inscriptionum Oscarum, pl. 13; C. I. L. X. 793.
Measurements of the cavities by Mr. Bidder: The Academy, April 15, 1895, p. 319.
Other tables of standard measures [p. 93]: at Minturnae, C. I. L. X. 6017; at Tivoli, Not. d. scavi, 1883, pp. 85-86, 172, and Lanciani, Pagan and Christian Rome (Boston, 1892), pp. 40-41; at Selinus, Not. d Scavi. 1884, p. 321; 521 Bregenz, Mitth. der Oesterr. Centralcommission, Neue Folge, vol. 8, p. 99; in Greek lands, Tarbell, A "Mensa Ponderaria" from Assos; American Journal of Archæology, vol. 7 (1891), pp. 440-443, and n. 1 (the Assos table is now in the Boston Museum of Fine Arts); Bacon, Investigations at Assos, Pt. 1 (1902), pp. 71, 73.
CHAPTER XII. THE MACELLUM
Excavation (in 1821-1822), identification, reconstruction: Fiorelli, Pomp. ant. hist., vol. 2, pp. 38-56, vol. 3, pp. 31-32; Gell, Pompeiana (Edit. of 1832), vol. 1, pp. 46-68; Mazois, Les ruines de Pompéi, vol. 3, pp. 59-67, pl. 42-46; Nissen, Pomp. Studien, pp. 275-286; Overbeck-Mau, Pompeji, pp. 120-128; Not. d. scavi, 1898, pp. 333-339.
Other macella [p. 94] in Rome: Huelsen, Nomenclator top. (see note to Chap. IX), p. 44. At Puteoli: Gervasio, Sopra alcune iscrizioni riguardanti il Macello nell' antica Pozzuoli (Naples, 1852); published also in Memorie della regale Accademia ercolanese di archeologia, vol. 6 (1853), pp. 265-283.
The tholus [p. 94]: Varro, apud Non., p. 448. The coin of Nero referred to is described by Eckhel, Doctrina numorum veterum (Edit. 2, 8 vols., Vienna, 1792-1828), vol. 6, p. 273, and figured by Cohen, Description historique des monnaies frappées sous l'empire romain, vol. 1 (Edit. 2, Paris, 1880), p. 288; and Donaldson, Architectura Numismatica, no. LXXII.
Paintings in the Macellum at Pompeii [pp. 96-98]: Helbig, Wandgemälde, see Topogr. Index, p. 476, under Pantheon.
Cupids as bakers and as makers of wreaths [p. 98]: Museo Borb., vol. 4, pl. 47, and vol. 6, pl. 51; Roux, Herculanum et Pompéi (text by Barré; 8 vols., Paris, 1840), vol. 2, pl. 83, 84; Helbig, Wandgemälde, nos. 777, 800; Jahn, Abhandlungen der Königl. sächsichen Gesellschaft der Wissenschaften, philolog-hist. Classe, vol. 5 (1870), pp. 315-318 and pl. 6.
Statues found in the imperial chapel [p. 98]: Mau, Statua di Marcello nipote di Augusto, Atti della reale Accademia di Napoli, vol. 15 (1891), pp. 133-151; Helbig, Osservazioni sopra i ritratti di Fulvia e di Ottavia, Mon. dei Lincei, vol. 1 (1890), pp. 573-590. Both these articles are summarized by Mau, Röm. Mitth., vol. 6 (1891), p. 268, and vol. 7 (1892), pp. 169-171. The statues were published with the names of Livia and Drusus, son of Tiberius, in the Museo Borb., vol. 3, pl. 37, 38; the right hand of Octavia is restored.
Destruction wrought by the earthquake of 63 [p. 101]: this matter will be discussed in an early number of the Römische Mittheilungen.
CHAPTER XIII. THE SANCTUARY OF THE CITY LARES
Excavation (1817), remains: Fiorelli, Pomp. ant. hist., vol. 1, pt. 3, p. 196; Mazois, Les ruines de Pompéi, vol. 3, pp. 50-51, pl. 37; Nissen, Pomp. Studien, pp. 303-306.
Identification and restoration: Mau, Der Städtische Larentempel in Pompeji, Röm. Mitth., vol. 11 (1896), pp. 285-301. 522
CHAPTER XIV. THE TEMPLE OF VESPASIAN
Excavation (in 1817), remains, identification, restoration: Fiorelli, Pomp. ant. hist., vol. 1, pt. 3, p. 198; Mazois, Les ruines de Pompéi, vol. 4, pp. 33-36, pl. 12-15; Garrucci, L'Augusteum, la curia degli Augustales, il Chalcidicum, l'aedes Fortunae Augustae, Bullettino archeologico Napolitano, Nuova Serie, vol. 2 (1854), pp. 4-6, published also in his Questioni Pompeiane (Naples, 1853), pp. 74-79; Nissen, Pomp. Studien, pp. 270-275; Mau, Osservazioni sul creduto tempio del Genio di Augusto in Pompei, Atti della reale Accademia di Napoli, vol. 16 (1894), pp. 181-188; Weichardt, Pompeji vor der Zerstörung, pp. 95-101. For the restoration given in Fig. 46, see Mau, Der Tempel des Vespasian in Pompeii, Röm. Mitth., vol. 15 (1900), pp. 133-138.
CHAPTER XV. THE BUILDING OF EUMACHIA
Excavation (1814-1818): Fiorelli, Pomp. ant. hist., vol. 1, pt. 3, pp. 154-158, 195, 198, 210-213, vol. 2, pp. 7-19, vol. 3, pp. 6, 13, 16, 23.
Remains, identification, restoration: Bechi, Del calcidico e della cripta di Eumachia scavati nel Foro di Pompeji l'anno 1820 (Naples, 1820); Gell, Pompeiana (Edit. of 1832), vol. 1, pp. 13-26; Mazois, Les ruines di Pompéi, vol. 3, pp. 42-47, pl. 22-27; Nissen, Pomp. Studien, pp. 287-303. For the restorations given in the text, see Mau, Osservazioni sull' edifizio di Eumachia in Pompei, Röm. Mitth., vol. 7 (1892), pp. 113-143.
Inscriptions [pp. 111, 112]: C. I. L. X. 808-815.
Decoration [p. 111]: Mazois, Les ruines de Pompéi, vol. 3, pp. 45-46, pl. 26, 27; Mau, Geschichte der dec. Wandmalerei, pp. 334-335, 410, and pl. 10; Helbig, Wandgemälde, no. 1094 c.
CHAPTER XVI. THE COMITIUM
Remains, identification: Mazois, Les ruines de Pompéi, vol. 3, pp. 58-59; Nissen, Pomp. Studien, pp. 185-193; Overbeck-Mau, Pompeji, pp. 136-138.
CHAPTER XVII. THE MUNICIPAL BUILDINGS
Excavation (1814), remains, identification: Fiorelli, Pomp. ant. hist., vol. 1, pt. 3, pp. 154-159, vol. 2, p. 160; Mazois, Les ruines de Pompéi, vol. 3, p. 52, pl. 38; Nissen, Pomp. Studien, pp. 306-311; Overbeck-Mau, Pompeji, pp. 139-142.
CHAPTER XVIII. THE TEMPLE OF VENUS POMPEIANA
Excavation, remains, identification: Not. d. scavi, 1899, pp. 17-23, 1900, pp. 27-30. In these reports the temple is assigned to the worship of Augustus, the history of the building also being misunderstood. For a justification of the interpretation of the remains given in the text, see Mau, Der Tempel der Venus Pompeiana. Röm. Mitth., vol. 15 (1900), pp. 270-308 and pl. 7-8. 523
CHAPTER XIX. THE TEMPLE OF FORTUNA AUGUSTA
Excavation (1823-1824): Fiorelli, Pomp. ant. hist., vol. 2, pp. 84-85, 91, 95-98.
Remains, restoration: Mazois, Les ruines de Pompéi, vol. 4, pp. 45-48, pl. 24-26; Gell, Pompeiana (Edit. of 1832), vol. 1, pp. 69-82; Nissen, Pomp. Studien, pp. 178-184; Mau, Der Tempel der Fortuna Augusta in Pompeji, Röm. Mitth., vol. 11 (1896), pp. 269-284; Weichardt, Pompeji vor der Zerstörung, pp. 85-93.
Inscriptions [pp. 130, 132]: C. I. L. X. 820-828.
CHAPTER XX. THE FORUM TRIANGULARE AND THE GREEK TEMPLE
Excavation of the Forum and the temple (1767-1797): Fiorelli, Pomp. ant. hist., vol. 1, pt. 1, pp. 211, 276, 285, 286, 297, 307, 308, pt. 2, pp. 63-65.
Remains of the temple, restoration: Mazois, Les ruines de Pompéi, vol. 3, pp. 17-22, pl. 8-10. Especially attractive are the sketches and restorations given by Weichardt, Pompeji vor der Zerstörung, pp. 17-33, pl. 1, 2 (reproduced in our pl. 3), and 3. The best description of the remains of the temple is given by Koldewey and Puchstein, Die griechischen Tempel in Unteritalien und Sicilien (Berlin, 1899), pp. 45-49 and pl. 5; their conclusions are criticised by Mau, Röm. Mitth., vol. 15 (1900), pp. 126-128. See also von Duhn and Jacobi, Der griechische Tempel in Pompeji (Heidelberg, 1890); Sogliano, Il tempio nel Foro triangolare di Pompei, Mon. dei Lincei, vol. 1 (1890), pp. 189-200; both these contributions are reviewed by Mau, Röm. Mitth., vol. 6 (1891), pp. 258-267.
The colonnade contained ninety-five Doric columns [p. 135]: there were in addition two half-columns at the south end; Plan III in this respect is inexact. The number of columns is often given as one hundred.
Inscriptions of the sundial and the pedestal [p. 136]: C. I. L. X. 831, 832.
Number of columns in the temple front uneven [p. 137]: the steps are too broad for one intercolumniation, and must have been designed for two, as indicated in Fig. 62.
Human bones found in the enclosure [p. 139]: Romanelli, Viaggio a Pompei (1811), p. 104 (Edit. 2, 1817, p. 182), "Vi furono trovati molti avanzi di cadaveri sepolti." Excavations made here at the suggestion of Professor Mau brought to light few traces of bones.
Oscan inscription [p. 139]: Zvetaieff, Sylloge inscriptionum Oscarum (Leipzig, 1868), no. 69 and pl. 13; von Planta, Grammatik der Oskisch-Umbrischen Inschriften, vol. 2, p. 501; Conway, Italic Dialects, vol. 1, p. 63.
Oscan inscription [p. 140]: see references below, pp. 530-531.
CHAPTER XXI. THE LARGE THEATRE
Excavation of the two theatres and the court behind the Large Theatre (July, 524 1764, to March, 1765; and December, 1791, to February, 1796): Fiorelli, Pomp. ant. hist., vol. 1, pt. 1, pp. 158-165, pt. 2, pp. 46-63. For the Small Theatre, see also vol. 1, pt. 2, pp. 69, 75.
Paintings at Pompeii relating to the stage: Helbig, Wandgemälde, nos. 1464-1476; Sogliano, Le pitture murali Campane, nos. 740-752; Maass, Affreschi scenici di Pompeii, Ann. dell' Inst., vol. 53 (1881), pp. 109-159, and Mon. dell' Inst., vol. 11, pl. 30-32.
Remains of the Large Theatre: Mazois, Les ruines de Pompéi, vol. 4, pp. 55-70, pl. 27-34; Fiorelli, Descrizione di Pompei, pp. 352-357; Nissen, Pomp. Studien, pp. 232-253; Overbeck-Mau, Pompeji, pp. 153-176.
The tribunals [p. 145]: it is evident from the language of Suetonius (Div. Aug. 44, solis virginibus Vestalibus locum in theatro separatim et contra praetoris tribunal dedit) that opposite the place set aside for the praetor, which was called tribunal, there was another likewise reserved. In our theatre the two platforms mentioned correspond exactly with this arrangement, and there is no other part of the structure to which the word tribunalia, in the inscription of the Holconii (p. 148), could properly be applied. We are safe therefore in calling the platforms tribunals.
Wall painting, showing theatre police seated in niches in front of the stage [p. 146]: found in the casa della fontana grande; described by Helbig, Wandgemälde, no. 1468; figured in Museo Borb., vol. 4, pl. 18, and in Wieseler, Theatergebäude und Denkmäler des Bühnenwesens bei den Griechen und Römern (Göttingen, 1851), pl. 11, 2. A similar figure sitting in a shallow niche has been found on a wall in the eighth region (VIII. II. 23); see Röm. Mitth., vol. 3 (1888), p. 202, no. 12. On the need of police to keep order in Roman theatres, see the references given by Marquardt, Röm. Staatsverwaltung, vol. 3 (Edit. 2), pp. 541-542; but cf. Körting, Geschichte des griechischen und römischen Theaters (Paderborn, 1897), p. 367.
Place of stage machinery [p. 147]: Pollux, Onomast. IV. 128.
Inscriptions relating to Actius Anicetus [p. 148]: inscription found at Puteoli, C. I. L. X. 1946; graffiti, C. I. L. IV. 2155, and Index, p. 233, under Actius and Anicetus; C. I. L. IV. Suppl. 5395.
Assemblies in the theatre [p. 148]: at Tarentum (282 B.C.), App. De rebus Samnit. VII. II; Dio Cass. Frag. XXIX. 5; at Pergamus, Plut. Sulla, 11. Cf. Muller, Bühnenalterthümer, pp. 73-75.
Inscriptions found in the theatre [pp. 148-150]: monumental, C. I. L. X. 833-843; painted inscriptions and graffiti, C. I. L. IV. pp. 63, 153-157.
The stage and the orchestra in the Greek and the Roman theatre [p. 150]: Vitr. V. VI-VIII.
The problem of the stage in the Greek theatre [p. 151]: Doerpfeld and Reisch, Das griechische Theater, Beiträge zur Geschichte des Dionysos-Theaters in Athen und anderer griechischer Theater (Athens and Leipzig, 1896), particularly pp. 341-365; Doerpfeld, Das griechische Theater Vitruvs, Athen. Mitth., vol. 22 (1897), pp. 439-462; vol. 23 (1898), pp. 326-356. A convenient summary of Doerpfeld's conclusions and of the literature 525 of the subject to 1898 is given by Frazer, Pausanias's Description of Greece, vol. 3, pp. 254-255, and vol. 5, pp. 582-584.
The stage of the Large Theatre at Pompeii [p. 152]: Puchstein and Koldewey, Berliner Philologische Wochenschrift, 1896, pp. 477-478; Archäologischer Anzeiger, Beiblatt zum Jahrb. des Inst., 1896, pp. 30, 40; Puchstein, Die griechische Bühne (Berlin, 1901), pp. 75-77.
CHAPTER XXII. THE SMALL THEATRE
Excavation, remains: see references to Chap. XXI.
Decoration (second style): Mau, Geschichte der dec. Wandmalerei, pp. 248-249.
Inscriptions: C. I. L. X. 844, 845. Theft of the bronze letters of the inscription of Oculatius Verus [p. 156]: Fiorelli, Pomp. ant. hist., vol. 1, pt. 3, pp. 231, 277; Zangemeister, Sopra l' iscrizione del teatro piccolo di Pompei, Bull. dell' Inst., 1866, pp. 30-31.
Gaius Quinctius Valgus [p. 153]: Cic. De lege agraria, III; C. I. L. IX. 1140, X. 5282 (cf. Buecheler, Carmina Latina epigraphica, vol. 1, Leipzig, 1895, no. 12); Dessau, C. Quinctius Valgus, Der Erbauer des Amphitheaters zu Pompeii, Hermes, vol. 18 (1883), pp. 620-622.
The narrow doors at the rear of the stage designed to give access to the tribunalia [p. 156]: Kelsey, The Stage Entrances of the Small Theatre at Pompeii, American Journal of Archæology, series 2, vol. 4 (1900), p. 150, also vol. 6 (1902).
CHAPTER XXIII. THE THEATRE COLONNADE
Excavation (October 25, 1766, to April 7, 1769, and December 10, 1791, to February 20, 1794): Fiorelli, Pomp. ant. hist., vol. 1, pt. 1, pp. 195-228, pt. 2, pp. 46-48, 51, 52, 54, 151-153, pt. 3, p. 273.
Remains, identification, restoration: Mazois, Les ruines de Pompéi, vol. 3, pp. 12-15, pl. 2-6; Gell, Pompeiana (Edit. of 1852), p. 184; Garrucci, Il Ludus Gladiatorius, ovvero Convitti dei Gladiatori, in his Questioni Pompeiane (Naples, 1853), pp. 1-8; Nissen, Pomp. Studien, pp. 253-262. The suggestion has lately been made that the colonnade may have been designed as the Gymnasium of pre-Roman Pompeii (Petersen, Ueber die sogen. Gladiatorenkaserne in Pompeji, Röm. Mitth., vol. 14 (1899), pp. 103-104).
Graffiti: C. I. L. IV. pp. 157-159.
Exhibitions of gladiators [p. 161]: C. I. L. X. 1074, and references to Chap. XXX.
Paintings [pp. 161-162]: Helbig, Wandegemälde, nos. 322, 1512.
CHAPTER XXIV. THE PALAESTRA
Excavation (April 13 to August 31, 1797): Fiorelli, Pomp. ant. hist., vol. 1, pt. 2, pp. 66-68.
Remains, identification: Mazois, vol. 3, pp. 25-26, pl. 11, 12; Nissen, 526 Pomp. Studien, pp. 158-170; Mau, Der Fundort des Neapler Doryphoros, Strena Helbigiana (Leipzig, 1900), pp. 184-187.
Measurements, showing conformity to the Oscan standard [p. 165]: Mau, Pomp. Beiträge, pp. 21-23.
Oscan inscription [p. 165]: Zvetaieff, Sylloge inscriptionum Oscarum, no. 63, pl. 11; von Planta, Grammatik der Oskisch-Umbrischen Dialekte, vol. 2, p. 499; Conway, Italic Dialects, vol. 1, no. 42.
Doryphorus [p. 166]: reproduction on a larger scale, Brunn and Bruckmann, Denkmäler griechischer und römischer Sculptur, no. 273.
CHAPTER XXV. THE TEMPLE OF ISIS
The worship of Isis outside of Egypt: Lafaye, Histoire du culte des divinités d'Alexandrie, Sérapis, Isis, Harpocrate et Anubis, hors de l'Égypte, depuis les origines jusqu'à la naissance de l'école néo-Platonicienne (Paris, 1883); for the literature relating to the worship of Isis in Italy, see Roscher, Ausführliches Lexikon der griechischen und römischen Mythologie, vol. 2, pt. 1, pp. 398-412.
Excavation of the temple (December 22, 1764, to September 27, 1766): Fiorelli, Pomp. ant. hist., vol. 1, pt. 1, pp. 164-194.
Inscriptions relating to the temple: Piranesi (see below), pl. 70-72; C. I. L. X. 846-851. Inscription found at Puteoli [p. 169]: C. I. L. I. 577, X. 1781; Wiegand, Die puteolanische Bauinschrift sachlich erläutert, Jahrbücher für classische Philologie, Supplementband 20 (1894), pp. 659-778. An interesting graffito relating to the worship of Isis was found in the house of the Silver Wedding in 1892; see Röm. Mitth., vol. 8 (1893), p. 57, no. 7 (cf. also de Rossi, Roma sotterranea, vol. 2, pp. 14-15).
Remains, restoration: Sogliano, Aedis Isidis Pompeiana, not yet published [see Preface, p. vi.]; Piranesi, Antiquités de Pompéi (designs made about 1788), vol. 2 (= vol. 26 of Opera, in 27 vols.), pl. 59-72; Mazois, Les ruines de Pompéi, vol. 4, p. 24, pl. 7-11; Niccolini, Le case ed i monumenti di Pompei (Naples, 1854-1895), vol. 1, pt. 3, end (12 pl.); Nissen, Pomp. Studien, pp. 170-175, 346-349; Mau, Pomp. Beiträge, p. 23; Weichardt, Pompeji vor der Zerstörung, pp. 103-113.
Statues—Bacchus [p. 170]: Museo Borb., vol. 9, pl. 11: Roux, Herculanum et Pompéi, vol. 6, pl. 21. Isis [p. 176]: Museo Borb., vol. 14, pl. 35. Herm of Sorex [p. 176], Piranesi, Antiquités de Pompéi, vol. 2. pl. 72. The statue of Venus has disappeared: Overbeck-Mau, Pompeji, note 208, p. 649.
Paintings [pp. 172 et seq.]: Helbig, Wandgemälde, nos. 1-6, 135, 138, 391 b, 962, 1013, 1096-99, 1103, 1271, 1292, 1571, 1576-1577. Paintings from Herculaneum [p. 178]: Roux, Herculanum et Pompéi, vol. 2, pl. 68, 69; Helbig, Wandgemälde, nos. 1111, 1112.
A left hand carried in procession in honor of Isis [p. 173]: Apul. Metam. XI. X.
Service described by Apuleius [p. 176]: Metam. XI. XX. While the people 527 were praying the priest made a circuit of the altars, which were evidently, as at Pompeii, distributed about the temple in the court.
Perseus rescuing Andromeda [p. 179]: that the male figure is intended to represent Perseus and not Hermes is certain from the description of the figure when first excavated—"alla cinta tiene una testa alata" (Fiorelli, Pomp. ant. hist., vol. 1, pt. 1, p. 171). All trace of the Medusa head has now disappeared.
Initiation into the mysteries of Isis [p. 182]: Apul. Metam. XI. XXI, XXIII.
CHAPTER XXVI. THE TEMPLE OF ZEUS MILICHIUS
Excavation (September 27 to October 18, 1766; March 15-22 and June 14, 1798): Fiorelli, Pomp. ant. hist., vol. 1, pt. 1, pp. 194-195, pt. 2, pp. 70-71.
Remains, identification, restoration: Mazois, Les ruines de Pompéi, vol. 4, p. 22, pl. 4-6; Nissen, Pomp. Studien, pp. 175-177, 535-536; Mau, Pomp. Beiträge, pp. 13-15, 227-232; Mau, Geschichte der dec. Wandmalerei, pp. 60-61; Mau, Das Capitolium und der Tempel des Zeus Meilichios in Pompeji, Röm. Mitth., vol. 11 (1896), pp. 141-149. An impossible restoration is given by Weichardt, Pompeji vor der Zerstörung, pp. 116-123.
Two statues and a bust of terra cotta [p. 184]: von Rohden, Die Terracotten von Pompeji (Stuttgart, 1880), pp. 42-43, pl. 29.
Oscan inscription [p. 184]: Zvetaieff, Sylloge inscriptionum Oscarum, no. 62, pl. 10; von Planta, Grammatik der Oskisch-Umbrischen Dialekte, vol. 2, p. 499; Conway, Italic Dialects, vol. 1, pp. 58-59; Nissen, Pomp. Studien, pp. 531-536.
CHAPTER XXVII. THE STABIAN BATHS
Roman baths in general: Marquardt, Privatleben der Römer, Edit. 2, pt. 1, pp. 269-297; Mau, article Bäder in the Pauly-Wissowa Realencyclopädie, vol. 2, pt. 2, pp. 2743-2758; Nissen, Pomp. Studien, pp. 152-155.
Baths in Pompeii—in the second Insula of Region VIII: Mau, Röm. Mitth., vol. 3 (1888), pp. 194-205, vol. 5 (1890), pp. 130-141, vol. 10 (1895), pp. 218-219. In the so-called villa of Julia Felix: Chambalu, Die wiederverschüttete Besitzung der Julia Felix beim Amphitheater in Pompeji, Festschrift zur 43ten Versammlung deutscher Philologen und Schulmänner dargeboten von den höheren Lehranstalten Kölns (Cologne, 1895), and the review of this pamphlet by Mau, Röm. Mitth., vol. 10 (1895), pp. 225-227. For the baths of M. Crassus Frugi, see above, p. 408; for the baths in private houses at Pompeii, Mau, Pomp. Beiträge, pp. 149-151, and above, pp. 267, 306-307 (both in the house of the Silver Wedding), 346, 357, 362-363.
Excavation of the Stabian Baths (1854-1857; the official reports are meagre): Fiorelli, Pomp. ant. hist., vol. 2, pp. 589-658; cf. also Minervini, Notizie de' più recenti scavi di Pompei, Bull. Archeologico Napolitano, Nuova Serie, vols. 2-6 (1853-1858).
Remains: Michaelis, Die neuen Bäder in Pompeji, Archäologische 528 Zeitung, vol. 17 (1859), pp. 17-32, 37-46; Finati, Relazione degli scavi di Pompei, Museo Borb., vol. 16 (15 pp. text and pl. A-B); Niccolini, Le case ed i monumenti di Pompei, vol. 1, pt. 3 (12 pp., 8 pls.); Nissen, Pomp. Studien, pp. 140-158; Mau, Pomp. Beiträge, pp. 117-151; Overbeck-Mau, Pompeji, pp. 215-233; Mau, Geschichte der dec. Wandmalerei, p. 60.
Paintings: Helbig, Wandgemälde, nos. 30 (p. 11), 44, 416, 432, 1016, 1057, 1260 b, 1545; see below, pl. XIII.
Origin of the balneae pensiles [p. 187]: Valer. Max. IX. I. 1; Plin. N. H. IX. LIV. 168.
The anteroom of the men's baths [p. 190]: in the front part of this was once a shallow basin, undoubtedly for preliminary cleaning before one entered the frigidarium; cf. p. 197.
Bath basin in the men's tepidarium [p. 192]: cf. Kuszinsky, Aquincum (Budapest, 1889), p. 62.
The poet declaiming in the bath [p. 192]: Petr. Sat. XCI.; Hor. Sat. I. IV. 74-76; and cf. Mayor's note to Juvenal I., 17 and III., 9.
Pulvinus [p. 193], testudo alvei [p. 194]: Vitr. V. X. Testudo alvei: Mau, Fulcra lectorum—testudines alveorum, Nachrichten von der Königl. Gesellschaft der Wissenschaften zu Göttingen, 1896, pp. 76-82; von Duhn and Jacobi, Der griechische Tempel in Pompeji, pp. 33-35 and pl. 9.
Inscriptions—Vulius and Aninius [p. 195]: C. I. L. X. 829. Vaccula [p. 197]: C. I. L. IV. Suppl. 1, no. 3340, VI. Atinius [p. 200]: Zvetaieff, Sylloge inscriptionum Oscarum, no. 66, pl. 13; von Planta, Grammatik der Oskisch-Umbrischen Dialekte, vol. 2, p. 500; Conway, Italic Dialects, vol. 1, p. 61.
Destrictarium [p. 195]: all the rooms at the left of the palaestra are of later date than the inscription; the present destrictarium probably takes the place of an earlier one.
Improvement of the arrangements for heating [p. 196]: the hollow walls of the caldarium are made with hollow tiles, while in the tepidarium tegulae mammatae are used; for a fuller discussion of the successive changes, see Mau, Pomp. Beiträge, pp. 131-141.
The brazier of Vaccula [p. 197]: Fiorelli, Pomp. ant. hist., vol. 2, pp. 649-650.
Hermes in the gymnasium at Phigalia [p. 200]: Paus. VIII. XXXIX. 4 (6); cf. also IV. XXXII. 1.
CHAPTER XXVIII. THE BATHS NEAR THE FORUM
Excavation [1824-1825]: Fiorelli, Pomp. ant. hist., vol. 2, pp. 106, 107-116, 118, 121-125, 128, vol. 3, p. 15.
Remains: Bechi, Terme Pompeiane, Museo Borb., vol. 2, pl. 49-52 (text, 31 pp.); Brulloff, Thermes di Pompéi (Paris, 1829), 10 large pls.; Gell, Pompeiana (Edit. of 1832), vol. 1, pp. 83-141, vol. 2, pp. 80-94; Mazois, Les ruines de Pompéi, vol. 3, pp. 67-77, pl. 47-50; Zahn, Neuentdeckte Wandgemälde 529 in Pompeji (Stuttgart, 1828), pl. 2-5; Zahn, Die schönsten Ornamente und merkwürdigsten Gemälde aus Pompeji, Herkulanum und Stabiae, nebst einigen Grundrissen und Ansichten (3 parts, here cited as volumes, 302 pls. in 30 Heften, Berlin, 1827-1859), vol. 1, pl. 10, 46, 76, 94; Nissen, Pomp. Studien, pp. 128-135; Mau, Pomp. Beiträge, pp. 218-227.
Inscriptions of the builders [p. 203], of Vaccula [p. 205], of Aper and Rufus [p. 206]: C. I. L. X. 817-819.
CHAPTER XXIX. THE CENTRAL BATHS
Excavation (1876-1878), remains: Mau, Bull. dell' Inst., 1877, pp. 214-223, 1878, pp. 251-254. Laconicum: Mau, Pomp. Beiträge, pp. 144-145.
CHAPTER XXX. THE AMPHITHEATRE
Of amphitheatres in general, and gladiatorial sports: Friedlaender, Darstellungen aus der Sittengeschichte Roms in der Zeit von August bis zum Ausgang der Antonine, Edit. 6 (3 parts, here cited as volumes, Leipzig, 1888-1890), vol. 2, pp. 358-435, Edit. 7, vol. 2, pp. 45-66; briefer statement by Friedlaender in Marquardt's Staatsverwaltung, Edit. 2, vol. 3, pp. 554-565; Meier, De gladiatura Romana quaestiones selectae (Bonn, 1881).
Gladiatorial combats in Campania and in Rome [pp. 212-213]: Strabo, V. IV. 12 (p. 250, C); Valer. Max. II. IV. 7; Liv. Epit. XVI. and XXIII. XXX. 15. For the games following Caesar's triumph, see Suet. Div. Iul., XXXIX. App. Bel. Civ. II. XV. 102 and Dio. Cas. XLIII. 22.
Excavation of the Amphitheatre (1748, 1813-1816): Fiorelli, Pomp. ant. hist., vol. 1, pt. 1, pp. 5-6, pt. 3, pp. 114 et seq., 185, 189.
Remains: Mazois, Les ruines de Pompéi, vol. 4, pp. 77-86, pl. 43-47; Fiorelli, Descrizione di Pompéi, pp. 69-74; Nissen, Pomp. Studien, pp. 97-127.
Paintings [pp. 213, 214], Helbig, Wandgemälde, nos. 1514, 1515, 1519; cf. also nos. 1512-1513, 1516-1518, and Sogliano, Le pitture murali Campane, nos. 665-668.
Inscriptions relating to the building, or found on it [pp. 212, 218, 219]: C. I. L. X. 852-859; painted inscriptions and graffiti, C. I. L. IV. pp. 7, 64-66, 159.
Inscriptions relating to the games [pp. 221 et seq.]—announcements: C. I. L. IV. 1177-1204, Suppl. 3881-3884. Programme [p. 223]: C. I. L. IV. 2508. Custos, ostiarius ab amphitheatro [p. 225]: C. I. L. VI. 6226, 6228. Inscription of Salvius Capito [p. 225]: C. I. L. IX. 465, 466 (cf. also C. I. L. X. 4920). Names of gladiators, with their records [pp. 225-226]: C. I. L. IV., see Index, under gladiatores, p. 255. Graffiti in the house on Nola Street [p. 226]: C. I. L. IV. Suppl. 4277-4393; and Röm. Mitth., vol. 5 (1890), pp. 25-39, 64-65, vol. 7 (1892), p. 23.
Combat between the Pompeians and the Nucerians [pp. 220, 221]: Tac. 530 Ann. XIV. XVII. Painting (Fig. 101; found Ins. I. III. 23), de Petra, L' Anfiteatro pompeiano rappresentato in un antico dipinto, giornale degli scavi di Pompei, Nuova Serie, vol. 1 (1869), pp. 185-187, pl. 8; Matz, Bull. dell' Inst., 1869, pp. 240-241; Sogliano, Le pitture murali Campane, no. 604. Inscriptions [see p. 492]: C. I. L. IV. 1293 (with caricature, figured Museo Borb., vol. 6, pl. C), 1329, 2183.
CHAPTER XXXI. STREETS, WATER SYSTEM, AND WAYSIDE SHRINES
The streets [pp. 227-229]: Mazois, Les ruines de Pompéi, vol. I, pp. 25-26, pl. 2, 3, 14, 15, 35, 37, vol. 2, pp. 35-39, pl. 2-8; Nissen, Pomp. Studien, pp. 516-572. Inscriptions on the pavement [p. 228], C. I. L. X. 870, 871.
The water system [pp. 230-233]: Mazois, Les ruines de Pompéi, vol. 3, p. 27, pl. 13; Murano, Pompei—donde venivano le acque potabili ai castelli acquarii (Naples, 1894); review of Murano's treatise by Mau, Röm. Mitth., vol. 10 (1895), pp. 216-218. Age of the aqueduct supplying Pompeii: Mau, Röm. Mitth., vol. 10 (1895) pp. 49-51. Recent investigation of the system of sewers: Not. d. scavi, 1900, pp. 587-599. Water towers of Constantinople [p. 232]: von Hammer, Geschichte des Osmanischen Reichs (10 vols., Pest, 1827-1835), vol. 7, pp. 422, 598-599; cf. also Pardoe, Beauties of the Bosphorus (London, 1839), pp. 24-25.
Wayside shrines [pp. 233-236]: Mazois, Les ruines de Pompéi, vol. 2, pl. 6; Gell, Pompeiana (Edit. of 1852), pp. 97-98; Overbeck-Mau, Pompeji, pp. 242-244. Paintings of divinities on the outside of houses [p. 236]: Helbig, Wandgemälde, nos. 7-28; Sogliano, Le pitture murali Campane, nos. 1-4; serpents, Helbig, nos. 29, 30; Sogliano, nos. 5-8. Painting of the twelve gods; Gerhard, Intorno la pittura Pompeiana rappresentante i dodici dei, Ann. dell' Inst., vol. 22 (1850), pp. 206-214. Inscription [p. 236]: C. I. L. IV. 813; cf. Pers. Sat. I. 113.
CHAPTER XXXII. THE DEFENCES OF THE CITY
Excavation of walls, gates, towers: Fiorelli, Pomp. ant. hist., vol. 1, pt. 1, pp. 154, 234-236, pt. 3, pp. 64-69, 76, 84-88, 96-97, 111-124, 131, 143-151, 160, 168-170, vol. 2, pp. 1, 501-506, 530, 593-597.
Remains: Mazois, Les ruines de Pompéi, vol. 1, pp. 33-37, 52-53, pl. 10-13, 35-37; Gell, Pompeiana (Edit. of 1852), pp. 87-96, 98; Nissen, Pomp. Studien, pp. 457-516; Mau, Pomp. Beiträge, pp. 211-215, 235-252; Mau, Geschichte der dec. Wandmalerei, pp. 57-59.
Oscan inscriptions [p. 240]: Zvetaieff, Sylloge inscriptionum Oscarum, nos. 80-83, pl. 14 (nos. 7, 8), pl. 15, pl. 16 (no. 4); von Planta, Grammatik der Oskisch-Umbrischen Dialekte, vol. 2, p. 503; Conway, Italic Dialects, 531 vol. 1, pp. 69-71; Degering, Ueber die militärischen Wegweiser in Pompeji, Röm. Mitth., vol. 13 (1898), pp. 124-146; Mau, Die Oskischen Wegweiserinschriften in Pompeji, Röm. Mitth., vol. 14 (1899), pp. 105-113.
The Stabian Gate [p. 242]: Minervini, Strada e porta Stabiana, Bull. Arch. Napolitano, Nuova Serie, vol. 1 (1853), pp. 186-187 and pl. 8, fig. 10; Fiorelli, Gli scavi di Pompei dal 1861 al 1872, pp. 78-79, pl. 14, fig. 2.
Minerva as patron divinity of city gates [p. 242]: that is, according to Greek usage, an indication of the strength of Greek influence at Pompeii. Among the Romans the divinity of city gates was Juno. Cf. Serv. Com. in Verg. ad Aen. II, 610.
Inscription of Flaccus and Firmus [p. 242]: C. I. L. X. 1064.
CHAPTER XXXIII. THE POMPEIAN HOUSE
Of the Pompeian and the Roman house: Mazois, Essai sur les habitations des anciens romains, in Les ruines de Pompéi, vol. 2, pp. 3-34 (3 pls.); Mazois, Le palais de Scaurus (Paris, 1819; Edit. 3, revised by Varcollier, 1861); Gell, Pompeiana (Edit. of 1852), pp. 99-141; Zumpt, Ueber die bauliche Einrichtung des römischen Wohnhauses (Berlin, 1844; Edit. 2, 1852); Nissen, Pomp. Studien, pp. 593-668; Viollet-le-Duc, Histoire de l'habitation humaine (Paris, 1875), and English translation under the title, The Habitations of Man in all Ages (Boston, 1876), Chap. 18; Lange, Haus und Halle, Studien zur Geschichte des antiken Wohnhauses und der Basilica (Leipzig, 1885), especially pp. 50-59, 244-269; Guhl and Koner, Das Leben der Griechen und Römer (Edit. 6, Berlin, 1893), pp. 558-580, and English translation from the third German edition, Life of the Greeks and Romans (London, 1877), §§ 75, 76; Marquardt, Das Privatleben der Römer (Edit. 2, Leipzig, 1886), pp. 213-250; Middleton, article Domus in Smith's Dictionary of Greek and Roman Antiquities, vol. 1 (Edit. 3, London, 1890), particularly pp. 684-687; Monceaux, Domus in Daremberg and Saglio's Dictionnaire des antiquités grecques et romaines, vol. 2, pt. 1, especially pp. 349-362. For remains of houses and villas in Britain, cf., e.g., Wright, The Celt, the Roman, and the Saxon (Edit. 4, London, 1885), passim; Scarth, Roman Britain (London, 1883), Chap. 18; and the special articles in Archaeologia (London, 1770 +).
Inscriptions in Pompeian houses, including those in mosaic floors: C. I. L. X. 860-869, 872-875, 877-882.
Fauces, or prothyron [p. 248]: Vitr. VI. IV. 6; Greenough, The Fauces of the Roman House, Harvard Studies in Classical Philology, vol. 1 (1890), pp. 1-12.
Stone thresholds [p. 249]: Ivanoff, Varie specie di soglie in Pompei ed indagine sul vero sito della fauce, Ann. dell' Inst., vol. 31 (1859), pp. 82-108, pl. D-F; and Mon. dell' Inst., vol. 6, pl. 28.
Dangers of the streets of Rome at night [p. 250]: Juv. Sat. III. 305-308.
Kinds of atriums [p. 250], dimensions [p. 252]: Vitr. VI. III., IV. 532
Waterspouts of the compluvium [p. 251]: von Rohden, Die Terracotten von Pompeji, pl. 1-9.
Gartibulum [p. 254]: Var. de Ling. Lat. V. 125; Nissen, Pomp. Studien, p. 641.
Tablinum [pp. 255-258]: Vitr. VI. IV (III), 5-6; Var. ap. Non. p. 83; Nissen, Pomp. Studien, pp. 643-644.
Alae [p. 258]: Vitr. VI. IV (III), 4, 6.
Peristyle [p. 260]: Vitr. VI. IV (III), 7; Nissen, Pomp. Studien, pp. 645-668; Bie, Zur Geschichte des Hausperistyls, Jahrb. des. Inst., vol. 6 (1891), pp. 1-9.
Triclinium [p. 262]: Vitr. VI. V. I. Trimalchio's dining rooms (cenationes): Petr. Sat. LXXVII.
Lares, Genius, and Penates in house paintings [p. 268]: Helbig, Wandgemälde, nos. 31-95; Sogliano, Le pitture murali Campane, nos. 9-46, 63-71. Serpents: ibid., nos. 47-62; see also de Marchi, Il culto privato di Roma antica, vol. 1 (Milan, 1896), pp. 27-144; Jordan, De Larum imaginibus atque cultu, Ann. dell' Inst., vol. 34 (1862), pp. 300-339; Reifferscheid, De larum picturis Pompeianis, Ann. dell' Inst., vol. 35 (1863), pp. 121-134; Jordan, De Genii et Eponae picturis Pompeianis nuper detectis, Ann. dell' Inst., vol. 44 (1872), pp. 19-47, and pl. B, C; Wissowa, Die Ueberlieferung über die römischen Penaten, Hermes, vol. 22 (1887), pp. 29-57.
Genius of a woman as Juno [p. 270]: Mau, Röm. Mitth., vol. 2 (1887), p. 114. Jupiter and Venus: Helbig, Wandgemälde, no. 67. Two genii (Ins. IX. viii. 13): Mau, Röm. Mitth., vol. 5 (1890), pp. 244-245.
Shop fronts [p. 276]: cf. Middleton, Remains of Ancient Rome (2 vols., London, 1892), vol. 1, pp. 192-194.
Pergula [p. 277]: Mau, Sul significato della parola pergula nell' architettura antica, Röm. Mitth., vol. 2 (1887), pp. 214-220. Natus in pergula: Petr. Sat. LXXIV.
CHAPTER XXXIV. THE HOUSE OF THE SURGEON
Excavation (1770): Fiorelli, Pomp. ant. hist., vol. 1, pt. 1, pp. 245-246, 248, 253 et seq. (p. 254, discovery of the instruments from which the house takes its name).
Plan, construction, restoration: Piranesi, Antiquités de Pompéi, vol. 1, pl. 14-21; Mazois, Les ruines de Pompéi, vol. 2, p. 51, and pl. 13 (plan); Fiorelli, Gli scavi di Pompei dal 1861 al 1872, pp. 79, 83; Nissen, Pomp. Studien, pp. 402-412; Mau, Pomp. Beiträge, 37-41, 49-51 (proof that the measurements of the house conform to the Oscan standard); Overbeck-Mau, Pompeji, pp. 279-281; Greenough, Harvard Studies in Classical Philology, vol. 1 (1890), pp. 10-11 (plan showing conformity of the chief measurements to the proportions recommended by Vitruvius).
Mural paintings: Helbig, Wandgemälde, nos. 1427 b, 1443, 1459, and pp. CVIII-CIX with note 4 on p. CXXV; cf. also Mau, Geschichte der dec. 533 Wandmalerei, p. 66. For the woman painting, see Jahn, Abhandlungen der Königl. sächsischen Gesellschaft der Wissenschaften, philologisch-hist. Classe, vol. 5, pp. 298-305, and pl. 5.
CHAPTER XXXV. THE HOUSE OF SALLUST
Excavation (1806-1809): Fiorelli, Pomp. ant. hist., vol. 1, pt. 2, pp.
Plan, restoration: Mazois, Les ruines de Pompéi, vol. 2, pp. 75-79, pl. 35-39; Nissen, Pomp. Studien, pp. 652-654; Overbeck-Mau, Pompeji, pp. 300-307.
Decoration: above, pp. 459-460; Mau, Geschichte der dec. Wandmalerei, pp. 17-33, 112-114, 416-417, pl. 2; Helbig, Wandgemälde, nos. 51, 124, 249 b, 319, 373, 429, 465, 493, 746, 751, 900, 1055, 1255, 1311 (cf. Topogr. Index, p. 467). In the Naples Museum are good copies of the paintings that are in the garden and near the open-air triclinium.
CHAPTER XXXVI. THE HOUSE OF THE FAUN
Excavation (1830-1832): Fiorelli, Pomp. ant. hist., vol. 2, pp. 240-255, vol. 3, pp. 113-118; Not. d. scavi, 1900, p. 31.
Plan, construction: Fiorelli, Descrizione di Pompei, pp. 152-159; Nissen, Pomp. Studien, pp. 655-658; Overbeck-Mau, Pompeji, pp. 346-353.
Wall decoration: Mau, Geschichte der dec. Wandmalerei, pp. 33-57, 110-111, 122-123, 140, 162, 263-264, pl. 2; Niccolini, Le case ed i monumenti di Pompei, vol. 1.
Mosaics: Museo Borb., vol. 7, pl. 62, vol. 8, pl. 36-45, vol. 9, pl. 55, vol. 14, pl. 14; Roux, Herculanum et Pompéi, vol. 5, 6th series, pl. 20-29, 32; Schreiber, Atlas of Classical Antiquities (Eng. trans., London, 1895), pl. 63 (fish mosaic, with identification of species in the accompanying text); Marx, Il cosidetto Akratos nella casa del Fauno, Röm. Mitth., vol. 7 (1892), pp. 26-31.
CHAPTER XXXVII. A HOUSE NEAR THE PORTA MARINA
Decoration: Mau, Geschichte der dec. Wandmalerei, pp. 96, 281.
CHAPTER XXXVIII. THE HOUSE OF THE SILVER WEDDING
Excavation (1892-1893), plan, decoration: Mau, Röm. Mitth., vol. 8 (1893), pp. 14-61; cf. also Not. d. scavi, 1892.
Dated inscription [p. 305]: C. I. L. I. (Edit. 2), p. 342; cf. also Röm. Mitth., vol. 8, pp. 30-31.
CHAPTER XXXIX. THE HOUSE OF EPIDIUS RUFUS
Excavation (1866), plan: Fiorelli, Gli scavi di Pompei dal 1861 al 1872, pp. 62-63; Overbeck-Mau, Pompeji, pp. 297-300.
Decoration, paintings: Mau, Geschichte der dec. Wandmalerei, pp. 98-100; Helbig, Wandgemälde, nos. 59 b, 231, 863 b, 870 b, 874 b, 885 b, 892 b, 967 b. 534
CHAPTER XL. THE HOUSE OF THE TRAGIC POET
Excavation (1824-1825), plan, decoration: Fiorelli, Pomp. ant. hist., vol. 2, pp. 116-135; Gell, Pompeiana (Edit. of 1832), vol. 1, pp. 142-178; Niccolini, le case ed i monumenti di Pompei, vol. 1; Overbeck-Mau, Pompeji, pp. 285-289.
Paintings: Helbig, Wandgemälde, see p. LXXXVI. and Topogr. Index under Casa del poeta, p. 471; also Helbig, Le nozze di Giove e di Giunone, Ann. dell' Inst., vol. 36 (1864), pp. 270-282.
The Iphigenia of Timanthes [p. 319]; Cic. Orator, XXII. 74; Plin. N. H. XXXV. X. 73; Quint. Inst. orat. II. XIII. 12, 13; Valer. Max. VIII. XI. ext. 6, with the comment of Lessing in the Laokoon, chap. 2, and the references given by Blümner, Lessing's Laokoon (Berlin, 1876), pp. 36-37; cf. also Baumeister, Denkmäler des klassischen Altertums (3 vols., Munich, 1884-1888), vol. 1, pp. 754-757, and Jex-Blake and Sellers, The Elder Pliny's Chapters on the History of Art (London, 1896), pp. 116-117, note 2.
CHAPTER XLI. THE HOUSE OF THE VETTII
Excavation (1894-1895), plan, restoration, decoration, paintings: Mau, Röm. Mitth., vol. 11 (1896), pp. 3-97; Sogliano, Mon. dei Lincei, vol. 8 (1898), pp. 233-416; Herrlich, Archäologischer Anzeiger, 1896, pp. 206-207; Mau, Amoren als Oelfabrikanten, Röm. Mitth., vol. 15 (1900), pp. 138-141; Mau, Amoren als Goldschmiede, Röm, Mitth., vol. 16 (1901), pp. 109-116.
CHAPTER XLII. THREE HOUSES OF UNUSUAL PLAN
House of Acceptus and Euhodia (excavated in 1882) [p. 341]: Mau, Bull. dell' Inst. 1884, pp. 126-132.
House without a compluvium (excavated between 1890 and 1895) [p. 343]: Mau, Röm. Mitth., vol. 10 (1895), pp. 148-155. Fures foras, frugi intro [p. 346]: paraphrase of the saying, Petr. Sat. LII., aquam foras, vinum intro.
House of the Emperor Joseph II. (excavated in 1767-1769, filled up, and again excavated in 1885-1886) [p. 344]: Fiorelli, Pomp. ant. hist., vol. 1, pt. 1, pp. 208-211, 227-234; Mazois, Les ruines de Pompéi, vol. 2, pp. 73-74, pl. 32-34; Mau, Röm. Mitth., vol. 2 (1887), pp. 110-138.
CHAPTER XLIII. OTHER NOTEWORTHY HOUSES
House of Caecilius Jucundus (excavated in 1875): Mau, Bull, dell' Inst., 1876, pp. 149-151, 160-168, 223-234; Mau, Geschichte der dec. Wandmalerei, pp. 65, 414-415, 446, 450, pl. 13, 14, 18; Sogliano, Le pitture murali Campane, nos. 133, 138, 158, 176, 192, 207, 214, 233, 236, 251, 291, 413, 448, 449, 477, 514, 531, 561, 579, 582, 583, 589, 594, 607, 640, 651, 659, 669, 670, 674, 675, 676, 677, 693, 700, 708, 809, 815, 816.
House of Lucretius (excavated in 1847): Fiorelli, Pomp. ant. hist., vol. 2, pp. 453, 459-473; Minervini, in Niccolini, Le case ed i monumenti di 535 Pompei, vol. 1; Museo Borb., vol. 14, pl. A, B; Overbeck-Mau, Pompeji, pp. 314-320; Helbig, Wandgemälde, see Topogr. Index, p. 482.
House of the Hunt (excavated in 1834): Fiorelli, Pomp. ant. hist., vol. 3, pp. 286-288; Overbeck-Mau, Pompeji, pp. 277-279; Helbig, Wandgemälde, see Topogr. Index, p. 473, under Casa della caccia antica; Mau, Geschichte der dec. Wandmalerei, p. 454.
House of the Centenary (excavated in 1879-1880): Mau, Bull, dell' Inst., 1881, pp. 113-128, 169-175, 221-238; 1882, pp. 23-32, 47-53, 87-91, 104-116, 137-148; Overbeck-Mau, Pompeji, pp. 353-359; Mau, Geschichte der dec. Wandmalerei, pp. 287, 314, 321, 368, 382-385, 443-444, 449, 452, 455; Sogliano, Le pitture murali Campane, nos. 530, 585, 596, 628.
House of the Sculptured Capitals (excavated in 1831-1833): Avellino, Descrizione di una casa pompeiana con capitelli figurati all' ingresso, dissotterrata negli anni 1831, 1832 e 1833 (Naples, 1837), also in Mem. dell' Acc. Ercolanese, vol. 6 (1837); Niccolini, le case ed i monumenti di Pompei, vol. 1; Fiorelli, Descrizione di Pompei, pp. 225-227; Marquardt, Röm. Privatleben (Edit. 2), pp. 224 ff.; Mau, Geschichte der dec. Wandmalerei, pp. 94, 374-379, 388, 430-431; Helbig, Wandgemälde, see Topogr. Index, p. 473.
House of Pansa (excavated in 1813-1827): Fiorelli, Pomp. ant. hist., vol. 1, pt. 3, pp. 116-161, vol. 2, pp. 195-197; Mazois, Les ruines de Pompéi, vol. 2, p. 82, pl. 42-45; Fiorelli, Descrizione di Pompei, pp. 102-106; Overbeck-Mau, Pompeji, pp. 325-329; Nissen, Pomp. Studien, pp. 658-659; Mau, Geschichte der dec. Wandmalerei, pp. 72-73; Helbig, Wandgemälde, nos. 53, 115, 1014.
House of Castor and Pollux (also known as house of the Dioscuri, and casa del Questore; excavated in 1828-1829): Fiorelli, Pomp. ant. hist., vol. 2, pp. 205-221; Niccolini, op. cit., vol. 1; Overbeck-Mau, Pompeji, pp. 334-342; Museo Borb., vol. 5 (see Relazione degli scavi di Pompei, at the end of the vol.; 26 pp. text, with plan; cf. also pl. 32, 33); Mau, Geschichte der dec. Wandmalerei, pp. 258, 372-373, 402, 420-421, 446, 455; Helbig, Wandgemälde, pp. LXXXV-LXXXVI and Topogr. Index, p. 469.
House of the Centaur (excavated in 1828-1829): Fiorelli, Pomp. ant. hist., vol. 2, pp. 217-224; Overbeck-Mau, Pompeji, pp. 330-334; Mau, Geschichte der dec. Wandmalerei, pp. 75-78; Helbig, Wandgemälde, see Topogr. Index, p. 469, under Casa del Centauro. For the large mosaic found in this house, known under the title "Force conquered by Love," see Museo Borb., vol. 7, pl. 61; Roux, Herculanum et Pompéi, vol. 5, series 6, pl. 30.
House of Meleager (excavated in 1829-1830): Fiorelli, Pomp. ant. hist., vol. 2, pp. 224-240; Overbeck-Mau, Pompeji, pp. 307-314; Nissen, Pomp. Studien, pp. 426-427; Mau, Geschichte der dec. Wandmalerei, pp. 74, 373-374, 446, 453; Helbig, Wandgemälde, pp. LXXXVII-LXXXVIII and Topogr. Index, p. 468.
House of Apollo (excavated in 1829-1830): Fiorelli, Pomp. ant. hist., vol. 2, pp. 235-236; Nissen, Pomp. Studien, pp. 427-428; Mau, Geschichte 536 der dec. Wandmalerei, p. 454; Helbig, Wandgemälde, see Topogr. Index p. 467.
Houses with mosaic fountains (excavated in 1826-1827): Fiorelli, Pomp. ant. hist., vol. 2, pp. 174-202; Descrizione di Pompei, pp. 125-126; Niccolini, op. cit., vol. 1; Helbig, Wandgemälde, p. LXXXVIII and Topogr. Index, p. 470, x.
House of the Anchor (excavated in 1830): Fiorelli, Pomp. ant. hist., vol. 2, pp. 237-239; Descrizione di Pompei, pp. 142-143; Mau, Geschichte der dec. Wandmalerei, pp. 79-80, 258-259, 302, 396-397, 399, 422; Helbig, Wandgemälde, nos. 174, 334, 495, 564, 1220.
House of the Citharist (excavation begun in 1853, completed in 1868): Fiorelli, Gli scavi di Pompei dal 1861 al 1872, pp. 65-69; Fiorelli, Descrizione di Pompei, pp. 61-65; Overbeck-Mau, Pompeji, pp. 359-366; Mau, Geschichte der dec. Wandmalerei, pp. 64, 251-252, 315, 316, 318, 326, 335-336, 343, 367, 389, 397, 411-413, 446. Paintings: Helbig, Wandgemälde, see Topogr. Index, pp. 482-483; Orestes and Pylades, Helbig, Oreste e Pilade in Tauride su dipinto Pompeiano, Ann. dell' Inst., vol. 37 (1865), pp. 330-346, and Mon. dell' Inst., vol. 8, pl. 22. Statue of Apollo [p. 352]: often reproduced, as by Overbeck, Atlas der griechischen Kunstmythologie, pl. 20, no. 26; Mon. dell' Inst., vol. 8, pl. 13; Reinach, Répertoire de la statuaire grecque et romaine, vol. 2 (Paris, 1897), p. 97, no. 8; Brunn and Bruckmann, Denkmäler griechischer und römischer Sculptur, no. 302. See Kekulé, Statua Pompeiana di Apolline, Ann. dell' Inst., vol. 37 (1865), pp. 55-71; Wolters, Eine Spartanische Apollostatue, Jahrb. des Inst., vol. 11 (1896), pp. 1-10; Furtwaengler, Meisterwerke der griechischen Plastik (Leipzig, 1893), pp. 79, 80, and English translation by Eugénie Sellers, Masterpieces of Greek Sculpture (London, 1895), p. 52; Collignon, Histoire de la sculpture grecque, vol. 2 (Paris, 1897), pp. 665-666.
House of Cornelius Rufus (excavated in 1861): Fiorelli, Giornale degli scavi, vol. 1 (1861); Fiorelli, Descrizione di Pompei, pp. 340-342; Mau, Geschichte der dec. Wandmalerei, p. 97; Overbeck-Mau, Pompeji, pp. 537-538.
House of Marcus Holconius (excavated in 1861): Bull. Arch. Italiano, vol. 1 (1861-1862), pp. 18-143; Fiorelli, Giornale degli scavi, vol. 1 (1861), pp. 13 et seq.; Fiorelli, Descrizione di Pompei, pp. 332-337; Overbeck-Mau, Pompeji, pp. 290-297.
CHAPTER XLIV. ROMAN VILLAS. THE VILLA OF DIOMEDES
Of Roman villas in general: Castell, The Villas of the Ancients Illustrated (London, 1728); Friedlaender, Sittengeschichte Roms, Edit. 5, vol. 2, pp. 85-93, 170-193, vol. 3, pp. 89-100, Edit. 7, pp. 201-210; Schmidt, Cicero's Villen. Neue Jahrbücher für das klas. Altertum, vol. 3 (1899). pp. 328-355, 466-497, particularly pp. 328-333; Winnefeld, Tusci und Laurentum des jüngeren Plinius, Jahrb. des Inst., vol. 6 (1892), pp. 201-217; Winnefeld, 537 Die Villa des Hadrian bei Tivoli (Jahrb. des Inst., Ergänzungsheft III, Berlin, 1895); Winnefeld, Römische Villen der Kaiserzeit, Preussische Jahrbücher, vol. 57 (1898), pp. 457 et seq.
Villas in the region about Baiae: Beloch, Campanien (Edit. 2, Berlin, 1883), pp. 201-202, 269-274.
Villas about Rome: Nibby, Dintorni di Roma (Edit. 2, 3 vols., Rome, 1848-1849), vol. 3, pp. 31-41, 203, 647-737; De Rossi, Il Tuscolo, le ville Tusculane e le loro antiche memorie cristiane, Bull. di Archeologia cristiana, 1872, especially pp. 87-121; Lanciani, Le ville Tusculane (with map, tav. 20-21), Bull. com., 1884, pp. 172-217; Lanciani, La villa Castrimeniese di Q. Voconio Pollione, ibid., pp. 141-171; Grossi-Gondi, Di una villa dei Quintilii nel Tusculano, Bull. com., 1898, pp. 313-338; Lanciani, The Destruction of Ancient Rome (New York, 1899), pp. 101-105; Grossi-Gondi, La villa dei Quintilii e la villa di Mondragone (Rome, 1901).
Villa of the Laberii at Uthina (south of Tunis): Gauckler, Le domaine des Laberii à Uthina, Monuments et Mémoires publiées par l'Académie des Inscriptions et Belles-lettres, vol. 3 (Fondation Piot, Paris, 1897), pp. 177-229; Schulten, review of Gauckler's monograph, Göttingsche gelehrte Anzeigen, 1898, pp. 475-481, and briefer report (with plan) in Archäologischer Anzeiger, Beiblatt zum Jahrb. des Inst., 1898, pp. 113-115.
Villas in Britain: References to Chap. XXXIII, and Morgan, Roman British Mosaic Pavements (London, 1886).
The Villa of Diomedes (excavated in 1771-1774): Fiorelli, Pomp. ant. hist., vol. 1, pt. 1, pp. 249-278; Mazois, Les ruines de Pompéi, p. 89, pl. 47-53; Ivanoff, Architektonische Studien, Heft. 2 (mit Elaeuterungen von August Mau, Berlin, 1895), pl. 4-6; Overbeck-Mau, Pompeji, pp. 369-376; Mau, Pomp. Beiträge, p. 151; Helbig, Wandgemälde, see Topogr. Index, p. 483.
Bedroom in Pliny's villa [p. 358]: Plin. Ep. II. XVII. 23.
CHAPTER XLV. THE VILLA RUSTICA AT BOSCOREALE
Excavation, plan, remains: Mau, Röm. Mitth., vol. 9 (1894), pp. 349-358, vol. 11 (1896), pp. 131-140; Pasqui, La villa pompeiana della Pisanella presso Boscoreale, Mon. dei Lincei, vol. 7 (1897), pp. 397-554. For the collection of silverware, see references on p. 538. Part of the objects of bronze found in the villa are in Berlin; see Pernice, Bronzen aus Boscoreale, Archäologischer Anzeiger, Beiblatt zum Jahrb. des Inst., vol. 15 (1900), pp. 177-181. Others are in the Field Columbian Museum, Chicago; see Tarbell, American Journal of Archaeology, vol. 3 (1899), Second Series, p. 584.
Sleeping room of the overseer near the entrance [p. 363]: Varro, R.R. I, xiii, 2.
Small open cistern [p. 366]: As the establishment was not connected with an aqueduct, rain water was carefully saved.
The villa as a country residence [p. 366]: In the farmhouses about Rome and Naples to-day rooms over the quarters of the tenant are reserved for the use of the owner. 538
CHAPTER XLVI. HOUSEHOLD FURNITURE
Nearly all the articles of furniture and of the toilet referred to in this chapter are figured and described, with many others, in the Real Museo Borbonico. For detailed reference, see the Index, near the end of vol. 16 (pp. 96-97, Ori; pp. 97-98, Argenti; pp. 99-112, Suppellettile), and our List of Illustrations, pp. xxi-xxiii. Most of them are reproduced by Roux, Herculanum et Pompéi, vol. 7; a number are figured by Piranesi in the volume, Oggetti di uso civile, militare e religioso, trovati a Pompeia e ad Ercolano (= vol. 27 of his Opera). See also the references on the Pompeian and the Roman house [pp. 531-532], and Becker, Gallus (eighth English edition, London, 1886), pp. 285-301; Guhl and Koner, Life of the Greeks and Romans, §§ 86-93, 97; Friedlaender, Sittengeschichte Roms, Edit. 5, vol. 3, pp. 100-112, Edit. 7, vol. 2, pp. 210-220; Marquardt, Röm. Privatleben (Edit. 2), pp. 607-768. Cf. Mau, Fornelli antichi, Röm. Mitth., vol. 10 (1898), pp. 38-46.
Silver cups found in the Casa dell' Argenteria [p. 379]: Fiorelli, Pomp. ant. hist., vol. 2, p. 305.
The treasure of Boscoreale [p. 380]: Héron de Villefosse, Le trésor de Boscoreale, Monuments et Mémoires publiés par l'Académie des Inscriptions et Belles-lettres, vol. 5 (Fondation Piot, Paris, 1899), fasc. 1 and 2; also Michaelis, Der Silberschatz von Boscoreale, Preussische Jahrbücher, vol. 85 (1896), pp. 19-56; Winter, Der Silberschatz von Boscoreale, Archäologischer Anzeiger, Beiblatt zum Jahrb. des Inst., vol. 11 (1896), pp. 74-87; cf. also Collignon, Histoire de la sculpture grecque, vol. 2, pp. 681-682.
Shallow bowl with a representation of Alexandria [p. 380]: Two similar bowls were ornamented with realistic portrait heads of a man and a woman, which, to judge from the manner of dressing the hair, probably date from the reign of Claudius or Nero. The bowl containing the portrait of the woman had been lost, and the detached head is now in the British Museum. The other, with the rest of the collection (102 pieces) is in the Louvre.
Beside Epicurus an eager pig [p. 381]: cf. Hor. Ep. I. iv. 16, Epicuri de grege porcus.
Greek inscription [p. 382]: Héron de Villefosse, op. cit., p. 59.
| ΖΩΝ ΜΕΤΑ | ζῶν μετά- |
| ΛΑΒΕΤΟΓΑΡ | λαβε, τὸ γὰρ |
| ΑΥΡΙΟΝΑΔΗ | αὔριον ἄδη- |
| ΛΟΝΕϹΤΙ | λόν ἐστι |
CHAPTER XLVII. THE TRADES AT POMPEII. THE BAKERS
Of the trades in general: Blümner, Technologie und Terminologie der Gewerbe und Künste bei Griechen und Römern (4 vols.; Leipzig, 1875-1887); Marquardt, Röm. Privatleben, pt. 2 (Edit. 2; Leipzig, 1886). 539
Inscriptions relating to the trades at Pompeii: C. I. L. IV., see Index, p. 256, under artes et officia privata.
Signs of shops [p. 387]: Jordan, Ueber römische Ausbäugeschilder, Archäologische Zeitung, vol. 4 (1871), pp. 75 et seq. Inscription of Diogenes: C. I. L. X. 868; see the article, Aushängeschilder, by Mau, in Pauly-Wissowa, Realencyclopädie, vol. 2. pp. 2558-2559.
Cupids as carpenters and shoemakers [p. 385]: Helbig, Wandgemälde, nos. 804, 805; the two paintings are often reproduced, as by Schreiber, Atlas of Classical Antiquities, English translation by Anderson (London, 1895), pl. 72, 1, and 73, 12. Stuccoer (tector): Bull, dell' Inst., 1879, p. 134; Sogliano, Le pitture murali Campane, no. 655; Blümner, Ann. dell' Inst., vol. 53 (1881), pp. 107-108, pl. H.
Bakers and bakeshops [p. 388]: Blümner, op. cit., vol. 1, pp. 1-88; Marquardt, op. cit., pp. 414-424; Fulvio, Delle fornaci e dei forni pompeiani, Pompei e la regione sotterrata dal Vesuvio nell' anno LXXIX. pp. 273-291; de Rossi, Antichi mulini in Roma e nel Lazio, Ann. dell' Inst., vol. 29 (1857), pp. 274-281; Mau, Su certi apparecchi nei pistrini di Pompei, Röm. Mitth., vol. 1 (1886), pp. 45-48, and pl. 3. Processes of bread-making: best illustrated in the reliefs of the monument of Eurysaces, Rome, shown in Mon. dell' Inst., vol. 2, pl. 58; cf. C. I. L. I. 1013-1015; Jahn, Sepolcro di Eurisace, Ann. dell' Inst., vol. 10 (1838), particularly pp. 231-248. Loaves of bread represented in paintings: Helbig, Wandgemälde, nos. 1501, 1661 ff.; see, e.g., Museo Borb., vol. 6, pl. 38, vol. 8, pl. 57. Remains of loaves found at Pompeii: Fiorelli, Gli scavi di Pompei dal 1861 al 1872, p. 172.
CHAPTER XLVIII. THE FULLERS AND THE TANNERS
Appliances and processes: Blümner, op. cit., vol. 1, pp. 155-178, 257-287. A fuller description of the tannery, with illustrations showing the implements discovered, is given by Mau, Bull. dell' Inst., 1874, pp. 271-275, 1875, pp. 18-25.
No soap in Pompeii [p. 393]: Hofmann, Ueber vermeintliche antike Seife, Wiener Studien, vol. 4 (1882), pp. 263-270.
Pictures illustrating the fullery [pp. 394-395]: Museo Borb., vol. 4, pl. 49, 50; Helbig, Wandgemälde, no. 1502; Jahn, Abhandlungen der königl. sächsischen Gesellschaft des Wissenschaften, philologisch-hist. Classe, vol. 5 (1870), pp. 305-311, and pl. 4.
CHAPTER XLIX. INNS AND WINESHOPS
Roman inns: Friedlaender, Sittengeschichte Roms, Edit. 5, vol. 2, pp. 33-39, Edit. 7, vol. 1, pp. 311-325.
Inscriptions: caupones, copones, C. I. L. IV., see Index, p. 256; of Sittius, C. I. L. IV. 806, 807 (for the picture, see Helbig, Wandgemälde, no. 1601); of the inn, Ins. VII, XII, C. I. L. IV. 2144-2164. 540
Pictures illustrating the life of the wineshop [p. 403]: Fiorelli, Pomp. ant. hist., vol. 2, p. 204; Museo Borb., vol. 4, pl. A, vol. 5, pl. 48; Helbig, Wandgemälde, nos. 1487, 1504.
Selling of wine mixed with water [p. 404]: a stock charge against ancient innkeepers; Trimalchio (Petr. Sat. XXXIX) makes out that these were born under the sign Aquarius, 'the waterer.' For the wineshop in which the graffito was found, see Mau, Bull. dell' Inst., 1874, pp. 252-256.
CHAPTER L. THE STREET OF TOMBS
Of Roman tombs and rites of burial: Marquardt, Röm. Privatleben (Edit. 2), pp. 340-385; Friedlaender, Sittengeschichte Roms, Edit. 5, vol. 3, pp. 112-123, Edit. 7, vol. 2, pp. 220-228; Guhl and Koner, Life of the Greeks and Romans, §§ 77, 78, 110; Lanciani, Pagan and Christian Rome (1892), pp. 168-208, 253-305; Vollmer, De funere publico Romanorum, Jahrbücher für classische Philologie, Supplementband 19 (1893), pp. 319-364; see the article Bestattung, by Mau, in Pauly-Wissowa, Realencyclopädie, vol. 3, pp. 346-359.
Of the street of tombs as a whole: Mazois, Les ruines de Pompéi, vol. 1; Fiorelli, Descrizione di Pompei, pp. 401-419; Nissen, Pomp. Studien, pp. 381-397; Overbeck-Mau, Pompeji, pp. 398-422.
Tombs near the Herculaneum gate, not including the Garland tomb (excavated 1763-1764, 1769-1770): Fiorelli, Pomp. ant. hist., vol. 1, pt. 1, pp. 150-155, 234-241, pt. 2, pp. 110-118 (journal of Francesco la Vega); Piranesi, Antiquités de Pompéi, vols. 1, 2, pl. 2-5, 34-44. Sepulchral enclosure of Terentius Felix (excavation finished December 15, 1828): Fiorelli, Pomp. ant. hist., vol. 2, p. 217; Bonucci, Pompéi décrite (seconde traduction de la 3e édition italienne, Naples, 1830), p. 73. The tomb nearest the gate on the right: Mau, Röm. Mitth., vol. 3 (1888), pp. 140-142.
Tombs farther from the gate, to the limit of excavation (excavated 1806-1813): Fiorelli, Pomp. ant. hist., vol. 1, pt. 2, pp. 87, 176-177, (Garland tomb), pt. 3, pp. 74-120, 223-225, 249; Millin, Description des tombeaux qui ont été découverts à Pompéi dans l'année 1812 (Naples, 1813); Clarac, Fouille faite à Pompéi en présence de S. M. la Reine des Deux Siciles le 18 Mars, 1813 (Naples, 1813). Tomb of the blue glass vase (1837): Fiorelli, Pomp. ant. hist., vol. 3, p. 132; Schulz, in his Scavi di Pompei, Ann. dell' Inst., vol. 10 (1838), pp. 194-195. Tomb of Diomedes (excavated in 1775): Fiorelli, Pomp. ant. hist., vol. 1, pt. 1, pp. 279-280. Tomb of Istacidius Helenus (1775, 1828): Fiorelli, Pomp. ant. hist, vol. 1, pt. 1. pp. 279-280, vol. 2, p. 217. The pre-Roman graves [p. 407]: Mau and von Duhn, Bull. dell' Inst., 1874, pp. 156-167; earlier finds of painted vases, Bonucci, Pompéi (1830), p. 65; and de Iorio, Plan de Pompéi et remarques sur ses édifices (Naples, 1828), p. 33.
T. Suedius Clemens [pp. 407-408; cf. also p. 488]: Clemens was now evidently a supporter of Vespasian; previously he had been in the service of Otho (Tac. Hist. I. LXXXVII, II. XII). 541
Blue glass vase [p. 415]: Schultz, Anforina di vetro con bassirilievi rinvenuta in Pompei, Ann. dell' Inst., vol. 11 (1839), pp. 84-100.
Gladiatorial scenes on the tomb of Scaurus [p. 419]: admirably engraved by Mazois (op. cit., pl. 30, 31, 32), and frequently reproduced, as by Schreiber, Atlas of Classical Antiquities (Eng. trans., 1895), pl. 30, 2-9, text, with citation of literature, p. 59; Niccolini, le case ed i monumenti di Pompei, vol. 1. Inscriptions accompanying the figures: C. I. L. IV. 1182; the inscription of the tomb itself is given, C. I. L. X. 1024. In his interpretation of the reliefs Mazois incorrectly assumed (op. cit., pp. 47-48) that on account of the baiting of a bear by one of the figures with a cloth the tomb could not have been built before the time of Claudius. The passage cited by him (Plin. N. H. VIII. XVI. 54) has no bearing on the date; but the tomb of Scaurus, which belongs neither to the oldest nor to the most recent, may well have been built in the time of Claudius or of Nero.
Ship on the tomb of Naevoleia Tyche [p. 423]: Jordan, Ann. dell' Inst., vol. 44 (1872), pp. 20-26; Visconti, Fronte di Sarcofago con Tritoni e navi, Bull. Com., vol. 1 (1872-1873), pp. 255-269; cf. Cic. De Sen. XIX. 71. Petronius (Sat. LXXI.) humorously represents Trimalchio as ordering 'ships under full sail' among the carvings of his tomb.
Inscription of Salvius [p. 426]: found, according to C. I. L. X. 1032, beside the tomb of Naevoleia Tyche; but we have the testimony of Bonucci (Pompéi, 1830, p. 37) to the effect that it was found in the niche where it now is, where it exactly fits the cavity. The mistake in the Corpus may have arisen from a misunderstanding of the report of the excavation, which is now unfortunately lost.
M. Alleius Luccius Libella [p. 426]: the name was originally Luccius Libella, with what praenomen is not clear; but Luccius Libella married the daughter of M. Alleius (M. Alleius Nigidius Maius?) and was adopted by him, assuming his praenomen and nomen, so that the full name took the form given in the inscription. The son dropped the original nomen Luccius, and was called simply M. Alleius Libella. In like manner the name of the son of D. Lucretius Satrius Valens became D. Lucretius Valens [p. 222].
CHAPTER LI. BURIAL PLACES NEAR THE NOLA, STABIAN, AND NOCERA GATES
Burial places near the Nola Gate [p. 429]: Fiorelli, Pomp. ant. hist., vol. 2, pp. 594-597; Nissen, Pomp. Studien, pp. 480-483.
Graves east of the Stabian Road [p. 429]—earlier finds: Fiorelli, Pomp. ant. hist., vol. 1. pt. 1, pp. 11-12, 14, 42, 46-48, 50, 51-52; C. I. L. X. 1047-1062; Röm. Mitth., vol. 10 (1895), p. 226, 7. Later finds: Not. d. scavi, 1893, pp. 333-335, 1894, pp. 15-16, 382-385, 1897, pp. 275-276; Mau, Scavi fuori porta Stabiana, Röm. Mitth., vol. 9 (1894). pp. 62-65. vol. 10 (1895), pp. 156-159.
Tombs near the Stabian Gate [p. 430]: Not. d. scavi. 1889, pp. 280-281, 542 368-369, 406-410, 1890, pp. 44-45, 165; Mau, Scavi fuori porta Stabiana, Röm. Mitth., vol. 5 (1890), pp. 277-284. The inscriptions are given also in Ephem. Epigr., vol. 8, pp. 87-88 (nos. 318, 325, 327, 330).
Tombs near the Amphitheatre [p. 431]: Not. d. scavi, 1886, pp. 334-337, 1887, pp. 33-40, 452-458; Mau, Sepolcri della via Nucerina, Röm. Mitth., vol. 3 (1888), pp. 120-149. For the inscriptions, see also Ephem. Epigr., vol. 8, pp. 88-90 (320, 321, 324, 326, 328, 329, 332); advertisement of the stray horse, Röm. Mitth., vol. 3, p. 145.
Desecration of tombs near Rome [p. 436]: Lanciani, The Destruction of Ancient Rome, pp. 89-98.
CHAPTER LII. ARCHITECTURE
Doric frieze with red metopes [p. 441]: there is a similar frieze in the house VII. III. 31; see Mau, Geschichte der dec. Wandmalerei, p. 97.
CHAPTER LIII. SCULPTURE
Of the sculptures found at Pompeii: Very few of the sculptures unearthed at Pompeii are treated or reproduced in the comprehensive works on ancient sculpture. The more important statues and reliefs found prior to 1865, as well as those discovered in Herculaneum, are published in the Real Museo Borbonico, with descriptive text; see the Index at the end of vol. 16, pp. 8-34. They are reproduced also by Roux, with descriptive text by Barré, Herculanum et Pompéi, vols. 6 and 7 (first part). These engravings, while in many cases faulty, are often serviceable to students at a distance in the identification of photographs, which are easily obtained through the Naples dealers. The better terra-cottas are published by Von Rohden, Die Terracotten von Pompeji (Stuttgart, 1880). A somewhat fuller treatment of Pompeian sculpture is given in Overbeck-Mau, Pompeji, pp. 532-563.
Heads of Epicurus, Demosthenes, and Callimachus [p. 447]: Mau, Bull. dell' Inst., 1876, pp. 242-243; Brizio, Ann. dell' Inst., vol. 45 (1873), pp. 98-106; Mommsen and Robert, Archäologische Zeitung, 1880, pp. 32-36; Comparetti, La Villa Ercolanese dei Pisoni (Torino, 1883), pp. 33-53, pl. III, nos. 4, 7, 8; Mau, Bull. dell' Inst., 1883, pp. 89-96; for other references, see Helbig, Führer durch die öffentlichen Sammlungen klassischer Altertümer in Rom (Edit. 2, 2 vols., Leipzig, 1899), vol. 1, p. 319, no. 476.
Busts of Virgil and Horace [p. 448] (found in October, 1868): Giornale degli scavi di Pompei, Nuova Serie, vol. 1 (1868), p. 133 and pl. 1; Fiorelli, Gli scavi di Pompei dal 1861 al 1872, p. 164; Bernoulli, Römische Ikonographie, vol. 1 (Stuttgart, 1882), pp. 127, 192; Helbig, Führer durch die öffentlichen Sammlungen klassischer Altertümer in Rom (Edit. 2), vol. 1, pp. 355-356. A further reason why Brutus cannot be represented in the Naples bust is that the similar bust in the Capitoline Museum in Rome (Helbig, op. cit., no. 536) shows a person well on in years, while the prominence of Brutus lasted only for a brief period, and it is not likely that there 543 should be preserved to us portraits representing him at periods so entirely different. Susa mosaic: Comptes rendus de l'Académie des Inscriptions et Belles-lettres, serie 4, vol. 24 (Paris, 1896), pp. 578-581 and pl. after p. 580; Gauckler, Les Mosaïques virgiliennes de Sousse, Monuments et Mémoires publiées par l'Académie des Inscriptions et Belles-lettres, vol. 4 (Fondation Piot, 1897), pp. 233-234; Fowler, Portraits of Virgil, School Review, vol. 6 (1898), pp. 598-605; Archäologischer Anzeiger, Beiblatt zum Jahrb. des Inst., vol. 13 (1898), p. 114.
Aphrodite and Spes [p. 450]: Mau, Bull, dell' Inst., 1873, pp. 233-235.
Artemis [p. 450]: often reproduced, as Museo Borb., vol. 2, pl. 8; Roux, Herculanum et Pompéi, vol. 6, pl. 76, 77; Brunn and Bruckmann, Denkmäler griechischer und römischer Sculptur, no. 356. Identification with Artemis Laphria (Paus. VII. XVIII. 9): Studniczka, Die archaische Artemis-statuette aus Pompeii, Röm. Mitth., vol. 3 (1888), pp. 277-302, and pl. 10; Collignon, Histoire de la sculpture grecque, vol. 2 (Paris, 1897), pp. 656-657.
Dancing satyr [p. 450]: Museo Borb., vol. 9, pl. 42; Roux, Herculanum et Pompéi, vol. 6, pl. 59; Overbeck-Mau, Pompeji, pp. 549-551.
Silenus carrying frame with glass vase [p. 451]: Museo Borb., vol. 16, pl. 29; Fiorelli, Gli scavi di Pompei dal 1861 al 1872, p. 159; Overbeck-Mau, Pompeji, p. 552.
Listening Dionysus [p. 452]: Giornale degli scavi di Pompei, 1862, p. 60 and pl. 14; Fiorelli, Gli scavi di Pompei dal 1861 al 1872, pp. 158-159; Benndorf, Sulla statua Pompeiana creduta di Narcisso, Ann. dell' Inst., vol. 38 (1866), pp. 107-113; Overbeck-Mau, Pompeji, pp. 552-555; Hauser, Narcisso, Jahrb. des Inst., vol. 4 (1889), pp. 113-118; Collignon, Histoire de la sculpture grecque, vol. 2, pp. 451-453; Museo Borb., vol. 16, pl. 28; Brunn and Bruckmann, Denkmäler, no. 384. Hauser in the article cited makes it appear probable that the figure had originally a somewhat different pose; the right foot rested flat upon the base, the left only on the heel, so that the body, instead of leaning forward, was slightly bent back. The present pose, however, was given to the figure in antiquity; according to G. Patroni, the wedge of lead under the right foot was in its present place when the statuette was discovered.
Ephebus of 1900 [p. 453]: Not. d. scavi, 1900, pp. 584-587 (7 illustrations); Sogliano, L'efebo in bronzo rinvenuto in Pompei, Mon. dei Lincei, vol. 10 (1901), pp. 641-654, pl. 16-26. This statue is assigned to the Roman period by Waldstein, The Monthly Review, 1901, pp. 125-126, and Petersen, Röm. Mitth., vol. 16 (1901), p. 96.
CHAPTER LIV. PAINTING. WALL DECORATION
Technique of Pompeian painting: Donner, Die erhaltenen antiken Wandmalereien in technischer Beziehung, printed as an introduction to Helbig's Wandgemälde (see Chap. LV.), pp. I—CXXVII; Mau, Geschichte der decorativen Wandmalerei in Pompeji (Berlin, 1882; with atlas of 20 plates). 544
Specimen illustrations: Many entire walls as well as single paintings are reproduced in color in the extensive works by Zahn, Die schönsten Ornamente und merkwürdigsten Gemälde aus Pompeji, Herkulanum und Stabiae, nebst einigen Grundrissen und Ansichten (Mit deutschem und französischem Text. Drei Abtheilungen in 30 Heften, 302 Tafeln. Berlin, 1827-1859); and Niccolini, Le case ed i monumenti di Pompei designati e descritti (Naples, 1854-1901). Both works are rarely found complete, and the plates of the second in particular leave much to be desired in respect to drawing as well as coloring; it has therefore been thought best not to encumber these notes with detailed references to them. A number of walls are shown also by Roux, Herculanum et Pompéi (8 vols., Paris, 1840), vol. 1 (108 plates), and by D'Amelio, Dipinti Murali di Pompei, Naples, 1888. Professor Mau has in preparation a new work on wall decoration which will be illustrated by colored plates similar to those in the atlas to his Wandmalerei. The sources of the illustrations in this and the following chapter are given in our List of Illustrations, p. xxv.
Preparation of the wall [p. 456]: Vitr. VII. III; cf. also Middleton, The Remains of Ancient Rome (2 vols. London, 1892), vol. 1, pp. 91-103.
Decoration of the house of Lucretius [p. 457]: see references on p. 528.
The four styles of decoration [p. 457]: suggestive critical comments by Wickhoff, Roman Art (English trans. by Mrs. S. Arthur Strong, London, 1900), pp. 117 ff.; but see the review of the German original by Mau, Röm. Mitth., vol. 10 (1895), pp. 227-235.
Decoration of the second style in Rome [p. 462]—house of Germanicus on the Palatine: Mau, Due pareti d'una stanza sul Palatino, Ann. dell' Inst., vol. 52 (1880), pp. 136-149, and Mon. dell' Inst., vol. 11, pl. 22-23; Mau, Geschichte der dec. Wandmalerei, pp. 196-205 and pl. 9. House in the Farnesina garden: Not. d. Scavi, 1879, pp. 15, 40, 68, 114, 141, 179-180, 267, 314, 333, 1880, pp. 32, 127-128, 138-140, and pl. 4 (plan); Mau, Parete dipinta della casa antica scoperta nel giardino della Farnesina, Ann. dell' Inst., vol. 54 (1882), pp. 301-308; Hülsen, Fregio dipinta nella casa antica scoperta nel giardino della Farnesina, ibid., pp. 309-314; Mau, Pitture della casa antica scoperta nella villa Farnesina, Ann. dell' Inst., vol. 56 (1884), pp. 307-322, vol. 57 (1885), pp. 302-318; Mon. dell' Inst., vol. 11, pl. 44-48, vol. 12, pl. 5, 5 a, 7, 7 a, 8, 17-34; Supplemento (1891), pl. 32-36; especially Lessing and Mau, Wand- und Deckenschmuck eines römischen Hauses aus der Zeit des Augustus (Berlin, 1891; with 16 plates from the same blocks as those in the Mon. dell' Inst.); Helbig, Führer durch die Sammlungen klassischer Altertümer in Rom, vol. 2, pp. 226-223, nos. 1107-1108, 1119-1122, 1124, 1129-1136, 1141-1144, 1146-1148, 1151.
CHAPTER LV. THE PAINTINGS
Of the paintings in general: the paintings discovered prior to 1868 are described, with references to the literature, by W. Helbig, Wandgemälde der 545 vom Vesuv verschütteten Städte Campaniens (Nebst einer Abhandlung über die antiken Wandmalereien in Technischer Beziehung, von Otto Donner, Leipzig, 1868); those discovered after the publication of Helbig's work and before 1880, by Sogliano, Le pitture murali Campane scoverte negli anni 1867-1879 (supplemento all' opera dell' Helbig, Naples, 1879. Published also in the volume, Pompei e la regione sotterrata dal Vesuvio, for which see p. 513); those that have come to light since 1879 are described by Mau in his reports (see note to Chap. IV) and in the Notizie degli scavi; cf. also Helbig, Untersuchungen über die campanische Wandmalerei (Leipzig, 1873). Besides the reproductions of paintings by Zahn and Niccolini mentioned above (p. 544), the more important examples are published in the Real Museo Borbonico (see Index at the end of vol. 16, pp. 37-58); Roux, Herculanum et Pompéi, vols. 1-5 (Paris, 1840); Rochette, Choix de peintures de Pompéi, la plupart de sujet historique (lithographiées en couleur par M. Roux, et publiées ... par M. Raoul-Rochette; 7 livraisons in fol., Paris, 1844-1853, incomplete); Presuhn, Pompeji, Die neuesten Ausgrabungen von 1874 bis 1881 (Edit. 2, Leipzig, 1882; 80 chromolithograph plates); and in other works the titles of which are easily accessible in Furchheim's Bibliografia. The colored plates presented by Niccolini, Arte Pompeiana Monumenti scelti (a selection of 55 plates from the larger work, Naples, 1888), give a false idea of the paintings reproduced.
No evidence of development in composition or technique [p. 471]: cf. Wickhoff, Roman Art, pp. 139 ff.
Hercules and Antaeus [p. 472]: Bull. dell' Inst., 1876, p. 101; Sogliano, Le pitture murali Campane, no. 495.
Mosaic pictures on the floor [p. 472]: as in the house of the Faun; see references on p. 533. For the Pompeian mosaics in general, see Gli ornati delle pareti ed i pavimenti delle stanze dell' antica Pompei, 3 vols. Naples, 1796-1808, vols. 1 and 2; Museo Borb., Index at the end of vol. 16, pp. 35-37; Roux, Herculanum et Pompéi, vol. 5 (latter part, 32 plates).
Group of Admetus and Alcestis in architectural framework [p. 473]: Sogliano, op. cit., no. 506.
Seafights [p. 474]: Helbig, Wandgemälde, nos. 1576-1580 (those of the Macellum are shown in a colored plate by Mazois, Les ruines de Pompéi, vol. 3, pl. 46); Röm. Mitth., vol. 11 (1896), p. 56, nos. 113-116, and Sogliano, Mon. dei Lincei, vol. 8 (1898), p. 310, fig. 33; cf. also Sogliano op. cit., nos. 669-670.
Xenia [p. 474]: Vitr. VI. VII (X) 4; Helbig, Wandegemälde, nos. 1661-1718. For fig. 266 cf. Museo Borb., vol. 6, pl. 38; Helbig, no. 1690.
Landscapes [p. 475]: Roux, Herculanum et Pompéi, vol. 3 (end; 30 plates); Helbig, Wandgemälde, pp. 385-394; Sogliano, op. cit., pp. 141-144.
Tadius, Ludius [p. 475]: Plin. N. H. XXXV. X. 116. In Mayhoff's text (vol. 5, 1897) the name is given as Studius. Cf. Helbig, Beiträge zur Erklärung der campanischen Wandbilder. Rhein. Mus., vol. 25 (1870), pp. 393-407. Decoration of the villa at Prima Porta: Brunn, Scavi di Prima 546 Porta, Bull. dell' Inst., 1863, pp. 81-86; Antike Denkmäler des Kaiserlich deutschen Archäologischen Instituts, vol. 1 (1890), pl. 11, 24.
Group of musicians [p. 476]: Museo Borb., vol. 1, pl. 30; Helbig, Wandegemälde, no. 1442.
Paquius Proculus and his wife [p. 477]: Bull. dell' Inst., 1868, p. 204; Sogliano, op. cit., no. 673.
Busts of youths with the names of Homer and Plato [pp. 477-478]: found in 1892 in the tablinum of the small house joined to the house of the Silver Wedding [fig. 146, δ]; reproduced, with fuller description, Röm. Mitth., vol. 8 (1893), pp. 19-23.
Paintings of Achilles in the house of Castor and Pollux [p. 478]: Helbig, Wandgemälde, nos. 1297, 1307.
Scenes of combat [p. 478]—Hercules, from Herculaneum: Pitture di Ercolano, vol. 3, pl. 47, p. 247; ibid., vol. 4, pl. 5, p. 27; and Museo Borb., vol. 11, pl. 9; Helbig, Wandgemälde, nos. 1124, 1125. Meleager and the boar: Fiorelli, Descrizione di Pompei, pp. 40, 382; Sogliano, op. cit., nos. 508, 509. Achilles and the fleeing Troilus: Bull. dell' Inst., 1868, p. 37; Helbig, Wandgemälde, pp. 460-461; cf. also Sogliano, op. cit., no. 548. Combat between warrior and Amazon: Bull. dell' Inst., 1871, p. 204; Sogliano, op. cit., no. 547, cf. also no. 548.
Io and Argus, Io in Egypt [p. 479]: Museo Borb., vol. 2, pl. 12, vol. 10, pl. 2; Roux, Herculanum et Pompéi, vol. 2, pl. 59; Helbig, Wandgemälde, nos. 131, 138. Cf. Braun, Elenco dei monumenti rappresentanti il mito di Io, Ann. dell' Inst., vol. 10 (1838), pp. 328-330, and Mon. dell' Inst., vol. 2, pl. 59.
Hecuba [p. 479]: Bull. dell' Inst., 1877, p. 13; Mau, Ettore riportato a Troia, pittura paretaria di Pompei, Ann. dell' Inst., vol. 49 (1877), pp. 268-279, and pl. O, P (colored, at the end of the volume); Sogliano, op. cit., no. 579.
Narcissus, Polyphemus, Apollo, and Admetus [pp. 479-480]: Helbig, Wandgemälde, nos. 1338-1367, Sogliano, op. cit., nos. 586-592; Helbig, nos. 220-222, 1048.
Idyllic pictures [p. 480]—Selene and Endymion: Helbig, Wandgemälde, nos. 950-962; Sogliano, op. cit., nos. 456-457. Paris and Oenone: Helbig, no. 1280. Perseus and Andromeda: Helbig, nos. 1192-1198. Bacchus and Ariadne: Helbig, nos. 1235-1240; Sogliano, no. 538; Röm. Mitth., vol. 11 (1896), pp. 52-53 (no. 98, house of the Vettii). Hercules and Omphale: Helbig, nos. 1136-1140; cf. Sogliano, nos. 496, 497.
Examples of a pathetic situation [p. 480]—Aphrodite and the wounded Adonis: Helbig, nos. 335-340; Sogliano, no. 142. Cyparissus: Sogliano, nos. 109, 110; Röm. Mitth., vol. 11 (1896), p. 19 (no. 36, with illustration, house of the Vettii). Europa and the bull: Sogliano, no. 79; cf. Helbig, nos. 123-130.
Groups with figures in contrast [p. 480]—Hephaestus and Thetis: Helbig, nos. 1316-1318 c. Daedalus and Pasiphaë: Helbig, nos. 1205-1208; Röm. 547 Mitth., vol. 11, pp. 49-51 (with illustration, house of the Vettii). Danaë cast away: Helbig, nos. 119-121; Sogliano, nos. 76-78.
Paintings in groups [p. 481]: Trendelenburg, Gegenstücke in der Wandmalerei, Archäologische Zeitung, vol. 9 (1876), pp. 1-8, 79-93. Group of three paintings, Achilles: Bull. dell' Inst., 1879, pp. 51-54 (Ins. IX. V. 2); Sogliano, nos. 572, 576, 577. Group of two, Polyphemus, Aphrodite fishing: Bull. dell' Inst., 1876, pp. 49-50; Sogliano, nos. 146, 472 (Ins. VI. XIV. 28); Helbig, nos. 354, 1049 (house of Lucretius). Group of two, Europa and Pan: Sogliano, nos. 79, 196 (Ins. IX. V. 18). Double group, Hercules and Artemis, Athena and Marsyas: Röm. Mitth., vol. 5 (1890), pp. 263-269 (with illustrations), vol. 6 (1891), pp. 71-72 (Ins. V. II. 10).
CHAPTER LVI. MONUMENTAL INSCRIPTIONS AND PUBLIC NOTICES
Publication: in the notes to the preceding chapters references have been given to the place of publication of nearly all the monumental inscriptions, both Latin and Oscan; the Latin inscriptions on stone are classified C. I. L. X. 787-1079, with a supplementary collection, Ephem. Epigr., vol. 8, pp. 86-90 (nos. 311-332); cf. also Not. d. scavi, 1898, pp. 422-423. The Oscan inscriptions of all classes are published by Zvetaieff, Sylloge Inscriptionum Oscarum (with 19 plates of facsimiles; St. Petersburg and Leipzig, 1878); Inscriptiones Italiae inferioris mediae (with 11 plates; Moscow and Leipzig, 1886); von Planta, Grammatik der Oskisch-Umbrischen Dialekte (2 vols., Strassburg, 1892, 1897), vol. 2, pp. 499-510 (nos. 28-116); Conway, The Italic Dialects (2 vols., London, 1897), vol. 2, pp. 54-81 (nos. 39-86). The public notices are collected in C. I. L. IV. pp. 1-75 (nos. 1-1204), pp. XVI-XVII (nos. 3256-3296), and the Supplement, pt. 2, which is in press, pp. 467-499 (nos. 3341-3884).
House of Aemilius Celer [p. 486]: Mau, Röm. Mitth., vol. 4 (1889), pp. 118-119.
Election notices [p. 487]—M. Marius: C. I. L. IV. 3. Publius Furius: ibid., 67. Herennius Celsus: ibid., 299. Casellius: ibid., 223 et al., and Röm. Mitth., vol. 11 (1896), p. 96. Holconius Priscus: C. I. L. IV. 157. hic aerarium conservabit: C. I. L. IV. Suppl. 3702. Claudius Verus: C. I. L. IV. 367, Suppl. 5229, and often between nos. 3707 and 3828.
Election notices [pp. 488-489]—Helvius Sabinus: C. I. L. IV. 787. M. Epidius Sabinus: ibid., 470. Sabinus: ibid., 635. Epidius Sabinus: ibid., 787. Vatia: ibid., 575, 576, 581. Claudius: ibid., 425.
Notices to rent—insula of Nigidius Maius [p. 489]: C. I. L. IV. 138. Property of Julia Felix [p. 490]: ibid., 1136.
Offer of reward [p. 490]: C. I. L. IV. 64. 548
CHAPTER LVII. THE GRAFFITI
Publication: the graffiti are collected, C. I. L. IV. pp. 76-166 (nos. 1205-2549 c), pp. XVII-XVIII (nos. 3297-3339), and Suppl., pt. 2, pp. 499-599 (nos. 3885 et seq.). Cf. Correra, Graffiti di Roma, Bull. com., 1893, pp. 245-260, 1894, pp. 89-100, and pls. II-VI, 1895, pp. 193-216.
Admiror, paries [p. 491]: found in the Large Theatre, the Amphitheatre, and the Basilica; C. I. L. IV. 1904, 2461, 2487; Bull. dell' Inst., 1867, pp. 50-53; Bull. com., 1894, p. 99; Buecheler, Carmina Latina epigraphica, no. 957 (vol. 1, Leipzig, 1895), p. 440. References to writing on walls in ancient authors: Plin. Epist. VIII. VIII. 7; Mart. Ep. XII. LXI. 7-10; Cic. In Verr. III. XXXIII. 77. Metrical graffiti: Buecheler, Die metrischen Wandinschriften, Rhein. Mus., vol. 12 (1857), pp. 250-260.
Graffiti relating to the conflict in the Amphitheatre [p. 492]: see references on pp. 529-530.
Praetorian guard [p. 492]: C. I. L. IV. 1994.
Names and greetings [p. 493]—Paris, Sabinus: C. I. L. IV. 1245, 1305. Aemilius: C. I. L. IV. Suppl. 5350. Samius, Pyrrhus: C. I. L. IV. 1864, 1852.
Love [p. 494]—Quisquis amat: Bull. dell' Inst., 1876, p. 233; C. I. L. IV. Suppl. 4091; cf. C. I. L. IV. 1173, 3199: Buecheler, Carm. Lat. epigr., nos. 945, 946. Nemo est bellus: C. I. L. IV. 1883; Buecheler, 233; Röm. Mitth., vol. 13 (1898), p. 45. Nam nemo flammas: C. I. L. IV. 1898; Buecheler, 948. Alliget hic auras: C. I. L. IV. 1649; Buecheler, 944. Si quis forte meam: C. I. L. IV. 1645; Buecheler, 953, 954.
Quotations and paraphrases [p. 495]: Propert. II. V. 9; C. I. L. IV. Suppl. 4491; Bull. dell' Inst., 1875, p. 191: Ovid, Ars Am. I. 475-476, and C. I. L. IV. 1895.
Lovers' messages [p. 495]—Victoria: C. I. L. IV. 1477. Cestilia: ibid., 2413 h. Pupa: ibid., 1234; Buecheler, no. 232. Serena: Bull. dell' Inst., 1874, p. 269; C. I. L. IV. Suppl. 3928-3930. Si quid amor: Not. d. scavi, 1883, p. 53; Buecheler, no. 935.
Lovers' complaints [p. 496]: Tu, dea: C. I. L. IV. 2310 k. Quoted couplets joined: ibid., 1893, 1894. Threat against Venus: ibid., 1824; Röm. Mitth., vol. 8 (1893), p. 59 (no. 29); Buecheler, no. 947.
Records of tarrying [p. 496]—Romula: C. I. L. IV. 2060. Staphilus: C. I. L. IV. Suppl. 4087. Restitutus: Röm. Mitth., vol. 7 (1892), p. 25; Buecheler, 355. Varus and Pelagia: C. I. L. IV. 2321. Balbus and Fortunata: Bull. dell' Inst., 1883, p. 195; C. I. L. IV. Suppl. 4933.
Greeting of Hirtia Psacas [p. 497]. Bull. dell' Inst., 1894, p. 201; C. I. L. IV. Suppl. 3905.
Memoranda [p. 497]—gambling: C. I. L. IV. 2119. Paces: ibid., 1714. Advent of young: Bull. dell' Inst., 1874, p. 202; C. I. L. IV. Suppl. 3890. Figures: C. I. L. IV. 1996, 2008, 2011, 2020, etc. Oleum l. a.: C. I. L. IV. Suppl. 4000; Fiorelli, Descrizione di Pompei, p. 59. 549
Catchwords, quotations, proverbs [p. 498]: Verg. Aen. I. 1: C. I. L. IV. 1282, 2361, 3198. Aen. II. 1: ibid., 2213, and often; Röm. Mitth., vol. 8 (1893), p. 57.[5] Lucr. I. 1: C. I. L. IV. 3072. Minimum malum: ibid., 1811, 1870. Moram si quaeres: ibid., 2069.
CHAPTER LVIII. INSCRIPTIONS RELATING TO BUSINESS AFFAIRS
Tablets of Caecilius Jucundus [p. 499 et seq.]: edited by Zangemeister, C. I. L. IV. Suppl. fasc. 1 (1898); first published by de Petra, Le tavolette cerate di Pompei rinvenute a' 3 e 5 Luglio, 1875 (Rome, 1876), also in Atti della R. Accademia dei Lincei, ser. 2, vol. 3, pp. 3, 150-230; cf. Mommsen, Die Pompeianischen Quittungstafeln des L. Caecilius Iucundus, Hermes, vol. 12 (1879), pp. 88-141; Mommsen, Pompeianische Geschäftsurkunden, Hermes, vol. 23 (1888), pp. 157-159; Bruns, Fontes iuris Romani antiqui (Edit. 6, 1893), pp. 291-293, 314-320.
Of interest in this connection are the remains of wax tablets found in the gold mines near Verespatak (ancient Alburnus Maior) in Transylvania (C. I. L. III. pp. 921-960), and the records of transactions found on papyri of the Roman period in Egypt (cf., e.g., Schulten, Ein römischer Kaufvertrag auf Papyrus aus dem Jahre 166 n. Chr., Hermes, vol. 32, 1897, pp. 273-289).
Tablet A [p. 502]: C. I. L. IV. Suppl. 3340, XXV; de Petra, no. 15.
Tablet B [p. 504]: C. I. L. IV. Suppl. 3340, CXLVII; de Petra, no. 124.
Inscriptions on amphorae [p. 505]—ex fundo Badiano: C. I. L. IV. 2551. Estate uncertain: C. I. L. IV. 2552 (names of the consuls incorrectly given). fundus Satrianus, fundus Asinianus: Mau, Röm. Mitth., vol. 11 (1896), p. 96; Not. d. scavi, 1895, p. 33.
Brands of wine [pp. 505-506]—Cnidium: Röm. Mitth., vol. 13 (1898), p. 40. Coum: C. I. L. IV. 2565. Λύττιος: Röm. Mitth., vol. 8 (1893), p. 60. Λευκουνάριον: Bull. dell' Inst., 1874, p. 264.
Gustaticium [p. 506]: Röm. Mitth., vol. 11 (1896), p. 96.
Edibles [p. 506]—Oliva alba dulce: C. I. L. IV. 2610. Lomentum: ibid., 2597. g. f.: ibid., 2576. Liquamen: ibid., see Index, p. 243; Röm. Mitth., vol. 13 (1898), p. 30.
Names of proprietor, consignor, consignee [p. 507]—M. Caesius Celer: C. I. L. IV. Suppl. Virnius Modestus: Not. d. Scavi, 1881, p. 195. Caecilius Jucundus: Bull. dell' Inst., 1876, p. 24. Caecili Iucundi: C. I. L. IV. Suppl. 3433.
Inscriptions of the Boscoreale treasure [p. 507]: published in facsimile by Héron de Villefosse, Le trésor de Boscoreale; see pp. 42 et seq.
Inscription of the Alexandria patera [p. 507]:
PHI·ET·EMB·P·P·IIS𐆐𐆐℈VI. PHI·P·P·II𐆐𐆒 · EMB·P·P·S𐆑𐆒
Stamps [p. 508]: for the stamped and other permanent inscriptions on tiles, lamps, amphorae, and different kinds of terra-cotta vessels found at Pompeii, as well as the stamps and seals, see the second part of C. I. L. X., under Instrumentum Domesticum.
Examples of stamps [p. 508]—bread: C. I. L. X. 8058, 18. Popidius Priscus: ibid., 8058, 70. Vettii: Röm. Mitth., vol. 11 (1896), p. 3. 551
Abinnerich, 18.
Acceptus and Euhodia, house of, 341-343.
accounts, memoranda of, on walls, 334, 495; of Caecilius Jucundus, 496.
Acerrae, Pompeii seaport of, 3.
Achilles, in paintings: among the daughters of Lycomedes, 350, 478, 481; delivering up of Briseis, 317; quarrel with Agamemnon, 84, 350, 478; Thetis bringing arms to, see Thetis; Troilus seized by, 478.
Actius Anicetus, actor, 148.
Admetus and Alcestis, painting, 313.
aediles, office of, 121, 123; title of, 12, 13.
Aemilius Celer, writer of notices, 223, 486.
Aeneas, statue of, 115.
Aesculapius, worshipped at domestic shrine, 272.
Agamemnon, in the sanctuary of Artemis, painting, 331; quarrel with Achilles, painting, 84, 350, 478.
Agrippina, mother of Nero, statues of, 47, 99.
alae, sanctuary of the City Lares, 102; of Pompeian house, 258-259.
Alexander and Darius, battle of, mosaic, 293-294.
Alexandria, influence of, in the development of decorative styles, 458, 465.
Alleia Decimilla, priestess of Ceres, 426.
M. Alleius Luccius Libella, tomb of, 426.
M. Alleius Minius, tomb of, 430.
Cn. Alleius Nigidius Maius, 222, 349, 489.
altar in dining room, 264.
altars, in the courts of temples: of Apollo, 86; of Isis, 174; of Doric temple, 139; temple of Vespasian, 107; temple of Zeus Milichius, 183, 440; on the sides of the streets, 233-236.
amphorae, use of, 14; in the house of the Faun, 295; in the villa of Diomedes, 360; inscriptions upon, 505-506.
Anchor, peristyle of the house of the, 351.
andron in Pompeian houses, 260.
P. Aninius, 195.
antefixes about compluvium, 251.
Antioch, 469.
Apelles, 277.
Aphrodite, statue of, 450.
Apollo, house of, 262, 268, 273, 351; represented in stucco relief and in paintings, 205, 312, 329, 331, 480; statues of, 88, 140, 272, 352; temple of, 49, 80, 90.
Apuleius and Veia, tomb of, 434.
Apuleius on the worship of Isis, 169, 173, 174, 176, 181, 182.
architectural periods at Pompeii, 39-44.
architecture, Pompeian, 437-444.
architraves of timber and stone, 51.
Ares and Aphrodite, painting, 286.
Ariadne, in paintings. See Bacchus, Theseus.
arm band, 379.
Arria, tomb of, 428.
M. Arrius Diomedes, tomb of, 356, 427.
Artemis, in paintings, 315; Agamemnon in sanctuary of, 331; shrine of, 481; statues of, 88, 450.
artist at work, painting, 282.
M. Artorius Primus, architect of the Large Theatre, 150.
Atella, Atellan farces, 142.
Athena and Marsyas, painting, 482.
M. Atinius, 200.
atrium of Pompeian houses, 250-255; atrium without a compluvium, 343-344.
Auctus, gladiator, 225.
Augustales, 100, 216, 409, 421, 423.
Augustus Caesar, Brotherhood of. See Augustales; regulation of standard measures, 93; statues of, 47, 115; worship of, 14, 89-90, 104.
Auriolus, gladiator, 224.
autumn, Genius of, mosaic, 293.
L. Avianius Flaccus, 243.
bacchantes, 326, 336, 448, 468, 473.
bacchic figures in capitals of columns, 309, 349; in paintings, 329.
Bacchus, reliefs of Blue Glass Vase, 415; triumph of, 336; in paintings, 88, 354; as tutelary divinity, 236, 417; finds Ariadne, 339, 354, 480; in sculptures, 175, 325, 448.
bakery, arrangements of, 386-392.
bath, toilet appliances of, 377. 552
Baths, public, 186-189; Stabian, 189-201; Baths near the Forum, 202-207; Central Baths, 208-211;
Baths, private, of M. Crassus Frugi, 408; in houses, 267, 297, 306-307, 346, 357, 362-363.
bisellium, 369, 370, 421, 423.
block. See Insula.
Boccharis, myth of, 17.
Bonaparte, Joseph, excavations under, 27.
Boscoreale, villa rustica at, 14, 361-366; treasure of, 366, 380-382, 507-508.
bricks, Pompeian, 36.
Briseis, delivered to the messenger of Agamemnon, painting, 316-318.
bust stones, 412, 418, 421, 428, 432 et seq.
L. Caecilius Jucundus, herm of, 447, 477; house of, height of shops, 276; cellar of, 268; decoration of tablinum, 348, 479; meeting in house of, 496; names of sons of, 507; receipts of, 499-505; relief in the house of, 64.
L. Caecilius Phoebus, 176.
Julius Caesar, place for statue of, 115.
P. Caesetius Postumus, 90.
L. Caesius, 203.
M. Caesius Celer, 507.
L. Caesius Logus, 433.
Caligula, elected duumvir of Pompeii, 14; statue of (?), 48.
Callimachus, marble head, 447.
Callistus, 424.
C. Calventius Quietus, tomb of, 421.
Campani, Campanienses, suburb of Pompeii, 11, 492.
Campania, events in the history of, 8-10.
capitals of columns, 437, 440-441.
casa dell' Amore Punito, 275.
casa del Balcone Pensile, 273.
casa della Fontana Grande, 351.
casa della Fontana Piccola, 351.
Casellius, 487.
Cassius Longinus, 141.
Castellammare. See Stabiae.
Castor and Pollux, house of, 350; Corinthian atrium, 252; paintings, 476, 481.
casts made at Pompeii, human beings, 22; doors, 249.
Cato the elder, reference to millstones, 15.
Ceius Labeo, tomb of, 426.
L. Ceius Secundus, 397.
Celadus, gladiator, 226.
Celer, 486.
Centaur, house of, 350; bedroom in house of, 261.
Centenary, house of, 261, 268, 348, 487.
Ceres, priestesses of, 14, 426.
M. Cerrinius Restitutus, tomb of, 409.
Cestilia, 495.
chalcidicum, 111.
Championnet, excavations of, 27.
Chius, 493.
choinix, Greek measure, 93.
Christians at Pompeii, 18.
Chryseis, departure of, painting, 316.
Cicero, Marcus Tullius, 16, 58, 423.
Citharist, house of, 352-354; fountain figures in the house of, 449.
city council, constitution of, 12; hall of, 121, 122.
City Lares, sanctuary of the, 102-105.
city wall, construction of, 237-241; course of, 31.
Clitumnus, 2.
A. Clodius Flaccus, 57, 90, 161.
L. Clodius Varus, 496.
Cnidian wine, sold at Pompeii, 505.
Coan wine, sold at Pompeii, 505.
Coliseum, dimensions of, 213; masts for awnings of, 144.
compluvium of the Pompeian house, 250.
Concordia Augusta, fountain of, 117; statue of, 116.
Constantinople, water system, 231, 232.
construction, Pompeian, 36-39.
Conviva, slave of Veia, 434.
Corinthian atrium, 252, 309, 350.
Cornelius, 493.
A. Cornelius, 86.
Cn. Cornelius, 86.
P. Cornelius, 9.
Cornelius Rufus, herm of, 255, 446; house of, 354.
country seats near Pompeii, 16. See villa.
M. Crassus Frugi, baths of, 408.
Crescens, fuller, 11; gladiator, 226.
Cumae, 305.
Cupids, in paintings and stucco reliefs, 97, 205, 315, 331-338.
Cyparissus, paintings, 338, 480.
Daedalus, and Icarus, paintings, 200, 483; and Pasiphaë, paintings, 339, 480. 553
Danaë, painting, 338.
Sex. Decimius Rufus, 492.
Q. Decius Hilarus, 436.
decoration, styles of, 41 et seq., 456 et seq.
decurions, 12.
Delos, remains of Incrustation Style on island of, 461.
Demosthenes, marble head, 447.
dining room in Pompeian houses, 262-266, 273-276.
Diodota, 497.
Diogenes, mason, 387.
Diomedes, tomb of, 427; villa of, 23, 356-360.
Dionysus, in painting, 282, 463; statuette of, 452.
Dirce, punishment of, painting, 339.
Doerpfeld's theory of the stage of the Greek theatre, 151-152.
dolia, use of, 505; in the villa at Boscoreale, key to Plan IV, 364; in a painting, 403.
doors, of houses, 249-250; of the temple of Jupiter, 64.
Doric temple in the Forum Triangulare, 137-140.
duumvirs, office of, 121-123; title of, 12.
earthquake of 63 A.D., 19.
C. Egnatius Postumus, 85.
Egyptian motives in wall decoration, 465.
Elbeuf, Count, excavations of, at Herculaneum, 26.
election notices, 384, 396, 397, 486-489.
Epicurus, marble head, 447.
Epidius Rufus, house of, 248, 252, 258, 260, 309-312; inscription upon shrine in the house of, 270.
M. Epidius Sabinus, 488.
Eumachia, building of, 110-118; statue of, 112, 445, 446.
Eurysaces, kneading machine in reliefs of tomb of, 392.
Eutyches, slave of Umbricius Scaurus, 506.
excavations, at Pompeii, 25-30; in honor of the King and Queen of Italy and the Emperor and Empress of Germany, 301, 306; in honor of the Emperor Joseph II., 344.
fasces, on the tomb of Diomedes, 428.
fauces of Pompeian house, 248.
Faun, house of the, 27, 51, 261, 276, 288-297.
festivals, religious, 57, 98, 337, 396.
fisheries, products of, 15, 506.
N. Fistius Ampliatus, 419.
floors of Pompeian houses, 278.
Fontana, Domenico, tunnel of, under Pompeii, 25.
Fortuna, worshipped at domestic shrines, 104; identified with Isis, 342.
Fortuna Augusta, temple of, 124-126.
Fortunatus, 497.
fountain of Concordia Augusta, wrongly called of Abundantia, 117.
fountains, public, 230-233; veneered with mosaic, 351.
fullers erect a statue to Eumachia, 112. See Crescens, Vesonius Primus.
fullery, plan of, 396-397; processes of, 335, 393-395.
fundus Asinianus, fundus Satrianus, 505.
P. Furius, 487.
furniture of Pompeian houses, 367-379.
Ganymede, stucco relief, 205.
garden of Pompeian houses, 259.
Garland tomb, 414.
gates of Pompeii, 31, 241 et seq.
C. Gavius Rufus, 397.
Genii, in the shrine of the house of Joseph II, 346.
Genius, worship of the, 269-273; of a woman, 346; of the autumn, mosaic, 293.
gladiators, barracks of, 160-164; combats of, in the Forum, 57; stucco reliefs on the tomb of Umbricius Scaurus, 419, 420; graffiti relating to, 223-226; notices of exhibitions of, 221-223.
Glaucus, house of, 313.
Glycera, letter to Menander, 329.
gods, the twelve, painting, 236; statues of, at Pompeii, 449; worshipped at domestic shrines, 268-273. See temples.
Greeks at Pompeii, 16-17, 505.
gustaticium, 506.
Hadrian, villa at Tivoli, 355.
Hannibal, 9.
Harpocrates, worship of, 168 et seq.
hearth, in Pompeian kitchen, 266-267; for open-air triclinia, 285, 342.
Hecuba, painting, 479.
helmet found in gladiators' barracks, 163.
Cn. Helvius, 396.
Cn. Helvius Sabinus, 397, 488.
Helvius Vestalis, 384.
Hephaestus, in a painting, 339. 554
Herculaneum, burial of, 21; excavations at, 26.
Hercules, in paintings, 339, 478, 480, 481; worshipped at domestic shrines, 104, 272, 308, 417.
Herennius Celsus, 487.
M. Herennius Epidianus, 86, 136.
herms. See Caecilius Jucundus, Cornelius Rufus, Sorex, Vesonius Primus.
Hermaïscus, gladiator, 225.
hermaphrodite, statue of, 87.
Hirtia Psacas, 497.
Holconii, rebuilders of the Large Theatre, 148.
M. Holconius, house of, 354.
M. Holconius Priscus, 384, 487.
M. Holconius Rufus, 85, 90, 148-149, 445.
Homer, 478.
C. Hostilius Conops, 497.
household gods, worship of, 104, 268-273, 297, 308, 315, 323, 342, 346, 362.
house, Pompeian, 245-279. See Acceptus and Euhodia, Anchor, Apollo, Castor and Pollux, Centaur, Centenary, Citharist, Epidius Rufus, Faun, Hunt, Joseph II, Pansa, Porta Marina, Sallust, Silver Wedding, Surgeon, Tragic Poet, Vettii, Villa. See also casa.
Hyginius Firmus, inn of, 400.
impluvium of Pompeian house, 250.
inscriptions, graffiti, 11, 70, 148, 223-226, 270, 305, 385, 401, 404, 491-498; monumental inscriptions, defined, 486; examples, 50, 81, 85, 86, 89, 111, 112, 130, 148, 149, 150, 153, 170, 195, 203, 212, 218, 228, 407, 409, 410, 418, 419, 421, 422, 425, 426, 427, 430, 432, 434; public notices, 221-223, 382, 386, 396-397, 400, 435-436, 486, 489; relating to business affairs, 499-508.
Io and Argus, painting, 96, 479.
Iphigenia, sacrifice of, painting, 318-320, 472.
Isis, temple and worship of, 168-184.
Istacidia Rufilla, priestess, 412.
Istacidii, tomb of, 411.
Italic foot, 44.
Ixion, punishment of, painting, 339-340.
jewellery, 379.
Julia Felix, villa of, 26, 490.
C. Julius Speratus, 401.
Juno, Genius of a woman, 270, 418.
Jupiter, head, 67-69; temple of, 61-67; worshipped at domestic shrines, 272; at street shrine, 235.
kitchen in Pompeian houses, 266-268.
kitchen utensils, 375.
Labyrinth, oecus in the house of the, 265.
lamp standards, 372 et seq.
landscape paintings, 473.
Lares, City, 102-105; Compitales, 233-235; domestic, 269. See household gods.
lava, kinds of, 36; used for millstones, 15.
Leda, painting, 338.
limestone, kinds used at Pompeii, 35, 36.
limestone atriums, period of, 39.
limestone framework, 37.
Livius Andronicus, 141.
Livineius Regulus, 219.
loss of life at time of eruption, 23.
Lucretius, house of, 348, 449, 457.
D. Lucretius Satrius Valens, 222.
Lytton, Bulwer, 219.
Magister, of the Pagus Augustus Felix, 14.
Mamia, tomb of, 410.
P. Mancius Diogenes, tomb of, 432.
Manetho, 168.
Marcellus, statues of, 98, 136.
M. Marcellus, 9.
M. Marius, 487.
Mars, worshipped at domestic shrines, 272.
Mars and Venus, stucco reliefs, 179.
Marsyas, in paintings, 312, 482.
maxims in graffiti, 498.
Medea, painting, 96.
Medusa, relief on fountain standard, 230.
Meleager, house of, 265, 351; in paintings, 478.
Cn. Melissaeus Aper, 412.
Mercury, as tutelary divinity, 236, 408; herm of, 88; relief of, 230.
Minerva, 140, 236, 240, 243, 395.
ministri Augusti, 89.
ministri Fortunae Augustae, 132.
ministri of the Pagus Augustus Felix, 14.
mirrors, 378.
mixing bowl, 376.
Q. Monnius Rufus, 221.
mosaic pictures, 278, 288, 290, 292-295, 398-399.
Mummius, 141.
L. Munatius Caeserninus, 435.
C. Munatius Faustus, 422.
musicians, painting, 476, 477.
Naevoleia, Tyche, tomb of, 422-423.
Narcissus, statue wrongly identified as, 453.
Nero, 48, 94, 99, 111, 220, 223.
Nile, creatures of the, mosaic, 293; worship of water of, 178, 179.
Niraemius, 203.
Nocera. See Nuceria.
Nola, Pompeii seaport of, 3.
M. Nonius Campanus, 387.
C. Norbanus Sorex, 176.
Nuceria, Pompeii seaport of, 3.
Nucerians, conflict with Pompeians, 220, 221, 492.
nuptials of Zeus and Hera, painting, 316-317, 483-484.
nursing bottle, 372.
C. Occius, 203.
Octavia, statue of, 98.
M. Oculatius Verus, 156.
Odeum of Herodes Atticus, 155.
oecus in Pompeian houses, 265.
Oenone in paintings, 480.
Officiosus, gladiator, 226.
olive, culture of, about Pompeii, 14; crusher, 365; presses for making oil, 333, 365.
Oppius Campanius, 80.
opus compositum, opus incertum, opus mixtum, 37-38; opus reticulatum, 38, 43; opus Signinum, 74, 278, 366.
Orange, masts of theatre at, 144.
Orestes and Pylades before Thoas, painting, 353-356, 472, 479.
Orientals at Pompeii, 17.
Oscan foot, 44.
Oscan inscriptions, 80, 139, 140, 165, 184, 240, 242, 243.
Oscans, founders of Pompeii, 8; conquered by the Samnites, 9.
Osiris, worship of, 168 et seq.
oven, of bakery, 391.
Ovid, quoted in graffiti, 495, 496.
Pagus Augustus Felix, 14, 218, 427.
paintings, number of, 471; relation to decorative styles, 472-474; classes of, 475-484.
Pansa, house of, 27, 249, 260, 266, 349-350.
Pansas, father and son, statues of, 219.
P. Paquius Proculus, 477.
Paris, 493.
Pausanius, 200.
Penates, worship of, 104, 272.
Pentheus and Maenads, painting, 339, 481.
peristyle of the Pompeian house, 260.
Perseus with Andromeda, represented in stucco relief and paintings, 179, 180, 329, 480.
St. Peter, bronze statue of, in Rome, 118.
Q. Petronius Octavus, gladiator, 226.
Phrixus and Helle, painting, 286.
Pietas Augusta, 111.
Pithecusans, 492.
Plato, 478.
Pliny the Elder, death of, 19-20.
Pliny the Younger, account of the eruption in 79, 19-22; villa of, 355.
poet, reciting, 329.
polychrome decoration, 441.
Polyclitus, doryphorus of, 167.
Polyphemus receiving a letter from Galatea, painting, 480, 481.
Pompeii, before 79, 8 et seq.; burial of, 19-23; excavation of, 25-30; government, 11-14; resources, 14-16; population, 16-18; value of remains, 509-511.
N. Popidius Ampliatus, 170.
N. Popidius Celsinus, 170.
V. Popidius, 50.
M. Porcius, 86.
M. Porcius, tomb of, 410.
portières at entrance of tablinum, 256.
Poseidon and Amymone, painting, 329.
Postumius Proculus, 386.
potter's workshop. 386.
Praetorian Guard, 492.
Priene, remains of Incrustation Style at, 461.
priestesses, 14, 33, 410, 412.
Privatus, slave, 504.
procession to the theatres, 159.
Proculus, 488.
Propertius, quoted in graffito, 495, 496.
Psyches gathering flowers, painting, 330.
public buildings, location of, 33, 61, 133.
public notices. See inscriptions.
Puteolana, 497.
Pyrrhus, 493.
Quasi-reticulate facing, 38, 42.
C. Quinctius Valgus, 153, 212.
Regions of Pompeii, 34.
rent, notices of property for, 489, 490.
Restitutus, 496.
Roman foot, 44.
Romula, 496.
Romulus, statue of, 115.
rostra, 48.
Rothschild, Baron, gift of Boscoreale treasure to the Louvre, 366.
rubble work, 37.
Rullus, 153.
Sabinus, 488.
Salinenses, 11.
Sallust, house of, 260, 283-287, 459-460.
Q. Sallustius, statue of, 47.
Salus, worshipped at street shrine, 235.
Salvius, tomb of, 426.
Samius, 493.
Samnite wars, 9.
Samus, gladiator, 226.
Saturn, treasure in temple of, at Rome, 67.
satyr, ornament of capital, 348; fountain figure, 449; bronze statue, 451; marble statuette, 315; in wall decoration, 469, 473.
Scipio Africanus, bath in villa of, 208.
Sculptured Capitals, house of, 348.
Seasons, paintings, 315.
second story rooms in Pompeian house, 273-276.
sepulchral monument in front of Doric temple, 139. See tombs.
L. Sepunius Sandilianus, 86, 136.
Serapis, temple of, at Puteoli, 169.
Serena, 495.
P. Servilius Rullus, 153.
Setian wine, 403.
Seviri Augustales, 100.
sewers, 229.
L. Sextilius, 86.
shops, appearance of, 289; relation to house, 276-278, 349; signs, 387.
shrines, at the sides of the streets, 233-236; domestic, 268-273, 297, 308, 309, 315, 323, 342, 346, 362, 417, 449 et seq.
Signia pavement, 74, 278, 366.
Silenus, bronze statuette, 451-452; fountain figure, 448.
Silver Wedding, house of, 265, 301-308.
sleeping rooms in Pompeian house, 261-262.
Solomon, Judgment of, painting, 17.
Q. Spedius Firmus, 243.
spoons, 375.
Q. Spurennius Priscus, 492.
stamps, 508.
standard measures, table of, 92-93.
Staphylus, 496.
statues in public places, 46, 115, 447; represented in wall decoration, 468.
stepping stones, 229.
stocks in the gladiators' barracks, 163.
streets of Pompeii, 32-33, 227-229; street shrines, 233-236.
suburbs of Pompeii, 10-11, 14.
T. Suedius Clemens, 27, 407, 488.
A. Suettius Certus, 222.
P. Sulla, nephew of the Dictator, 10.
sundials, 87, 136, 200, 207, 211.
Surgeon, house of, 39, 260, 280-282.
table of standard measures, 92-93.
tables, 254, 263-264, 326, 368-369.
tablinum in Pompeian house, 255-258.
Tadius [Ludius], 475.
temples, 33; of Apollo, 80-90; Doric, 137-140; of Fortuna Augusta, 130-132; of Isis, 168-182; of Jupiter, 61-69; of Venus Pompeiana, 124-129; of Vespasian, 106-109; of Zeus Milichius, 183-185.
T. Terentius Felix, tomb of, 413.
Theatre, Large, 141-152; Small, 153-156.
Theseus and Ariadne, painting, 315.
Thetis bringing arms to Achilles, 316, 481; in the smithy of Hephaestus, 480, 481.
Timotheus, 168.
N. Tintirius Rufus, 90.
Titia, 433.
tombs, 405-406; along Street of Tombs, 406-428; near the Nola, Stabian, and Nocera gates, 429-436.
towers of the city wall, 238-241.
trades, ancient view of, 383. See bakery, fullers, tannery.
Tragic Poet, house of, 250, 268, 313-320.
Travertine, so-called, 35.
treasury of the city, 91.
Trebius, 384.
triclinium funebre, 424.
triclinium in garden, house of Acceptus and Euhodia, 342; inn, 404; house of Sallust, 285; tannery, 398-399. See dining room.
Trojan War, groups of paintings, 84, 316.
tufa, kinds of, 35.
Tufa Period, 40 et seq., 437 et seq.
M. Tullius, builder of the temple of Fortuna Augusta, 130, 132.
M. Tullius, tomb of, 430.
Tuscan atrium, 251.
Tyche, slave of Julia Augusta, 270, 418.
Ulysses and Penelope, painting, 96.
Umbricia Januaria, receipt of, 502.
Umbricius Scaurus, fish sauces of, 15, 506.
A. Umbricius Scaurus, tomb of, 418-419.
C. Valerius Venustus, 401.
Valgus and Porcius, builders of Small Theatre and Amphitheatre, 153, 212.
Veia, 433.
A. Veius, tomb of, 409.
N. Velasius Gratus, 425.
Venus, statue of, 87; threatened by irate lover, 496.
Venus Pompeiana, 12, 272, 350, 490.
Verus, 384.
M. Vesonius Primus, 396-397, 446.
Vespasian, 408; temple of, 106-109.
Vesta, festival of, 98, 337; in hearth paintings, 272.
Vestal virgins, place at the theatre, 145.
Vestals, house of the, vestibule, 248.
vestibule of Pompeian houses, 248.
Vettii, house of the, 321-340; garden sculptures, 449; hearth, 266; shrine, 272.
A. Vettius Conviva, A. Vettius Restitutus, stamps of, 508.
Vibius Adiranus, 165.
Vibius Popidius, 243.
Vibius Popidius, quaestor, 50.
Vibius Restitutus, 401.
Cn. Vibius Saturninus, 424.
Vibius Vinicius, 165.
Victoria, 495.
villas, Roman, 355; of Diomedes, 356-362; villa rustica at Boscoreale, 361-366.
A. Virnius Modestus, 507.
Vitruvius, 57, 63, 137, 151, 152, 158, 193, 210, 248, 250, 256, 263, 299, 355, 361.
D. Volcius Thallus, 503.
walls of the city, construction of, 237-239; course of, 31.
walls of houses, plastering and decoration, 456 et seq. See masonry.
ward. See Regions.
water heater, for baths, 194.
water system of Pompeii, 230-233.
Weichardt, restoration of Forum Triangulare, 137.
well near Doric temple, 139.
windows, in houses, 279; of Central Baths, 208, 210.
wine, fermentation of, 364, 505; kinds of, 506; produced about Pompeii, 14; presses, 336, 363-364.
Xenion, 474.
KEY TO PLAN VI
The names of only the more important streets are given on Plan VI. Among the names omitted are those of the continuations of Nola Street, which it is more convenient to regard as a single thoroughfare extending without change of name across the city.
The more important buildings of each Region are given in the order of the Insulae.
| Region I | ||
| Insula | ||
| i. | 5. | Inn. |
| 8. | Inn of Hermes. | |
| ii. | 24. | Wineshop. |
| 28. | House with a grating over the impluvium. | |
| iv. | 5. | House of the Citharist—casa del Citarista. |
| v. | 2. | Tannery. |
| Region V | ||
| Insula | ||
| i. | 7. | Casa del Torello di Bronzo. |
| 18. | Casa degli Epigrammi. | |
| 26. | House of L. Caecilius Jucundus. | |
| 28. | House of M. Tofelanus Valens. | |
| ii. | 1. | Casa della Regina Margherita. |
| 4. | Casa del Triclinio. | |
| a. | House of the Silver Wedding—casa delle Nozze d' Argento. | |
| v. | 2. | House with a covered atrium. |
| Region VI | ||
| Insula | ||
| Ins. Occidentalis, 1. Inn. | ||
| i. | 7. | House of the Vestals—casa delle Vestali. |
| 10. | House of the Surgeon—casa del Chirurgo. | |
| 13. | So-called custom-house. | |
| ii. | 4. | House of Sallust—casa di Sallustio. |
| 6. | Bakery. | |
| 14. | House of the Amazons—casa delle Amazoni. | |
| iii. | 3. | Bakery. |
| 7. | So-called Academy of Music—Accademia di Musica. | |
| 20. | Wineshop. | |
| v. | 3. | House of Neptune—casa di Nettuno. |
| vi. | 1. | House of Pansa—casa di Pansa. |
| vii. | 18. | House of Adonis—casa di Adone. |
| 20. | Casa dell' Argenteria. | |
| 22. | Inn. | |
| 23. | House of Apollo. | |
| 25. | Casa del Duca d'Aumale. | |
| viii. | 5. | House of the Tragic Poet—casa del Poeta Tragico. |
| 20. | Fullery. | |
| 22. | Casa della Fontana Grande. | |
| 23. | Casa della Fontana Piccola. | |
| ix. | 2. | House of Meleager—casa di Meleagro. |
| 3. | House of the Centaur—casa del Centauro. | |
| 6. | House of Castor and Pollux—casa di Castore e Polluce. | |
| x. | 1. | Wineshop. |
| 7. | House of the Anchor—casa dell' Ancora. | |
| 11. | Casa del Naviglio. | |
| xi. | 10. | House of the Labyrinth—casa del Laberinto. |
| xii. | House of the Faun—casa del Fauno. | |
| xiii. | 6. | House of M. Terentius Eudoxus. |
| xiv. | 20. | House of M. Vesonius Primus, often called the house of Orpheus—casa di Orfeo. |
| 22. | Fullery. | |
| 30. | House of Laocoon—casa di Laocoonte. | |
| 35. | Bakery with kneading machine. | |
| 43. | Casa degli Scienziati. | |
| xv. | 1. | House of the Vettii. |
| 9. | House with atrium in two stories. | |
| Region VII | ||
| Insula | ||
| i. | 8. | Stabian Baths. |
| 25. | House of Siricus. | |
| 40. | House of Caesius Blandus. | |
| 45. | Elephant Inn. | |
| ii. | 11. | Dyehouse. |
| 16. | House of M. Gavius Rufus. | |
| 18. | House of C. Vibius. | |
| 20. | House of Popidius Priscus. | |
| 22. | Bakery. | |
| 45. | House of the Bear—casa dell' Orso. | |
| iii. | 29. | House of M. Spurius Mesor. |
| iv. | 1. | Temple of Fortuna Augusta. |
| 48. | House of the Hunt—casa della Caccia. | |
| 51. | House of the Colored Capitals—casa dei Capitelli Colorati, also called the house of Ariadna—casa d' Arianna. | |
| 56. | Casa del Granduca di Toscana. | |
| 57. | House of the Sculptured Capitals—casa dei Capitelli Figurati. | |
| 59. | House of the Black Wall—casa della Parete Nera. | |
| v. | 2. | Baths. |
| vi. | 17. | Water reservoir. |
| vii. | 5. | House of Cissonius. |
| 27. | City treasury. | |
| 28. | Public closet. | |
| 29-30. | Market buildings. | |
| 31. | Table of standard measures. | |
| 32. | Temple of Apollo. | |
| viii. | Forum. | |
| a. | Capitolium. | |
| ix. | 1. | Building of Eumachia. |
| 2. | Temple of Vespasian. | |
| 3. | Sanctuary of the City Lares. | |
| 8. | Macellum. | |
| xii. | 28. | House with projecting upper story—casa del Balcone Pensile. |
| 35. | Inn. | |
| xiv. | 9. | House with skeleton. |
| xv. | 8. | House with second story dining room. |
| Ins. Occidentalis. | ||
| 13. | House near the Porta Marina. | |
| Region VIII | ||
| Insula | ||
| i. | Basilica. | |
| ii. | 1, 3. | Casa di Championnet. |
| 6. | Office of the aediles. | |
| 8. | Hall of the city council. | |
| 10. | Office of the duumvirs. | |
| 17-21. | Terrace house, with bath. | |
| 23. | Bath. | |
| 39. | House of the Emperor Joseph II—casa dell' Imperatore Giuseppe II. | |
| iii. | 1. | Comitium. |
| 4. | House of the Wild Boar—casa di Cinghiale. | |
| iv. | 4. | House of Marcus Holconius. |
| 15. | House of Cornelius Rufus. | |
| v-vi. | 39. | House of Acceptus and Euhodia. |
| viii. | The theatres and other public buildings. | |
| Region IX | ||
| Insula | ||
| i. | 20. | House of Epidius Rufus. |
| 22. | House of Epidius Sabinus. | |
| ii. | 16. | House of Balbus. |
| iii. | 2. | Dyehouse. |
| 5. | House of M. Lucretius. | |
| 10. | Bakery. | |
| 25. | House of L. Clodius Varus. | |
| iv. | Central Baths. | |
| v. | 11. | House with triclinium of masonry and seat for the children. |
| vii. | 6. | House of the Centenary—casa del Centenario; also known as the house of Tiberius Claudius Verus. |
| a. | Inn of Hyginius Firmus. | |
Handbooks of Archæology and Antiquities
The Destruction of Ancient Rome
A Sketch of the History of the Monuments
By RODOLFO LANCIANI, D.C.L., Oxford, LL.D., Professor of Ancient Topography in the University of Rome
Cloth 12mo $1.50 net
A Handbook of Greek Sculpture
By ERNEST ARTHUR GARDNER, formerly Director of the British School of Archæology at Athens
Cloth 12mo $2.50 net
The Roman Festivals of the Period of the Republic
An Introduction to the Study of the Religion of the Romans
By W. WARDE FOWLER, M.A., Fellow and Sub-Rector of Lincoln College, Oxford
Cloth 12mo $1.25 net
A Handbook of Greek and Roman Coins
By G. F. HILL, M.A., of the Department of Coins and Medals in the British Museum. With Fifteen Colortype Plates
Cloth 12mo $2.25 net
A Handbook of Greek Constitutional History
By A. H. J. GREENIDGE, M.A., Lecturer and late Fellow at Hertford College, and Lecturer in Ancient History at Brasenose College, Oxford
Cloth 12mo $1.25 net
Roman Public Life
By A. H. J. GREENIDGE, M.A., Lecturer and late Fellow at Hertford College, and Lecturer in Ancient History at Brasenose College, Oxford
Cloth 12mo $2.50 net
Monuments of the Early Church
By WALTER LOWRIE, M.A., late Fellow of the American School of Classical Studies at Rome
Cloth 12mo $1.75 net
THE MACMILLAN COMPANY
66 FIFTH AVENUE, NEW YORK
A NEW AND CHEAPER EDITION
AVE ROMA IMMORTALIS
STUDIES FROM THE CHRONICLES OF ROME
By F. MARION CRAWFORD, Author of "Rulers of the South," etc., etc. Fully illustrated. Cloth, Crown 8vo, $3.00 net.
Dr. S. Weir Mitchell writes: "I have not for a long while read a book which pleased me more than Mr. Crawford's 'Roma.' It is cast in a form so original and so available that it must surely take the place of all other books about Rome which are needed to help one to understand its story and its archaeology.... The book has for me a rare interest."
A NEW AND CHEAPER EDITION
POMPEII
ITS LIFE AND ART
By AUGUST MAU, German Archæological Institute in Rome. Translated into English by Francis W. Kelsey, University of Michigan. Profusely illustrated from photographs, etc. Cloth, Gilt Top, Crown 8vo, $2.50 net.
F. Marion Crawford says of this work: "Professor Mau has succeeded beyond all those who have preceded him on the same ground. He reconstructs the ruins so that one believes in them, and sees that they must have been as he describes them, and the excellent drawings of these reconstructions stimulate the reader's belief. He restores the decorations next, and furnishes the vacant dwellings in a way that seems natural, and even comfortable; and, lastly, he populates the city he has so skilfully rebuilt, not with the dull lay figures in togas or tunics so dear to scientific history, but with human beings, alive and moving."
IN PREPARATION FOR EARLY ISSUE
ANCIENT ATHENS
By ERNEST ARTHUR GARDNER, Yates Professor of Archæology in University College, London. Formerly Director of the British School at Athens. Author of "A Handbook of Greek Sculpture," etc., etc. Cloth, 8vo. Profusely illustrated.
This handsomely illustrated book is a companion volume in its make-up to Mau's "Pompeii." Its object is to give an adequate and at the same time popular account of Ancient Athens, from the earliest times down to the official introduction of Christianity. The book deals mainly with the topography of the city and Acropolis, the extant remains of ancient buildings, and the sculpture that decorated them. It includes the results of recent excavation and research; but controversial matters have, as far as possible, been relegated to notes and appendices. A full description is given of the Parthenon, the Erechtheum, Theatre, and other buildings, and such questions as the water supply, the walls of town and harbours, the position of the Agora, and the route Pausanias, are duly considered. The general aim of the author is to stimulate and assist the historical imagination by bringing Ancient Athens, in various periods of its growth, vividly before the eyes of the ordinary well-informed reader, and to provide both those who have visited Greece and those who have not with views and plans and illustrations to enable them to realize the present appearance of the town and its monuments. For this purpose the book is very fully illustrated, as far as possible, by means of photography. Above all, the author has avoided, as far as possible, compilation or quotation from various writers, and has endeavored to give a direct record of the impressions derived from a familiarity with the sites and buildings described.
THE MACMILLAN COMPANY
66 FIFTH AVENUE, NEW YORK
[1] The original drawings are based upon sketches by Professor Mau. The drawings marked with an asterisk are in the collection of the German Archaeological Institute in Rome.
[2] It seems strange that traces of other buildings of the same period have not been discovered; but, on the other hand, it is far from probable that the temple was first erected, and that the city afterward grew up around it, for in that case the temple must have been placed further west, on the highest point of the elevation, overlooking the sea.
[3] O · Kamp[aniìs ... kva]ISSTUR · KOMBENNI[eìs tanginud] · Apelluneìs eìtiu[vad ... ops]ANNU · AAMAN[aff]ED.
[4] An extensive collection of titles relating to Pompeii and Vesuvius is given by F. Furchheim, Bibliografia di Pompei, Erculano e Stabia (Edit. 2, Naples, 1891) and Bibliografia del Vesuvio (Naples, 1897).
In the Bibliographical Appendix figures in brackets refer to the pages of this book. The following abbreviations are employed:—
Ann. dell' Inst. = Annali dell' Instituto di corrispondenza archeologica (57 vols., Rome, 1829-1885).
Bull. com. = Bullettino della commissione archeologica communale di Roma (vols. 1-19, Rome, 1872-1901).
Bull, dell' Inst. = Bullettino dell' Instituto di corrispondenza archeologica (Rome, 1829-1885).
C. I. L. = Corpus inscriptionum Latinarum (Berlin, 1863 ff.).
Ephem. Epigr. = Ephemeris Epigraphica, corporis inscriptionum Latinarum supplementum (vols. 1-8, Berlin, 1872-1899).
Jahrb. des Inst. = Jahrbuch des Kaiserlich deutschen archäologischen Instituts (vols. 1-16, Berlin, 1885-1901).
Mon. dei Lincei = Monumenti Antichi pubblicati per cura della Reale Accademia dei Lincei (Milano, vols. 1-10, 1892-1901).
Mon. dell' Inst. = Monumenti inediti pubblicati dall' Instituto di corrispondenza archeologica (12 vols. and Supplements, Rome and Berlin, 1829-1891).
Museo Borb. = Real Museo Borbonico (16 vols., Naples, 1824-1857).
Not. d. scavi = Notizie degli scavi di antichità (Rome and Milan, 1876-1901).
Pomp. ant. hist. = Pompeianarum antiquitatum historia quam ... collegit ... Ios. Fiorelli (3 vols., Naples, 1860, 1862, 1864).
Rhein. Mus. = Rheinisches Museum für Philologie (vols. 1-56, Frankfurt, 1842-1901).
Röm. Mitth. = Mittheilungen des Kaiserlich deutschen archäologischen Instituts, Römische Abtheilung (vols. 1-16, Rome, 1886-1901).
[5] "Virgil's words, 'Then were all silent,' look strangely in a half-finished scrawl from a wall of Pompeii's hushed and solitary homes."—Myers, Essays Classical (London, 1897), p. 149.
End of the Project Gutenberg EBook of Pompeii, Its Life and Art, by August Mau
*** END OF THIS PROJECT GUTENBERG EBOOK POMPEII, ITS LIFE AND ART ***
***** This file should be named 42715-h.htm or 42715-h.zip *****
This and all associated files of various formats will be found in:
http://www.gutenberg.org/4/2/7/1/42715/
Produced by Melissa McDaniel and the Online Distributed
Proofreading Team at http://www.pgdp.net (This file was
produced from images generously made available by The
Internet Archive)
Updated editions will replace the previous one--the old editions
will be renamed.
Creating the works from public domain print editions means that no
one owns a United States copyright in these works, so the Foundation
(and you!) can copy and distribute it in the United States without
permission and without paying copyright royalties. Special rules,
set forth in the General Terms of Use part of this license, apply to
copying and distributing Project Gutenberg-tm electronic works to
protect the PROJECT GUTENBERG-tm concept and trademark. Project
Gutenberg is a registered trademark, and may not be used if you
charge for the eBooks, unless you receive specific permission. If you
do not charge anything for copies of this eBook, complying with the
rules is very easy. You may use this eBook for nearly any purpose
such as creation of derivative works, reports, performances and
research. They may be modified and printed and given away--you may do
practically ANYTHING with public domain eBooks. Redistribution is
subject to the trademark license, especially commercial
redistribution.
*** START: FULL LICENSE ***
THE FULL PROJECT GUTENBERG LICENSE
PLEASE READ THIS BEFORE YOU DISTRIBUTE OR USE THIS WORK
To protect the Project Gutenberg-tm mission of promoting the free
distribution of electronic works, by using or distributing this work
(or any other work associated in any way with the phrase "Project
Gutenberg"), you agree to comply with all the terms of the Full Project
Gutenberg-tm License available with this file or online at
www.gutenberg.org/license.
Section 1. General Terms of Use and Redistributing Project Gutenberg-tm
electronic works
1.A. By reading or using any part of this Project Gutenberg-tm
electronic work, you indicate that you have read, understand, agree to
and accept all the terms of this license and intellectual property
(trademark/copyright) agreement. If you do not agree to abide by all
the terms of this agreement, you must cease using and return or destroy
all copies of Project Gutenberg-tm electronic works in your possession.
If you paid a fee for obtaining a copy of or access to a Project
Gutenberg-tm electronic work and you do not agree to be bound by the
terms of this agreement, you may obtain a refund from the person or
entity to whom you paid the fee as set forth in paragraph 1.E.8.
1.B. "Project Gutenberg" is a registered trademark. It may only be
used on or associated in any way with an electronic work by people who
agree to be bound by the terms of this agreement. There are a few
things that you can do with most Project Gutenberg-tm electronic works
even without complying with the full terms of this agreement. See
paragraph 1.C below. There are a lot of things you can do with Project
Gutenberg-tm electronic works if you follow the terms of this agreement
and help preserve free future access to Project Gutenberg-tm electronic
works. See paragraph 1.E below.
1.C. The Project Gutenberg Literary Archive Foundation ("the Foundation"
or PGLAF), owns a compilation copyright in the collection of Project
Gutenberg-tm electronic works. Nearly all the individual works in the
collection are in the public domain in the United States. If an
individual work is in the public domain in the United States and you are
located in the United States, we do not claim a right to prevent you from
copying, distributing, performing, displaying or creating derivative
works based on the work as long as all references to Project Gutenberg
are removed. Of course, we hope that you will support the Project
Gutenberg-tm mission of promoting free access to electronic works by
freely sharing Project Gutenberg-tm works in compliance with the terms of
this agreement for keeping the Project Gutenberg-tm name associated with
the work. You can easily comply with the terms of this agreement by
keeping this work in the same format with its attached full Project
Gutenberg-tm License when you share it without charge with others.
1.D. The copyright laws of the place where you are located also govern
what you can do with this work. Copyright laws in most countries are in
a constant state of change. If you are outside the United States, check
the laws of your country in addition to the terms of this agreement
before downloading, copying, displaying, performing, distributing or
creating derivative works based on this work or any other Project
Gutenberg-tm work. The Foundation makes no representations concerning
the copyright status of any work in any country outside the United
States.
1.E. Unless you have removed all references to Project Gutenberg:
1.E.1. The following sentence, with active links to, or other immediate
access to, the full Project Gutenberg-tm License must appear prominently
whenever any copy of a Project Gutenberg-tm work (any work on which the
phrase "Project Gutenberg" appears, or with which the phrase "Project
Gutenberg" is associated) is accessed, displayed, performed, viewed,
copied or distributed:
This eBook is for the use of anyone anywhere at no cost and with
almost no restrictions whatsoever. You may copy it, give it away or
re-use it under the terms of the Project Gutenberg License included
with this eBook or online at www.gutenberg.org
1.E.2. If an individual Project Gutenberg-tm electronic work is derived
from the public domain (does not contain a notice indicating that it is
posted with permission of the copyright holder), the work can be copied
and distributed to anyone in the United States without paying any fees
or charges. If you are redistributing or providing access to a work
with the phrase "Project Gutenberg" associated with or appearing on the
work, you must comply either with the requirements of paragraphs 1.E.1
through 1.E.7 or obtain permission for the use of the work and the
Project Gutenberg-tm trademark as set forth in paragraphs 1.E.8 or
1.E.9.
1.E.3. If an individual Project Gutenberg-tm electronic work is posted
with the permission of the copyright holder, your use and distribution
must comply with both paragraphs 1.E.1 through 1.E.7 and any additional
terms imposed by the copyright holder. Additional terms will be linked
to the Project Gutenberg-tm License for all works posted with the
permission of the copyright holder found at the beginning of this work.
1.E.4. Do not unlink or detach or remove the full Project Gutenberg-tm
License terms from this work, or any files containing a part of this
work or any other work associated with Project Gutenberg-tm.
1.E.5. Do not copy, display, perform, distribute or redistribute this
electronic work, or any part of this electronic work, without
prominently displaying the sentence set forth in paragraph 1.E.1 with
active links or immediate access to the full terms of the Project
Gutenberg-tm License.
1.E.6. You may convert to and distribute this work in any binary,
compressed, marked up, nonproprietary or proprietary form, including any
word processing or hypertext form. However, if you provide access to or
distribute copies of a Project Gutenberg-tm work in a format other than
"Plain Vanilla ASCII" or other format used in the official version
posted on the official Project Gutenberg-tm web site (www.gutenberg.org),
you must, at no additional cost, fee or expense to the user, provide a
copy, a means of exporting a copy, or a means of obtaining a copy upon
request, of the work in its original "Plain Vanilla ASCII" or other
form. Any alternate format must include the full Project Gutenberg-tm
License as specified in paragraph 1.E.1.
1.E.7. Do not charge a fee for access to, viewing, displaying,
performing, copying or distributing any Project Gutenberg-tm works
unless you comply with paragraph 1.E.8 or 1.E.9.
1.E.8. You may charge a reasonable fee for copies of or providing
access to or distributing Project Gutenberg-tm electronic works provided
that
- You pay a royalty fee of 20% of the gross profits you derive from
the use of Project Gutenberg-tm works calculated using the method
you already use to calculate your applicable taxes. The fee is
owed to the owner of the Project Gutenberg-tm trademark, but he
has agreed to donate royalties under this paragraph to the
Project Gutenberg Literary Archive Foundation. Royalty payments
must be paid within 60 days following each date on which you
prepare (or are legally required to prepare) your periodic tax
returns. Royalty payments should be clearly marked as such and
sent to the Project Gutenberg Literary Archive Foundation at the
address specified in Section 4, "Information about donations to
the Project Gutenberg Literary Archive Foundation."
- You provide a full refund of any money paid by a user who notifies
you in writing (or by e-mail) within 30 days of receipt that s/he
does not agree to the terms of the full Project Gutenberg-tm
License. You must require such a user to return or
destroy all copies of the works possessed in a physical medium
and discontinue all use of and all access to other copies of
Project Gutenberg-tm works.
- You provide, in accordance with paragraph 1.F.3, a full refund of any
money paid for a work or a replacement copy, if a defect in the
electronic work is discovered and reported to you within 90 days
of receipt of the work.
- You comply with all other terms of this agreement for free
distribution of Project Gutenberg-tm works.
1.E.9. If you wish to charge a fee or distribute a Project Gutenberg-tm
electronic work or group of works on different terms than are set
forth in this agreement, you must obtain permission in writing from
both the Project Gutenberg Literary Archive Foundation and Michael
Hart, the owner of the Project Gutenberg-tm trademark. Contact the
Foundation as set forth in Section 3 below.
1.F.
1.F.1. Project Gutenberg volunteers and employees expend considerable
effort to identify, do copyright research on, transcribe and proofread
public domain works in creating the Project Gutenberg-tm
collection. Despite these efforts, Project Gutenberg-tm electronic
works, and the medium on which they may be stored, may contain
"Defects," such as, but not limited to, incomplete, inaccurate or
corrupt data, transcription errors, a copyright or other intellectual
property infringement, a defective or damaged disk or other medium, a
computer virus, or computer codes that damage or cannot be read by
your equipment.
1.F.2. LIMITED WARRANTY, DISCLAIMER OF DAMAGES - Except for the "Right
of Replacement or Refund" described in paragraph 1.F.3, the Project
Gutenberg Literary Archive Foundation, the owner of the Project
Gutenberg-tm trademark, and any other party distributing a Project
Gutenberg-tm electronic work under this agreement, disclaim all
liability to you for damages, costs and expenses, including legal
fees. YOU AGREE THAT YOU HAVE NO REMEDIES FOR NEGLIGENCE, STRICT
LIABILITY, BREACH OF WARRANTY OR BREACH OF CONTRACT EXCEPT THOSE
PROVIDED IN PARAGRAPH 1.F.3. YOU AGREE THAT THE FOUNDATION, THE
TRADEMARK OWNER, AND ANY DISTRIBUTOR UNDER THIS AGREEMENT WILL NOT BE
LIABLE TO YOU FOR ACTUAL, DIRECT, INDIRECT, CONSEQUENTIAL, PUNITIVE OR
INCIDENTAL DAMAGES EVEN IF YOU GIVE NOTICE OF THE POSSIBILITY OF SUCH
DAMAGE.
1.F.3. LIMITED RIGHT OF REPLACEMENT OR REFUND - If you discover a
defect in this electronic work within 90 days of receiving it, you can
receive a refund of the money (if any) you paid for it by sending a
written explanation to the person you received the work from. If you
received the work on a physical medium, you must return the medium with
your written explanation. The person or entity that provided you with
the defective work may elect to provide a replacement copy in lieu of a
refund. If you received the work electronically, the person or entity
providing it to you may choose to give you a second opportunity to
receive the work electronically in lieu of a refund. If the second copy
is also defective, you may demand a refund in writing without further
opportunities to fix the problem.
1.F.4. Except for the limited right of replacement or refund set forth
in paragraph 1.F.3, this work is provided to you 'AS-IS', WITH NO OTHER
WARRANTIES OF ANY KIND, EXPRESS OR IMPLIED, INCLUDING BUT NOT LIMITED TO
WARRANTIES OF MERCHANTABILITY OR FITNESS FOR ANY PURPOSE.
1.F.5. Some states do not allow disclaimers of certain implied
warranties or the exclusion or limitation of certain types of damages.
If any disclaimer or limitation set forth in this agreement violates the
law of the state applicable to this agreement, the agreement shall be
interpreted to make the maximum disclaimer or limitation permitted by
the applicable state law. The invalidity or unenforceability of any
provision of this agreement shall not void the remaining provisions.
1.F.6. INDEMNITY - You agree to indemnify and hold the Foundation, the
trademark owner, any agent or employee of the Foundation, anyone
providing copies of Project Gutenberg-tm electronic works in accordance
with this agreement, and any volunteers associated with the production,
promotion and distribution of Project Gutenberg-tm electronic works,
harmless from all liability, costs and expenses, including legal fees,
that arise directly or indirectly from any of the following which you do
or cause to occur: (a) distribution of this or any Project Gutenberg-tm
work, (b) alteration, modification, or additions or deletions to any
Project Gutenberg-tm work, and (c) any Defect you cause.
Section 2. Information about the Mission of Project Gutenberg-tm
Project Gutenberg-tm is synonymous with the free distribution of
electronic works in formats readable by the widest variety of computers
including obsolete, old, middle-aged and new computers. It exists
because of the efforts of hundreds of volunteers and donations from
people in all walks of life.
Volunteers and financial support to provide volunteers with the
assistance they need are critical to reaching Project Gutenberg-tm's
goals and ensuring that the Project Gutenberg-tm collection will
remain freely available for generations to come. In 2001, the Project
Gutenberg Literary Archive Foundation was created to provide a secure
and permanent future for Project Gutenberg-tm and future generations.
To learn more about the Project Gutenberg Literary Archive Foundation
and how your efforts and donations can help, see Sections 3 and 4
and the Foundation information page at www.gutenberg.org
Section 3. Information about the Project Gutenberg Literary Archive
Foundation
The Project Gutenberg Literary Archive Foundation is a non profit
501(c)(3) educational corporation organized under the laws of the
state of Mississippi and granted tax exempt status by the Internal
Revenue Service. The Foundation's EIN or federal tax identification
number is 64-6221541. Contributions to the Project Gutenberg
Literary Archive Foundation are tax deductible to the full extent
permitted by U.S. federal laws and your state's laws.
The Foundation's principal office is located at 4557 Melan Dr. S.
Fairbanks, AK, 99712., but its volunteers and employees are scattered
throughout numerous locations. Its business office is located at 809
North 1500 West, Salt Lake City, UT 84116, (801) 596-1887. Email
contact links and up to date contact information can be found at the
Foundation's web site and official page at www.gutenberg.org/contact
For additional contact information:
Dr. Gregory B. Newby
Chief Executive and Director
gbnewby@pglaf.org
Section 4. Information about Donations to the Project Gutenberg
Literary Archive Foundation
Project Gutenberg-tm depends upon and cannot survive without wide
spread public support and donations to carry out its mission of
increasing the number of public domain and licensed works that can be
freely distributed in machine readable form accessible by the widest
array of equipment including outdated equipment. Many small donations
($1 to $5,000) are particularly important to maintaining tax exempt
status with the IRS.
The Foundation is committed to complying with the laws regulating
charities and charitable donations in all 50 states of the United
States. Compliance requirements are not uniform and it takes a
considerable effort, much paperwork and many fees to meet and keep up
with these requirements. We do not solicit donations in locations
where we have not received written confirmation of compliance. To
SEND DONATIONS or determine the status of compliance for any
particular state visit www.gutenberg.org/donate
While we cannot and do not solicit contributions from states where we
have not met the solicitation requirements, we know of no prohibition
against accepting unsolicited donations from donors in such states who
approach us with offers to donate.
International donations are gratefully accepted, but we cannot make
any statements concerning tax treatment of donations received from
outside the United States. U.S. laws alone swamp our small staff.
Please check the Project Gutenberg Web pages for current donation
methods and addresses. Donations are accepted in a number of other
ways including checks, online payments and credit card donations.
To donate, please visit: www.gutenberg.org/donate
Section 5. General Information About Project Gutenberg-tm electronic
works.
Professor Michael S. Hart was the originator of the Project Gutenberg-tm
concept of a library of electronic works that could be freely shared
with anyone. For forty years, he produced and distributed Project
Gutenberg-tm eBooks with only a loose network of volunteer support.
Project Gutenberg-tm eBooks are often created from several printed
editions, all of which are confirmed as Public Domain in the U.S.
unless a copyright notice is included. Thus, we do not necessarily
keep eBooks in compliance with any particular paper edition.
Most people start at our Web site which has the main PG search facility:
www.gutenberg.org
This Web site includes information about Project Gutenberg-tm,
including how to make donations to the Project Gutenberg Literary
Archive Foundation, how to help produce our new eBooks, and how to
subscribe to our email newsletter to hear about new eBooks.