TOSHIBA
XM-2402B
|
Device Type |
Internal CD-ROM |
|
Interface |
ATAPI |
|
Spin Rate (Read/Write) |
10x |
|
Formats Supported Read |
CD-XA, CD-G, CD-I, CD-I Ready, CD-ROM (Mode 1 & Mode 2), Photo-CD, Video CD, Red & Yellow Book, CD-E |
|
View |
Top |
|
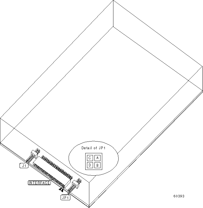
CONNECTIONS | |
|
Function |
Label |
|
Digital audio out |
J1 |
|
ATAPI MASTER/SLAVE | |
|
Setting |
JP1 |
|
Master in two drive system |
Open |
|
Slave in two drive system |
Pins C & D closed |
|
MISCELLANEOUS TECHNICAL NOTES |
|
Drive was designed to be installed in a laptop. |