STANDARD MICROSYSTEMS CORPORATION

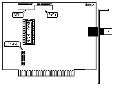
ARCNET PC130

NIC Type

ARCnet

Transfer Rate

2.5Mbps

Data Bus

8-bit ISA

Topology

Star

Wiring Type

RG-62A/U 93ohm coaxial

Boot ROM

Available

NODE ADDRESS

Node

SW1/1

SW1/2

SW1/3

SW1/4

SW1/5

SW1/6

SW1/7

SW1/8

0

-

-

-

-

-

-

-

-

1

Off

On

On

On

On

On

On

On

2

On

Off

On

On

On

On

On

On

3

Off

Off

On

On

On

On

On

On

4

On

On

Off

On

On

On

On

On

251

Off

Off

On

Off

Off

Off

Off

Off

252

On

On

Off

Off

Off

Off

Off

Off

253

Off

On

Off

Off

Off

Off

Off

Off

254

On

Off

Off

Off

Off

Off

Off

Off

255

Off

Off

Off

Off

Off

Off

Off

Off

Note:Node address 0 is used for messaging between nodes and must not be used.

A total of 255 node address settings are available. The switches are a binary representation of the decimal node addresses. Switch 1 is the Least Significant Bit and switch 8 is the Most Significant Bit. The switches have the following decimal values: switch 1=1, 2=2, 3=4, 4=8, 5=16, 6=32, 7=64, 8=128. Turn off the switches and add the values of the off switches to obtain the correct node address. (On=0, Off=1)

TIMEOUT CONFIGURATION

Response Time

Idle Time

Reconfig. Time

JP1A

JP1B

»

1190µs

1237µs

1680ms

Open

Open

 

563µs

624µs

1680ms

Closed

Open

 

285µs

316µs

1680ms

Open

Closed

 

78µs

86µs

840ms

Closed

Closed

BOOT ROM

Setting

JP1C

»

Disabled

Open

 

Enabled

Closed

INTERRUPT REQUEST

IRQ

JP1D

JP1E

JP1F

JP1G

JP1H

2

Open

Open

Open

Open

Closed

3

Open

Open

Open

Closed

Open

4

Open

Open

Closed

Open

Open

5

Open

Closed

Open

Open

Open

7

Closed

Open

Open

Open

Open

I/O BASE ADDRESS

Address

SW2/1

SW2/2

SW2/3

260h

On

On

On

290h

On

On

Off

2E0h

On

Off

On

2F0h

On

Off

Off

300h

Off

On

On

350h

Off

On

Off

380h

Off

Off

On

3E0h

Off

Off

Off

BASE MEMORY ADDRESS & BOOT ROM ADDRESS

Base Address

Boot ROM Address

SW2/4

SW2/5

SW2/6

SW2/7

SW2/8

»

D0000 - D07FFh

D2000 - D3FFFh

On

Off

Off

On

On

 

C0000 - C07FFh

C2000 - C3FFFh

On

On

On

On

On

 

C0800 - C0FFFh

C2000 - C3FFFh

On

On

On

On

Off

 

C1000 - C17FFh

C2000 - C3FFFh

On

On

On

Off

On

 

C1800 - C1FFFh

C2000 - C3FFFh

On

On

On

Off

Off

 

C4000 - C47FFh

C6000 - C7FFFh

On

On

Off

On

On

 

C4800 - C4FFFh

C6000 - C7FFFh

On

On

Off

On

Off

 

C5000 - C57FFh

C6000 - C7FFFh

On

On

Off

Off

On

 

C5800 - C5FFFh

C6000 - C7FFFh

On

On

Off

Off

Off

 

CC000 - CC7FFh

CE000 - CFFFFh

On

Off

On

On

On

 

CC800 - CCFFFh

CE000 - CFFFFh

On

Off

On

On

Off

 

CD000 - CD7FFh

CE000 - CFFFFh

On

Off

On

Off

On

 

CD800 - CDFFFh

CE000 - CFFFFh

On

Off

On

Off

Off

 

D0800 - D0FFFh

D2000 - D3FFFh

On

Off

Off

On

Off

 

D1000 - D17FFh

D2000 - D3FFFh

On

Off

Off

Off

On

 

D1800 - D1FFFh

D2000 - D3FFFh

On

Off

Off

Off

Off

 

D4000 - D47FFh

D6000 - D7FFFh

Off

On

On

On

On

 

D4800 - D4FFFh

D6000 - D7FFFh

Off

On

On

On

Off

 

D5000 - D57FFh

D6000 - D7FFFh

Off

On

On

Off

On

 

D5800 - D5FFFh

D6000 - D7FFFh

Off

On

On

Off

Off

 

D8000 - D87FFh

DA000 - DBFFFh

Off

On

Off

On

On

 

D8800 - D8FFFh

DA000 - DBFFFh

Off

On

Off

On

Off

 

D9000 - D97FFh

DA000 - DBFFFh

Off

On

Off

Off

On

 

D9800 - D9FFFh

DA000 - DBFFFh

Off

On

Off

Off

Off

 

DC000 - DC7FFh

DE000 - DFFFFh

Off

Off

On

On

On

 

DC800 - DCFFFh

DE000 - DFFFFh

Off

Off

On

On

Off

 

DD000 - DD7FFh

DE000 - DFFFFh

Off

Off

On

Off

On

 

DD800 - DDFFFh

DE000 - DFFFFh

Off

Off

On

Off

Off

 

E0000 - E07FFh

E2000 - E2FFFh

Off

Off

Off

On

On

 

E0800 - E0FFFh

E2000 - E2FFFh

Off

Off

Off

On

Off

 

E1000 - E17FFh

E2000 - E2FFFh

Off

Off

Off

Off

On

 

E1800 - E1FFFh

E2000 - E2FFFh

Off

Off

Off

Off

Off