SIEMENS NIXDORF INFORMATIONSSYSTEME AG
SYSTEM BOARD D1000
|
Processor |
Pentium Pro |
|
Processor Speed |
200MHz |
|
Chip Set |
Unidentified |
|
Video Chip Set |
None |
|
Maximum Onboard Memory |
512MB (EDO supported) |
|
Maximum Video Memory |
None |
|
Cache |
256/512KB (located on the Pentium Pro CPU) |
|
BIOS |
Unidentified |
|
Dimensions |
355mm x 304mm |
|
I/O Options |
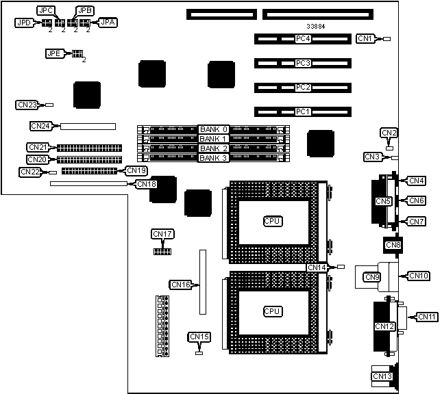
32-bit PCI slots (4), floppy drive interface, IDE interfaces (2), SCSI interface, parallel port, PS/2 mouse port, serial ports (2), VRM connector, USB connectors (2), RJ-45 port, line out connector, line in connector, game/MIDI port, voice/modem port, CD line in connector, wavetable connector, audio in connector |
|
NPU Options |
None |
|
CONNECTIONS | |||
|
Purpose |
Location |
Purpose |
Location |
|
Wavetable connector |
CN1 |
Chassis fan power |
CN14 |
|
CD line in connector |
CN2 |
Chassis fan power |
CN15 |
|
Voice/modem port |
CN3 |
VRM connector |
CN16 |
|
Audio in connector |
CN4 |
Serial port 2 |
CN17 |
|
Game/MIDI port |
CN5 |
Front panel connector |
CN18 |
|
Line in connector |
CN6 |
Floppy drive interface |
CN19 |
|
Line out connector |
CN7 |
IDE interface 1 |
CN20 |
|
RJ-45 port |
CN8 |
IDE interface 2 |
CN21 |
|
USB connector |
CN9 |
SCSI LED |
CN22 |
|
USB connector |
CN10 |
Chassis fan power |
CN23 |
|
Serial port 1 |
CN11 |
SCSI interface |
CN24 |
|
Parallel port |
CN12 |
32-bit PCI slots |
PC1 - PC4 |
|
PS/2 mouse port |
CN13 | ||
|
USER CONFIGURABLE SETTINGS | |||
|
Function |
Label |
Position | |
|
» |
Flash BIOS write protect disabled |
JPA |
Pins 3 & 5 closed |
|
Flash BIOS write protect enabled |
JPA |
Pins 1 & 3 closed | |
|
» |
Flash BIOS normal operation |
JPA |
Pins 4 & 6 closed |
|
Flash BIOS recovery mode |
JPA |
Pins 2 & 4 closed | |
|
» |
Factory configured - do not alter |
JPB |
Unidentified |
|
DIMM CONFIGURATION | ||||
|
Size |
Bank 0 |
Bank 1 |
Bank 2 |
Bank 3 |
|
16MB |
(1) 2M x 64 |
None |
None |
None |
|
32MB |
(1) 2M x 64 |
(1) 2M x 64 |
None |
None |
|
32MB |
(1) 4M x 64 |
None |
None |
None |
|
48MB |
(1) 2M x 64 |
(1) 2M x 64 |
(1) 2M x 64 |
None |
|
64MB |
(1) 2M x 64 |
(1) 2M x 64 |
(1) 2M x 64 |
(1) 2M x 64 |
|
64MB |
(1) 4M x 64 |
(1) 4M x 64 |
None |
None |
|
64MB |
(1) 8M x 64 |
None |
None |
None |
|
96MB |
(1) 4M x 64 |
(1) 4M x 64 |
(1) 4M x 64 |
None |
|
128MB |
(1) 4M x 64 |
(1) 4M x 64 |
(1) 4M x 64 |
(1) 4M x 64 |
|
128MB |
(1) 8M x 64 |
(1) 8M x 64 |
None |
None |
|
128MB |
(1) 16M x 64 |
None |
None |
None |
|
192MB |
(1) 8M x 64 |
(1) 8M x 64 |
(1) 8M x 64 |
None |
|
256MB |
(1) 8M x 64 |
(1) 8M x 64 |
(1) 8M x 64 |
(1) 8M x 64 |
|
256MB |
(1) 16M x 64 |
(1) 16M x 64 |
None |
None |
|
384MB |
(1) 16M x 64 |
(1) 16M x 64 |
(1) 16M x 64 |
None |
|
512MB |
(1) 16M x 64 |
(1) 16M x 64 |
(1) 16M x 64 |
(1) 16M x 64 |
|
Note: Board accepts EDO memory. | ||||
|
DIMM VOLTAGE CONFIGURATION | ||
|
Voltage |
JPE | |
|
50ns |
Pins 1 & 3, 2 & 4 closed | |
| » |
60ns |
Pins 3 & 5, 4 & 6 closed |
|
CACHE CONFIGURATION |
|
Note: 256KB/512KB cache is located on the Pentium Pro CPU. |
|
CPU SPEED SELECTION | ||
|
Speed |
JPC |
JPD |
|
200MHz |
Pins 3 & 5, 4 & 6 closed |
Pins 3 & 5, 4 & 6 closed |