EMPAC RESEARCH INTERNATIONAL
ERI-LAN486E
|
Processor |
80486SX/80486DX |
|
Processor Speed |
25/33/50/50(internal)MHz |
|
Chip Set |
Symphony |
|
Max. Onboard DRAM |
16MB |
|
Cache |
None |
|
BIOS |
AMI |
|
Dimensions |
254mm x 230mm |
|
I/O Options |
Bus mouse port, ethernet ports (3), floppy drive interface, IDE interface, parallel port, serial ports (2) |
|
NPU Options |
None |
|
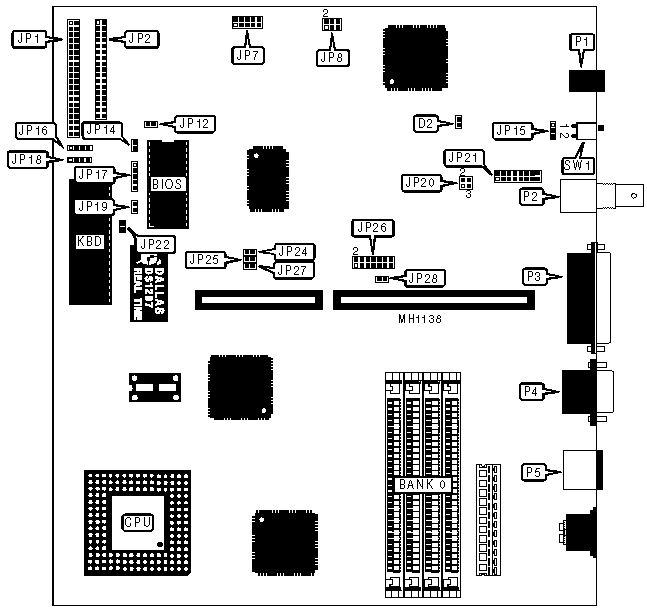
CONNECTIONS | |||
|
Purpose |
Location |
Purpose |
Location |
|
Link LED |
D2 |
Speaker |
JP18 |
|
IDE hard disk interface |
JP1 |
Reset switch |
JP19 |
|
Floppy disk interface |
JP2 |
Ethernet 10Base5 (AUI) |
JP21 |
|
Serial port 2 |
JP7 |
Ethernet 10BaseT |
P1 |
|
Turbo LED |
JP12 |
Ethernet 10Base2 |
P2 |
|
Turbo switch |
JP14 |
Parallel port |
P3 |
|
IDE interface LED |
JP16 |
Serial port 1 |
P4 |
|
Power LED & keylock |
JP17 |
Bus mouse |
P5 |
|
USER CONFIGURABLE SETTINGS | |||
|
Function |
Jumper/Switch |
Position | |
| » |
Monitor type select color |
JP22 |
closed |
|
Monitor type select monochrome |
JP22 |
open | |
| » |
Serial port 1 interrupt IRQ4 enabled |
JP24 |
closed |
|
Serial port 1 interrupt IRQ4 disabled |
JP24 |
open | |
| » |
Serial port 2 interrupt IRQ3 enabled |
JP25 |
closed |
|
Serial port 2 interrupt IRQ3 disabled |
JP25 |
open | |
| » |
Parallel port select LPT1 interrupt IRQ7 |
JP27 |
closed |
|
Parallel port disabled |
JP27 |
open | |
| » |
Mouse port select interrupt IRQ12 enabled |
JP28 |
closed |
|
Mouse port select interrupt IRQ12 disabled |
JP28 |
open | |
| » |
Ethernet type select 10BaseT (RJ45) |
SW1 |
1 |
|
Ethernet type select 10Base2 (BNC) |
SW1 |
2 | |
|
Ethernet type select 10Base5 (AUI) |
SW1 |
N/A | |
|
DRAM CONFIGURATION | |
|
Size |
Bank 0 |
|
1MB |
(4) 256K x 9 |
|
4MB |
(4) 1M x 9 |
|
16MB |
(4) 4M x 9 |
|
ETHERNET CONTROLLER I/O ADDRESS CONFIGURATION | ||
|
I/O Address |
JP8 | |
|
300H |
open | |
|
320H |
pins 1 & 2, 3 & 4, and 5 & 6 closed | |
|
330H |
pins 1 & 2 and 3 & 4 closed | |
|
340H |
pins 1 & 2 and 5 & 6 closed | |
|
350H |
pins 1 & 2 closed | |
| » |
360H |
pins 5 & 6 closed |
|
380H |
pins 3 & 4 and 5 & 6 closed | |
|
REMOTE BOOT ROM CONFIGURATION | |||
|
Setting |
JP15 |
JP26 | |
| » |
Disabled |
pins 1 & 2 closed |
N/A |
|
C8OOOH-C9FFFH |
pins 2 & 3 closed |
pins 1 & 2 and 3 & 4 closed | |
|
CCOOOH-CDFFFH |
pins 2 & 3 closed |
pins 1 & 2 closed | |
|
D8OOOH-D9FFFH |
pins 2 & 3 closed |
pins 3 & 4 closed | |
|
DCOOOH-DDFFFH |
pins 2 & 3 closed |
open | |
|
ETHERNET INTERRUPT CONFIGURATION | |
|
Interrupt |
JP26 |
|
IRQ3 |
pins 1 & 2 closed |
|
IRQ5 |
pins 3 & 4 closed |
|
IRQ9 |
pins 5 & 6 closed |
|
IRQ10 |
pins 7 & 8 closed |
|
IRQ11 |
pins 9 & 10 closed |
|
IRQ12 |
pins 11 & 12 closed |
|
IRQ15 |
pins 13 & 14 closed |